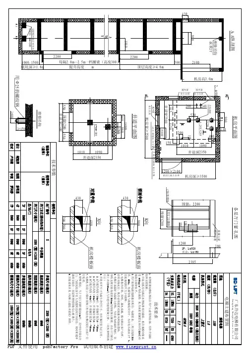
%%c1600(支撑填板规格为-10*60*95@800)柱间支撑ZC0 7,ZZC0 7详图~~~柱间支撑1修改图柱间支撑2修改图柱间支撑立面图(80)(200)C1.本图为柱间支撑修改图.修改位置见原16号图.说明: 签章工 种 会 签建 筑结 构给排水强弱电暖 通1101101101101101101101701890110269048805930设 计校 对项目负责人16525930252861501101101101101101101890269017011048801:50图 号档案编号修01结施工程编号02-J023日 期2002.03.10比 例图纸名称项目名称建设单位参CC1ZC6199555001200A(梁定位均为所注梁标高,支撑除外)A'3045160环梁环梁26441594参CC1CC9aC1-4C1-6ZC7136B'160-0.4001002010170C3-43222C1环梁2338ZC4CC9C3-6C2-4C2-6ZC5GDL4C3环梁ZC2ZC32798参CC1CC8GDL4510024905.100100171021010.2001002300210110审 定复 核专业负责人合作设计27382528ZC1ZC0CC7参CC1C4-4C4-6GDL4GDL4环梁2225196316.35010021020852365ZZC7CC13217015536150附图1:注: 柱间支撑材质均为Q235.90016595500参CC2A'(梁定位均为所注梁标高,支撑除外)ZZC7ZZC623651594;-0.4001001002001910170C22862ZZC5ZZC42130C3-5C2-5CC12aGDL3GDL2ZZC3ZZC22605CC12参CC2GDL3GDL2239051005.100100100110100100161110.20010010010022011001109320810ZZC0~7连接板2用于支撑下端,厚度为10mm用于支撑上端,厚度为10mmZZC0~7连接板13281282002343111099266CC12CC11CC12a名 称CC9a2542ZZC0ZZC12247C4-5CC11参CC2GDL2GDL2GDL32125100100100100176316.350100100110CC8CC7CC92262196718902605258213791850(mm)柱 间 支 撑 ZCx 表24842L75*6ZZC3ZZC2ZZC0ZZC1ZZC6ZZC5ZZC4ZC7ZC61835规 格2L75*6ZC2名 称ZC4ZC0ZC1ZC3ZC52368A/26382368257821783062板规格见附图1柱间支撑连接260521702247254216592130286219952644(计32块)板规格均为柱间支撑连接-6*250*200备注2528(mm)C/27982528273832222338