电梯布置及识图
- 格式:ppt
- 大小:812.50 KB
- 文档页数:10
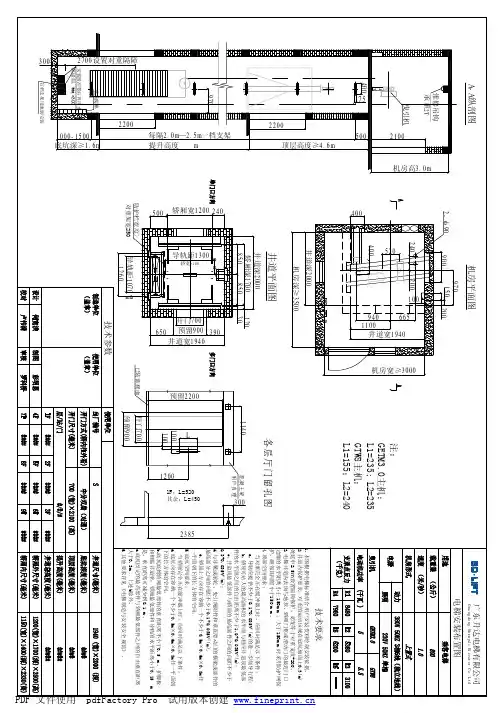
预留22001200100100L300已装饰楼面23851F :L=520其余:L=450 开门800预留1000用户自理混凝土梁各层厅门留孔图4-200×200900K 向机房楼板面轿厢中线430450450200每隔2.0m —2.5m 一档圈梁(高度:300 A-A 纵剖图井道深2050井道宽2000预留10001260井道平面图机房平面图8304308859452-300×300用Φ25的螺纹钢井道深20504007902402005208859459001301000100150200吊钩投影机房深≥3000机房宽≥35001200×2100机房门业主自理检查用插座(业主自理(动力,照明用开关箱(业主自理业主自理通风窗业主自理排风窗业主自理通风窗4502-φ90≥80≥150维修吊钩2100机房高3.0m承重2T维修吊钩430500底坑深≥1.6m22002200提升高度 m顶层高度≥4.6m1000-1500安装缓冲器后再用水泥堵制:300×300 885R1R3R5R4井道宽2000R2500500400X 向机房楼板面对重中线430210190Guangdong Shengda Elevator Co.,Ltd广东升达电梯有限公司电梯土建布置图技术参数技术要求1.本图根据电梯标准结合用户土建资料绘制,用作井道验收和安装依据。
2.井道及机房应满足本图标准相关载荷。
机房地板应能承受 600kg/m ²均布载荷,机房承重梁搁置支座应用C20素砼现浇且保持水平。
3.用户需将电源线路通至机房,电源要求:三相五线制380伏、50Hz 、电源零线与接地线应分开,允许电压波动±7%,且接地电阻不大于4欧姆。
4.电梯机房吊钩、照明、通风设施、配电箱由客户自理。
必须有隔水层,机房必须设置对流通风和加装散热。
5.电梯井道最好为混凝土结构,当井道为砖混结构时,在导轨支架安装处设置300mm 高的混凝土圈梁,并在厅门留孔洞上沿设300mm 高与井道同宽的混凝土梁。