电梯土建图讲解
- 格式:pptx
- 大小:2.79 MB
- 文档页数:30
电梯间施工图解说明:各楼电梯顺序,翠景园1#楼西侧电梯为电梯1、东侧为电梯2、中间为电梯3,其余各楼从西侧向东侧依次排序。
翠景园一、1/3/5/7/9/10#楼电梯11、底坑平面布置图新增加2个混凝土墩详见下图(Q箭头方向为电梯门):上图中A=478mm、B=100mm,高度为除建筑地面的高度,施工高度还包括回填土厚度,混凝土墩子混凝土强度C25,主筋4根直径10三级钢,箍筋圆钢直径6间距200。
2、井道平面布置图门洞边尺寸与设计图纸相符.砌筑墙体上留设呼楼盒孔及消防通讯孔采用砌筑后切割方式施工(现场一次性浇筑的部位同样后钻孔)。
3、电梯机房部位机房地板机房侧墙机房地面平面图下手为门洞位置,墙体后壁预留凹坑尺寸见图纸,设置搁机梁的预留洞口,考虑到墙体渗漏,请设计明确处理方案。
通过施工图与电梯厂家提供图纸对比,电梯机房部位没有冲突,且需要留设凹坑。
4、电梯井电梯井壁为砖砌墙时,除门洞侧外其余三侧均布设钢筋砼圈梁(250×墙厚),电梯坑底以上0。
5m布置一道,井道顶部以下0.5m布置一道,中间每2m布置一道,地下室地面上1m增设一道.砼强度等级C20,配筋参照下图:砖砌电梯井壁拐角处,构造柱混凝土强度等级C20。
配筋参照下图施工时,先砌筑墙,留马牙槎,间距:层进层出,宽度60mm。
电梯门洞口根据BM砌块要求植筋,灌C20细石砼。
5、电梯门口装修预留方案地下室地面处理首层以上地面处理二、5/7/9/10电梯21、底坑平面布置图新增加2个混凝土墩详见下图(Q箭头方向为电梯门):上图中A=478mm、B=100mm,高度为除建筑地面的高度,施工高度还包括回填土厚度,混凝土墩子混凝土强度C25,主筋4根直径10三级钢,箍筋圆钢直径6间距200。
2、井道平面布置门洞边尺寸与设计图纸相符。
砌筑墙体上留设呼楼盒孔及消防通讯孔采用砌筑后切割方式(现场一次性浇筑的部位同样后钻孔)。
3、电梯机房机房地板机房侧墙机房地面平面图下手为门洞位置,墙体后壁预留凹坑尺寸见图纸,设置搁机梁的预留洞口,考虑到墙体渗漏,请设计明确处理方案.本工程电梯机房后壁预留凹坑与建筑图纸中楼梯侧外窗冲突,而凹坑必须做,请设计确认处理。
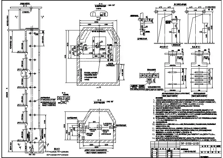
预留22001200100100L300已装饰楼面23851F :L=520其余:L=450 开门800预留1000用户自理混凝土梁各层厅门留孔图4-200×200900K 向机房楼板面轿厢中线430450450200每隔2.0m —2.5m 一档圈梁(高度:300 A-A 纵剖图井道深2050井道宽2000预留10001260井道平面图机房平面图8304308859452-300×300用Φ25的螺纹钢井道深20504007902402005208859459001301000100150200吊钩投影机房深≥3000机房宽≥35001200×2100机房门业主自理检查用插座(业主自理(动力,照明用开关箱(业主自理业主自理通风窗业主自理排风窗业主自理通风窗4502-φ90≥80≥150维修吊钩2100机房高3.0m承重2T维修吊钩430500底坑深≥1.6m22002200提升高度 m顶层高度≥4.6m1000-1500安装缓冲器后再用水泥堵制:300×300 885R1R3R5R4井道宽2000R2500500400X 向机房楼板面对重中线430210190Guangdong Shengda Elevator Co.,Ltd广东升达电梯有限公司电梯土建布置图技术参数技术要求1.本图根据电梯标准结合用户土建资料绘制,用作井道验收和安装依据。
2.井道及机房应满足本图标准相关载荷。
机房地板应能承受 600kg/m ²均布载荷,机房承重梁搁置支座应用C20素砼现浇且保持水平。
3.用户需将电源线路通至机房,电源要求:三相五线制380伏、50Hz 、电源零线与接地线应分开,允许电压波动±7%,且接地电阻不大于4欧姆。
4.电梯机房吊钩、照明、通风设施、配电箱由客户自理。
必须有隔水层,机房必须设置对流通风和加装散热。
5.电梯井道最好为混凝土结构,当井道为砖混结构时,在导轨支架安装处设置300mm 高的混凝土圈梁,并在厅门留孔洞上沿设300mm 高与井道同宽的混凝土梁。
工程施工电梯图纸讲解一、施工电梯是指为施工作业人员和物料提供垂直或近垂直升降的设备,这些设备主要用于在施工现场进行人员和物料的垂直运输。
二、施工电梯图纸是针对施工电梯的设计、制作和安装所需的一种图纸,包括电梯的整体结构、主要零部件、工作原理及相关参数等内容。
三、下面将对施工电梯图纸的主要内容进行详细讲解:1. 电梯主要结构首先,在施工电梯的图纸设计中,需要明确电梯的主要结构,包括电梯车厢、导轨、外壳等。
电梯车厢是施工电梯的主体部分,通常由钢结构制成,具有一定的承载能力和稳定性;导轨是用来支撑和引导电梯运行的组成部分,通常由钢材或铝合金制成,具有较强的耐力和耐磨性;外壳则是用来保护电梯内部结构,同时也可以起到美观和防护作用。
2. 电梯主要零部件除了主要结构外,施工电梯图纸还需要详细设计电梯的主要零部件,包括电动机、驱动系统、控制系统、安全系统等。
电动机是电梯的动力来源,通常采用交流电机或直流电机,具有较高的功率和效率;驱动系统包括传动装置和传动链条,用来将电动机的动力传递给电梯车厢,实现升降功能;控制系统是用来监控和调节电梯的运行状态,包括启停、加减速、楼层选择等功能;安全系统则是为了保障电梯的安全运行,包括限速器、制动器、门锁等。
3. 电梯工作原理在施工电梯的图纸设计中,还需要明确电梯的工作原理,包括电梯的升降机制、驱动原理及控制方法等。
电梯是通过电动机驱动电梯车厢在导轨上上下运行,通过控制系统对电梯的速度、位置和停靠进行控制,实现升降功能;同时,电梯还需要安装安全系统,确保在突发情况下能够及时停靠和保护乘客的安全。
4. 电梯相关参数最后,在施工电梯的图纸设计中,还需要标明电梯的相关参数,包括额定载重、额定速度、提升高度、运行速度等。
这些参数是设计电梯时的重要依据,也是施工电梯的性能指标,对于确保电梯的安全运行和满足使用要求具有重要意义。
综上所述,施工电梯图纸是设计、制作和安装施工电梯所必需的一种设计图纸,包括电梯的整体结构、主要零部件、工作原理及相关参数等内容。