学校建筑设计
- 格式:doc
- 大小:27.00 KB
- 文档页数:4
解析学校建筑设计的重点、难点及其应对方式1. 重点学校建筑设计的重点主要包括以下几个方面:1.1 功能性设计学校建筑的主要功能是提供良好的教学和研究环境。
因此,在设计过程中,需要考虑教室、实验室、图书馆、体育场等功能性空间的布局和设计。
同时,还需要合理规划交通道路和停车场等公共空间,以确保学校的正常运行。
1.2 安全性设计学校建筑的安全性设计是非常重要的,特别是对于学生和教职员工的安全。
在设计过程中,需要考虑防火、防盗、防灾等安全要素,并采取相应的措施来保障学校的安全。
1.3 环境友好设计学校建筑设计应注重环境友好性,包括节能减排、水资源利用、废弃物处理等方面。
通过科学的设计和选材,可以减少对环境的影响,并提供一个舒适、健康的研究环境。
2. 难点学校建筑设计中可能遇到的一些难点包括:2.1 地形和土壤条件学校建筑的选址往往会受到地形和土壤条件的限制。
有些地方可能存在山地、湿地等复杂地形,土壤条件也可能不太理想。
在面对这些难点时,需要进行详细的勘察和分析,采取相应的土木工程措施来解决问题。
2.2 空间规划和布局学校建筑通常需要容纳大量的学生和教职员工,因此空间规划和布局是一个挑战。
需要合理安排教室、办公室、实验室等功能空间,同时考虑人流和交通流线的设计,以确保学校的正常运行。
2.3 资金和预算限制学校建筑设计的实施通常需要大量的资金支持,而且往往有严格的预算限制。
在设计过程中,需要合理分配资金,并在预算范围内寻找最佳的设计方案,以实现设计目标。
3. 应对方式为了解决学校建筑设计中的重点和难点,可以采取以下应对方式:3.1 综合规划和设计在设计过程中,需要进行综合规划和设计,充分考虑学校的功能需求、安全要求和环境友好性。
通过综合规划,可以合理布局和利用空间,提高学校建筑的效益。
3.2 专业团队合作学校建筑设计需要涉及多个专业领域,如建筑设计、结构设计、给排水设计等。
为了应对难点,可以组建一个专业的团队,各专业人员相互协作,共同解决问题。
学校建筑设计重点、难点分析及应对措施1. 引言学校建筑设计在现代教育环境中扮演着重要的角色。
一所好的学校建筑设计不仅能提供优质的研究环境,还能激发学生的研究热情,提高教学效果。
然而,学校建筑设计面临着一系列的重点和难点问题。
本文将详细分析这些问题,并提出应对措施。
2. 学校建筑设计重点分析2.1 空间规划学校建筑设计的一个重点在于合理的空间规划。
学校需要考虑到各种功能区域的合理布局,如教室、图书馆、实验室、运动场等。
此外,还需要考虑行人流量、车辆通行路线等方面的规划,以确保校区内的交通流畅。
2.2 教室设计学校教室的设计直接影响到学生的研究效果。
因此,教室的布局、采光、通风、座位等方面都需要精心设计。
此外,还需要考虑到教室的多功能性,以适应各种教学需求。
2.3 环境绿化学校建筑的环境绿化是提供学生一个良好研究环境的重要因素。
绿化设计不仅要围绕校区的美化,还要考虑到校园生态环境的保护和可持续发展。
3. 学校建筑设计难点分析3.1 资金限制学校建筑设计通常受到有限的资金支持,这是一个难点。
在有限的预算内,如何在保证学校建筑设计质量的同时,实现设计理念的最大化,是一个挑战。
3.2 建筑安全学校建筑设计必须注重安全性,保证学生、教职员工的人身安全。
然而,在设计中考虑到所有可能的安全隐患并采取相应的措施是一项复杂的任务。
3.3 结合教育理念学校建筑设计需要结合教育理念,创造一个有利于研究和成长的环境。
这要求设计师充分了解学校的教育理念和教学模式,并将其融入到建筑设计中。
4. 应对措施4.1 制定详细的规划方案通过制定详细的规划方案,可以指导学校建筑设计的发展。
规划方案应包括空间规划、教室设计、环境绿化等方面的内容,并考虑到学校未来的发展需求。
4.2 寻求外部资金支持在资金有限的情况下,寻求外部资金支持可以解决一部分资金难题。
学校可以与企业、政府等合作,争取项目资助或合作投资。
4.3 引入专业设计团队为了应对复杂的建筑安全和教育理念的结合,学校应引入专业的建筑设计团队。
建筑设计规范:中小学校建筑设计规范第一章总则第1.0.1条为确保中小学、中等师范、幼儿师范的学校建筑设计质量,创造适合青少年德育、智育、体育、美育全面发展的学校环境,特制定本规范。
第1.0.2条本规范适用于城镇、工矿区新建、改建和扩建的普通中小学校、中等师范学校和幼儿师范学校的建筑设计。
第1.0.3条学校建筑设计应满足教学功能要求,有利于学生安全及身心健康,合理安排学校用地。
第1.0.4条学校建筑设计应根据各地区气候和地理差异、经济技术的发展水平、各民族人民生活习惯及传统等因素,因地制宜地进行设计。
第1.0.5条学校建筑设计除执行本规范的规定外,尚应符合国家现行的有关标准、规范的要求。
第二章选址和总平面布局第一节校址选择第2.1.1条学校校址选择应符合下列规定:一、校址应选择在阳光充足、空气流通、场地干燥、排水通畅、地势较高的地段。
校内应有布置运动场的场地和提供设置给水排水及供电设施的条件。
二、学校宜设在无污染的地段。
学校与各类污染源的距离应符合国家有关防护距离的规定。
三、学校主要教学用房的外墙面与铁路的距离不应小于300m;与机动车流量超过每小时270辆的道路同侧路边的距离不应小于80m,当小于80m时,必须采取有效的隔声措施。
四、学校不宜与市场、公共娱乐场所,医院太平间等不利于学生学习和身心健康以及危及学生安全的场所毗邻。
五、校区内不得有架空高压输电线穿过。
六、中学服务半径不宜大于1000m;小学服务半径不宜大于500m。
走读小学生不应跨过城镇干道、公路及铁路。
有学生宿舍的学校,不受此限制。
第二节学校用地第2.2.1条学校用地应包括建筑用地、运动场地和绿化用地三部分。
各部分用地的划分应符合下列规定:一、建筑用地、运动场地、绿化用地之间有绿化带隔离者,应划至绿化带边缘;无绿化带隔离者,应以道路中心线为界。
二、学校建筑用地应包括建筑占地面积、建筑物周围通道、房前屋后的零星绿地、小片课间活动场地。
中小学校建筑设计规范(GB50099-2011)主编部门:中华人民共和国住房和城乡建设部批准部门:中华人民共和国住房和城乡建设部实施日期:2012年1月1日目次1、总则…………………………………………………………………………………( 1)2、术语…………………………………………………………………………………( 2)3、基本规定……………………………………………………………………………( 4)3.1原则及规定……………………………………………………………………( 4)3.2 安全设计…………………………………………………………………………( 5)3.3 社区共用设施……………………………………………………………………( 5)3.4 绿色设计…………………………………………………………………………( 6)4、基地和总平面………………………………………………………………………( 7)4.1基地……………………………………………………………………………( 7)4.2用地……………………………………………………………………………( 7)4.3总平面 (10)5、教学用房及教学辅助用房 (12)5.1构成和基本规定 (12)5.2普通教室 (13)5.3科学教室、实验室 (15)5.4史地教室 (16)5.5美术教室、书法教室 (16)5.6音乐教室 (17)5.7舞蹈兼形体教室 (17)5.8计算机教室及远程教育教室 (18)5.9语言教室 (18)5.10多媒体教室 (19)5.11 公共教室 (19)5.12 体育用房 (20)5.13劳动技术教室 (21)5.14图书室 (21)5.15科技活动室 (22)5.16 体质测试室 (22)5.17心理咨询室 (22)5.18德育展览室 (22)5.19任课教师办公室 (22)6、行政办公和生活服务用房 (24)6.1行政办公用房 (24)6.2生活服务用房 (25)7、主要教学用房面积指标、净高和建筑构造 (27)7.1主要教学用房及教学辅助用房面积指标 (27)7.2净高 (28)7.3建筑构造 (29)8、室内环境 (33)8.1空气质量 (33)8.2采光 (33)8.3照明 (34)8.4噪声控制 (35)9、建筑设备 (37)9.1采暖、通风与空气调节 (37)9.2给水、排水 (39)9.3建筑电气 (40)9.4建筑智能化 (43)附录 A 体育场地 (45)本规范用词说明 (46)附:条文说明 (47)引用标准目录 (84)第一章总则1.1.1 为认真贯彻落实《中华人民共和国义务教育法》(2006年修订),使学校建筑符合国家规定的办学标准,适应教育部制定并已执行的中小学校各科新“课程标准”的需要,制订本规范。
中小学建筑设计规范国家计委发布《中小学校建筑设计规范》第一章总则第1.0.1条为确保中小学、中等师范、幼儿师范的学校建筑设计质量,创造适合青少年德育、智育、体育、美育全面发展的学校环境,特制定本规范。
第1.0.2条本规范适用于城镇、工矿区新建、改建和扩建的普通中小学校、中等师范学校和幼儿师范学校的建筑设计。
第1.0.3条学校建筑设计应满足教学功能要求,有利于学生安全及身心健康,合理安排学校用地。
第1.0.4条学校建筑设计应根据各地区气候和地理差异、经济技术的发展水平、各民族人民生活习惯及传统等因素,因地制宜地进行设计。
第1.0.5条学校建筑设计除执行本规范的规定外,尚应符合国家现行的有关标准、规范的要求。
第二章选址和总平面布局第一节校址选择第2.1.1条学校校址选择应符合下列规定:一、校址应选择在阳光充足、空气流通、场地干燥、排水通畅、地势较高的地段。
校内应有布置运动场的场地和提供设置给水排水及供电设施的条件。
二、学校宜设在无污染的地段。
学校与各类污染源的距离应符合国家有关防护距离的规定。
三、学校主要教学用房的外墙面与铁路的距离不应小于300m;与机动车流量超过每小时27 0辆的道路同侧路边的距离不应小于80m,当小于80m时,必须采取有效的隔声措施。
四、学校不宜与市场、公共娱乐场所,医院太平间等不利于学生学习和身心健康以及危及学生安全的场所毗邻。
五、校区内不得有架空高压输电线穿过。
六、中学服务半径不宜大于1000m;小学服务半径不宜大于500m。
走读小学生不应跨过城镇干道、公路及铁路。
有学生宿舍的学校,不受此限制。
第二节学校用地第2.2.1条学校用地应包括建筑用地、运动场地和绿化用地三部分。
各部分用地的划分应符合下列规定:一、建筑用地、运动场地、绿化用地之间有绿化带隔离者,应划至绿化带边缘;无绿化带隔离者,应以道路中心线为界。
二、学校建筑用地应包括建筑占地面积、建筑物周围通道、房前屋后的零星绿地、小片课间活动场地。
解析学校建筑设计的重点、难点及其应对方式学校建筑设计是一个复杂而具有挑战性的过程,需要综合考虑多种因素。
以下是学校建筑设计中的重点、难点及其应对方式:重点1. 功能性设计:学校建筑必须满足各种功能需求,包括教室、实验室、图书馆、运动场等。
设计师需要确保每个功能区域都能够实现其预期的功能,并在整体上协调一致。
2. 安全性设计:学校建筑必须符合建筑安全标准,包括逃生通道、消防设备、防震设计等。
安全性设计是保障学生和教职员工安全的关键。
3. 可持续性设计:学校建筑应注重环保和可持续发展。
设计师应考虑使用可再生材料、节能设计和水资源管理等,以减少对环境的影响。
难点1. 预算限制:学校建筑项目通常受到预算限制。
设计师需要在有限的预算内平衡各种需求,同时确保设计质量和功能性。
2. 空间规划:学校建筑需要优化空间利用,确保足够的教室和公共区域。
设计师需要合理规划空间,考虑不同功能之间的关系和流动性。
3. 规划要求:学校建筑设计必须符合当地规划要求和建筑法规。
设计师需要熟悉相关法规,并确保设计方案符合要求。
应对方式1. 充分沟通:与学校管理层、教职员工和学生进行充分沟通,了解他们的需求和期望。
这有助于设计师准确把握设计目标,并满足用户的需求。
2. 合理利用资源:在预算限制下,设计师应合理利用可用资源,寻找经济实用的解决方案。
例如,选择适当的材料和技术,以降低成本。
3. 灵活应对:面对空间规划和规划要求的挑战,设计师应保持灵活性。
灵活的设计思维和解决问题的能力可以帮助克服各种困难。
总之,学校建筑设计的成功需要综合考虑功能性、安全性和可持续性,并灵活应对预算限制、空间规划和规划要求的挑战。
通过与相关方进行充分沟通,并合理利用资源,设计师可以有效应对这些重点和难点。
学校建筑设计的关键点、问题及解决技巧1. 关键点1.1 功能性学校建筑设计的首要考虑因素是功能性。
建筑师需要充分考虑学校的教学、办公、活动等多方面需求,确保建筑的功能分区合理,流线清晰,方便使用。
1.2 安全性安全性是学校建筑设计的重要方面。
建筑应符合相关安全规范,如防火、防震、防盗等,同时要考虑到校园暴力、恐怖袭击等突发事件,确保校园建筑的安全。
1.3 舒适性学校建筑设计还需关注学生的舒适性。
建筑师应充分考虑采光、通风、隔音等因素,为学生提供一个舒适的学习和生活环境。
1.4 可持续性随着环保理念的普及,学校建筑设计也需要注重可持续性。
建筑师应采用环保材料,注重节能减排,提高资源利用效率,为学生树立绿色环保的榜样。
1.5 美学性学校建筑设计还应具有美学价值,体现校园文化,激发学生的学习和创造力。
建筑师可通过建筑形式、色彩、材质等手法,打造具有艺术感和教育意义的校园环境。
2. 问题2.1 空间利用效率低学校建筑设计中,空间利用效率低是一个常见问题。
部分学校由于历史原因或设计不当,导致空间浪费,影响校园的整体运行。
2.2 设施老化部分学校建筑由于建设时间较长,设施设备老化,影响正常使用。
此外,随着教育理念的发展,原有设施可能无法满足现代教育的需求。
2.3 安全隐患一些学校建筑存在安全隐患,如消防设施不完善、建筑结构不稳定等。
这些问题可能导致严重后果,对师生的生命安全构成威胁。
2.4 环境污染部分学校建筑附近可能存在环境污染问题,如噪音、空气污染等。
这会对学生的身心健康产生负面影响。
3. 解决技巧3.1 优化空间布局在建筑设计过程中,建筑师应充分考虑校园的功能需求,优化空间布局,提高空间利用效率。
可以采用灵活多变的空间设计,满足不同场景的需求。
3.2 更新设施设备学校应定期对设施设备进行更新,引进现代化的教育设施,满足教育教学的需求。
同时,要注重绿色环保,选用节能设备,降低能源消耗。
学校建筑设计的重要性、困扰及解决办法学校建筑设计在现代教育中扮演着重要的角色。
一个良好的建筑设计不仅能提供优质的学习环境,还能影响学生的学习和发展。
然而,在学校建筑设计过程中也存在一些困扰。
本文将探讨学校建筑设计的重要性,并提出解决这些困扰的方法。
重要性学校建筑设计对学生的学习和发展有着直接影响。
一个舒适、安全、功能齐全的学校建筑可以提供良好的学习环境,有助于学生集中注意力,提高学习效果。
此外,一个美观的建筑设计可以激发学生的创造力和想象力,鼓励他们积极参与学校活动。
良好的学校建筑设计还能提升学校的声誉和吸引力。
学生、家长和教职员工往往会受到学校建筑的吸引,选择在这样的学校学习或工作。
这对学校的招生和人才吸引具有重要意义。
困扰在学校建筑设计过程中,存在一些常见的困扰。
首先,预算限制可能会限制设计师的创造力和设计选择。
学校通常有有限的预算,需要在经济可承受范围内完成建筑项目。
这可能导致建筑设计的局限性,无法满足所有需求和期望。
其次,与学校行政和教职员工的沟通也可能成为一个问题。
学校建筑设计需要充分了解学校的需求和目标,但行政和教职员工可能对设计过程和技术术语不熟悉。
这可能导致沟通障碍,影响设计的准确性和质量。
此外,学校建筑设计还需要考虑到安全和可持续性的要求。
学校是保护学生和员工安全的场所,建筑设计必须符合相关的安全标准。
同时,学校建筑也应该具备可持续性特征,以降低环境影响并传达对可持续发展的关注。
解决办法为解决学校建筑设计中的困扰,可以采取以下方法:1. 深入了解学校需求:设计师在设计之前应与学校行政和教职员工充分沟通,了解学校的需求和目标。
这有助于确保设计方案能满足学校的要求。
2. 多方合作:建立一个跨学科的团队,包括建筑师、教育专家、工程师等,共同参与学校建筑设计。
这样的团队合作可以确保设计方案在教育和建筑领域的专业性。
3. 灵活应对预算限制:设计师应在有限的预算下寻找创造性的解决方案。
可以考虑使用可持续材料、简化设计或优化空间布局等方式,以实现经济高效的建筑设计。
中小学校建筑设计规范第一章总则第1.0.1条为确保中小学、中等师范、幼儿师范的学校建筑设计质量,创造适合青少年德育、智育、体育、美育全面发展的学校环境,特制定本规范。
第1.0.2条本规范适用于城镇、工矿区新建、改建和扩建的普通中小学校、中等师范学校和幼儿师范学校的建筑设计。
第1.0.3条学校建筑设计应满足教学功能要求,有利于学生安全及身心健康,合理安排学校用地。
第1.0.4条学校建筑设计应根据各地区气候和地理差异、经济技术的发展水平、各民族人民生活习惯及传统等因素,因地制宜地进行设计。
第1.0.5条学校建筑设计除执行本规范的规定外,尚应符合国家现行的有关标准、规范的要求。
第二章选址和总平面布局第一节校址选择第2.1.1条学校校址选择应符合下列规定:一、校址应选择在阳光充足、空气流通、场地干燥、排水通畅、地势较高的地段。
校内应有布置运动场的场地和提供设置给水排水及供电设施的条件。
二、学校宜设在无污染的地段。
学校与各类污染源的距离应符合国家有关防护距离的规定。
三、学校主要教学用房的外墙面与铁路的距离不应小于300m;与机动车流量超过每小时270辆的道路同侧路边的距离不应小于80m,当小于80m时,必须采取有效的隔声措施。
四、学校不宜与市场、公共娱乐场所,医院太平间等不利于学生学习和身心健康以及危及学生安全的场所毗邻。
五、校区内不得有架空高压输电线穿过。
六、中学服务半径不宜大于1000m;小学服务半径不宜大于500m。
走读小学生不应跨过城镇干道、公路及铁路。
有学生宿舍的学校,不受此限制。
第二节学校用地第2.2.1条学校用地应包括建筑用地、运动场地和绿化用地三部分。
各部分用地的划分应符合下列规定:一、建筑用地、运动场地、绿化用地之间有绿化带隔离者,应划至绿化带边缘;无绿化带隔离者,应以道路中心线为界。
二、学校建筑用地应包括建筑占地面积、建筑物周围通道、房前屋后的零星绿地、小片课间活动场地。
三、学校运动场地应包括体育课、课间操及课外体育活动的整片运动场地。
学校建筑设计规范标准1. 引言本文档旨在制定学校建筑设计的规范标准,以确保学校建筑的安全、实用和美观性。
规范标准适用于所有学校建筑项目,无论其规模和用途。
2. 设计原则2.1 功能性学校建筑设计应充分考虑功能性需求,确保建筑能够满足教学、运动、住宿和其他相关活动的需要。
设计应尽量简便、高效,并提供足够的灵活性。
2.2 安全性建筑设计必须符合国家和地区的安全标准,并考虑学校内人员的安全和防火防灾需求。
设计应包括适当的疏散通道、明确的标识和紧急设施。
2.3 可持续性建筑设计应注重节能和环境保护。
应采用可再生能源、节水设施和高效的供暖、通风和空调系统等可持续技术。
2.4 无障碍性建筑设计应考虑人员流动的便利性,包括无障碍通道、卫生设施和设备对残疾人的适应性。
设计应符合无障碍设计标准,提供便利的使用环境。
2.5 美观性建筑设计应注重美观和文化特色,与学校的整体形象相协调。
设计应体现创意和艺术价值,使学校环境更加宜人和有吸引力。
3. 建筑标准3.1 建筑布局建筑布局应合理,满足功能性需求。
各功能区域应有明确的划分,流线应流畅合理。
3.2 结构设计建筑结构设计应符合国家建筑设计规范,确保建筑的稳定性和安全性。
结构材料和构件的选用应经过合理的工程计算和测试。
3.3 空间设计建筑空间设计应合理、有效,并考虑到不同使用者的特殊需求。
教室、实验室、图书馆、运动场等功能空间的设计应满足相应的要求。
3.4 设备设施建筑内的设备设施应符合相关的技术标准,包括电力、给排水、通风、空调、消防等设备。
设备的选用和布局应科学、合理。
3.5 室内设计室内设计应注重人体工程学和舒适度,同时考虑美观和环境友好性。
家具、照明、墙面、地面等元素的选用和布置应符合相关标准。
4. 审查和验收所有建筑设计项目必须经过审查和验收,确保规范标准的合规性。
审查和验收程序应详细规定,并由专业人员进行。
5. 总结本文档提供了学校建筑设计的规范标准,旨在保障学校建筑的安全、实用和美观性。
学校建筑设计规范标准
1. 引言
学校建筑的设计规范是为了确保学校建筑物的安全性、功能性和美观性,提供一个良好的研究和工作环境。
本文档将详细介绍学校建筑设计规范的标准。
2. 建筑安全性要求
- 应满足国家建筑安全法规的要求,确保建筑物的结构稳固、耐久性强。
- 建筑材料应符合国家质量标准,具备良好的抗火、防水和抗震性能。
- 学校建筑物的消防系统和应急通道应合理设置,确保灭火和疏散的便利性。
3. 功能性要求
- 学校建筑的布局应合理,可以满足各种教学、办公和活动需求。
- 教室、实验室和图书馆等功能区域的设计应符合相应的教育标准,提供适宜的研究和工作环境。
- 学校建筑应合理配置交通设施,方便学生和教职员工的出行。
4. 美观性要求
- 学校建筑的外观设计应符合现代建筑风格,与周围环境相协调。
- 建筑物的色彩、材质和细节设计应考虑人们的审美感受,营
造舒适的视觉效果。
5. 环保要求
- 学校建筑的设计应考虑节能和环保要求,采用可再生能源和
环保材料。
- 建筑物的水、电和空调系统应设计合理,减少能源消耗和排放。
6. 可持续性要求
- 学校建筑的设计应考虑未来发展的需要,具备可扩展性和适
应性。
- 建筑设施和设备应便于维护和更新,延长使用寿命。
以上是学校建筑设计规范的标准要求。
通过遵守这些规范,可以确保学校建筑的质量和功能满足师生的需求,提供一个良好的学习和成长环境。
学校建筑设计规范学校建筑设计规范是为了保证学校建筑的质量与安全,为学生提供良好的学习和生活环境而制定的行业规范。
下面就学校建筑设计规范进行详细介绍。
一、总体规划学校建筑设计应符合教育部和地方教育部门的要求,并考虑学校的教学和行政需要。
总体规划应充分考虑学校规模、功能设置、空间布局和流线组织等因素,保证教学楼、实验室、图书馆、宿舍楼等各功能建筑之间的协调性。
二、建筑布局和空间划分学校建筑布局应科学合理,实现各功能建筑之间的联系和便利。
校园道路、操场、运动场等场地的设置应符合学校规模和教育实际需求。
三、建筑安全学校建筑设计应符合国家建筑设计规范和消防法规要求,确保学生在建筑内的安全。
建筑的防火、防震和逃生通道等设计应合理可行,并配备相应的消防设施和疏散指示标志。
四、教室设计教室设计应符合学生的教学需求和人体工学原理,保证学生的视觉和听觉效果。
教室宽敞明亮,通风良好,配备适当的照明和通信设施,保证学生的学习效果。
五、实验室设计实验室设计应符合相应的实验室安全规范,确保学生在实验过程中的安全。
实验室应根据实验的需要,合理布置实验台和设备,保证实验室的通风、照明和排放等设施的正常运行。
六、图书馆设计图书馆设计应考虑到学生的学习需求和图书馆工作的实际运作。
图书馆应设有充足的书架和阅览座位,配备电脑和网络设备,方便学生阅读和借阅图书。
七、宿舍楼设计宿舍楼的设计应符合学生的起居需求。
宿舍楼应提供安全舒适的住宿环境,配备齐全的洗浴、厨房和卫生间设施。
八、环境保护学校建筑设计应注重环境保护,在材料选择、能耗控制和废物处理等方面尽量减少对环境的影响。
建筑设计还应充分考虑自然通风、采光和绿化等因素,为学生提供优雅的学习环境。
九、无障碍设计学校建筑设计应考虑到特殊学生的需求,为残障学生提供无障碍通道和设施,确保其平等参与学习和生活。
十、美观性设计学校建筑设计应注重美观性,使学校建筑融入周围环境,并给人以美的享受。
建筑的外立面、色彩和景观设计应与学校的教育理念和文化特点相匹配。
综合学校建筑设计规范GB51039-2023
主要内容
该规范主要包括以下几个方面的内容:
1. 建筑布局和功能划分:规定学校建筑的布局和功能划分原则,确保学校各功能区域的安全和便利性。
2. 教室和教学设施:规定教室的设计要求,包括空间布局、照
明和通风等,并制定教学设施的规范。
3. 图书馆和自室:规定图书馆和自室的建设标准,包括面积要求、座位布局和防火安全等。
4. 实验室和科研设施:规定实验室和科研设施的设计标准,确
保实验室的功能和安全要求得到满足。
5. 体育场馆和运动场地:规定体育场馆和运动场地的设计要求,包括场地布局、设备配置和安全措施等。
6. 校园环境和绿化:规定校园环境和绿化的标准,包括景观设计、植物种植和环境保护等。
7. 消防安全和紧急疏散:规定学校建筑的消防安全和紧急疏散措施,确保学校的安全性和应急能力。
该规范还包括了相关的标准和测试方法,以及对建筑设计过程中需要注意的事项进行了说明。
适用范围
综合学校建筑设计规范GB-2023适用于各类综合学校,包括小学、初中、高中和大学等。
无论是新建还是改建学校建筑,都需要遵守该规范的要求。
结论
综合学校建筑设计规范GB51039-2023是一个重要的指南,为学校建筑的设计和规划提供了明确的标准和建议。
遵循该规范可以确保学校建筑的质量和安全性,提供一个良好的学习和工作环境。
学校建筑工程设计概况(一)墙体工程1、除特殊注明外,地上非承重外墙均采用250厚蒸压加气混凝土砌块,构造和技术要求详见《蒸压加气混凝土建筑应用技术规程》JGJ/T17-2008;内墙:±0.000以上均采用200厚蒸压加气混凝土砌块;±0.000以下为200厚页岩实心砖。
2、除特殊标注外,隔墙均砌至梁底或板底±0.000以下为M7.5水泥砂浆,±0.000以上为M5混合砂浆,均为预拌砂浆。
3、卫生间轻质墙体下部做C20混凝土防水台与墙同宽300高,地面防水材料卷起300mm高。
预留洞封堵:混凝土墙预留洞封堵见结施,其余砌筑墙预留洞待管道安装后用C15细石混凝土填实;变形缝处双墙留洞的封堵,应在双墙分别增设套管,套管与穿墙管之间嵌堵岩棉,防火墙上留洞的封堵为岩棉。
4、分体挂式空调的冷媒管穿外墙的洞为∅70塑料套管,在墙内外表面处加塑料盖板,管中心距地2200,向外倾斜10°(穿暗柱时用∅80钢套管)。
空调的冷凝水立管为∅75PVC管,颜色同外墙,冷凝水管于空调板的百叶内设置。
5、管道井内墙体每隔1000设置一条烧结实心页岩砖带,便于设备的安装和固定。
6、本工程外墙保温材料采用岩棉板保温7、本工程窗台板均采用C20混凝土。
(二)楼地面工程1、房心土、还槽土除注明者外均用原槽土或粘土回填分层夯实,对其中掺杂的垃圾、草根、杂物应清除干净。
2、散水、台阶、坡道下均设置防冻胀层,作法中砂层厚300。
3、室外台阶、坡道地面标高均低于室内地面15mm,高差处以斜坡过渡。
4、无障碍卫生间的楼地面的标高(楼地面完成面)应低于相邻房间15mm,并向地漏处找泛水。
按要求,做地面蓄水实验,经检查无渗漏,无积水为合格。
5、卫生间等有给排水设备的房间应做好防水排水措施:墙体下部做C20砼防水台同墙宽高出相邻地面300mm。
地面防水材料卷起300mm高,地面标高最高处应低于相邻房间、走道地面20mm,并向地漏处按照0.5%找泛水,地漏周围50mm范围内3%找泛水。
学校建筑设计
随着我国经济社会的迅速发展,加快中小学校基础教育建设已成为当务之急,学校的现代化、标准化、信息化成为设计的重中之重。
标签:学校建筑;设计;重庆
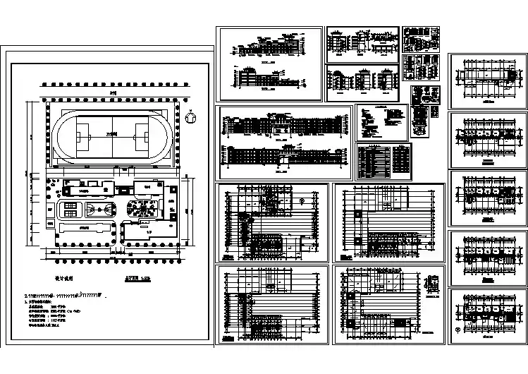
一.用地概况及设计难点
1.用地概况
项目用地位于渝北区重光片区G23-4-02地块,占地约63亩。
用地近似呈三角形,南北向长约250m,东西向长约268m。
地块西面和南面紧邻城市道路,西侧为金山大道大坡隧道的一段,东南面重光纵二路由西南至东北从隧道上方通过。
场地标高远高于金山大道标高,最高点和金山大道之间的高差约为60m。
2.设计难点
1)用地形状近似呈三角形,极其不规则;原始地貌以丘陵为主,地势起伏较大,对需要开阔、方正用地条件的学校建筑来说将会是一个很大的挑战。
2)场地紧邻金山大道大坡隧道路段,而金山大道是渝北区最主要的几条交通干道之一,车流密集,如何消除城市主干道对基地的影响。
3)学校在上学和放学会形成两个瞬时的人流高峰期,对基地四周交通疏散的便捷和安全性有较高的要求。
而本案仅东南面一个方向靠近城市次干道,学校开口只能在城这条道上,可供集散的范围有限。
除人流的因素外,还必须考虑消防车、救护车等特种车辆的进出,以及与大量学生流之间的矛盾关系,也是设计难点之一。
3.设计规模
本次规划设计项目总用地面积41829.62㎡,按规划设计为48班的初级中学,可容纳学生2400人左右。
项目包括48班教学楼、850人多功能厅、2400人食堂、生活辅助用房和300米环形跑道,体育馆、篮球场、排球场以及相关配套设施。
二.设计理念与依据
1.设计目标
本方案立足传统精神,通过对当代中学教育发展变化的理解,在对基地的现状环境进行周密分析的基础上,力求体现出现代化、网络化、园林化、生态化的特点。
1.1现代教育的前瞻性
校园教育建筑的设置要体现出前瞻性,符合21世纪中学教育体制与教育技术方法的变化。
通过高层次的文化意念、现代先进的设计理念、先进的功能配置体现时代特色。
通过多样化的形式,体现出学校的文化精神特色。
1.2适应网络时代的发展
教学手段、教学设施、教学方法都要适应网络化教学的要求。
要强调信息的交换和流通,密切学科与学科之间、人与人之间的联系与交融,发挥好多学科交叉综合的优势。
1.3景观环境生态园林化
寓诗于园,以不同形式、不同风格、不同审美范畴的多样化庭院空间,创造优美的学习和生活环境,体现丰富的文脉特色。
山水园林与建筑互为背景,互相渗透,共同构建丰富多彩、赏心悦目的景观空间。
2.设计理念
2.1新型的教育理念
隨着社会的不断进步,学校已经从过去传统办学模式向一个崭新的多元化,开放式并能同国际接轨的办学方向发展,新校园规划与建筑设计应有超前意识,必须具备以下三种场所所需之特征:
1)培养人才的场所;2)信息交流的场所;3)社会交流的场所;
2.2生态理念
利用现有的生态条件创造良好的生态环境,充分考虑场地现状地形地貌,因地制宜,合理布局,减少土石方量,实现可持续发展。
2.3 可操作理念
提供合理、优化的用地布局和便于操作的土地细划方案,创造有个性的舒适宜人的校园空间,突出校区形象。
充分考虑建设期间及运营期间的成本,实现经济效益最大化。
2.4 整体协调理念
分析周边地块、道路与该项目开发、建设情况,注重与周边地区的协调统一,包括用地功能布局、道路交通联系以及景观风貌等方面,融入城市整体布局,使
其成为城市的有机组成部分。
三.总平面图设计
1.总体构思
1.1 总平面布置
1)功能分区:
综合考虑场地地形地貌特征,从西向东依次将场地划分为三大功能分区和三大台地空间,分别布置“体育活动”、“教学与办公”、“后勤与多功能厅”三大功能模块。
东侧的三角形地带考虑为学校的后勤区,用功能相对独立集中的食堂和多功能厅组合的功能模块去灵活适应不规则的场地形状。
西侧较为完整、开阔的位置则布置学校的体育活动功能模块,其功能包括体育馆、操场以及辅助设施。
运动场模块靠近城市绿化带,景观视线及环境极佳。
主要的教学和办公功能则自然地位于西侧运动场地和东侧食堂的中间。
行政办公功能集中在南侧,临近重光纵二路;主要的教学用房则集中北侧。
通过运动场地对西侧金山大道的隔离,以及行政办公、食堂多功能厅等功能用房对东南侧重光纵二路的遮挡,尽可能减少教学用房收到外部交通噪声的干扰,实现土地利用的最优化。
2)空间序列
整个校园顺应场地的平面形状和竖向高差,形成的连接入口广场的南北方向“架空连廊”空间序列和连接运动场地的东西方向“台地空间”序列。
南北方向“架空连廊”序列由入口广场、校园大门、办公和教学用房围合的庭院空间组成。
建筑一层的架空廊道将入口广场、教学用房以及内部庭院空间串接起来,成为人流进入校园并到达教学用房的主要途径。
校园主入口与地形结合形成较大的广场空间,既有效缓解了场地四周城市道路较少,人员集散困难的问题,也是展现学校风貌的极好平台。
行政办公楼面对城市道路,自然成为校园入口的主要形象。
东西方向“台地空间”序列由操场,看台,国旗台,教学区庭院和食堂多功能厅组成。
通过形式丰富的踏步和空中连廊实现各个空间的连接和转换,形成极具地域特色的山地建筑空间。
3)交通组织
以“架空连廊”作为主要的步行通道,组织有序的步行系统,既保证人车的适当分流,又为创造校园步行系统的空间景观提供条件,创造富有地域特色的环境空间。
机动车道布置在建筑群外围,不影响内部的宁静。
1.2教学办公区
在新型教育理念指导下,教学办公区的不仅是学校的主要功能用房所在,更是校园信息交流和社会交流的场所。
因此,在保证教学功能用房良好的使用功能的基础上,着力打造富有人文情怀和独具山地特色的校园空间。
三大庭院:
在教学办公区和食堂多功能厅之间,通过“风雨廊“、“教学楼”、以及东侧“食堂台地的堡坎”的围合,形成三个“内聚性”的庭院:“集贤庭”、“进阶庭”、“退思庭”。
透过连廊,教学楼之间的庭院景观隐约于楼层之间,寄情山水,书香十足。
三个庭院均面向西侧的运动场地,因此景观视线极佳。
杨小玲,女,重庆江北区五里店,1979年9月,重庆市设计院第二建筑设计院,工程师,研究方向:建筑设计。