酒店大堂装修设计方案
- 格式:ppt
- 大小:5.77 MB
- 文档页数:13
酒店大堂装修改造工程施工设计方案1. 项目概述该项目旨在对酒店大堂进行装修改造工程,以提升其整体形象和客户满意度。
项目工期预计为三个月。
2. 设计理念本次装修改造工程的设计理念是融合现代与经典元素,打造一个舒适、时尚、独特的大堂空间。
3. 设计方案3.1 布局设计- 大堂空间将重新规划,分为接待区、休息区和办公区。
- 接待区将设置专门的前台接待台,以提供高效的客户服务。
- 休息区将设立舒适的座椅和茶几,为客人提供休闲和等候的场所。
- 办公区将配备办公桌和工作设施,满足员工的工作需求。
3.2 装饰设计- 墙面将采用淡色调,以增加空间的亮度和开放感。
- 地面将选用高质量的大理石瓷砖,营造出奢华和典雅的氛围。
- 大堂中央将设置一个精美的水景,增添生机和活力。
- 配套设施将选择现代、优质的家具和装饰品,提升整体的品质感。
3.3 照明设计- 照明方案将充分考虑不同区域的功能需求和氛围营造。
- 大堂入口处将采用柔和而明亮的照明,迎接客人的到来。
- 休息区将使用柔和的暖色调照明,营造出轻松和温馨的氛围。
- 接待区和办公区将采用明亮的白色照明,提供良好的工作和沟通环境。
3.4 客户体验设计- 在大堂的各个区域设置指示牌和信息媒体,方便客人获取所需信息。
- 配备无线网络,以满足客人对互联网的需求。
- 提供饮料和小吃的自动售货机,以增加客人的便利性和满意度。
4. 施工计划- 施工计划将根据具体的装修改造内容制定,并与相关部门协商和调整。
- 施工过程中将尽量减少对酒店正常运营的影响,确保客户的安全和舒适。
5. 预算估算- 预算估算将根据具体的设计方案和施工要求进行编制,确保在可控范围内完成工程。
以上为酒店大堂装修改造工程施工设计方案的简要描述,具体细节和实施方案将由专业设计和施工团队进一步完善和落实。
酒店大堂平面方案1. 简介本文档旨在展示一个酒店大堂平面方案的设计。
通过合理布局和空间规划,使酒店大堂既能满足功能需求,又能提升宾客体验。
2. 设计目标设计大堂平面方案的主要目标是: - 提供方便快捷的服务流程 - 优化空间利用率 - 提升宾客体验3. 大堂布局酒店大堂平面方案的布局应该符合以下原则: - 入口处设有前台接待区,方便宾客办理入住和退房手续。
前台应设计成开放式,便于员工与宾客互动。
- 大堂中央应设有休息区,供宾客休憩和等待。
休息区可以设置舒适的沙发、茶几和植物,营造宾客放松的氛围。
- 大堂周围可以布置商业区,设置小型商店和便利店,方便宾客购物或解决日常需求。
- 大堂入口处可以设计一个酒吧或咖啡厅,为宾客提供休闲和聚会的场所。
- 大堂内应设置指示牌或导航系统,方便宾客快速找到各个功能区域。
4. 空间规划基于提高空间利用率和流线的原则,需要注意以下几点: - 大堂的天花板应设计成高度适中,既能营造宽敞明亮的感觉,又不显得过于浪费空间。
- 大堂的地板应使用易清洁的材料,并且做好防滑处理,确保宾客的安全。
- 各个功能区域之间应合理划分,避免相互干扰。
例如,前台接待区可以设置在入口处,休息区可以设置在大堂中央,商业区可以布置在大堂的一侧。
- 功能区域之间的通道应宽敞并且方便,方便宾客流动和员工工作。
5. 宾客体验为了提升宾客的体验,可以考虑以下设计元素: - 大堂的装修应采用高品质的材料和现代化的风格设计,给人一种舒适和豪华的感觉。
- 在大堂设置艺术品或装饰画,以增添艺术氛围,并点缀整个空间。
- 在大堂提供贴心的服务设施,如自助取款机、快递代收等,方便宾客的日常需求。
- 大堂内可以设置背景音乐,营造愉悦的氛围,让宾客感到放松和舒适。
- 设计大堂的照明系统时应考虑自然光线的利用,以提供自然明亮的环境。
6. 结论通过合理布局和空间规划,以及考虑宾客体验,设计一个酒店大堂平面方案可以有效提升酒店的形象和客户满意度。
酒店装修方案酒店装修方案一、设计概述本酒店位于市中心繁华地带,旅客众多,竞争激烈。
为了吸引更多客户,提高竞争力,本方案通过创新设计、注重细节,打造一个舒适、豪华的酒店环境。
二、装修风格本酒店装修风格以现代简约为主,搭配一些当地风情元素,达到高雅、大气、时尚的效果。
尽量避免冷冰冰的感觉,让客人感受到温暖和舒适。
三、大堂设计1. 大堂采用开放式设计,使用大量玻璃幕墙,让自然光线充足,给人宽敞明亮的感觉。
2. 现代简约的接待台,采用高档的大理石和木材拼接,增加质感。
3. 大堂休息区设置舒适的沙发和茶几,供客人休息娱乐,增加客户满意度。
4. 墙面装饰选用简约的艺术画,营造出艺术氛围。
四、客房设计1. 客房采用温馨的色彩搭配,营造出亲切舒适的居住环境。
2. 使用高品质的床品和家具,确保客人的舒适度。
3. 客房内设置多功能工作桌,满足商务客人的需求。
4. 客房内配备迷你酒吧和冰箱,方便客人存放和冷藏食品和饮料。
五、餐厅设计1. 餐厅采用现代简约的设计风格,以提供美食为主要目标。
2. 营造舒适的用餐环境,配备舒适的桌椅和合理的桌距,确保客人的用餐舒适度。
3. 餐厅内配备自助餐台和点菜服务,满足不同客人的需求。
六、会议室设计1. 会议室按照现代化标准配置,配备专业的会议设备和音响设备。
2. 用柔和的灯光营造出良好的会议氛围。
3. 墙面装饰采用可拆卸式吊顶,方便根据需求调整。
七、SPA和健身中心设计1. SPA和健身中心使用温和的灯光和舒适的音乐来营造放松和愉悦的氛围。
2. 设计一个小型花园,供客人散步和放松身心。
八、总结通过现代简约的设计风格、精心布局酒店的各个功能区,提供优质的服务和舒适的环境,以吸引更多客户,提高竞争力。
在装修过程中,注重细节,确保每个细节都能给客人带来良好的体验。
相信本方案能够成功打造一个舒适、豪华的酒店环境。
酒店大堂分区设计和设计细则详解全套酒店大堂功能分区设计1.咨询区咨询区应设置在大堂的显眼位置,其空间规模需根据客人和服务的方便程度,以及客人与服务人员之间的沟通情况而定,另外在服务总台可摆放几个高脚凳方便客人歇脚。
2.休息区酒店大堂的休息区设在总台的旁边,能起到疏导、调节大堂人瀛口点缀大堂情调的作用。
打破常规化设计,休息区设置成茶室、书吧、咖啡厅,将社交、审美、休闲功能强化。
3.行李运输区建议应设置一个专用通道,同时,行李员服务台的位置不能离大门太远,要能看到总服务台和电梯大厅,交通要求合理顺畅,否则搬运的行李容易与上、下电梯的人发生碰撞。
4•电梯大厅尽量设在从大门到主服务台的延伸线的区域位置,这符合人类活动的心理流动,缩短了客人与客人之间的距离。
同时,安全通道不能设置的离电梯太远。
5.洗手间客人若从车站、机场赶来,有时未先到总台办理入住手续,先用洗手间。
因此,洗手间位置既不要显露,也不要过于隐蔽。
男女洗手间入口位置应尽量满足男左、女右的习惯设置。
酒店大堂装修设计原则1.流线要合理酒店大堂分两种流线,一种是员工服务流线,一种是客人行动流线,应避免客人流线与服务流线的交叉。
否则会增加管理难度,同时还会影响前台服务区域的氛围。
2.面积不宜过大许多人误认为酒店的大堂越大、越高才算气派,实际上面积过大的厅堂,不仅会增加装修及运行成本,而且会显得异常冷清,不利于酒店的经营。
3•导向系统的设计要明显酒店大厅各功能区(如洗手间、电梯、安全通道)的标识、设计也很重要,这不仅引导客人方向、传播信息,也是重要的装饰要素之一。
4.酒店大堂装修风格应与酒店定位相吻合如度假型酒店的大堂应突出轻松、休闲的特征,而城市酒店的商务气氛则应更浓一些,时尚酒店的艺术及个性化氛围应更强烈一些。
5.酒店大堂不同位置装修设计背景墙设计MAIGOO小编建议在酒店大堂前台背景墙上可以按照酒店业的惯例,摆放一些世界重要城市的时间挂钟;在其他区域的背景墙设计上,可根据整体的装修风格进行设计。
酒店的装修方案酒店装修是一项重要的任务,它直接影响着酒店的形象和客户的满意度。
一个好的装修方案需要考虑到酒店的定位、风格、功能和客户需求等多个因素。
本文将重点介绍酒店装修的方案,并从酒店大堂、客房和餐厅三个方面进行论述。
一、酒店大堂的装修方案酒店大堂是客人进入酒店后的第一印象,因此装修方案需要注重独特性和豪华感。
首先,选择高品质的大理石或石材作为地面,给人一种高贵典雅的感觉。
大堂的天花板可以采用吊顶设计,搭配精美的吊灯,增加整体氛围。
在装修时要注意大堂的空间布局,确保客人的流线顺畅,同时可以在大堂设置艺术装饰品,如雕塑或油画,以增加艺术氛围。
二、客房的装修方案客房是酒店最为重要的部分之一,装修方案需要兼顾舒适性与实用性。
首先,选择柔软舒适的床品和适宜的床垫,以确保客人的良好睡眠质量。
客房的色调可以选择温暖柔和的色彩,如米色、浅灰色或淡黄色,给人一种宁静舒适的感觉。
另外,客房的家具布置需要注重细节,如书桌、衣柜、沙发等物品的选购和布置。
同时,使用合适的照明灯具和窗帘,为客人提供良好的视觉享受。
三、餐厅的装修方案餐厅是酒店的重要场所之一,装修方案需要注重雅致和舒适。
首先,选择合适的餐桌和餐椅,确保客人用餐的舒适性。
餐厅的装修色彩可以选择典雅的深色调,如红色、棕色或暗蓝色,给人一种温馨的用餐环境。
餐厅的照明设计要充分考虑到用餐氛围,可以选择柔和的灯光和烛光,为客人营造出浪漫的用餐体验。
另外,餐厅的装饰品也需要注重细节,如鲜花、装饰画片等,增加餐厅的雅致感。
综上所述,酒店的装修方案需要综合考虑大堂、客房和餐厅等不同空间的特点和需求,以打造出独具魅力的酒店形象。
通过选择合适的材质、颜色和布置方法,可以为客人提供一种舒适、豪华和艺术相结合的入住体验。
同时,酒店装修方案也需要与酒店的定位和风格相契合,以营造出独特而符合品牌形象的空间。
通过精心设计和布置,酒店装修方案将为客人带来全方位的满意度,提升酒店的竞争力。
酒店装修策划方案1. 策划目标本方案的策划目标是为了将酒店装修升级,提升酒店的整体形象和品质,吸引更多的客户,增加客户的满意度,提高酒店的竞争力和市场占有率。
2. 设计理念本次装修策划的设计理念是风格与时尚相结合,营造出现代化的氛围。
同时,也注重软装部分的设计,打造出舒适、轻松的空间,更好的满足客户入住的需求。
3. 装修策略3.1. 形象升级首先,在酒店门口增加醒目的标识,提升品牌形象。
另外,利用灯光设计,增加夜间的装饰效果,让酒店更加引人注目。
3.2. 空间布局在空间布局上,酒店的客房、大堂、餐厅、商务中心、VIP室等都有优化空间规划和布局调整,让每个区域都更好的服务于客户。
同时,在公共区域增加一些绿植,使空气更加清新舒适。
3.3. 设计风格整个酒店的风格将以现代、简洁、时尚为主题,采用明亮的调色板,通过空间布局和色彩搭配,营造出轻松舒适的氛围。
在客房内,将涂刷复古的色彩,搭配简约的家具,增加居住的温馨感。
3.4. 软装设计在软装设计中,注重选用柔软舒适的窗帘、床品、地毯和沙发等家具,为客户提供更好的舒适体验。
同时,在房间中添加一些艺术品、绿色植物等,提升空间的艺术气息,为客户增添居住的趣味性。
4. 财务预算本次装修策划的财务预算总额为50万元。
其中,形象升级部分占比5%,空间布局部分占比25%,设计风格部分占比30%,软装设计部分占比40%。
装修预算包括施工、材料、家具、艺术品等方面的费用。
同时也要考虑到装修期间停业带来的经济损失。
5. 装修计划考虑到酒店的业务运营,装修计划将分为三个阶段进行。
第一阶段主要为酒店门口的标识和灯光设计,需在三天内完成;第二阶段主要为空间布局和设计,需在一个月内完成;第三阶段为软装设计,需在两个月内完成。
6. 结论通过本次装修策划,我们认为会达到预期的目标,提升了酒店的整体形象和品质,吸引更多的客户,增加客户的满意度,提高酒店的竞争力和市场占有率,让酒店在行业内更有优势。
酒店装修工程方案1.项目背景XX酒店是一家位于城市中心的豪华五星级酒店,自开业以来一直备受顾客好评。
然而,随着时间的推移,酒店的装修已显过时,需要进行全面的装修工程以满足市场需求和顾客的期望。
2. 设计理念本次装修工程的设计理念是现代奢华,突显高品质、舒适和时尚的氛围。
设计师将保留酒店原有的地标建筑设计风格,同时注入新的设计元素,以创造一个与众不同的空间。
3. 设计方案3.1 外立面设计外立面将采用大面积玻璃幕墙,营造开放亮丽的形象。
同时搭配现代造型的灯光设计,提升夜晚的现代感和时尚感。
3.2 大堂设计大堂将采用高档大理石地面,营造阳光明媚的氛围。
定制的大型吊灯和花艺将为大堂增添奢华感。
同时,大堂还将增设专属的休闲区和咖啡厅,为顾客提供更舒适的服务。
3.3 客房设计客房将进行全面换新,采用现代时尚的家具和装饰品,设计出简约舒适的居住空间。
同时,客房将增设智能家居系统,提供更便捷的服务体验。
3.4 餐厅设计餐厅将进行全面改造,增设私人包厢和开放式厨房,打造出高端餐饮体验。
餐厅还将引入国际知名的主厨团队,提供更多元化的美食选择。
3.5 健身中心设计健身中心将增设私人训练室和SPA疗程室,以满足顾客对健康和放松的需求。
同时,还将引进最新的健身器材和私人教练团队,提供更专业的体验。
4. 装修工艺4.1 地面地面铺装将采用高档石材,地砖、地板等,确保耐磨、易清洁、美观的特性。
4.2 墙面墙面将采用环保、防火、隔音等功能的装饰材料,增加室内舒适性,保证顾客住宿时的舒适感。
4.3 天花天花装饰采用可拆卸的降噪、隔音材料,确保酒店内部的安静和私密性。
4.4 家具酒店采用高品质家具,根据设计理念选择与整体风格相匹配的家具,满足不同人群的需求。
5. 设备设施5.1 通风空调系统酒店将升级空调系统,引进新的空调设备,确保室内空气质量和环境舒适度。
5.2 供电照明系统酒店将安装新的电气设备和节能照明系统,提高能源利用效率,减少能源浪费。
五星级酒店标准装修配置五星级酒店标准装修配置近年来,随着旅游业的快速发展和人们对舒适度和品质的追求,五星级酒店成为了人们出行休闲的首选。
作为高端酒店品牌,五星级酒店不仅需要提供优质的服务,还需要有独特的装修风格和精细的装修配置,以满足顾客对奢华和舒适的需求。
本文将探讨五星级酒店标准装修配置。
一、酒店大堂装修酒店大堂是宾客进入酒店的第一印象,也是展示酒店风格和品质的重要场所。
五星级酒店大堂通常采用高挑的吊顶设计,搭配华丽的灯光效果,营造出奢华大气的感觉。
大堂的地面通常使用高级大理石或优质木地板,让宾客感受到高贵的氛围。
墙面可以采用金属纹理的装饰板或高档壁纸,营造出富丽堂皇的感觉。
此外,大堂还设有舒适的休息区、宽敞的接待台和精美的装饰摆设,以提升宾客的入住体验。
二、客房装修五星级酒店的客房装修是宾客入住体验的重要组成部分。
客房的设计风格通常以典雅高贵为主导,追求简洁而不失奢华的风格。
床铺是客房的核心,五星级酒店通常选择优质的床垫、枕头和床品,提供最舒适的睡眠体验。
客房的墙面和地面采用优质的装饰材料,如精细石材或优质木地板,给宾客带来独特的触感和视觉享受。
同时,客房还配备了高品质的家具、照明设备和窗帘,提供一个温馨而舒适的居住空间。
三、浴室装修浴室是宾客居住体验的重要组成部分,五星级酒店的浴室装修注重细节和舒适度。
浴室通常采用大理石墙地面,配备高端的洁具和淋浴系统,提供高品质的沐浴体验。
浴室还配备了优质的浴巾、洗护用品和洗漱用具,满足宾客的个人需求。
同时,酒店还为宾客提供了镜子、吹风机、浴袍等设施,方便宾客在其中得到更好的休息和放松。
四、休闲设施除了客房和大堂,五星级酒店通常还配备了各种高级休闲设施,以满足宾客的各种需求。
这些设施包括游泳池、健身房、水疗中心、美容院等。
游泳池的装修通常采用大型落地窗和高级的瓷砖或玻璃材料,营造出舒适宜人的氛围。
健身房的装修设计注重通风和明亮度,配备一流的健身器材和专业的教练,让宾客享受锻炼的乐趣。
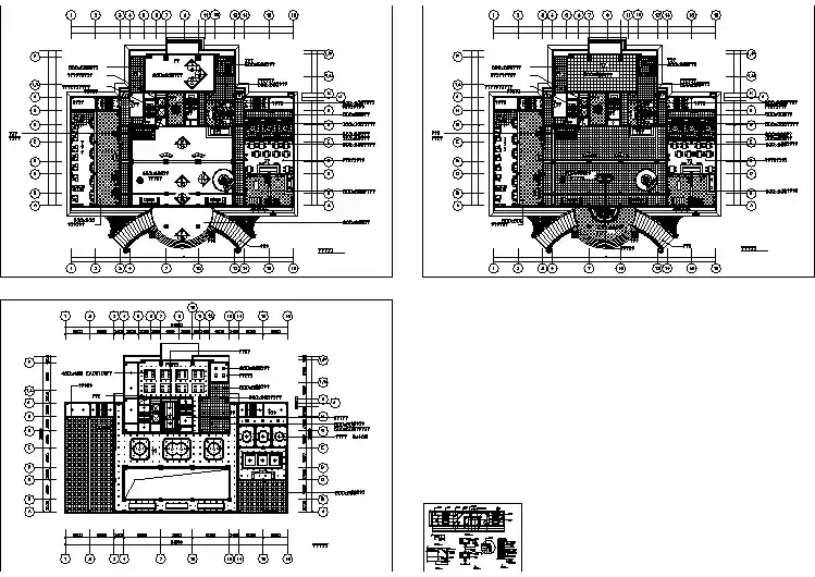
亚朵酒店深圳项目设计方案
ATOUR HOTEL,OPTIMIZATION,CONCEPT DESIGN Interior Design Presentation
23.March.2018
现况照片
酒店区域
酒店设在26--31层区域其中26--30层为客房部分,31层为全日餐等公共区域及部分客房区域
一层大堂现状及效果,层高17米
项目内部客房层概况
L AYOUT PLAN
楼层功能分区(原功能分区)
1F入口接待大堂、竹居、办公室.….….….….….….…..….….….
26-30F客房(160间)……………………………………………………
31全日餐、会议、健身及客房(19间)……………………………
一层公共区域
L AYOUT PLAN
平面规划图1F(大堂)
大堂及书吧区域酒店入口
客房
数据统计表
A B C D E 电梯厅57㎡
布草间12.5m2
办公室19㎡
消毒间6㎡
弱电间
F
F强电间
D
E
C B
A
A 电梯厅57㎡
B 厨房储存间25㎡
C 员工餐厅19㎡
D 全日餐厅
E 会议区域
F 建身房
G 洗衣房11㎡
H 布草间
I 公共卫生间
J 厨房A B J C
D
E F G H
I
K1房型面积:33㎡K2房型面积:33㎡
K3房型面积:29㎡K4房型面积:35㎡
K5房型面积:34㎡K6房型面积:25.4㎡
K7房型面积:57㎡
THANK YOU
谢谢。
酒店大堂建设方案引言酒店大堂是酒店文化的重要标识,也是客人进入酒店的第一道门槛。
因此,酒店大堂的装修设计至关重要。
本文将介绍酒店大堂建设的方案和注意事项。
设计理念设计时需要根据酒店的定位和文化来确定设计理念。
一般情况下,酒店大堂的设计应该融入本土文化元素,以借此突出酒店的特色和品牌。
空间规划在规划酒店大堂空间时,需要充分考虑客人的行为路径和空间使用效率。
一般情况下,大堂的空间布局分为接待区、休息区、等候区、娱乐区、商务区和服务区。
在规划时需要注意,不同区域的分布不能过于密集,同时需要考虑客人的隐私和通行的便捷性。
材料选择酒店大堂的装修需要选用优质的材料,以保证客人体验的品质。
根据设计理念和预算情况,可以选择石材、雕塑、翡翠、木材等不同材质的装修材料。
在选用材料时,还需要考虑到它的防火性能、耐磨性能等要素。
灯光设计灯光是大堂设计的关键要素之一。
它可以突出酒店文化和品牌特色,同时可以调整酒店的氛围。
在灯光的设计中,不同区域的用灯需求不同。
比如,在接待区域,需要使用柔和的光线来烘托气氛,而在休息区域,需使用柔和而舒适的灯光来营造舒适的氛围。
艺术品装饰艺术品装饰是酒店大堂设计中不可缺少的要素之一。
通过艺术品的选择和布置,可以突出酒店的文化和品牌特色。
在艺术品的选择中,需要考虑到艺术家的风格、材质和尺寸等要素,并与整体装修风格相协调。
性价比酒店大堂的建造需要一定的投资。
在投资时,需要考虑到其经济性和实用性,并确保所有投资都能够得到最大的回报。
因此,在材料选型、设计方案和施工时,需要控制好投资成本,并寻求最优的性价比。
总结酒店大堂是酒店品牌和服务的重要体现,其设计方案也至关重要。
本文介绍了酒店大堂建设的方案和注意事项。
酒店的经营者应该根据自己的实际情况,选择合适的设计方案和投资方案,从而提高酒店的品牌形象和客户体验。
500平酒店工程装修方案一、酒店工程概述1.1 项目名称:XXXX酒店1.2 项目位置:位于XXXX市中心商业区1.3 项目规模:500平方米1.4 项目概况:该项目是一家以商务、休闲和会议为主要服务内容的酒店,主要客户群体为商务人士、旅游观光者和举办会议的团体。
1.5 项目目标:建成一个舒适、现代、高效、环保、安全、经济、实用的酒店。
二、室内设计方案2.1 大堂设计酒店大堂是客人入住酒店后的第一印象,因此必须具有豪华、大气、时尚的设计感。
建议采用简约现代的设计风格,配合优质的地面材质和装饰艺术品,以增强整体的奢华氛围。
大堂区域还可以设置舒适的休闲沙发和茶几,供客人休息和等待。
2.2 客房设计客房是酒店的核心,因此设计要求舒适、温馨、卫生、无障碍。
建议采用简洁明快的色彩搭配,选择经典且耐用的家具和床上用品,使客人在这里享受到家一样的舒适感。
客房内还应配备一流的卫生设施和便利设施,如中央空调、地暖系统、淋浴房、免费WiFi等。
2.3 餐饮设计酒店餐饮设施是满足客人用餐需求的重要场所,因此需要设计得雅致、温馨。
建议采用明亮的环境和舒适的座位,提供丰富的菜肴和饮品,让客人在享受美食的同时也能感受到高品质的服务。
2.4 会议室设计酒店会议室是商务客人的重要需求场所,因此需要设计得宽敞、明亮、时尚。
建议配备先进的音响设备、投影仪、LED显示屏和会议桌椅等,提供专业的会议服务,满足商务客人的各种需求。
2.5 公共设施设计酒店的公共设施包括健身房、游泳池、SPA、商务中心等,需设计得舒适、环保、安全。
建议采用现代化的设备和环保的材料,提供多样化的服务,满足客人的各种需求。
2.6 设计理念在酒店工程装修设计中,我们将以“舒适、现代、高效、环保、安全、经济、实用”为设计理念,充分满足客人的各种需求。
三、工程施工方案3.1 施工准备工作在施工前期,我们将进行项目定位、土地测量、设计图纸施工图审核等工作,确保施工准备工作的合理性和可行性。
酒店大堂建设方案简介酒店大堂是酒店对外展示形象的重要组成部分,同时也是酒店客人入住前的第一印象。
因此,如何设计一个美观、实用、舒适的酒店大堂是酒店装修的关键之一。
本文将提供酒店大堂建设方案,希望对酒店装修有所帮助。
设计理念酒店大堂的设计要符合酒店运营理念,根据酒店的风格和主题来设计。
在设计上,应注重细节和实用性,使大堂能够满足来自不同背景和文化的客人的需求。
同时,可以融入当地特色文化元素,提高大堂的文化内涵。
设计要点空间规划酒店大堂通常是一个相对较大的空间,因此在规划时应充分考虑客人的流线和活动空间。
在大堂内应该设置自助服务区、接待区、休息区、咖啡厅等区域。
同时,要注意设置与临近区域呼应的元素,如室内外配合、大堂与客房空间协调等。
材料选择在大堂装修中,材料的选择和使用是至关重要的。
酒店大堂通常需要选用高档材料,如大理石、嵌花地砖、高档饰面板等,并注意材料与整个酒店的风格的统一性。
此外,在材料的颜色选择上,应遵循舒适和时尚的原则。
灯光设计大堂的灯光设计是酒店装修中非常重要的部分之一。
它可以为大堂营造出不同的氛围,如舒适、温馨、时尚等。
在灯光设计上,应注意大堂的整体效果、亮度和照明均衡性。
可以采用多种灯光组合方式,打造出动态、多变、充满活力的大堂氛围。
室内装饰室内装饰可以让大堂更加美观,同时也可以为顾客带来更好的体验。
室内装饰的设计应根据酒店的风格、主题来定制,并注重细节。
例如,可以对大堂某一区域进行特别的装饰,使其在整个大堂中更加醒目。
此外,壁挂画、花卉等也是大堂装修中常用的装饰元素。
结语酒店大堂建设方案是酒店装修重要的组成部分,具有很大的关键性。
为了满足客人的需求,设计方案必须注重细节和实用性。
同时,根据酒店的品牌形象和文化特色,打造出独具特色的酒店大堂。
如果您正在打算进行酒店装修,请根据本文提供的建设方案,为您的酒店大堂设计出一个符合品牌形象和客人需求的空间。
酒店大堂建设方案酒店大堂是酒店的门面部分,是客人第一眼见到的地方,也是客人最先接触到的环境。
因此,酒店大堂的设计和建设至关重要。
本文将给出一个酒店大堂建设方案,旨在提供一些设计和装修的参考和建议。
设计原则1.强调实用性与美观性的平衡。
大堂的设计应既满足经营需要,也要具有美学意义,这可以通过一系列的元素(如物料与照明)组合实现。
2.适合常规的维护和保养。
大堂的使用频率非常高,所以设计要避免过于复杂和不必要的布局。
3.考虑移动设备的使用。
大堂应该具备良好的移动网络和电源,以满足随时可用的需求。
4.考虑与其他空间的结合。
大堂通常是与其他功能区域结合的,但是要避免过于杂乱,让人失去空间的辨识能力。
布局与设计1.接待区:这是酒店大堂的标志性元素。
一个好的接待区将给游客留下深刻的印象。
建议采用柜台式的接待模式,以符合酒店调性的同时提高职员工作效率。
外观上,柜台通常需要一个折线式的标志牌,边缘处的阴影可以输出文字。
对可定制灯盏的柜台也十分受欢迎。
2.会议室:在大堂中尽可能地附加会议室是有利的。
不仅可以丰富酒店的功能,还可以增加商务旅客的住宿率。
建议采用玻璃隔断,使其与整个大堂形成整体性。
3.等候区:应该位于酒店大堂的中心地带,最好与接待区相对。
可以摆放沙发和椅子,为旅客提供舒适的候机区。
这里需要注意的是,设定一个空旷的区域通常在可用率上不会达到最佳效果。
4.休息区:休息区应该放在大堂的较为私密的区域,以便于住客可以享有一些独立的空间。
建议采用分隔符,如树脂补充器,将大堂的公共区域和个人空间分开。
物料和装饰1.材料的选用:使用高档以及人造材料让酒店大堂更加高质高档。
亮丽柔滑的大理石和玻璃对立的效果可以产生良好的视觉展示效果,同时与其它普通材料的对比也能起到凸显的效果。
2.照明设计:光线是整个环境最基本的组成部分。
照明需要打造对于休闲和档次的空间氛围。
照明设计应该采用低热度灯具,同时要发挥视觉效果,让旅客在关心的同时有浓厚的旅游氛围感。
酒店装修施工方案酒店装修施工方案一、项目背景该酒店位于城市中心,地理位置优越。
为了提供更好的住宿体验,酒店决定进行装修施工,以更新设施和增强服务质量。
施工方案包括以下几个方面:二、装修风格该酒店将采用现代简约风格,追求简洁、舒适、实用的设计理念。
色调以清雅的白色为主,配以一些明快的颜色作为点缀,给客人营造一个舒适、温馨的居住环境。
三、客房装修1. 拆除:拆除老旧的墙壁、地板、天花板和家具。
2. 墙面装修:采用环保材料进行墙面施工,避免材料释放有害气体。
墙面采用高档乳胶漆,颜色明亮,光滑度好,易清洁。
3. 地板装修:选择耐磨、防滑、易打理的木质地板,给客房增添自然温馨的氛围。
4. 家具布置:选用简洁、实用的家具,包括床、床头柜、衣柜、桌椅等。
家具材质以实木为主,具有良好的质感和可靠的使用寿命。
5. 窗帘:选择遮光效果好的窗帘,提供给客人一个良好的睡眠环境。
四、公共区域装修1. 大堂装修:大堂选用大理石地板,营造高档大气的感觉。
背景墙采用艺术装饰画,增添艺术氛围。
大堂吧台以及休闲座椅的选择也会融入现代简约的设计风格。
2. 餐厅装修:餐厅采用舒适的座椅和美观的吊灯,营造出轻松愉快的就餐氛围。
3. 会议室装修:会议室布置简洁大方,配备先进的音视频设备和按需调节的灯光系统,满足各类会议需要。
五、设施更新1. 网络设施:为了满足客人的上网需求,酒店将升级网络设施,提供高速稳定的无线网络服务。
2. 空调系统:酒店将更换节能环保的空调系统,提供舒适的室内温度。
3. 卫生间设施:卫生间将进行翻新,更新厕所、洗手台、淋浴器等设备,提供干净、舒适的洗漱环境。
4. 照明设备:酒店将更换节能环保的LED灯具,提供明亮而温暖的照明效果。
5. 安全设备:酒店将更新安全设备,包括消防设备、监控设备等,以保障客人的人身安全和财产安全。
六、施工周期和费用预计施工周期为3个月,预算费用为100万元。
以上是本酒店装修施工方案,我们会在施工过程中严格按照相关标准和规范进行施工,确保工程质量和施工安全。
酒店装饰装修工程施工方案一、背景介绍随着旅游业的兴起和酒店行业的快速发展,酒店装饰装修工程成为了酒店经营中至关重要的环节。
一间好的酒店不仅需要提供舒适的客房、美味的餐饮和贴心的服务,更需要通过精心设计的装饰装修来展现其独特的魅力和品位。
因此,酒店装饰装修工程的施工方案显得尤为重要。
二、项目概述本项目为一家四星级酒店的装饰装修工程施工方案,项目位于城市繁华地段,总建筑面积约为20000平方米。
整个工程包括大堂装修、客房装修、餐厅装修、健身房装修等多个部分,需满足酒店整体风格统一、舒适、实用和安全等需求。
三、施工方案1. 酒店大堂装修酒店大堂是客人入住时的第一印象,因此大堂的装修设计至关重要。
根据酒店的定位和风格要求,大堂装修需营造出高档、大气、典雅的氛围。
设计理念以简约的现代风格为主,颜色搭配以深色系为主,以营造出奢华、舒适的感觉。
大堂地面采用优质石材铺设,墙面采用仿大理石瓷砖进行装饰,天花采用吊顶设计,加入柔和的灯光,营造出温馨的氛围。
2. 客房装修客房是酒店的核心产品之一,其舒适度和装饰风格直接关系到客人的体验。
因此,客房的装修需选用高品质的装饰材料,并且注重细节设计。
客房的装修主要以简约时尚的风格为主,主色调以温暖的色系为主。
地面选用防滑木地板,墙面和天花采用环保、防火的涂料进行涂装,家具以实木为主,搭配柔和的灯光和舒适的卧具,打造出温馨、舒适的居住环境。
3. 餐厅装修餐厅的装修需要满足餐饮环境的卫生、舒适和美观,同时也需要符合酒店整体的风格和品位。
餐厅装修主要以清新明快的氛围为主,采用柔和的灯光和自然色系的装饰材料,并增加绿植或壁画等装饰元素,给客人一个舒适愉悦的用餐环境。
4. 健身房装修健身房是酒店客人的休闲娱乐场所,其装修需要满足客人的舒适度和实用性。
健身房装修主要以明亮通透的风格为主,选择耐磨的地板材料和防水、防潮的涂料进行装修,配备先进的健身器材和专业的音响设备,满足客人的健身需求和娱乐愉悦。