施工平面图图表及文字说明
- 格式:doc
- 大小:178.00 KB
- 文档页数:2
工地总平面布置文字说明1. 引言此文档旨在提供工地总平面布置的文字说明。
通过文字来描述工地的布置,使得工作人员和相关方便快速了解工地的结构和功能分布。
2. 工地总平面布置图3. 工地功能区域说明- 办公区:位于工地的中央位置,提供工作人员办公的区域。
这里配备了办公桌、文件柜等必要设施。
- 施工区:位于工地的南部,是进行实际施工工作的区域。
这里设置了临时施工棚和施工设备等。
- 物资区:位于工地的西侧,用于存放施工所需的各类物资,包括水泥、木材、钢筋等。
同时还设置了一个专门的物资管理室。
- 设备区:位于工地的东侧,用于存放各类施工设备,包括起重机、挖掘机、发电机组等。
这里还有一个维修和保养设备的专用区域。
4. 安全措施说明- 出入口设置:工地的正门是唯一的出入口,设有门卫进行监控和管理。
同时还设置了紧急出口,以便在紧急情况下迅速疏散人员。
- 安全防护措施:工地周边设置了围墙,以确保工地的安全性。
在施工区域和设备区域,采取了相应的安全标识和防护措施,包括安全帽、防护网等。
- 灭火设施:工地配备了灭火器和消防栓,以应对可能发生的火灾事故。
5. 环保措施说明- 垃圾处理:工地设置了专门的垃圾临时存放区,定期由环卫部门进行清理和处理。
- 污水处理:工地设置了污水处理设备,对产生的污水进行处理,确保不对周围环境造成污染。
6. 结束语以上是对工地总平面布置的文字说明。
通过此文档,工作人员和相关方可了解工地的结构和功能分布,以确保工地的安全和环保。
如有任何疑问,请随时与我们联系。
注:此文档内容仅为文字说明,如需具体实施和操作,请参考相应的实施方案和操作规程。
施工总平面图
根据该工程的施工特点及自然环境条件,本着便于施工管理,提高生产效率的施工要求。
我们施工总体平面布置的原则是:
①尽量减少施工占地,使平面布置紧凑合理。
②充分利用各种永久性建筑物、构筑物和原有设施,降低临时设施建设费用。
③施工区域的划分和场地的确定,应符合施工要求,尽量避免专业工种和相邻标段之间的作业干扰。
④各种生产生活设施应方便工人的生产生活。
⑤满足安全防火、劳动保护的要求。
⑥满足半成品、原材料、周转材料堆放及钢筋加工需要。
⑦满足不同阶段、各种专业作业队伍对宿舍、办公场所及材料储存、加工场地的需要。
⑧实施严格的安全及施工标准,争创安全文明工地。
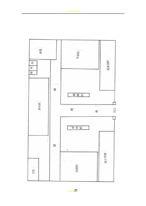
项目部办公室
大门入口1
施工机械停放区办公休息区
办公车辆停放区
凶超犁案卖区篇举二二洋工人宿舍加工车间
食堂检测试验区设备维修间洗浴间.卫生间。
施工现场布置有生产、生活、办公等临时设施,包括加工车间、现场办公、设备及仓储、供电、供水、卫生、生活、道路、消防等设施。
施工现场布置严格按照国家省市有关规定设置,做到安全文明施工,保持施工现场清洁卫生。
施工现场平面布置主要考虑以下几个方面。
○ 根据施工部署、施工方案、进度计划、区域划分,分阶段进行布置。
○ 生产区、生活区、办公区相对独立的原则。
○ 尽可能缩短运距、减少二次搬运、减少占地。
○ 有利于减少扰民、环境保护和文明施工。
○ 尽量利用己有设施或先行施工的成品,使临时工程投入最少。
○ 充他考虑劳动保护、职业健康、安全与消防。
施工平面布置图平面布置必须有效安排、充分利用场地的使用空间,科学规划现场施工道路,最大限度减少和避免对周边环境及人员生活工作的影响,满足安全生产、文明施工、健康生活和环境保护的要求。
做好对平面的分配和统一管理,协调各专业对平面的使用,并对施工区域和周边各种公用设施加以保护。
第一节、施工现场临时平面布置原则11.1.1、临时平面布置原则在满足施工的条件下,尽量节约现场办公占地和仓库用房占地;满足施工需要和文明施工的前提下,尽可能减少材料堆放场地;在保证场内交通运输畅通和满足施工对材料需要的前提下,最大限度地减少场内运输,特别是减少场内二次搬运;在平面交通上,要尽量避免装修、安装等单位相互干扰;要服从业主单位的统一协调和管理,制定符合施工现场卫生及安全技术要求和防火规范。
各种生产生活的设施应便于人员的生产生活。
满足安全防火、劳动保护的要求。
第二节、临时设施11.2.1、现场办公室和材料仓库的布置根据现场建筑平面,结合施工场地现状,以及业主的要,在施工现场将不考虑设置办公室、现场仅根据实际施工需要设置材料堆场、临时加工场地等临建设施。
现场楼层还将根据临时用电用水,以及消防的需要,布置临时供电供水线路,和消防器材。
现场办公室安排在甲方指定办公用房内,主要是项目管理的集中地,便于贴进施工现场进行管理和协调工作。
在现场要考虑一个材料综合仓库,主要放置零星材料、机具设备和贵重物品,便于材料搬运及管理。
油漆仓库也设在现场内,与综合仓库分开搭设,主要考虑到油漆材料属易燃易爆物品,应做好通风防火工作,并派专人看管,有效地预防和控制意外事故的发生。
用于工程上的材料,我公司将会和材料供应商协商材料的进场时间、进场数量。
只有当前需要用到工程的材料,根据项目部的总体进场时间要求,进行组织进场。
材料的进场计划必须满足当前施工的需要,避免材料在现场的堆放。
以上布置是施工前期安排,随着施工进度的深入,当某个部位需要搬离时,再根据现场情况,进行合理调整。
7)施工总平面图及临时用地表临时设施规划布置1、规划原则:临时设施规划充分利用现有场地,重点保障施工现场,保证职工生活为目的,同时体现公司形象。
2、临时设施规划的布置:现场临时设施利用已开挖基槽北侧布置,利用西侧大门布置公司形象标志以及保卫室。
3、临时用地表临时用地表施工总平面图附后施工现场平面管理1、管理原则施工平面布置充分利用现有场地重点保障施工,保证进度计划的顺利实施为目的。
在工程实施前,制订详细的大型机具使用及进退场计划,主材及周转材料生产、加工、堆放、运输计划,同时制订以上计划的具体实施方案,严格执行、奖惩分明,实施科学文明管理。
2 、平面管理体系由项目经理负责总平面的布置和使用管理。
建立健全调度制度,根据工程进度及施工需要对总平面的使用进行协调和调整,并由工程部对总平面的使用负责日常管理工作。
3 、管理计划的制定施工平面科学管理的关键是科学的规划和周密详细的具体计划,在工程进度网络计划的基础上形成主材、机械、劳动力的进退场、垂直运输等计划,以确保工程进度,充分均衡利用平面空间为目标,制订出切合实际的平面管理实施计划。
并将计划输入电脑,进行有效的动态管理。
4、管理计划的实施根据工程进度计划的实施调整情况,分阶段发布平面管理实施计划,包含时间计划表、责任人、执行标准、奖罚条例,在计划执行中不定期召开生产调度会,经充分协调确定后,发布计划调整书。
工程部负责组织阶段性的定期检查监督,确保平面管理计划的实施。
其重点保证项目是:安全用电、场区内外环卫场区道路,给排水系统,垂直运输、料具堆放场地管理调整,机具、机械进退场情况,以及施工作业区域管理等。
临电布置5、临时用水布置施工区用水利用甲方设置的总水源,在现场设置铁制水箱,再通过水泵输送至楼层施工用水。
6、办公区规划1)、本工程办公区设置在施工现场北侧,与施工现场分开,采取集中办公的形式。
2)、办公区内悬挂以下图表:工地管理机构人员名单及其岗位职责、安全文明施工和消防领导小组名单,质量、安全、文明施工、卫生、消防、治安等管理制度,施工总平面图,施工进度网络图等;图表的挂设、桌椅的布置做到整齐有序,保持室内卫生。
项目部上墙图表统一要求为了体现鹤大高速公路建设整体形象,使上墙图板美观大方,反映工程进展的实际情况,指挥部决定按照统一的格式制作上墙图板。
要求各施工单位根据指挥部的统一要求的格式,将各自所承担的工程内容、组织管理机构以及相应的上墙内容填写清楚,用电子版上报到指挥部工程部邮箱内。
由指挥部统一指定厂家制作,费用根据各单位图版内容和版面大小分摊。
一、图板名称统一如下:1、鹤大高速公路佳牡段B 合同段施工总平面图2、鹤大高速公路佳牡段B 合同段年度施工总体进度计划图3、鹤大高速公路佳牡段B 合同段工程形象进度图4、鹤大高速公路佳牡段B 合同段项目组织机构图5、鹤大高速公路佳牡段B 合同段质量保证体系组织机构图6、鹤大高速公路佳牡段B 合同段安全生产组织机构图7、鹤大高速公路佳牡段B 合同段年劳动力计划表8、鹤大高速公路佳牡段B 合同段年主要材料计划表9、鹤大高速公路佳牡段B 合同段年施工机械设备进场计划表10、鹤大高速公路佳牡段B 合同段所在地区晴雨表二、图版详细内容及要求见图表样式1、施工总平面图按照指挥部统一提供的地形图将各自标段的工程内容、施工驻地、预制场地等,用指挥部规定的图例,标绘在地形图相应位置上。
2、工程形象进度图根据指挥部提供的图例形式,各标段按照最新施工图把各分离桥、互通等构造物按照桩号从小到大的顺序排列好布置到一个板面内。
3、施工总体进度计划图、项目组织机构、质量保证体系组织机构图、安全生产组织机构图、劳动力计划表、主要材料计划表、机械设备进场计划表、晴雨表,要求根据各表样说明进行编制。
可采用CAD,也可采用Word或者Excel等形式绘制,将所完成的内容的电子版发到指挥部工程部邮箱内。
制作时指挥部将通知制作单位和各标段具体联系。
鹤大指挥部工程部2009年4月16日。
施工图平面标注法详解10。
1 概述10。
1.1 目标和要求施工图是工程师的“语言", 是设计者设计意图的体现,也是施工、监理、经济核算的重要依据。
结构施工图在整个设计中占有举足轻重的作用,切不可草率从事。
对结构施工图的基本要求是:图面清楚整洁、标注齐全、构造合理、符合国家制图标准及行业规范,能很好地表达设计意图,并与计算书一致.通过结构施工图的绘制,应掌握各种结构构件工程图表的表达方法,会应用绘图工具手工绘图、修改(刮图)和校正,同时能运用常用软件通过计算机绘图和出图。
10.1。
2 结构施工图的绘制方法钢筋混凝土结构构件配筋图的表示方法有三种:一、详图法.它通过平、立、剖面图将各构件(梁、柱、墙等)的结构尺寸、配筋规格等“逼真"地表示出来。
用详图法绘图的工作量非常大.二、梁柱表法。
它采用表格填写方法将结构构件的结构尺寸和配筋规格用数字符号表达。
此法比“详图法”要简单方便得多,手工绘图时,深受设计人员的欢迎。
其不足之处是:同类构件的许多数据需多次填写,容易出现错漏,图纸数量多。
三、结构施工图平面整体设计方法(以下简称“平法”)。
它把结构构件的截面型式、尺寸及所配钢筋规格在构件的平面位置用数字和符号直接表示,再与相应的“结构设计总说明”和梁、柱、墙等构件的“构造通用图及说明"配合使用.平法的优点是图面简洁、清楚、直观性强,图纸数量少,设计和施工人员都很欢迎。
为了保证按平法设计的结构施工图实现全国统一,建设部已将平法的制图规则纳入国家建筑标准设计图集,详见《混凝土结构施工图平面整体表示方法制图规则和构造详图》(GJBT—518 00G101)(以下简称《平法规则》).“详图法"能加强绘图基本功的训练;“梁柱表法”目前还在广泛应用;而“平法"则代表了一种发展方向。
毕业设计时宜在掌握各种方法的基础上有所侧重。
10。
2 结构施工图绘制的具体内容10。
2.1 基本内容一、图纸目录全部图纸都应在“图纸目录"上列出,“图纸目录"的图号是“G—0”。
建筑工程施工图样例建筑工程施工图是建筑设计的重要组成部分,它向承包商和施工人员提供了详细的建筑设计细节和施工指导。
在施工图中,各种图纸和图表被用于描述建筑的结构、布局、细节和材料。
这些施工图样例的编制需要严谨的技术知识和专业技能,以确保建筑工程的质量和安全。
施工图样例的种类在建筑工程中,有多种不同类型的施工图样例,下面是其中的一些常见类型:平面图平面图是施工图中最基本的一种类型。
它展示了建筑物的布局、尺寸和空间关系。
平面图可以分为地面平面图、楼层平面图和立面平面图等。
地面平面图显示了建筑物在地面上的布局,包括建筑物周围的道路、花园和停车场等。
楼层平面图则显示了不同楼层的布局和内部分隔。
立面平面图则展示了建筑物外立面的细节和外观。
剖面图剖面图是施工图中的一种插图类型,用于显示建筑物从上到下的垂直切面。
剖面图展示了建筑物内部的结构、墙壁、地板和天花板等细节。
它还可以显示建筑物的高度和楼层之间的关系。
细部图细部图是施工图中的详细图纸,用于显示建筑物的特定部分或细节。
细部图可以展示建筑物的某个区域的特定结构、连接细节、装饰元素等。
细部图对于工程师和施工人员来说非常重要,因为它们提供了具体的施工指导。
设备图设备图是施工图中用于展示建筑物内各种设备的图纸。
设备图可以包括电力系统、给排水系统、暖通空调系统等。
这些图纸展示了设备的布置、管道的连接、电源的分配和设备之间的关系。
施工图样例的重要性施工图样例在建筑工程中起着至关重要的作用。
以下是施工图样例的几个重要性:详细的建筑设计施工图样例提供了对建筑物进行详细设计的指导。
它们包含了建筑物的尺寸、空间关系、结构细节和材料规格等重要信息。
这些信息使承包商和施工人员能够理解并准确地执行建筑设计。
确保施工质量施工图样例清晰地传达了建筑设计的意图,确保施工人员正确理解并按照设计要求进行施工。
这有助于确保建筑施工的质量和一致性,减少错误和缺陷的发生。
施工成本控制通过施工图样例,工程师可以准确确定建筑材料和设备的数量和规格。
某住宅小区边坡工程支护设计图版次:第一版设计阶段:施工图×××××有限公司××××××Co.,Ltd二〇一四年五月二十日××××住宅小区内边坡工程施工图×××××住宅小区内边坡工程工程编号:B-2014-0501××××有限公司××××× Co.,Ltd二〇一四年五月二十日设计总说明一、工程概况×××县×××城中村改造×××住宅小区位于×××县×××开发区内,×××以东,×××路以北,地理位置优越,竣工后交通便捷。
场地所处地貌单元为丘陵岗地,地形起伏较大,由于建设需要,小区内经开挖后形成了较高边坡,主要有两段,分别位于12#楼、13#楼北侧及13#楼、19#楼、运动场东侧,具体可参见边坡防护平面布置图。
考虑到拟建建筑物距离坡脚很近,而且东侧边坡距离铁路轨道线不足30米,如果边坡出现失稳,将威胁到建筑物及坡底活动的群众安全甚至影响铁路路基稳定,严重影响生命财产安全及社会稳定,因此,本边坡工程的安全等级划分为一级。
根据相关资料分析,本场地边坡坡脚地面标高取25.00m~26.45m,坡顶地面标高为27.10m~33.40m,设计边坡高度为0.60m~6.90m;因此需进行专门的边坡挡墙加固设计。
二、编制依据1)、《×××县×××城中村改造×××住宅小区场地岩土工程勘察报告》(地矿赣西地质工程勘察院);2)、《建筑边坡工程技术规范》(GB50330-2002);3)、《建筑地基基础设计规范》(GB50007-2002);4)、《混凝土结构设计规范》(GB50010-2002);5)、国家建筑标准设计图集《挡土墙(重力式、衡重式、悬臂式)》(04J008)中国建筑标准设计研究院;6)、建设单位提供的小区总平图等。
第一节施工现场平面布置说明一、三区划分(一)工地平面图划分划分办公区、生活区和施工作业区,采用相应的隔离措施,各区域之间设置门禁系统,并设置导向、警示、定位、宣传等标识。
(二)工地人员流线1、合理设置工地内道路流线,做到人车分离、人员及车辆有各自的入口及通道。
2、根据工地实际情况,人员通过闸口进入住宿区或办公区,再通过住宿区或办公区门禁进入施工区;3、小型车辆从办公区停车场进入后,人员通过门禁进入办公区后方可通过办公区门禁进入施工区;运输车辆应从大门进入,经过地磅秤、冲洗区后方可进入施工区。
二、工地封闭(一)工地大门1、工地大门作为车辆通行使用,禁止人员通行。
2、工地大门宽为6m-8m,高度2.5m。
宽度大于6m时,大门左右两边红色彩条宽度不变。
突出企业标识,宣传企业形象。
3、工地大门一侧设置保安室及人员入口闸机。
闸机一侧设置工程概况,大门一侧设置工程效果图。
闸机旁围墙上设置公司LOGO。
(二)工地大门标识牌1、在工地大门外设置统一样式标识牌,包括共享单车禁止入内、文明施工、进场须知、安全标语、施工现场扬尘治理等。
2、文明施工公示内容路面硬化,车辆冲洗;运输加盖,泥不上路;渣土苫盖,控制扬尘;环境整洁,及时清扫;控制噪音,避免扰民;文明施工,方便群众。
(三)工地围墙1、施工区围墙优先采用定型化钢结构式围墙或成品预制式围墙,减少使用水泥砖砌,达到重复使用、节能环保。
2、市区主要路段的工地应设置高度为2.6m的封闭围挡。
3、一般路段的工地应设置高度不小于1.8m的封闭围挡。
4、工地大门及闸口两侧围墙立柱高度为3m。
5、围墙立柱基础采用混凝土,并预埋12钢筋,预埋件与钢板焊接连接。
6、围墙图案设置为:一组企业形象LOGO墙、一组广告图、一组安全标语、一组广告图。
以此为标准循环。
(四)门禁系统1、门禁系统位于工地大门一侧,所有进出人员必须打卡登记方可进入,杜绝闲杂人等。
2、门禁系统采用厢式活动房,标准尺寸为6m*3.05m*3 m,靠近工地大门—侧设置保安室。
装饰工程施工平面图内容一、施工准备阶段1. 地基处理及地基平整:根据设计要求,在施工现场进行地基处理,确保地基平整、坚固。
2. 搭建施工棚:在施工现场搭建施工棚,保存施工材料及设备,方便工人施工。
3. 现场安全设施:设置警戒线、安全带等安全设施,确保施工安全。
4. 采购施工材料及设备:根据设计需求,采购相应的装饰材料和施工设备。
5. 劳动力配备:招募合适的工人,确保施工人员数量充足。
6. 施工计划制定:根据设计要求和工期,制定详细的施工计划,合理安排施工进度。
二、施工阶段1. 地面铺设:根据设计要求,在施工现场进行地面铺设,选择适合的地面材料进行铺设。
2. 墙面处理:对墙面进行处理,包括墙面刷漆、贴壁纸、贴瓷砖等。
3. 顶棚设计:根据设计要求设计吊顶,选择合适的吊顶材料进行搭建。
4. 窗户处理:对窗户进行处理,包括窗帘选择、窗户装饰等。
5. 地面铺装:选择适合的地面铺装材料进行铺装,包括地砖、地板等。
6. 室内装饰:对室内进行装饰,包括家具摆放、装饰画挂载等。
7. 灯具安装:根据设计要求,选择合适的灯具进行安装,确保照明效果良好。
8. 防水设施:对厨房、卫生间等需要防水的区域进行防水处理。
9. 通风设施:设置通风设施,确保室内空气流通,保持室内空气清新。
10. 清洁工作:在施工完成后,对施工现场进行清洁工作,确保施工质量。
11. 验收工作:对施工结果进行验收,确保达到设计要求。
三、施工总结装饰工程施工平面图工作在施工过程中,我们准备充分,严格按照设计要求进行施工,保证了施工质量,最终完成了设计任务。
在未来的工作中,我们将继续保持良好的施工质量,不断提升工作水平,为客户提供更加满意的服务。
场平工程施工方案范文常用标准化表图一、附表一:拟投入本工程段的主要施工设备表二、附表二:拟配备本工程的试验和检测仪器设备表三、附表三:劳动力计划表四、附表四:计划开、竣工日期和施工进度网络图五、表五:施工平面布置图六、附表六:临时用地表七、附图表附图表1.:现场组织机构附图表2.:主要测量仪器和设备清单附图表3.:竣工验收测量作业流程图附图表4.:土石方开挖施工工艺流程图附图表5.:爆破参数表附图表6.:炮孔布置图附图表7.:土石方填筑施工工艺流程附图表8.:沟塘处理施工工艺流程图附图表9.:推土机行走路线图附图表10.:压路机行走路线图附图表11.:排水设备配置表附图表12.:质量组织机构图附图表13.:全面质量管理体系图附图表14.:质量控制程序流程图附图表15.:原材料质量检验程序附图表16.:工期保证体系附图表17.:安全监控网络图附图表18.:安全保证体系图附图表19.:环境保护组织机构图附图表20.:文明施工保证体系图附图表21.:文明施工活动领导小组组织机构八、土石方调配图一、附表一:拟投入本工程段的主要施工设备表序号设备名称型号规格数量国别产地制造年份额定功率(KW)生产能力用于施工部位备注1挖掘机E某230LC10台中国2002.112061.8m3开挖与回填2挖掘机CAT32022台美国2004.121280.9m3开挖与回填3推土机TY2202台中国2002.6162330m3/h渣场与回填4推土机TY1802台中国2003.6162250m3/h渣场与回填5装载机ZL50F2台中国2004.101833.1m3渣场与回填6电钻YD2A50台中国2002.538-43mm爆破7风动凿岩机TY-2815台中国2001.234-42mm爆破8电动空压机4L-10/82台中国2004.15510m3/min爆破9内燃空压机WY-9/72台中国2003.188.29m3/min爆破10风镐TCA-710支中国2003.2爆破11自卸汽车CQ2630台中国2004.614t运输12自卸汽车CQ2834台中国2002.1216t运输13洒水车81021台中国2001.28000L全现场14振动压路机YZ204台中国2005.414720t碾压15电焊机B某-5006台中国2002.740维修16全站仪GTS-31152台日本2004.6测量17经纬仪J62台中国2001.9测量18水平仪DS32台中国2002.3测量19变压器S-2001台中国2003.2200变配电20发电机75GF2台中国2004.5200供电二、附表二:拟配备本工程的试验和检测仪器设备表序号仪器设备名称型号规格数量国别产地制造年份已使用台时数用途备注1土壤自动击实仪DJ-921台中国2004.4400试验自有2核子密度仪MC-3-121台美国2003.7320试验自有3灌砂筒φ1001台中国2006.9600试验自有4环刀200cm31台中国2007.4720试验自有5土工标准筛φ3001台中国2003.4900试验自有6液塑限联合测定仪GYS-31台中国2000.11200检测自有7钙、镁含量测定仪MW54-RPA-100Ca1台中国2001.7180检测自有8台秤TGT-501台中国2003.7600检测自有9含水量快速测定仪HKC-2001台中国2006.9500检测自有10动力触探仪10型10KW1台中国2007.4428检测自有11重型击实仪LD1061台中国2003.4329检测自有12土壤渗透仪TST-551台中国2000.1976检测自有13CBR承载比试验仪EP-32022型1台中国2001.7600检测自有14土壤自动击实仪DJ-921台中国2004.4459检测自有三、附表三:劳动力计划表工种按工程施工阶段投入劳动力情况第1月第2月第3月挖掘机司机404040推土机司机121212汽车司机250250250装载机司机202220压路机司机202220修理工202220水电工666空压机司机444钻机司机252525其它人员606060四、附表四:计划开、竣工日期和施工进度网络图五、表五:施工平面布置图现场办公生活区消防供水供电炸药库设备及仓储加工车间说明:1、现场施工区域用电,采用架空线与配电房连接;2、供水采用就地抽取水;3、生活区不能满足要求,可租用当地村民住宅;4、现场施工区域便道,均与主干道相连接。
施工现场平面布置及施工道路平面图第一节施工平面布置和临时设施布置【1】布置要求1、现场平面布置要求按工程实施的需要,本工程现场布置分为三个阶段:土方开挖和基础施工阶段、室外工程阶段。
室外工程施工时,除园林和外网单位外各分包材料、设备不再占用室外场地。
办公室移入楼内。
2、施工用地狭小,只能占用本标段范围内的临时用地,承担进场后的场地规划布置、现场临时道路、临时围墙和出入口、临建、临水、临电等临时设施的建设,施工过程中的拆移调整和最后的全部拆除恢复工作。
现场不设置供居住区。
3、做到5个100%:即工地渣土100%覆盖、工地路面100%硬化、出工地车辆100%冲洗车轮、拆除房屋的工地100%洒水压尘、裸露的空地100%绿化或覆盖4、保证满足公共部位的安全和照明,通道照明符合要求,现场(包括各楼层各工作面)排水及时效,保证设备调试和运行的电量、水量储备和提供的接驳点不超过40米,保证提供的临时消防水满足相关要求和足够的水头压力。
5、临电的方案设计从布置上至少满足现场封闭环路,楼内竖向至少满足主体每栋号内隔层布置分配箱,容量设计要满足工程整体需要即满足各独立分包对容量的要求,并在变电站内、各电梯机房处提供临时用电,每处容量不小于50KW并设分配箱。
6、临水的方案设计从布置上至少满足现场封闭环路和相应接驳点,楼内竖向至少满足每栋号内均有一趟竖向消防水并每层设临水接驳口隔层设消防专用接驳口,并配备相应消防器材,容量设计要满足工程整体需要和有关临时消防设施的专项要求。
7、应至少在每四层设置一个配电箱和一个临时水源。
8、工地办公室布置:施工总平面图(基础阶段、主体阶段、装修阶段);施工进度计划网络图;工程施工形象进度图;质量、安全消防、文明施工管理网络图;消防器材布置图。
9、全体现场施工人员应统一佩带工作牌。
10、用钢管脚手架,脚手架走道外侧需设置踢脚板,高度不小于180mm,油漆颜色为红白或黄黑相间色(250mm相间),散水采用硬地坪,外设排水沟。
快速让你看懂施工图“新手施工员必看”施工图纸是建造房屋的依据,是“工程的语言”,它明确规定了要建造一幢什么样的建筑,并且具体规定了形状、尺寸、做法和技术要求。
除了较多地接触本工种的图纸外,有时还要结合整个工程图纸看图,才能交圈配合,不出差错。
为此必须学会识图方法,才能收到事半功倍的效果。
以下是一些基本的识图方法。
(1)循序渐进。
拿到一份图纸后,先看什么图,后看什么图,应该有主有次,一般是按如下顺序进行:①首先仔细阅读设计说明,了解建筑物的概况、位置、标高、材料要求、质量标准、施工注意事项以及一些特殊的技术要求,在思想上形成一个初步印象;②接着要看平面图,了解房屋的平面形状、开间、进深、柱网尺寸,各种房间的安排和交通布置,以及门窗位置,对建筑物形成一个平面概念,为看立面图、剖面图打好基础;③看立面图,以了解建筑物的朝向、层数和层高的变化,以及门窗、外装饰的要求等;④看剖面图,以大体了解剖面部分的各部位标高变化和室内情况;⑤最后看结构图,以了解平面图、立面图、剖面图等建筑图与结构图之间的关系,加深对整个工程的理解;⑥另外,还必须根据平面图、立面图、剖面图等中的索引符号,详细阅读所指的大样图或节点图,做到粗细结合,大小交圈。
只有循序渐进,才能理解设计意图,看懂设计图纸,也就是说一般应做到“先看说明后看图;顺序最好为平、立、剖;查对节点和大样;建筑结构对照读”,这样才能收到事半功倍的效果。
(2)要记住尺寸。
建筑工程虽然各式各样,但都是通过各部分尺寸的改变而出现各种不同的造型和效果。
俗话说:“没有规矩,不成方圆”,图上如果没有长、宽、高、直径等具体尺寸,施工人员就没法按图施工。
但是图纸上的尺寸很多,作为具体的和操作人员来说,不需要,也不可能将图上所有的尺寸都记住。
但是,对建筑物的一些主要尺寸,主要构配件的规格、型号、位置、数量等,则是必须牢牢记住的。
这样可以加深对设计图纸的理解,有利于施工操作,减少或避免施工错误。
农村建房工程施工图纸图例一、项目概述本项目是某村农户自建住宅工程,总建筑面积为200平方米,由一栋主体建筑和辅助建筑构成。
主体建筑包括一层和二层,用于居住;辅助建筑包括厨房、卫生间等。
本项目工程图纸图例将详细介绍建筑的主要结构和施工设备等信息。
下面是详细介绍:二、主体建筑结构图1. 主体建筑平面图主体建筑占地面积约100平方米,一层建筑面积约100平方米,二层建筑面积约80平方米。
主体建筑有客厅、卧室、书房、卫生间等功能区域。
平面图标注了各个功能区域的尺寸和位置,方便施工人员进行标定和施工。
2. 主体建筑立面图立面图标注了建筑物的外墙、窗户等结构,同时包括了建筑物的高度,方便施工人员进行垂直度和总体布局的控制。
3. 主体建筑剖面图剖面图对建筑物的结构进行了详细的标注,包括地基、地板、墙体结构等。
并标注了建筑物的高度,方便施工人员进行截面施工的控制。
4. 主体建筑结构图结构图标注了建筑物的承重结构,包括了梁、柱、墙等结构的位置、尺寸和用料要求。
同时包括了地基的承载能力和材料的要求,供施工人员参考。
三、辅助建筑结构图1. 厨房平面图厨房平面图标注了厨房内的灶台、水池等设备的位置,同时标注了厨房的尺寸和布局。
方便施工人员进行设备的安装和布置。
2. 厨房立面图立面图标注了建筑物的外墙、窗户等结构,同时包括了建筑物的高度,方便施工人员进行垂直度和总体布局的控制。
3. 卫生间平面图卫生间平面图标注了卫生间内的马桶、淋浴房等设备的位置,同时标注了卫生间的尺寸和布局。
方便施工人员进行设备的安装和布置。
4. 卫生间立面图立面图标注了建筑物的外墙、窗户等结构,同时包括了建筑物的高度,方便施工人员进行垂直度和总体布局的控制。
四、施工设备1. 建筑机械图建筑机械图标注了用于施工的机械设备,包括了吊车、混凝土搅拌机、起重机等施工设备。
并标注了设备的尺寸和移动路径,供施工人员参考。
2. 施工用具图施工用具图标注了工地常用的施工工具,包括了钢筋切割机、手推车、水平仪等。
施工现场布置有生产、生活、办公等临时设施,包括加工车间、现场办公、设备及仓储、供电、供水、卫生、生活、道路、消防等设施。
施工现场布置严格按照国家省市有关规定设置,做到安全文明施工,保持施工现场清洁卫生。
施工现场平面布置主要考虑以下几个方面。
○1根据施工部署、施工方案、进度计划、区域划分,分阶段进行布置。
○2生产区、生活区、办公区相对独立的原则。
○3尽可能缩短运距、减少二次搬运、减少占地。
○4有利于减少扰民、环境保护和文明施工。
○5尽量利用己有设施或先行施工的成品,使临时工程投入最少。
○6充他考虑劳动保护、职业健康、安全与消防。