办公楼平面布置图
- 格式:doc
- 大小:888.00 KB
- 文档页数:1
三、部门办公及配置标准(一)现场办公室标准1.办公室选址原则1.1就近原则办公场所距离工地现场的距离不宜大于1公里,便于日常施工管理。
1.2不影响工程施工原则2.2现场搭设临时设施根据项目工程当地的气候条件和现场实际情况,可选用彩钢房和砖混结构,项目规模较大、开发周期较长或位于恶劣气候高发地区的临设搭建可采用砖混结构建筑。
(二)办公室平面布置图1.彩钢房规划平面及室内功能布置平面参考图例:C 型平面布局图2.砖混结构办公室的平面布置可参考彩钢房的平面布置标准图集,具体由设计出图。
(三)办公室装饰标准1.外立面装饰标准1.1 彩钢房外立面装饰标准层的搭门窗型材、雨水管:由设计师根据项目产品的建筑类型和风格确定空调室外机安装位置:设置隔板,由设计统一确定1.3 租用或利用现有建筑的外立面装饰标准1.3.1 充分利用旧楼外立面,但建筑外立面较为陈旧影响观瞻可重新装饰,重新装饰的立面涂料或面砖采用绿城系列楼盘中经常使用的色系,综合考虑项目的建筑类型和风格,外立面显眼部位须增加绿城LOGO标识和八字方针。
1.3.2细部要求外墙标识:设置绿城LOGO和“真诚、善意、精致、完美”八字方针。
2.室内装饰标准2.1 彩钢房天棚采用白色PVC扣板吊顶,墙面为白色彩钢板,地面采用米黄色地砖;(油(油扣板吊人数配置相应数量的餐桌、椅。
厨房:天棚采用白色乳胶漆(彩钢房的天棚采用白色PVC扣板吊顶),墙面采用墙面砖,地面采用米黄色防滑地砖;灯具采用普通双管日光灯(彩钢房为双管格栅日光灯),开关插座面板采用鸿雁系列。
包厢(若有):天棚与墙面采用白色乳胶漆(彩钢房的天棚采用白色PVC 扣板吊顶,墙面为白色彩钢板),地面采用米黄色防滑地砖;灯具采用普通双管日光灯(彩钢房为双管格栅日光灯),开关插座面板采用鸿雁系列;配置圆桌1-2张(12人/桌),相应配置桌布、常绿盆栽植物等。
2.5 卫生间装饰标准天棚采用白色乳胶漆(彩钢房的天棚采用白色PVC扣板吊顶),墙面贴白色瓷砖(彩钢房除外),地面采用米黄色防滑地砖;灯具采用普通双管日光灯(彩钢房为双管格栅日光灯),开关插座面板采用鸿雁系列(防水型)。
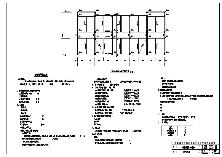
办公楼结构平面布置根据该办公楼的建筑功能要求和框架剪力墙结构体系的要求,进行了建筑平面和结构平面布置。
各层建筑平面布置如图.3.1,结构平面布置如图.3.2所示。
图3.1 建筑平面布置图图3.2 结构平面布置图3.1.本计算书梁、柱、墙命名规则如下:①梁命名:纵向轴线号+横向轴线号。
例如:梁“AB2”表示A、B轴线间位于2轴线上的梁段。
②柱命名:纵向轴线号+横向轴线号。
例如:柱“B3”表示交于B轴线和2轴线上的柱。
③墙命名:在图二.3.1中标出。
例如:横向剪力墙:HW1,纵向剪力墙:ZW1,ZW2等等。
④板命名:在图二.3.1中标出。
例如:B1,B2等等。
3.2.梁、柱、墙、板截面尺寸3.2.1.梁截面梁截面高度一般为,宽度一般为。
以梁BE1为例:,故取。
,故取。
为了便于计算,故整个结构使用统一的梁截面1~12层:所有梁截面均为。
3.2.2.柱截面按轴压比初步估算框架柱截面尺寸,按如下公式计算:以一层柱A1为例::竖向荷载分项系数(包含活荷载),取1.25;:每个楼层单位面积的竖向荷载标准值,按《混凝土高规》取14;:柱一层的受荷面积,取11.12;:柱承受荷载的楼层数,取12;:考虑水平荷载产生的附加系数,取1.10;:柱轴力增大系数,角柱取1.20;:柱由框架梁与剪力墙连接时的柱轴力折减系数,取0.80;:框架柱的轴压比限值,取0.90:混凝土抗压强度设计值,取19.10;,故取1~12层柱截面为。
为了便于计算,故整个结构使用统一的梁截面1~12层:所有柱截面均为。
3.2.3.墙截面根据初步估算,1-6层采用300厚的墙,7-12层采用250厚的墙3.2.4.板截面该办公楼中所有的楼板均为双向板。
双向板板厚一般取,为双向板的短向跨度,一般取。
故:楼板厚度取,楼面板厚度取。
3.3荷载标准值3.3.1屋面(不上人)永久荷载标准值20厚1:3水泥砂浆面层 20×0.02=0.40KN/m² 10厚低标号砂浆隔离层 20×0.01=0.20KN/m² 4厚SBS改性沥青卷材 0.045KN/m² 20厚1:3水泥砂浆找平层 20×0.02=0.40KN/m²70厚聚苯乙烯泡沫塑料板 0.5×0.07=0.035KN/m²30厚LC5.0轻集料2%找坡层 11×0.03=0.33KN/m² 120厚钢筋混凝土屋面板 25×0.12=3.00KN/m²V型轻型龙骨吊顶 0.25KN/m²合计 4.66KN/m²3.3.2女儿墙永久荷载标准值1.2m高,上80mm下100mm,混凝土材料, 25×1.2×0.09=2.70 KN/m²3.3.3楼面永久荷载标准值10厚地砖,干水泥擦缝 24×0.01=0.24KN/m²20厚1:3干硬性水泥砂浆结合层,表面撒水泥粉 20×0.02=0.40KN/m²水泥浆一道(内掺建筑胶)忽略 100厚钢筋混凝土楼板 25×0.10=2.50KN/m² V型轻型龙骨吊顶 0.35KN/m²合计 3.50KN/m²3.3.4外墙永久荷载标准值①外墙面:3厚专用聚合物砂浆底面刮糙9厚1:3专用水泥砂浆打底扫毛6厚1:2.5水泥砂浆找平2厚复层建筑涂料(总计20厚,按水泥砂浆容重估算)合计 20×0.02=0.40KN/m²②墙体: 200厚蒸压粉煤灰加气混凝土砌块 5.5×0.2=1.10KN/m²③内墙面: 3厚外加剂专用砂浆打底刮糙8厚1:1:6水泥石灰膏砂浆打底扫毛5厚1:0.5:2.5水泥石灰膏砂浆找平2厚溶剂型双组份聚氨酯涂料饰面(总计18厚,按水泥石灰膏砂浆容重估算)合计 17×0.018=0.31KN/m²总外墙永久荷载标准值(0.40+1.10+0.31)×3.0=5.43KN/m3.3.5内墙永久荷载标准值①墙面: 3厚外加剂专用砂浆打底刮糙(一侧) 8厚1:1:6水泥石灰膏砂浆打底扫毛5厚1:0.5:2.5水泥石灰膏砂浆找平2厚无机内墙涂料饰面(总计18厚,按水泥石灰膏砂浆容重估算)合计 17×0.018=0.31KN/m²墙体:200厚蒸压粉煤灰加气混凝土砌块 5.5×0.2=1.10KN/m²总内墙永久荷载标准值(1.10+0.31×2)×3.0=5.16KN/m3.3.6卫生间、楼梯间和门窗永久荷载标准值卫生间:10厚防滑地砖,干水泥擦缝 24×0.01=0.2420厚1:3干硬性水泥砂浆结合层,表面撒水泥粉 20×0.02=0.4015厚混合砂浆隔离层 17×0.015=0.2552厚聚氨酯防水涂膜二度,四周卷起高于楼面基层500mm 0.00520厚1:3水泥砂浆找平层 20×0.02=0.40最薄处20厚1:3水泥砂浆找坡 20×0.02=0.40120厚钢筋混凝土楼板 25×0.12=3.0蹲位折减荷载(考虑局部20厚炉渣填高) 1.50KN/m²合计 6.2KN/m²楼梯间: 8.00KN/m²木门: 0.20KN/m²铝合金窗: 0.40KN/m²3.3.7活荷载①屋面:不上人屋面均布活荷载 0.50电梯机房均布活荷载 7.00②楼面:一般房间均布活荷载 2.00卫生间、走廊均布活荷载 2.50楼梯、电梯前室均布活荷载 3.50。
某办公楼工程施工平面布置图第一节施工现场平面布置原则本工程位于XX市**区**************,地势基本平坦、宽阔。
现场平面布置应充分考虑周边环境因素及施工需要,布置时应遵循原则如下:1、现场平面随着工程施工进度进行布置和安排,阶段平面布置要与该时期的施工重点相适应。
2、充分考虑文明施工及环保要求,并符合安全规定,各种设施布置必须符合XX 市及广东省安全文明施工的相关要求。
并且在布置临时设施时,要注意保护现有的树木及绿地,在临建中也要有绿化布置。
3、在平面布置中应充分考虑好大型施工机械设备的布置、现场办公、道路交通、材料周转临时堆放场地等的优化合理布置。
4、材料堆放应尽量设在垂直运输机械附近,以减少发生二次搬运。
中小型机械的布置,要处于安全环境中,要避开高空物体打击的范围。
5、临电电源、电线敷设要避开人员流量大的安全出口,以及容易被坠落物体打击的范围,为避让市政管线施工,现场临电电缆采用架空方式。
6、施工期间制定详细周密的材料供应计划,计划细化到每周、每天、每个时段,设专职调度员负责进场材料的统一调度和规划,以便对大型机具的使用统筹安排。
对施工现场进行动态管理,及时合理地调整和分配场地。
7、在施工现场东、西区北侧各有一个生活区,对工人生活区实行全封闭式管理。
第一节现场平面布置1、塔吊、井字架布置(1)本工程垂直运输主要采用QTZ-80型塔吊,半径50m,其起重性能为最大吊重8t,最小1.6t。
除了土建施工的垂直运输外,材料的装卸考虑汽车吊配合,因此再考虑3台汽车吊配合。
在结构施工阶段现场设置2台人货电梯及1台快速井架,以保证施工材料垂直运输的需要。
井字架和塔吊布置详见总平面图。
(2)安装塔吊直接落在地面上,因此进场后应及时进行塔吊基础的设计和安装方案的制定。
2、混凝土输送泵现场共配备1台混凝土地泵,混凝土地泵布置在建筑物附近。
3、材料堆场现场场地宽阔,可以利用现场四周的空场地做钢筋模板等临时材料的堆场,钢筋及模板主要加工场地也设置在现场。
附件2:办公生活区施工图纸目录一、办公楼建筑设计图纸目录BG01(结施-1)办公楼基础平面图BG02(建施-1、2)办公楼一、二层平面布置图【2张】BG03(结施)构件节点1、节点2、基础预埋锚栓、二层楼板结构、屋架结构施工图【5张】BG04(建施-3)办公楼正立面、背立面建施图BG05(建施-4)办公楼侧立面、外门窗留洞图【2张】BG06-1 办公区办公楼首层照明平面图;BG06-2 办公区办公楼首层插座平面图BG06-3 办公区办公楼配电系统图BG07-1 办公区办公楼一层采暖管道系统图;BG07-2 办公区办公楼二层采暖管道系统图BG08-1 办公区办公楼一层卫生间排水详图;BG08-2 办公区办公楼二层卫生间排水详图BG09 办公区办公楼卫生间给水详图二、施工单位食堂设计图纸目录:ST11 (建施1)食堂基础平面布置图(含设计说明、节点图)ST12 (建施2)食堂平面布置图ST13 (建施3)食堂正立面、背立面建筑施工图ST14 (建施4)食堂侧立面施工图 ST15 食堂剖面图结构施工图ST16 食堂下檩条结构布置施工图 ST17 食堂上弦檩条结构檩条布置施工图ST18 屋架结构(檩条布置)施工图ST19 食堂电气施工图 ST20 食堂给水施工图ST21 食堂排水施工图 ST22 食堂采暖施工图三、锅炉房设计图纸目录:GL32 锅炉房基础平面布置、平面布置图及节点图GL33 锅炉房正立面、背立面、侧立面建筑施工图GL34 常压锅炉系统安装图 GL35 锅炉房电气照明施工图四、工人宿舍区图纸目录SS41宿舍平面、侧立面、剖面图; SS42宿舍正立面、背立面图SS43宿舍电气施工图; SS44工人生活区采暖施工图SS45工人食堂平面、正立面、背立面施工图SS46工人超市活动室平面、侧面、剖面面施工图SS47工人超市活动室正立面、背立面施工图SS48工人食堂电气施工图; SS49工人厕所淋浴间电气施工图;SS50 工人厕所正、背、侧立面、详图【2张】SS51工人食堂给水施工图; SS52 工人食堂排水施工图SS53 工人厕所给水施工图; SS54 工人厕所排水施工图。