水冷式冷水机组说明书
- 格式:doc
- 大小:1.17 MB
- 文档页数:22
SL780水冷半封螺杆型冷水机组使用说明书一、操作使用说明用户在每次开机时,请严格按照使用说明书规定的步骤依次操作,以确保人、机安全。
第一次开机操作应在制造单位工程师指导下进行。
(一)首次开机程序1、按照要求,接好全部电缆(电线);2、打开冷凝器出口处的角阀和压缩机吸、排气阀(由调试工程师完成);3、将压缩机润滑油预热8小时以上;4、开启末端设备并检查其运转是否正常;5、开启冷冻、冷却水泵及冷却塔风机,确认运转方向,检查水系统是否正常;6、检查膨胀水箱的水源,打开冷冻水管路的排气阀,排尽管道内空气;7、检查高、低压力值、压缩机润滑油位、压力继电器高、低压设定值是否正常(注:高压设定值为1.8MPa,低压设定值为0.35±0.1MPa,用户不得擅自更改)。
8、检查压缩机的运转方向是否正确。
9、在主回路空气开关断开的情况下进行试运转,检查动作顺序是否正常。
以上各项工作完成后,即可接通主电源并开启空调主机,待水温达到要求后,就可启动末端设备进入正常制冷运行。
(二)机组运行1、机组日常停机,按控制显示器“关机”(或OFF)键一次;2、停止辅助设备的运转,机组总电源开关及电控箱内单极空气开关必须保持闭合通电,以确保压缩机油加热器正常工作。
(三)电气操作(DELTA控制器)1、电气资料阅读在正式使用本产品之前,请仔细阅读有关的随机电气资料,以下为各电气元件的符号说明:QF:自动空气断路器(空气开关)KM:交流接触器KA:中间继电器SP:压力继电器PT100:温度传感器MP:压缩机内置保护器XT:接线端子SL:靶式流量控制器ST:温度传感器SB:急停按钮2、操作说明盾安牌水冷冷水机组采用世界一流可编程控制器作为控制系统的核心,对机组实行全天候自动监控,使机组的可靠运行得到有力保障,更实现了操作和管理的简单化。
2.1 显示器为液晶显示器,实现全中文显示,并能自动显示故障信息;“手动”键为厂家调试操作用,谢绝用户操作。
深圳市凯德利冷机设备有限公司机组安装、操作及维护说明书二零壹肆年肆月版本:A1.00目录一、机组的适用范围 (1)二、规格………………………………………………………………………………1三、安装说明 (1)四、操作说明 (1)1、使用操作…………………………………………………………………………………… .. 12、面板操作简介 (2)3、用户操作………………………………………………………………………………………24、故障显示及排除 (2)五、故障排除 (3)六、保养………………………………………………………………………………4七、注意事项 (4)八、电路图……………………………………………………………………(见附页)风冷式冷水机组操作手册一﹑机组适用范围在工业上广泛用于塑料﹑电子﹑化工﹑冶金﹑食品﹑制药﹑电镀﹑皮革﹑工艺和科研等﹔在商业上广泛用于酒店﹑宾馆﹑超级市场和影剧院等。
二﹑规格三﹑安装说明1﹑机器安装﹐要求平放﹐不可倾斜﹔2﹑机器两侧应有一米左右保养空间﹔3﹑冰水管管路务必接成回路﹐使冰水得以循环﹔4﹑冰水管路必须保温﹔5﹑接电源时请确定电源足以承担冷水机组最大负荷﹔6﹑机组电源﹐必须单独控制﹔7﹑必须接地线﹐以确保安全。
四﹑操作說明启动机组前﹐应检查冰水管路阀门是否打开(注﹕长期停机后﹐再次开机前﹐应打开电源24小时后再开启机组)﹔机组控制﹕1、使用操作(面板图)本公司使用微电脑控制器,显示屏为模块式屏幕,。
显示界面的设计充分运用人类工程学原理,使用操作简便直观,操作人员只需稍阅说明书就可上岗操作,其操作面板如图示。
1.1>按键指示灯*COMP1* 压缩机1控制指示灯,灯亮允许启动否则不允许启动,由*COMP1*按键控制.*COMP2* 压缩机2控制指示灯,灯亮允许启动否则不允许启动,由*COMP2*按键控制.*RESET*有故障时的指示灯(闪烁显示),无故障时按下<RESET>可关闭.*PUMP* 机组运行指示灯,机组运行时此灯亮,否则灭.*0FF* 延时停机指示灯,延时停机时闪烁点亮.*SET* 参数设置指示灯,处于参数设置界面时此灯亮.1.2>面板指示灯*POWER* 电源指示灯,通电后灯亮.*RUN* 机组运行指示器,非待机状态亮.*ERROR* 故障指示灯,有故障时亮.*COMP1* 压缩机1运行指示灯.*COMP2*压缩机2运行指示灯2、面板操作键简介2.1>面板中间为两个模块显示屏,PV屏显示实际温度,SV屏显示设定温度。
HITACHI安装、使用、维护 说 明 书日 立 牌 水 冷 式 冷 水 机 组— 螺 杆 式 —注 意:在使用此冷水机组之前, 请仔细阅读该手册,并请 保存完好,供以后参考。
Model 型号RCU40WHZ-A(E) RCU50WHZ-A(E) RCU60WHZ-A(E) RCU80WHZ-A(E) RCU100WHZ-A(E) RCU120WHZ-A(E) RCU150WHZ-A(E) RCU180WHZ-A(E) RCU200WHZ-A(E) RCU220WHZ-A(E) RCU240WHZ-A(E)重 要 通 知z日立对产品的设计和性能将不断进行改良,规格如有更改,恕不另行通知。
z日立对每一个可能的情况导致有潜在的危险不作预测。
z没有书面允许,此说明书不得翻印。
z信号字句(危险、警告和小心)用于鉴定危险性的级别,有关各信号字句所提示的危险性解释如下:警 告可能导致严重个人受伤或死亡的直接危险。
危 险危险或不安全的操作可能导致严重个人受伤或死亡。
小 心危险或不安全的操作可能导致轻微个人受伤、产品或财物损害。
注 意:对使用或维修有帮助的资料。
z如有需要,请联络您所聘用的承建商或日立分销商。
z此水冷式冷水机组是根据以下温度设计,冷水机组应在此范围内使用: 工作范围 ( ℃)最高 最低 冷却水 出水温度 37 22冷冻水 出水温度 20 5z此说明书为水冷式冷水机组的永久部件,应妥善保存。
注:带液晶屏机组的液晶屏使用说明,请参考随机资料Z0011620《液晶屏使用说明书》。
z能效等级:上述数据依据GB 19577-2004 《水冷机组能效限定值及能源效率等级》。
目 录使用说明1.准备工作 (1)初步检查 (1)机组安装 (1)2.安装工作....................................... (6)电线连接 (6)工作范围 (9)水管接驳 (10)水质控制 (11)标准管路和接线 (12)3.运转试验 (13)准备工作 (13)运转试验 (14)试运转后的操作 (14)4.控制器设定 (15)5. 自动检查功能 (20)6.控制系统 (23)7.保养工作 (26)组件 (26)润滑 (26)沉渍 (26)冬季长时间停机 (27)春季初次启动 (27)零件更换 (27)冷媒循环 (27)压缩机的拆卸 (29)安全保护及控制器件的设定值 (30)正常操作压力 (31)8.故障寻找 (34)日立水冷式冷水机组型号:RCU40、50、60WHZ-A(E)使用说明指示灯:1.红灯指示正常运转状态。
水冷半封闭螺杆型冷水机组使用说明书一、概述:水冷半封闭螺杆型冷水机组是一种以水为冷却介质的中央空调产品,与相同冷量的风冷机组相比,由于其冷凝器和蒸发器均采用特制高效传热管制作,因此结构紧凑,体积小,效率高;又由于没有冷凝风机,因而噪声也低。
该机组在工厂内完全组装,已完成所有的部件和制冷管路及内部接线的连接,满足现场安装要求,并已完成压力试验,真空试验,制冷剂和润滑油的充注。
本公司在水冷半封螺杆型机组制造方面有着成熟的技术,完善的工艺和先进的检测设备,再加上精选的国际一流配件,保证了机组的稳定、高效运行。
出厂以前,机组严格按国家规定的检测项目完成全部性能测试,合格以后准予出厂。
目前,公司已拥有环保型风冷涡旋式冷水(热泵)机组、风冷螺杆式冷水(热泵)机组、环保型风冷螺杆式冷水(热泵)机组、水冷涡旋型冷水机组、水冷半封螺杆型冷水机组、环保型螺杆冷水机组、热回收型螺杆冷水机组、满液式螺杆冷水机组、水源热泵机组、满液式水(地)源热泵机组、工业冷水机组、冰蓄冷中央空调设备、屋顶式空调机组、全热回收新风机组、模块化精密型恒温恒湿机、水冷柜式空调机组、风冷柜式空调机组、户用中央空调机组、风管送风式分体空调机组、风机盘管机组、柜式空调机组、顶装式空气处理机组、组合式空调机组、净化型组合式空气处理机组等二十四大系列上千种规格的产品,并全面开发和应用了智能控制、节能、环保、网络远程控制功能等高新技术。
1.应用范围冷水机组既能为宾馆、医院、药厂、影剧院、体育馆、娱乐中心、商业大厦、写字楼、工矿企业等场所的中央空调系统提供冷水,也可为纺织、化工、食品、电子、科研等部门提供工艺冷冻水。
2.使用条件★注意:上述参数超出使用范围,将会对机组的使用造成不良影响。
二、工作原理与结构:(一)工作原理机组工作原理是利用氟利昂工质在不同压力和不同温度条件下的状态变化来实现其吸热和放热过程。
具体流程如下:排气冷凝压缩机冷凝器角阀干燥过滤器视镜热力膨胀阀节流蒸发蒸发器压缩机经压缩机压缩后的高温高压制冷剂气体,进入冷凝器与冷却水换热后被冷凝成中温高压液体,经干燥过滤后流经热力膨胀阀,被节流降压成低温低压的液体进入蒸发器,吸收水的热量后蒸发成低温低压的气体被压缩机吸入,再经压缩后进入下一次制冷循环。
深圳市凯德利冷机设备有限公司机组安装、操作及维护说明书二零壹肆年肆月版本:A1.00目录一、机组的适用范围 (1)二、规格 (1)三、安装说明 (1)四、操作说明 (1)1、使用操作…………………………………………………………………………………… .. 12、面板操作简介 (2)3、用户操作 (2)4、故障显示及排除 (2)五、故障排除 (3)六、保养 (4)七、注意事项 (4)八、电路图……………………………………………………………………(见附页)风冷式冷水机组操作手册一﹑机组适用范围在工业上广泛用于塑料﹑电子﹑化工﹑冶金﹑食品﹑制药﹑电镀﹑皮革﹑工艺和科研等﹔在商业上广泛用于酒店﹑宾馆﹑超级市场和影剧院等。
二﹑规格三﹑安装说明1﹑机器安装﹐要求平放﹐不可倾斜﹔2﹑机器两侧应有一米左右保养空间﹔3﹑冰水管管路务必接成回路﹐使冰水得以循环﹔4﹑冰水管路必须保温﹔5﹑接电源时请确定电源足以承担冷水机组最大负荷﹔6﹑机组电源﹐必须单独控制﹔7﹑必须接地线﹐以确保安全。
四﹑操作說明启动机组前﹐应检查冰水管路阀门是否打开(注﹕长期停机后﹐再次开机前﹐应打开电源24小时后再开启机组)﹔机组控制﹕1、使用操作(面板图)本公司使用微电脑控制器,显示屏为模块式屏幕,。
显示界面的设计充分运用人类工程学原理,使用操作简便直观,操作人员只需稍阅说明书就可上岗操作,其操作面板如图示。
1.1>按键指示灯*COMP1* 压缩机1控制指示灯,灯亮允许启动否则不允许启动,由*COMP1*按键控制.*COMP2* 压缩机2控制指示灯,灯亮允许启动否则不允许启动,由*COMP2*按键控制.*RESET* 有故障时的指示灯(闪烁显示),无故障时按下<RESET>可关闭.*PUMP* 机组运行指示灯,机组运行时此灯亮,否则灭.*0FF* 延时停机指示灯,延时停机时闪烁点亮.*SET* 参数设置指示灯,处于参数设置界面时此灯亮.1.2>面板指示灯*POWER* 电源指示灯,通电后灯亮.*RUN* 机组运行指示器,非待机状态亮.*ERROR* 故障指示灯,有故障时亮.*COMP1* 压缩机1运行指示灯.*COMP2* 压缩机2运行指示灯2、面板操作键简介2.1>面板中间为两个模块显示屏,PV屏显示实际温度,SV屏显示设定温度。
水冷式冷水机组简介一、简介水冷式冷水机组是本公司综合国内外同类产品的优点而设计开发的新一代产品。
该产品把高可靠性、高效率、高度自动化等优点完美地结合在一起,是一种使用更方便、运行更可靠的空调主机。
该产品广泛适用于商场、宾馆、演剧院、医院、大型厂房及高层搂宇等需要空调的场所。
二、机组主要特点1. 机组的分类根据选用压缩机的不同分为二类:水冷式螺杆型冷水机组水冷式往复型冷水机组2. 机组规格齐全,用户选择余地大螺杆型:制冷量范围:174kW~3960kW往复型:制冷量范围:166kW~2105kW3、微电脑自动控制系统采用先进的控制技术控制机组全天候自动运行,使机组始终运行在最佳工况点以获得高能效比,机组各项保护功能齐全,可进行远距离控制,控制器采用西门子原装PLC。
4、能量调节压缩机的能量调节阀与PLC控制器的良好配合,实现了机组根据负荷的变化自动进行0~100%的能量调节,具有显著的节能效果。
5、制冷系统多机头机组均采用独立的冷媒回路系统,使机组的运行更趋于稳定、可靠。
6、噪音低、振动小压缩机底部的避震垫,降低机组的噪音和振动。
7、机组检验、安装机组出厂均经严格检测,所有保护参数均已设定,电源、供水管安装完毕后加入适量的制冷剂即可。
三、机组的组成与主要部件简介水冷式冷水机组主要由压缩机、干式壳管式蒸发器、壳管式冷凝器、节流机构、辅助制冷配件以及电控系统等所组成。
1、压缩机水冷式螺杆型冷水机组采用国际著名的压缩机,性能优越,运行可靠,使用寿命长,其中:——采用双轴旋转排气,提高压缩比和效率,冷媒直接冷却电机,提高电机效率,节能达10%以上;——压缩过程自动Vi(内容积比)控制,避免了过压缩而引起的能量损失,实现了在较宽应用范围内的高效率;——精巧的设计,使其体积小,重量轻;——双螺杆表面紧密配合,降低了轴承和护架上的设计应力,保证了压缩机运行平稳,降低了噪音和振动。
水冷式往复型冷水机组采用国际著名的活塞半封闭式压缩机,性能优越,运行可靠,使用寿命长,其中:——活塞半封闭式压缩机具有高性能系数;——高品质及高度精密阀门设计,以低容积余隙达成高效率运转;——最佳马达绝缘,适合与各种不同功能用途;——构造精密,体积小;——运动部件的平衡经过完美的设计,最大幅度地减少振动,降低了噪音。
说明:1.压力容器进出水接管必须进行支撑,避免外力施加到机组上。
2.机房面积的大小要能保证蒸发器和冷凝器的维护和保养。
3.上图所示为左侧接管进出水,根据要求可改为右侧.说明:1.压力容器进出水接管必须进行支撑,避免外力施加到机组上。
2.机房面积的大小要能保证蒸发器和冷凝器的维护和保养。
3.上图所示为左侧接管进出水,根据要求可改为右侧.说明:1.压力容器进出水接管必须进行支撑,避免外力施加到机组上。
2.机房面积的大小要能保证蒸发器和冷凝器的维护和保养。
3.上图所示为左侧接管进出水,根据要求可改为右侧.说明:1.压力容器进出水接管必须进行支撑,避免外力施加到机组上。
2.机房面积的大小要能保证蒸发器和冷凝器的维护和保养。
3.上图所示为左侧接管进出水,根据要求可改为右侧.机组起吊时,必须用缆绳或链子缚紧在机组起吊孔上起吊,起吊时必须保护机组的控制柜和机组其它部分不受损伤。
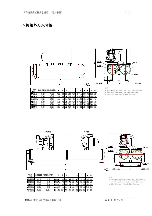
备注:1.以上图纸仅作示意用,机组其它相关尺寸参考相应的用户手册。
2.机组吊装完毕后,建议重新油漆被檫伤的机组表面。
7.2维修空间示意图机组宜在市内使用且周围环境温度在4℃以上,环境相对湿度≤90%,机组安装的地面要求水平且有足够的强度,否则应考虑加强措施。
(可参考前面的机组地基图和维修空间图上的一些要求)。
若机组安装空间留有余地,可在机组左右的任一侧留出拔管空间,以便于对铜管进行清洗。
尺寸为机组维修所需最小空间尺寸。
备注:7.3机组外接水管示意图机组水系统的正确设计及安装对机组的稳定、高效的运行十分关键,因此需要对机组水系统进行精心的设计和严格检验。
机组进出口必须安装截止阀以便于水系统能进行常规的维护。
建议在容器进出口处安装温度计和压力表,便于日常的检查和后续的维护;水泵和机组进水处应安装水过滤器,避免杂质进入水泵和容器中;在水管未保温和机组未进水前应预先检查管路密封;与机组相连接的所有管路应安装减振装置;必须安装符合要求的流量控制装置;空调工程水系统安装排污时,应避开机组容器的进出水管路,否则将影响机组的正常使用。
XK06-015-00688水冷冷水机组水(地)源热泵机组安装使用说明书安装、使用产品前,请详细阅读使用说明书,并妥善保管以备查阅。
北京金万众空调制冷设备有限责任公司Beijing GMTD Air Conditioning & Refrigeration Equipment Ltd.目录1.概述 (2)2.结构特征与工作原理 (3)3.性能参数表 (4)4.开箱及检查 (37)5.运输与贮存 (38)6.机组安装 (38)7.开机前准备 (44)8.电器控制操作说明…………………………………………………9.保养工作……………………………………………………………10.机组维修……………………………………………………………11.售后服务……………………………………………………………1 概述1. 1产品特点金万众水冷式冷水(热泵)机组,主要配件全部选用世界名牌产品,采用现代化流水线生产,并根据ISO9001质量体系对其进行严格的质量控制及管理,使产品性能卓越,效率高。
设计严格遵循国家标准(GB/T18430.1-2007,GB/T19409)1)机组操作系统采用进口可编程控制器控制。
2)机组配有压缩机高低压自动保护装置、过电流保护装置、过热保护装置。
3)机组配有靶式流量开关,当流量过低时使机组自动进入保护状态。
4)机组出水温度过低时,防冻低温程序可进行自动保护。
1.2型号说明图1 主机型号的组成及其代表的意义1. 3产品主要用途及适用范围我公司水冷式冷水(热泵)机组适用于宾馆、商场、写字楼、医院、高档厂房、剧院、体育场馆等场所的中央空调系统的冷源,并可为纺织、化工、电子、国防、科研等部门提供工艺流程所需的低温用水。
水冷机组可灵活与风机盘管、组合空调器、柜式空调机等末端换热设备组成各种中央空调系统。
由于本产品是通过电能驱动进行制冷的,其能效比在4.5以上,因此其节能效果十分显著。
2.结构特征与工作原理2.1机组结构机组由三大系统组成:制冷系统(一般为氟系统)、水系统以及电气系统。
水冷式发电机组的说明书说明书一、产品介绍水冷式发电机组是利用水进行冷却的发电设备。
本产品由发电机、机组、控制柜、供水系统、冷却系统和排气系统等组成。
二、技术参数1.额定电压:220V/380V2.额定频率:50Hz/60Hz3.额定功率:10kW-1000kW4.电机类型:水冷式交流发电机5.控制系统:自动控制和远程控制6.冷却系统:水冷式冷却三、电机特点1. 整机结构紧凑,体积小,重量轻。
2. 效率高,能耗低,功率密度大。
3. 运行可靠,噪声小,环保节能。
4. 采用先进的数码化控制技术,具有自动调节功率和保护等功能。
5. 长期重负载运行性能稳定可靠。
6. 适用范围广,可以广泛应用于住宅、商业、工业、军事等领域。
四、使用方法1. 在使用前,必须检查发电机组的接线是否正确,机组是否接地稳定。
2. 开机前必须检查发电机组的冷却水量是否足够,并开启冷却系统开关。
3. 发电机组在长时间运行后应进行冷却和排气,防止机组温度过高,影响机组寿命。
4. 在使用过程中,严禁随意更改控制柜设置,切勿超载或者短路操作。
五、注意事项1. 本产品不得与其他电器混接使用,以免造成损坏和危险。
2. 在使用发电机组的过程中,禁止拆卸除电气设备以外的任何部件。
3. 本产品应安装在干燥、通风、无灰尘、无腐蚀性气体和易燃易爆环境的场所。
4. 如发现电气故障,应立即停机排除故障,以免对设备造成进一步损伤。
六、保养与维护1. 发电机组在长期运行中必须进行定期检查、调整和保养,并按照保养周期进行更换零部件。
2. 发动机使用过程中,应定期检查,在发现故障或异常情况时及时处理。
3. 冷却系统必须使用清洁无污染的水源,定期更换冷却水,防止水质过差影响机组性能。
4. 机组停机后,应立即清理和保养,进行周全检查,确保设备处于良好的工作状态。
七、故障排除1. 发电机组在运行中如出现噪音、热量过高、频率变化大、电压不稳定等异常情况,应立即停机检查排除问题。
工业冷水机使用说明书一、机组1、水冷开放式工业冷水机组2、风冷工业冷水机组3、水冷箱式工业冷水机组二、水管安装流程图三、冷水机安装说明1)、冷水机搬运:冷水机搬运前应做好必要的防护措施,搬运过程中注意不要损坏机组。
(2)、机组安装:2-1、安装冷水机时,注意不要损坏机组,合理布局冷水机周围空间,以方便维修保养冷水机。
2-2、按照公认的配管系统设计及施工安装标准,合理设计和安装冻水及冷却水系统,以充分发挥冷水机性能。
2-3、冷水机组应水平放置,及安装在通风干燥的位置,风冷机组安装时须注意排气口保留足够的空间,并且四周保持必须的距离以利于热交换。
2-4、水源及散热水塔周围环境恶劣时,冷冻水和冷却水回路必须安装Y型过滤器及定时清理,封闭冷冻水系统最高处必须安装自动排气阀、系统最低处安装排水接头,以系统排水用。
2-5、根据机组制冷能力选用匹配的冷却塔(风冷机组不需配置冷却塔)。
2-6、冷冻水喉通过试漏后,包保温层,避免冷量散失及管路滴水。
(3)、电源连接:3-1、冷水机电源采用三相四线、电源线(R、S、T)接电源火线。
(N)接零线(G)接地线※切勿将零线(N)接于电源火线。
3-2、机组用主电源线经电控箱上的穿孔连接在箱内接柱上,保证连接紧固。
3-3、机组配电要求:主电源电压:额定电压±10%以内主电源频率:额定频率±2%以内3-4、主电源电压波动超过规定范围时,不准起动冷水机、否则视作操作不当,由此引起的损坏不在本公司保养范围之内。
3-5、水系统之水流开关、水泵、冷却水塔电机等联锁电路必要时可正确连接在机组控制电路中(风冷机组不需配置冷却塔)。
3-6、冷水机组设有电流过载保护、压缩机排气端之高低压保护,马达线圈过热保护、防冰保护,冷却水之水流连锁保护等多种保护措施,控制电路先进。
本公司冰水机组的控制电路已在工厂里安装调试完成。
切勿擅自改动、如需改动请与本公司联络。
四、开机运行(1)、开机前的准备:1-1、检查机组周围有否异状。
HITACHI安装、使用、维护 说 明 书日 立 牌 水 冷 式 冷 水 机 组— 螺 杆 式 —注 意:在使用此冷水机组之前, 请仔细阅读该手册,并请 保存完好,供以后参考。
Model 型号RCU40WHZ-A(E) RCU50WHZ-A(E) RCU60WHZ-A(E) RCU80WHZ-A(E) RCU100WHZ-A(E) RCU120WHZ-A(E) RCU150WHZ-A(E) RCU180WHZ-A(E) RCU200WHZ-A(E) RCU220WHZ-A(E) RCU240WHZ-A(E)重 要 通 知z日立对产品的设计和性能将不断进行改良,规格如有更改,恕不另行通知。
z日立对每一个可能的情况导致有潜在的危险不作预测。
z没有书面允许,此说明书不得翻印。
z信号字句(危险、警告和小心)用于鉴定危险性的级别,有关各信号字句所提示的危险性解释如下:警 告可能导致严重个人受伤或死亡的直接危险。
危 险危险或不安全的操作可能导致严重个人受伤或死亡。
小 心危险或不安全的操作可能导致轻微个人受伤、产品或财物损害。
注 意:对使用或维修有帮助的资料。
z如有需要,请联络您所聘用的承建商或日立分销商。
z此水冷式冷水机组是根据以下温度设计,冷水机组应在此范围内使用: 工作范围 ( ℃)最高 最低 冷却水 出水温度 37 22冷冻水 出水温度 20 5z此说明书为水冷式冷水机组的永久部件,应妥善保存。
注:带液晶屏机组的液晶屏使用说明,请参考随机资料Z0011620《液晶屏使用说明书》。
z能效等级:上述数据依据GB 19577-2004 《水冷机组能效限定值及能源效率等级》。
目 录使用说明1.准备工作 (1)初步检查 (1)机组安装 (1)2.安装工作....................................... (6)电线连接 (6)工作范围 (9)水管接驳 (10)水质控制 (11)标准管路和接线 (12)3.运转试验 (13)准备工作 (13)运转试验 (14)试运转后的操作 (14)4.控制器设定 (15)5. 自动检查功能 (20)6.控制系统 (23)7.保养工作 (26)组件 (26)润滑 (26)沉渍 (26)冬季长时间停机 (27)春季初次启动 (27)零件更换 (27)冷媒循环 (27)压缩机的拆卸 (29)安全保护及控制器件的设定值 (30)正常操作压力 (31)8.故障寻找 (34)日立水冷式冷水机组型号:RCU40、50、60WHZ-A(E)使用说明指示灯:1.红灯指示正常运转状态。
海利水冷130a说明书
新机首次使用可按以下步骤进行。
1、打开包装,检查机器是否完好,附件是否齐备。
2、拧开机器注水口,加入冷却水。
加水时应同时观察水位计的水位慢慢加水,注意不要让水溢出!用于碳钢材质设备的冷却时应该添加适量的防腐蚀药剂。
北方寒冷地区使用的应该加注无腐蚀性的防冻液。
3、根据设备情况接好出水管、入水管。
4、接上电源,打开电源开关。
(严禁无水开机!)
(1)打开电源开关后,冷水机循环泵就开始工作了。
新机第一次开机时管路中会有较多的气泡导致机器偶尔流量报警,运行数分钟后就会恢复正常。
(2)第一次开机后,必须马上检查水管管路有无漏水。
(3)打开电源后,如果水温低于设定温度,机器的风扇等器件不工作是正常现象。
温控器会根据设定的控制参数自动控制压缩机、电池阀、风扇等器件的工作状态。
(4)由于压缩机等器件有一个较长的启动过程,根据不同的工况从几十秒到数
分钟不等,所以不要频繁开关机。
5、检查水箱水位。
新机开机后排空了水管中的空气,水箱水位会略有下降,为了保持水位在绿色区域,可以再次适量加水。
观察并记下当前的水位情况,等冷水机运行一段时间后再次观察水位计,如果水位下降明显,就要再次检查水管管路的渗漏情况。
水冷式冷水机组简介一、简介水冷式冷水机组是本公司综合国内外同类产品的优点而设计开发的新一代产品。
该产品把高可靠性、高效率、高度自动化等优点完美地结合在一起,是一种使用更方便、运行更可靠的空调主机。
该产品广泛适用于商场、宾馆、演剧院、医院、大型厂房及高层搂宇等需要空调的场所。
二、机组主要特点1. 机组的分类根据选用压缩机的不同分为二类:水冷式螺杆型冷水机组水冷式往复型冷水机组2. 机组规格齐全,用户选择余地大螺杆型:制冷量范围:174k W~3960k W往复型:制冷量范围:166k W~2105k W3、微电脑自动控制系统采用先进的控制技术控制机组全天候自动运行,使机组始终运行在最佳工况点以获得高能效比,机组各项保护功能齐全,可进行远距离控制,控制器采用西门子原装PLC。
4、能量调节压缩机的能量调节阀与PLC控制器的良好配合,实现了机组根据负荷的变化自动进行0~100%的能量调节,具有显著的节能效果。
5、制冷系统多机头机组均采用独立的冷媒回路系统,使机组的运行更趋于稳定、可靠。
6、噪音低、振动小压缩机底部的避震垫,降低机组的噪音和振动。
7、机组检验、安装机组出厂均经严格检测,所有保护参数均已设定,电源、供水管安装完毕后加入适量的制冷剂即可。
三、机组的组成与主要部件简介水冷式冷水机组主要由压缩机、干式壳管式蒸发器、壳管式冷凝器、节流机构、辅助制冷配件以及电控系统等所组成。
1、压缩机水冷式螺杆型冷水机组采用国际著名的压缩机,性能优越,运行可靠,使用寿命长,其中:——采用双轴旋转排气,提高压缩比和效率,冷媒直接冷却电机,提高电机效率,节能达10%以上;——压缩过程自动Vi(内容积比)控制,避免了过压缩而引起的能量损失,实现了在较宽应用范围内的高效率;——精巧的设计,使其体积小,重量轻;——双螺杆表面紧密配合,降低了轴承和护架上的设计应力,保证了压缩机运行平稳,降低了噪音和振动。
水冷式往复型冷水机组采用国际著名的活塞半封闭式压缩机,性能优越,运行可靠,使用寿命长,其中:——活塞半封闭式压缩机具有高性能系数;——高品质及高度精密阀门设计,以低容积余隙达成高效率运转;——最佳马达绝缘,适合与各种不同功能用途;——构造精密,体积小;——运动部件的平衡经过完美的设计,最大幅度地减少振动,降低了噪音。
2、干式壳管式蒸发器采用壳管式蒸发器,结构紧密,重量轻,占地面积少,回油方便,换热效果高,壳体两端盖板可拆卸,便于保养,检修。
3、壳管式冷凝器采用壳管式冷凝器,结构紧密,重量轻,壳体两端盖板可拆卸,便于现场保养清洗,另附加安全阀等装置兼顾安全,操作方便。
4、节流机构(膨胀阀)膨胀阀选用国际最先进的产品,具有紧凑的整体设计,坚固的不锈钢膜片,并可在宽广的运行工况中提供稳定及准确的控制。
5、辅助制冷配件冷媒回路中的各类制冷配件,如干燥过滤器、视镜、压力继电器等均采用国际著名厂家的产品,性能稳定,质量可靠。
6、智能防冻采用双级自动防冻保护,有效地防止蒸发器的冻裂。
四、电气控制的主要特点水冷式冷水机组采用了以微电脑为核心的控制系统,该控制系统控制精度高,抗干扰能力强,确保了机组安全、可靠、经济运行。
机组供电电源为三相五线380V/50Hz,控制电源为单相220V/50Hz。
●能量调节自动控制使机组始终在最经济工况点高效运行;●压缩机顺序启动,减小机组的启动电流;●机组具有过载、短路保护等功能;●可进行现场控制参数设定且记忆最新设定值;●具有电脑防冻功能;●可以配置同上位机联网的通讯接口电路(RS-485接口),通过监视控制软件实现计算机联网控制,控制距离达1200米。
机组就位、安装一、前期准备工作1、机组运到安装现场,应仔细检查,对照装箱单检查所有项目,如发现机组损坏,缺少零部件或运输过程中造成损坏,应通知杭州科灵斯壮空调营销公司。
2、用户需提供不变形的刚性基础或混凝土底座,基础尺寸的大小参照机组四只定位孔的尺寸。
基础应具有足够的强度以支撑冷水机组运行时的重量(见附图Ⅱ)。
3、应采取措施将机组运行时产生的热量从设备房带走,通风量能够维持室温在45℃以下。
机组的前后左右应留有不少于1.5米的空间,机组上方所需的垂直距为1米,压缩机上方不应敷设管道及线管,以便维护(见附图Ⅲ)。
4、排水:在靠近冷水机组附近,应备有足够的排水能力措施,以便系统停止运行或修理时排除系统中的水。
5、搬运工具:吊装设备、吊装横梁、吊链、千斤顶、滑动垫木、垫滚、橇棒。
二、安装、就位1、机组安装①根据机组外形尺寸,合理布置机组在机房内的安装位置。
②水冷机组应采用提升的方法搬运移动。
为防止发生事故及损坏机组,应采用水平提升的方法。
如果不能水平提升吊装机组,则可以用千斤顶将其某端顶起一定高度,把垫滚放在机组滑动垫木支座下,将机组滚动就位后,将机组下的滑动垫木拿掉,并将隔振垫放在机组底脚与基础之间。
③把水平仪放在冷凝器顶部,调整机组的水平度,机组在其长度方向和前后方向水平度调整在1.6mm以内。
用标准长度的垫片找平机组。
④机组校水平后,将机组底脚螺栓紧固在基础上。
2、水管路安装将水管接到蒸发器和冷凝器。
管道上应设隔振垫和支架,以免机组受力。
根据当地和国家规范安装管道。
管道的冲洗和保温要在管道与机组接通前进行。
警告:严禁在未冲洗干净管道前与机组接通使用。
①蒸发器的管道连接进出水管路连接在蒸发器上,在系统最高处安装自动和手动排气阀,在蒸发器进水管路上安装水过滤器,以防止蒸发器损坏。
进出水管路中要安装带有截止阀的水压表、管路活接头、隔振器(软接头)、截止阀、温度计、排水三通、流量开关、排气阀等。
进出水管路在经过气密性性试验和清洗后,包好绝热保温层,避免热传递。
②冷凝器的管道连接冷凝器供水管的规格,要根据设计水泵的有效扬程和水头损失来确定。
进水管道必须安装流量开关,并安装水过滤器,以防止冷凝器堵塞或损坏;进出水管上须装排气阀,带有截止阀的水压力表、管路活接头、隔振器(软接头),截止阀、温度计、排水三通、流量计。
③水处理本机组对于未经处理或处理不当的水会导致低效率运行,并可能使管道损坏,设备内部将产生锈蚀、腐蚀、或积聚污垢现,冷冻水管路建议安装电子除垢仪。
④保温本机组出厂前已做好保温层,不须另再保温。
所有与蒸发器进出水口连接的管道必须5、1英寸的管道使用1×1×1英寸的三通,如果是大直径的管道,应使用异径三通与流量开关相配,并为液流提供足够长度的流向片。
6、流量开关可安装在水平管道或液流方向向上的垂直管道中,但不能安装在液流向下的管道中。
当安装在流向向上的管道时因需要考虑重力影响,开关应调节到略高于表1所示的典型流量值。
表1典型流量值+GPM值适用于6″流向片,将6″流向片作相应修正。
7、调节流量开关设定的步骤:A.取下HFS-25的外壳;B.调高流量值,顺时针旋转调节螺丝。
在调高出厂设定值后想调低流量值,逆时针旋转调节螺丝;C.通过按动主杠杆数次来检查流量开关的设定不低于出厂设定值,一量发现杠杆回复时没有“咔嗒”声,顺时针旋转调节直至回复时有“咔嗒”声。
图三:注意:1.HFS-25流量开关仅用于操作控制,在那些因操作失误会造成人员受伤和财产损失的地方,安装人员有责任增加安全、极限控制或报警、监查系统,以防止控制失效的发生。
2.为使开关能感应流量的变化,流向片不得与管道接触,也不得与管道中任何节流装置接触。
3.将流量开关拧入三通时,为防止开关损坏,不允许握住壳体进行安装,必须使用专供扳手使用的平面。
4.开关已出厂设定在约为最小流量值,不得调到低于出厂设定值,因为这有可能造成开关不能回复到“无液流”的位置。
电气安装、操作与使用1、电气安装警告:进行电气安装、接线、维修检查时须切断电源确保人生安全!注意:所有电气安装、接线须遵守国家和地区的电气施工规范。
1.1使用与杭州科灵斯壮空调水冷式冷水机组电源要求相吻合的供电电源。
主机电源为3Ф-380V-50Hz,控制回路为1Ф-220V-50Hz,采用三相五线制供电。
a.主机运转时,电压波动切勿超边额定电压的±10%;b.间电压之不平衡度不可以大于2%,以免造成三相电流不平衡、压缩机过热等不良现象。
│V-V│max为│V1-V│、│V2-V│、│V3-V│中的最大值。
1.2 机组必须可靠接地。
机组安装底脚及控制箱内的PE接地点同时接地,接地电阻小于4Ω。
1.3 现场使用的供电电源线必须使用铜芯导线。
控制线与电源线分开敷设并加合适的护管。
供电电源线需要考虑环境温度、穿管情况,并根据机组的最大运行电流确定其截面积(机组电控参数见表1)。
注:压缩机具有过载特性,注意额定功率与最大功率、额定电流与最大电流的区别。
1.4 以下元器件需用户或施工安装部门提供:a.保护功能齐全、整定合适的专用配电柜(箱)。
b.电力容量足够且符合要求的供电电源及截面积合适的电缆线与控制线。
c.与水泵容量匹配的操作控制柜(箱)。
1.5 以下是开机前必须进行的工作:a.根据表1的供电电源回路数选择合适的电源电缆,SL-160机组建议选用的铜芯聚氯乙烯电力电缆为1KV/3X150mm2,按附图Ⅰ图一进行电源线的连接,要求连接可靠。
b.根据附图Ⅰ图二将水泵开关控制柜(箱)与机组控制箱进行连接。
注意选用铜芯护套线并穿管。
机组提供冷媒水泵开/关的触点信号B1、B2,触点容量为200V/1A。
冷却水泵开/关的触点信号B3、B4,触点容量为200V/1A。
2、电气操作与使用注意:在正式操作前,请仔细阅读本使用说明及相关的随机资料,理解之后方可进行操作。
2.1 主要元器件符号说明如下,注意元器件参数在出厂时均已整定完毕,非特殊情况请勿改动。
-QF:自动空气断路器 -RT:温度传感器-KM:交流接触器 -FV:电源电压监视器-KA:小型中间继电器 -XT:接线端子-SP:高低压力继电器或油压继电器 -EH:压缩机油加热器-SL:水流量控制器-YV:供液电磁阀或能量调节电磁阀2.2 对于新调试或停机时间较长的机组,必须经过2.3~2.10的测量调试之后才可正式投入使用,而每天正常运行的机组则可省略2.3~2.10的操作。
2.3 认真检查所有电器元件有无损坏、有无凝露、有无过热或烧毁,所有接线是否可靠等,发现问题解决之后才能进行以下操作。
2.4 新机组或停用时间较长(≥2个月)的机组在开机前还需对所有的接线端子及接插件连接是否可靠进行检查,特别是主回路压缩机的接线作重点检查,发现问题排除之后才能开机。
2.5 接线检查完之后,用500V兆欧表对控制回路的绝缘电阻进行测量,要求主回路的绝缘电阻大于2MΩ,控制回路的绝缘电阻大于1MΩ,同时对测量时间、测量阻值、测量人进行详细的记录。
当发现低于上述数值时不准开机并及时通知科灵斯壮空调公司售后服务部。