2015建筑结构CAD作业及答案
- 格式:pdf
- 大小:159.76 KB
- 文档页数:9
2015建筑结构CAD作业及答案剖析一、作业要求1.完成所附CAD图纸中,按照图例和要求绘制荷载状态图和算力平衡图;2.在CAD中绘制出体系稳定的空间边框结构模型;3.在CAD中根据空间边框结构模型,对各构件进行节点编号并生成整体结构的节点坐标表;4.计算出荷载状态下结构体系中各构件的内力指标并绘制出内力图谱;5.利用Strand7或ANSYS等软件对所绘制模型进行建模、分析、优化并输出计算结果及分析报告。
二、绘制荷载状态图和算力平衡图我们首先需要了解CAD软件的基本操作,掌握如何在CAD软件中绘制图形,然后再根据要求绘制荷载状态图和算力平衡图。
绘制荷载状态图时,需要根据所提供的荷载情况绘制出各构件所受的荷载情况,包括受力方向、大小等。
绘制算力平衡图时,需要根据荷载状态图进行计算,绘制出各结构构件所受的内力大小和方向,包括拉力、压力、弯矩等。
绘制荷载状态图和算力平衡图是基本的结构分析步骤,通过这个步骤,我们能够了解到整个结构的受力情况和内力分布情况。
三、绘制出体系稳定的空间边框结构模型在完成荷载状态图和算力平衡图的绘制之后,接下来需要在CAD中绘制出体系稳定的空间边框结构模型。
这是整个结构分析的核心步骤。
空间边框结构模型是指通过简单的线条来模拟整个结构体系,包括支撑系统、各构件的连接方式等。
这个模型需要符合结构受力学的原理,能够模拟出整个结构所受的荷载分布和内力分布情况。
同时,这个模型需要满足空间稳定的要求,保证整个结构不会发生倾覆和失稳的情况。
绘制空间边框结构模型需要我们熟练掌握CAD的基本操作命令,包括直线、圆弧、立方体等三维图形的绘制和编辑,同时需要认真分析给出的结构荷载,在画图时考虑内外部荷载的分布情况。
四、节点编号及节点坐标表的生成在绘制出整个空间边框结构模型之后,就需要开始对结构进行节点编号和节点坐标表的生成。
这个步骤是结构计算分析的前提和基础,通过节点编号,我们可以清晰地知道每个节点与哪些构件相连,通过节点坐标表,我们可以建立完整的整体结构数学模型。
建筑结构与结构CAD (上)答案一、判断题(判断下列题目是否正确,如果正确请打“√”,错误请打“×” 每小题0分,共0分)1、活载的准永久值,可以认为经常持续作用在结构上的那部分活载值。
( )答案:X2、采用边长为100mm 的非标准立方体试块做抗压试验时,其抗压强度换算系数是0.95。
( )答案:√ 3、在适筋梁中提高混凝土强度等级对提高受弯构件正截面承载力的作用很大。
( )答案:×4、一矩形截面梁,mm mm h b 600250⨯=⨯,混凝土C20,钢筋Ⅱ级,控制截 面弯矩设计值m kN M ∙=298,已配筋6 25,此梁为超筋构件。
( )答案:×5、在弯矩作用下构件的破坏截面与构件的轴线垂直,即正交,故称其破坏为 正截面破坏。
( ) 答案:√6、单筋矩形截面受弯构件的最小配筋率0bh/A min s min=ρ。
( ) 答案:×7、持续作用的应力值与混凝土轴心抗压强度的比值大小将决定混凝土非线性徐变的大小。
( )答案:√8、由于梁上的最大剪力值发生在支座边缘处,则各排弯起筋的用量应按支座边缘处的剪力值计算。
( )答案:错 计算某排弯起筋用量时,取用的剪力设计值为:前排弯起筋受拉 弯起点处对应的剪力值。
9、箍筋不仅可以提高斜截面抗剪承载力,还可以约束混凝土,提高混凝土的抗压强度和延性,对抗震设计尤为重要。
( ) 答案:对10、为梁设计配筋时,若0250bhf .V c >,说明会发生斜压破坏,应采取的措施是:提高抗剪箍筋的用量 。
( )答案:错 应加大截面尺寸。
11、为了节约钢筋,跨中和支座负纵筋均可在不需要位置处截断。
( )答案:错 只允许截断支座处受力纵筋,跨中受力纵筋一般不允许截断,只能 弯起或伸入支座锚固。
12、受扭构件上的裂缝,在总体成螺旋形,但不是连续贯通的,而是断断续续的。
( )答案:√13、钢筋混凝土弯剪扭构件中,扭矩的存在对构件的抗剪承载力没有影响。
建筑工程CAD习题库+答案一、单选题(共100题,每题1分,共100分)1、基础埋深的最小深度为()A、0.8mB、0.6mC、0.5mD、0.3m正确答案:A2、平开木窗的窗扇是由()组成。
A、亮子.上冒头、下冒头、玻璃B、上.下冒头、窗芯、玻璃C、边框.五金零件、玻璃D、边框.上下框、玻璃正确答案:B3、楼梯的连续踏步阶数最多不超过多少级?()A、32B、18C、12D、28正确答案:B4、声场分存最不均匀的房间形状为()。
A、矩形B、扇形C、钟形D、圆形正确答案:D5、()的作用是将墙体、柱箍在一起,以加强厂房的整体刚度。
A、基础梁B、圈梁C、过梁D、连系梁正确答案:B6、建筑平面图的外部尺寸俗称外三道,其中最里面一道尺寸标注的是()。
A、房屋外墙门窗的大小及与轴线的平面关系B、房屋的开间.进深尺寸C、房屋内墙的厚度和内部门窗洞口尺寸D、房屋水平方向的总长.总宽正确答案:A7、横向定位轴线的编号采用()A、大写英文字母.从下向上依次注写;B、阿拉伯数字.从下向上依次注写;C、阿拉伯数字.从左向右依次注写;D、大写英文字母.从左向右依次注写。
正确答案:D8、梁板式梯段由哪两部分组成。
()A、栏杆.踏步板B、垫层.楼板C、平台.踏步板D、梯斜梁.踏步板正确答案:D9、根据受力状况的不同,现浇肋梁楼板可分为()。
A、单向板肋梁楼板.双向板肋梁楼板B、双向板肋梁楼板.三向板肋梁楼板C、单向板肋梁楼板.多向板肋梁楼板D、有梁楼板.无梁楼板正确答案:D10、保温屋顶为了防止保温材料受潮,应采取()措施。
A、加做水泥砂浆粉刷层B、用钢筋混凝土基层C、加大屋面斜度D、设隔蒸气层正确答案:D11、砖基础墙体的水平防潮层的位置应设在()A、垫层标高以下B、垫层高度范围内C、平齐或高于室内地面面层D、室内地面以下—0.06m正确答案:D12、()多用于中间有走廊或一侧有走廊的办公楼以及开间、进深变化较多的建筑。
2015全国CAD二级考试答案1. 题目:请简述CAD软件在工程图纸设计中的作用。
答案:CAD软件在工程图纸设计中的作用主要体现在以下几个方面:首先,CAD软件能够提高设计效率,通过参数化和模块化设计,设计师可以快速生成精确的图纸。
其次,CAD软件支持多用户协作,使得团队成员能够共享和编辑设计数据,从而提高团队协作效率。
此外,CAD软件还提供了丰富的绘图和修改工具,使得设计师能够轻松实现复杂的设计任务。
最后,CAD软件通常具备良好的兼容性,可以与其他工程软件无缝对接,方便数据的交换和共享。
2. 题目:描述CAD软件中图层管理的重要性。
答案:在CAD软件中,图层管理是至关重要的。
它允许设计师将不同类型的图形元素分配到不同的图层上,从而实现对图纸的有序组织。
通过图层管理,设计师可以轻松地控制图形的显示和打印,例如,可以隐藏或锁定不需要编辑的图层,以避免误操作。
此外,图层管理还有助于提高绘图效率,因为设计师可以针对特定图层进行操作,而不影响其他图层。
在团队协作中,合理的图层管理可以确保每个成员都能清晰地理解和编辑图纸,从而提高整体的设计质量。
3. 题目:解释CAD软件中尺寸标注的基本原则。
答案:在CAD软件中进行尺寸标注时,需要遵循以下基本原则:首先,尺寸标注应清晰、准确,确保所有必要的尺寸都能被正确显示,以便施工人员能够无误地理解和执行。
其次,尺寸标注应遵循一定的顺序,通常从左到右、从上到下进行,以便于阅读和理解。
此外,尺寸标注应避免重叠或交叉,以免造成混淆。
在标注复杂图形时,应使用合适的尺寸标注样式,如对齐标注、基线标注或连续标注等,以提高标注的可读性。
最后,尺寸标注应与图形的比例和单位保持一致,确保尺寸的准确性。
4. 题目:简述在CAD软件中使用块(Block)的优势。
答案:在CAD软件中使用块的优势主要体现在以下几个方面:首先,块可以提高绘图效率,通过创建可重复使用的图形元素,设计师可以避免重复绘制相同的图形,从而节省时间和劳动。
建筑结构CAD式题及答案《CAD试题院校__ _ 年级 _________ 专业___ ___层次姓名_______________ 分数_______________ 一、判断题(每小题1分,共10分)1(结构水平分体系和竖向分体系之间的关系是,竖向结构构件之间的距离越大,水平结构构件所需要的材料用量越多。
( )2( 《建筑结构荷载规范》中给出的荷载均为设计值,在进行承载力计算时可以直接采用。
( ) 3( 框架结构是指由梁、柱以刚接或铰接相连接而构成的承重结构体系。
( ) 4( 柱在荷载作用下既受压缩又受弯曲和剪切,在计算中必须同时考虑压缩和弯曲,剪切作用通常不予考虑。
( )5(由于柱主要受压,在设计时可以只考虑稳定而不必考虑附加偏心距。
( ) 6(结构物中荷载输入包含各房间的楼( 屋) 面荷载,结构中个节点荷载,各梁上、柱上荷载,还有承重墙体上的荷载。
( )7(TAT是多层及高层建筑结构空间分析程序,采用空间杆系计算柱、梁等杆件,采用薄壁柱计算剪力墙。
( )8(刚性指一物体能发生平移和转动,同时能发生弹性变形。
( )9( 无柱节点指指有两根以上梁相交而没有柱的交点。
( )10(特殊梁包括不调幅梁、连梁、托柱梁等,铰接梁不属于特殊梁。
( )二、填空题(每空 2 分,共30分) 1(建筑物是由许多结构构件组成的一个系统,其中主要的受力系统称为结构体系,结构体系有( ) 、基本竖向体系以及( ) 三部分组成。
2(抗震设计通过概念设计、( ) 及抗震构造设计三方面实现3(楼盖上的荷载分为恒荷载和( ) 两类; 《建筑结构荷载规范》中给出的荷载均为( ) ,在进行承载力计算时,需乘以相应的分项系数。
4( 宽度大于高度的梁称为扁梁,扁梁的宽高比不宜超过( ) 。
5(混凝土墙体一般应用于高层建筑结构,以承受墙体平面内的水平荷载为主,它分属两种结构体系:( ) 和剪力墙体系。
6(PK结构计算程序中的结构内力分析采用矩阵位移法,每一节点有水平位移、竖向位移和( ) 三个自由度。
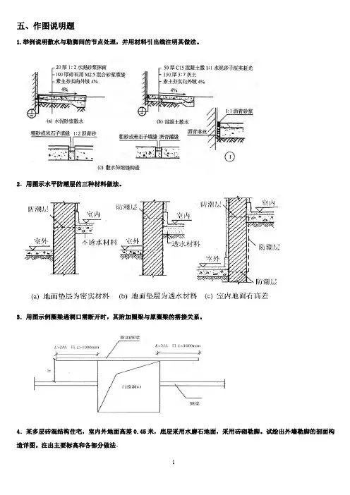
五、作图说明题
1.举例说明散水与勒脚间的节点处理,并用材料引出线注明其做法。
2.用图示水平防潮层的三种材料做法。
3.用图示例圈梁遇洞口需断开时,其附加圈梁与原圈梁的搭接关系。
4.某多层砖混结构住宅,室内外地面高差0.45米,底层采用水磨石地面,采用砖砌勒脚。
试绘出外墙勒脚的剖面构造详图。
注出主要标高和各部分做法。
5、用图示例梁板式雨蓬构造。
6、用剖面图表示板式楼梯和梁板式楼梯的基本组成。
7、图示卷材防水屋面高低跨处屋面伸缩缝及泛水构造。
8、绘图表示柔性防水平屋面女儿墙外排水的节点构造。
9、图示楼地层的构造。
10、图示变形缝的形式。
1.已知:某住宅双跑楼梯,层高3m。
室内地面标高为 0.000,室外设计地坪标高为-0.450,楼梯段净宽1.1m,楼梯间进深5.4m。
楼梯间墙厚240mm,忽略平台梁高度和楼板厚度。
现要求在一层平台下过人,请写出调整方法和具体步骤,并画出调整后的楼梯建筑剖面图,绘制到二层楼面高度即可,并标注尺寸和标高。
2.绘图说明外窗台的构造做法。
27.图示刚性防水屋面的构造层次,并配以文字说明。
丈夫志四方,有事先悬弧,焉能钧三江,终年守菰蒲。
——《顾炎武》建筑CAD 试题及答案1. (单选题) 在CAD 中当一对象从图形中被删除时,使用下述哪一个命令恢复该对象( )。
(本题3.0分)A、 ctrl+zB、 cancelC、 restoD、 replace标准答案:A2. (单选题) 在CAD中创建一个圆与已知圆同心,可以使用哪个修改命令( )。
(本题3.0分)A、 阵列B、 复制C、 偏移D、 镜相标准答案:C3. (单选题) AutoCAD 的英文全称是( )。
(本题3.0分)A、 AutomAtic Computer Aided DesignB、 Autodesk Computer Aided DesignC、 CAD2000D、 CAD2002标准答案:B人不知而不愠,不亦君子乎?——《论语》大丈夫处世,不能立功建业,几与草木同腐乎?——《罗贯中》4. (单选题) 在CAD中SAVE命令可以( )。
(本题3.0分)A、 保存图形B、 会退出AutocadC、 定期地将信息保存在磁盘上D、 以上都是标准答案:A5. (单选题) 在CAD中如果可见的栅格间距设置得太小, AutoCAD将出现如下提示( )。
(本题3.0分)A、 不接受命令B、 “栅格太密无法显示”信息C、 产生错误显示D、 自动调整栅格尺寸使其显示出来标准答案:B6. (单选题) 在CAD中如果执行了缩放命令的“全部”选项后,图形在屏幕上变成很小的一个部分,则可能出现的问题是( )。
(本题3.0分)A、 溢出计算机内存B、 将图形对象放置在错误的位置上C、 栅格和捕捉设置错误D、 图形界限比当前图形对象范围大标准答案:D解析:常将有日思无日,莫待无时思有时。
——《增广贤文》勿以恶小而为之,勿以善小而不为。
——刘备7. (单选题) 在CAD 中图层上对象不可以被编辑或删除,但在屏幕上还是可见的,而且可以被捕捉到则该图层被( )。
三、简答题答:1)满足建筑使用功能的要求;2)确保结构安全;3)适应建筑工业化和建筑施工的需要;4)注重社会、经济和环境效益;5)注重美观。
答:建筑剖面图是用一假想的垂直剖切面将房屋剖开,移去观察与剖切平面之间的房屋部分,作出剩余部分的房屋的正投影图,简称剖面图。
建筑剖面图主要表示房屋的内部结构、分层情况、各层高度、楼面和地面的构造以及各配件在垂直方向上的相互关系等内容。
在施工中,可作为进行分层、砌筑内墙、铺设楼板和屋面板以及内装修等工作的依据,是与平、立面图相互配合的不可缺少的重要图样之一。
答:特级:1)列为国家重点项目或以国际性活动为主的特高级大型公共建筑;2)有全国性历史意义或技术要求特别复杂的中小型公共建筑;3)30层以上建筑;4)高大空间有声、光等特殊要求的建筑物。
一级:1)高级大型公共建筑;2)有地区性历史意义或技术要求复杂的中、小型公共建筑;3)16层以上、29层以下或超过50m高的公共建筑。
答:1)色彩处理要注意统一与变化,并掌握好尺度。
2)色彩运用应符合建筑性格。
3)色彩运用要与环境有机结合,既要与周围相邻建筑、环境气氛相协调,又要适应各地的气候条件与文化背景。
答:1)地基应具有足够的承载能力和均匀程度。
2)基础应具有足够的强度和耐久性。
3)经济技术要求。
四、构造图示题答:答:三、简答题答:①所选用的保温材料在正常使用条件下,不会有较大的变形损坏,以保证保温效果和使用寿命。
②在相同保温效果的前提下,导热系数小的材料其保温层厚度和保温结构所占的空间就更小。
但在高温状态下,不要选用密度太小的保温材料,因为此时这种保温材料的导热系数可能会很大。
③保温材料要有良好的化学稳定性,在有强腐蚀性介质的环境中,要求保温材料不会与这些腐蚀性介质发生化学反应。
④保温材料的机械强度要与使用环境相适应。
⑤保温材料的寿命要与被保温主体的正常维修期基本相适应。
⑥保温材料应选择吸水率小的材料。
⑦按照防火的要求,保温材料应选用不燃或难燃的材料。
下面哪一项不可以被分解:A. 关联尺寸B。
多线段C。
块参照D. 用MINSERT命令插入的块参照得分:0知识点:建筑CAD作业题收起解析。
答案D。
解析.。
2.(4分)在AUTOCAD中给一个对象指定颜色的方法有很多,下列说法不正确的是?A. 直接指定颜色特性B. 随层“ByLayer”C. 随块“ByBlock”D。
随机颜色得分:0知识点:建筑CAD作业题收起解析.答案D.。
.3。
(4分)取消命令执行的键是:A。
按ESC键B. 按鼠标右键C. 按ENTER键D。
按FI键得分:0知识点:建筑CAD作业题收起解析。
B。
解析.。
4。
(4分)下面哪个命令用于测量并标注被测对象之间的夹角:A。
DIMANGULARB. ANGULARC。
QUIMD。
DIMRADIUS得分: 0知识点:建筑CAD作业题收起解析。
答案A。
解析。
.5。
(4分)()是AutoCAD中另一种辅助绘图命令,它是一条没有端点而无限延伸的线,它经常用于建筑设计和机械设计的绘图辅助工作中.A. 样条曲线B。
射线C。
多线D。
构造线得分:0知识点:建筑CAD作业题收起解析。
答案D。
解析.。
6。
(4分)下面哪种可以作为过滤器条件?A。
绿色B。
颜色C. 随块D. 随层得分:0知识点:建筑CAD作业题收起解析.答案B.解析。
7.(4分)()命令用于创建平行于所选对象或平行于两尺寸界线源点连线的直线型尺寸。
A. 线性标注B. 连续标注C。
快速标注D。
对齐标注得分: 0知识点:建筑CAD作业题收起解析。
答案D.解析。
.8。
(4分)可以利用以下那种方法来调用命令:A. 选择下拉菜单中的菜单项B。
单击工具栏上的按钮C。
在命令状态行输入命令D. 三者均可得分:0知识点: 建筑CAD作业题收起解析。
答案D.解析..9.(4分)AutoCAD图形文件和样板文件的扩展名分别是:A。
DWT,DWGB。
DWG,DWTC。
BMP,BAKD。
BAK,BMP得分:0知识点: 建筑CAD作业题收起解析。
建筑结构CAD1次作业1、优化方法软件包主要包括哪两方面的内容?答:优化方法软件包主要包括两方面的内容:一是针对实际问题如何建立最优化问题的数学模型,二是如何选择最优方法利用计算机对该问题求解。
2、计算机辅助设计系统有哪些特点?答:(1)能够切实可行地解决具体工程问题,给出直接用于设计的最终结果;(2)符合有关规范、标准和工程设计中的习惯;(3)充分利用计算机辅助设计系统的软件资源,(4)具有较好的设备无关性和数据存储无关性,便于运行于各类硬件环境以及与不同软件的连接;(5)使用方便,具有良好的人机交互界面;具有较高的效率;(6)运行可靠,维护简单,便于扩充,具有良好的再开发性。
3.用户可通过哪些方式来退出AutoCAD?答:(1)直接单击AutoCAD主窗口右上交的【×】按钮;(2)选择菜单【文件(File)】--【退出(Exit)】;(3)在命令行中输入:quit(或别名exit)如果在退出AutoCAD时,当前的图形文件没有被保存,则系统将弹出提示对话框,提示用户在退出CAD前保存或放弃保存图形。
1.计算机按照其发展进程可以分为哪几个阶段?答:第一代计算机(1946—1958):以电子管为逻辑元件,开始出现汇编语言,主要用于科学和工程计算,运算速度达几万次/s。
第二代计算机(1958—1964):以晶体管为逻辑元件,开始出现高级语言和操作系统,并开始用于事务处理和过程控制,运算速度达几百万次/s。
第三代计算机(1964一1971);以集成电路为逻辑元件,出现半导体存储器,操作系统得到迅速发展和普及,出现了多种高级语言,广泛用于工业控制、数据处理和科学计算等各个领域,运算速度达几千万次/s。
第四代计算机(1971—1980):以大规模集成电路为逻辑元件和内存储器。
由于运算器和控制器可以做在一块半导体芯片上,这就出现了微处理器(CPU)以及以它为核心构成的微型计算机,其运算速度达几亿次/s。
用于打开或关闭正交状态的标准功能键是( )。
.F8B.F4C.F6D.F2回答正确!正确答案: AAutoCAD 图形文件的后缀名为( )。
收藏.dwgB.dxfC.dwsD.dwt回答正确!正确答案: AA1 图纸的图幅尺寸为( )。
收藏A.1189mm×841mmB.420mm×297mmC.594mm×420mmD.841mm×594mm回答错误!正确答案: DAutoCAD 2008 提供的布尔运算操作中不包括( )。
收藏A. A A差运算B.并运算C.补运算D.交运算回答错误!正确答案:C在与建筑物立面平行的投影面上投影所得的正投影图是( )。
收藏A.建筑总平面图B.建筑平面图C.建筑剖面图D.建筑立面图回答错误!正确答案:D包含在图形中但并不指定给任何对象的材质称为( )。
收藏A.真实材质B.未附着材质C.普通材质D.高级材质回答错误!正确答案:B启用“对象捕捉”的标准功能键是( )。
收藏A.F5B.F7C.F3D.F9回答错误!正确答案:C当材质的反射率设为( )时,表示材质完全反射。
收藏A.30B.100C.D.50回答错误!正确答案:B世界上第一台电子计算机诞生于20世纪( )年代。
收藏A.70B.60C.40D.50回答错误!正确答案: C用于打开或关闭帮助文件的标准功能键是( )。
收藏A.F3B.F5C.F7D.F1回答错误!正确答案: D当某一图层处于( )状态时,该图层上的对象不可被编辑。
收藏. 锁定B.解锁C.打开D.关闭回答正确!正确答案: A创建单行文字时,可通过输入文字控制符( )来得到正负符号“±”。
收藏. %%pA AB.%%cC.%%gD.%%d回答正确!正确答案:A结构施工图中的钢筋线应使用( )绘制。
A.粗点划线B.粗双点划线C.粗虚线D.粗实线回答错误!正确答案:D在AutoCAD2008的“标注样式管理器”中,“测量单位比例”应在( )内进行设置。
1:[论述题]CAD技术与传统手工设计相比,有哪些优势?参考答案:CAD技术运用于工程设计有着传统手工设计无法比拟的优越性,它能降低劳动强度,提高设计质量,缩短设计周期。
有效避免手工设计中存在的"错、碰、漏、缺”现象。
采用CAD技术能方便实现项目投标、方案优化、数值计算、施工图设计绘制、工程造价预算等一系列服务,从而降低工程造价、节省投资、提高设计质量、提高生产效益。
2:[论述题]名词解释:协同技术参考答案:是指在集成的基础上,在网络技术的支持下,实现并行工程处理作业。
以工程项目为核心,使不同地点的设计专业群体能及时地共享图形库、数据库、材料库及一切上网资源。
3:[论述题]名词解释CAD技术参考答案:主要是用计算机及其图形输入/输出外围设备帮助设计人员进行工程和产品设计的技术,它的发展与计算机硬件及其软件的发展和完善是紧密相关的。
1:[论述题]优化方法软件包主要包括哪两方面的内容?参考答案:优化方法软件包主要包括两方面的内容:一是针对实际问题如何建立最优化问题的数学模型,二是如何选择最优方法利用计算机对该问题求解。
2:[论述题]CAD支撑软件需要包括哪些方面的内容?参考答案:CAD支撑软件需要包括以下几方面的内容:1)基本图形元素生成程序;2)图形编辑功能程序;3)用户接口;4)三维几何造型系统;5)数据库及其管理系统;6)汉字处理系统;7)网络通讯系统。
3:[填空题]参考答案:科学计算类支撑系统图形支撑系统数据库管理系统4:[填空题]参考答案:线架模型表面模型实体模型5:[填空题]参考答案:前处理计算后处理1:[论述题]AutoCAD有哪些选择模式?参考答案:“Window s(窗口)”模式:在该模式下,用户可使用光标在屏幕上指定两个点来定义一个矩形窗口。
如果某些可见对象完全包含在该窗口之中,则这些对象将被选中。
“Last(上一个)”:选择最近一次创建的可见对象。
“Crossing(窗交)”:与“Window”模式类似,该模式同样需要用户在屏幕上指定两个点来定义一个矩形窗口。
15春西南交《建筑工程CAD》在线作业一答案
西南交《建筑工程CAD》在线作业一
一、单选题(共15 道试题,共60 分。
)
1. 荷载输入中,所输的荷载值为( )
A. 恒、活载均为标准值
B. 恒载为设计值、活载为标准值
C. 恒载为标准值、活载为设计值
D. 恒、活载均为设计值
正确答案:A
2. 程序仅对底部框架-抗震墙的下列构造要求进行了校验( )
A. 结构总层数和总高度的限制
B. 底部抗震墙最少数量和最大间距要求
C. 抗震墙最小厚度
D. 框架柱、抗震墙和托墙梁的混凝土强度等级
正确答案:A
3. PKPM 系列中三维空间杆系薄壁柱计算程序是( )
A. PMCAD
B. TAT
C. SATWE
D. PK
正确答案:B
4. 板筋计算中,对一级钢筋强度设计值取( )
A. 210N/mm2
B. 300N/mm2
C. 360N/mm2
D. 400N/mm2
正确答案:A
5. PMCAD建模生成的总信息和当前层信息文件是( )
A. *.JWN
B. *.JAN
C. *.PM
D. *.B
正确答案:A
6. PK对复杂框架的处理,以下说法不正确的是( )
A. 柱和梁有变截面时,变截面处增加一个PK节点
B. 带斜撑的结构在框架生成时作为斜柱考虑
C. 不能生成基础在不同层高位置的框架。
[0753]《建筑结构CAD chi建筑结构CAD应用概况和发展[判断题]目前前处理广泛采用人机图形交互输入数据,后处理可将计算设计结果以图形方式输出(如变形图、内力图、振型图等),直至自动生成完整的施工图参考答案:正确[判断题]CAD技术能完全取代人脑,运用于工程设计并能杜绝设计事故的发生。
参考答案:错误[多选题]自20世纪60年代末期开始,我国最早在()行业开始了对CAD技术的研究和开发工作。
A:航空B:造船C:石油D:汽车参考答案:ABD[多选题]CAD技术的未来发展方向是()。
A:集成化B:规模化C:协同化D:智能化参考答案:ACD[论述题]CAD技术与传统手工设计相比,有哪些优势?参考答案:CAD S术运用于工程设计有着传统手工设计无法比拟的优越性,它能降低劳动强度,提高设计质量,缩短设计周期。
有效避免手工设计中存在的”错、碰、漏、缺”现象。
采用CAD S术能方便实现项目投标、方案优化、数值计算、施工图设计绘制、工程造价预算等一系列服务,从而降低工程造价、节省投资、提高设计质量、提高生产效益。
[论述题]CAD S术发展可以分成哪四个阶段?参考答案:(I )第一阶段,20世纪60年代初期〜60年代末期。
这个阶段的CAD系统以使用大型通用机(晶体管电路为主)和刷新式图形显示器为基本标志;这个时期的CAD系统价格昂贵,性能简单,全世界只有少数大企业研制或拥有大约200套CAD系统,主要应用于航空和汽车制造业。
(I)第一阶段,20世纪60年代初期〜60年代末期。
这个阶段的CAD系统以使用大型通用机(晶体管电路为主)和刷新式图形显示器为基本标志;这个时期的CAD系统价格昂贵,性能简单,全世界只有少数大企业研制或拥有大约200套CAD系统,主要应用于航空和汽车制造业。
(2)第二阶段,20世纪60年代末期〜70年代末期。
60年代末,美国DEC公司开始生产出价格相当低廉的小型机。
同时价格更加便宜的存储管式显示器也得到应用,光笔、图形输入板等各种形式的图形输入设备也投入应用。
建筑结构形考作业答案(仅供参考)[1]2-标准化文件发布号:(9456-EUATWK-MWUB-WUNN-INNUL-DDQTY-KII《建筑结构》形考作业答案(仅供参考)作业1一、填空题:1.屈服强度2.混凝土 N/mm23.承载能力正常使用4.除以5.纵向受力钢筋混凝土6.带裂缝破坏7.适筋延性 8.剪跨比配箍率 9.剪压10.翼缘内梁肋内二、选择题:1-5:DABAC 6-10:CDBAA三、简答题:1.答:(1)较高的强度和适宜的屈强比;(2)较好的塑性;(3)可焊性;(4)低温性能;(5)与混凝土要有良好的粘结力。
2.答:对于永久荷载,规定以其标准值作为代表值;对于可变荷载,则以其标准值、组合值、准永久值及频遇值作为代表值。
3.答:(1)适筋梁:先是受拉钢筋屈服后产生很大塑性变形,使裂缝急剧开展和挠度急剧增大,给人明显的破坏预兆。
然后是受压区混凝土压碎。
属于延性破坏。
(2)超筋梁:破坏时钢筋的应力还未达到屈服强度,因而裂缝宽度均较小,且形成一根开展宽度较大的主裂缝,梁的挠度也较小。
这种单纯由混凝土被压碎而引起的破坏,没有明显的预兆,属于脆性破坏。
(3)少筋梁:梁破坏时,裂缝往往集中出现一条,不但开展宽度大,而且沿梁高延伸较高,一旦出现裂缝则迅速开展构件严重向下挠曲,最后因裂缝过宽,变形过大而丧失承载力,甚至被折断,没有明显预兆,属于脆性破坏。
四、计算题:22122001min min 1.11.9/, 1.27/360/,0.518,942(1)3550035465942360(2)142.50.518465240.911.92000.45/0.45 1.27/3600.16%0.2%,0.2%0.c t y b s s yb c t y s f N mm f N mm f N mm A mm h h mm mmA f x mm h mm f b f f A αξξαρ======-=-=⨯===<=⨯=⨯=⨯=<==解:取22062%20050002009423(/2)360942(465142.5/2)133.5310133.53120,s u y s mm A mm M f A h x N mm kN m kN m ⨯⨯=<==-=⨯⨯-=⨯⋅=⋅>⋅满足要求。
建筑工程CAD-A第一次作业一、单项选择题(只有一个选项正确,共10道小题)1. PMCAD不可以自动计算的荷载是()(A) 主、次梁自重(B) 承重墙的自重(C) 填充墙的自重(D) 楼板的自重正确答案:C2. 对于弧形次梁,建模时()(A) 只能按主梁输入(B) 只能按次梁输入(C) 既能按主梁、又能按次梁输入(D) 无法输入正确答案:A3. PKPM 系列中可用计算设置芯柱的小型混凝土空心砌块房屋的软件是()(A) PMCAD(B) GJ(C) QIK(D) JLQ正确答案:C4. PKPM 系列中空间有限元壳元计算程序是()(A) PMCAD(B) TAT(C) SATWE(D) PK正确答案:C5. PKPM 系列中三维空间杆系薄壁柱计算程序是()(A) PMCAD(B) TAT(C) SATWE(D) PK正确答案:B6. PMCAD中,作为输入楼面上的次梁、预制板、洞口和导荷的基本单元是()(A) 洞口(B) 柱(C) 房间(D) 主梁正确答案:C7. PMCAD建模中输入的尺寸单位全部是()(A) m(B) cm(C) mm(D) inch正确答案:C8. 用于功能转换,在绘图时为输入参考点的功能键是()(A) [Ctrl](B) [Enter](C) [Tab](D) [Esc]正确答案:C9. PMCAD系统配置文件是()(A) WORK.MNU(B) WORK.DGM(C) WORK.ALI(D) WORK.CFG正确答案:D10. 构件定义中,混凝土材料的类型号为()(A) 4(B) 5(C) 6(D) 7正确答案:C二、判断题(判断正误,共10道小题)11.不同的工程可以在同一个工作子目录下运行。
( )正确答案:说法错误12.建模时,两节点之间最多安置一个洞口。
( )正确答案:说法正确13.在“正交轴网”中,定义开间是输入竖向从下到上各跨跨度。
( )正确答案:说法错误14.在“正交轴网”中,定义进深是输入横向从左到右连续各跨跨度。
[0753]《建筑结构CAD》作业答案学年学季:20172单项选择题1、有限元分析软件一般分为前处理、( B )及后处理三部分。
A. 划分网格B.计算C.选取单元D.施加约束2、砌体结构加固后楼层综合抗震能力指数不应小于1.0,且不宜超过下一楼层综合抗震能力指数的( B )。
A. 15%B.20%C.10%D.25%3、对安全等级为—级或设计使用年限为100年及以上的结构,不应小于( D )。
A. 0.8B.0.9C. 1.0D.1.14、( A )类建筑第一级鉴定即抗震措施鉴定即便满足标准的各项要求,仍应进行第二级鉴定,即抗震承载力验算。
A.BB. AC. CD. D5、计算中允许采用的地基模型为:( A )、分层总和法模型。
A.文克尔模型B.默克尔模型C.文莱尔模型D.敦刻尔模型6、PKPM程序能计算的筏基包括( A )筏基和梁板式筏基。
A.平板式B.曲梁式C.直梁式D.曲板式7、从系统结构上看,计算机辅助设计系统过去大致可分为三大类,即( B )A.分布式系统、集中式系统和工作站网络系统B.单机式系统、集中式系统和工作站网络系统C.单机式系统、分布式系统和工作站网络系统D.单机式系统、集中式系统和分布式网络系统8、旋转楼梯模块内力计算时将螺旋梯板简化为( A )。
A. 空间曲杆B.空间曲梁C.空间曲拱D.空间曲板9、置换混凝土法就是指用高等级的混凝土置换掉原来低等级的混凝土或已经疏松的混凝土部分,适用于梁( B )混凝土强度偏低或有严重缺陷的局部加固。
A.受剪区B.受压区C.受弯区D.受拉区10、建筑结构计算机辅助设计系统的支撑软件主要包括科学计算类支撑系统、( C )和数据库管理系统,它们是计算机辅助设计的核心技术。
A.网络支持系统B.音频处理系统C.图形支撑系统D.视频处理系统11、当最弱楼层综合抗震能力指数大于等于( C )时,可评定为满足抗震鉴定要求。
A.0.5B.2.0C.1.0D.1.512、对安全等级为三级或设计使用年限为50年以下的结构,重要系数不应小于( D )。
建筑结构CAD1次作业1、优化方法软件包主要包括哪两方面的内容?答:优化方法软件包主要包括两方面的内容:一是针对实际问题如何建立最优化问题的数学模型,二是如何选择最优方法利用计算机对该问题求解。
2、计算机辅助设计系统有哪些特点?答:(1)能够切实可行地解决具体工程问题,给出直接用于设计的最终结果;(2)符合有关规范、标准和工程设计中的习惯;(3)充分利用计算机辅助设计系统的软件资源,(4)具有较好的设备无关性和数据存储无关性,便于运行于各类硬件环境以及与不同软件的连接;(5)使用方便,具有良好的人机交互界面;具有较高的效率;(6)运行可靠,维护简单,便于扩充,具有良好的再开发性。
3.用户可通过哪些方式来退出AutoCAD?答:(1)直接单击AutoCAD主窗口右上交的【×】按钮;(2)选择菜单【文件(File)】--【退出(Exit)】;(3)在命令行中输入:quit(或别名exit)如果在退出AutoCAD时,当前的图形文件没有被保存,则系统将弹出提示对话框,提示用户在退出CAD前保存或放弃保存图形。
1.计算机按照其发展进程可以分为哪几个阶段?答:第一代计算机(1946—1958):以电子管为逻辑元件,开始出现汇编语言,主要用于科学和工程计算,运算速度达几万次/s。
第二代计算机(1958—1964):以晶体管为逻辑元件,开始出现高级语言和操作系统,并开始用于事务处理和过程控制,运算速度达几百万次/s。
第三代计算机(1964一1971);以集成电路为逻辑元件,出现半导体存储器,操作系统得到迅速发展和普及,出现了多种高级语言,广泛用于工业控制、数据处理和科学计算等各个领域,运算速度达几千万次/s。
第四代计算机(1971—1980):以大规模集成电路为逻辑元件和内存储器。
由于运算器和控制器可以做在一块半导体芯片上,这就出现了微处理器(CPU)以及以它为核心构成的微型计算机,其运算速度达几亿次/s。
第五代计算机(1980一):采用超大规模集成电路为逻辑元件和内存储器,其运算速度达几十亿次/B。
真正的第五代计算机将像人一样能听、能看、能说、能思考,即是智能化的计算机。
2.在CAD系统中用到的专用语言有哪些?答:四种语言(1)LISP语言:这是一种函数型表处理语言,适用于字符、符号的处理。
在AutoCAD图形系统中常用内嵌的AutoLISP语言进行二次开发。
(2)PROLOG语言;这是一种专用图形语言,适宜于描述逻辑推理过程。
(3)APT语言:这是一种专用图形语言,适宜于对各种图形进行描述及处理。
(4)DDL与DML语言:它们是数据描述与数据操作专用语言,在数据库系统中常用它们来描述数据结构,及对数据库进行存取数据的处理。
3.CAD支撑软件需要包括哪些方面的内容?答:CAD支撑软件需要包括以下几方面的内容:(1)基本图形元素生成程序;(2)图形编辑功能程序;(3)用户接口;(4)三维几何造型系统;(5)数据库及其管理系统;(6)汉字处理系统;(7)网络通讯系统。
1.MIT的研究人员在20世纪50年代提出的CAD技术的三个研究目标是什么?答:(1)实现人机的交互式对话;(2)以图形为媒介实现人机对话;(3)实现计算机辅助模拟。
2.CAD技术发展可以分成哪四个阶段?答:第一阶段,20世纪60年代初期~60年代末期。
这个阶段的CAD系统以使用大型通用机(晶体管电路为主)和刷新式图形显示器为基本标志;这个时期的CAD系统价格昂贵,性能简单,全世界只有少数大企业研制或拥有大约200套CAD系统,主要应用于航空和汽车制造业。
第二阶段,20世纪60年代末期~70年代末期。
60年代末,美国DEC公司开始生产出价格相当低廉的小型机。
同时价格更加便宜的存储管式显示器也得到应用,光笔、图形输入板等各种形式的图形输入设备也投入应用。
使得CAD系统的价格大幅度下降,促使CAD技术有可能得到快速发展和推广。
这个时期开发出的CAD系统在微电子行业中集成电路和印刷电路板设计中得到广泛应用。
随着计算机绘图技术实用化,图形数据库得到开发,此时商品化CAD 系统在中小企业中开始应用和推广。
第三阶段,20世纪80年代初期~90年代初期。
在此时期出现了廉价的固体电路随机存储器,产生逼真图形的光栅扫描显示器、鼠标器、静电式绘图仪,伴随着超大规模集成电路技术的进步,微型机、超级微型机和图形工作站得到普及应用。
商品化图形系统也获得迅速发展,使CAD技术从发达国家向发展中国家扩展,从用于产品设计发展到用于工程设计,标志着CAD技术进入了实用期,但是,到了这一程度也只能称得上是充分利用了计算机辅助绘图。
对于达到MIT听提出的第三个目标,即真正实现计算机辅助模拟,模拟人在以往的产品或工程设计的整个过程的所有工作,仍然是一项长期而艰巨的任务,有许多技术困难需要深入研究和加以解决.第四阶段,即从20世纪90年代中期至今。
当前计算机技术正以前所未有的速度飞跃发展,以Intel公司芯片技术为代表的硬件**,为CAD技术的创新提供了更加强大的实现手段。
计算机辅助设计作为一顶多学科交叉、渗透的高科技发展产物,目前正向着集成化、协同化、智能化的方向发展,在新世纪里必将产生巨大的变革。
3.CAD技术与传统手工设计相比,有哪些优势?答:CAD技术运用于工程设计有着传统手工设计无法比拟的优越性,它能降低劳动强度,提高设计质量,缩短设计周期。
有效避免手工设计中存在的"错、碰、漏、缺”现象。
采用CAD 技术能方便实现项目投标、方案优化、数值计算、施工图设计绘制、工程造价预算等一系列服务,从而降低工程造价、节省投资、提高设计质量、提高生产效益。
2次作业1、程序提供给计算人员哪些方式进行干预梁柱钢筋直径与根数的选配?答:(1)图形交互式修改。
显示施工图前,把程序选配的钢筋以图形的形式显示在屏幕上,每根柱梁钢筋的根数和直径或箍筋的直径和级别均显示在各杆件旁边,用户可在中文提示下用光标指示修改任一钢筋的配置。
(2)输入实际配筋面积与结构计算结果配筋面积的比例。
这是计算人员将计算结果放大,加进自已的保险系数和控制柱梁之间的配筋比例的一种手段。
该比例分为柱钢筋放大系数,梁下部钢筋放大系数,梁上部钢筋放大系数三种,该比例可以统一为全框架一个值,也可对每根柱梁分别输入。
2.梁的归并应该遵循哪些原则?(1)几何条件(包括跨数、跨度、截面形状与大小)相同。
(2)钢筋等级相同。
(3)满足用户给出的钢筋归并系数b10并取b11=b10,b12=1—b10。
3.层间刚度比计算中提供了几种方法?答:层间刚度比计算中提供三种选项,分别是"剪切刚度”"剪弯刚度”和"地震剪力与地震层间位移的比值”。
"剪切刚度”按《高层建筑混凝土结构技术规程》给出的方法计算。
"剪弯刚度”按有限元方法计算。
"地震剪力与地震层间位移的比值”按《建筑结构抗震规范》给出的方法计算,三种方法可能给出差别较大的刚度比结果,用户应根据实际工程做出选择。
1、简述工程拼装的操作步骤?答:(1)调入工程名,如按【Tab】则可调入本工程的层作拼装。
(2)选择要拼装的标准层。
(3)选择是全层拼装还是局部拼装,如为局部拼装则挑选要拼装的部分。
(4)提示是否移动(若非本工程则无此选择),回车为移动方式,不移动则拼装内容坐标保持不变被拷贝到当的层。
需要移动则需输入基准点、旋转角度、插入点,进行拷贝内容的准确定位。
2.柱的计算长度是如何选取的?答:柱的计算长度按现浇楼盖取值,底层框架柱取l,其余层取1.25,对顶层边柱若与之相连的是铰接梁则按1.5取值。
若实际结构不同时,可在PK数据文件中修改。
3、工程量是如何计算的?答:工程量的计算方法如下:柱:横截面面积×层高;梁:横截面面积×柱间梁的净长度;次梁:横截面面积(未扣除楼板厚度)×跨度;楼板:(房间四周轴线围成的面积一洞口面积)×该房间楼板厚度;墙:(房间墙净面积一本层所有门窗洞口面积)×墙厚。
1、PMCAD软件有哪些基本功能?答:1)人机交互建立全楼结构模型。
2)自动导算荷载建立荷载库。
3)为各种计算模型提供所需数据文件。
4)为上部结构的各种绘图CAD模块提供结构构件的精确尺寸主要包括各种构件的几何尺寸、平面定位,等等。
5)为基础设计CAD模块提供数据。
6)现浇钢筋混凝土楼板结构计算与配筋设计。
7)结构平面施工图辅助设计。
8)砖混结构圈梁布置,画砖混圈梁大样及构造柱大样图。
圈梁及构造柱大样由软件自动生成并进行分类归并,可考虑现浇楼板、预制楼板以及各种非正交的节点大样。
9)砌体结构和底层框架上部砖房的抗震计算及受压、高厚比、局部承压计算。
10)统计结构工程量。
2.程序如何完成对建筑结构的整体描述?答:程序对于建筑物的描述是通过建立其定位轴线,相互交织形成网格和节点,再在网格和节点上布置构件形成标准层的平面布局,各标准层配以不同的层高、荷载而形成建筑物的竖向结构布局,完成建筑结构的整体描述。
3、PMCAD系统的数据主要有哪两类?答:PMCAD系统的数据主要有两类:其一是几何数据,对于斜交平面或不规则平面,描述几何数据是十分繁重的工作,为此本程序提供了一套可以精确定位的做图工具和多种直观便捷的布置方法;其二是数字信息,PMCAD大量采用提供常用参考值隐含列表方式,允许用户进行选择、修改,使数值输入的效率大大提高。
3次作业1.PK软件的适用范围?答:PK软件是针对平面杆系结构开发的,因此软件所能计算的结构形式为平面杆系的框架、复式框架、排架、框排架(某几个跨上或某些层上作用有吊车荷载的多层框架)、剪力墙、壁式框架、连续梁、拱型结构、内框架、桁架等.2.柱箍筋有哪些形式?答:(a)菱形箍;(b)井字箍;(c)矩形箍;(d)拉结箍筋;(e)菱井复合箍。
3.对于楼板,SATWE给出了哪些简化假定?答:楼板整体平面内无限刚性、分块无限刚性、分块无限刚性带弹性连接板带和弹性楼板。
1、楼板钢筋的画法按菜单分为几类?答:第一类是菜单(2)、(3)、(4)方式,板底钢筋的长段决定于由主梁、墙围成的矩形房间的宽或高。
第二类菜单(6)通长配筋方式,它需由用户指定一种钢筋所画的范围,板底筋的长度就是该范围的长度,该范围内的支座筋成批一次画出,另外,这种画法可按用户的意愿画出非矩形房间钢筋。
以上两类画法标注的钢筋级配及支座长短均是由程序计算出的(或者已经过前面一步的交互修改)。
第三类是菜单(5)任意配筋方式,它是由人工指定钢筋级配及支座筋的长度,也可用来修改已布好的钢筋。
2、简述冷轧带助钢筋的选用方法?答:将钢筋级别选项中调整成仅直径≥12mm,使用二级钢筋,并将钢筋强度选项中一级钢筋的强度值改为相应的冷轧带肋钢筋的强度值。