加工中心训练图纸高级
- 格式:doc
- 大小:301.00 KB
- 文档页数:11
数控车工高级工练习图纸9.1数控车削(高级)技能实训示例练习一一、实训目的(1) 能根据零件图的要求,合理编制加工程序。
(2) 保证零件的加工精度及表面粗糙度。
(3) 培养学生综合应用的思考能力。
二、加工操作步骤参见GJLX一01图,加工该零件时一般先加工零件左端,然后调头加工零件右端。
加工零件左端时,编程零点设置在零件左端面的轴心线上。
加工零件右端时,编程零点设置在零件右端面的轴心线上。
1( 零件左端加工步骤(1) 夹零件毛坯,伸出卡盘长度50mm。
(2) 钻孔(Φ20 X 29mm)。
(3) 车端面。
(4) 粗、精加工零件左端轮廓至尺寸要求。
(5) 粗加工内孔。
(6) 精加工内孔至尺寸要求。
(7) 回参考点,程序结束。
2( 零件右端面加工步骤(1) 夹Φ40外圆。
(2) 车端面保证零件总长。
(3) 粗加工零件右端轮廓。
(4) 精加工零件右端轮廓至尺寸要求。
(5) 切槽5 X 1.5至尺寸要求。
(6) 粗、精加工螺纹至尺寸要求。
(7) 回换刀点,程序结束。
三、注意事项(1) 工作需调头加工,注意工件的装夹部位和程序零点设置的位置。
(2) 合理选择刀具、切削用量,提高零件加工质量。
(3) 注意圆弧坐标点的计算。
五、加工参考程序O0001 (零件左端) N05T0101 M03 S600 G0 X100 Z100 (主轴正转、换1号刀) N10 G0X52 Z0N15 G1 X-1 F0.2 (车端面) N20 G0X100 Z100N25 T0505N30 G0 X19 Z2 (循环起点)N40 G71 P45 Q80 N35 G71 U1 R1 (U-0.5 W0.1 F0.3 N45 G0 X32 N50 G1 Z0 F0.1 N55 X30 Z-1 N60 Z-9 N65 X26 Z-16 N70 Z-24N75 X20N80 Z-29N85 G0 X100 Z100 (返回换刀点) N90M05N95 M00 (暂停、测量、补偿)N100 M03 S1000 T0505N105 G0 X19 Z2N110 G70 P45 Q80( (返回换刀点) N120 M05N125 M00 N130 M03 S600 T0202N135 G0 X52 Z2 N140 G71 U1 R1N145 G71 P150 Q180 U0.5 W0.1 F0.3 N150 G0 X37 N155 G1 Z0 F0.1 N160 X40 Z-1.5 N165 Z-24 N170 X46 N175 X48 Z-25 N180 Z-40N185 G0 X100 Z100 N190 M05 N195 M00N200 M03 S1000 T0202 N205 G0 X52 Z2N210 G70 P150 Q180 N215 G0 X100 Z100N220 M05 N225 M30;调头加工O0002 N05 T0101 M03 S600 G0 X100 Z100 N10 G0 X52 Z0 N15 G1 X-1 F0.2 N20 G0 X100 Z100N25 T0202 N30 G0 X52 Z2N35 G73 U10 R15 N40 G73 P45 Q110 U0.5 W0.1 F0.3 N45 G0 X21 N50 G1 Z0 F0.12号刀车外圆) (循环起点)(外圆精加工循环) (返回换刀点)(程序结束、机床复位) (零件右端)(主轴正转、换1号刀) (循环起点) (车端面)(换2号刀) (循环起点)(外圆轮廓粗加工循环) (换 (外圆粗加工循环)N55 X23.8 Z-1.5 N60 Z-25 N65 X24 N70 Z-30N75 G2 X28 Z-44 R10 N80 G1 Z-52N85 X30 N90 G3 X40 Z-57 R5N95 G1 Z-64 N100 X46N105 X48 Z-65N110 G0 U5N115 X100 Z100 N120 T0303 S400 N125 G0 X25 Z-25 N130 G1 X21 F0.15 N135 G0 X25 N140 Z-24 N145 G1 X21 F0.15 N150 Z-25 N155 G0 X100 N160 Z100N165 M05N170 M00 N175 M03 S1000T0202N180 G0 X52 Z2N185 G70 P45 Q110 N190 G0 X100 Z100N195 T0404 S700 N200 G0 X26 Z2 N205 G92 X23 Z-22 F1.5 N210 X22.725 N215 X22.425N220 X22.125 N225 G0 X100Z100; N230 M05N235 M30;4号刀)(返回换刀点) (返回换刀点) (切槽) (暂停、测量、补偿) (外圆轮廓精加工循环) (换 (循环起点) (螺纹切削固定循环)(程序结束、机床复位)练习一零件图练习二一、实训目的能根据零件图的要求,合理编制加工程序。
训练题目:复合零件的加工一、图样与技术要求零件立体图 零件图训练要点:1.能够编制平面铣削程序2.能够编制含直线插补、圆弧插补二维轮廓的加工程序3.能够宏程序编制椭圆程序 二、工艺规程设计1. 刀具及切削参数选择选择合理的刀具加工参数,对于金属切削加工能取到事半功倍的效果。
根据加工对象的材质,刀具的材质和规格,从金属切削参数书籍中查找刀具线速度、单刃切削量,确定选用刀具的转速、进给速度,参考切削参数如表1-1:表1-12.工艺规程安排如下:(工艺路线)从图纸分析,零件加工第一次装夹,夹持75mm 的外形加工72 0 -0。
04x72 0 —0。
04mm 方,深10+0.04mm 椭圆与圆相接的外轮廓,深8+0.04 0mm 的两个小突台,深9+0。
04 0mm ø20+0.040mm 的圆槽,深5+0.04 0mm 的三个扇形内轮廓和ø12+0.04 0mm 的通孔。
零件加工第二次装夹,夹持72mm 的外形加工薄壁轮廓外侧深5+0.04 0mm ,薄壁轮廓内侧8+0.04 0mm ,ø60 0 -0。
04mm 的外圆深9+0.04 0mm ,深12+0.04 0mm60 0 —0.04x60 0 —0。
04mm 方和薄壁轮廓内侧深10+0。
04 0mm 的槽,及2—ø12深10+0。
04 0mm 的两个圆槽。
表1-2 零件加工工艺卡刀具 切削速度v (mm/min )每刃进给量f (mm/刃)主轴转速S (r/min ) 进给速度F (mm/min )备注 ø 12mm 立铣刀 60 0.05 1600 200 粗加工 ø8mm 立铣刀30 0.05 1200 240 粗加工 600.052400300精加工三、参考程序表2-2 零件加工程序加工简图程 序说 明25粗铣薄壁轮廓内侧深10+0.04 0mm 的槽 T2 ø8 H02 D02 1200 240 T2 26 粗铣2—ø12深10+0.04 0mm 圆槽 T2ø8 H02 D02 1200 240 T2 27 精铣薄壁轮廓外侧深5+0.04 0mm T2ø8 H02 D02 2400 300 T2 28精铣薄壁轮廓内侧8+0。
课题一固定循环编程一、学习目标1.掌握固定循环的指令功能2.掌握固定循环的编程格式3.掌握固定循环编程加工零件二、实习内容1.编制加工程序2.完成零件的加工三、讲解示范1.讲解(1)单一固定循环的指令格式(2)复合固定循环的指令格式1)外径粗车循环G712)端面粗车循环G723)轮廓粗加工循环G734)精加工循环G70(3)固定循环的应用事项(4)注意事项与文明生产2.示范(1)根据图纸进行编程演示(2)进行仿真加工演示课题练习1练习要求:用给定的两把车刀一次安装调整,最终按程序连续自动加工完成加工图所示的零件。
毛坯尺寸材料φ40铝课题练习2练习要求:用给定的两把车刀一次安装调整,最终按程序连续自动加工完成加工图所示的零件。
毛坯尺寸材料φ铝课题二子程序编程一、学习目标1.掌握子程序的指令功能2.掌握子程序的调用与执行3.掌握子程序编程加工零件二、实习内容1.编制加工程序2.完成零件的加工三、讲解示范1.讲解(1)子程序的概念(2)子程序的指令格式(3)子程序的特殊使用方法(4)子程序的应用事项(5)注意事项与文明生产2.示范(1)根据图纸进行编程举例(2)进行仿真加工演示课题练习3用给定的两把车刀一次安装调整,最终按程序连续自动加工完成加工图所示的零件。
毛坯尺寸材料φ40铝课题练习4练习要求:用给定的两把车刀一次安装调整,最终按程序连续自动加工完成加工图所示的零件。
毛坯尺寸材料φ40铝课题三变量编程(车床)一、学习目标1.了解变量的概念2.掌握变量的类型与表示3.掌握变量编程加工零件二、实习内容1.编制加工程序2.完成零件的加工三、讲解示范1.讲解(1)变量的概念(2)变量的引用(3)算术与逻辑运算(4)转移与循环(5)宏程序的调用(6)注意事项与文明生产2.示范(1)根据图纸进行编程举例(2)进行仿真加工演示课题练习5练习要求:用给定的两把车刀一次安装调整,最终按程序连续自动加工完成加工图所示的零件。
加工中心(数铣)技师实操考试图第一篇:加工中心(数铣)技师实操考试图加工中心(数铣)技师培训实操图加工中心(数铣)技师考证实操图加工中心(数铣)高级技师考证实操图一广东省国防科技高级技工学校加工中心(数铣)技师培训实操图广东省国防科技高级技工学校加工中心(数铣)技师培训实操图广东省国防科技高级技工学校加工中心(数铣)技师培训实操图加工中心(数铣)技师考证实操图二广东省国防科技高级技工学校加工中心(数铣)技师培训实操图广东省国防科技高级技工学校加工中心(数铣)技师培训实操图加工中心(数铣)高级技师考证实操图三广东省国防科技高级技工学校加工中心(数铣)技师培训实操图广东省国防科技高级技工学校加工中心(数铣)技师培训实操图广东省国防科技高级技工学校加工中心(数铣)技师培训实操图广东省国防科技高级技工学校加工中心(数铣)技师培训实操图广东省国防科技高级技工学校加工中心(数铣)技师培训实操图加工中心(数铣)高级技师考证实操图四广东省国防科技高级技工学校第二篇:加工中心-数铣高级技师实操考试加工中心(数铣)高级技师培训实操图加工中心(数铣)高级技师实操考证资料加工中心(数铣)高级技师考证实操图一广东省国防科技高级技工学校加工中心(数铣)高级技师培训实操图广东省国防科技高级技工学校加工中心(数铣)高级技师培训实操图广东省国防科技高级技工学校加工中心(数铣)高级技师培训实操图广东省国防科技高级技工学校加工中心(数铣)高级技师培训实操图加工中心(数铣)高级技师考证实操图二广东省国防科技高级技工学校加工中心(数铣)高级技师培训实操图广东省国防科技高级技工学校加工中心(数铣)高级技师培训实操图广东省国防科技高级技工学校加工中心(数铣)高级技师培训实操图加工中心(数铣)高级技师考证实操图三广东省国防科技高级技工学校加工中心(数铣)高级技师培训实操图广东省国防科技高级技工学校加工中心(数铣)高级技师培训实操图加工中心(数铣)高级技师考证实操图四广东省国防科技高级技工学校加工中心(数铣)高级技师培训实操图广东省国防科技高级技工学校加工中心(数铣)高级技师培训实操图加工中心(数铣)高级技师考证实操图五广东省国防科技高级技工学校加工中心(数铣)高级技师培训实操图广东省国防科技高级技工学校加工中心(数铣)高级技师培训实操图加工中心(数铣)高级技师考证实操图六广东省国防科技高级技工学校加工中心(数铣)高级技师培训实操图广东省国防科技高级技工学校加工中心(数铣)高级技师培训实操图广东省国防科技高级技工学校第三篇:加工中心-数铣高级技师实操考试资料加工中心(数铣)高级技师培训实操图加工中心(数铣)高级技师实操考证资料加工中心(数铣)高级技师考证实操图一广东省国防科技高级技工学校加工中心(数铣)高级技师培训实操图广东省国防科技高级技工学校加工中心(数铣)高级技师培训实操图广东省国防科技高级技工学校加工中心(数铣)高级技师培训实操图广东省国防科技高级技工学校加工中心(数铣)高级技师培训实操图加工中心(数铣)高级技师考证实操图二广东省国防科技高级技工学校加工中心(数铣)高级技师培训实操图广东省国防科技高级技工学校加工中心(数铣)高级技师培训实操图广东省国防科技高级技工学校加工中心(数铣)高级技师培训实操图加工中心(数铣)高级技师考证实操图三广东省国防科技高级技工学校加工中心(数铣)高级技师培训实操图广东省国防科技高级技工学校加工中心(数铣)高级技师培训实操图加工中心(数铣)高级技师考证实操图四广东省国防科技高级技工学校加工中心(数铣)高级技师培训实操图广东省国防科技高级技工学校加工中心(数铣)高级技师培训实操图广东省国防科技高级技工学校第四篇:数控加工实训报告(车铣)目录数控铣床实训 (2)实训目的和意义....................................................................2 数控铣床简介.......................................................................2 数控铣床主要功能.................................................................3 数控铣床加工范围.................................................................4 数控铣床的指令....................................................................5 数控铣床的对刀....................................................................6 数控车床实训.............................................................................7 实训目的.............................................................................7 实训内容.............................................................................8 数控车床的简介....................................................................8 数控车床基本组成.................................................................9 数控车床编程技巧.................................................................9 数控车床编程常用指令...........................................................12 数控车床的对刀....................................................................14 实习总结.. (16)一、数控铣床实训1.1实训目的1.了解数控铣床的功能和分类,数控铣床的结构及主要性能指标。
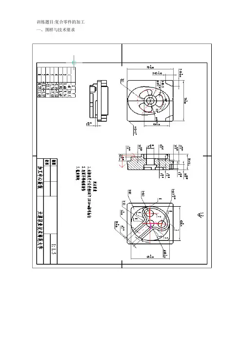
训练题目:复合零件的加工一、图样与技术要求
零件立体图 零件图训练要点:
1.能够编制平面铣削程序
2.能够编制含直线插补、圆弧插补二维轮廓的加工程序
3.能够宏程序编制椭圆程序 二、工艺规程设计
1. 刀具及切削参数选择
选择合理的刀具加工参数,对于金属切削加工能取到事半功倍的效果。
根据加工对象的材质,刀具的材质和规格,从金属切削参数书籍中查找刀具线速度、单刃切削量,确定选用刀具的转速、进给速度,参考切削参数如表1-1:
表1-1
2.工艺规程安排如下:(工艺路线)
从图纸分析,零件加工第一次装夹,夹持75mm 的外形加工72 0 -0.04x72 0
-0.04mm 方,深10+0.04 0
mm 椭圆与圆相接的外轮廓,深8+0.04 0mm 的两个小突台,深9+0.04 0mm ø20+0.04
0mm 的圆槽,深5+0.04 0mm 的三个扇形内轮廓和ø12+0.04 0
mm 的通孔。
零件加工第二次装夹,夹持72mm 的外形加工薄壁轮廓外侧深5+0.04 0
mm ,薄壁轮廓内侧8+0.04 0mm ,ø60 0 -0.04mm 的外圆深9+0.04 0mm ,深12+0.04 0mm60 0 -0.04x60 0
-0.04mm 方和薄壁轮廓内侧深10+0.04 0mm 的槽,及2-ø12深10+0.04 0
mm 的两个圆槽。
表1-2 零件加工工艺卡
刀具 切削速度v (mm/min ) 每刃进给量f (mm/刃) 主轴转
速S (r/min )
进给速
度F
(mm/min )
备注 ø 12mm 立铣
刀 60 0.05 1600 200 粗加工 ø8mm 立铣刀 30 0.05 1200 240 粗加工 60
0.05
2400
300
精加工
三、参考程序
表2-2零件加工程序
加工简图
程序说明%001
S1600M03
G91 G01 X-90 F200
Y10
X90
Y10
M99
%0002
G90G54G0X0.Y-29.S600M3
G43H1Z100.
Z5.M8
X50Y50
GO1 Z-15F120
G01 X36 G41 D01 F200
G01Y-36 C2
X-36 C2
Y36 C2
X36 C2
Y0
X50G40
G00Z50
M30
%003
G90 G54 G00 X0.0 Y0.0 S1200 M03 G43 Z50 H01
Z5M08
#1=40
#2=25
#3=180
#4=1
X50Y50
G01 Z-8 F100ø12立铣刀
D01=6.2
铣平面
ø12立铣刀
D01=6.2/6.02
粗、精铣720
-0.04x72
-0.04mm
方
ø12立铣刀
D01=6.2/6.02
粗、精铣椭圆凸台
粗铣40x25mm半椭圆凸台
加工简图
程序说明%007
G0 G90 G54 X-50. Y-8. S2000 M5
G43 H1 Z50
Z5
G1 Z-9. F50
G01 X-42. G41 D02 F100
G3 X-34. Y0. R8.
G2 I34.
G3 X-42. Y8. R8.
G1 X-50.
G0 Z50
XO Y0 G40
X1 Y18
G01 Z-15 F100
G01 X7 G41 D01
G03 I-6
G01 X1 G40
G00 Z50
X-18 Y-1
G01 Z-15 F100
G01 X-12 G41 D01
G03 I-6
G01 X-18 G40
G00 Z50
M5
M30
%008
G0 G90 G54 X-19.5825 Y-15.453 S1200
M3Ø8立铣刀
D01=4.2/4.02
圆形凸台及槽内两孔
ø12立铣刀
D01=6.2/6.02
铣杯形凸台
11 四、零件关键尺寸测量
1.检验74
0 -0.046x74 0 -0.046mm 尺寸,检查表面粗糙度R3.2
用0.01精度的千分尺进行测量,根据测量结果和被测尺寸的公差要求判断是否合格。
检查表面粗糙度,用表面粗糙度比较样本进行比较验定。
2.检验深8+0.04 0
mm 的两个小突台尺寸,检查表面粗糙度R3.2 用0.01精度的千分尺进行测量,根据测量结果和被测尺寸的公差要求判断是否合格。
检查表面粗糙度,用表面粗糙度比较样本进行比较验定。
3.检验ø20+0.04 0
mm 的圆槽尺寸,检查表面粗糙度R3.2 用0.01精度的内径千分尺沿被测尺寸的三个素线方向进行测量,根据测量结果和被测尺寸的公差要求判断是否合格。
检查表面粗糙度,用表面粗糙度比较样本进行比较验定。
4.检验ø12+0.04 0
mm 的通孔,检查表面粗糙度R3.2 用0.01精度的内径千分尺沿被测尺寸的三个素线方向进行测量,根据测量结果和被测尺寸的公差要求判断是否合格。
检查表面粗糙度,用表面粗糙度比较样本进行比较验定。
5.检验ø60
0 -0.04mm 的外圆尺寸和60 0 -0.04x60 0 -0.04mm 外形尺寸,检查表面粗糙度R3.2
用0.01精度的千分尺进行测量,根据测量结果和被测尺寸的公差要求判断是否合格。
检查表面粗糙度,用表面粗糙度比较样本进行比较验定。
6.检验9+0.04 0
mm 的槽尺寸,检查表面粗糙度R3.2 用0.01精度的内径千分尺进行测量,根据测量结果和被测尺寸的公差要求判断是否合格。
检查表面粗糙度,用表面粗糙度比较样本进行比较验定。