建筑圈】工程实例结构图讲解 03基础结构平面布置图(三) 独立基础参考模板
- 格式:docx
- 大小:507.62 KB
- 文档页数:17
结构识图——独立基础,条形基础,筏形基础,柱子前期发表的结构识图——独立基础,条形基础,筏形基础,柱子,并未收录到本专栏,读者反映查找不便,特汇编为一篇文章以成系列第一篇独立基础识图结构工程识图重点分五大部分:①基础、②柱(墙)、③梁、④板、⑤楼梯,其中基础又分为独立基础、桩基础、筏形基础等形式,先讲独立基础,见下图:图1:基础平面图【例1】识读某建筑独立基础平法施工图。
1、首先了解独立基础编号及其代表的形式,见下表:注:设计时应注意:当独立基础截面形状为坡形时,其坡面应采用能保证混凝土浇筑、振捣密实的较缓坡度;当采用较陡坡度时,应要求施工采用在基础顶部坡面加模板等措施,以确保独立基础的坡面浇筑成型、振捣密实。
2、图1为某建筑独立基础平法施工图平面图,从图中可以看出:(1)该建筑基础为普通独立基础,根据选用的符号分析是坡形截面和阶形截面两种形式。
图中普通独立基础有三种编号,分别为DJP01、DJP02、DJP03;阶形截面普通独立基础有一种编号,为DJJ01。
每种编号的基础选择了其中一个进行集中标注和原位标注。
(2)以DJP01为例进行识读。
从标注中可以看出该基础平面尺寸为2500mm×2500mm,竖向尺寸第一阶为300mm,第二阶尺寸为300mm,基础底板总厚度为600mm。
柱子截面尺寸为400mm×400mm。
基础底板双向均配置直径12mm的HRB335级钢筋,分布间距均为150mm。
各轴线编号以及定位轴线间距,图中都已标出。
第二篇条形基础识读1、条形基础。
当建筑物上部结构采用墙承重时,基础沿墙身设置,多做成长条形,这类基础称为条形基础或带形基础,一般用于多层混合结构、自建房等,如图2-1所示。
图2-1 条形基础2、基础的构造组成以条形基础为例,介绍一下基础的构造组成,如图2-2所示图2-2 条形基础的构造组成(1)地基地基是基础下面的土层,承受由基础传递的建筑物的全部荷载。
房建基础类型图解一:基础形式(条形基础、独立基础、筏型基础、桩基础)1、条形基础:定义:是指基础长度远远大于宽度的一种基础形式。
按上部结构分为墙下条形基础和柱下条形基础。
基础的长度大于或等于10倍基础的宽度。
条形基础的特点是,布置在一条轴线上且与两条以上轴线相交,有时也和独立基础相连,但截面尺寸与配筋不尽相同。
另外横向配筋为主要受力钢筋,纵向配筋为次要受力钢筋或者是分布钢筋。
主要受力钢筋布置在下面。
适用范围:适用于多层民用建筑和轻型厂房,对基础承载力要求不高的砖混结构。
2、独立基础:定义:独立基础分:阶形基础、坡形基础、杯形基础3种。
独立基础常用断面形式有踏步形、锥形、杯形。
材料通常采用钢筋混凝土、素混凝土等。
当柱为现浇时,独立基础与柱子是整浇在一起的;当柱子为预制时,通常将基础做成杯口形,然后将柱子插入,并用细石混凝土嵌固,此时称为杯口基础。
独立基础的特点一:一般只坐落在一个十字轴线交点上,有时也跟其它条形基础相连,但是截面尺寸和配筋不尽相同。
独立基础如果坐落在几个轴线交点上承载几个独立柱,叫做联合独立基础。
独立基础的特点二:基础之内的纵横两方向配筋都是受力钢筋,且长方向的一般布置在下面。
长宽比在3倍以内且底面积在20 m2以内的为独立基础(独立桩承台)。
适用范围:一般适用于楼层较矮的多层框架结构房屋。
3:筏形(板)基础:定义:当建筑物上部荷载较大而地基承载能力又比较弱时,用简单的独立基础或条形基础已不能适应地基变形的需要,这时常将墙或柱下基础连成一片,使整个建筑物的荷载承受在一块整板上,这种满堂式的板式基础称筏形基础。
筏形基础由于其底面积大,故可减小基底压强,同时也可提高地基土的承载力,并能更有效地增强基础的整体性,调整不均匀沉降。
筏形基础分为平板式和梁板式,一般根据地基土质、上部结构体系、柱距、荷载大小及施工条件等确定。
平板式筏形基础的底板是一块厚度相等的钢筋混凝土平板。
板厚一般在0.5~1.5m之间。
带你如何看懂独立基础施工图,绝对的干货!在建筑工程施工中,能看懂图纸,读懂图纸才能准确的下料、更好的完成施工。
下面就教教大家如何准确的看图施工,不明白的看过来!一、以普通独立基础(阶形截面为例):(一)、识别图中符号:1、图纸中的h1、h2、h3代表各级(阶)的高度;H表示基础承台高度。
2、图中的a1、a2(一般为短边)、b1、b2(一般为长边)表示每级(阶)的宽度;3、图中的b、h表示柱的截面尺寸;4、图中的A(一般为短边)、B(一般情况为长边)表示独立基础两向边长;5、基础配筋大的钢筋为底筋(放下边),如果配筋是一样的就不用区分;6、图中的原位标注序号①②,①上部钢筋、②为下部钢筋(配筋大);(二)、J-11(基础11为例),查配筋表:1、柱断面:bxh=400mmX400mm;2、两向边长:AXB=2900x3700mm;3、第一级(阶)a1的宽度:650mm;4、第二级(阶)a2的宽度:600mm;5、第一级(阶)b1的宽度:850mm;6、第二级(阶)b2的宽度:800mm;7、H的高度为:700mm;8、h1高度为:400mm;9、h2高度为:300mm;10、序号①方向配筋:φ14间距150mm(三级钢);11、序号②方向配筋:φ14间距150mm(三级钢);12、从配筋图看出,基底标高—1.8m;13、从配筋图可以得知,基础边长大于等于2.5m时,底板受力钢筋可以取边长或宽度的0.9倍(外围四根不得取0.9倍);(三)、柱插筋:1、柱插筋伸至底板钢筋上,与底板钢筋绑扎牢固;2、柱插筋弯钩必须满足15d(d为钢筋直径);3、基础承台内部,柱插筋至少用两道2Φ6箍筋固定柱筋;4、上面一道箍筋与基顶距离100mm。
(四)、其他平面标注:1、C15素混凝土垫层100mm厚;2、300mm厚粗砂褥垫、满槽铺垫(整平);3、第一级(阶)承台距垫层边100mm(四周等同)。
平面图剖面图配筋图基础平面布置图施工现场施工现场施工现场谢谢阅读!我是搬砖的浪子,更多工程技术知识分享给大家,喜欢我的文章可以点击关注哦!。
1 2平法施工图识读标准构造详图识读2标准构造详图识读底板钢筋一般构造独基平面配筋构造详图独基剖面配筋构造详图底板钢筋缩短10%构造非对称独基缩短10%对称独基缩短10%、底板钢筋的长度、底板钢筋的起步距离一般构造、底板钢筋的根数底部钢筋一般构造编号构造内容计算公式X-2C和Y-2C1C:钢筋端部保护层厚度2 3m i n(75,s/2)【y-2×m i n(75,s/2)】/s+1(以x向为例)起步距离底板钢筋的长度底板钢筋的起步距离底板钢筋的根数底板钢筋缩短10%构造非对称独基缩短10%对称独基缩短10%对称独立基础底板钢筋缩减10%构造编号构造内容计算公式最外侧不缩短X-2C和Y-2C钢筋长度1其他缩减10%0.9(X-2C)和0.9(Y-2C)最外侧均为22钢筋根数其他【y-2×m i n(75,s/2)】/s-1(以x向为例)起步距离底板钢筋缩减10%构造非对称独立基础编号 构造内容计算公式最外侧不缩短X -2C 和Y -2C对称方向(Y 向)缩减10%, 0.9(Y -2C )1中部不缩减(柱中至基础底边<1250m m )非对称方向(X 向)隔根缩减10%(柱中至基础底边>1250m m )最外侧均为22其他 【y-2×m i n (75,s/2)】/s-1(以x向为例)起步距离钢筋长度钢筋根数知识小结底板钢筋一般构造、底板钢筋的长度标准构造详图识读、底板钢筋的起步距离、底板钢筋的根数底板钢筋缩减10%构造。
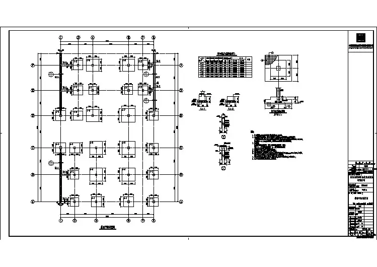
大家好,欢迎大家查看“建筑圈”结构图实例讲解,前面我们讲了03号图纸基本情况和挖孔桩基础样的相关内容,下面就为大家讲解“独立基础”相关知识。
独立基础平面图“J-*”“独立基础”——常用断面形式有踏步形、锥形、杯形。
材料通常采用钢筋混凝土、素混凝土等。
当柱为现浇时,独立基础与柱子是整浇在一起的;当柱子为预制时,通常将基础做成杯口形,然后将柱子插入,并用细石混凝土嵌固,此时称为杯口基础。
独立基础的特点:一、一般只坐落在一个十字轴线交点上,有时也跟其它条形基础相连,但是截面尺寸和配筋不尽相同。
独立基础如果坐落在几个轴线交点上承载几个独立柱,叫做联合独立基础。
二、基础之内的纵横两方向配筋都是受力钢筋,且长方向的一般布置在下面。
长宽比在3倍以内且底面积在20 m2以内的为独立基础。
本工程中的独立基础为原槽现浇砼基础,如上图,没有放阶。
直接按图示尺寸开挖至设计深度→浇垫层→扎钢筋网片→固定绑扎柱插筋→加固柱筋→浇筑砼至设计厚度。
本工程独立独立基础设计有长方形、正方形、及长方形与条基础组合的形式。
独立基础的平面图,上面的圈1、圈2就是代表本独立基础两个方向的底板钢筋。
我们配合独立基础表来的一下,以独立基础2“J-2”为例:基础顶标高为-0.450米,这是车库地面标高,不是以±0.00为基准的。
基础长宽都是1900,厚度为500,钢筋圈1为14间距100,圈2也是14间距100。
回到“J-*”大样,我们就知道了独立基础2“J-2”中圈1圈2钢筋的大小及间距了。
下面来看下三维图:从广联达软件计算的三维图中,我们可以看到独立基础2“J-2”的底板钢筋大样图,及钢筋的长度计算值。
计算公式是:净长-左侧保护层-右侧保护层。
这是柱插筋的三维图(公式看上图),因为软件计算钢筋只求准确,所以广联达软件中,柱纵筋没有显示11G图集要求的错开搭接规范。
错不错开搭接,对算量没有影响,只要我们记住就行了,不管什么钢筋在连接的时候都必须错开连接的。
同样,我们还要注意上图这样的附注,“附注:表中所注基础顶标高,若有原位标注以原位标注为准”。
这是我们一定要注意,在识图看图过程中,注意每个细节,建筑工程本来就一能出错,一旦出错,将不可挽回,损失也不是小数字,的以在识图过程中,文字说明不管是总说明,附注、还有大样图下的说明,一定仔细看清楚。
好了,今天主节就讲到这里,下一节为大家讲解条形基础和挡墙大样图。
大家有什么提议,可以在QQ群中留言,也可以在建筑圈微信公众号主页的“社区圈子”留言,以便改正。
六年级下册语文培优测试卷(一)第一部分:词语积累与运用一、将下列句中画线的俗语换成一个意义相当的四字成语。
1、人家又没有明确是说你,你去解释,不是此地无银三百两吗?()2、他的结局,对于那种这山望着那山高的人,也是一个极好地教训。
()3、再不动动脑子,还是这样干下去,肯定是井里打水往河里倒。
()4、让我这个大老粗在这么多人面前作报告,这不是赶鸭子上架吗?()二、将成语补充完整。
只许州官放火,()以其人之道,()千里之行()(),死而后已(),路人皆知天下兴亡,()三:依次填入下列各句横线处的词语,最恰当的一组是()如果不是秋风将种子吹下茎秆,那种子不是要被酷寒所冻僵吗?是秋风,把叶子介绍给根须,使它找到了_______生命的母体;是秋风,把种子藏进了厚实的泥土,使它有了一个_______春天的温床;是秋风,把果实领进了一个个温暖的家,使它_______了生命的胚胎。
A.延伸萌生保持 B。
延续萌动保持C.延续萌生保存 D。
延伸萌动保存四、下列词语搭配完全正确的一项是()A.提高认识价钱便宜解决疑难保卫公物B.反映情况身体强大发扬风格灌溉稻田C.发现问题远大理想参观演出改正错误D.改善生活天气晴朗安排工作工作认真五、在括号里填上恰当的反义词。
(1)春天对()正如秋天对()(2)简单对()正如复杂对()(3)详细对()正如简略对()(4)()对湖水正如()对海洋。
(5)保护环境是()的,破坏环境是()的。
第二部分阅读部分梦结束的地方有人做过统计,迄今为止,大约有五百人成功地等上了珠穆朗玛峰顶,亦大约有五百人在攀登过程时献出了宝贵的生命。
无论这个统计数字属实与否,都不折不扣地表明,攀登珠穆朗玛峰生死系于一线,代价极其残酷。
因攀登珠穆朗玛峰而遇难的勇士净庚华去世后,笔者走进他的独居,目睹的是一个痴迷登山者的世界:墙上贴满了登山明星的照片、珠峰风景画、挂满了登山爪、登山靴、滑雪杆。
他用13年的漫长岁月做准备,为此放弃了婚烟,离开了心爱的女儿,甚至不惜失去性命。
无限风光,唯有触天者才领略得到吧!一位朋友成功地登上了海拔6400米的一座山峰,我问他,那种高处不胜寒的峰巅之感一定惊魂动魄吧?没有一丝尘埃的繁星,广袤深邃如宝石样的天宇,还有洁白无暇的冰雪,一定让人的肺腑都透明了!朋友却一本正经地摇头道:“完全不是这样的,冰天雪地的山头上能有什么吸引力?天幕、繁星、晶莹的冰雪,那是使人塑造的仙境。
当时的情形根本不浪漫,巨大的风裹着彻骨风寒,满眼白茫茫的,就这些。
”真就这些,这么令人失望吗?答案如此肯定。
那么,为什么要登山呢?不要命地登那么高的山,想证明什么?英雄气概?挑战极限的能力?我费解而又焦急地望着朋友。
朋友悠悠地说:“那一刻,我只觉得一颗心从喉咙里咯噔一下子回到胸膛里去了,就像做了个痛苦而又漫长的梦,我终于可以释怀了。
”那是梦结束的地方,高耸入云。
这梦扯着生命的脚步,一路跋涉,万水千山,赴汤蹈火。
()那座山叫什么名字,在地壳上,在实验室中,()在书本里,()充满了诱惑。
明白了吗?生命原来是梦想的一架梯子,可以一直延伸到梦想成真的那一刻,只要你永不放弃。
1.“梦结束的地方”指的是什么?用自己的话简要回答。
________________________________ ________________________________________________________________________________2.给第五自然段括号处选择恰当的关联词,正确的一项是()A.因为还是那B.即使只要就、C.如果那么就D.无论还是都3.第三自然段,朋友说“当时的情形根本就不浪漫”。
这里的“浪漫”指(用原文里的话来回答)____________________________________________________________________。
他说“不浪漫”的原因是(用原文句子来回答)______________________________________。
4.第4自然段中,朋友说:“我终于可以释怀了。
”这里的“释怀”的意思是_________________________________________________________________________________________________。
他“终于可以释怀的原因是_______________________________________________________。
5.短文第6自然段与文题“梦结束的地方“是_____________________关系,在文中起的作用是___________________________________。
你对这段文字的理解是____________________。
6.你的理想是什么?你怎么实现它?(3分)________________________________________________________________________________ ________________________________________________________________________________穿透灵魂的微笑非洲的一座火山爆发了,随之而来的泥石流狂泻而下,迅速扑向座落在山脚下不远处的一个小山庄。
农舍、良田、树木,一切的一切都没有躲过被冲毁的(劫难困难)。
滚滚而来的泥石流惊醒了睡梦中的一个十四岁的小女孩。
流进屋内的泥石流已上升到她的颈部。
小女孩只露出双臂、颈和头部。
及时赶来的营救人员围着她一筹莫展。
因为对遍体鳞伤的她来讲,每一次拉扯无疑是一种更大的(伤害危害)。
此刻房屋早已倒塌,她的双亲也被泥石流夺去生命,她是村里为数不多的幸存者之一。
当记者把摄像机对准她时,她始终没有叫一个“疼”字,而是咬着牙微笑着,不停地向营救人员挥手致谢,两臂做出表示胜利的“V”字形。
她(坚信相信)政府派来的营救人员一定能够救她。
可是,营救人员倾尽全力也没能从固若金汤的泥石流中救出她。
小女孩始终微笑着挥着手一点一点地被泥石流(淹没掩盖)。
在生命的最后一刻,她脸上流露着微笑,手臂一直保持着“V”字形。
那一刻仿佛漫长如一个世纪,在场的人含泪目睹了这庄严而又悲惨的一幕。
世界静极,只见灵魂独舞。
死神()可以夺去人的生命,()永远夺不去生死关头那“V”字所蕴含的信念和精神!常常在生命边缘蕴含着震撼世界的力量,让人生所有的苦难如轻烟般飘散。
世界上最坚硬不屈的就是那在苦难中的微笑着、痛苦着、高扬信念旗帜的灵魂。
1、在括号内选择合适的词。
2、在“()”处填上合适的关联词。
3、写近义词:蕴含()震撼()一筹莫展()遍体鳞伤()4、“V”字形代表_____________________________________________,“庄严而又悲惨的一幕”是指____________________________________________________________________ 5、你是怎么理解“世界静极,只见灵魂独舞”这句话的?________________________________________________________________________________ ________________________________________________________________________________ 6、请再读一读题目,思考:为什么说小女孩的微笑是“穿透灵魂”的呢?请写一写你的理解:__________________________________________________________________________ 7、读了《穿透灵魂的微笑》这篇短文,你有什么感受?请联系生活实际谈一谈:________________________________________________________________________________ ________________________________________________________________________________第三部分:作文积累与运用题目:我与_______的较量。