脚手架搭设立面示意图(20210204050042)
- 格式:docx
- 大小:54.47 KB
- 文档页数:3
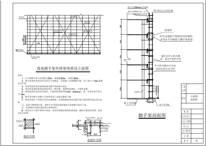
脚手架规范搭设图例1―外立杆;2―内立杆;3―横向水平杆;4―纵向水平杆;5―栏杆;6―挡脚板;7―直角扣件;8―旋转扣件;9―连墙件;10―横向斜撑;11―主立杆;12―副立杆;13―抛撑;14―剪刀撑;15―垫板;16―纵向扫地杆;17―横向扫地杆;注:小横杆的设置位置在立杆和大横杆的交叉点(即节点)处,必须设置一根小横杆,以形成空间格构架整体受力。
施工层(作业层)还要在两个节点中间,现增设一根小横杆。
注:钢管脚手架步距底部高度不大于2M,其余不大于1.8M,立杆纵距不大于1.8M,横距不大于1.5M。
注:大横杆间距应小于1.2m,小横杆间距应小于1.5m,大、小横杆设于立杆里侧,大横杆设于小横杆之下。
1―立杆;2―纵向水平杆;3―横向水平杆;4―竹笆脚手板;5―其它脚手板(a)脚手板对接;(b)脚手板搭接剪刀撑布置1―上栏杆;2―外立杆;3―挡脚板;4―中栏杆屋面和楼层临边的防栏杆楼梯、楼层和阳台临边防护栏杆通道侧边防护栏杆洞口防护栏杆电梯井口防护门钢柱接柱用操作台钢梁登高设施移动式操作平台悬挑式钢平台交叉作业通道防护拆除脚手架的安全常识(1)拆架子人员一般2~3人为一组,协同作业互相关照、监督。
(2)拆架子的高处作业人员应戴安全帽,系安全带,扎裹腿,穿软底鞋方可作业。
(3)拆除脚手架,四周应设围栏或警戒标志,并设专人看管,禁止人员入内。
(4)架子拆除时要自上而下按顺序拆除,所有杆件材料均按先搭后拆、后搭先拆的原则依次进行。
拆下的材料要随拆随清理,不得随便从高处向下抛掷物料。
从架子向下送料时要上下配合,做到上呼下应,不准上下同时作业。
(5)大片架子拆除后预留的斜道,上料平台、通道等,应在大片架子拆除前进行加固,以便拆除后能确保其完整,安全可靠。
(6)在拆架过程中,不得中途换人,必须换人时,应将拆除情况交待清楚后方可离开。
(7)拆除脚手架立杆时,要先抱住立杆再拆开最后两个扣,拆除大横杆、斜撑、剪刀撑时,应先拆中间扣,然后托住中间,再拆两头扣,由中间操作人往下顺杆子。
落地式、悬挑脚手架搭设做法详解,及三维示意图
温馨提示
落地式脚手架
基本要求
(1)脚手架搭设应符合标准规范要求,每隔3层或10m设置一道200mm宽警示带,固定于立杆外侧,剪刀撑应连续设置,横杆露出架体外立面长度为100-500mm;
(2)颜色:脚手架钢管表面涂刷黄色油漆,剪刀撑和警示带表面涂刷红白警示漆,脚手架内侧满挂绿色密目安全网,安全网封闭严密,张紧、无破损,颜色新亮。
24m以上落地式脚手架设置
A、B类项目附加要求
(1)横杆露出架体外立面长度为100-150mm,每隔3层或10m 设置一道200mm高警示带,固定于立杆外侧,警示带尺寸如下;
(2)脚手架外侧悬挂楼层提示牌。
脚手架基础
脚手架拉结
脚手架搭设效果图
警示带制作示意图
悬挑式脚手架
基本要求
(1)钢梁截面尺寸应经设计计算确定,不小于16号工字钢;
(2)脚手架钢管表面涂刷黄色油漆,剪刀撑和警示带表面涂刷红白警示漆,脚手架内侧满挂绿色密目安全网,安全网封闭严密,张紧、无破损,颜色新亮;
(3)脚手架架体及悬挑梁固定符合规范要求,架体底层应采用硬质防护封闭,每隔3层或10m设置一道200mm高警示带,固定于立杆外侧,横杆露出架体外立面长度为100-500mm。
悬挑脚手架实景图
悬挑梁U型螺栓固定示意图(1.木楔子、2.预埋螺栓)
侧立面图
悬挑工字钢
A、B类项目附加要求
(1)工字钢涂刷红白警示漆;
(2)当防护高度超过100m时,宜每隔10m设置黄色密目安全网警示带,横杆露出架体外立面长度为100-150mm。
悬挑脚手架剖面示意图
悬挑脚手架效果图
悬挑梁固定及防护示意图
猜您喜欢。
脚手架1、脚手架底面底座标高宜高于自然地坪50-100mm2、单排脚手架——只有一排立杆,短横杆的一端搁置在墙体上的脚手架。
双排脚手架——由内外两排立杆和纵、横水平杆构成的脚手架(。
双排脚手架一般用于砌筑工程。
砌筑需要承重:丢放水泥、砖等。
单排脚手架一般用于内墙抹灰,刷涂料等不需要承重的工程。
单排脚手架需要把抱杆支靠在墙上。
单排脚手架的横向水平杆不应设置在下列部位:①设计上不许留脚手眼的地方;②过梁上与过梁两端成60°的三角形范围内及过梁净跨度1/2 的高度范围内;③宽度小于1m 的窗间墙;120mm 厚墙、料石清水墙和独立柱;④梁或梁垫下及其左右500mm 范围内;⑤砖砌体门窗洞口两侧200mm(石砌体为300mm)和转角处450mm(石砌体为600mm)范围内;⑥.独立或附墙砖柱,空斗砖墙、加气块墙等轻质墙体;⑦砌筑砂浆强度等级小于或等于M2.5 的砖墙。
3、脚手架必须配合施工进度搭设,一次搭设高度不应超过相邻连墙件以(分析:脚手架在无连墙件的情况下最高2 步,或者说允许在连墙件之上两步。
上无连墙件搭设最多2步高的架体。
步数即是水平大横杆间距)4、纵向水平杆(可理解为大横杆)应设置在立杆内侧,其长度不应小于3 跨。
5、两根相邻纵向水平杆的接头不应设置在同步内,不同步两个相邻接头在水平方向错开的距离不应小于500mm,各接头中心至最近主节点的距离不应大于纵距的1/3。
6、两根相邻纵向水平杆的接头不应设置在同跨内,不同跨两个相邻接头在水平方向错开的距离不应小于500mm,各接头中心至最近主节点的距离不应大于纵距的1/3。
7、纵向水平杆搭接长度不应小于1m,应等间距设置3 个旋转扣件固定,端部扣件盖板边缘至搭接纵向水平杆杆端的距离不应小于100mm。
8、主节点处必须设置一根横向水平杆(小横杆),用直角扣件扣接且严禁拆除。
9、主节点处的两个直角扣件的中心距不应大于150mm。
10、在双排脚手架中,离墙一端的外伸长度不应大于0.4 倍的两节点的中心长度,且不应大于500mm。
脚手架搭设示意图(钢管式)
1、脚手架搭设安全色踢脚板做法(按层划分)
脚手架搭设安全色踢脚板做法
安全色踢脚线由竹胶板制作,涂红白漆。
踢角线不少于三道,均等间距(等层数)设置。
落地式脚手架第一道踢脚板原则上从二层顶开始设。
悬挑式脚手架从悬挑型钢上的扫地杆上开始设。
(单位:MM)
2、脚手架内平网设置
注:7层以下建筑设三道平网(即:首层、中间、檐口);
高层按上图要求设置。
脚手架内平网设置图 (单位:mm)
3、脚手架外排阳角处做法示意图
脚手架立杆
密目网脚手架外排阳角处做法示意图
注:阳角处增加立杆的目的是使大角处密目网顺直平整。