项目部标准化建设方案-项目部大门效果图
- 格式:doc
- 大小:27.50 KB
- 文档页数:7
第一章1基础设施1.1 大门1.1.1 门楼式大门(主大门)基本要求施工区(1)门柱:门柱为钢结构主体架,外封彩钢板或薄铁板,截面尺寸为1×1m,总高度为6.5m,门柱从地面起2m高为中建蓝色(C100 M30,以下简称蓝色),2-5m之间为白色;(2)门楣(灯箱):采用户外喷绘,门楣高度为1.5m,颜色为蓝色;标识反白,尺寸为1×1m;文字为白色,内容分为两排,上排为“中国建筑一局集团”,下排为“承建××项目”(注意:此为非标准组合,只限于门楣上使用);(3)伸缩式移动大门:总宽度8m,移动立柱上制作中建标识与“”C式组合(竖式),蓝底、白标、白字。
门楼式大门整体效果图移动立柱11基础设施1.1.1 门楼式大门(主大门)基本要求(4)大门外侧品牌墙:左侧为《中建信条》外品牌墙,右侧为本工程品牌墙,尺寸为6.75×4.5m,两侧品牌墙的具体安装位置可根据实际情况向大门两侧移动,保持左右对称,品牌墙应牢固、稳定;大门外侧形象21基础设施第一章1.1.1 门楼式大门(主大门)基本要求(5)大门内侧品牌墙:左侧为《中建信条》内品牌墙,右侧为《中建一局先锋文化》品牌墙,尺寸、安装方式同外侧品牌墙;施工工区大门内侧形象11基础设施1.1.1 门楼式大门(主大门)基本要求(6)门禁系统及门卫室:安装在大门左(右)侧,闸机数量根据实际需要确定;(7)主大门两侧宜设置花坛或花盆,绿化施工现场环境。
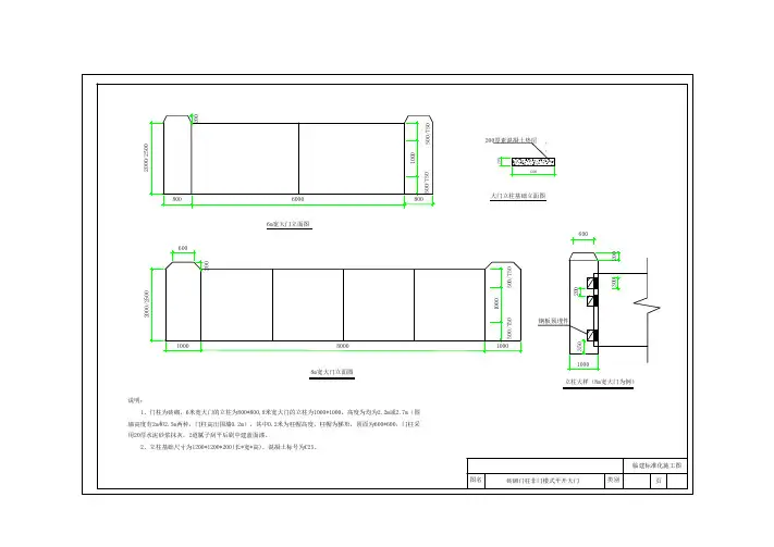
门禁系统及门卫室42第 一 章1 基础设施1.1.2 无门楼式大门(辅助门)基本要求施 工 工 区(1)大门:大门采用铁板焊制,总宽度为6m (对开)或8m (四开),高度为2m (根据墙 体高度调整),大门颜色为白色,每扇门正腰 刷一块1×3m 或1×2m 蓝色,上面用白色隶书 体(刘炳森手书)书写“” 字样;(2)门柱:门柱为砖砌,6m 宽大门门柱截面 尺寸为0.8×0.8m ,8m 宽大门为1×1m ,高度2.2m (根据墙体高度调整),其中0.2m 为柱 帽高度,柱帽为梯形,顶面积为0.6×0.6m , 门柱通体为蓝色;(3)门禁系统及门卫室:安装在大门左(右) 侧,闸机数量根据实际需要确定。
c
( 效果图)
()
(平面布置图)
场地硬化围挡
施工现场南大门施工现场西大门
项目部大门 项目部围墙
民工宿舍外观 民工宿舍崭新的空调
整洁的项目部干净明亮的民工宿舍
阅读角 整齐的资料柜
洗手间 小便池
浴室
门禁系统工人通道 门禁系统管理人员通道
干净的施工场地 洗车槽
整齐的泥浆箱 垃圾分类收集
钢筋加工场堆码整齐的钢筋
机械设备保护 材料摆放整齐
氧气乙炔存放室
配电箱高压电箱
场地用电
应急仓库防汛应急物资
安全宣传画 特殊工种操作证
监测点保护
钢筋焊接工艺
防雨棚 标准养护室
工区卫生间安全镜
安全通道茶水室
安全告示
场地绿化
工区围挡 项目部前期围挡
交改宣传告示 排污管道
泥浆棚 备用发电机
定期检查灭火器 氧气乙炔瓶保护架
基坑护栏 长臂挖掘机
娱乐室
鞋架厨房
交通指示牌小型机械防雨棚
脚手架堆放 钢支撑堆放
焊条 材料库内摆放
养护室操作规程 振动机
配电箱
基坑护栏宣传牌 奖罚牌
危险源告示
行为规范漫画
焊接展示牌 测斜管保护
向项目部走廊一脚
升旗台。
建筑工程安全文明施工标准化图(一)工地大门及围墙1 、工地大门:采纳砖砌体做门柱,截面尺寸为 1.0 ×,大门净宽,高,门楣高,净高,门柱从地面起2.0m 为蓝色,门楣为蓝色,其他部位为白色。
门楣从左至右标上标上公司标记,用宋体字标上公司名称。
字体高度,上下左右居中。
在右大门上开一个900mm(宽)× 1800mm(高)的小门,以方便施工人员出入。
大门中部部署 1.0m 高铁,刷涂成蓝色。
大门右边围墙平均部署“五牌一图”,左侧围墙部署公司简介,大小为900mm(宽)× 1400mm(高),牌间间距200mm。
工地大门2、围挡:围墙采纳砖砌体(18 墙),高度,每间隔 6.0m 设置一道 370×370mm砖柱。
墙体颜色为白色,上端、下端 0.3m 为蓝色,墙体中部用蓝色隶书字体标上公司名称。
大门正立面图(二)安全通道1、在进入建筑物进口处,或建筑物物体坠落半径范围内的人行通道处均需设置安全通道。
2、安全通道防备采纳Ф 48钢管搭设,长度为 3000 ~ 6000mm(根据建筑物高度确立危险半径),宽度4000mm ,高度为3800mm 。
3、通道采纳双层防备,两层之间间距无为800mm ,顶层满铺脚手板,基层铺设50 ×100@350 木坊,上订18mm厚木胶合板。
4、安全通道防备棚顶层设置防备栏杆,高度1200mm,两道水平杆,栏杆间距为400mm红白相间警告油漆,并满挂密目网。
5、安全通道防备棚双侧应设置斜撑,并满挂密目网,全部水平杆控制伸出立杆外侧100mm 。
建筑工程安全文明施工标准化图6、安全通道防备棚进口双侧应搭设钢管立柱(900 × 900 ),在通道防备棚进口处张挂安全警告标记牌和安全宣传口号。
安全通道成效图1-1 剖面图2-2剖面图3-3 剖面图(三)临边、洞口防备1、水平洞口(1)边长在 25~200mm(含 200mm)的洞口防备洞口楔紧两根木方,洞口上盖18mm 厚木胶合板,并用铁钉定牢,面刷红白相间的警告油漆,间距20cm,角度 45°。
文明施工标准化图解第1条施工现场围护设施设置标准(一)施工围挡设置围挡材料要求坚固、稳定、统一、整洁、美观并安排专门人员定期对围挡进行保洁。
1、施工现场周边按占道期限分为:(1)15天以下的临时防护(2)15天以上至6个月以内的围挡(3)6个月以上的围挡。
围挡应当稳固、安全、整洁、美观。
具体标准如下:(1)工期在15日以下的工点围挡使用标准密扣式铁马或塑料水马做临时围护,张贴风险提示、交通疏导等安全标志,必要时设置夜间警示灯。
1铁马塑料水马(2)工期在15日以上(含15日)6个月以内的工点围挡采用现场组装便携式围挡设施,高度1.8m,单体宽度不超过1.2m,连续设置封闭管理,张贴风险提示、交通疏导等安全标志,变道、拐角等部位设置夜间警示灯。
23(3)工期6个月以上的工点围挡A、结构标准①基座结构:地面以下连续设置深度不小于300mm、宽度不小于370mm 的砖砌基座,根据现场地质情况适当加深、加宽;地面以上连续设置高度为300mm、宽度为370mm的砖砌基座,基座要根据现场实际情况预留排水孔。
②围墙结构:快速路,主、次干路围挡设施高度为2.2m、长度为5m、厚度为1mm波纹彩钢板,次干路以下街路高度为1.7m、长度为5m、厚度为1mm波纹彩钢板。
③立柱结构:围墙每隔5m设边长为370mm的立柱,立柱高出围墙100mm,立柱中预埋80*80mm方钢管立柱,用混凝土浇筑固定,方钢管需埋入基座500mm。
④所有砖砌结构进行抹灰找平,达到坚固安全、整洁完好、美观连续、无破损歪斜、无乱贴乱画。
4砼底座围挡结构图(参考)砼底座围挡示意图B、外装饰标准①地面上高300mm基座外侧横向满铺60*200mm灰色瓷砖。
②波纹彩钢板颜色为深蓝色。
5③立柱外侧横向满铺60*200mm棕色瓷砖,内侧用砂浆抹面,柱顶设直径为200mm的白色球灯。
线路穿管预设在立柱结构内或沿围挡内侧用挂钩架空布设,防雨、绝缘措施符合安全用电要求,做到安全、规范、整齐、美观。
建筑工地安全文明施工标准化图例(一)工地大门及围墙1、工地大门:采用砖砌体做门柱,截面尺寸为1.0×1.0m,大门净宽6.0m,高6.5m,门楣高1.5m,净高5.0m,门柱从地面起2.0m为蓝色,门楣为蓝色,其余部位为白色。
门楣从左至右标上标上企业标志,用宋体字标上企业名称。
字体高度1.1m,上下左右居中。
在右大门上开一个900mm(宽)×1800mm(高)的小门,以方便施工人员进出。
大门中部布置1.0m高铁,刷涂成蓝色。
大门右侧围墙均匀布置“五牌一图”,左侧围墙布置企业简介,大小为900mm(宽)×1400mm (高),牌间间距200mm。
工地大门2、围挡:围墙采用砖砌体(18墙),高度2.0m,每间隔6.0m设置一道370×370mm砖柱。
墙体颜色为白色,上端0.2m、下端0.3m为蓝色,墙体中部用蓝色隶书字体标上企业名称。
大门正立面图(二)安全通道1、在进入建筑物入口处,或建筑物物体坠落半径范围内的人行通道处均需设置安全通道。
2、安全通道防护采用Ф48钢管搭设,长度为3000~6000mm(根据建筑物高度确定危险半径),宽度4000mm,高度为3800mm。
3、通道采用双层防护,两层之间间距无为800mm,顶层满铺脚手板,下层铺设50×100@350木坊,上订18mm厚木胶合板。
4、安全通道防护棚顶层设置防护栏杆,高度1200mm,两道水平杆,栏杆间距为400mm红白相间警示油漆,并满挂密目网。
5、安全通道防护棚两侧应设置斜撑,并满挂密目网,所有水平杆控制伸出立杆外侧100mm。
6、安全通道防护棚进口两侧应搭设钢管立柱(900×900),在通道防护棚进口处张挂安全警示标志牌和安全宣传标语。
安全通道效果图1-1剖面图2-2剖面图3-3剖面图(三)临边、洞口防护1、水平洞口(1)边长在25~200mm(含200mm)的洞口防护洞口楔紧两根木方,洞口上盖18mm厚木胶合板,并用铁钉定牢,面刷红白相间的警示油漆,间距20cm,角度45°。
一、驻地规划图一新建活动板房的驻地全景图图二租借既有设施的驻地1、设计原则邻近工地、靠前指挥、交通便利、永临结合。
2、基本要求(1)应考虑安全且便于管理,其设施应满足办公和生活的需要。
项目经理部驻地有条件时应优先租用当地单位房屋或民房,也可自建办公用房,两种方案应进行经济比选后确定。
(2)如考虑租借当地既有设施,需有良好的工作、生活环境,设施齐备、整洁,具有一定场地和绿化条件;如新建驻地采用板房时,搭设最高不能超过二层,二楼安全疏散通道距离最远住房不超过15m。
驻地房屋四周设置排水系统,原则上采用砖砌式水沟。
(3)驻地应不受洪水和泥石流威胁,避开坍方、落石、滑坡、危岩等地段,避让取土、弃土场地,尽量避开高压线路及高大树木。
同时需考虑防台风、防雷措施,且与通讯线路保持一定的距离。
(4)驻地规划应保证生产、办公、生活区相对独立,尽可能修建在离建筑物20m 且在集中爆破区安全距离以外。
(5)驻地除了要有便利的交通及完善的通电、通水设施外,项目经理部还应具备信息化联网办公条件。
(6)施工区域与办公区、生活区应明显分隔。
办公区、生活区应布置合理、排水畅通;环境整洁美化,照明设施完好,灭害措施落实,基本生活设施齐全,符合卫生标准。
工地办公区域和生活区域消防设施齐全。
燃气等驻地内危险品按国家和行业规定要求管理。
3、材料要求自建房屋最低标准为活动板房,应统一采用有资质厂家生产的合格彩钢板房搭建,并需同步考虑防台风、大风和防暴雪、防大汛等措施。
建设宜选用阻燃、防水材料。
4、尺寸规格占地面积一般在2000-3000㎡。
二、会议室图三会议室示意图1、设计原则坚固实用、经济美观、功能齐全。
2、基本要求(1)门窗齐全,通风、照明良好,并设有防暑、降温、取暖设备。
(2)配备必要的会议桌、椅子、写字板、多媒体等常用会议设施。
3、材料要求房顶选用阻燃材料。
地面原则上采用水泥硬化地面,当有特殊要求时应按要求处理。
4、尺寸规格:房间净空高度应控制在~范围,面积原则上不大于100㎡。
项目大门和围挡是施工企业向社会大众展示的最明显的企业形象,体现了企业的风貌。
一、项目大门:(1)门体的颜色应采用本企业标准色,以便从视觉上辨识项目部的所属企业。
(2)门扇为不通透的封闭门,底部安装滚轮,可做成平开或推拉门。
二、六牌一图(1)规格:各图牌均为800mm(宽)×1200mm(高)蓝色边框左右宽20mm、上部高145 mm、下部高65mm;题目黄色综艺体字220磅,白色下划线高4mm,左上角圆角白底司徽尺寸85m m×85mm;表框名称黑体字77磅,正文黑体字83磅。
(2)安装:安装与项目大门边围墙外侧。
当项目大门外侧设置小门时,张挂在小门一侧的围墙上。
围墙高度1.8m时,底边距地面400mm;围墙高度2.5mm时,底边距地面700mm。
从左到右联排布置,依次为:工程概括、建筑节能信息公示、管理人员名单、安全生产规定、文明施工规定、防火规定和施工现场平面布置图。
三、宣传栏(1)材料:框架材料可选用镀锌钢材或不锈钢材。
阅报栏后方夹板改用透明材料,便于阅览报纸。
(2)规格:每架三栏,各栏内容设统一的蓝色边框,尺寸均为800mm宽×1200mm宽,蓝色边框左右宽20mm、上部高145mm、下部高65mm;题目黄色综艺体字220磅,白色下划线高4mm,左上角圆角白底司徽尺寸85m m×85mm。
(3)安装:框架立杆埋深不小于800mm,于项目大门内主干道两侧或一侧布置,从大门方向开始分别为:企业简介+项目简介+项目阶段照片、企业质量环境安全方针+项目质量环境安全目标+项目事务公告栏、安全学习+质量学习+安全计时、质量安全奖励+阅报栏+阅报栏,三栏一组。
四、区域牌、门牌(1)办公区域牌材料:底板采用拉丝不锈钢板或白色PVC板。
规格:尺寸800㎜宽×600㎜高,司徽宽138㎜。
企业名称黑色魏体加粗207磅、项目部名称黑色黑体加粗160磅。
安装:项目部办公区人口,底边距地1600~2000㎜(2)工人业余学习牌材料:底板采用白色PVC板或拉丝不锈钢板。
【项目部标准化建设方案】项目部大门效果图项目部标准化建设方案项目部作为公司管理的一个有机组成部分,对内承担着完成各工程项目的重任,对外则承担着树立公司形象,提高公司公众知名度的希望,是整个公司建设的重要一环,也是公司企业文化建设的外在表现。
这种重要性,随着南京市、江苏省以及全国其他省份对文明施工要求的进一步规范化、专业化,正变得愈加普遍而迫切。
因此,公司在总结历年来项目部建设经验的基础上,规范整理出一整套项目部标准化建设方案(流程),用以指导新形势下公司各级项目部的建设,就显得尤为必要。
项目部标准化建设分为两个方面,即项目部人员配备与项目部硬件建设。
一、项目部人员配备根据工程特点及工程规模的大小,将公司项目部分为特大型项目部、大型项目部、中型项目部和小型项目部,四类项目部的工程量划分及人员配备如下:(一)特大型项目部工程规模≥1.5亿元项目经理:1人项目副经理:2-4人项目总工程师:1人项目副总工程师:1-2人综合办公组:3-5人工程技术组:5-10人财务审计组:2-3人质量检测组:6-10人机料安全组:6-10人(其中5人为专职安全员)合计人员42人(二)大型项目部1.5亿元<工程规模≥5000万元项目经理:1人项目副经理:1-2人项目总工程师:1人项目副总工程师:1-2人综合办公组:2-3人工程技术组:4-6人财务审计组:1-2人质量检测组:3-6人机料安全组:3-6人(其中3人为专职安全员)合计人数27人(三)中型项目部5000万元<工程规模≥800万元项目经理:1人项目副经理:1人项目总工程师:1人综合办公组:2人工程技术组:4人财务审计组:2人质量检测组:2人机料安全组:4人(其中2人为专职安全员)合计人数17人(四)小型项目部工程规模<800万元项目经理:1人项目总工程师:1人综合办公组:1人工程技术组:2人财务审计组:1人质量检测组:1人机料安全组:2人(其中1人为专职安全员)合计人数9人二、项目部硬件建设项目部内部硬件建设从办公区、生活区及施工现场三个方面进行。
永泰建筑质量当
先百年大计安全第一以人为本安全内容宣
传安全十八要求注:十六个字“以人为本,安全第一,百年大计,质量为先。
”
福建省永泰建筑工程公司(宣)
▲:所采用的颜色、规格尺寸按照总公司下达的文件标准布置。
各项目部工地大门规范布置样图
遵章守法创品牌工程树企业形象福建省永泰建筑工程公司
(项目部名称)
回报社会施工现场闲人勿进非施工人员不得进违者后果自负关爱生命施工区域注意安全进工地必须戴安全帽永泰公司(宣)科学管理精心施工力创品牌以人为本安全第一公告栏两图:1、施工平面布置图;2、安全施工平面图。
五牌十六个字
建筑物风景严要求保安全高标准创品牌。
云南交通职业技术学院开放性公共技能实训基地等建设项目学生宿舍建设工程项目部大门制作方案项目部大门如下图:
大门示意图
(细部尺寸以下注为准)
注:
1.门两侧立柱使用角钢焊制,尺寸为0.8mx0.8m。
2.门立柱高度设置为3m。
3.门柱外包铁皮,底色为蓝色。
4.门柱冒为梯形,顶端设置球形广场灯。
5.门柱两侧喷涂白色“建优质工程树千秋丰碑”字样。
6.门体使用金属管与薄铁板焊制。
7.门体高度为2.5m。
8.金属表层喷刷两道防锈漆,防锈漆颜色为灰白色。
9.门扇腰部如图,喷绘蓝底黑字“中核工集团第四工程局”字样。
10.喷涂字体均根据喷涂区实际尺寸均匀分布。
目录一、选址方案 (2)二、建设方案 (2)1、总体方案 (2)2、办公区方案 (3)3、试验室方案 (8)4、生活区方案 (9)5、安全方案 (10)6、供给水及排水方案 (11)7、配套办公、服务设施方案 (11)8、大门、围墙方案 (12)9、其他设施方案 (13)三、电讯设备方案 (10)四、环境保护方案 (11)五、总体规划图 (14)六、各区细部图纸 (15)七、板房计算书 (15)一、选址方案三工区项目驻地位于S106省道道北侧,占地9700平米,为个人废旧厂房。
项目驻地对面为吉林丰瑞农业开发有限公司。
项目驻地距离太平川镇政府1.6km,距离太平川镇火车站约4.5公里。
对应主线里程为K90+000,距离主线1.3公里,上路桩号K90+000距离本标段起点27公里,距离终点5公里。
卫星图如下:二、建设方案1、总体方案驻地总面积为9700平米,项目部全部使用新建活动板房布置为办公室和职工宿舍。
房屋形式:项目部办公楼采用新型绿色建筑体-打包式箱房结构形式,建成后为 3层共计1053平米。
会议室为单栋钢结构形式,建成后为331.5平米。
宿舍及餐厅均为标准彩钢板房。
厨房、浴室、锅炉房为新建砖混结构。
项目部场区分为办公区、住宿区、餐饮区、娱乐区、健身区、花园区共计5个区域。
其中办公区为4000平米;住宿区为1900平米;餐饮区为300平米;健身区为830平;花园区为900平米。
2、办公区方案办公区由面向大门的三层办公楼与大门右侧会议楼组成。
2.1三层办公楼一层作为项目部其他各职能部门办公、档案室、小会议室使用,共6间,二层作为项目部领导班子、部室、接待室使用,共9间,三层作为业主办公室、监理办公室、其他部室等共10间,建筑面积1053㎡;占地面积351㎡。
其中项目部班子5-7人,工程部约有7人,经营部约有3人,质检部约有2人,安监部约有3人,机材部约有3人,综合部2人,财务部2人,测量队7人,实验室建在项目部驻地东侧1km处水稳拌合站内。
项⽬部临建标准化建设图⽂讲解,简直不要太全⽂章⽤于学习交流,侵删01第⼀章项⽬部第⼀节项⽬部建设项⽬部总体布局主要包括办公区、⽣活区、旗坛、图牌(或宣传栏)、绿化带、停车位的布置,项⽬部根据现场实际情况进⾏合理布局;1.选址要求不受洪⽔和泥⽯流威胁,避开塌⽅、落⽯、滑坡、危岩等地段;2.避开⾼压线及⾼⼤树⽊,与通讯线路保持⼀定距离;3.靠近现场,管理⽅便,交通便利,通信畅通;旗杆台标⽰:Logo中国铁建股份有限公司吴忠⾄中卫城际铁路第x项⽬经理部第⼆节办公区1.办公区可采⽤装配式彩钢板活动板房,材料必须使⽤A级防⽕材料。
2.办公楼层不应超过2层,办公室净空不低于2.6m,⾛廊楼梯宽度不宜⼩于1.6m。
3.办公区墙体、门窗框均应为⽩⾊,房檐、外部⾛廊及楼梯防护栏颜⾊为蓝⾊或者红⾊,⼆楼⾛廊护栏外围应设主管铁建标语,⾼度为护栏⾼度,颜⾊⽩底红字。
第三节旗坛1.办公区内应在办公楼正前⽅或对⼤门的显要位置设旗坛。
2.旗座表⾯贴深红⾊⼤理⽯或花岗岩。
旗座为不锈钢,中间旗杆长11m,中间悬挂国旗,左为总公司标准旗帜,右为集团公司标准旗帜。
3.旗座斜⾯设置单位标志和单位名称横式标准组合,标⽰⾼度为0.5m,材质为钛合⾦板,也可以使⽤不锈钢板或者镀锌板制作,镀上钛⾦⾊。
旗座实景说明:彩门主要在公路、铁路施⼯段两端使⽤,具体尺⼨根据实际情况,不做严格要求。
⾊彩:标准⾊和辅助⾊为主。
材质⼯艺:户外写真直喷绘裱轻型⾦属结构门两侧为项⽬部宣传标语。
说明:便道旗帜主要设置于进⼊施⼯现场的各路边,设置时须考虑位置、距离、⾼度、⾊彩等。
第四节宣传栏1.宣传栏应设置在项⽬部显⽬的位置。
2.宣传栏内容以企业⽂化、荣誉成果、、项⽬管理为主,应根据项⽬实际情况及时更新,原则上⾄少⼀⽉更换⼀期。
3.宣传栏为不锈钢框架加玻璃橱窗,建议安装阳光板,可制作成单⾯或双⾯,宣传栏尺⼨可参考图⽰。
4.宣传栏可与花坛结合布置。
第五节花坛1.项⽬部应布置花坛(如办公楼前、旗杆两侧)。
项目部标准化建设方案:项目部大门效果图
项目部标准化建设方案项目部作为公司管理的一个有机组成部分,对内承担着完成各工程项目的重任,对外则承担着树立公司形象,提高公司公众知名度的希望,是整个公司建设的重要一环,也是公司企业文化建设的外在表现。
这种重要性,随着南京市、江苏省以及全国其他省份对文明施工要求的进一步规范化、专业化,正变得愈加普遍而迫切。
因此,公司在总结历年来项目部建设经验的基础上,规范整理出一整套项目部标准化建设方案(流程),用以指导新形势下公司各级项目部的建设,就显得尤为必要。
项目部标准化建设分为两个方面,即项目部人员配备与项目部硬件建设。
一、项目部人员配备根据工程特点及工程规模的大小,将公司项目部分为特大型项目部、大型项目部、中型项目部和小型项目部,四类项目部的工程量划分及人员配备如下:
(一)特大型项目部工程规模≥1.5亿元项目经理:1人项目副经理:2-4人项目总工程师:1人项目副总工程师:1-2人综合办公组:3-5人工程技术组:5-10人财务审计组:2-3人质量检测组:6-10人机料安全组:6-10人(其中5人为专职安全员)合计人员42人(二)大型项目部 1.5亿元<工程规模≥5000万元项目经理:1人项目副经理:1-2人项目总工程师:1人项
目副总工程师:1-2人综合办公组:2-3人工程技术组:4-6人财务审计组:1-2人质量检测组:3-6人机料安全组:3-6人(其中3人为专职安全员)合计人数27人(三)中型项目部 5000万元<工程规模≥800万元项目经理:1人项目副经理:1人项目总工程师:1人综合办公组:2人工程技术组:4人财务审计组:2人质量检测组:2人机料安全组:4人(其中2人为专职安全员)合计人数17人(四)小型项目部工程规模<800万元项目经理:1人项目总工程师:1人综合办公组:1人工程技术组:2人财务审计组:1人质量检测组:1人机料安全组:2人(其中1人为专职安全员)合计人数9人二、项目部硬件建设项目部内部硬件建设从办公区、生活区及施工现场三个方面进行。
(一)项目部办公区的建设 1、门楼:由独立院落组成的项目部,应在项目部大门的入口处设置门楼。
门楼的形式有招牌式、方拱门式,可根据项目部办公区的地势情况适当选择,门楼的主要内容为“南京东部路桥工程总公司××工程×标段项目经理部”,招牌式门楼除主要内容外还必须包括“设计单位、建设单位、监理单位”等内容;
方拱门式门楼除主要内容外还必须在左右两边立柱上布置内容(具体见标语范例)。
无独立院落的项目部,根据实际情况选择门楼的形式,不做门楼的项目部必须在项目部办公区入门处设置项目部名称标牌。
2、办公室:项目部办公室根据所在地实际情况进行安排,分为
租用民房、搭建活动板房,以及租房和活动板房相结合等三种方式。
总体要求是项目部办公室必须集中设置,分别设项目经理室、项目副经理室、项目总工室、综合办公组、工程组、机料组、安全组、财务统计组、中心试验室等。
项目部组建办公区及生活区应规划平面布置图。
3、办公桌椅柜:项目部采办的办公桌椅及文件柜等,除项目经理室、副经理室及项目总工室外,应式样统一,颜色以白色为主;
文件柜应采办白色的铁制文件柜(尽量不用带玻璃窗的)。
4、职责图牌:项目部制作的上墙职责牌包括项目部组织机构体系结构图、安全保证体系结构图、环境保护体系结构图、质量保证体系结构图、廉政建设体系结构图、项目经理职责、项目副经理职责、项目总工程师职责、综合办公组职责、工程组职责、机料组职责、安全组职责、财务统计组职责、中心试验室职责、路基工程师岗位职责、路面工程师岗位职责、桥梁工程师岗位职责、机械工程师岗位职责、质检工程师岗位职责、计量工程师岗位职责、施工平面图、施工进度图、工程概况图、质量方针图、项目部施工承诺牌,以及试验室各类操作规程等;
进行场地摆放的职责牌包括施工平面图、安全生产记录牌、安全宣传牌、文明施工制度牌、安全纪律牌、工程概况牌、睛雨表等。
5、标识牌:标识牌分为文明办公标识牌和安全标识牌。
文明办公标识牌包括项目部人员的上岗牌、办公桌标识牌、办公室标识牌、项目部指路牌、厕所的标识牌等;
安全标识牌包括警示标志牌、警告标志牌、消防设施的标识牌等(根据国家规定执行)。
6、旗帜、标语:项目部必须按照公司范本制作公司旗帜,横幅的内容根据实际情况在范例中选择(尺寸分为6米、8米、10米、12米等四种);
项目部办公区应树立3号公司旗帜和国旗。
7、会议室:项目部应设置会议室,会议桌可根据会议室的大小适当选购,会议室座椅应保持统一式样。
8、实验室:项目部应根据工程要求设置相应的工程实验室,各类操作规程应按职责牌标准制做上墙,并标明各试验室名称。
9、绿化:项目部办公区应进行绿化布置,满足项目部外观建设美观的要求。
10、服饰:项目部应根据公司统一要求换装新式工作服,工作时间必须穿工作服,使用年限按规定执行;
进入施工现场应戴安全帽,安全帽应标识公司的标志和简称——东部路桥;
从事交通疏导工作的人员应穿荧光警示服,起到安全警示作用。
10、防火防盗等安全设施:项目部各办公室必须安装门锁,财务统计组应设置防盗门窗,项目部办公区应按规定在各区域设置消防设施、设置消防标志。
11、宣传栏:项目部应设置流动或固定的宣传栏,宣传栏内容应定期更换(每月一次),并将公司内部刊物在宣传栏内展出。
12、信息化建设:项目部应根据施工现场条件申请安装电话线和宽带网络,购置与工程需要相适应的各类办公设备,并按规定使用公司网络办公平台和其它信息化平台。
13、环境保护:项目部应加强环境保护,办公区和生活区应设置数量不等的垃圾池或垃圾筒,并安排专人打扫、清理;
施工现场不等随意遗留废弃的建筑垃圾或机械废弃物。
(二)项目部生活区的建设 1、员工宿舍:项目部应统一设置员工宿舍,根据房间大小每宿舍安排2—6人居住,购置统一的床及衣柜,每宿舍放办公桌一张用于摆放物件。
员工宿舍应保持整洁,轮流安排卫生责任人员打扫,项目部综合办公组应定期检查。
2、食堂:项目部应设置工地食堂,统一解决项目部员工的用餐问题。
食堂工作人员应具有有效的健康证,食堂各类用具应齐全,用火用气设备应满足安全要求。
项目部食堂应保持干净卫生,定期对蚊蝇进行杀灭,其他规定按公司食堂管理制度执行。
3、厕所:项目部应设置男厕所和女厕所,男厕所小便器不少于2个,男女厕所的蹲坑各不少于3个,并分别安装相应的冲水装置,保持清洁卫生。
(三)施工现场的建设 1、施工区域的标识:施工现场应设置相应的标识,包括施工路段桩号标识、挖方基坑标识、施工区域范围标识、原材料的标识、机械停放场地的标识;
城市施工的围挡表面应设置公司标志和名称。
2、施工区域的安全管理:野外施工段,应对施工区域和行人通
行区域进行分隔,基坑四周应设置警示标志,与行人通行区接触区应设置警告标志和限速标志,多人施工现场应设置安全告示牌,料场应设置标识。
城市施工段,大面积成片施工段面应用围挡将施工区域从周边环境中分隔开来,围挡顶部应设置旗帜或彩灯,做到美观整齐;进出施工现场的路口必须统一设置铁制灯箱式门楼,门楼顶部和两侧要有规范标语,上部要有公司旗帜和标志;
沿施工现场周边的区域应根据道路情况设置安全标志、分离路障、安全网等,夜间应设置红色警示灯。
3、施工区域的宣传布置:施工区域应安插公司的标准旗帜和标志,重要路段和位置应设置宣传横幅,施工围挡上安排的宣传标语要符合工程实际情况,起到树立形象激励士气的作用。
4、施工便道:项目部应根据业主要求设置施工便道,并确保施工便道的平整、顺畅。
三、新项目部组建的流程新工程中标后,项目部组建工作流程如下:
1、项目经理根据业主及公司规定拟订项目部组建方案;
2、公司主管副总经理召集项目经理及各职能部门召开项目部组建会议,对项目经理拟订的项目部组建方案进行讨论、修订;
3、综合办公室负责现有人员的调配,企业管理部负责项目部所需新员工招聘;
4、综合办公室协助项目部根据组建方案内容,完成硬件设施的最终设计及建设;
5、安全保卫部协助项目部完成安全防护设施的采购和配备;。