多层住宅建筑图平面立剖面图的图纸
- 格式:dwg
- 大小:2.32 MB
- 文档页数:1
一.住宅建筑平面图1.轴线:轴线之间尺寸应尽量取整数(100的倍数)。
200厚的墙,轴线在中间;100厚的墙,轴线在其中一边。
2.墙厚:外墙和分户墙:200(常用),240;内墙:100(常用),120。
3.门洞宽度:a.入户门:1500,1200(常用),1000(常用),900。
豪宅常用1500(子母门900+600);大户型常用1200(子母门900+300), 1000;小户型可用900。
b.卧房门:900,800(小户型用);厨、卫门:800,700(小户型用);c.出阳台推拉门:每扇门宽常用1100~700。
4.窗洞宽度:客厅、卧房常用2400~900(最好是300的倍数);厨、卫窗常用1200~600(最好是100或150的倍数);飘窗凸出外墙尺寸常用400~600(大飘窗),常用500。
5. Hatch铺地图案:a.厨、卫常用300×300;b.阳台常用150单向;c.大露台、空中花园常用450×450或600×600;d.屋顶天面平面常用600×600或900×900。
6.公共楼梯开间宽度a.轴线距离;多层或低层:用2600,高层:用2700,2800;b.疏散门洞≥1000,常用1100,1200(子母门);c.楼梯休息平台宽度≥1200,踏步宽度260-300;踏步级最少3级,最多18级。
7.户内楼梯(如复式住宅)开间宽度(轴线)可用2200,踏步宽度≥200,休息平台宽度≥1000。
8.电梯轴线尺寸最小2200×2200,常用2400×2200、2400×2400;电梯厅进深轴线距离≥2000.(净宽≥1800)。
9.消防前室净面积:≥4.5m2,合用前室≥10.风井尺寸≥0.7m2(净),合用风井≥1.1m2(净),水电井检修门洞宽度≥600,xx尺寸0.8m2~1.1m2(净)。
11.公共走道宽度(轴线)≥1400,常用1400-1800。
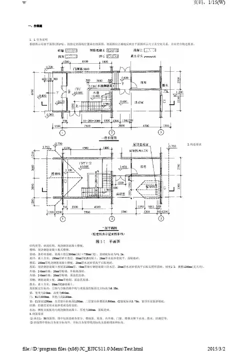
一、作图题1.1.任务说明根据图示局部平面图(图1-1),按指定剖面线位置画出剖面图。
剖面图应正确地反映出平面图所示尺寸及空间关系,并应符合构造要求。
2.构造要求结构类型:砖混结构,现浇钢筋混凝土楼板。
楼梯:现浇钢筋混凝土板式楼梯。
基础:条形砖基础,混凝土垫层300mm(高)×750mm(宽)。
基础底标高为-1.2m。
地坪:素土夯实,150mm厚碎石垫层,80mm厚C15混凝土,20mm厚水泥砂浆找平,面贴地砖。
楼面:100mm厚现浇钢筋混凝土楼板,20mm厚水泥砂浆找平后贴地砖。
屋面:现浇钢筋混凝土坡屋面180mm厚,40mm厚细石钢筋混凝土防水层,20mm厚水泥砂浆找平后贴瓦楞形面砖。
坡度1/2,挑檐1200mm(无天沟)。
外墙:240mm砖墙,20mm厚粉刷,外贴墙面砖。
内墙:240mm砖墙,20mm厚粉刷,面涂乳胶漆。
顶棚:钢筋混凝土板,20mm厚粉刷,面涂乳胶漆。
散水:素土夯实,80mm厚C10混凝土。
屋面板定位标高:①轴与③轴的墙中线与坡屋面的板面交点标高为6.35m。
梁:宽度为240mm,高度为600mm。
门:M1高3000mm,其他门高2100mm。
窗:C1窗高1250mm,首层窗台距地面1150mm,二层窗台距楼面高900mm。
C2窗底标高3.70m,窗顶至屋面斜梁底。
防潮:防潮层采用水泥砂浆或卷材设防。
水池:侧壁及底板均为现浇钢筋混凝土,厚度为200mm,面贴瓷砖。
3.剖面要求(1)画出1:50剖面图。
图中包括基础各部分、楼地面、屋面、内外墙、门窗、楼梯及梯下水池、散水、防潮层等。
(2)剖面图中除标注各部分标高外,并标注各屋脊线的标高及基础埋深和标高。
正确答案:图1-2为参考答卷2.1.任务要求根据所给的住宅平面(图1-3)画出指定位置的剖面图,剖面应正确表达所剖切位置的空间和构造关系,并符合相关规范要求。
2.构造要求层高:6楼层高为2.80m,楼梯间通至屋顶,层高2.70m。
[深圳]XX26层高层住宅楼建筑施工图(内含效果图)一套完整的住宅楼图纸郑州天城小区CAD建筑方案郑州体育馆建筑CAD方案深圳香蜜湖信华花园建筑方案图纸某栈道工程施工方案cad及pdf文本广州爱都项目施工图DWG南海文化艺术中心方案设计CAD中建国际北京亮马河小区CAD一个广场的方案图很不错重庆xxx古镇保护规划图纸xxx科技公园广场方案图私人住宅楼施工图5农村住宅两层简式房屋图纸私人住宅楼施工图9农村别墅施工图图纸某砖混结构住宅楼施工全套上海绿洲xxx别墅施工图一套会所建筑图纸cad室外健身器材图库大全高层住宅楼建筑施工全套cad施工图精美荷兰式别墅施工图私宅建筑施工图cad全套图纸江生私宅设计图cad全套图纸小型私人别墅cad建筑施工图全套多层住宅楼建筑施工图十几层住宅楼建筑施工图.RAR三室二厅及别墅各一例施工图纸世博中国馆图纸鸣泉居(建筑)全套高层现代风格酒店方案初步设计cad图纸及效果图高层建筑户型图集高层四户一梯图纸高层住宅设计方案食堂建筑施工图-6.食堂建筑施工图-5食堂建筑施工图-4食堂建筑施工图-3食堂建筑方案图阿列克谢耶夫教堂长岛别墅.金海岸高层住宅施工图连排别墅平面方案跃层住宅建筑设计CAD施工图纸设计图,农家院设计图某花园住宅楼CAD建筑图纸节能住宅楼建筑设计施工图航运新村高层住宅建筑设计图纸自行车车库图纸.脱硫施工平面规划图老年活动中心建筑图3老年公寓与干休所规划设计建筑施工图纸-2老年公寓与干休所规划设计建筑施工图纸-1老年公寓cad建筑施工图.rar美食城规划方案绿城公寓平面施工图2XXX综合楼建筑结构图带效果图经济适用房设计图精典的基本户型图纸私人别墅施工图私人住宅楼施工图秀枫山庄28栋小高层设计施工图.社区服务中心办公楼建筑施工图很齐全的别墅设施施工图漳州XXX三层小别墅施工图.温泉度假别墅施工图.深圳***三十一层住宅建筑施工图纸沃尔玛广场的全套图纸池州广电大厦建筑图纸.水边木平台欧式建筑立面图纸欧式别墅全套施工图梁结构节点详图.标准住宅套房方案图***高层一号楼图纸.***维修中心食堂设计图***监狱监舍cad施工图纸.***大酒店设计方案图***小区管线规划总平面图2***学院学生活动中心施工图纸***大楼梁、柱、板加固施工图***大型商场建筑施工图cad***售楼处建筑图.***博物馆电子设计图.***仿古公厕建筑施工图.***中学教学楼与宿舍楼建筑施工图-1某中学教学楼. ***中学4层宿舍楼施工图***一梯三高层建筑施工图***17万平大型商场消防图纸.***17万平大型商场消防图纸.杭州精品排屋新宾馆施工图.教堂建筑图纸3套-1.教堂建筑图纸3套-2.教堂建筑图纸3套-3户型平面建筑施工图.建筑设计详图大全.建筑大样图集cad版.康居建筑设计竞赛获奖作品.广州从化逸泉山庄别墅C区CL-B型施工图山地别墅建筑图居委会综合楼施工图小高层住宅楼建筑全套施工图.小高层住宅楼平立剖面图.小户型农宅CAD建筑图纸.小型社区活动中心建筑小型别墅建筑图.小区全套建筑施工图(内含100张).小区会所设计结构建筑施工图.安提瓜和巴布达总理别墅.学院学生活动中心施工图纸.学生公寓楼全套CAD学校入口台阶及值班室施工图.天虹花园别墅建筑施工图.大连***购物广场建筑施工图.大型商住楼平面.多种户型设计方案.多种住宅楼户型图.多层小高层等基本户型图.多层小高层等CAD建筑图纸.堤岸园多层住宅施工方案图.坡屋顶住宅楼地下室组合平面示意图.地下室人防建筑施工图.国外别墅规划设计方案.四层办公楼全套施带工图效果图.商场设计全套cad图纸.商住楼全套CAD建筑施工图.商业街建筑施工图带效果图.各式亭子施工图集古建筑立面建筑图古建亭子施工图集.古代风格办公楼建筑cad变电所建筑施工图.卫生院设计方案图.博物馆建筑施工图.南方某地十一层小高层住宅设计.南方别墅设计方案.南京西路主要老建筑CAD图纸.单体洋房单体建筑图.华丽型私人别墅.北方四合院建筑设计施工图纸(带效果图)别墅设计施工图.19别墅建筑施工图.农村小康住宅方案带效果图.农村住宅设计.农村住宅楼方案图.养老院建筑平面图.公园茶室cad施工图.公共厕所图全套办公楼建筑施工图带效果图.体育馆建筑施工图.住宅电梯高层户型图16住宅楼户型设计CAD参考图纸图集下载.住宅楼户型设计CAD参考图纸图集下载-9住宅楼户型设计CAD参考图纸图集下载-7住宅楼户型设计CAD参考图纸图集下载-6住宅楼户型设计CAD参考图纸图集下载-5住宅楼户型设计CAD参考图纸图集下载-22住宅楼户型设计住宅楼户型设计CAD参考图纸.住宅小区户型方案.住宅区临街商铺建筑施工图仿清式歇山古建(微缩新华门)设计施工图仓库建筑施工图五星酒店方案设计图纸五岭别墅园二层食堂建筑设计乡村别墅建筑图.38乐亭县东方嘉园2#楼施工图.临街的住宅设计图纸中式彩画CAD图块清式梁枋垫板彩画中小户型cad户型图.中学教学楼建筑施工图.上海XXX小高层住宅施工图纸.三层高档别墅.CAD图纸七层框架坡屋顶住宅楼施工图.6层框架结构办公楼图纸四套厂房建筑施工图-4.四套厂房建筑施工图-3-中标厂房设计图纸.四套厂房建筑施工图-2四套厂房建筑施工图-1三层独栋别墅建施图三层的厂房建筑全套施工图三层别墅全套建筑结构图.三十二层高层住宅建筑.图纸2层砌体别墅施工图.10大足群力新村农村别墅施工图.龙泉湖滨住宅扩初施工图高层住宅及小区建模.静音寺建筑施工图.装饰图例英伦风情的教堂施工图.花钵、树、花池大样图.绿化图块私家花园全套施工图纸.私人别墅3D模型图.清式斗拱做法详图.深圳植物设计图例集合.水岸豪门钻石C型别墅比较齐全的CAD图库歌舞厅装饰详图(CAD)歌舞厅装饰详图.楼盘全套CAD图.棕榈灌木图例***运河公园全套施工图.XXX渔港环境设计施工图全套***小学教学楼全套cad施工图***小区总平面规划图.一些的经典欧式建筑立面建筑CAD常用千种图块之仿古装饰.川西民居风格的商业街施工图全套山水草堂景观设计全套图纸(一)山水草堂景观设计全套图纸(二)山水草堂景观设计全套图纸(三)山水草堂景观设计全套图纸(四)山水草堂景观设计全套图纸(五)山庄别墅平面布置.室内平面素材库(一)室内平面素材库(二)室内平面素材库(三)室内平面素材库.多层别墅建筑图V国际花园别墅全套施工图.国家湿地公园景观施工图全套国外别墅规划设计方案图.国内高档别墅施工图全套古建筑门窗及花园围墙单元式多层住宅建筑施工图.北京中关村规划方案图化粪池构造图别墅全套建施图(含两张效果图)仿古船建筑平立剖面.丽都名邸3两层独立豪华别墅施工图上海康桥半岛别墅金沙苑建施图3层坡顶天都城法国古堡建筑施工图一套完整的别墅景观施工图.dwg一套完整的住宅施工图.一个公园的套图cad车模型CAD立面人和指北针推荐CAD平面图块集合.CAD制作的中国画CAD书法贴8000万1套的豪华别墅施工图纸5套多层住宅施工图纸3层独栋别墅施工图纸32层高层住宅建筑图纸12个别墅设计方案十套别墅平面图加效果图高层现代风格酒店方案设计dwg图纸及效果图钢管片拼装框架图柱间支撑计算书下载万科第五园效果图加CAD难得的老外的温泉会所方案CAD图国外温泉会所XXX乡村小别墅设计方案图纸***别墅方案图43山东曲阜孔林享殿测绘图牌楼建筑设计cad方案图***小区几套别墅方案图纸XXX区市联排别墅方案设计图纸***别墅设计方案图24***别墅方案设计图25全套三层别墅图纸附结算浙江省某热电有限公司办公楼图纸一套办公室施工图04某小型办公楼平面图17XXX消防队办公楼全套图纸***实业有限公司办公楼建筑施工图纸一份食堂办公楼全套图纸实用小办公楼全套cad图纸嵊泗引航办公大楼建筑施工图全套的办公楼建筑施工图***烟草公司办公楼全套建筑图某农村办公楼建筑图2***农村办公楼建筑图1某地区工商局建筑施工图***工厂办公楼全套施工图***办公楼设计建筑图***办公楼建筑平面及大样图某经典办公楼cad设计图纸XXX公司办公楼全套的建筑图纸高层建筑全套施工图纸休闲广场平面图别墅装修图纸曙光小区北区独立式住宅A型建筑语结构施工宝按花园试点小区一期工程建筑图纸一套高层住宅CAD施工图***校园建筑设计CAD图纸小别墅设计图含效果图武汉***电影院空调防排烟施工图屋顶花园采光顶钢架天津韩家墅农产品批发市场大门汽车站设计图,包括总平面及各层平面楼房院落布局详图两单元十三层商住楼图纸钢结构采光顶(cad施工图)福州市***别墅建筑图纸二独栋别墅建筑方案设计图茶馆设计方案别墅施工图附效果图别墅cad图纸+3D模型+效果图住宅小区总施工图小区会所dwg学校大门整套图纸新世纪康村镇居住竞赛方案-昆山市建筑设计上海中山广场建筑图纸清静阳房cad施工图***地税局门面建筑图纸XXX茶餐厅施工图XXX农村小康住宅建筑施工图***宾馆建筑详图美丰实验学校学校灾后重建工程cad建筑图纸楼梯节点详图江南***雅苑建筑设计洪雅县实验小学图纸杭州市江干区工商管理局办公楼建筑施工图国家大剧院建筑图纸1张***高层住宅楼平面建施图7住宅楼建筑施工图纸51一个户型多个方案XXX体育中心游泳馆、跳水馆设计图广州二沙岛南堤豪华别墅全套施工图v高层住宅户型图22XXX3层商住楼的施工图住宅电梯高层户型图***一套高层住宅施工图8***新建仓库设计图桐庐水晶机械运动有限公司办公楼建筑cad施工图桃溪中学综合楼全套cad图纸***花苑住宅建筑施工图***红旗小区北区6#楼建筑图***6+1层砖混住宅楼建施图节能住宅楼建筑图吉林省建筑装饰集团科技园二期工程-教学楼A工业场地联合建筑图纸高层住宅建筑全套施工图9大户型平面图集111错层住宅建筑设计图布吉户型CAD方案.碧桂园小区规划与户型平面100501022331XXX一套国外游泳池图纸***土地储备中心住宅综合楼施工图XXX农村徽派马头墙住宅楼施工图XXX厂区内宿舍5层建筑方案CAD图纸全套绿城公寓平面施工图XXX高层一梯十户紧凑型户型平面高层公寓建筑施工图***多层住宅施工图平面、立面、剖面齐全别墅设计全套建筑图23某盛安花园设计方案图XXX全套多层住宅建筑施工图***学校图书馆建筑图XXX商住楼施工全图联拼别墅1至4层平面方案图***建筑商住楼施工图四方重檐亭CAD建筑图纸湿贴石材踢脚节点图山庄餐饮部建施图tu***三室两厅单厨单卫户型图三开间前廊后无廊建筑cad平面图日本一级建筑事务所设计的别墅图纸人防地下室防爆墙大样CAD图纸农村建筑二层小楼CAD施工图纸***银行CAD方案图***小区设计方案大样图***小区地下车库施工图2***投资区电信接入点机房建施图***私人住宅楼方案图3***6班幼儿园建筑设计方案罗马假日(宏宇广场)cad户型图***六层住宅楼设计图6XXX两层商住楼设计方案绝佳户型平面图cad聚苯板外墙保温系统构造图cad九江500平别墅设计图纸锦绣香江cad户型图金域名苑户型图江畔明珠小区大门江南***户型图建筑大师PAUL SANTMAN代表作洛伊德伦敦住宅假日花园F户型几种,高层核心筒活动地板平面布置及详图恒宝华庭户型图海印南苑户型图光大花园户型图***高层住宅地下室(六级人防。
剖面图表示与建筑剖面设计要求和规定剖面图表示在垂直方向房屋各部分组合关系,在比例为1:100的建筑剖面图上绘制楼梯时,必须要绘出的部分是扶手,平台梁,圈梁。
剖面设计要确定各部分高度、建筑层数,空间组合利用。
在多层住宅设计中为了安全,阳台栏杆高度不应低于105m0在高层建筑中,阳台栏杆以实多虚少为好,栏杆高度不宜低于11m,外廊宜为封闭式。
层高:该层的地坪或楼板面到上层楼板面的距离,即该层房间的净高加以楼板层的结构厚度。
净高:楼地面到结构层(梁、板)底面或顶棚下表面之间的距离。
房间高度的确定依据:人体活动及家具设备的要求,采光、通风等卫生要求,结构层高度及构件方式的要求,室内空间比例要求,建筑经济效益要求。
房间采光、通风的要求通过照度及其均匀度表示,依靠平面中窗的宽度和位置(窗上沿离地距离)、剖面图中窗的高度(侧窗上沿),进深与窗高关系,单侧采光1∕21f双版IJ采光1∕41o某建筑层高3m,预应力楼板厚120mm,梁高600mm,那么二层的地面标高为3.000m o在没有特殊要求的普通房间中,窗台高度一般取900~1000mm o一般民用建筑窗台高度考虑略高于桌面高度,低于人坐下时的视平线高度,常取900mm o桌子一般高800mm o室内净高根据使用性质和活动特点的要求,由人数、面积决定,人多,占面积多。
活动尺度增加,室内换气大,净高增加。
校舍人稍多设双层铺,住宅居室人数少,比一般住宅层高3m要大一些。
某学校宿舍内为双层单人床,那么其宿舍层高可以是3.2m或3.3m o一般情况下,室内最小净高应使人举手不接触到顶棚为宜,为此,房间净高不应低于2.2m。
教室人多面积大,视听要求视线声音无遮挡地坪升起,反射声合理分布剖面形状(顶棚)学校合班教室的地面起坡或阶梯地面的视线升高值一般为12Omm,小于15Omm普通台阶踏步高度。
公共建筑主要出入口处的台阶每一级高度一般不超过150mm。
住宅的使用面积是建筑面积减去结构面积。
建筑平面图建筑平面图实际上是房屋的水平剖面图(除屋顶平面图外)。
把房屋用一个假想的水平面,沿门、窗洞门部位(指窗台以上,过梁以下的空间)水平切开,把切开下面的物体投影到所切的水平面上,这时从上往下看到的图形就是房屋的平面图。
建筑平面图主要反映了整个房屋的平面形状、大小和房间的数量和平面布局,承重墙(或柱)与隔墙的位置、厚度、材料以及门窗数量、类型、位置和尺寸等。
图内应包括剖切图和投影方向可见的建筑构造以及必要的尺寸、标高等。
如需要表示高窗、洞口、通气孔、槽、地沟等不可见部分应用虚线。
平面图宜与总平面图方向一致。
平面图的长边宜与横式幅面图纸的长边一致。
当同一页图纸上绘制多于一层的平面图时,则各层平面图宜按层数由低到高的顺序,从左到右或从下至上布置;对于平面较大的房屋,可分区绘制平面图,但每张平面图均绘制组合示意图。
各区分别用大写拉丁字母编号;住宅建筑按层数可分为:低层住宅≤3层多层住宅4~6层中高层住宅7~9层高层住宅≥10层多层房屋应画出各层平面图若楼层的平面布置相同,或仅有局部不同时,可只画出首层平面图标准层平面图顶层平面图屋顶平面图局部平面图一、首层平面图首层平面图也叫底层平面图,是指室内地坪为±0.000所在的楼层的平面图。
主要反映了房屋的平面形状,底层的平面布置情况,几个房间的分隔和组合、房间名称、出入口、门厅、走廊、楼梯等的布置和相互关系,各种门、窗的布置,室外的台阶、花台、室内外装饰以及明沟和雨水管的布置等等。
此外还表明了厕所和盥洗室内的固定设施的布置,并且注写了轴线,尺寸及标高等。
一、首层平面图应在首层平面图中明显位置标注指北针符号,用于指示房屋的朝向,指北针方向与总平面图一致;为防止雨水侵袭,除了台阶和花台下所有外墙墙角均设置有明沟或散水,绘制时可只在墙角或外墙的局部,分段地画出明沟或散水的平面位置,并以中粗实线表示;入口处要设置外台阶以防止雨水倒灌;上了台阶就是外门,再通过楼梯、电梯到各个楼层要去的房间。