城轨车辆外挂密封门设计
- 格式:ppt
- 大小:2.96 MB
- 文档页数:38
摘要随着我国城市轨道交通迅速发展,城市轨道车辆包括地铁、轻轨、电车等的需求量不断提高,运营速度不断加快。
城市轨道车辆以快速、大量的安全输送旅客为主要目标,车门是轨道车辆中的重要组成部分,直接影响着车辆的正常运行和旅客的安全和密封。
目前,城市轨道车辆中广泛应用了塞拉门结构的车门。
国内的动车组多数采用单翼塞拉门,地铁采用双翼塞拉门。
国内常用的自动门主要是气动门,如单翼气动塞拉门、双翼气动内藏式对开门,但是电动门作为一种新型的自动门系统,也逐渐被推广使用。
过去,轨道车辆自动塞拉门系统综合了机械、电气、控制和制造工艺等方面的高新技术,国内地铁、轻轨自动门系统市场一直由奥地利IFE、法国Faiveley 等国外公司占据。
自行开发研制适合我国国情的城市轨道车辆塞拉门系统,参与国内、国际市场竞争,有利于促进国产自动门产业技术进步,保护、促进和发展我国民族工业。
本文首先详细研究了轨道车辆塞拉门的传动及塞拉门的携门装置的结构,参考了国内外大量文献资料。
随后利用机械设计原理及方法,对塞拉门的结构进行了设计,采用塞拉门齿带双轴导杆槽型凸轮组合空间机构。
该装置主要利用步进电动机通过齿轮带动同步齿形带,在同步齿形带上装有上下齿夹,从而带动门板运动,通过双轴导杆槽型凸轮组合空间机构实现门的塞拉和直线运动。
最后,对所设计的塞拉门承载装置进行了分析和计算。
关键词:塞拉门;地铁;双轴导杆;目录摘要 (I)目录 (II)摘要 (1)第一章绪论 (2)1.1研究背景及意义 (2)1.2国内外研究现状 (3)第二章塞拉门结构设计 (5)2.1拟定总体结构方案 (5)2.2门板和门窗的设计 (8)2.3驱动机构的设计 (9)2.3承载装置设计 (11)第三章控制系统设计 (16)3.1PLC概述 (16)3.2分析塞拉门控制要求 (18)3.3电气控制原理 (19)总结 (22)致谢 (23)参考文献 (24)摘要随着国民经济的快速发展,城市轨道交通在各大中城市迅速发展,成为广大旅客出行的首选。
Internal Combustion Engine&Parts0引言城际动车组运行速度一般为160km/h~200km/h,良好的密封性能对保证车内乘客舒适度,降低车内噪音有着重要意义。
列车塞拉门作为乘客上下车通道,其密封性能直接决定整车密封性。
因此,提高列车塞拉门密封性能至关重要。
门扇密封胶条作为塞拉门重要部分,不仅对门系统密封性起决定作用,还对门系统隔音、防尘、缓冲具有一定影响,因此,合理的密封胶条设计,将提高塞拉门整体性能。
1城际动车组塞拉门密封设计1.1密封胶条设计原则车门、门框和密封胶条构成了塞拉门的密封结构,其设计要领为两点[1]:1.1.1胶条密封面压缩量:车体与门框之间的缝隙,密封胶条填充其中。
密封胶条接触面方向上的压缩量和接触面积直接决定密封性能,如果接触面积和压缩量偏小,则会因外部载荷变化、车体变形或者制造误差造成密封失效;如果接触面积和压缩量偏大,导致胶条反弹力偏大,关门力增加,造成关门困难。
1.1.2密封胶条结构型式:不同的密封胶条结构型式在相同负载情况下密封面积和密封压缩量均不相同,因此直接决定密封好坏。
密封胶条型式[2]分为两部分,一部分为密封胶条的整体外形布局,是整体封闭结构,还是间段封闭结构;一部分是胶条的截面形状,采用唇形密封还是压力密封。
整体密封结构是将不同截面的胶条或者相同截面的胶条硫化成一个密封环,可以实现很好的密封效果。
间段封闭结构是通过粘接的型式,将不同截面或者相同截面的胶条粘接在一起,形成密封环。
因为粘接面积制约,始终存在缺陷,且使用寿命较短。
密封胶条的截面虽各不相同,但从密封原理上还是分为唇形密封和压力密封。
唇形密封的胶条截面型式如图1所示,唇形密封最大的优点就是不需要很大的初始密封压紧力,气压越大,获得的密封压紧力就越大,其缺点是在气压建立的初始阶段泄漏量较大。
压力密封的胶条截面如图2所示,其优点是始终获得稳定的压紧密封力,随着车外气压p增加,胶条会紧紧贴着压条,缺点是结构复杂。
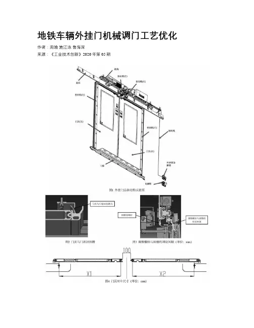
地铁车辆外挂门机械调门工艺优化作者:周瑜施江泳鲁海深来源:《工业技术创新》2020年第05期摘要:外挂门是地铁车辆中一种常用的客室门,其机械调门极易发生各种尺寸超差问题,影响地铁车辆运营稳定性。
对外挂门总体结构进行分析,总结出外挂门机械调门工序中常见的4种尺寸超差问题,提出针对性的工艺优化措施。
对于门页与门密封刮蹭现象,减少门密封的安装垫片数量,增大门页与门密封的间隙尺寸;对于门页上部高度调整螺栓与门悬挂雨檐刮蹭现象,缩短门悬挂调整螺栓的长度,有效降低干涉概率;对于门页对中尺寸超差现象,优化定位基准门密封的对中安装要求;对于开关门力过大的现象,重新调整门悬挂和门槛之间的平行度,保证开门顺畅。
经现场验证,机械调门尺寸超差问题明显减少,为地铁车辆制造企业和运营单位在车门安装、调试、故障处理等环节解决尺寸超差问题提供了有效的解决思路。
关键词:地铁车辆;外挂门;机械调门;工艺优化;尺寸超差;干涉中图分类号:U270.6 文献标识码:A 文章编号:2095-8412 (2020) 05-106-06工业技术创新 URL: http:// DOI: 10.14103/j.issn.2095-8412.2020.05.020引言随着我国科技的进步和制造业的飞速发展,城市轨道交通也得到了长足的发展。
地铁车辆客室门作为乘客频繁进出地铁的通道,是地铁车辆必不可少的关键部件之一[1]。
目前,地铁车辆的门系统主要有内藏门、外挂门和塞拉门[2]。
其中外挂门系统的门页和悬挂装置始终位于车体侧墙外侧,使得列车车内空间相对较大,可以抵抗大客流,且故障率低。
外挂门系统的缺点是会使地铁车辆运行过程中产生一定的运行阻力,且导致列车美观性差[3]。
同时,外挂门系统对使用地区气候要求较高,只适用于少风沙、少冰冻的地区。
在实际安装中发现,外挂门系统存在门页与门密封干涉、开关门阻力过大等异常问题。
本文就某地铁车辆外挂门机械调门中常见的尺寸超差问题进行分析探讨。
试析城市轨道车辆车门的密封性能城市轨道车辆车门系统采用的车门形式主要有三种,分别是塞拉门、内藏门、外挂门。
与内藏门和外挂门相比,塞拉门综合性能较好,具有较强的密封性和隔音效果,但影响塞拉门密封性的因素也不容忽视。
本文主要就影响塞拉门密封性因素中的车门安装、调整,密封条形式,门扇刚度等因素进行了分析,希望能不断促进塞拉门系统的改进,为城市轨道车辆的舒适和安全提供保障。
一、塞拉门优缺点分析塞拉门本身具有独特的优势,一方面是由于塞拉门的密封性可以做到连续性,也就是密封性能做到相对较好的程度;另一方面,塞拉门关闭后占据较小的车辆界面界限,也就是车门关闭后是与车体平齐,具有较好的美观性以及优越的空气动力性能。
另外,相同的车门面积下,塞拉门还能获得较为宽敞的车内空间。
因而,塞拉门整体性能的优越性以及可实现的良好密封性能是不可否认的。
塞拉门也有其自身的缺点,即其关门过程中的塞力在客流高峰期不足以将超出们平面内的乘客全部塞入车体,容易造成关门障碍。
塞拉门的这一缺点可能导致列车循环开关车门而无法正常运行,也是其无法完全取代其他两种车门的主要因素之一。
但是,这一缺点可以通过门口警示语提醒乘客注意,在人流量得以控制的情形下不会出现。
二、干线塞拉门密封性与舒适性关系轨道车辆正常行驶过程中,高速行驶的列车会在车体周围形成一个稳定的气流场,在车辆密封性能良好的情况下人体不会感受到这一气流场的寻在。
但在两车交会时,两车周围的气流场冲击的过程中会产生压力波,这一压力波在车辆密封性不良的情况下会使人体产生明显的不适,而且这一现象会在列车经过隧道的过程中加剧。
因此,必须提高车辆密封性,避免乘客在压力波冲击下出现压迫耳膜、头昏恶心甚至耳膜破裂的现象发生。
地铁车辆最易出现密封性不良的位置便是车门系统。
首先,车门系统的开关频率较大,是乘客进入列车的为宜通道,频繁的开合使车门系统成为影响车门密封性的重要威胁因素之一。
其次,车门系统的安装于调试也有相关的气密性标准和要求,要求车门系统在运行过程中能在一定压力环境下有较好的气密性保证。
城市轨道车辆电动内藏移门密封结构优化随着城市轨道交通的发展,越来越多的城市选择了采用电动轨道车辆作为主要的公共交通工具。
在城市轨道车辆中,移门是车辆的关键部件之一,它的密封性能对整个车辆的运行效果和乘客的舒适性都有着非常重要的影响。
因此,对城市轨道车辆的移门密封结构进行优化,将会对提高车辆的安全性、舒适度、能效等方面产生非常积极的影响。
本文将介绍一种城市轨道车辆电动内藏移门密封结构优化方案。
这种方案采用了双重密封和防风挡设计的方法,从而实现了对城市轨道车辆移门密封结构的全方位优化。
首先,我们对城市轨道车辆电动内藏移门的密封结构进行了分析,发现该结构常常存在以下问题:1. 密封不严:由于车辆在运行过程中,外部环境的温度、湿度、气压等各种因素不断变化,经常会导致车门密封不严,从而对车内的空气质量、车厢内部的温度和舒适度产生不利影响。
2. 防风挡效果差:由于城市轨道车辆经常运行在高速环境下,当车门开启时,车内空气的流动和外界风的进出十分迅速,防风挡的效果并不理想,往往会引起车内的气流混乱和乘客不适。
3. 耐久性差:传统的城市轨道车辆电动内藏移门常常出现开合次数多、密封性能下降、导轨磨损加剧等问题,导致车辆运行维护成本上升。
1. 双重密封设计:在车门内、外两侧都设置密封垫,以改进密封性能,同时在车门内部设置全封闭式防尘罩,起到进一步保护密封垫、延长车门使用寿命的作用。
2. 防风挡密封设计:在车门的底部、上方和挡风玻璃处设置密封垫,加强了车门与车体接触部位的密封性能,同时在大面积挡风玻璃处采用了一段呈“V”形的凸环,减缓进出风时的气流冲击,提高防风挡效果。
3. 导轨润滑设计:在电动内藏移门的导轨上喷涂导轨油,减小导轨摩擦损耗,保障车门的顺畅开合和延长车门使用寿命。
通过以上三个方面的改进,城市轨道车辆电动内藏移门的密封结构将得到全方位的优化和提升,从而有效提高车辆的安全性、舒适度和能效。
同时,这种优化方案的应用还将降低城市轨道交通运行维护成本,从而产生更加积极的社会经济效益。
城市轨道车辆电动内藏移门密封结构优化城市轨道车辆是城市轨道交通系统中不可或缺的一部分,它们通常需要在高峰时段运送大量乘客。
为了提高乘客的舒适度和安全性,车辆内部的设施和结构设计变得尤为重要。
车辆的电动内藏移门密封结构的优化对于车辆的性能和安全至关重要。
本文从城市轨道车辆电动内藏移门的设计、密封结构的作用以及优化方案等方面展开探讨。
我们来了解一下城市轨道车辆电动内藏移门的设计。
城市轨道车辆通常采用电动内藏移门,这种门在开启和关闭时可以自动完成,无需乘客进行手动操作,方便快捷。
这种设计也能有效节省车厢内部空间,增加了乘客的站立和就座空间。
电动内藏移门在保证车辆安全和舒适性的密封结构也显得尤为重要。
密封结构的作用是防止车厢内部空气流失,保持车辆内部的稳定气流状态,同时也可以起到阻隔噪音、灰尘等外部环境影响的作用。
密封结构的合理设计和优化对于车辆的性能和乘客的舒适度至关重要。
那么,如何优化城市轨道车辆电动内藏移门的密封结构呢?可以从密封材料的选择和使用上下功夫。
优质的密封材料能够有效地防止车厢内部空气流失,同时也能够有效地隔绝噪音和灰尘等外部影响。
可以通过优化密封结构的设计来提高密封效果,例如增加密封条的数量和加强密封条与门体的接触度。
也可以通过优化门体的结构来增加密封效果,例如采用双层门体设计或者增加门体的厚度等方式。
对于城市轨道车辆电动内藏移门的密封结构还需要考虑防水和防火等功能。
因为城市轨道车辆通常需要在不同的天气和环境条件下运行,因此密封结构还需要具备防水的功能,以防止雨水或洪水侵入车厢内部。
由于城市轨道车辆运行在地下或高架轨道上,密封结构还需要具备防火的功能,以保障乘客的安全。
城市轨道车辆电动内藏移门密封结构优化随着城市轨道交通的发展壮大,城市轨道车辆作为城市重要的公共交通工具,其运行性能和舒适性受到越来越多的关注。
车辆的密封结构作为车辆性能和乘客舒适度的重要组成部分,对车辆内部空气质量和噪音控制起着重要作用。
目前,城市轨道车辆的移门密封结构一般采用橡胶密封条与门框的搭接式结构,这种结构在使用过程中存在着密封性能不稳定、易损坏等问题,因此有必要对城市轨道车辆的移门密封结构进行优化。
分析目前城市轨道车辆移门密封结构存在的问题,主要包括密封性能不稳定、易受损以及维护成本高等方面。
由于橡胶密封条与门框的搭接式结构,容易受到外部环境的影响,长时间使用会导致密封性能的下降,甚至密封条的老化、龟裂和脱落。
橡胶密封条容易受到紫外线、氧气等因素的影响,导致密封性能不稳定。
传统的橡胶密封条结构存在一定的稳定性和耐久性问题。
为了优化城市轨道车辆的移门密封结构,可以采用电动内藏式密封结构。
电动内藏式密封结构是指将密封条直接嵌入到门框的内部,并通过电动机或气动机构控制密封条的伸缩,从而实现门的密封和解除密封。
相比传统的橡胶密封条结构,电动内藏式密封结构具有以下优势:1.稳定的密封性能:电动内藏式密封结构可以通过电动机或气动机构控制密封条的伸缩,从而实现对密封性能的精确控制。
密封条和门框之间的接触面积更大,密封效果更稳定,能有效阻止外部空气和噪音的渗透,提高车厢内部的舒适度。
2.抗老化能力强:电动内藏式密封结构不受外部环境的影响,密封条完全嵌入到门框的内部,不会暴露在外部空气和紫外线的作用下。
密封条的老化速度明显减缓,具有更长的使用寿命。
3.维护成本低:相对于传统的橡胶密封条结构,电动内藏式密封结构的维护成本更低。
由于密封条不易受损,减少了更换密封条的频率和费用。
在实际应用中,对于城市轨道车辆的电动内藏式密封结构还需要解决一些技术挑战。
首先是密封材料的选择,密封材料需要具有良好的弹性和密封性能,同时具备较高的耐磨、耐腐蚀性能,能够适应长期使用的要求。
城市轨道车辆的车门气密性设计摘要:城市轨道车辆车门系统的密封性,长期以来都是学者们关心的重点问题,密封性通常包括水密性和气密性,以往研究中关注更多的是水密性。
而随着科技的发展,城市轨道车辆速度不断提高,随之而来出现了如啸叫、振动、噪声大等诸多问题,对此,车门气密性的重要程度日渐突出。
基于此,文章通过对城市轨道车辆的气密性进行深入分析,针对城市轨道车辆车门气密性的提升提出了可行措施。
关键词:城市轨道车辆;车门;气密性设计现阶段,随着科技的发展,城市轨道车辆的速度也呈现出逐渐提高的趋势,随之而来的是,在车辆进出隧道、车辆相交时,必定会产生强烈的压力波动,在车辆未具备良好的密封性情况下,会直接影响到乘客的舒适度,降低乘客对城市轨道车辆的体验感。
一、城市轨道车辆车门系统概述随着城市轨道车辆速度的提高,人们对车门系统的气密性关注度也越来越高。
目前城轨车辆上应用的车门形式多数为塞拉门、外挂门、内藏门、外挂密闭门等。
塞拉门和外挂密闭门比其他两种车门具有更好的密封性,但外挂密闭门由于其结构特性(车门关闭后门板凸出于车体外表面),车辆高速运行时,在车门部位会产生较大的空气阻力及噪声。
因此,综合整车气密性及低风阻、低噪声等方面考虑,较高速度的城轨车辆通常使用塞拉门系统。
车门系统作为车辆运行中使用频次较高的部件,其密封性会直接影响到整车密封性。
鉴于此,文章将从整车的气密性、车门结构设计和实验验证等方面阐述车门系统应该如何保证整车的水密性和气密性要求。
二、车辆气密性指数与舒适性分析车辆的气密性通常是指列车在完成整备后,将所有与外界联系的开孔关闭,涵盖通过门和空调设备等,车内压力与车外对比下所产生的密封性能[1]。
而对整车密封性能的评价标准是对车内压力变化允许值规定来体现,借助气密性进行试验验证。
车辆气密性指标通常是借助静态、动态密封指数进行表述。
车辆在车外空气作用下会出现向车内传递空气的现象,而产生的压力波动会直接导致车厢内部气压产生变化。
城市轨道车辆电动内藏移门密封结构优化城市轨道车辆是现代城市的重要交通工具,它们以其高效、快速、环保的特点受到了越来越多的青睐。
在城市轨道车辆的设计中,电动内藏移门的密封结构优化是一个非常关键的环节。
本文将对城市轨道车辆电动内藏移门的密封结构优化进行详细的探讨,旨在为相关领域的研究工作提供一定的借鉴和参考。
一、城市轨道车辆电动内藏移门的密封结构概述城市轨道车辆的电动内藏移门是乘客上下车的重要通道,其密封结构的设计影响着车内空气的流通、车厢内外噪音的隔离以及乘客的舒适度。
密封结构的设计优化对于城市轨道车辆的整体性能和乘客的乘坐体验至关重要。
目前,城市轨道车辆电动内藏移门的密封结构通常采用橡胶、聚氨酯等弹性材料作为密封条,并通过与门框的紧密贴合来实现密封效果。
由于城市轨道车辆在运行过程中会受到温度变化、车辆振动等外部因素的影响,传统的密封结构在密封性能、使用寿命等方面存在着一定的不足之处。
二、城市轨道车辆电动内藏移门密封结构的优化目标针对传统密封结构存在的问题,城市轨道车辆电动内藏移门密封结构的优化目标主要包括以下几个方面:1. 提高密封性能:确保车厢内外空气的隔离,减少外部噪音的干扰,提升乘客的乘坐舒适度。
2. 增强密封条的耐久性:提高密封条的质量和使用寿命,降低维护成本和更换频率。
3. 优化密封结构的设计:使密封结构在温度变化、车辆振动等外部环境影响下仍能保持稳定的密封效果。
三、城市轨道车辆电动内藏移门密封结构优化的技术手段为了实现上述优化目标,城市轨道车辆电动内藏移门的密封结构可以采用以下技术手段进行优化:1. 材料优化:选用性能更优越的密封条材料,如硅胶密封条、氟橡胶密封条等,以提高密封效果和耐久性。
2. 结构优化:优化密封结构的设计,采用新型的密封条安装方式和门框结构,以提高整体的密封性能。
3. 智能控制:引入智能化的密封结构控制系统,通过对密封条的压力、温度等参数进行实时监控和调节,使密封结构在不同工况下都能保持稳定的密封效果。
城市轨道车辆电动内藏移门密封结构优化城市轨道交通作为城市公共交通的重要组成部分,具有运载能力大、运行速度快、交通效率高、对环境污染小等优点,因此在城市交通中日益受到重视。
城市轨道车辆是城市轨道交通系统的重要组成部分,其运营安全和运行效率直接影响着城市的发展和人民的安全出行。
城市轨道车辆的内藏移门密封结构是车辆密封设计中的重要组成部分,主要起到保持车内空气质量和车门周围气密性的作用。
当前市场上城市轨道车辆的内藏移门密封结构使用的普遍是橡胶密封条。
这种密封条具有耐老化性好、弹性好、密封性能好等优点,但在长期使用后会出现变形、劣化、老化等现象,其密封性能也会随之下降,使车门周围的气密性受到影响,导致车内温度不稳定、车内噪音等问题。
针对上述问题,本文将研究城市轨道车辆内藏移门密封结构的优化方案,以提高其密封性能和使用寿命。
具体优化步骤如下:第一步,采用新型材料。
目前,市场上已有一些新型密封材料,如泡沫密封条、硅酮密封条等,它们具有较好的压缩弹性、耐高温、阻燃、耐候性好等特点,可以用于制作车门周围的密封结构。
第二步,优化密封结构设计。
根据新型密封材料的特点,需要对现有的密封结构进行重新设计。
例如,可以采用三面式密封结构,即在门扇的三面(上、下、侧)采用密封条进行密封,提高车门与车体之间的气密性。
第三步,加强密封条的支撑力度。
在车门上加装支架,使得密封条可以充分接触车门和车体,提高密封效果。
第四步,增加密封条的控制装置。
在车门上增加开关控制器,使得开关门时能够保证密封条与车门最大接触面积,减少车门与车体之间的缝隙,提高密封效果。
综上所述,针对城市轨道车辆内藏移门密封结构存在的问题,可以通过选择新型材料,优化密封结构设计,加强密封条的支撑力度以及增加密封条的控制装置等措施来解决。
这样做可以提高车门周围的气密性和使用寿命,保障城市轨道车辆的运营安全和乘客出行的舒适性。