沈阳市公和斜拉桥施工图设计说明书
- 格式:doc
- 大小:22.50 KB
- 文档页数:7
##浑河富民斜拉桥〔双塔斜拉桥〕投标书施工组织设计审批:##铁路工程建设集团##一、编制依据1、##浑南新区管委会建设局关于《##浑河富民斜拉桥墩台及上部结构工程施工招标文件》、补遗书及答疑纪要。
2、公路斜拉桥设计规范〔JTJ027—96〕3、公路工程质量检验评定标准〔JTJ071—98〕4、公路桥涵施工技术规范〔JTJ041—96〕5、公路工程施工安全技术规程〔JTJ076—95〕6、拉索检验按GB5223-85、JTT041-897、钢筋机械连接通用技术规程〔JGJ107—96〕8、带肋钢筋套筒挤压连接技术规程〔JGJ108—96〕9、《低压电器技术规程》DB21/77-9410、《电气照明装置施工及验收规范》GB50258-9611、《建筑电气设计及施工技术规范》12、我方拥有的科学技术成果、工法成果、机械设备装备状况、施工技术与管理水平以及多年来施工实践中积累的施工经验。
13、现场踏勘及自行调查所获得的资料。
二、工程概况##浑河富民斜拉跨桥位于##城区南侧浑河长青桥下游约2Km处,南岸自##路起,北岸至富民街二环地道桥,全部工程由主桥、两岸引道及其附属工程组成。
是从市区通向浑南开发区跨越浑河的新干道的主要工程项目。
桥梁全长602m。
见图1。
本书投标范围:为0#至9#台承台以上的全部工程项目〔除斜拉索及锚具材料以外的墩台及上部结构施工〕,包括0#~3#、6#~9#墩身及其6孔连续刚构梁、3#~6#墩双塔斜拉桥,包工包料。
承台及以下基础已在另外合同包内完成。
合同名称:##浑河富民斜拉桥墩台及上部结构工程。
招标单位:##建设项目招标中心。
##市富民桥主跨为折线型单索面双塔独柱三孔预应力钢筋混凝土斜拉桥,跨径为89m+242m+89m,中间桥孔跨越浑河主河道,斜拉桥部分总长420m。
主塔位于4#、5#墩处,塔身为C50#预应力钢筋混凝土,矩形空心截面结构。
4#墩处塔、墩、梁固结,5#墩处塔梁固结、梁墩分离。
斜拉桥斜拉索施工作业指导书1.目的明确斜拉桥斜拉索施工作业工艺流程、操作要点和相应的工艺、质量标准,指导、规范桩基成孔作业。
2.编制依据(1)《斜拉桥施工图设计-拉索结构施工图设计》;(2)《公路桥涵施工技术规范》(JTJ041-2000);(3)《公路斜拉桥设计规范》(试行)JTJ027-96;(4)《斜拉桥热挤聚乙烯高强钢丝拉索技术条件》GB/T18635-2001;(5) 斜拉索安装的相关技术资料;(6)《公路斜拉桥设计细则》(JTG/TD65-1-2007)。
3.适用范围适用于斜拉桥高强平行钢丝成品索配合对称悬灌主梁施工的斜拉索施工。
4.技术准备4.1内业准备(1)开工前组织技术人员认真审核施工设计图纸和有关设计资料,澄清有关技术问题,熟悉规范和技术标准,编制斜拉桥斜拉索实施性施工组织设计,制定施工安全保证措施,提出应急预案。
(2)从事起重机械作业、登高架设作业、机动车辆驾驶等特种作业的人员必须持有特种作业证。
对所有施工人员进行岗前技术培训,作业前进行技术交底。
4.2外业准备4.2.1施工前检查工作(1)对已施工完成的塔柱和主梁段进行检查,并将检查结果报监理工程师进行审核,合格后方能进行斜拉索作业施工。
(2)在锚垫板上放出孔道口十字中心线,以便对中,如若锚头安装偏位会造成锚头外螺纹与孔口磨擦,影响斜拉索张拉力精度。
(3)对施工所用的平行钢丝斜拉索、斜拉索锚具生产厂家进行调查,选用供货商。
成品索进场后根据质保单进行严格查验,检查锚具,PE在运输过程中是否有损伤,如有损伤,及时采取修理措施并妥善保管;检验并核对成品索合同内的质量证明文件等是否齐全完整。
对需要进行试验和检验的项目要按规定进行试验和检验,确保工程材料的质量和数量满足设计、规范和施工的要求。
(4)对施工所需的设备机具,如塔吊、卷扬机、千斤顶、放索架等进行选型,组织进场、调试、安装,需要进行校正检验的进行校正检验。
(5)斜拉索安装前的清理检查:清除锚索管内的水泥砂浆、焊渣和管口处毛刺;清理锚垫板上的砂浆、焊渣等,保证锚固螺母与锚垫板密贴;检查锚头槽口尺寸,以确定千斤顶的安装位置。
斜拉桥工程专项施工方案.docx范本一:一:项目背景与目标:斜拉桥工程专项施工方案的编制是为了对斜拉桥的施工过程进行详细规划和指导,确保工程质量和安全。
本方案旨在确保斜拉桥的稳定性、功能性和美观性,最大限度地减少施工期间的影响和风险。
二:工程范围:斜拉桥工程的范围包括桥梁主体结构、土建工程、基础设施建设、电气设备安装等多个方面。
详细范围如下:1. 桥梁主体结构:包括主梁、桥塔、斜拉索、悬臂梁等部分。
2. 土建工程:包括桥墩、墩台、引道、护栏等部分。
3. 基础设施建设:包括交通引导、排水系统、通信系统等设施。
4. 电气设备安装:包括照明设备、监控系统、通信设备等。
三:施工流程:1. 桥梁主体结构施工流程:a. 桥梁主梁制造与安装。
b. 桥塔施工。
c. 斜拉索张拉与校核。
d. 悬臂梁制造与安装。
2. 土建工程施工流程:a. 桥墩与墩台施工。
b. 引道施工。
c. 护栏安装。
3. 基础设施建设施工流程:a. 交通引导设施施工。
b. 排水系统建设。
c. 通信系统安装。
4. 电气设备安装施工流程:a. 照明设备安装。
b. 监控系统安装。
c. 通信设备安装。
四:施工方法与技术:在斜拉桥工程施工过程中,采用以下方法和技术:1. 斜拉索张拉技术:根据设计要求进行张拉,并采用适当的检测方法进行校核。
2. 桥梁主梁制造技术:按照设计图纸进行制造,确保主梁的准确尺寸和强度。
3. 桥塔施工技术:采用脚手架和吊篮等辅助设施,确保施工安全和高质量。
五:工期安排:根据斜拉桥工程的施工范围和流程,制定详细的施工计划。
预计施工周期为365天,具体工期安排如下:1. 桥梁主体结构施工:120天。
2. 土建工程施工:90天。
3. 基础设施建设施工:60天。
4. 电气设备安装:30天。
六:风险管理:在斜拉桥工程的施工过程中,存在以下风险:1. 施工人员安全事故风险。
2. 施工设备故障风险。
3. 材料供应延迟风险。
为降低以上风险的发生,采取以下措施:1. 严格落实安全生产制度,确保施工人员的安全。
长春轻轨净月线伊通河桥施工组织设计编制单位:二〇〇三年四月八日目录一、编制依据---------------------------------------------------------------------1二、工程概况-------------------------------------------------------------------1三、自然条件-------------------------------------------------------------------1四、地貌、地质、水文及气象--------------------------------------------------1五、工程工期------------------------------------------------------------------1六、工程质量达到的目标------------------------------------------------------1七、劳动力准备--------------------------------------------------------------1八、机械设备------------------------------------------------------------------1九、施工总体部署------------------------------------------------------------1十、工程重点和难点----------------------------------------------------------1 十一、总体施工方案---------------------------------------------------------1 十二、具体施工方案----------------------------------------------------------1 十三、各项保证措施-----------------------------------------------------------1 十四、施工平面布置图---------------------------------------------------------1 十五、施工进度计划-------------------------------------------------------------1 十六、施工监控-----------------------------------------------------------1长春轻轨净月线伊通河桥施工组织设计一、编制依据1、轻轨净月线03号标段伊通河斜拉桥工程《招标文件》招标编号:JAZB2003-022、长春市快速轨道交通净月线工程施工图设计、工程编号:0194Q。
斜拉桥建筑设计及施工方案设计课题名称 XX大桥设计学院(部) 工程学院专业岩土工程班级 4081120122学生XXX学号 0指导教师谌会芹2011 年 11 月 18 日目录第一章方案比选 (1)1.1 气象水文、地形地貌情况 (1)1.2 方案比选 (1)1.2.1 比选原则 (1)1.2.2 方案编制 (1)1.2.3 方案比选 (2)第二章预应力混凝土独塔斜拉桥总体设计 (2)2.1 技术标准 (2)2.2 材料参数 (2)2.3 桥跨布置 (3)2.4 主梁 (3)2.5 索塔 (4)2.6 斜拉索设计 (4)2.7 基础 (4)第三章施工方案简述 (4)3.1 全桥施工 (4)3.2 基础施工 (5)3.3 主梁施工 (5)3.4 索塔施工 (5)设计规及标准依据的规有:中华人民国行业标准《公路桥涵设计通用规》(JTG D60-2004)中华人民国行业标准《公路砖石及混凝土桥涵设计规》中华人民国行业标准《公路钢筋混凝土及预应力混凝土桥涵设计规》(JTGD62-2004)第一章方案比选1.1气象水文、地形地貌情况桥区属亚热带气候看,温暖湿润,雨量充沛,四季分明,具有春早夏长,秋雨连绵,冻暖多雾之特点。
河流汇水面积广,流量充沛,水位具有陡涨陡落的特点。
河床两侧地质条件不均匀,一侧较好,一侧较差,地下水缺乏。
桥位区两岸属丘陵~低山区河谷地貌,桥位处于峡口下游河段,地形陡峻,相对高差较大,河床宽缓,断面呈“U”形。
1.2 方案比选1.2.1 比选原则比选方案主要依据安全、实用、经济、美观、有利于环保的原则,同时考虑要符合桥梁发展规律,体现现代新科技的成就。
桥型的选择要求在技术上是可靠的,在施工上是切实可行的。
1.2.2 方案编制(1)方案一:预应力混凝土独塔斜拉桥(2)方案二:钢筋混凝土拱桥(3)方案三:钢筋混凝土简支梁桥1.2.3 方案比选方案一:斜拉桥方案造型美观,气势宏伟,跨越能力强,拉索的作用相当于在主梁跨增加了若干弹性支撑,从而减小了梁弯矩、梁体自重,从而减小梁体尺寸。
x x斜拉桥施工方案根据施工整体部署,斜拉桥分南、北两岸对称施工,上、下游幅两幅的间距为基本上并列施工;南岸北仑侧工区负责施工的范围为:D0、D1、D2墩位范围的工程;北岸镇海侧工区负责施工的范围为:D3、D4、D5墩位范围的工程;索塔、主梁及斜拉索施工处于关键线路上,辅助墩、过渡墩、边跨支架段作为非关键工程,可根据关键线路上的工程进度,来确定其经济的开工日期、完工日期;索塔施工整体方案概述基本构造索塔为双菱形联塔,可分为上游幅索塔、下游幅索塔,每幅索塔有内塔肢、外塔肢两个塔肢,塔肢高度上可分为下塔柱、中塔柱、上塔柱,连接内、外塔肢的结构有塔座、下横梁、上横梁;塔座采用C40纤维混凝土,下塔柱第1m高度内采用C50纤维混凝土,索塔其他部位采用C50混凝土;塔肢纵桥向宽度由塔顶7.0m单斜率变化到塔底;索塔一般构造图塔肢横桥向宽度:中、上塔柱基本宽度为,为单箱单室横截面;单幅索塔的上塔柱内、外塔肢连成一体,形成单箱三室横截面;上、下游幅索塔的内塔肢在下横梁中线以上、以下范围内连成一体,形成实体断面或者单箱小二室横截面;下塔柱由4.0m双斜率塔肢内外侧面斜率不同变化至塔座顶面的,为单箱单室横截面;索塔上斜拉索锚固段设水平预应力钢绞线束来平衡斜拉索产生的水平力,预应力在上横梁及其以上高度的索塔内呈“井”字,锚固在索塔外表面;预应力在上横梁以下段呈“U”型布置,锚固在索塔塔壁内;施工工艺流程图索塔总体施工工艺流程图索塔分段、模板体系、基本工期索塔分节示意图含中、上塔柱脚手架塔柱总工期为:360d=325d+35d特别因素塔吊、电梯、砼泵管、水电布设,各种预埋件塔吊每个索塔选用1台波坦MC170A塔吊臂长55m,起重量19kN;最大起重量80kN,在范围内安装在左右幅的中间、1台QTZ6015塔吊臂长35m,起重量35kN;最大起重量100kN,在范围内安装在边塔柱的外侧,整个索塔都处于吊装范围内,两台塔吊安装高度分别为159m塔柱高度、149m;斜爬电梯安装在另一外塔肢的外侧;制定塔吊台风期安全技术方案;施工电梯、爬梯施工人员到达作业面的方法施工电梯采用SCQ100载货载人电梯1台,电梯安装起始高度与原地面平齐,布置在边塔柱外侧面;在下塔柱施工时,人员通过专用脚手架到达施工作业面;在下横梁施工时,人员通过专用脚手架到达施工作业面;上塔柱施工时,通过电梯直接达到边塔柱爬架的–3号平台;上塔柱施工时,在下横梁处设置平台,通过电梯到达下横梁平台后,通过座落在下横梁上的支架兼泵管、水管、爬梯可到达中间塔柱、边塔柱的顶操作平台即+1号平台;上塔柱施工时,通过电梯直接达到边塔柱爬架上即可;另外上塔柱内腔,可考虑随高度施工永久性工作爬梯;水索塔用水的储水池用钢护筒改造而成,由多级高压水泵直接从储水池中取水,2条φ38mm上水管线与泵管线一同沿座落在下横梁上的支架兼泵管、水管、爬梯到达爬模系统的顶操作平台即+1号平台,采用能承受3MPa的优质铁管,套丝连接;在爬模+1号平台上设2个储水桶,以备消防、应急;动力电、照明在承台顶面上设1台低压配电箱,分别输送给塔吊、施工电梯、高压水泵的专用配电箱;随座落在下横梁上的支架布置动力电缆,在塔吊塔身上设置备用动力电缆,在塔柱施工工作面上设小型配电箱,以满足工作面上的电焊机、振捣器、照明、液压爬模等电力需要;动力线路与照明线路分离;塔柱内照明电路采用36V低压冷光源,内壁应每隔10米附照明灯;大型照明灯具设置在塔吊升降节上,在液压爬模上设低压小型灯具;预埋件严格按照专用规范索塔及主桥墩-1-23,专用规范索塔及主桥墩-1-25, 专用规范索塔及主桥墩-1-27施工;主要包括承台上的预埋件、下塔柱的预埋件、上塔柱外壁预埋件、上塔柱内壁预埋件;一般预埋件安全系数为,起重预埋件的尺寸和埋入长度应该使它能发挥出设计所需的力量,并保有够大的安全系数,一般采用安全系数为5,其中是考虑冲击作用、吸附力和偏心力;斜拉索锚固区足尺模型试验索塔锚固区U形预应力束施工是高空作业,由于该区段受到斜拉索强大的集中作用,结构受力复杂;预应力筋束定位是否准确,张拉是否到位,直接影响塔柱内力,加之该区段钢筋较多,又有劲性骨架,锚下局部加强钢筋等干扰,施工难度较大;因此在施工前作足尺模型试验,对小半径U形预应力束的定位、穿束、张拉、真空吸浆工艺等进行探索,积累经验,以指导施工操作;上塔柱环形预应力足尺模型暨塔柱首件工程,和科研项目“xx特大桥锚固区节段模型试验”相结合;斜拉索锚固区足尺模型试验由设计院、西南交通大学主持,我方协作完成土建工作;同时考虑抗剪预埋件、索塔表层钢筋网的定位与混凝土密实性试验;钢筋网的净保护层为2cm,与索塔外壁箍筋的净间距为,选购适用该部位振捣的插入式振捣棒;主要技术1)混凝土外观质量包括裂缝预防控制;环向预应力张拉、压浆控制,避免对已浇筑索塔的污染;2)监测塔肢的变形、变位,并进行相应调整,以保证塔柱设计要素;3)根据索塔混凝土参数、理论计算对索塔压缩变形进行分析,考虑设置相应的预抬量,以消除混凝土收缩、徐变和塔柱弹性变形的影响,以确保斜拉索在塔上锚固位置的精确;索塔混凝土中粉煤灰掺入最应≤15%;4)索导管定位技术5)混凝土泵送工艺6)台风期安全施工安全7)上下游幅索塔内塔肢联体部位的钢筋、混凝土施工工艺9)模板的收、分、组合,要严格其接口的封闭;10)仔细分析上塔柱突出索塔表面的锚头对爬架系统、模板的不利影响;各种预埋件精确定位、安装可靠,不得遗漏;精确预埋爬模系统的预埋件,确保其节段顶标高;钢筋、劲性骨架竖向主筋均采用滚轧直螺纹机械连接,并利用劲性骨架进行钢筋的空间定位;劲性骨架采用L100×100角钢主弦杆及L75×75角钢腹杆形成桁架;下塔柱施工时,在地面加工成一定尺寸的考虑预偏的个体,逐个拼装,上塔柱开始时,考虑整体吊装;混凝土C50泵送混凝土,采用1台120m3/h拌和站,1台HBT80拖泵泵送,低压高频振捣系统;混凝土垫块强度应大于等于主体混凝土强度;两阶段施工图变更设计第二册第三分册S5-3-1-8页“施工要点”第6点:混凝土强度到达设计强度的85%后方可张拉预应力;预应力管道采用塑料波纹管,真空吸浆工艺;通气孔采用φ110×管;防雷系统S9-2-01:对防雷系统进行了明确的要求;4个避雷针,保证8根钢筋自上而下包括钻孔桩贯通;索导管用φ12钢筋连通起来,并与索塔接地钢筋焊接;桥面系内接地钢筋与索塔接地钢筋焊接;索塔钢筋采用套筒时,要用φ12绕形焊接;支座预埋件与接地钢筋焊接;支座上下用40×4的扁铁与接地钢筋焊接,接地电阻应小于1欧姆;索塔桩基础应有不少于33根桩每桩2根1号钢筋作为接地,承台、塔座内利用φ32钢筋做均压环;索塔内+以下每个塔肢用8根主筋作为接地、不设均压环;索塔内+及以上每个塔肢用4根主筋作为接地、每6m高度设优先采用水平钢筋作为均压环,但似乎要求采用圆钢筋塔顶消雷器与索塔主筋4根焊接;每阶段或节段完成后,应进行接地电阻测量;下塔柱第1~第5节段混凝土尽可能采用全自动液压爬模以下将全自动液压爬模分成爬架、爬模两部分;分5节段混凝土,每节段平均施工时间为12d,共60d;工艺流程下塔柱施工工艺流程图模板、支架、脚手架泵管、水管索塔第1节段~第7节段模板支架体系外模基本采用爬模,通过裁剪来适用每节段混凝土的变化;其他面的裁剪要考虑到在裁剪后是否能应用到中塔柱;内塔肢第4节段底模采用木模,建筑钢管脚手架为支架,预埋H型螺母将该模板靠紧塔柱;下塔柱外倾力平衡结构主动张拉结构由于下塔柱塔肢外倾,施工时混凝土、模板、施工机具等荷载偏离塔柱形心,使塔柱处于偏心受力状态,使内侧边缘因受拉,一旦超过C50混凝土的极限抗拉强度,将形成裂缝,同时会使塔柱偏位;为此,通过设置主动张拉来形成反弯矩,抵消M;两阶段施工图变更设计第二册第三分册S5-3-1-8:施工至+时,在+处设临时拉杆,拉力2500kN;施工设计图第二分册图S5-2-6索塔施工主要流程图表明:可在塔肢联体前张拉临时钢绞线来平衡外倾力,即第5节段混凝土顶面位置的预应力钢绞线;但只能等第6节段混凝土完成后才能张拉;临时预应力考虑用32精轧螺纹钢及连接套,塔身处预留PVC管道;由于下塔柱主动拉杆计算工况的复杂,应在下塔柱相关截面根部、拉杆截面设置应力观测,并在设计主动拉杆时,考虑张拉储备、放松的可能;混凝土塔柱联体部位、下横梁与索塔交叉部位的砼需采取降低水化热、防止温度应力裂缝的措施;木模板用水性脱模剂,脱模剂的涂刷应均匀,不漏刷,经雨雪后应重新涂刷一遍,严禁使用废机油;消除错台的基本方法:在模板下口用少量的玻璃胶、柔性水泥或金属腻子把缝隙涂满,模板的下层拉杆离混凝土面不宜>20cm,必要时设扒锥将模板下口与混凝土紧贴;圈2cm厚的限位木条,以方便控制,当混凝土浇筑完成后进行施上缝凿毛,认真保护好接缝线,使得上、下节段混凝土的接缝顺直;混凝土浇筑前,对接缝表面进行检查清理;混凝土浇筑时,充分振捣接缝两侧的混凝土,使得缝线饱满密实;塔柱节段混凝土的数量为89~208 m3,设计容许的模板的侧压力为50 kN/ m2,因此混凝土的灌注速度应控制在25 m3/ h以下,塌落度控制在16~18 cm,初凝时间控制在6~8 h;当混凝土倾落高度大于2m时,应采用串筒,通过控制混凝土的塌落度和浇筑高度,保证混凝土不离析;采用φ30mm振捣棒插入主钢筋与钢筋网片之间进行振捣;混凝土浇筑时应分层、均匀、对称进行,同时尽量减小混凝土坍落度;混凝土浇筑应连续进行,若因故必须中断时,中断时间不得超过范本第410节表410-20的规定,否则应按施工缝处理;泌水要及时清除;必要时,清除顶部混凝土浮浆;采用喷洒养护剂进行养护,即脱模后用喷枪喷养生剂,养生剂喷两遍,对混凝土表面形成封闭面膜,混凝土内部水份不能蒸发,从而达到养生的目的;养生剂不会对以后表面涂装产生不利影响;也可采用自制的环形喷射装置,并安装在爬架上同步升高,定时喷洒,效果较好;冬季施工时采用拆模后包塑料薄膜及挂泡沫塑料板方法进行保温养护,其它时间采用拆模后涂刷两度养护液进行养护;冬期养护混凝土的模板和保温层的拆除,应在混凝土冷却到5℃后方可进行;当混凝土与外界温差大于20℃时,拆模后的混凝土表面,应采取使其缓慢冷却的临时覆盖措施;离混凝土顶面标高一定高度内如50cm~60cm要逐渐调小混凝土坍落度,减少顶部灰浆,防止因灰浆过多,造成混凝土强度偏低、上下塔柱颜色不一致、混凝土产生收缩裂缝等不利影响;质量标准必要时,采用角钢对阳角进行保护;上下游幅索塔的下横梁联体预应力通长,长度,单箱单室结构,顶宽,底宽,6m高,壁厚;两阶段施工图变更设计第二册第三分册S5-3-8:下横梁预应力仅布置在顶、底板;下横梁可分2次浇筑含相应部位的塔柱,分别为第6节段、第7节段,计划工期50d;工艺流程图下横梁施工工艺流程图模板、支架、脚手架下横梁支架示意图横梁支架系统由钢管柱及其平联、纵联、钢砂筒、H400横梁、H200小纵梁、分配梁、模板组成;钢管柱采用承台基坑支护拆除下来的φ610mmδ8mm钢管,钢管柱底部与承台顶预埋“H”型螺母直接螺栓连接;钢管柱顶部、底部浇筑60cm高C20 混凝土或者δ10钢板十字撑板,以确保局部稳定性和轴向抗压;为在横梁施工完成后能顺利地脱模,在钢管柱顶部设置钢砂筒;预应力2料波纹管,压浆采用真空辅助压浆工艺;下横梁预应力钢束的张拉锚固位置设在塔柱外侧,而该侧有塔柱密集的钢筋束和角钢劲性骨架;为了避免预应力张拉端槽口开得过大而切断塔柱的竖向钢筋,预应力钢绞线采取深埋锚工艺,将原设计埋置深度15~20cm沿张拉轴线方向延伸至30~40cm,并相应延伸张拉接长板;锚垫板按套筒设计要求对螺栓进行攻丝,套筒外缘距塔柱外侧表面为5cm,施工塔柱时先用泡沫塑料封堵套筒,防止施工时混凝土进入套筒内;混凝土浇注前应安排专人对预应力管道位置进行检查,波纹管固定措施到位,防止混凝土浇注过程中上浮,对损伤的管道立即进行修复;混凝土浇注过程应控制振捣棒不碰触预应力管道,以免防止损伤波纹管造成漏浆,给预应力施工时带来困难;部分空间狭小的部位使用25、30型振捣棒进行振捣;预应力材料表面的油污等只能用中性洗涤剂;钢绞线采用单根后穿束,在单根钢绞线头部套上钢性子弹头帽,人工将钢绞线逐根穿入管道;严格按照图纸、设计要求顺序进行张拉应力,一般遵循以下原则:从腹板中部上、下对称张拉且两腹板对称张拉;压浆时、压浆后5d以内温度应大于+5℃;混凝土混凝土在搅拌站集中拌和,2台输送泵泵送到下横梁位置;第一次混凝土浇筑从中间向两端斜向分层、水平分段进行浇筑;第二次混凝土浇筑从两端向中间斜向分层、水平分段进行浇筑;混凝土浇注必须在初凝前完成,混凝土缓凝时间要求达到20 h以上;混凝土入模温度应≤30℃,当蒸发率大于0.5 kg/m2h时,则不宜浇筑混凝土;在塔柱部分布置散热水管,按大体积混凝土施工方法施工;送审稿S5-2-1-5规定:塔柱、上下横梁及侧壁混凝土必须达到设计强度85%时,才能施加预应力,其张拉吨位、张拉顺序详见有关图纸;避免内腔倒角处“翻浆”,除增加压脚模板外,还要控制坍落度及浇筑速度;混凝土浇筑从中间开始至两端;设一定的预拱度>下沉量;两端支架立在塔肢上,减小下沉量;质量标准标高+至上横梁弧形起点++–,约;采用全自动液压爬模,每节段混凝土浇注斜向长度一般为,垂直高度为,18节段混凝土高度为;2200kN;施工至+时,在+处支撑1950kN;施工至+时,在+处支撑2000kN;考虑内塔肢联体部位液压爬模的爬架“打架”,前后异步施工增加的工期2个节段的时间,18个节段混凝土计划工期为68~13×9+1214~25×6+14=140d;工艺示意图每节段混凝土施工流程每节段混凝土施工流程图中塔柱水平主动临时支撑随塔柱施工不断升高,塔肢在自重、爬模、施工荷载及风荷载等作用下,塔肢外侧面会产生较大拉应力,因此在塔柱施工的同时必须每隔一定距离设置水平主动临时支撑;水平主动临时支撑对塔柱线形也起到调整作用,且将塔柱在施工过程中形成框架,有利于结构的稳定;水平支撑系统的设计包括水平支撑系统支撑位置、主动力大小和水平支撑系统结构设计三个主要方面;水平横撑设计应达到的目标:1)施工过程中,主要荷载组合下,塔柱各截面拉应力不超过1MPa;2)水平横撑拆除后,成塔线形、弯矩与设计基本一致;水平横撑位置应满足施工工艺和施工空间要求,爬架高度会影响主动横撑的位置;索导管定位目前,高索塔的拉索索导管定位,均采用三维空间极座标法;此法借助全站仪利用施工专用控制网,进行空间三维坐标测量;直接测拉索索导管锚垫板中心和塔壁外侧拉索索导管中心.从而进行定位调整;它将以高精度、高速度提供放样点,同时克服施工干扰给测量带来的困难,大大提高了工作效率;拉索锚垫板中心和塔壁外侧索导管中心的标定,是用一定厚度10mm的钢板加1个半圆形的标定器和1个圆形中心标定器来测定锚垫板和索导管的中心;一,定位精度为防止拉索与索导管口发生摩擦而损坏拉素,以及保证对称于索塔的中跨、边跨侧各拉索位于同一平面内,防止偏心而产生的弯矩超过设计允许值,对拉索锚垫板中心和塔壁外侧索导管中心的三维坐标位置提出了很高的精度要求;1.锚固点空间位置的三维允许偏差±5mm专用规范;2.导管轴线与斜拉索轴线的相对允许偏差±5mm;根据公路桥涵施工技术规范JTJ041-2000-19.5.2-1规定,及公路工程质量检验评利用全站仪依据控制网的放样参数进行每节段的施工放样;由于受日照、气温及风力等外界条件变化的影响,索塔会处于一定幅度的摆动之中,己浇塔柱顶部会产生一定量的水平位移,且在不同时间位移量也不相同,这一差异随着塔身升高而逐渐增大;为此,要对塔柱近的气温条件下进行;上塔柱越往上,自由端越大,风荷作用会使塔体摆动摇晃,对测量工作影响较大,因此选择适当的气候和时机是首要的,实践证明只有在两种自然条件下可行:1阴天,3级风以下;不管什么季节,阴天无日照,塔体周边不存在温差效应,此时测控效果较好;2 0时至凌晨6时,3级风以下;可根据季节日出时间确定测控时间下限,此时效果最好;增加索导管部位劲性骨架的局部强度,以减少索导管因劲性骨架而引起的弹性变形,此方法也是减少索导管定位偏差的重要一点;索塔上定位的方法由于每对索导管的间距都不一样,以及劲性骨架制作安装的误差,很难在地面上将索导管定位准确,所以将初定位、终定位均放到塔柱上进行,更能保证精度和节约时间;步骤如下:01.将劲性骨架统一制作,在塔柱上定位;02.测量索导管的位置,对索导管位置处的劲性骨架进行加固,根据测量放样位置设置托架及吊点,最后将索导管放置在托架上,进行初次的定位;03.初定位时,根据索导管的倾斜角度,先用手拉葫芦吊起索导管,适当调整托架位置,以不超过测量放样索导管下口最下边的高度为准,焊接托架托住索导管底,然后调节手拉葫芦形成初定位的角度,最后用紧弦器固定索导管的位置;04.在精确定位前必须对索导管进行检查,检查定位角钢是否位置正确;索导管的实际长度是否与测量组计算的长度一致;索道管内壁油漆是否涂刷合格等;05.由测量组将全站仪棱镜放置在索导管上口中心点处,复核此时索道管的偏差,通过手拉葫芦及紧弦器调整索导管的位置;同样的,在由测量组将全站仪棱镜放置在索导管下口中心点处,Y方向可用厚度不同的钢板进行支垫,X、Z方向可用紧弦器调整;06.用水平靠尺放在索道管上下口的定位角钢上,调整紧弦器及固定葫芦,使水平泡居中,即可以将索导管自身 N方向调整达规范要求,这样将第一、第二步骤循环进行调整,最终使索导管的位置误差达到规范允许的范围;分四个方向循环调整索导管的空间位置如图八所示,以达到规范的要求;07.对索导管进行固定;由于索导管精确定位后再不允许索导管有任何位移、变形,采取在索导管周围的劲性骨架上焊接废旧的φ32钢筋,使钢筋尽量多的从个各角度对索导管形成支顶,使索道管完全固定在钢筋支顶力下,且杜绝在索道管上随意焊接;08.将在索导管预上预先焊接好的锚固钢筋按图纸与主筋焊接,确定索导管完全固定牢固后,解除手拉葫芦、紧弦器等临时锚固设施;以上步骤均在测量组配合下进行,直至临时锚固设施拆除;在浇注完混凝土后,对索导管进行复测,并记录安装误差为下一步相关施工做好准备;环形预应力安装波纹管的安装定位没有采用等劲性骨架、普通钢筋完全施工到位后再穿入波纹管的施工方法,而是在劲性骨架焊接成形后就穿波纹管,整体吊装,然后再绑扎普通钢筋,以提高孔道的安装精度;确、稳定;在绑扎主筋的横向箍筋到波纹管处时,同时绑扎波纹管的防崩钢筋;将锚座逐个临时固定在主筋或箍筋上,并连接好波纹管,再用螺栓固定在槽口模板上;为防止波纹管漏浆,在锚座安装结束后,在波纹管内穿入一根胶管,待混凝土初凝后拔出;如有波纹管变形,马上处理;塑料波纹管的刚度较大,在低温状态下自然弯曲成R = 160 cm 的形状有一定困难,且易产生折断裂纹,施工采用喷灯火焰辅助热弯,在温度稍高时,也可采用自然成形;波纹管固定采用“U ”型卡,对小半径预应力管道采用圆弧型螺旋筋保护措施;每束12根,分4小束4次穿完,每小束疏理并2m 一段进行绑扎,采用人工穿束方法; 张拉的严格要求S5-2-1-5页“施工要点”中第6点:塔柱、上下横梁及侧壁混凝土必须达到设计强度85%时才能施加预应力,其张拉吨位、张拉顺序详见相关图纸;所有预应力钢绞线均采用两端张拉;张拉预应力要求按张拉吨位、钢束引伸量双控制,以张拉吨位为主,以伸长量进行校核,伸长量计算是以倍张拉控制力为起点,取 Ep=195000MPa 进行计算;在一束钢丝中断丝不得大于1%,一根钢绞线中断丝不得超过1根;环向预应力束张拉伸长值控制:由于预应力钢绞线布置的线形为半环形,而且转弯半径只为130cm 、165cm ,故12根钢绞线各自的平面、竖向位置均不一样,在预应力钢绞线两端加上同等级的张拉力后,12根钢绞线必然进行重新紧密排列组合,在12根钢绞线中,贴近波纹管转弯内壁的转弯半径最小的钢绞线受力相对较大,而转弯半径最大的受力相对较小,这就造成在张拉时12根钢绞线受力不均,导致部分钢绞线代替全数钢绞线完成了张拉控制力,相应的伸长值就超出原设计允许伸长值,产生了附加伸长量;试验证明,上塔柱U 形预应力张拉施工中设计伸长量与实际伸长量存在一定误差,不能如实反映现场实际情况,可通过足尺节段试验进行总结分析;上塔柱环向预应力张拉伸长量按下式进行调整:下限为锚点间设计伸长值+两端工作长度伸长值;上限为下限值×+15mm;由于张拉吨位大,曲率半径小,为保证每根钢绞线受力均匀,其张拉程序为:0→25%k σ→80%k σ→5%k σ→25%k σ 初读数→100%k σ持荷5分钟,测量最后伸长值;预应力施工中严格注意以下几点:1) 锚具安装过程中,确保锚板、索孔与千斤顶处在同轴线上,减少锚圈口的摩阻损失;2) 严格控制各级张拉力,确保两端在张拉力实施中同步和准确性;3) 在钢绞线预张拉时,预张拉力控制在控制荷载的25%,0~25%张拉阶段的伸长值选用25%~50%张拉阶段间的伸长值;4) 由于预应力钢束较短,其最终伸长值也较小,故在张拉过程中,要求操作人员对张拉伸长值仔细读数;由于施工场地小,除采用较小的高压油泵和更轻便的千斤顶外,还要对张拉端口处认真处理,使张拉有足够的空间位置,保证机具设备的运用自如;水泥浆指标控制:流动度20~30s,水灰比~,膨胀剂PLOWcable 和缓凝剂分别为水泥重量的3%和%,设计标号50,泌水率小于水泥浆初始体积的1%且24小时内水泥浆泌水应能被吸收,初凝时间≥3h,体积变化率0~2%;钢筋、混凝土、预应力工程特别规定。
沈阳市公和斜拉桥施工图设计说明书沈阳市公和斜拉桥位于沈阳市老道口,横跨沈阳站站场,现受沈阳市快速干道系统工程建设指挥部的委托,由沈阳市市政工程设计研究院与大连理工大学土建勘察设计研究院联合设计,以大连理工大学土建勘察设计研究院为主设计(设计责任单位).(见设计委托书)。
一、设计依据1.《沈阳市快速干道系统工程指挥部第七次会议纪要》-代设计委托书;2.《沈阳市公和桥主桥岩土工程勘察报告》;3.沈阳市规划设计研究院提供的‘东西快速干道’规划设计及道路红线图;4.经市领导审定的公和桥方案图;5.沈阳市城乡建设委员会‘沈阳建发[1997]30号文件。
二、设计标准1.设计荷载:行车道:设计荷载汽-20,验算荷载挂-100人行道:3.5KN/m2非机动车道:4.0KN/m2,汽-10验算2.桥面宽度桥全宽32m,双向六车道双侧人行道各宽1.8m下层非机动车道宽4.5m桥面横向布置(半幅):1.85m人行道+0.5m路缘+11.25m(3 3.75)车行道+0.5路缘+0.2m 护栏+3.4m/2索塔=32m/23.设计时速:80Km/h4.基本风压:700Pa5.设计地震烈度:7度,按8度设防6.桥上纵坡:2.5%,竖曲线半径3000m7.桥下净空:≮7m三、地质条件桥位位于沈阳站以北老道口跨线桥北侧20多米处,在铁路站场内,地形平坦,地下岩层埋置较深,由钻探资料可知,地层大致为杂填土厚度 1.00~3.2m,以下依次为亚粘土3.30m~6.20m,中砂0~4.20m,砾砂6.40~13.80m,亚粘土0~3.10m,圆砾14.00~20.30m,圆砾含土8.80~13.10m,其下为砂砾岩(泥质胶结,强风化,呈土状)。
地下水位埋深12m左右不存在液化土层地震基本烈度为VII度场地标准冻深为1.20m月平均气温:1月-12℃,8月24.6℃,极端温度:-30.6℃和38.3℃四、设计规范1.城市桥梁设计规范准则2.公路桥涵设计通用规范(JTJ021-89)3.公路桥涵地基与基础设计规范(JTJ024-85)4.公路钢筋混凝土及预应力混凝土桥涵设计规范(JTJ023-85)5.公路工程抗震设计规范(JTJ004-89)6.公路斜拉桥设计规范(试行1996.12.1)7.施工规范:现行公路桥涵施工技术规范五、桥梁总体布置公和斜拉桥桥为单索面独塔斜拉桥,跨径为114m+120m,桥全长236m,建筑面积上层为755m2,下层为2242 m2,共计为9794 m2。
沈阳市盛京斜拉桥主塔设计比选李洋【摘要】沈阳盛京桥是沈阳沈北新区跨蒲河上的一座景观斜拉桥.本文通过方案比选,介绍了沈阳市盛京桥钢桥塔的设计思路,包括钢桥塔的构造型式、锚箱设计、柱脚设计、节段连接设计以及制造安装工艺等几个方面内容,可供同类桥梁设计人员参考借鉴.【期刊名称】《辽宁省交通高等专科学校学报》【年(卷),期】2014(016)002【总页数】4页(P24-27)【关键词】盛京桥;钢桥塔;钢锚箱;柱脚【作者】李洋【作者单位】沈阳市市政工程设计研究院,辽宁沈阳 110015【正文语种】中文【中图分类】U443.281 概述沈阳盛京桥(原名:尚小桥)位于沈阳市沈北新区,跨越蒲河。
桥梁结构型式为单跨单索面双背索独塔斜拉桥,跨径为100m,桥梁总宽为34.4m。
主塔高58.72m,塔身水平倾角为75.052°。
桥梁立面如图1所示。
图1 桥梁立面图(长度单位:cm)2 主塔结构选型2.1 主塔结构形式为满足桥梁景观的需要,斜拉索的空间布置采用主梁一侧的拉索索面和桥台一侧的双背索索面空间三方向布置形式,背索设计较为复杂。
但此种布索方式对桥梁整体稳定性和主塔稳定性极为有利。
主塔横桥向可采用单柱形状或A字形状。
经比选,主塔最后采用下端固接的单柱形式,塔身结构受力简单明确,并且塔身截面尺寸较小;而采用A字形桥塔未能减少桥面宽度,同时塔身材料量增加,构造更为复杂。
斜拉桥主塔常采用混凝土主塔和钢主塔两种材料形式。
与混凝土主塔相比,钢主塔一般具有以下特点:(1)重量较轻。
(2)施工精度高,进度快。
(3)造价较高。
但由于自重轻,基础费用有所降低。
(4)后期维护费用高。
近几十年来,随着高耸结构模板工艺水平不断提高以及混凝土浇筑技术的快速进步,国内外的大、中型斜拉桥的主塔多采用混凝土结构。
对于非常规外形和有特殊构造要求的主塔,需考虑桥梁景观、施工难易度、工期、基础费用权重等因素,确定主塔方案。
盛京桥主塔结构方案比选内容见表1。
说明第四篇、桥梁、涵洞一、概述本立交项目主线为G30连霍国家高速宝鸡至天水段,设计行车速度为80km/h,路基宽度24.5m,双向4车道;被交公路为老G310线(元温公路Y629),为四级公路,设计行车速度为20km/h,路基宽度7.0m,双向2车道。
本项目立交位于天水市麦积区麦积镇街亭村(交叉点位于宝天高速公路K87+467.5),与元温公路(老G310线)相接。
距离宝天高速公路党川互通立交23.17Km,距离宝天高速公路麦积山互通立交6.57Km。
根据工可批复立交方案采用主线上跨的A型单喇叭立交。
立交匝道设计行车速度为40Km/h;单向单车道匝道路基宽度采用8.5m,长1.593Km;对向双车道匝道路基宽度采用10.5m,长0.294Km;其中A匝道顺接连接线LK0+305处,并于AK0+360处下穿高速(交叉桩号K87+467.5),后在高速公路右侧布设环形匝道。
立交连接线设计行车速度为40Km/h,路基宽度采用12.0 m,起点桩号为K0+000(=元温路K5+900),路线由东向西沿河岸布设,于K0+850处下穿高速东柯河大桥,终点顺接元温路,桩号为K1+240(=元温路K4+870),连接线全长1.24公里,改造长度1.24Km。
本项目加宽宝天高速主线桥256.18m/2座,新建涵洞8道(其中立交匝道4道,立交连接线4道),主线加宽利用通道一座。
二、技术标准及规范采用1. 设计标准(1)行车速度:V=40km/h。
(2)荷载等级:公路-Ⅰ级;(3)标准横断面布置①原K87+790大桥:50(防撞护栏)+1075+75(波形护栏)+(50)+75(波形护栏)+1075+50(防撞护栏)=1200+(50)+1200=2450cm加宽后大桥:50(防撞护栏)+1525+75(波形护栏)+(50)+75(波形护栏)+1075+50(防撞护栏)=1600+(50)+1200=2850cm②原K87+467.5分离式立交中桥:50(防撞护栏)+1075+75(波形护栏)+(50)+75(波形护栏)+1075+50(防撞护栏)=1200+(50)+1200=2450cm 加宽后跨线中桥: 75(波形护栏)+1050+75(波形护栏)+(50)+75(波形护栏)+1475~1577+50(防撞护栏)=1200+(50)+1600~1702=2850~2952cm③桥式通道:左右侧均加宽(4)抗震要求项目所在区场地反应谱特征周期为0.40S,地震动峰值加速度0.3g(Ⅶ度)。
斜拉桥拉索设计说明拟建的高速公路斜拉桥,桥梁起止里程为:左幅 ZK163+182.798~ZK164+511.798,右幅K163+203~K164+532,桥梁中心桩号为左幅 ZK163+847.298,右幅 K163+867.5,设计桥孔和跨径(孔×m)左幅为6×40+83.5+173.5+575+173.5+83.5,桥长788m,右幅为6×40+83.5+173.5+575+173.5+83.5,桥长788m。
最大桥高308.8m。
上部结构左右幅均拟采用混合组合梁,左右幅桥墩下部结构均拟采用索塔、薄壁墩。
墩台均采用桩基础。
1、设计要点1.1 总体主桥为双塔双索面组合梁斜拉桥,桥跨布置为(83.5+173.5)m+575m+(173.5+83.5)m;钢主梁采用双边工字梁断面;索塔采用收腿的倒 A 型造型,整体式承台,群桩基础;辅助墩、过渡墩均采用群桩基础。
全桥采用半漂浮结构体系,在索塔下横梁处和各辅助墩、过渡墩处设置球形钢支座;在索塔处设置横向支座;索塔下横梁处与主梁之间设纵向粘滞阻尼装置。
过渡墩设纵向活动、横向限位支座,辅助墩设双向活动支座。
1.2 斜拉索规格全桥共4×23 对拉索,梁端标准索距为 12.0m,边跨尾索区索距 8.1m,梁端为拉索固定端,采用锚拉板锚固形式,塔端为拉索张拉端,采用钢锚梁锚固形式。
根据索力的不同,共分为 15-37、15-55、15-61、15-73 和 15-85 五种类型,全桥共 184 根斜拉索。
斜拉索最长311.7m,单根重约35.04t(下料长度,NZ23、SZ23号索,型号为 15-85,未含锚具和护套)。
1.3 斜拉索技术要求斜拉索应按《斜拉桥钢绞线拉索技术条件》(GB/T 30826—2014)的要求进行外观、长度、超张拉、弹性模量、静、动载、疲劳性能等检测。
斜拉索要求使用寿命不小于 50 年,并具有可换性。
第一节编制说明一、编制依据1、《沈阳市富民桥工程》施工图设计及变更联系单;2、《公路桥涵设计通用规范》(JTJ021—85);3、《公路桥涵施工技术规范》(JTJ041-2000);4、《公路工程质量检验评定标准》(JTJ071—98);5、相关项目的施工辅助设计图;6、上年度工程实际完成情况。
二、编制范围本施工组织编制范围为2003年度沈阳富民斜拉桥施工的主梁、主塔、斜拉索、引桥桥墩及上部结构等工程。
第二节工程概况一、地理位置沈阳富民斜拉桥桥位于沈阳城区南侧,横跨浑河,在长青桥下游约2km处,南岸自滨河路起,北岸至富民街二环地道桥,是沈阳浑南新区重点工程项目。
二、桥位地质、水文、气象桥位地质自上而下主要由杂填土、砂、砾砂及基岩组成,基岩位于地表下50~65米。
浑河属季节性河流,枯水期水位较低,丰水期或上游泄洪,则水位急剧上升,水流方向自东向西。
沈阳位于辽宁省中部偏东,冬季寒冷,年平均气温7.4℃,历年极端最低气温-33.1℃,极端最高温度38.3℃,降雨多集中在七、八月份,年平均降水量720毫米。
三、工程设计标准1)桥面宽度:双向六车道及两侧各2.5米人行道,布置为:2.5米(人行道及栏杆)+11.5米(车行道)+4.5米(中央分隔带)+11.5米(车行道)+2.5米(人行道及栏杆),总宽32.5米;2)桥面坡度:横向坡度为车行道向外1.5 %,人行道向内1.5 %,纵向为自跨中向两侧1.5 %下坡;3)活载标准:城—A级汽车荷载,人群荷载3.5 km/m2;4)设计车速:80 km/h;5)设计风速:15 km/s;6)地震设防烈度:8度。
四、工程简介富民桥全部工程由主桥、引桥及两岸引道组成。
主桥为单索面折线型双塔斜拉桥,跨径组合为89m+242m+89m,两岸引桥为预应力钢筋混凝土连续刚构,北侧跨径为3×30m,南侧跨径为32m+2×30m,桥梁总长为602米。
主桥共有4个桥墩,其中4 #、5 # 为主塔墩。
目录第一章编制依据及原则.................................................................................. - 1 - 1.1编制依据 ........................................................................................................ - 1 - 1.2编制原则 ........................................................................................................ - 1 - 第二章工程概况 ............................................................................................... - 2 - 2.1工程简介 ........................................................................................................ - 2 - 2.2桥型概况 ........................................................................................................ - 2 - 2.3地质、水文、气候条件 ............................................................................. - 6 - 2.4 主要技术标准.............................................................................................. - 9 - 2.5主要工程数量表......................................................................................... - 12 - 第三章施工部署 ............................................................................................. - 14 - 3.1组织机构 ...................................................................................................... - 14 - 3.2施工场地布置、大临设施布置.............................................................. - 15 - 3.3人员、材料、设备配备 ........................................................................... - 16 - 3.4施工准备 ...................................................................................................... - 17 - 3.5总体施工进度计划 .................................................................................... - 18 - 第四章测量控制 ............................................................................................. - 20 - 4.1施工测量的组织......................................................................................... - 20 - 4.2测量设备的配备与管理 ........................................................................... - 20 - 4.3控制测量 ...................................................................................................... - 20 - 4.4施工图审核.................................................................................................. - 21 - 4.5施工测量放线 ............................................................................................. - 21 - 4.6变形测量 ...................................................................................................... - 22 -4.8施工测量的质量保证措施....................................................................... - 23 - 第四章工程特点、工程重点及难点 ......................................................... - 24 - 4.1工程特点 ...................................................................................................... - 24 - 4.2工程重点及难点......................................................................................... - 25 - 第五章总体施工方案 .................................................................................... - 26 -5.1方案概述 ...................................................................................................... - 26 - 5.2施工步骤 ...................................................................................................... - 26 - 第六章主要工程项目施工方案、方法与技术措施............................... - 31 -6.1路基施工 ...................................................................................................... - 31 - 6.2桩基施工 ...................................................................................................... - 34 - 6.3承台施工 ...................................................................................................... - 44 - 6.4墩柱施工 ...................................................................................................... - 61 - 6.5主梁施工 ...................................................................................................... - 65 - 6.6主塔塔柱施工 ............................................................................................. - 75 - 6.7斜拉索施工.................................................................................................. - 82 - 6.8附属工程 ...................................................................................................... - 88 - 6.9监控方案 ...................................................................................................... - 95 - 第七章冬、雨期施工及应急预案........................................................... - 109 -7.1冬期施工措施 .......................................................................................... - 109 - 7.2雨季施工措施 .......................................................................................... - 111 - 7.3其它不良条件下施工保证措施........................................................... - 113 - 第八章工期目标及保证措施.................................................................... - 114 -8.1工期保证措施 .......................................................................................... - 114 -8.3人员的保证............................................................................................... - 115 - 8.4技术保证措施 .......................................................................................... - 115 - 8.5施工设备和材料的保证 ........................................................................ - 116 - 第九章质量保证体系 ................................................................................. - 117 - 9.1建立质量管理体系 ................................................................................. - 117 - 9.2质量保证措施 .......................................................................................... - 118 - 9.3监控测量体系 .......................................................................................... - 119 - 9.4试验检测体系 .......................................................................................... - 119 - 9.5“三检”质检体系........................................................................................ - 120 - 第十章安全保证措施 ................................................................................. - 120 - 10.1安全目标................................................................................................. - 120 - 10.2保证体系及职责 ................................................................................... - 121 - 10.3安全保证制度........................................................................................ - 122 - 10.4安全保证措施........................................................................................ - 125 - 第十一章文明施工保证措施.................................................................... - 128 - 11.1文明施工目标........................................................................................ - 128 - 11.2文明施工措施........................................................................................ - 128 - 第十二章施工现场环保及水保措施 ...................................................... - 131 - 12.1环保及水保目标 ................................................................................... - 131 - 12.2生态环境防护措施............................................................................... - 132 - 12.3大气环境保护措施............................................................................... - 133 - 12.4固体废弃物处理措施 .......................................................................... - 133 - 12.5降低噪音的环境保护措施.................................................................. - 134 -第十三章职业健康安全保障措施........................................................... - 134 - 13.1管理目标................................................................................................. - 134 - 13.2管理体系................................................................................................. - 134 - 13.3法律法规识别........................................................................................ - 134 - 13.4识别职业健康危险源 .......................................................................... - 135 - 13.5职业健康安全保障措施...................................................................... - 135 - 附表一:拟投入本标段的主要施工设备表 ........................................... - 137 - 附表二:拟配备本标段的试验和检测仪器设备表.............................. - 139 - 附表三:劳动力计划表............................................................................... - 143 - 附表四:计划开、竣工日期和施工进度网络图 .................................. - 144 - 附表五-1:施工总平面图........................................................................... - 146 - 附表五-2:主桥立面示意图...................................................................... - 147 - 附表六:临时用地表.................................................................................... - 149 -第一章编制依据及原则1.1编制依据1.1.1六合新城龙池路跨滁河大桥及连接线工程(主桥、引桥、连接线及附属)工程施工设计图纸及设计说明。
说明一、桥梁概述本桥属新江省新安(省界)至蓝带高速公路第二合同段,净宽7m上跨车行天桥。
桥梁起讫桩号K0+207~K0+317,全长110m,中心桩号K0+362.17,与高速公路交叉桩号K18+225。
上部结构采用(20+32+32+20)m预应力钢筋混凝土斜拉桥-连续梁组合体系,塔墩梁固结。
下部结构采用圆端形桥墩、肋式台、钻孔灌注桩基础。
二、设计采用的标准及规范1、采用规范⑴《公路工程技术标准》(JTJ001-97)⑵《公路桥涵设计通用规范》(JTJ021-89)⑶《公路钢筋混凝土及预应力混凝土桥涵设计规范》(JTJ023-85)⑷《公路桥涵钢结构及木结构设计规范》(JTJ025-86)⑸《公路斜拉桥设计规范(试行)》(JTJ027-96)⑹《公路桥涵地基与基础技术规范》(JTJ024-85)⑺《公路工程抗震设计规范》(JTJ004-89)⑻《公路桥涵施工技术规范》(JTJ041-2000)⑼《高速公路交通安全设施设计与施工技术规范》(JTJ074-94)⑽《公路桥位勘测设计规范》(JTJ062-91)2、参考规范⑴《British Standard BS5400》⑵《Standard Specifications for Highway Bridges》U.S.A,1996.⑶《日本高等级公路设计规范》第二册,1990.⑷《公路桥梁抗风设计指南》三、主要技术标准桥梁宽度: 1.0(护索区)+0.5m(护栏)+净—7.0m(行车道)+0.5m(护栏)+1.0(护索区)=10.0m桥面横坡: 2 %桥梁纵坡: 2.6%设计荷载:汽车—20级,挂车—100地震烈度:基本烈度Ⅶ度,按Ⅷ度设防桥面铺装:6~13cm厚40号混凝土调平层+6cm沥青混凝土铺装四、主要材料1、混凝土箱梁、桥塔:50号混凝土桥面调平层:40号混凝土墩柱、盖梁、主塔承台:30号混凝土桥面防撞护栏:30号混凝土耳背墙、牛腿、搭板:30号混凝土台身、系梁、承台:25号混凝土钻孔灌注桩:25号水下混凝土拌制混凝土用的砂石和水的质量要求应符合《公路桥涵施工技术规范》(JTJ041-2000)的有关规定。
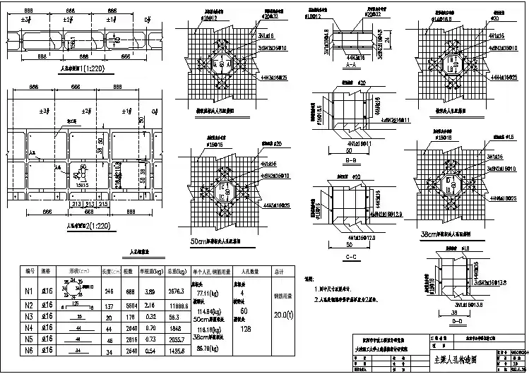
沈阳市公和斜拉桥施工图设计说明书圆砾14.00,20.30m,圆砾含土8.80,13.10m,其下为砂砾岩(泥质胶结,强风化,沈阳市公和斜拉桥施工图设计说明书呈土状)。
地下水位埋深12m左右沈阳市公和斜拉桥位于沈阳市老道口,横跨沈阳站站场,现受沈阳市快速干不存在液化土层道系统工程建设指挥部的委托,由沈阳市市政工程设计研究院与大连理工大学土地震基本烈度为VII度建勘察设计研究院联合设计,以大连理工大学土建勘察设计研究院为主设计(设场地标准冻深为1.20m计责任单位)((见设计委托书)。
月平均气温:1月,12?,8月24.6?,极端温度:,30.6?和38.3?一、设计依据四、设计规范 1(《沈阳市快速干道系统工程指挥部第七次会议纪要》,代设计委托书;2(《沈阳市公和桥主桥岩土工程勘察报告》; 1( 城市桥梁设计规范准则3(沈阳市规划设计研究院提供的‘东西快速干道’规划设计及道路红线图;2( 公路桥涵设计通用规范(JTJ021,89)4(经市领导审定的公和桥方案图; 3( 公路桥涵地基与基础设计规范(JTJ024,85)5(沈阳市城乡建设委员会‘沈阳建发[1997]30号文件。
4( 公路钢筋混凝土及预应力混凝土桥涵设计规范(JTJ023,85)5( 公路工程抗震设计规范(JTJ004,89) 二、设计标准 6( 公路斜拉桥设计规范(试行1996.12.1) 1.设计荷载: 7( 施工规范:现行公路桥涵施工技术规范行车道:设计荷载汽,20,验算荷载挂,100 2人行道:3.5KN/m 五、桥梁总体布置 2 非机动车道:4.0KN/m,汽,10验算公和斜拉桥2.桥面宽度桥为单索面独塔斜拉桥,跨径为114m+120m,桥全长236m,建筑222桥全宽32m,双向六车道上层为755m 面积,下层为2242 m,共计为9794 m。
桥梁纵坡为双向2.5%,竖曲线半径为3000m,桥梁横向宽度为32米,横坡1%,上层为车行道及人行道,双侧人行道各宽1.8m下层非机动车道宽4.5m 下层为非机动车道,索塔处桥面中心线标高为57.863m(黄海高程),塔高桥面以桥面横向布置(半幅): 上为69.007m。
, 1.85m人行道+0.5m路缘+11.25m(33.75)车行道+0.5路缘+0.2m 护栏+3.4m/2索塔=32m/2 六、建筑材料 3.设计时速:80Km/h4.基本风压:700Pa 1.混凝土:箱梁及主塔为50#砼,墩身为50#砼,承台及桩基为30#砼。
5(设计地震烈度:7度,按8度设防 2.钢筋:采用I级及II级钢筋,应符合国家标准GB13013,91和GB1499,6(桥上纵坡:2.5%,竖曲线半径3000m 91。
7(桥下净空:?7m 3.预应力钢绞线应符合ASTM A416,92技术标准,直径为15.24mm,标准强度为1860Mpa,锚具采用VLM型号,并用相应配套的锚下垫板及螺旋筋,力筋管道采用镀锌波纹管。
三、地质条件 4.精轧螺纹钢标准强度为750Mpa,其他指标应符合国家相应标准,其锚具采用桥位位于沈阳站以北老道口跨线桥北侧20多米处,在铁路站场内,地形平坦,JLM型号及相应的配套垫板和螺旋筋。
地下岩层埋置较深,由钻探资料可知,地层大致为杂填土厚度1.00,3.2m,以下5.橡胶支座采用常熟橡胶制品厂产品,伸缩缝采用常熟橡胶厂万宝系列SD80依次为亚粘土3.30m,6.20m,中砂0,4.20m,砾砂6.40,13.80m,亚粘土0,3.10m,伸缩缝。
6.拉索采用1670Mpa镀锌高强钢丝制作,钢丝采用申佳产品。
拉索采用上海浦5(拉索江缆索厂产品,其技术标准执行建设部1996.4发布的塑料护套半平行钢丝拉7镀锌低松弛高强钢丝,极限强度为1670Mpa,(1)拉索采用283丝及301丝,索标准及上海浦江缆索有限公司企业标准等。
采用冷铸锚。
(2)拉索采用双层热剂PE护套防护,表层颜色为橘红色或由业主定。
七、桥梁结构设计概述 (3)拉索锚头端要设防护罩,设减震器及防水罩。
1( 主墩 6(合拢处的临时连接及劲性骨架加劲梁根据现场施工的材料情况再做设计,本次,,(1)主墩(1#墩)承台尺寸为30m16.5m4m,埋深?0.5m,采用30#砼。
设计暂不提供该项资料,投标者应在报价时充分考虑此项费用。
(2)主墩桩基采用1.8m直径钻孔灌注桩,桩长55m,桩顶标高为40.60m,桩底,八、施工有关事项标高为,14.40m,桩底位于砂砾岩层之中。
主墩共有28根桩,桩间距为4.5m,为摩擦桩,采用30#砼。
(1)施工按现行公路桥涵施工规范执行。
(3) 主墩墩身采用箱形薄壁结构,墩宽纵向为7.4m,横向22.5,19.9m,墩高(2)施工主要工序为:9.97m,壁厚分别为1.4m及1.0m,采用50#砼。
桩基施工,承台施工,墩身施工,支架现浇0#块,主塔施工,挂1#索,安2( 边墩装挂篮,采用斜拉挂篮前导索法施工,浇注,,#,,13#,+1#,+13#号块,,,(1)边墩(0#,2#)承台尺寸为22m7.7m2.4m,埋深?0.5m,采用30#砼。
支架上浇注,14#、,15#和,14#、,15#、,16#块,主梁合拢,张拉15#、, 16#号索,张拉上缘6根力筋,拆模同时两侧梁端压重(用千斤顶张拉锚,(2) 边墩桩基采用1.8m直径钻孔灌注桩,桩长45m,桩顶标高为42.20m,桩,在墩上的力筋加压重),张拉预应力筋,西侧压重3131KN,东侧压重2927KN,底标高为,2张拉锚栓,铺设桥面铺装。
.80m,位于砂砾层中,每墩有8根桩,桩间间距为4.5m,采用砼。
(3) 桩基施工应注意根据现有地质情况采取必要措施避免塌孔。
30#(4) 必须保证桩内有足够数量的主筋到达桩底以作避雷导体,这些主筋必须穿(3) 边墩采用实体墩,纵向宽3.0m,横向宽约22.48m,20.8m,,墩高约8m,采用40#砼。
边墩与主梁通过橡胶支座及锚栓连接。
过承台与塔柱竖向钢筋焊接,并最终保证塔上避雷针及索上避雷带的接地电阻?30Ω,并在正常运行阶段定期量测此电阻,以保证避雷效果。
3( 主梁(1) 主梁全宽32m,中心处梁高3.16m,横坡1%,采用五室断面,梁顶板厚26cm,(5)承台浇注要注意降低水化热,放冷却管,表层保温处理,应使气温与表层温底板厚24cm,腹板厚分别为38cm和50cm。
度温差不大于20?,表层与内部温度温差不大于20?,施工中应进行表层及(2) 主梁两侧顶底板各悬臂4.75m。
内部温度观测,可分两层浇注,两层之间应在强度达到规范要求后进行凿毛,(3) 主梁每隔6.66m设一道横隔梁,横隔梁厚度为50cm,西东两端设有端横隔并加抗剪钢筋。
如分层浇注上层应分三块浇注。
上层施工时应在桥墩预埋钢梁,每6.66m为一个悬臂浇注段。
筋。
(4) 主梁设纵向预应力筋及横梁预应力筋,在边腹板上设竖向预应力筋。
(6) 桥墩与承台间应按施工缝处理,主墩的浇注应注意墩身与塔柱一起浇注,(5) 主梁中拉索锚固块设在箱梁中腹板间靠横梁处。
并注意养护,避免出现裂缝。
浇主墩时内部应布冷却管。
(6) 箱梁采用50#砼,主梁两侧采用涂料涂刷装饰。
(7) 支架上浇0#块及索塔。
0#块与主墩墩身间应凿毛,应注意养护,以避免出现收缩裂缝,在0#块砼中加UEA或其它防收缩外加剂,防止砼收缩。
砼强(7) 主梁西端距端部17.324m处进入圆曲线,箱梁仍按直梁做,顶悬臂板及底悬臂板内侧线性加宽至14.77cm。
度达到80%时张拉预应力筋。
4( 主塔 (8) 采用爬模浇注塔柱,并挂1#索,安装悬浇施工挂篮,挂篮本身应考虑前挂,,(1) 主塔下部采用实体断面3.4m(横向)6m(纵向),上部采用工字型截面。
索吊点有相当的横向刚度,挂篮可在5道腹板上设竖向锚固点,行走挂架(2) 塔柱上设劲性骨架以固定索管位置。
可放在边腹板上侧(悬臂板可后浇,滞后两个阶段浇注),挂篮的设计应充(3) 塔上设拉索锚固锯齿及锚下垫板。
分考虑横纵向刚度,挂篮可用型钢及钢板焊接,挂篮及模板总重量应控制(4) 塔两侧设封闭式装饰板,塔采用涂料涂刷装饰,塔顶设有装饰雕塑。
在268T以内。
(5) 塔顶设避雷针,最外侧拉索设避雷带。
(9) 从浇0#块开始,应由施工控制单位主控立模标高,各阶段张拉索力及体系转换前后索力调整、梁内应力观测。
范执行。
(10)在索塔浇注的同时可悬浇主梁,但索塔施工应至少比梁块件提前5个阶段参见施工规范附录11,4,用公 <3>张拉实行双控,千斤顶需标定,伸长值,L 进行。
PL式计算,实测伸长值与计算值相差6%以上应查明原因再施工。
,L,(11)主梁由1#块到13#块,每块的浇注次序为挂篮行走就位,提升挂篮,调,,AEYY整立模标高,锚固于主梁,挂篮前方挂前导索,张拉前导索,绑扎钢筋,立箱梁模板,留力筋孔道,浇砼,砼养护,张拉横向预应力筋,体系转换,<4>张拉完成后及时压浆,压浆可按施工规范第十一章第九节规定执行。
调索力,拆模板,落挂篮,靠挂架行走进入下阶段。
<5>力筋锯齿封锚筋,可在锯齿上预埋也可焊在锚下垫板上,封锚筋施工单位(12)边墩施工可根据现场情况进行调整,并浇好封锚砼。
施工边墩桩基,边墩承台,边墩墩身,承台及墩身均为大体积砼施工,应放<6>张拉吨位, 注意表层保温,同时要监测内部与表层,表层与气温温差限制在20冷却管钢绞线张拉控制应力,,1395MPa ,?以内。
边墩施工应注意预埋钢绞线锚栓与铁件,并应留有锚栓孔道。
(13)支架上浇注,14#,,15#块及+14#,+15#,+16#块,在14#块端部留有1.5m,,15.24mm钢束为234.5T 12,长的合拢段。
西侧浇注时边墩支座处梁底(钢板)高出支座顶33.3cm,东侧高出40.4cm,以留合拢后预压空间。
合拢处留有钢筋头,合拢前焊接好。
7,,15.24mm钢束为136.7T 预应力筋合拢前要穿好钢束。
合拢处要采用大小能重叠的力筋铁皮管道,不许采用破开的波纹管,然后用大量的胶布缠绕的方法成孔。
27,,15.24mm钢束为527.3T (14)合拢处拟采用劲性钢骨架合拢,13#块处应先拆除挂篮,采用两侧吊模板,来浇注合拢段砼。
<7>预应力摩阻损失: (15)合拢处砼强度达到80%张拉15#、16#索,各张拉1000T( 每根索500T),对镀锌波纹管及钢绞线施工规范规定K=0.0006,0.001,,,0.16,0.19。
然后张拉上缘6束12,15.24mm预应力筋,拆模,西侧压重4430KN( 通 <8>竖向直径32mm的精轧螺纹预应力筋张拉吨位54T。