剖面图习题
- 格式:ppt
- 大小:1.49 MB
- 文档页数:8
在指定位置将主视图画成全剖视图
4、在指定位置画出剖面图(键槽深3mm)
6、在指定位置画出剖面图(键槽深为3mm)
7、在指定位置将主视图画成全剖视图,左视图画成半剖视图
8、
9、
10、用平行平面将主视图改画成全剖视图。
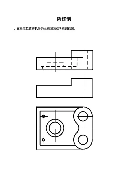
11、在指定位置将机件的主视图画成阶梯剖视图
12、将主视图画成全剖视图
13、用旋转剖的方法,将主视图画成全剖视
14、将主视图画成半剖视图
15、画出A-A的斜剖视图
16、用阶梯剖的方法,将主视图画成全剖视图
17、用阶梯剖的方法,将主视图画成全剖视图
18、将主视图画成全剖视图
20、将主视图改画成全剖视图,并补画半剖左视图(不要的线打叉)
21、将主视图画成全剖视图
22、将主视图画成全剖视图
23、将主视图画成全剖视图,并正确标注
24、将主视图画成全剖视图,并正确标注
27、将主视图画成半剖视图
28、将主俯视图重新绘制成局部剖视图
3、
、9、10、
11、12、
17、18、
19、20、
21、 22、
23、
A——A。
建筑工程制图习题集一、简介建筑工程制图是一门关于建筑设计和施工的专业课程,通过学习建筑工程制图,可以了解建筑设计的基本原理和施工流程,培养学生的绘图能力和空间想象力。
本习题集将提供一系列与建筑工程制图相关的练习题,帮助读者巩固和应用所学知识。
二、平面图练习题1. 绘制一栋简单住宅的平面图,包括客厅、卧室、厨房和卫生间等功能区域的布局。
2. 根据给定的土地面积和建筑要求,绘制一个商业综合体的平面图,包括商店、餐厅、写字楼等功能区域的规划。
三、立面图练习题1. 根据给定的建筑物外观照片,绘制一个建筑物的立面图,包括建筑物的外部尺寸和窗户、门等细节。
2. 设计一座公共广场的立面图,包括雕塑、噪音屏障和绿化设施等元素。
四、剖面图练习题1. 根据给定的建筑模型,绘制一个建筑物的剖面图,展示建筑物内部的空间布局和结构。
2. 设计一个典型的教室的剖面图,包括教室内部的座位、黑板和设备布置等。
五、构造图练习题1. 根据给定的建筑结构要求,绘制一个建筑物的钢筋混凝土构造图,包括柱、梁和板等构件的尺寸和布置。
2. 设计一个木质家具的构造图,包括家具的结构连接和细节处理等。
六、装饰图练习题1. 根据给定的室内设计方案,绘制一个房间的装饰图,展示墙面颜色、地板材料和家具等装饰元素的布置。
2. 设计一个公共建筑的室内装饰图,包括墙面装饰、灯光设计和绘画等艺术元素。
七、施工图练习题1. 根据给定的建筑施工要求,绘制一个建筑物的施工图,包括建筑物的标高、轴线和施工要点等。
2. 设计一个道路工程的施工图,包括路面铺设、交通标志和排水设施等。
八、总结通过对建筑工程制图习题的练习,读者可以加深对建筑设计和施工的理解,提高绘图能力和空间想象力。
建议读者反复练习,并结合学习教材和参考资料进行学习,以便更好地掌握建筑工程制图的技巧和方法。
复习题1一、已知点A距H面为12,距V面为15,距W面为10,点B在点A的左方5,后方10,上方8,试作A、B两点的三面投影。
(10分)二、作平面四边形ABCD的投影。
(20分)三、完成下列各形体的投影。
(20分,每题10分)1.2.四、求作立体的相贯线。
(20分)五、根据给出的视图,补画第三视图或视图中所缺的图线。
(30分,每题15分)1.2.复习题21.作水平线AB的三面投影。
已知点A距H面为15,距V面为5,距W面为10,AB与V面夹角为30°,实长为30,点B在点A的左前方。
(10分)2.已知直线为AC为正平线,试补全平行四边形ABCD的水平投影。
(20分)3.补全相贯线(20分)4.补视图(20分)5.画出棱柱体的第三面投影,补画出截交线,并整理轮廓线。
(30分)复习题2答案1.作水平线AB 的三面投影。
已知点A 距H 面为15,距V 面为5,距W 面为10,AB 与V 面夹角为30°,实长为30,点B 在点A 的左前方。
aa ab bb XY HY HZO2.已知直线为AC 为正平线,试补全平行四边形ABCD 的水平投影。
adacd cb3.5.四、根据给出的视图,补画第三视图(或视图所缺的图线)。
(12分,每题6分) 1.2.五、在指定位置将主视图画成全剖视图。
(10分)六、在指定位置将主视图画成剖视图。
(10分)七、补全螺栓连接图中所缺的图线。
(10分)八、已知两平板齿轮啮合,m1=m2=4mm,z1=20,z2=35,分别计算其齿顶圆、分度圆、齿根圆直径,并画出其啮合图(比例1:2)。
(10分)九、读零件图,并回答问题。
(16分)1.该零件采用了哪些视图、剖视图和剖面图?,是螺纹(内、外),其中,H是,8是。
试题二:一、作水平线AB的三面投影。
已知点A距H面为15,距V面为5,距W面为10,AB与V面夹角为30°,实长为30,点B在点A的左前方。
(10分)ZoX Y WY H二、已知直线为AC为正平线,试补全平行四边形ABCD的水平投影。
cad剖视图练习题及答案
CAD剖视图练习题及答案
在工程设计和制图领域,CAD剖视图是一项非常重要的技能。
它可以帮助工程
师和设计师更好地理解和展示他们的设计,同时也可以帮助制造商更好地理解
如何制造和组装产品。
为了帮助大家提高CAD剖视图的技能,我们准备了一些练习题及答案,希望能够对大家有所帮助。
练习题:
1. 请根据给定的三维模型,绘制该模型的剖视图。
2. 请根据给定的剖视图,绘制该模型的三维模型。
3. 请根据给定的剖视图,标注该模型的尺寸和注释。
4. 请根据给定的剖视图,分解该模型的零件并绘制零件图。
答案:
1. 绘制剖视图的关键是要理解三维模型的结构和内部构造。
首先,确定剖面的
位置和方向,然后根据剖面将模型分割,并绘制出剖视图的轮廓和内部结构。
2. 绘制三维模型的关键是要根据给定的剖视图,恢复出完整的三维模型。
首先,根据剖视图的轮廓和内部结构,绘制出三维模型的外形和内部结构,然后根据
尺寸和注释完善模型的细节。
3. 标注尺寸和注释的关键是要准确理解剖视图的结构和尺寸。
首先,确定需要
标注的尺寸和注释,然后根据剖视图的结构和尺寸,进行标注和注释的绘制。
4. 分解零件并绘制零件图的关键是要理解剖视图的结构和零件之间的关系。
首先,根据剖视图,确定零件的位置和关系,然后根据零件的结构和尺寸,绘制
出零件图。
通过以上练习题及答案的学习和练习,相信大家对CAD剖视图的技能会有所提高。
在今后的工作中,希朥大家能够灵活运用CAD剖视图技能,更好地进行工程设计和制图工作。
建筑画图练习题在建筑设计和施工中,图纸是不可或缺的工具。
了解建筑图纸和学会绘制它们对于建筑师和工程师来说都是极为重要的。
本文将为读者提供一系列建筑画图练习题,以帮助您提高图纸绘制的能力和技巧。
第一题:绘制房屋平面图请根据以下尺寸绘制一个简单的房屋平面图:- 房屋长度:10米- 房屋宽度:8米- 室内房间数量:3个- 室内房间尺寸:4米 × 4米在绘制平面图时,确保使用合适的比例尺,并注意标注房屋的尺寸和每个房间的尺寸。
确保绘图清晰,比例准确。
第二题:绘制房屋立面图在完成平面图后,现在请绘制房屋的立面图。
考虑以下细节:- 房屋外墙高度:6米- 窗户数量:6个- 窗户尺寸:1米 × 1米请将房屋立面图中的窗户位置标注清楚,并确保比例准确。
第三题:绘制屋顶平面图现在,请根据以下尺寸绘制房屋的屋顶平面图:- 屋顶长度:12米- 屋顶宽度:10米- 屋顶类型:坡屋顶在绘制屋顶平面图时,确保将屋顶的形状和尺寸标注清楚,并注意任何附加结构。
第四题:绘制建筑剖面图在最后一题中,请绘制房屋的剖面图。
房屋剖面图展示了建筑物的内部结构,并显示了不同楼层之间的关系。
请根据以下细节绘制剖面图:- 楼层数量:两层- 楼层高度:每层高度为3米- 楼梯位置:沿着房屋的一侧确保在绘制剖面图时,标注每层楼的高度和楼梯的位置,以确保图纸的准确性。
结束语:建筑图纸的绘制和理解对于建筑师和工程师来说至关重要。
通过完成以上建筑画图练习题,您将有机会提高自己的图纸绘制能力和技巧。
不断锻炼和精进绘图的能力,将使您在日后的建筑设计和施工中更加得心应手。
cad室内图纸练习题CAD室内图纸练习题在室内设计领域,CAD(计算机辅助设计)已经成为了不可或缺的工具。
通过CAD软件,设计师可以轻松地绘制出精确的室内图纸,包括平面布局、立面图、剖面图等。
为了提高自己的CAD技能,设计师们常常会进行一些练习题,以加深对CAD软件的理解和熟练度。
下面,我们来看几个常见的CAD室内图纸练习题。
练习题一:平面布局在这个练习题中,我们需要绘制一个简单的室内平面布局图。
假设我们要设计一个客厅,需要考虑到家具的摆放、窗户和门的位置等因素。
首先,我们要确定房间的尺寸,然后根据尺寸绘制出房间的轮廓。
接下来,我们可以使用CAD软件中的家具库,选择适当的家具图标,并将它们放置在房间中。
此外,还可以添加其他元素,如电视、灯具等。
通过这个练习,我们可以熟悉CAD软件中的绘图工具和家具库的使用方法。
练习题二:立面图立面图是室内设计中常用的一种图纸,用于展示建筑物的外观。
在这个练习题中,我们需要绘制一个简单的室内立面图。
假设我们要设计一个书房,需要考虑到窗户、书架和桌子等元素的位置。
首先,我们要确定书房的尺寸,并将其绘制出来。
接下来,我们可以使用CAD软件中的绘图工具,绘制窗户和书架的轮廓,并将它们放置在适当的位置。
此外,还可以添加其他元素,如窗帘、灯具等。
通过这个练习,我们可以提高对CAD软件中绘图工具的掌握程度,并学习如何绘制立面图。
练习题三:剖面图剖面图是室内设计中常用的一种图纸,用于展示建筑物的内部结构。
在这个练习题中,我们需要绘制一个简单的室内剖面图。
假设我们要设计一个厨房,需要考虑到橱柜、炉灶和水槽等元素的位置。
首先,我们要确定厨房的尺寸,并将其绘制出来。
接下来,我们可以使用CAD软件中的绘图工具,绘制橱柜、炉灶和水槽的轮廓,并将它们放置在适当的位置。
此外,还可以添加其他元素,如灯具、水龙头等。
通过这个练习,我们可以提高对CAD软件中绘图工具的使用熟练度,并学习如何绘制剖面图。
建筑工程制图习题答案一、图纸解读1. 平面图:平面图展示了建筑物的水平布局,包括房间、走廊、楼梯等的分布。
在本题中,平面图清晰地标注了各个房间的尺寸和位置,以及门、窗的开启方向。
2. 立面图:立面图展示了建筑物的侧面视图,包括外墙的构造、窗户和门的位置。
本题中的立面图详细描绘了建筑物的外立面设计,包括材料和颜色的选用。
3. 剖面图:剖面图通过建筑物的垂直切割,展示了内部结构和层次。
本题的剖面图清晰地展示了楼板、墙体和屋顶的结构关系。
二、尺寸标注校对在进行尺寸标注校对时,需要注意以下几点:- 检查所有尺寸是否标注齐全,包括长度、宽度、高度等。
- 确保尺寸标注的准确性,避免因误差影响施工。
- 核对图纸上的尺寸与施工要求是否一致。
三、施工细节分析1. 材料选择:根据图纸要求,选择合适的建筑材料,如混凝土、钢筋、砖等。
2. 结构稳定性:分析建筑物的结构设计,确保其满足稳定性和安全性要求。
3. 施工工艺:根据图纸指导施工工艺,包括基础施工、墙体砌筑、屋顶安装等。
四、图纸问题解答1. 如何确保图纸与实际施工的一致性?- 定期进行图纸审核,确保施工过程中遵循图纸要求。
- 施工前进行图纸交底,确保施工团队对图纸有充分理解。
2. 如何处理图纸中的错误或遗漏?- 发现错误或遗漏时,应立即与设计方沟通,获取修正或补充信息。
- 根据实际情况调整施工计划,确保工程质量。
五、结论建筑工程制图是确保施工顺利进行的关键环节。
通过对图纸的细致解读、尺寸标注的校对、施工细节的分析,可以确保施工的准确性和工程的质量。
在实际工作中,应不断学习和积累经验,提高制图和施工的专业能力。
请注意,以上内容仅为示例,具体的习题答案应根据实际的习题内容进行编写。
在指定位置将主视图画成全剖视图
4、在指定位置画出剖面图(键槽深3mm)
6、在指定位置画出剖面图(键槽深为3mm)
7、在指定位置将主视图画成全剖视图,左视图画成半剖视图
8、
9、
10、用平行平面将主视图改画成全剖视图。
11、在指定位置将机件的主视图画成阶梯剖视图
12、将主视图画成全剖视图
13、用旋转剖的方法,将主视图画成全剖视
14、将主视图画成半剖视图
15、画出A-A的斜剖视图
16、用阶梯剖的方法,将主视图画成全剖视图
17、用阶梯剖的方法,将主视图画成全剖视图
18、将主视图画成全剖视图
20、将主视图改画成全剖视图,并补画半剖左视图(不要的线打叉)
21、将主视图画成全剖视图
22、将主视图画成全剖视图
23、将主视图画成全剖视图,并正确标注
24、将主视图画成全剖视图,并正确标注
27、将主视图画成半剖视图
28、将主俯视图重新绘制成局部剖视图
3、
、9、10、
11、12、
17、18、
19、20、
21、 22、
23、
A——A。
建筑平面设计、建筑剖面设计习题及答案1、交通联系部分包括()。
A.水平交通空间, 垂直交通空间, 交通转换空间B. 垂直交通空间, 交通枢纽空间, 坡道交通空间C.交通枢纽空间, 交通转换空间, 坡道交通空间D.水平交通空间, 垂直交通空间, 交通枢纽空间2.建筑平面的组合形式有()。
A.走道式组合,大小空间组合,单元式组合,主次空间组合B.套间式组合,走道式组合,大厅式组合,单元式组合C.大厅式组合,主次空间组合,走道式组合,套间式组合D.单元式组合,套间式组合,主次空间组合,走道式组合3.建筑物的使用部分是指()。
A.主要使用房间和交通联系部分B.主要使用房间和辅助使用房间C.使用房间和交通联系部分D. 房间和楼电梯等4. 影响房间面积大小的因素有()。
A.房间内部活动特点, 结构布置形式, 家具设备的数量, 使用人数的多少B.使用人数的多少, 结构布置形式, 家具设备的数量, 家具的布置方式C.家具设备的数量, 房间内部活动特点, 使用人数的多少, 家具的布置方式D.家具的布置方式, 结构布置形式,房间内部活动特点, 使用人数的多少5.为保证室内采光的要求,一般单侧采光时房间进深不大于窗上口至地面距离的()倍。
双侧采光时进深可较单侧采光时增大()倍。
A. 2,1B. 2,2C. 1,1D. 1,26.厕所、浴室的门扇宽度一般为()mm。
A.500B.700C.900D.10007、下列数据中哪组为教学楼的中间走道和外廊的最合适宽度()A、2.4m和1.2mB、3.6m和1.8mC、1.5m和1.5mD、2.4m和1.8m8.日照间距是前后排建筑物相对外墙之间的间距,它是根据()来计算的。
A、冬至日正午的太阳能照到后排房屋底层窗上檐高度B、冬至日正午的太阳能照到后排房屋底层窗中间高度C、冬至日正午的太阳能照到后排房屋底层窗窗台高度D、冬至日正午的太阳能照到后排房屋底层地面高度9.一般住宅公共楼梯梯段净宽不应小于()A、1.5mB、0.9mC、1.1mD、2.4m10.建筑物的间距应考虑多种因素确定,对于大多数民用建筑来说,在一般的情况下,只有满足了()间距,其他要求也能满足。
剖面图与断面图习题(总分120)
年级姓名成绩
1.求图示形体的1—1剖面图。
(8分)
1—1剖面
2 、画出1-1剖面图。
(10分)
1—1剖面
3、作房屋模型的1-1剖面图(材料图例不分类别,都画同方向等间距的45。
细实线;门
窗洞的高度都分别相同。
14分)
4.
已知组合形体的平面图和左侧立面图,试作1-1剖面图,并完成2-2半剖面图。
(15分)
2-2
2
1
2
1
5.作柱的1-1、2-2断面图。
(6分)
6 已知组合形体的平面图,试补全正立面图中所缺的图线,并作2-2剖面图。
(15分)
10、根据壁柜的正面投影和1—1剖面图①补画2—2剖面图。
(8分)
10、将V面投影改为半剖面图。
(10分)
11、将主视图改画成全剖视图。
(12分)。