变电站二次信号回路 精选文档
- 格式:ppt
- 大小:625.01 KB
- 文档页数:67
直流母线电压监视装置原理图-------------------------------------------1 直流绝缘监视装置----------------------------------------------------------1 不同点接地危害图----------------------------------------------------------2 带有灯光监视的断路器控制回路(电磁操动机构)--------------------3 带有灯光监视的断路器控制回路(弹簧操动机构)--------------------5 带有灯光监视的断路器控制回路(液压操动机构)-------- -----------6 闪光装置接线图(由两个中间继电器构成)-----------------------------8 闪光装置接线图(由闪光继电器构成)-----------------------------------9 中央复归能重复动作的事故信号装置原理图-------------------------9 预告信号装置原理图------------------------------------------------------11 线路定时限过电流保护原理图------------------------------------------12 线路方向过电流保护原理图---------------------------------------------13 线路三段式电流保护原理图---------------------------------------------14 线路三段式零序电流保护原理图---------------------------------------15 双回线的横联差动保护原理图------------------------------------------16 双回线电流平衡保护原理图---------------------------------------------18 变压器瓦斯保护原理图---------------------------------------------------19 双绕组变压器纵差保护原理图------------------------------------------20 三绕组变压器差动保护原理图------------------------------------------21 变压器复合电压启动的过电流保护原理图---------------------------22 单电源三绕组变压器过电流保护原理图------------------------------23 变压器过零序电流保护原理图------------------------------------------24 变压器中性点直接接地零序电流保护和中性点间隙接地保------24线路三相一次重合闸装置原理图---------------------------------------26自动按频率减负荷装置(LALF)原理图--------------------------------29储能电容器组接线图------------------------------------------------------29小电流接地系统交流绝缘监视原理接线图---------------------------29变压器强油循环风冷却器工作和备用电源自动切换回路图------30变电站事故照明原理接线图---------------------------------------------31开关事故跳闸音响回路原理接线图------------------------------------31二次回路展开图说明(10KV线路保护原理图)-----------------------32直流回路展开图说明------------------------------------------------------331、图E-103为直流母线电压监视装置电路图,请说明其作用。
《发电厂变电所二次接线》课程学习指导资料编写:李长松适用专业:电气工程及其自动化适用层次:高中起点专科(业余)四川大学网络教育学院二○○六年三月十六日《发电厂变电所二次接线》课程学习指导资料编写:李长松审稿(签字):审判(主管教负责人签字):本课程学习指导资料根据该课程教学大纲的要求,参照现行采用教材《变配电所二次系统》(阎晓霞、苏小林编,中国电力出版社、2019年5月第1版)以及课程学习光盘,并结合远程网络业余教育的教学特点和教学规律进行编写,适用于电气工程及其自动化专业专生本(业余)学生。
第一部分课程的学习目的及总体要求一、课程的学习目的通过各种方式的学习,使学生掌握发电厂及变电站的二次回路的构成及其工作原理。
主要内容包括:控制系统、信号系统、同步系统、直流系统电源、电压互感器的二次回路及变电站综合自动化等。
二、课程的总体要求通过各种方式的学习,使学生树立工程观点,了解变电站二次系统的概念和组成,熟悉二次回路的基本构成和连接,掌握二次回路的读图并在其此基础上进行二次回路的设计,了解二次系统中出现的新技术和新设备及其应用,并在分析和解决实际工程能力方面得到训练第二部分课程学习的基本要求及重点难点内容分析第一章二次图的基本知识1.本章基本要求♦了解电气图的分类♦掌握常用元件的图形符号♦掌握常用元件的文字符号♦了解有关项目及项目代号的术语♦掌握项目代号的构成♦了解电气图的表示方法♦掌握二次电气图的概念和分类♦掌握集中式二次电路图和分开式二次电路图的概念和特点♦了解二次接线图的概念和分类♦了解单元接线图和端子接线图的概念和特点2.本章重点难点分析■常用元件的图形符号及表示方法▪继电器和线圈的图形符号▪触点的图形符号:常开触点、常闭触点、延时断开或闭合的常开触点、延时断开或闭合的常闭触点▪非电气量触点的图形符号▪标准中的各类开关和触点符号都是在连接线为竖向布置的形式中给出,当需要以水平形式布置时,必须将符号按逆时针方向旋转90°后画出,即必须画成“左开右闭”或“下开上闭”的形式。
直流母线电压监视装置原理图-------------------------------------------1 直流绝缘监视装置----------------------------------------------------------1 不同点接地危害图----------------------------------------------------------2 带有灯光监视的断路器控制回路(电磁操动机构)--------------------3 带有灯光监视的断路器控制回路(弹簧操动机构)--------------------5 带有灯光监视的断路器控制回路(液压操动机构)-------- -----------6 闪光装置接线图(由两个中间继电器构成)-----------------------------8 闪光装置接线图(由闪光继电器构成)-----------------------------------9 中央复归能重复动作的事故信号装置原理图-------------------------9 预告信号装置原理图------------------------------------------------------11 线路定时限过电流保护原理图------------------------------------------12 线路方向过电流保护原理图---------------------------------------------13 线路三段式电流保护原理图---------------------------------------------14 线路三段式零序电流保护原理图---------------------------------------15 双回线的横联差动保护原理图------------------------------------------16 双回线电流平衡保护原理图---------------------------------------------18 变压器瓦斯保护原理图---------------------------------------------------19 双绕组变压器纵差保护原理图------------------------------------------20 三绕组变压器差动保护原理图------------------------------------------21 变压器复合电压启动的过电流保护原理图---------------------------22 单电源三绕组变压器过电流保护原理图------------------------------23 变压器过零序电流保护原理图------------------------------------------24 变压器中性点直接接地零序电流保护和中性点间隙接地保------24线路三相一次重合闸装置原理图---------------------------------------26自动按频率减负荷装置(LALF)原理图--------------------------------29储能电容器组接线图------------------------------------------------------29小电流接地系统交流绝缘监视原理接线图---------------------------29变压器强油循环风冷却器工作和备用电源自动切换回路图------30变电站事故照明原理接线图---------------------------------------------31开关事故跳闸音响回路原理接线图------------------------------------31二次回路展开图说明(10KV线路保护原理图)-----------------------32直流回路展开图说明------------------------------------------------------331、图E-103为直流母线电压监视装置电路图,请说明其作用。
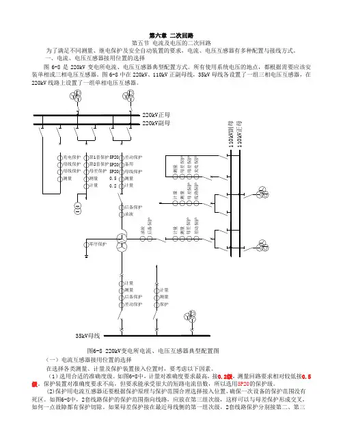
第六章二次回路第五节电流及电压的二次回路为了满足不同测量、继电保护及安全自动装置的要求,电流、电压互感器有多种配置与接线方式。
一、电流、电压互感器接用位置的选择图6-8是220kV变电所电流、电压互感器典型配置方式。
所有使用系统电压的地点,都根据需要应该安装单相或三相电压互感器。
图6-8中在220kV、110kV正副母线,35kV母线各设置了一组三相电压互感器,在220kV线路上设置了一组单相电压互感器。
图6-8 220kV变电所电流、电压互感器典型配置图(一)电流互感器接用位置的选择在选择各类测量、计量及保护装置接入位置时,要考虑以下因素。
(1)选用合适的准确度级。
如图6-8中,计量对准确度要求最高,接0.2级,测量回路要求相对较低接0.5级。
保护装置对准确度要求不高,但要求能承受很大的短路电流倍数,所以选用5P20的保护级。
(2)保护用电流互感器还要根据保护原理与保护范围合理选择接入位置,确保一次设备的保护范围没有死区。
如图6-8中,2套线路保护的保护范围指向线路,应放在第三组次级,这样可以与母差保护形成交叉,如何一点故障都有保护切除。
如果母差保护接在最近母线侧的第一组次级,2套线路保护分别接第二、第三次级,则在第一与第二次级间发生故障时,既不在母差保护范围,线路保护也不会动作,故障只能考远后备保护切除。
虽然这种故障的几率很小,却有发生的可能,一旦发生后果是严重的。
图中两组接入母差保护的次级,正副母间也要交叉,否则也有死区。
(3)当有旁路开关需要旁代主变等开关时,如有差动等保护则需要进行电流互感器的二次回路切换,这时既要考虑切换的回路要对应一次运行方式的变换,还要考虑切入的电流互感器二次极性必须正确,变比必须相等。
(二)电压互感器原则配置(1)对于主接线为单母线、单母线分段、双母线等,在母线上安装三相式电压互感器;当其出线上有电源,需要重合闸鉴同期或无压,需要同期并列时,应在线路侧安装单相或两相电压互感器;(2)对于3/2主接线,常常在线路或变压器侧安装三相电压互感器,而在母线上安装单相互感器以供同期并联和重合闸鉴无压、鉴同期使用;(3)内桥接线的电压互感器可以安装在线路侧,也可以安装在母线上,一般不同时安装。