110kV牵引变电所复合接地网平面布置图
- 格式:doc
- 大小:54.00 KB
- 文档页数:1
施工组织设计
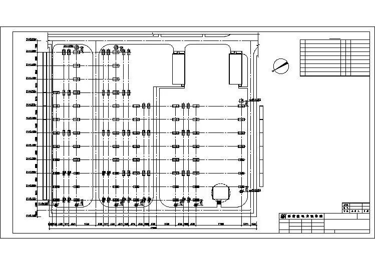
110kV变电站二期电气安装工程
施工现场平面布置图
页脚内容
施工组织设计
页脚内容 其中:☆代表消防器材,
代表道路。
施工组织设计
布置说明:
1)租用××变二期附近民房一幢,作为食堂、卫生间等用。
2)在﹟2主变西侧位置边放置材料库、工具间、临时加工间等。
移动集装箱作为项目部办公场所和现场会议室,配置适当的办公设备,挂设相关图表及有关簿册。
3)在110kV场地西侧设置110kV设备堆放区,在10kV电容器组边设置10kV 电容器及接地变材料堆放区。
4)消防设施:
借用变电所及项目部自己配置干粉灭火器,供场地、控制室、10kV配电室、油务区、电缆层、仓库、危险品库等处使用。
消防设施实行定置管理,临时施工需要另行配置移动消防灭火器。
5)提前布置好安全及宣传标牌,力求井然有序。
项目部绘制好现场平面布置图,实行定置管理。
3.2 施工现场临时用电、临时用水借用原变电所内的电源及用水。
页脚内容。
变电站项目施工现场平面布置图
本工程是在原110kV变电站址改造,场地有限,土建施工阶段,一次设备仍需带电运行。
根据施工需要,结合现场的情况,本着合理利用,布局紧凑,有利现场施工和现场管理及符合安全文明施工要求的原则进行总体施工平面布置。
在施工区和设备带电区设立明显隔离带,挂上“设备带电,禁止跨越”的标示牌。
1 材料堆放
建筑用砂石料和搅拌机应尽量安排靠近一起,便于混凝土和砂浆的搅拌,减少施工人员搬运砂石料的工作量。
针对电气设备多、不宜长期堆放的特点,应选择较开阔、平整、利于倒运的场地放置电气设备。
导线电缆、构件堆放场的选择,不仅利于材料的倒运,而且方便施工人员展放。
水泥等不宜露天堆放的材料应放置在临时材料库内。
临时建筑主要有办公室、仓库、加工场、班房等。
各堆放地点详见变电站工程施工现场总平面布置图。
2 施工用电、用水
施工电源由运行单位负责安装引接至变电站内的施工现场,装表计量。
土建施工阶段,施工用电设备最大总功率为85kW,电气安装调试阶段,施工用电设备最大总功率为83 kW。
表后线采用BV-50 铜芯塑料线接通,分别引到混凝土砂浆搅拌场和配电装置区。
供水由施工水源用D25水管引到搅拌场,并在场地内适合地方配备蓄水池以保证足够的用水。
3 现场临时设施
根据现场特点和施工总平面布置的要求,项目部现场办公临时设施和临时工器具材料库建在进站大门旁,即原变电站宿舍对面的空地上。
加工车间布置应选择易于材料搬运和人员进出的地方。
施工人员生活驻地搭建临时房屋,并配置相应的卫生设施。
110kV变电站二期电气安装工程
施工现场平面布置图
其中:☆代表消防器材,代表道路。
布置说明:
1)租用××变二期附近民房一幢,作为食堂、卫生间等用。
2)在﹟2主变西侧位置边放置材料库、工具间、临时加工间等。
移动集装箱作为项目部办公场所和现场会议室,配置适当的办公设备,挂设相关图表及有关簿册。
3)在110kV场地西侧设置110kV设备堆放区,在10kV电容器组边设置10kV 电容器及接地变材料堆放区。
4)消防设施:
借用变电所及项目部自己配置干粉灭火器,供场地、控制室、10kV配电室、油务区、电缆层、仓库、危险品库等处使用。
消防设施实行定置管理,临时施工需要另行配置移动消防灭火器。
5)提前布置好安全及宣传标牌,力求井然有序。
项目部绘制好现场平面布置图,实行定置管理。
施工现场临时用电、临时用水借用原变电所内的电源及用水。
课程设计4:110kV变电站电气主接线及配电装置平面布置图的设计第一篇:课程设计4:110kV变电站电气主接线及配电装置平面布置图的设计电气工程及其自动化专业电力系统方向课程设计任务书和指导书题目: 110kV变电站电气主接线及配电装置平面布置图的设计指导教师:江静电气主接线及配电装置平面布置图课程设计任务书题目: 110kV 变电站电气主接线及配电装置平面布置图的设计一、课程设计的目的要求使学生巩固和应用所学知识,初步掌握部分工程设计基本方法及基本技能。
二、题目:110kV变电所电气主接线设计三、已知资料为满足经济发展的需要,根据有关单位的决定新建1座降压变电气。
原始资料: 1变电所的建设规模⑴类型:降压变电气⑵最终容量和台数:2×31500kVA:年利用小时数:4000h。
2电力系统与本所连接情况⑴该变电所在电力系统中的地位和作用:一般性终端变电所;⑵该变电所联入系统的电压等级为110kV,出线回路数2回,分别为18公里与电力系统相连;25公里与装机容量为100MW的水电站相连。
⑶电力系统出口短路容量:2800 MVA;3、电力负荷水平⑴高压10 kV负荷24回出线,最大输送2MW,COSΦ=0.8,各回出线的最小负荷按最大负荷的70%计算,负荷同时率取0.8,COSΦ=0.85,Tmax=4200小时/年;⑵24回中含预留2回备用;⑶所用电率1%4、环境条件该所位于某乡镇,有公路可达,海拔高度为86米,土壤电阻系数Р=2.5×104Ω.cm,土壤地下0.8米处温度20℃;该地区年最高温度40℃,年最低温度-10℃,最热月7月份其最高气温月平均34.0℃,最冷月1月份,其最低气温月平均值为1℃;年雷暴日数为58.2天。
四、设计内容1、设计主接线方案⑴确定主变台数、容量和型式⑵接线方案的技术、经济比较,确定最佳方案⑶确定所用变台数及其备用方式。
2、计算短路电流3、选择电气设备4、绘制主接线图5、绘制屋内配电装置图6、绘制屋外配电装置平断面图五、设计成果要求1、设计说明书1份编写任务及原始资料⑴编写任务及原始资料⑵确定主变压器台数、容量和型式⑶确定主接线方案(列表比较)⑷计算短路电流(包括计算条件、计算过程、计算成果)⑸选择高压电气设备(包括初选和校验,并列出设备清单)。
施工组织设计
110kV变电站二期电气安装工程
施工现场平面布置图
页脚内容
施工组织设计
页脚内容 其中:☆代表消防器材,
代表道路。
施工组织设计
布置说明
)租用××变二期附近民房一幢,作为食堂、卫生间等用。
)在﹟ 主变西侧位置边放置材料库、工具间、临时加工间等。
移动集装箱作为项目部办公场所和现场会议室,配置适当的办公设备,挂设相关图表及有关簿册。
)在 场地西侧设置 设备堆放区,在 0 电容器组边设置 电容器及接地变材料堆放区。
)消防设施:
借用变电所及项目部自己配置干粉灭火器,供场地、控制室、 配电室、油务区、电缆层、仓库、危险品库等处使用。
消防设施实行定置管理,临时施工需要另行配置移动消防灭火器。
)提前布置好安全及宣传标牌,力求井然有序。
项目部绘制好现场平面布置图,实行定置管理。
施工现场临时用电、临时用水借用原变电所内的电源及用水。
页脚内容。
电气化铁道供电系统与设计课程设计报告班级:电气084班学号:姓名:指导教师:2011年12 月30日目录1 题目........................................................................................................................... - 1 -2 题目分析及解决方案框架确定............................................................................... - 1 -2.1 分析负荷及原始资料 ........................................................................................ - 1 -2.2 牵引变压器台数和容量的选择 ........................................................................ - 1 -2.3 方案的主接线的拟定 ........................................................................................ - 1 -3 设计过程................................................................................................................... - 2 -3.1 技术经济 ............................................................................................................ - 2 -(1)电压不对称度系数的计算 ...................................................................... - 2 -(2)变压器与配电装置的一次投资与折旧维修费 ...................................... - 5 -(3)方案的年电能损耗 .................................................................................. - 5 -3.2 牵引变电所110kV侧主接线设计 ................................................................... - 6 -3.3 牵引变电所馈线侧主接线设计 ........................................................................ - 7 -(1)馈线断路器100%备用的接线................................................................ - 7 -(2)馈线断路器50%备用的接线.................................................................. - 7 -(3)带旁路母线和旁路断路器的接线 .......................................................... - 8 -3.4 变压器的主接线图 ............................................................................................ - 8 -3.5 绘制牵引变电所的电气主结线图 .................................................................. - 10 -4 设计方案分析.......................................................................................................... - 11 -参考文献...................................................................................................................... - 11 -1 题目某牵引变电所位于大型编组站内,向两条复线电气化铁路干线的四个方向供电区段供电,已知列车正常情况的计算容量为15000kVA (三相变压器),并以10kV 电压给车站电力照明机务段等地区负荷供电,容量计算为1200kVA ,各电压侧馈出数目及负荷情况如下:25kV 回路(1路备):两方向年货运量与供电距离分别为503211⨯=L Q Mt ·km ,254022⨯=L Q Mt ·km ,q ∆=100kWh/10kt ·km 。