(完整版)施工平面总布置图及说明
- 格式:doc
- 大小:22.51 KB
- 文档页数:6
施工总平面布置图(详细版)施工总平面布置(详细版)1施工总平面布置原则1)根据工程特点和现场周边环境的特征,充分利用现有施工现场的场地和布置,做好总平面布置规划,满足生产、文明施工要求。
2)做好现场平面布置和功能分区,对现有临建及管线进行调整。
3)加强现场平面布置的分阶段调整,科学确定施工区域和场地平面布置,尽量减少专业工种之间交叉作业,提高劳动效率。
4)加强平面施工的检查及监督整改,保证场内施工道路通畅。
5)各项施工设施布置要满足方便生产,有利生活,安全防火,环境保护和劳动保护要求。
2场地整体规划2.1施工现场划分根据施工现场情况,我公司将对施工场地进行合理规划,根据各场地的用途对施工现场进行划分。
施工现场设置材料加工、堆放场、材料库、标养室、现场办公室及员工宿舍和食堂。
2.2大门与道路的布置按照现场实际情况,在现场西面和南面设大门做为资料及职员出入口。
大门为钢管-薄铁板组合大门,门外侧在凸显位置设立一个名板,用于书写工程、业主、工程垂问、设想单位、监理单位、施工单位等的名称,书写的格式、标牌的款式和尺寸、设立的位置报送业主审批,文字将约请优等标记绘制职员书写,并在工程举行期间不时从头油漆和书写。
现场四周新建临时道路做为材料运输道路,道路设置为双通道,路宽6m,采用100厚C20现浇混凝土硬化,并按2%的坡度做好排水。
2.3排水设施的布置充分利用前期土方阶段设置在基坑周边的排水设施,在门路一侧增长宽300mm、深350mm的排水沟;按照排污口位置设置2000mm×1000mm×1000mm的沉淀池,举行有组织排水,坡度0.2%,排至排污口。
同时在大门入口处设置洗车槽,配备高压冲洗水枪,以免车辆出入带泥,引起扬尘污染。
2.4办公区临建的布置利用北侧空地做为现场临建布置场地,布置1栋2层的办公用房,主要包孕业主、监理及办理职员办公室、集会室等,共567m2.办公室为简易彩板房,门窗为铝合金门窗,地面为400mm×400mm地板砖,吊顶为600mm×600mm矿棉板吊顶。
完整版)施工平面总布置图及说明施工场地总平面布置及说明施工场地总平面布置1.1 场地布置原则1.1.1 根据业主批示的场地进行布置临时工程和设施。
1.1.2 布置应节约用地,有利于生产、方便生活和管理。
1.1.3 应与业主提供的电源、水源及交通设施等条件相适应。
1.2 施工场地布置位置本标段施工范围为YCK30+951.979~YCK33+246.500,全长2.km。
本标段施工场地将完全利用指定用地,在YCK32+900右侧布置项目部、监理工程师生活和办公房屋、工地中心试验室、工地卫生保健站、各种生产车间等。
在预制箱梁架设起点YCK34+912.550处设箱梁提升站,布置提梁设施及值班房、工具库等少量房屋。
施工场地布置详见“施工场地平面布置图(一)、(二)”。
施工场地布置说明1.临时房屋生活房屋:职工住房、工人宿舍、办公用房等均采用活动板房。
生产房屋:试验室、配电室采用灰砂砖砌筑的三类房屋;钢筋、木工车间采用钢管支架,侧面及屋面采用水泥瓦与钢支架。
2.施工围蔽正式施工围蔽:采用砖砌24墙,或采用5cm厚空心钢板(下部设砖基础)。
围墙外立面绘制宣传壁画,有XXX标志、工地名称、公益及地铁宣传广告,在工地大门外设立相应的施工标牌。
施工临时围蔽:按XXX2001年218号文的要求采用弧形彩色镀锌压型钢板,底部砖砌基础。
场地内进行绿化建设,美化环境,创建“花园式”工地。
全部驻地待工程完工后予以恢复原貌,尤其是将植被恢复。
3.卫生医疗机构本工程地处广州市,医疗机构较健全,拟在项目经理部驻地设卫生保键站,负责做好职工的医疗、预防、保健和早期抢救工作。
4.环保设施在施工驻地修建沉淀池集中处理生活污水,在机械检修保养场地修建隔油池、沉淀池处理产生的含油废水。
在产生生产废水的施工现场,修建沉淀池,将生产废水沉淀处理和其它必要的处理后再后排入城市下水道或河涌。
生活垃圾按可回收利用、可生物降解、不易生物降解分三类设立垃圾箱,分类收集、处理。
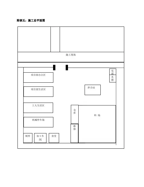
附表五:施工总平面图
施工现场
电
源
水
源项目部办公区
项目部生活区
工人生活区
厕所加工车
间
料场
维
修
仓
库
拌合站
食堂
机械停车场
施工临时设施总平面布置说明
1、生产生活用地:项目部办公及生活区以在工地附近租用场地及办公用房为主。
祥见《施工总平面布置图》《临时用地表》。
2、施工用水:根据现场实际情况给水位置临时布置给水管线,满足施工用水的使用要求,为保证工期及洒水均匀,项目部配洒水车1台。
3、施工用电:电力供应可满足工程需要,该工程施工时,提前与当地供电部门联系。
为防止因临时停电而影响施工,本工程配备1台柴油发电机,作为在停电时,供办公室、安全、保卫照明及临时排水、防汛时应急用电。
4、临时道路:本工程道路交通极为方便,为保证施工安全,工程开工前与交警部门取得联系,合理安排材料运输及排渣路线,并对所施工的段落进行封闭。
5、现场排水:根据总体工期安排和现场情况,本工程的部分施工内容需在雨季进行,为解决施工排水及雨季防汛,在雨季到来之前根据现场实际情况并以现状已建雨水管线为总体排水出路,制定相应的雨季施工技术措施和作好防汛设备、物资的储备工作。
施工总平面图布置图及说明1.编制原则1.1按施工总平面图设想进行现场布置。
1.2根据现场业主已有总电源线位置,接出电源线至现场安设的总配电箱、施工用电采用嵌装埋地电缆做为临时输电方式。
在现场业主给定的水源、电源接入点处安装水表和电表,并按施工现场平面布置现场加密敷设临时用水,用电管线。
1.3按本设计有计划地组织机械料具进场。
1.4项目部测量小组实施定位放线,埋设控制桩。
1.5组织土方专业队进场施工。
现场配足消防器具,确保消防安全。
1.6根据需要,配备通讯设施,连接天气预报广播通讯台,按时收听天气预报。
1.7现场施工布置和临时办公的布置,详总平面布置图。
1.8根据公司的CIS手册要求,所有现场管理严格按照公司的《现场管理手册》执行,保证现场井然有序,并采用隔断、油漆画线、标志板等方式表示不同区域的使用功能。
2.现场出入口及道路2.1现场设置大门,并且设置警卫室,所有人员凭出入证出入,无关人员禁止入内,门卫全天候值班;并特别加强夜间巡逻,防止偷盗现场材料,保护好现场物资;凡进出入现场的设备、材料需出示项目部所签放行条,保安进行登记。
2.2按照市文明工地的要求,对于重载车道,道路采用C20混凝土浇筑,道路混凝土厚20cm,下铺10cm道渣。
其余场地硬化处理,用C20砼浇筑100cm厚。
2.3进场后将立即开始对施工场区内的临时道路施工并与市政主干道连接,施工临时道路在路基压实后采用200厚C20混凝土浇筑,并按2%的坡度做好排水。
场区内除道路、绿化范围以外的其它区域全部采用100厚C15混凝土硬化。
现场车道路宽分别为4m、6m,均可满足消防通行需要。
200厚(100厚)C20素混凝土地面施工道路(硬化场地)构造示意图2.4本工程在临时设施、材料堆场、路边均设置排水篦子,场内排水由路面顺坡进入排水篦子,经沉淀处理后,统一汇入市政管道。
沿场内道路一侧设置宽400mm、深400mm的排水沟;根据排污口位置设置600mm×600mm×600mm的沉淀池,进行有组织排水,坡度0.2%,排至排污口。
施工总平面图编制人:审核人:四川兴江泰建设工程有限公司施工总平面图投标人应递交一份施工总平面图,绘出现场临时设施布置图表并附文字说明,说明临时设施、加工车间、现场办公、设备及仓储、供电、供水、卫生、生活、道路、消防等设施的情况和布置。
施工总平面布置说明一、施工总平面布置依据(1)施工现场的实际踏勘;(2)按照建筑施工安全检查标准具体要求,结合本工程实际施工现场,对施工现场进行合理布置。
二、施工总平面布置原则(1)为了保证总工期及工程质量的要求,我公司本着充分利用现有场地,合理安排施工顺序的原则,现场既要合理科学地布置,又要本着施工方便的基本原则,使临时设施的布局符合工艺流程,且最大限度的缩短工地内的运输距离,减少二次搬运,并避免现场临时设施频繁搬迁而影响工程进展。
(2)钢材堆场、钢材加工棚、周转材料堆场、砖堆场、砂石堆场、库房、办公室及住宿等均设置在现场。
三、施工现场平面布置与管理如果我公司中标,将在施工过程中针对施工现场情况依据布置原则进行具体灵活的布置。
(1)在施工现场布置时,要进行公司企业标识的体现。
具体表现为保证行政办公用品及对外交流手段统一,现场临时建筑标准统一;项目部员工着装统一等。
施工脚手架搭设完成后,结构主体统一用绿色密目安全网全封闭围挡,其中在施工层用专用隔声防尘幕布围挡。
在建筑物最高位置四面张挂横式条幅,进行建设单位和公司的宣传。
(2)为了在施工场地有序地组织现场的平面及立体交叉作业,确定文明施工,施工平面管理由项目经理负责,进行调度平衡。
(3)为了确保施工安全,本工程进行全封闭施工,建筑物四面脚手架满挂密目安全网防护,在建筑物主要出入口外搭设安全架棚,施工场地做临时围挡维护进行封闭施工。
(4)施工现场的水准点、轴线控制点、埋地电缆、水管、架空线路均设置醒目的标识,并加以保护,任何人不得损坏、移动。
(5)凡进入现场的设备,材料应按制定位置放置,不得任意堆放,并做到整齐有序,挂牌明示。
附表五施工总平面图一、临时设置布局说明二、安排计划说明结合施工现场实际情况,对施工现场平面及临时设施进行合理布局,实施封闭式管理。
所有临时用房都在科室门牌做出标志,墙面及天棚均采用空心板屋面。
卫生间、淋浴间及厨房等地面、墙裙铺设面砖,所有生活用房要求文明整洁。
在仓库、食堂等易燃易爆处配置足够的消防设施,预防各种安全隐患的放生。
1、临时施工道路施工主通道由城市道路到施工现场入口进出,场外交通道路利用现有城市道路,场内施工铺设临时道路。
2、临时供水布置临时用水包括施工用水、生活用水、消防用水。
其中施工用水包括砼及砂浆搅拌、养护、浇砖、模板湿润等。
配水管网的布置方法根据本公司以往类似工程经验,主杆线采用中48 镀锌管,支管采用中25 镀锌管。
现场用水采用环向封闭布置,优点是能保证供水的可靠性,当管网某一处发生故障时,水仍可以正常使用。
3、临时供电布置(1)施工用电的估算:施工现场用电分动力与照明两类,照明用电按动力用电的10%计算。
经用电量计算,在高峰施工期,考虑砼拦和、砼泵送、钢筋、木工加工、铺装面板切割加工、水泵排水、生活照明用电等共计总用量为250KW。
(2)配电线路布置根据总用电量,配电电压380/220V 引自建设方提供的电源,采用三相五线制架空配置,分支线用25 平方塑料铜芯线接至各用电设备。
线路应尽量架设在道路内侧,保持线路水平,电线杆采用木杆,间距30 米,分支线及引入线均应由电杆处接出。
施工用电的配电箱要求设置于便于操作的地方,一般离地面高度不小于1.2 米,并且安装漏电保护器,配电箱必须使用劳动部门检验合格的产品。
4、材料堆场根据本工程的实际情况,钢筋堆在现场仓库内并设加工棚。
各种材料堆放,必须整齐、规范,铺装面板加工场及堆场计划分二处设置,具体见平面布置图。
5、施工场地排水为确保施工期间场内排水畅通,施工前必须对本工程排水系统进行综合规划:(1)在施工场地周边开挖纵向排水边沟排水边沟底宽0.5 米,深0.6 米,沟内采用10cm 细石砼铺底,240 砖墙护坡,并且用水泥砂浆粉刷,沟底纵坡不小于0.3 %。
施工总平面布置图及说明1.工程施工现场布置规划本工程施工设备多、工期紧、连续性强,因此需要有严密的施工组织管理和详细的工程施工布置,以确保后方供应。
本次施工平面布置的原则是:首先保证生产用地,其次是生活用地,职工住房及其它附属设施等。
在布置时考虑生产区和生活区相对集中,钢筋加工、施工机械、材料仓库的布置等生产区相对集中,有利于生产加工。
办公区、生活区放在场地靠近大沽南路侧的大门出入口的右侧。
为减少浪费、降低环境污染,施工人员和施工管理项目经理部办公室建成两层彩板房。
临时用水直供不能满足施工要求时,利用提前准备的储水箱储水备用;临时用电,安装配电柜,用电由专人负责管理,保证用电安全。
2.临建的搭设2.1 活动房搭设的基本要求活动房的搭设必须按照施工现场总平面图位置布置,符合安全、消防要求。
同时,活动房必须坚固、安全、防潮、保暖、通风明亮,确保主体结构安全,设施完好。
活动房搭设高度不宜超过两层。
2.2 活动房搭设的加固措施为了增强活动房的抗风能力,阳台增设40×40方管为抗风柱,柱与柱之间有30×30的角铁电焊连接,屋面顶板自上而下用125㎜自攻螺丝与角铁固定。
为了防止冬天的雪荷载,活动房屋顶中间设置40×60方管横梁,以防大雪压垮屋顶。
2.3 施工准备为确保施工进度和质量,需要按照总平面图要求清理活动房搭设场地。
施工用电采用架空线,在总配电箱中引出,在施工现场设置三个配电箱,所有配电箱电源均从总配电箱中引出。
施工技术准备方面,需要积极组织技术人员认真熟悉图纸,向所有作业人员进行搭设方案交底。
物资准备方面,需要按照施工进度计划安排组织货源,确定供应地点和供应方式,在指定地点按规定进行储存和保管。
劳动力准备方面,需要组织精干的施工队伍,安排有施工经验的人员参加施工,合理组织劳动力,在施工前进行安全、防火和文明施工等教育。
2.4 现场安装在安装前,需要现场堆放彩钢夹芯板和轻钢构件,垫木间距不应大于1.5m,上下垫木应对齐,支点处外挑长度不应大于1.0m,堆放高度不应大于1.5m。
附表二施工总平面图★:工程项目部布置处■:施工区布置处食堂餐厅办公室★项目部办公室厕所门卫配电房拌合站实验室宿舍宿舍加工车间设备及仓储临时设施及现场平面布置1、总平面布置的原则:⑴尽量将临时设施布置在山地内,少占农田,生活房屋尽可能租用当地民房。
⑵既有利于生产,又有利于生活布置临时设施。
⑶利用既有道路作为交通设施,道路改造分段、分左右幅进行,保证地面交通。
⑷污水、垃圾处理等符合当地环保部门有关规定要求。
⑸临时生产、生活驻地配备足够的灭火器材。
2、根据本工程的施工任务、地形特点,对重点先期开工的项目临时工程先行解决,本着满足工程施工生产,充分利用现有便道和线路征地范围,经反复比较,周密布置,对主要临时设施拟定如下:(1)生产生活用房:项目经理部及施工队本着就近方便的原则在施工现场附近采用彩钢板自建临时房屋设施。
并设置办公室、会议室、及实验室。
(2)生产生活用电:生产用电采用自备发电机组发电,生活用电采有地方电网。
(3)生产生活用水:项目部和各工程队驻地用房附近各打井一口,用水泵抽水供生活之用。
(4)施工便道:线外便道利用公路,线内便道顺路线方向在左侧路基坡脚外设置机械运土道路。
(5)排水环保设施⑴临时生产、生活和办公区场地周边及房屋四周设排水沟,用于排放生产、生活污水,并采取相应措施,使之符合当地环保部门的有并规定。
⑵土方施工完成后,及时将弃土场进行整平、绿化,防止水土流失、污染河道和农田灌溉系统。
(6)施工通讯:依靠先进的通讯设施与建设单位、监理单位、有关部门及各施工队之间建立灵敏的纵横向联系,便于施工期间的正常协调。
在项目部及各营地、生产区各配备一部固定电话,共计5部;各主要负责人配备移动电话进行联系,施工现场配8部对讲机。
(7)卫生保健在本合同段项目经理部设置医务室,配备一名有经验的专职医生和足够的医疗器械和药品。
预防各种疾病,保障施工人员的身体健康,使施工能够顺利进行。
配小型救护车一辆,并经常与当地医疗机构及医院保持联系,以便对突发的工伤及疾病进行及时救治。
第十章施工总平面布置图第一节施工现场目前现状普兰县雄巴村民房建设项目场地分别位于西藏阿里地区普兰县雄巴村。
该地块地形呈矩形,地块地势较为平坦,市政条件也基本满足本地块的要求。
现场周边交通便利,场地条件良好,地形平整,无地上物,现场已具备五通一平,电源、水源已引至场地的指定位置,现场临时电源采用2台50KW发电机,通信设施接入便利,各种配套设施齐全,利于施工现场平面布置和调动施工资源优势,对保证工期提供有利保证,为工程实施提供了较为完善的条件。
第二节施工总平面布置原则及依据2.1布置原则为保证施工现场布置紧凑合理、现场施工顺利进行,施工平面布置时应综合考虑,平面布置原则确定如下:1依据工程特点和各施工阶段施工要求,综合考虑施工任务,对施工平面实行分阶段布置和管理,把办公区、生产区和加工区分开布置。
2方便各种材料存放以及组织场内运输,便于施工方进行管理和服务。
3施工平面紧凑有序,在满足施工的条件下,尽量节约施工用地。
4按专业划分施工用地,尽量避免各专业用地交叉而造成的相互影响干扰。
5 在保证场内交通运输畅通和满足施工对材料要求的前提下,最大限度的减少场内运输,特别是减少场内二次搬运。
6尽量避免对周围环境的干扰和影响。
7采用装配式施工设施,减少搬迁损失,提高施工设施安装速度。
8符合施工现场卫生及安全技术要求和防火规范。
9充分利用现有条件、综合考虑施工各阶段的工况,按照“四节一保” 要求进行布置,满足绿色节能建筑要求。
10在满足施工生产需要和西藏自治区政府有关规定的前提下,做到“五化”:硬化、绿化、净化、亮化、美化。
2.2 布置依据1招标文件中对施工现场布置的有关要求。
2现场红线、水源、电源位置,以及该地区的规划设计和综合布线图。
3总平面图、建筑平面图、立面图。
4总进度计划及资源需用量计划。
5总体部署和主要施工方案。
6有关安全文明施工、消防及环境保护的要求。
第三节施工平面布置1现场规划施工道路。
临时道路宽度4.5米,做法为200mm混凝土路面, 出入口设冲车区,出口及大门标准,道路两边设路缘石,门口设九牌一图,达到现场文明施工要求。
三、施工总平面布置图及说明
3.1. 施工现场平面布置
施工过程中,施工人员复杂,材料运输、交叉施工麻烦,所以要求施工现场平面有一个合理的布局,而且要有科学严密的管理措施,进行封闭式施工。
详细平面布置见附图一。
3.2 为了缩短各种材料、工具的转运,组织现场平面及立体交叉流水作业,施工平面管理由项目经理负责,日常工作由现场项目副经理、技术负责人组织实施,分片区包干管理。
3.3 现场主要出入口处张贴出入制度、现场管理条例、工程简介、安全管理等规章制度与条款。
3.4 凡进入现场的设备,材料必须按平面布置指定的位置堆放整齐,不得任意堆放。
3.5 现场设置门卫,施工人员佩戴胸卡,便于查验。
3.6 现场分区安排按下列功能进行布置
a.材料堆放:包括大宗材料、水泥河砂、贵重材料、五金杂件、板材、易燃材料等分库房堆放;
b.施工设备、成品及半成品堆放;
c.现场办公室;
d.施工人员住宿统一安排,做到整齐划一,绝对清除脏、乱、散、游现象(建议由甲方统一指定位置及相关要求管理)。
e.各专业施工队加工区;
;..
;..。
施工总平面布置图及说明第一节施工平面布置依据及原则1、施工总平面布置依据①总平面图、基础平面图、各层平面图及立面图。
②施工部署和主要施工方案。
③总进度计划及资源需用量计划。
④业主给定的施工用地范围、水源、电源位置。
⑤施工现场安全防火标准。
⑥招标文件。
2、施工总平面布置原则施工总平面布置上坚持阶段性、适用性、灵活性。
①施工场地作为施工组织的重要部分,必须严格按照招标文件和设计图纸提供的施工条件和施工地点,因地制宜的进行规划安排,作到合理可行。
②根据各施工阶段情况,合理布置施工道路,施工道路尽量贯通,以保证材料运输道路通畅,施工方便;明确划分施工区域和材料堆放、加工场地,不准影响施工。
③符合施工流程要求,减少对各专项工程和专业工种等方面的干扰。
④根据施工总体安排的需要,充分利用规划用地,施工临时用地以满足施工、生产和现场办公需要。
⑤科学合理布置施工临时设施、运输道路、临时用水、临时用电等,立足紧凑性和灵活性,以施工总进度计划为依据进行阶段性调整,为各专业分包提供服务场地,最大限度地减小临时设施占地对其他分项工程的影响,做到投入最低,收效最大,经济适用。
⑥根据交叉施工原则,进行分阶段布置。
同时,现场机械将根据本工程建筑结构特点进行布置,以满足整个现场和整个施工过程的需要。
⑦除按照方案和计划进行布设和调整外,将无条件服从建设单位对总体施工安排,一旦必要,将随时按照建设单位要求对施工区域内临时设施进行相应调整,优先保证施工需要。
⑧施工现场的临时设施的搭建不得损坏测量控制网以及其他需要保护的警示标志,且不影响测量的通视条件。
⑨本工程施工时需建立有效的排水系统,并进行日常维修,防止对周边路面造成污染,做到工地临时排水措施畅通有效,达到“晴雨畅通无阻”的效果。
⑩充分考虑市容与环境保护,且满足安全消防,劳动保护的要求,尽全力减少扰民,尽量不占用施工场地,便于施工。
做到设施布置经济、合理、实用、安全。
3、平面管理体系由一名项目生产副经理负责总平面管理。
施工总平面图布置图及说明第一节施工总平面布置第一小节施工平面布置是施工组织设计的主要组成部分, 它是按照施工部署、施工方案和施工总进度的要求, 将施工现场的道路交通、仓库、材料堆场、搅拌站、材料加工厂、临时房屋、临时水、电管线、生产和生活设施的合理布置, 以图纸形式表现出来, 从而正确处理施工期间所需临时设施和永久建筑、拟建建筑物之间的空间关系, 以指导现场进行有组织、有计划的施工, 是布置施工现场的依据。
施工平面图设计的优劣直接影响到施工进度、生产效率和经济效益。
第二小节施工总平面图的设计依据施工平面图编制前应充分了解建筑总平面图和施工现场地形图, 要踏勘施工现场了解现有水源、电源、场地大小和可利用的房屋等情况, 根据调查得来的资料进行施工组织设计的编制, 经过精心的计算并遵照国家和地方的有关规定编制施工平面图。
其设计依据如下:1.招标文件及承包合同文件。
2.各种资料, 可以分为建设地区的原始资料和设计资料两类。
⑴建设地区的原始资料:①自然条件调查资料, 用来解决当地自然条件引起的相关问题。
如水文、地质条件的调查资料, 用于布置降水措施的选择, 降水观测点的选择;气候、风向的资料, 用于确定易燃、易爆及其他危险源设施布置等。
②建设地域的竖向设计资料和土方平衡图。
用来解决水、电管线的布置和土方的填挖及弃土、取土位置。
③建设单位及工地内可供工人临时居住的房屋、场地、加工设备及生活设施。
用来决定临时建筑及设施所需面积及其空间位置。
⑵设计资料:①总平面图, 用来正确确定临时建筑及其他设施的位置, 以及修建工地运输道路和解决排水等所需的资料;②地下、地上管道位置, 用来决定原有管道的利用或拆除、新管线的敷设及各管道与其他工程的关系, 并注意不能在拟建管道的位置上搭设临时建筑。
3、建设项目的工程概况、施工准备、部署和主要工程施工方案、施工总进度计划, 以便了解各施工阶段情况, 合理规划施工场地。
4、各种建筑材料、构件、加工品、施工机械和运输工具需要量一览表, 以便规划工地内部的储放场地和运输线路。
施工总平面布置图说明1.平面布置采用三分开方式,即生活区、生产区、加工区分开设置,互不干扰,确保安全生产、文明施工。
2主要临设布置:生活区分两块,食堂安排在东北角,住宿区安排在东南角。
办公区安排在正南侧.加工区分成二块,钢筋加工区及钢筋堆放区、预制梁板堆放区安排在北侧方便吊运;模板脚手架堆放区靠近木工加工棚方便加工,砂石水泥砖搅拌站安排在正南,方便加工和吊运.3主要机械设备布置:本工程主要施工机械根据工程规模和施工顺序安排需要设置有: QT1-2型塔吊两台,分别覆盖拟建建筑和各加工区堆放区。
井架4个,分别在拟建建筑无法被塔吊覆盖到的角落。
搅拌机、木工机械、钢筋机械、混凝土振捣器等其他施工机械。
4施工用电、用水:施工现场有东北角接入水源电源,电源经配电室处理,水源经场内水表计量。
4.1施工用水:本工程现场用水分为施工用水、施工机械用水、生活用水和消防用水四部分。
4.2施工用电:本工程现场用电分为施工用电、施工机械用电、生活用电和办公用电四部分。
5施工道路及临时排水:现场施工道路从西侧金华路引入修一条6米宽道路面,路两侧修300×300排水沟,现场施工道路在场内绕一圈从金华路引出。
6现场消防管理:6.1在重点部位如装饰材料库房、配电房、办公室、油料库、木工加工棚、门窗堆放区、模板堆放区等处根据其消防控制特点设置干粉或泡沫灭水器。
6。
2落实消防责任,以项目经理为组长组建项目义消队,队员8~10人,接受公司及专业部门培训,以预防为主,防消结合,确保安全生产。
7施工围墙:7.1施工围墙加高至2。
5m,顶部作砖砌坡面,墙面抹灰刷外墙涂料,作彩绘饰面。
7.2按文明施工规定,设置灯箱式五牌二图,与周边环境相协调,创一流文明施工现场。
施工总平面布置图及说明第一节现场用地及围墙、道路规划第一小节施工现场围墙进场后我单位按文明施工要求在现场设置连续封闭彩板围挡。
高度2.5m。
第二小节现场道路规划及交通组织为了满足施工需求,对施工用临时道路有较高的要求,因此,制定出科学合理、切实可行的施工道路和交通运输解决方案,将在很大程度上提高施工的工作效率。
第三小节场内外道路的特点和要求1与周围环境的协调对外运散装材料、工程垃圾和工程渣土及产生扬尘的废弃物等,在装载过程中,采取喷淋压尘等措施。
运输时必须采用封盖严密的工程车辆。
避免车辆对沿途道路造成污染、损坏和噪声干扰。
2场内道路的特点和要求为满足工程所需的混凝土、钢筋、机电设备等顺利完成运输,在场区内设置临时路。
第四小节场内外交通组织1出入口设置出入口大门宽度在10m左右。
进场后在入口处面处设置排水沟,沉淀池,排向市政管网。
现场设专人做好安全保卫工作。
现场入口处浇筑200~300mm厚C20混凝土路面,设置沉淀池和车辆冲洗设施。
正对大门入口处,设置醒目提示车辆等进入施工现场,必须注意施工安全,服从现场人员指挥等。
2场内道路设置现场道路,主要用于施工人员通行及较小型车辆通行,道路每日进行喷淋降尘,日常设专人进行清扫、喷淋、维护等。
3车辆冲洗设施为避免出场车辆车轮带泥,污染场外道路,在出入口位置设置车辆冲洗设施,并设置沉淀池、冲车泵等。
第二节现场生活、办公设施及构造做法第一小节生活设施1宿舍民工宿舍区设置双层彩板房,宿舍由专职人员进行管理安排。
宿舍内要经常清扫和消毒,保持室内及环境清洁卫生。
宿舍间甬道采取花砖铺装,设置部分绿化。
设置排水沟,保证良好排水,生活垃圾采用封盖密闭容器,严禁乱泼乱倒垃圾、污水。
宿舍实行封闭的物业化管理,建立各项管理制度,设专人负责。
2食堂食堂设置在生活区内,根据宿舍区大小设置食堂,由专人管理。
食堂内要经常清扫和消毒,保持室内及环境清洁卫生。
食堂设专人负责,炊事人员必须由当地卫生检疫部门发放的体检合格证。
施工总平面布置图及说明7.1 施工总平面布置图施工总平面布置图详见附件一。
7.2 施工总平面布置设计原则7.2.1 布置依据1. 招标文件的有关规定。
2. 某市关于环保、安全、文明施工的有关规定。
3. 我公司在实施本工程过程中的项目管理目标。
7.2.2 布置原则项目经理部是工程实施阶段中,履行全公司指挥职能的大本营,肩负对内协调、对外联络的重任,是施工组织神经中枢,对外形象窗口。
基地应大致位于标段的中心,且交通方便,平面布置力求合理、简洁大方。
7.3 主要布置要点7.3.1 场地布置1. 项目经理部设在拟建小区内按业主提供地方进行搭设,占地约1000 ㎡,主要用来搭设甲方、监理、项目部办公室,以及管理员、工人宿舍等。
2. 砼搅拌场设在项目部侧,占地700 ㎡。
7.3.2 施工供电工程的施工、生活用电驳接自甲方提供的电源,采用架空线供电方式,供电线路采用三相五线制进入主配电箱,再由主配电箱拉设至各施工用电点。
同时为保证停电时施工的正常动作,项目部配置200kw 柴油发电机组一台。
7.3.3 给排水1. 生产及生活用水本工程共设置二座蓄水池,容量分别为50、20m3 。
分别供应生产、生活用水。
生活、生产用水驳接甲方提供的当地自来水管线。
2. 排水系统本工程在搅拌站区域沿场地四周和路基两侧开挖明沟排水,排水明沟断面沟底宽40cm,沟顶宽50cm,深50cm。
在项目部四周外侧设一圈30×30cm 砖砌截水沟,砂浆粉面。
生产、生活区废水经排水沟,排放到业主指定位置废弃。
7.3.4 通讯项目经理部管理人员各配置一部对讲机进行工作联系配合施工。
7.3.5 消防在工程施工期间,按照当地消防管理部门的有关规定,配备必需的消防器材并派专人负责保管,定期进行消防安全检查并对职工进行防火知识教育,以做到万无一失。
7.3.6 生产设施的布置临时加工车间、堆场包括钢筋加工车间、钢筋堆场、模板堆场。
(堆场面积如下表)堆场面积表设置2 台750L 砼搅拌机,生产能力为25m3/h。
施工总平面图编制人:审核人:四川兴江泰建设工程有限公司施工总平面图投标人应递交一份施工总平面图,绘出现场临时设施布置图表并附文字说明,说明临时设施、加工车间、现场办公、设备及仓储、供电、供水、卫生、生活、道路、消防等设施的情况和布置。
施工总平面布置说明一、施工总平面布置依据(1)施工现场的实际踏勘;(2)按照建筑施工安全检查标准具体要求,结合本工程实际施工现场,对施工现场进行合理布置。
二、施工总平面布置原则(1)为了保证总工期及工程质量的要求,我公司本着充分利用现有场地,合理安排施工顺序的原则,现场既要合理科学地布置,又要本着施工方便的基本原则,使临时设施的布局符合工艺流程,且最大限度的缩短工地内的运输距离,减少二次搬运,并避免现场临时设施频繁搬迁而影响工程进展。
(2)钢材堆场、钢材加工棚、周转材料堆场、砖堆场、砂石堆场、库房、办公室及住宿等均设置在现场。
三、施工现场平面布置与管理如果我公司中标,将在施工过程中针对施工现场情况依据布置原则进行具体灵活的布置。
(1)在施工现场布置时,要进行公司企业标识的体现。
具体表现为保证行政办公用品及对外交流手段统一,现场临时建筑标准统一;项目部员工着装统一等。
施工脚手架搭设完成后,结构主体统一用绿色密目安全网全封闭围挡,其中在施工层用专用隔声防尘幕布围挡。
在建筑物最高位置四面张挂横式条幅,进行建设单位和公司的宣传。
(2)为了在施工场地有序地组织现场的平面及立体交叉作业,确定文明施工,施工平面管理由项目经理负责,进行调度平衡。
(3)为了确保施工安全,本工程进行全封闭施工,建筑物四面脚手架满挂密目安全网防护,在建筑物主要出入口外搭设安全架棚,施工场地做临时围挡维护进行封闭施工。
(4)施工现场的水准点、轴线控制点、埋地电缆、水管、架空线路均设置醒目的标识,并加以保护,任何人不得损坏、移动。
(5)凡进入现场的设备,材料应按制定位置放置,不得任意堆放,并做到整齐有序,挂牌明示。
施工场地总平面布置及说明
§1、施工场地总平面布置
1.1、场地布置原则
1.1.1、临时工程和设施,是根据业主批示的场地进行布置。
1.1.2、以节约用地,有利于生产、方便生活,便于管理进行布置。
1.1.3、与业主提供的电源、水源及交通设施等条件相适应。
1.2、施工场地布置位置
本标段的下部结构及相关现浇梁和路基段施工里程为YCK30+951.979~YCK33+246.500,全长2.29462km 。
因业主在本次招标图纸中已明确了施工用地范围,故本标段施工场地将完全利用指定用地,在YCK32+900右侧布置项目部、监理工程师生活和办公房屋、工地中心试验室、工地卫生保健站、各种生产车间等。
另外在预制箱梁架设起点YCK34+912.550处设箱梁提升站,布置提梁设施及值班房、工具库等少量房屋。
施工场地布置详见“施工场地平面布置图(一)、(二)”。
§2、施工场地布置说明
1、临时房屋
生活房屋:职工住房、工人宿舍、办公用房等均采用活动板房。
生产房屋:试验室、配电室采用灰砂砖砌筑的三类房屋;钢筋、木工车间采用钢管支架,侧面及屋面采用水泥瓦与钢支架。
2、施工围蔽
正式施工围蔽:采用砖砌24墙,或采用5cm厚空心钢板(下部设砖基础)。
围墙外立面绘制宣传壁画,有广州地铁公司标志、工地名称、公益及地铁宣传广告,在工地大门外设立相应的施工标牌。
施工临时围蔽:按广州市建委2001年218号文的要求采用弧形彩色镀锌压型钢板,底部砖砌基础。
场地内进行绿化建设,美化环境,创建“花园式”工地。
全部驻地待工程完工后予以恢复原貌,尤其是将植被恢复。
3、卫生医疗机构
本工程地处广州市,医疗机构较健全,拟在项目经理部驻地设卫生保键站,负责做好职工的医疗、预防、保健和早期抢救工作。
4、环保设施
在施工驻地修建沉淀池集中处理生活污水,在机械检修保养场地修建隔油池、沉淀池处理产生的含油废水。
在产生生产废水的施工现场,修建沉淀池,将生产废水沉淀处理和其它必要的处理后再后排入城市下水道或河涌。
生活垃圾按可回收利用、可生物降解、不易生物降解分三类设立垃圾箱,分类收集、处理。
生产施工中产生的建筑垃圾,可利用的尽量利用,无法利用的设立垃圾填埋场集中填埋。
合理规划工地厕所位置,搞好工地卫生。
5、安全设施
坚持“安全第一,预防为主”安全方针,施工现场布置足够的安全防火设施,贮备足量的安全防护用品并定期发放,在醒目处设置安全宣传牌,场地布置时,将油类等易燃、易爆品严格按安全法规要求布设、储放,并设立足量的安全消防装置。
6、施工供电
业主在施工现场附近提供了1台500KVA及1台315KVA的变压器作施工用电,初步拟定在YCK32+000附件设一台315KVA变压器,在YCK32+900附件设一台500KVA 变压器。
另配备2台250KW的发电机供停电时应急用,配3台75KW的发电机供主便道及地面线工程施工用。
开工前期,若不能及时使用外接电源,考虑拟投入4台250KW发电机供电。
7、施工供水
接驳业主在施工现场附近提供1处4寸(Φ100)水管作施工用水,分多支管路供场地内生活及施工用水。
开工前期,若业主不能及时提供水源接驳点,将在驻地处打井取水,满足工地生产、生活需要。
8、混凝土供应
本标段混凝土全部采用商品混凝土,供应商由业主招标确定。
考虑到为防止
混凝土供应意外情况发生,保证施工不受影响,在现场备用一台产量50m3/h的混凝土搅拌站供应急。
§3、附图
1、施工场地平面布置图(一)
2、施工场地平面布置图(二)
3、箱梁提升龙门吊方案示意图
施工场地平面布置图(一)
施工场地平面布置图(二)
3、箱梁提升龙门吊方案示意图。