精馏塔装配图
- 格式:doc
- 大小:4.81 MB
- 文档页数:2
精馏塔的结构、工作原理及分类汇总(附图)精馏塔的功能和分类:基本功能:形成气液两相充分接触的相界面,使质、热的传递快速有效地进行,接触混合与传质后的气、液两相能及时分开,互不夹带。
精馏塔分类:精馏塔的种类很多,按接触方式可分为连续接触式(填料塔)和逐级接触式(板式塔)两大类,在吸收和蒸馏操作中应用极广。
板式塔:在圆柱形壳体内按一定间距水平设置若干层塔板,液体靠重力作用自上而下流经各层板后从塔底排出,各层塔板上保持有一定厚度的流动液层;气体则在压强差的推动下,自塔底向上依次穿过各塔板上的液层上升至塔顶排出。
气、液在塔内逐板接触进行质、热交换,故两相的组成沿塔高呈阶跃式变化。
2、板式塔板式塔通常是由一个圆柱型的壳体及沿塔高按一定的间距水平设置的若干层塔板(或塔盘)所组成。
在塔内沿塔高装有若干层塔板,液体靠重力的作用由顶部逐板流向塔底,并在各块板面上形成流动的液层;气体则靠压强差推动,有塔底向上依次穿过各塔板上的液层而流向塔顶。
气液两相在塔内进行逐级接触,两相组成沿塔高呈梯级式变化。
板式塔的塔板塔板是板式塔的主要构件,决定塔的性能。
在几种主要类型错流塔板中,应用最早的是泡罩板,目前使用最广泛的筛板塔和浮阀塔板。
同时,各种新型高效塔板不断问世。
按照结构分,板式塔塔板可以分为泡罩塔、筛板塔、浮阀塔和舌形塔等。
按照流体的路径分,可以分为单溢流型和双溢流型。
3.按照两相流动的方式不同,可以分为错流式和逆流式两种。
(1)溢流塔板溢流塔板(错流式塔板):塔板间有专供液体溢流的降液管(溢流管),横向流过塔板的流体与由下而上穿过塔板的气体呈错流或并流流动。
板上液体的流径与液层的高度可通过适当安排降液管的位置及堰的高度给予控制,从而可获得较高的板效率,但降液管将占去塔板的传质有效面积,影响塔的生产能力。
溢流式塔板应用很广,按塔板的具体结构形式可分为:泡罩塔板、筛孔塔板、浮阀塔板、网孔塔板、舌形塔板等。
(2)逆流塔板逆流塔板(穿流式塔板):塔板间没有降液管,气、液两相同时由塔板上的孔道或缝隙逆向穿流而过,板上液层高度靠气体速度维持。
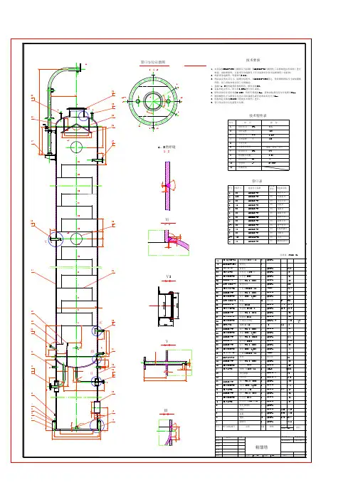
设计数量职务姓名日期制图校核审核审定批准比例图幅1∶20A1版次设计项目设计阶段毕业设计施工图精馏塔重量(Kg)单件总重备注件号图号或标准号名称材料12345基础环筋板盖板垫板静电接地板14824241Q235-A Q235-A Q235-A Q235-A Q235-A Q235-A Q235-A Q235-A Q235-A Q235-A Q235-A Q235-A·F 16MnR Q235-A 67891011121314151617JB4710-92GB/T3092-93HG20594-97JB4710-92GB/T3092-93HG20594-97JB4710-92GB/T3092-93HG20594-97HG5-1373-80引出孔 φ159×4.5引出管 DN40法兰 PN1.0,DN40排气管 φ80接管 DN20,L=250法兰 PN1.0,DN20液封盘塔釜隔板筒体 φ1600×16进料管 DN32法兰 PN1.0,DN32吊柱111411111111 6.723.931.55322.794.2374.19140.62.975.382.364.671.170.411.0321.9376181210.692.02380Q235-A·F Q235-A 1111111311177511组合件16MnR Q235-A Q235-A Q235-A Q235-A Q235-A Q235-A 45Q235-A·F Q235-A Q235-A Q235-A Q235-A 组合件Q235-A 111111224Q235-A 16MnR Q235-A Q235-A Q235-A Q235-A Q235-A181920212223242526272829303132333435363738394041扁钢 8×16HG20594-97HG20594-97HG20594-97HG20594-97GB/T3092-93GB/T3092-93GB/T3092-93HG8162-87JB/T4737-95HG20594-97HG20594-97GB/T3092-93GB/T3092-93GB/T3092-93JB/T4736-95HG21515-95HJ97403224-3HJ97403224-7JB/T4734-95JB4710-92JB4710-921Q235-A HG20652-1998JB/ZQ4363-86上封头DN1600×16接管 DN20,L=250法兰 PN1.0,DN20出气管 DN600法兰 PN1.0,DN600接管 DN20,L=250法兰 PN1.0,DN20气体出口挡板回流管 DN45法兰 PN1.0,DN45补强圈 DN450×8人孔 DN450塔盘接管 DN20,L=250法兰 PN1.0,DN20下封头DN1600×16裙座筒体法兰 PN1.0,DN20引出管 DN20引出孔 φ133×4检查孔排净孔地脚螺栓M42×4.5GB704-88370.70.411.0382.3248.10.411.031.874.150.962.36118.3310.10.411.03370.738021.032.612.2442.540.616.944.3δ=81406234541393837789101112363534333213143115163029172827262524231819202122abcdefighj1klnm5m7ⅥⅤⅣⅢⅡⅠ技术要求1、本设备按GB150-1998《钢制压力容器》和HG20652-95《钢制化工容器制造技术要求》进行制造、试验和验收,并接受劳动部颁发《压力容器安全技术监察规程》的监督;2、焊条采用电弧焊,焊条牌号E4301;3、焊接接头型式及尺寸,除图中标明外,按HG20583-1998规定,角焊缝的焊接尺寸按较薄板厚度,法兰焊接按相应法兰中的规定;4、容器上A、B类焊缝采用探伤检查,探伤长度20%;5、设备制造完毕后,卧立以0.2MPa进行水压试验;6、塔体直线允许度误差是H/1000,每米不得超过3mm,塔体安装垂直度允差是最大30mm;7、裙座螺栓孔中心圆直径允差以及相邻两孔或任意两弦长允差为2mm;8、塔盘制造安装按JB1205《塔盘技术条件》进行;9、管口及支座方位见接管方位图。
1、本设备按GB150-1998《钢制压力容器》和HG20652-95《钢制化工容器制造技术要求》进行制造、试验和验收,并接受劳动部颁发《压力容器安全技术监察规程》的监督;2、焊条采用电弧焊,焊条牌号E4301;3、焊接接头型式及尺寸,除图中标明外,按HG20583-1998规定,角焊缝的焊接尺寸按较薄板厚度,法兰焊接按相应法兰中的规定;4、容器上A、B类焊缝采用探伤检查,探伤长度20%;5、设备制造完毕后,卧立以0.2MPa进行水压试验;6、塔体直线允许度误差是H/1000,每米不得超过3mm,塔体安装垂直度允差是最大30mm;7、裙座螺栓孔中心圆直径允差以及相邻两孔或任意两弦长允差为2mm;8、塔盘制造安装按JB1205《塔盘技术条件》进行;9、管口及支座方位见接管方位图。
12345k8679j1101112in1131423453011lⅠ414039审核审定批准1:5Ⅲ设计制图校核职务件号1234569781034Ⅱj3Ⅲ35383736ghⅣ33323127Ⅴ1:5191513121417161823212022252426ⅤI1:52928303133323534363738394041Ⅵ181516Ⅴf33m531323435175051m71920bca3029e282726afk 1:2Ⅵ1:2A、B类焊缝j1管口方位示意图m1-7j4d2524232221bcel g dnij2hj3HG20594-971 1.03设计项目设计阶段重量(Kg)总重322.794.2374.19140.62.975.382.364.670.41精馏塔1∶20比例图幅A1版次引出孔 φ159×4.5法兰 PN1.0,DN40接管 DN20,L=250日期姓名图号或标准号名称基础环筋板JB4710-92GB/T3092-93HG20594-97JB4710-92GB/T3092-93静电接地板盖板垫板引出管 DN40排气管 φ80材料Q235-A Q235-A 数量148单件6.72Q235-A Q235-A Q235-A Q235-A Q235-A Q235-A Q235-A Q235-A 2424114111 3.931.551.17毕业设计施工图备注21.9376181210.692.02380370.70.411.0382.3248.10.411.031.874.150.962.36118.3310.10.411.03370.738021.032.612.2442.54总质量:27685 Kg29011Q235-A GB/T3092-93回流管 DN45法兰 PN1.0,DN20筒体 φ1600×16法兰 PN1.0,DN32上封头DN1600×16接管 DN20,L=250法兰 PN1.0,DN20法兰 PN1.0,DN600接管 DN20,L=250法兰 PN1.0,DN20GB/T3092-93GB/T3092-93JB4710-92HG20594-97HG5-1373-80JB/T4737-95进料管 DN32塔釜隔板液封盘吊柱GB/T3092-93HG20594-97HG20594-97HG8162-87HG20594-97GB/T3092-93GB704-88出气管 DN600扁钢 8×16气体出口挡板1Q235-A Q235-A Q235-A·F 16MnR Q235-A Q235-A·F Q235-A 组合件16MnR 1111111Q235-A Q235-A Q235-A Q235-A Q235-A Q235-A·F 1111311450.6法兰 PN1.0,DN45接管 DN20,L=250法兰 PN1.0,DN20下封头DN1600×16法兰 PN1.0,DN20地脚螺栓M42×4.5HG20594-97JB/T4736-95HG21515-95HJ97403224-3HG20594-97GB/T3092-93HJ97403224-7JB/T4734-95补强圈 DN450×8人孔 DN450塔盘裙座筒体HG20594-97GB/T3092-93JB4710-92JB4710-92HG20652-1998JB/ZQ4363-86引出管 DN20引出孔 φ133×4检查孔排净孔Q235-A Q235-A Q235-A 组合件Q235-A Q235-A 16MnR Q235-A 71751111116.944.357Q235-A Q235-A Q235-A Q235-AQ235-A 1111224δ=8技术特性表连接尺寸标准HG20594-97HG20594-97HG20594-97HG20594-97HG20594-97HG20594-97HG20594-97HG20594-97HG20594-97HG20594-97HG20594-97HG20594-97HG21515-95h20l 20m1-7n40450j1-4k i 204020公称尺寸d20f ge 322045符号b c 20600凹液面计口凹凹凹凹凹凹出料口人孔再沸器返回口温度计口排气管口至再沸器口紧密面型式凹凹凹凹凹凹压力计口回流口进料口液面计口用途或名称温度计口气相出口管口表7许用应力 MPa 焊缝接头系数腐蚀裕量 mm 全容积 m 容器类别111098设计压力 MPa 设计温度 ℃工作压力 MPa 工作温度 ℃工作介质主要受压元件6543序号21项 目0.5857.93271170指 标0.11500.027筒体、封头、法兰102技术要求。
填料塔的附属结构填料支承板(Packing support plate )主要包括:填料支承装置;液体分布及再分布装置;气体进口分布装置;除沫装置等。
要求:(1)足够的机械强度以承受设计载荷量,支承板的设计载荷主要包括填料的重量和液体的重量。
(2)足够的自由面积以确保气、液两相顺利通过。
总开孔面积应不小于填料层的自由截面积。
一般开孔率在70%以上。
常用结构:栅板;升气管式;气体喷射式。
栅板(support grid):优点是结构简单,造价低;缺点是栅板间的开孔容易被散装填料挡住,使有效开孔面积减小。
升气管式:具有气、液两相分流而行和开孔面积大的特点。
气体由升气管侧面的狭缝进入填料层。
气体喷射式(multibeam packing support plate):具有气、液两相分流而行和开孔面积大的特点。
气体由波形的侧面开孔射入填料层。
床层限位圈和填料压板(Bed limiter and hold down plate)填料压紧和限位装置安装在填料层顶部,用于阻止填料的流化和松动,前者为直接压在填料之上的填料压圈或压板,后者为固定于塔壁的填料限位圈。
规整填料一般不会发生流化,但在大塔中,分块组装的填料会移动,因此也必需安装由平行扁钢构造的填料限制圈。
液体分布器(Liquid distributor)作用:将液体均匀分布于填料层顶部。
莲蓬头分布器:一种结构十分简单的液体喷洒器,其喷头的下部为半球形多孔板,喷头直径为塔径的1/3~1/5,一般用于直径在0.6m以下的塔中。
它的主要缺点是喷洒孔易堵塞,且气量较大时液沫夹带量大。
压力型多孔管式分布器:有环形和梯形两种。
优点:结构简单、造价低、易于支承。
自由面积较大,气体阻力小,适用于气体流量很大的场合。
其操作弹性在2~2.5:1之间。
缺点:也存在小孔易堵塞的问题,故被喷淋的液体不能有固体颗粒或悬浮物。
梯形二级槽式液体分布器优点:具有较多的喷淋点数,分布质量比较高,且操作弹性可高达4:1。
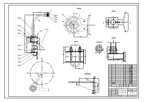
AIII操作平台位置线A-A 不按比例B-B C-C I II 项目签字日期设计校核审核审定2002过控专业申晓丽丙烯精馏塔吊柱部件图比例沈 阳 化 工 学 院设计项目设计阶段第七张共七张件号名 称材 料重量比例所在图号装配图号吊 柱组合件件号名 称材料单总重量(kg)备注垫 板槽 钢套 筒防 雨 罩套 筒导 向 板固 定 销手 柄吊 柱 管 螺 母 M20垫 片挡 板吊 钩不按比例不按比例不按比例不按比例BS-T07垫 板54-154-254-354-454-554-654-754-854-954-1054-1154-1254-1354-145858-158-258-358-458-558-658-758-858-958-1058-1158-1258-1358-14Q235-A.F111111121141111:10BS-T07BS-T011:10BB A球状支撑祥图不按比例X45°Q235-A.F Q235-A.F Q235-A.F Q235-A.F Q235-A.F Q235-A.F Q235-A.F Q235-A.F Q235-A.F Q235-A.F Q235-A.F Q235-A.F Q235-A.F BS-T07BS-T07BS-T07BS-T07BS-T07BS-T07BS-T07BS-T07BS-T07BS-T07BS-T07BS-T07BS-T07BS-T07数量CC不按比例项目签字日期设计校核审核审定2002过控专业申晓丽丙烯精馏塔塔板零件图比例沈 阳 化 工 学 院设计项目设计阶段第五张共七张件号名 称材 料重量比例所在图号装配图号中间降液板件号名 称材 料重量比例所在图号装配图号受液盘件号名 称材 料重量比例所在图号装配图号中间受液槽件号名 称材 料重量比例所在图号装配图号侧降液板BS-T051:10Q235-A.F 23-1476.8BS-T05BS-T03Q235-A.F Q235-A.F Q235-A.F BS-T05BS-T05BS-T05BS-T02BS-T0222-1122-12BS-T0323-111:628.71:1056.5按筒直径放样1:772.525其余25其余25其余25其余项目签字日期设计校核审核审定2002过控专业申晓丽丙烯精馏塔塔板零件图比例沈 阳 化 工 学 院设计项目设计阶段第六张共七张件号名 称材 料重量比例所在图号装配图号筋 板件号名 称材 料重量比例所在图号装配图号连 接 板件号名 称材 料重量比例所在图号装配图号支 承 座件号名 称材 料重量比例所在图号装配图号支 持 圈 A 件号名 称材 料重量比例所在图号装配图号支 持 圈 B 件号名 称材 料重量比例所在图号装配图号龙 门 铁件号名 称材 料重量比例所在图号装配图号卡 板件号名 称材 料重量比例所在图号装配图号楔 子BS-T0623-9Q235-A.F 1:2BS-T06BS-T021.523-121:41:51:6BS-T06BS-T06BS-T06BS-T02Q235-A.F 6.14此面与塔壁焊接弯曲部分分左右22-9BS-T03Q235-A.F 5.123-10Q235-A.F BS-T024.01:1022-14BS-T06BS-T03Q235-A.F 9.723-523-723-6Q235-A.F Q235-A.F Q235-A.F 2:12:12:1BS-T06BS-T06BS-T06BS-T02BS-T02BS-T0225其余25其余25其余25其余25其余25其余25其余20X45°0.040.070.06点焊项目签字日期设计校核审核审定2002过控专业申晓丽丙烯精馏塔零部件图比例沈 阳 化 工 学 院设计项目设计阶段第二张共七张件号名 称材 料重量比例所在图号装配图号件号名 称材料单总重量(kg)备注半弓形板矩 形 板通 道 板 浮 阀龙 门 铁楔 子卡 板筋 板筋 板支持圈A 受 液 盘连 接 板中间降液板中间支持板筋 板1:1不按比例BS-T0223中间降液塔盘23-123-223-323-423-523-623-723-823-923-1023-1123-1223-1323-1423-1523-123-223-323-423-523-623-723-823-923-1023-1123-1223-1323-1423-15442332841001622424223Q235-A.F技术要求1.本塔盘按JB1205-80《塔盘技术条件》制造、验收;2.焊接采用电弧焊,焊条型号E5015;3.焊接接头型式及尺寸除图中注明外,均按GB205484-98中规定,角焊逢腰按较薄板厚度;4.塔盘的支撑验收后塔板的支撑面应保持同一水平面允许偏差4mm.1:11:11:11:1组合件3391:10BS-T02BS-T011:10Q235-A.F Q235-A.F Q235-A.F Q235-A.F Q235-A.F Q235-A.F Q235-A.F Q235-A.F Q235-A.F Q235-A.F Q235-A.F Q235-A.F Q235-A.F Q235-A.F BS-T04BS-T04BS-T04BS-T02BS-T06BS-T06BS-T06BS-T06BS-T06BS-T05BS-T06BS-T05BS-T04有左右之分有左右之分不按比例项目签字日期设计校核审核审定2002过控专业申晓丽丙烯精馏塔塔板零件图比例沈 阳 化 工 学 院设计项目设计阶段第五张共七张件号名 称材 料重量比例所在图号装配图号中间降液板件号名 称材 料重量比例所在图号装配图号受液盘件号名 称材 料重量比例所在图号装配图号中间受液槽件号名 称材 料重量比例所在图号装配图号侧降液板BS-T051:10Q235-A.F 23-1476.8BS-T05BS-T03Q235-A.F Q235-A.F Q235-A.F BS-T05BS-T05BS-T05BS-T02BS-T0222-1122-12BS-T0323-111:628.71:1056.5按筒直径放样1:772.525其余25其余25其余25其余。
1、本设备按GB150-1998《钢制压力容器》和HG20652-95《钢制化工容器制造技术要求》进行
制造、试验和验收,并接受劳动部颁发《压力容器安全技术监察规程》的监督;2、焊条采用电弧焊,焊条牌号E4301;
3、焊接接头型式及尺寸,除图中标明外,按HG20583-1998规定,角焊缝的焊接尺寸按较薄板
厚度,法兰焊接按相应法兰中的规定;
4、容器上A、B类焊缝采用探伤检查,探伤长度20%;
5、设备制造完毕后,卧立以0.2MPa进行水压试验;
6、塔体直线允许度误差是H/1000,每米不得超过3mm,塔体安装垂直度允差是最大30mm;
7、裙座螺栓孔中心圆直径允差以及相邻两孔或任意两弦长允差为2mm;
8、塔盘制造安装按JB1205《塔盘技术条件》进行;
9、管口及支座方位见接管方位图。
1
23
45
k
86
79
j1
10
1112
i
n
1
13
14
2
3
4
5
30
11l
Ⅰ
41
40
39
审核审定批准
1:5
Ⅲ
设计制图校核职务件号
12345
6
9
7810
34
Ⅱ
j3
Ⅲ
35
38
3736g
h
Ⅳ
33
3231
27
Ⅴ
1:5
19151312
141716
1823212022
252426ⅤI
1:5
292830
3133
323534363738
39
40
41Ⅵ
18
15
16Ⅴ
f
33
m5
31
32
34
35
17
50
51m7
19
20b
c
a
30
29e
28
2726
a
f
k 1:2
Ⅵ
1:2
A、B类焊缝
j1
管口方位示意图
m1-7j4
d
25
24
2322
21b
c
e
l g d
n
i
j2h
j3
HG20594-971 1.03设计项目设计阶段
重量(Kg)
总重322.7
94.2374.19140.62.97
5.382.364.67
0.41
精馏塔
1∶20
比例
图幅
A1
版次
引出孔 φ159×4.5法兰 PN1.0,DN40接管 DN20,L=250日期
姓名
图号或标准号
名称
基础环
筋板JB4710-92
GB/T3092-93HG20594-97JB4710-92GB/T3092-93静电接地板盖板垫板引出管 DN40排气管 φ80材料Q235-A Q235-A 数量
148单件6.72Q235-A Q235-A Q235-A Q235-A Q235-A Q235-A Q235-A Q235-A 2424114111 3.931.551.17毕业设计施工图
备注
21.9376181210.692.02380370.70.411.0382.3248.10.411.031.874.150.962.36118.3
310.10.411.03370.738021.032.612.2442.54总质量:27685 Kg
2901
1Q235-A GB/T3092-93回流管 DN45法兰 PN1.0,DN20筒体 φ1600×16法兰 PN1.0,DN32上封头DN1600×16接管 DN20,L=250法兰 PN1.0,DN20法兰 PN1.0,DN600接管 DN20,L=250法兰 PN1.0,DN20GB/T3092-93GB/T3092-93JB4710-92
HG20594-97HG5-1373-80JB/T4737-95进料管 DN32塔釜隔板液封盘
吊柱
GB/T3092-93HG20594-97HG20594-97HG8162-87HG20594-97GB/T3092-93GB704-88出气管 DN600扁钢 8×16气体出口挡板1Q235-A Q235-A Q235-A·F 16MnR Q235-A Q235-A·F Q235-A 组合件16MnR 1111111Q235-A Q235-A Q235-A Q235-A Q235-A Q235-A·F 1111311450.6
法兰 PN1.0,DN45接管 DN20,L=250法兰 PN1.0,DN20下封头DN1600×16法兰 PN1.0,DN20地脚螺栓M42×4.5HG20594-97JB/T4736-95HG21515-95HJ97403224-3HG20594-97GB/T3092-93HJ97403224-7JB/T4734-95补强圈 DN450×8人孔 DN450塔盘裙座筒体
HG20594-97GB/T3092-93JB4710-92JB4710-92HG20652-1998JB/ZQ4363-86引出管 DN20引出孔 φ133×4检查孔
排净孔Q235-A Q235-A Q235-A 组合件Q235-A Q235-A 16MnR Q235-A 71751111116.944.357
Q235-A Q235-A Q235-A Q235-A
Q235-A 1111224δ=8
技术特性表
连接尺寸标准
HG20594-97HG20594-97HG20594-97HG20594-97HG20594-97HG20594-97HG20594-97HG20594-97HG20594-97HG20594-97HG20594-97HG20594-97HG21515-95h
20l 20m1-7
n
40
450j1-4k i 204020公称尺寸
d
20f g
e 322045符号b c 20600凹液面计口凹凹凹凹凹凹
出料口人孔再沸器返回口
温度计口排气管口至再沸器口紧密面
型式凹凹凹凹凹凹压力计口回流口进料口液面计口用途或名称温度计口气相出口管口表
7许用应力 MPa 焊缝接头系数腐蚀裕量 mm 全容积 m 容器类别
11
109
8设计压力 MPa 设计温度 ℃工作压力 MPa 工作温度 ℃工作介质主要受压元件65
43
序号
21项 目0.5857.93271170指 标0.11500.027筒体、封头、法兰102
技术要求。