12x13 三层自建房设计图夹层平面图户型图设计图纸
- 格式:pdf
- 大小:124.30 KB
- 文档页数:4
带车库12x13米三层库欧式别墅,大气美观,适合农村自建新年快乐也许是越来越多的人抛弃了农村老家,进城生活,我们这个时代,从来没有像今天这样,深切地关注、谈论乡愁。
也许吵闹的城市缺少人情温暖,人需要一片寄情的山水,在闲暇的时光中,故乡隐约的召唤牵动灵魂,化作乡愁入梦。
此心安处是吾乡,离家在外奋斗半辈子,心中惦念的还是家长那片土地,这时候不妨落叶归根建一栋,安居故里设计主体为经典的欧式外观,淡黄色真石漆外墙搭配蓝色坡屋顶,油然而生一种体面之感。
加上层层错落阳台及露台,生出一种参差美感。
立面造型更加连贯,设计感十足。
整体显得很内敛但其精致的墙体浮雕又表示出它的不一般!基本信息别墅编号:SF200129L 占地尺寸:12.0x13.90米占地面积:182平方米建筑面积:490平方米结构类型:框架结构主体造价:60-80万左右一层设门厅玄关,客厅、餐厅、厨房、车库、一间办公室、1间卫生间,一间储物间。
踏步入户,迎面布置隔断墙设神龛,既能避免入户见梯,还能照顾到乡村居住的传统需求。
客厅面积较大且和餐厅做错开设计,避免油烟进入生活区,同时增加住宅的层次感。
亲友拜访吃过饭还能去办公室坐坐,一起打打牌、玩玩游戏、聊聊天,乡村的闲暇时间能够好好打发,如有需要也可改作老人房。
闲暇的午后,可以邀上同样清闲的三两好友在娱乐室办公区,打打牌、聊聊天,既能打发时间也能增进感情。
二层设起居室5间卧室、两间卫生间、一个阳台。
二楼为主要的休息区,布局以实用为主,布置5间卧室,家中每个成员都有独立的私享空间。
阳台视线极佳,将山黛四围尽收眼底,清新自然的气息充满室内,尽显纯正的乡村大宅风范。
三层设健身房、三间卧室、两间卫生间、一个大露台。
室外有大露台,家人吃完饭后可以到这里来坐一会,吹吹乡间的山风,看看满天星光,再收拾好疲乏了一天的身心去安睡。
室内示例:卧室:卫生间:。
13×13米三层农村别墅图纸
效果图
户型基本信息
开间:13米,进深:13米
占地面积:169平方米
建筑高度:10.24米
结构类型:框架结构
主体造价参考:35万左右
户型特点:
1、一层设有堂屋,延续了农村传统做法;
2、客厅挑空,落地窗的设计又充溢着现代感;
3、多卧室的设计符合农村切实需求,空间利用率极高;
4、低调的主体色彩搭配透露出富贵气息。
一层平面图
一层设有1室2厅1厨1卫1书房,其中客厅挑空,楼梯采用旋转楼梯的设计,入门是堂屋,可以说是传统和现代的结合体。
二层平面图
二层设有3室1厅1书房1卫,可以看得出来这栋别墅的主人是个很爱好学习的人,一层和二层、三层都有书房的设计,当然一楼和三楼的书房是可以改成娱乐室、休闲室之类的。
三层平面图
三层设有4室1卫1书房3个小阳台,虽然平面图上展示的是露台设计,其实面积不够大姑且算是阳台吧。
整栋别墅的设计是按照客户个人要求定制的,可能有的地方不能被很多人理解接受,但是如果适当的调整又会是另一套不同风格的别墅了,这也是农村别墅的奇妙之处了。
底层带商铺农村自建房
一、建筑概况
建筑高度:12米(含屋顶)
结构形式:砖混结构;
占地:本工程的占地面积为195平方米
总建筑面积:为448平方米
层数:三层
二、建筑功能
一层:主客厅、过道、卫生间、老人卧室、商铺
二层:卧室、起居客厅、卫生间、厨房、阳台
三层:休闲区、露台厨房、餐厅、储物室、卧室、卫生间
三、图纸目录
建筑:一层平面图、二层平面图、屋顶平面图,按乡镇报建图标准绘制。
效果图:外立面图、一层室内图。
四、图纸文件
1、效果图
2、建筑平面图
1、效果图
首层老人房
首层客厅、老人房、卫生间视角
2、建筑平面图。
方案一基本信息
图纸编号:GC3109 建筑风格:欧式风格
结构类型:砖混结构预估造价: 37.08 - 55.62万
占地面积:151.72m²建筑面积:370.77m²
间进深:12.60 x 12.80 m 支持定制:击定制
方案一图纸介绍
这套三层的欧式房屋设计图纸,占地面积为12X12米,内部采用的复式客厅的设计。
并且外观上采用了欧式气高贵的设计,能够让你真正享受到豪华别墅的居住体验!
方案一设计功能
一层:客厅,餐厅,厨房,卫生间,卧室,储物间
二层:三个卧室,卫生间,棋牌室,露台,休闲区
三层:卧室,衣帽间,卫生间,书房,露台
方案一图纸内容
建筑施工:建筑设计说明、建筑构造表、平面图、立面图、剖面图、楼梯平面详图、墙身详图、节详图、门窗样图、门窗表等;
结构施工:结构设计总说明、基础平面布置图、顶梁结构平面图、样图、楼梯施工图等;
给排水图:给排水设计说明、给排水平面图、卫生间样图、化粪池样图、给排水系统图等;
电气施工:电气设计说明、电气系统图、照明平面图、座平面图、电讯平面图、接地平面图、防雷平面图等;
图:包含A3设计图纸+彩色图(过塑)(打印版图纸,不发电子版)
方案一图
方案一平面图。
上下下14AC12000190048005200390016002700380020001900480021003100550027003800M1824M 0921M 0921M 0820M30332000800C2122C2118C 1818C3428C 090910000±0.0000.1500.50016.7 m²客厅18.8 m²堂屋15.7 m²房间17.1 m²车库16.5 m²餐厅3.3 m²卫生间5.0 m²厨房12.5 m²楼梯间香火23B2001200270270270120035033751751250180012508002100900152398398152705502802803004300300260021008002700350300045060090060060018007001360AA5131 : 70一层平面图项目ABCDEABCDE桂林云合房屋设计室农村别墅北下上14ACM2427M 0921M 0921M 0820C2118C2118C 1818C2122C1818200060013001600270013002500200060013001600270013002500M 0921M 0820M 0820C 0909C 0909C1512C 0909120001000019004800160036006001300280020002100310014001500120080026005.0 m²厨房16.5 m²餐厅18.7 m²客厅15.8 m²房间3.2 m²卫生间13.5 m²房间4.3 m²卫生间16.1 m²主卧3.3 m²卫生间12.4 m²楼梯间阳台23B9502100850950240095080021009002600210080060015006009501800105070018006006009006005509005503509003504.000613300300管道洞口管道洞口下水管164.000350150********32080130505018028252项目ABCDEABCDE桂林云合房屋设计室农村别墅1 : 70二层平面图1 : 201大门饰线下14AC1200010000190048001600360019004800210031002000190043001300250020003500270038008002600140015001200M2427M 0921M 0921M 0820C2118C2118C 1818C1818M0921M 0820C 0909C1512C 09095.0 m²厨房16.5 m²餐厅3.3 m²卫生间18.7 m²厅15.8 m²房间3.2 m²卫生间13.5 m²房间12.4 m²楼梯间阳台露台23B10.20095024009508002100900260021008006001500600950180010506009006006001800700350900350管道洞口管道洞口雨水管1%1%1%1%1%下水管2710.200310025060702601006019012040项目ABCDEABCDE桂林云合房屋设计室农村别墅 说明:默认隔墙厚200mm,未注门跺尺寸为120mm,墙、柱未注 1 : 70四层平面图1 : 202三层饰线14AC12000100001100425055052004504001200040040033505504300550325040023B太阳能1.4851.9105505200450215021502550265018686821%1%1%1%1%1%雨水管雨水管雨水管384813.30023001502001003502001201008079016015020012012012070项目ABCDEABCDE桂林云合房屋设计室农村别墅1 : 70屋面平面图1 : 203天沟大样1 : 204阳台飘檐大样±0.000-0.4504.0007.10010.20019103100310031004000A13300450C13.30033°33°1485115022041926501800180018001150115060060214012001500600600770610690550150x 3= 450805205050030°30080项目ABCD EABCDE桂林云合房屋设计室农村别墅1 : 70东立面图±0.000-0.4504.0007.10010.20011910310031003100400041330045013.300148530°30°226011990090090012006008052050115011501150400220050040022005001200214060600610690550600600350028504001202301150项目ABCDEABCDE桂林云合房屋设计室农村别墅1 : 70南立面图±0.000-0.4504.0007.10010.20014853100310031004000A13300450C13.300191033°33°4192650265018009001800180090090018001800210012006006021401200610690550600600150077011501150115050030°300项目ABCDEABCDE桂林云合房屋设计室农村别墅1 : 70西立面图±0.000-0.4504.0007.10010.20014000310031003100191044501330013.3009009009001200150150150900900900400390030036°5208050项目ABCDEABCDE桂林云合房屋设计室农村别墅1 : 70北立面图上下下下上±0.000±0.000-0.450-0.4504.000 4.0007.1007.10010.20010.200CB5200310031003500500155x 10= 1550155x 10= 1550155x 10= 1550155x 10= 1550175x 10= 1750175x 10= 17505002001200260x9= 234013602002001200260x9= 234013602002001200260x9= 234013602002001200260x9= 23401360200980980980980AT1AT1AT2AT2AT2AT2C3B27002001200100120020052002001360260x 9= 23401200200C3B2700200120010012002002001360260x 9= 234012002005200项目ABCDE ABCDE桂林云合房屋设计室农村别墅 1 : 505楼梯一层平面图1 : 506楼梯二层平面图100210010010022001004255012505042550470804157041580470506010028008050470501660504606010033751005074380780707808074350602811575240502050480804457044580480508018008022021806012705036060350300项目ABCDEABCDE桂林云合房屋设计室农村别墅1 : 25C21221 : 25C34281 : 10圆窗C0606。
三层别墅全套设计图纸_
图纸属性
编号:DC0125 层数:三层结构形式:框架结构主体造价:30-35万
开间:10.9米进深:13.5米占地面积:131.14平方米建筑面积:359.42平方米图纸内容
建筑图:建筑设计总说明、室内材料表、总平面图、一层平面图、二层平面图、三层平面图、屋顶平面图、正立面图、背立面图、左立面图、右立面图、1-1剖面图、节点大样图结构图:基础平面图、基础详图、一层柱配筋平面图、二层柱配筋平面图、三层柱配筋平面图、三层肋板平面布置图、屋面层肋板平面布置图、基础梁配筋图、二层梁配筋图、三层梁配筋图、屋面层梁配筋图、二层结构平面图、三层结构平面图、屋面层结构平面图、楼梯配筋详图、节点配筋详图
给排水图:给排水设计说明及图例、给排水管道透视图、一层给排水平面图、二层给排水平面图、三层给排水平面图、屋顶给排水平面图
电气图:电气设计总说明及图例、配电系统图、一层电气平面图、二层电气平面图、三层电气平面图、屋顶防雷平面图、一层弱电平面图、二层弱电平面图、三层弱电平面图、基础接地平面图
设计功能
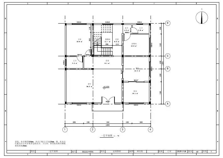
一层:客厅、卧室(附卫生间)、卧室、厨房、餐厅、储藏间、卫生间
二层:客厅(附阳台)、主卧(附卫生间)、2卧室、卫生间
三层:家庭活动室、2卧室、卫生间、屋面露台。