银行安防系统设计说明
- 格式:doc
- 大小:102.00 KB
- 文档页数:4
银行安防系统方案一、背景介绍随着科技的不断发展,银行安防问题日益受到关注。
为了保障银行及客户的资金安全,银行安防系统成为不可或缺的重要组成部分。
本文将就银行安防系统方案进行详细探讨。
二、系统架构设计银行安防系统具有高效、稳定和可靠的特点,主要包括以下模块:1. 门禁系统:通过门禁系统,对员工和客户的人员出入进行严格控制,确保只有授权人员可以进入银行安全区域。
2. 视频监控系统:银行内部的各个区域都需要安装监控摄像头,通过监控设备实时监测,记录并保存银行内部和周围环境的画面,保障安全。
3. 报警系统:通过将银行内部各个关键区域与报警器相连接,实时感知异常情况并及时报警,保障突发事件的处理效率和安全性。
4. 感应设备:如门磁、红外线感应等,用于检测银行内部区域的人员活动情况,以便在发生异常情况时迅速作出反应。
5. 网络与数据存储:银行安防系统需要实现与银行内部网络的无缝连接,同时,安全的数据存储也是至关重要的一环,确保监控数据的完整性和保密性。
三、系统功能银行安防系统的主要功能如下:1. 实时监控:通过视频监控系统,银行工作人员可以实时了解银行各个区域的状况,及时发现并处理异常情况。
2. 报警预警:当出现异常情况时,报警系统会立即发出警报,提醒值班人员及时采取相应措施。
3. 数据存储与查询:银行安防系统需要能够持续记录监控数据,并提供便捷的查询和回放功能,以满足调查需要。
4. 异常报警处理:系统可以将报警信息及时发送给相关人员,并在报警中心进行集中处理。
5. 远程管理:银行系统管理员可以通过远程管理访问安防系统,进行设置和管理,提高操作效率和便利性。
四、系统安全性银行安防系统作为保障资金安全的重要组成部分,其安全性至关重要。
以下措施可提高系统的安全性:1. 强化系统账户权限管理:系统管理员需对各账户和权限进行严格控制,确保只有授权人员可以进行相关设置和操作。
2. 设备和网络安全加固:加密银行网络以及各设备之间的通讯,防止黑客攻击和数据泄露。
银行安防系统(总14页) -CAL-FENGHAI.-(YICAI)-Company One1-CAL-本页仅作为文档封面,使用请直接删除目录一、系统概述二、系统设计要求三、系统设计原则四、系统设计依据五、监控点的分布及器材的选型六、系统构成图七、系统主要功能概述八、系统设备清单及概预算九、主要推荐器材说明十、施工计划一、系统概述:本系统由三大部分组成:一为保安监控系统、二为柜员制系统、三为防盗报警系统。
保安监控系统负责对出营业大厅、入口、电梯、楼梯、走廊均进行全面安全监控。
柜员制系统负责对营业柜台的业务流程进行监控。
防盗报警系统负责异常情况发生后的警情提示以及与110系统的沟通。
二、系统设计要求:1、保安监控系统1.1能够对营业大厅、主要出入口、楼道进行全面的监控。
1.2系统应能每时每刻全面不间断的显示主要要害区域图象,以保证有效的监控。
1.3系统应能每时每刻全面不间断的录制主要要害区域图象,以便出现情况后,能帮助分析案情。
1.4系统应操作简单。
1.5对比较重要的场所和房间,应加装报警装置和报警联动装置,报警能自动启动监控系统,自动打开相应区域的灯光,自动进入录像模式等,以加强有效的防范功能。
2、防盗报警系统:2.1封锁区域夜间人员出入时进行自动报警2.2营业柜台出现紧急情况时手动紧急报警2.3具有电话联网报警的功能。
3、柜员制系统:3.1在营业时间内对营业人员点付钞票、钞票的面额、张数以及与客户的交接过程进行实时监控、录像;3.2画面清晰、自然,并叠加必要的字符和时间;三、系统设计原则:a、先进性:在投资费用许可的情况下,系统采用当今先进的技术和设备,一方面能反映系统所具有的先进水平,另一方面又使系统具有强大的发展潜力,以便该系统在尽可能的时间内与社会发展相适应。
b、可靠性:采用成熟的技术产品,在设备选型和系统设计中都尽量提高系统的可靠性与易维护性。
c、安全性:对于安全防范系统,其本身的安全性能不可忽视,系统设计时,必须采取多种手段防止本系统各种形式与途径的非法破坏。
简易银行安防系统设计1. 引言随着科技的不断发展,银行安全问题也成为了公众关注的焦点。
为了保障银行的安全性和可靠性,银行安防系统起到了至关重要的作用。
本文将介绍一个简易银行安防系统的设计方案。
2. 功能需求简易银行安防系统应具备以下功能需求:1.视频监控:安装摄像头以监视银行内部和周边环境,并实时传输视频流到监控中心。
2.入侵检测:安装入侵检测器以防止未经授权的人员进入敏感区域。
3.烟雾报警:安装烟雾报警器以监测火灾风险,并及时报警。
4.紧急按钮:在关键区域安装紧急按钮,一旦发生紧急情况,员工可以按下按钮进行报警和求助。
5.门禁系统:使用身份识别技术,限制非授权人员进入银行内部。
6.数据备份:自动备份安防系统的数据,以防止数据丢失和篡改。
3. 系统设计简易银行安防系统的设计如下所示:3.1 硬件设备系统所需的硬件设备包括:•摄像头:用于视频监控,可以选择高清晰度、夜视功能的摄像头•入侵检测器:可以使用红外、微波等技术,检测非法入侵行为•烟雾报警器:可以使用光电、离子等技术,监测烟雾和火灾•紧急按钮:可以选择带有声音和光亮提示的按钮•门禁系统:使用身份识别技术,如刷卡、指纹识别等3.2 软件平台系统的软件平台包括:•视频监控软件:用于接收和显示摄像头传输的视频流,可以实现实时监控和录像功能•入侵检测软件:用于分析传感器的信号,检测和报警非法入侵行为•烟雾报警软件:实时监测烟雾和火灾风险,触发报警器并通知相关人员•门禁系统软件:用于管理和控制员工和客户的进入权限3.3 系统架构系统架构图系统架构图系统架构图中,摄像头、入侵检测器、烟雾报警器和紧急按钮通过有线或无线方式连接到中央控制器。
中央控制器负责接收和处理这些设备的信号,并将报警信息传输到监控中心和相关人员。
监控中心通过监控软件实现对摄像头的实时监控和录像功能。
门禁系统与中央控制器连接,实现对进入权限的管理和控制。
3.4 数据备份为了确保安防系统数据的安全性,系统应配置数据备份设备,定期自动备份数据。
1. 简介本文档旨在提出一种有效的银行安防设计方案,以保障银行机构内部和外部的安全。
银行安防是银行运营的重要组成部分,合理的安防设计可以有效预防内外部的窃贼、抢劫和侵害等安全事件的发生,同时保护客户的利益和企业的声誉。
2. 视频监控系统银行安防的核心是视频监控系统。
通过视频监控系统,银行能够全天候地对各个区域进行监视和录像,发现和记录异常行为。
以下是视频监控系统的规划设计:2.1 摄像头布置•在银行大厅、柜台和出入口等关键区域设置高清摄像头,确保完整的监控范围;•摄像头的安装高度要符合人体人脸识别的要求,能够清晰捕捉各个行人的面部特征;•需要特别关注现金柜台、ATM机和保险柜室等高风险区域,增加摄像头密度;•摄像头的转动范围应能够覆盖周边区域,避免死角。
2.2 储存和管理系统•视频监控系统的视频数据需要进行长时间储存,以备后期调查使用;•采用高效的硬盘录像机(DVR)或网络录像机(NVR)进行数据录制和存储;•视频数据的管理系统应能够快速恢复特定时间段的录像,并支持视频备份和共享。
3. 出入口门禁系统出入口门禁系统是银行安防的重要组成部分,通过控制出入口的进出,确保只有经过授权人员和访客可以进入银行机构。
3.1 门禁卡和身份识别•银行员工应该配备门禁卡,每个员工的门禁卡需与其个人身份绑定;•访客需要提前向银行工作人员登记并领取临时门禁卡;•出入口门禁系统应能快速识别门禁卡,只有具备授权的人员才能通过。
3.2 闸机和安全门•在入口处设置闸机,控制人员出入的数量和速度;•在敏感区域设置特殊安全门,如金库门等,限制只有特定人员可以进入。
4. 报警系统报警系统是银行安防的重要防线。
通过报警系统,银行能够及时发现潜在的安全威胁,并采取相应的应对措施。
4.1 入侵报警•在银行的周界和重要区域安装入侵报警设备;•入侵报警设备可以是传感器、红外线探测器等,能够及时发现入侵者。
4.2 按钮报警•在柜台、金库等高风险区域设置按钮报警设备;•当员工遇到危机时,可以通过按钮报警发出紧急求助信号。
徽商银行安防系统设计方案1. 引言为了保障徽商银行运营过程中的安全性和稳定性,安装和部署一套可靠的安防系统对于银行来说至关重要。
本文将重点介绍徽商银行安防系统的设计方案,包括系统整体架构、监控设备的选择、系统功能和特性等方面。
2. 系统整体架构徽商银行安防系统的整体架构如下图所示:系统整体架构系统整体架构系统整体分为四个主要模块:监控中心、视频监控、入侵报警和门禁控制。
2.1 监控中心监控中心是整个系统的核心,负责监控和管理各个子系统。
它包括监控控制台、监控服务器和相关软件。
监控中心拥有实时监控、录像录制、报警管理和事件处理等功能。
2.2 视频监控视频监控模块由多个摄像头组成,用于对银行各个区域进行视频监控。
摄像头可以采用高清IP摄像头或模拟摄像头,安装位置覆盖全面,包括网点大厅、ATM机区域、保险柜区域等重要区域。
2.3 入侵报警入侵报警主要针对非授权人员进入银行区域的情况进行报警。
系统通过红外传感器、门磁传感器等设备来感知周边环境变化,并及时触发报警。
报警信息将实时传输到监控中心,以便安保人员及时采取行动。
2.4 门禁控制门禁控制模块用于限制只有授权人员才能进入指定区域。
采用智能门禁系统,结合刷卡、指纹识别等身份验证技术,实现对各个区域的严格管控。
3. 监控设备的选择在选择监控设备方面,需要考虑以下几个因素:3.1 分辨率和画质为了获取清晰的画面,推荐选择高分辨率的摄像头。
对于重要区域,如现金区、ATM机区域,可以选择更高分辨率的摄像头,以便更好地查看细节。
3.2 网络传输由于徽商银行各个分支机构分散,系统需要支持远程监控和集中管理。
因此,需要选择支持网络传输的摄像头,并确保网络传输的稳定性和安全性。
3.3 夜视功能考虑到夜间监控的需要,建议选择具备夜视功能的摄像头。
夜视功能可以通过红外灯或低照度传感器来实现,以提供更好的画面质量。
3.4 抗干扰能力银行的运营环境复杂多变,因此摄像头需要具备良好的抗干扰能力,以应对可能的光线变化、电磁干扰等情况。
苏州银行某支行安防系统设计方案一、背景介绍随着现代信息化技术的快速发展,各种电子设备的应用范围得到了很大提升,尤其是在金融领域,安防系统是银行分支机构必不可少的基础设施之一。
本文将以苏州银行某支行的安防系统设计方案为例,结合相关理论知识和技术实践经验,提供一份完整的安防系统设计方案,为银行分支机构的安全保障提供保障。
二、安防系统设计要求1. 安全性要求因支行涉及的客户资金问题,安全性是该支行安防系统设计的首要考虑因素,其要求体现在:①安全保密性。
系统设备不能被非法侵入或攻击,且安装在不会妨碍业务员办公的区域内,防止客户信息泄露。
②安全稳定性。
系统设备应选用品质可靠、维护方便的设备,确保设备正常工作和数据稳定。
③流畅性。
系统设备应能够在毫秒级别内快速响应,防止安全漏洞或卡顿情况发生。
2. 监控要求该支行应有安保人员在柜台进行值守,对于外来人员的进出应有较为严格的监管要求,安防系统设备必须配备摄像头、门禁系统、告警器等设备,以便对进出人员身份的确认,保证工作人员与客户的安全。
3. 应急管理要求在突发事件发生时,能够迅速地启动应急机制、调动应急资源,并及时向有关部门报告,以保障客户的安全和资产的安全。
三、方案设计1. 监控设备该支行的监控设备采用数字化模拟混合式录像机DVR,安装8路模拟摄像头、2路网络摄像头,视频信号采用BNC和RJ45接口,监看画面支持远程可以预览。
2. 门禁管理门禁系统应采用IC卡门禁管理系统,系统配备读卡器、电子门锁、IC卡委员会等,可实现门禁的管理与调度。
同时,科学合理地规定进出分支机构IC卡的权限,防止非法人员的进入。
3. 告警器告警器应包括有线与无线两种类型,其中有线告警器包括门关传感器、震动传感器、玻璃断裂传感器等,无线告警器包括门磁、庭院传感器等。
通过告警器的警报声和提示灯进行报警,立即提醒银行管理员注意和处置。
4. 电子巡更系统电子巡更系统采用无线感应式巡更钥匙,可以随时了解根据规定的巡更线路,对客户大厅、会议室等进行全天候、全方位的巡查,避免疏漏、失误等情况。
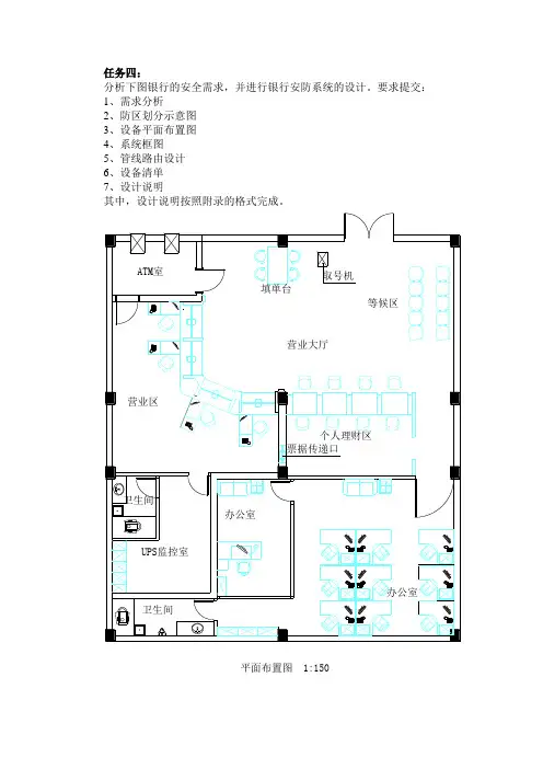
任务四:分析下图银行的安全需求,并进行银行安防系统的设计。
要求提交:1、需求分析2、防区划分示意图3、设备平面布置图4、系统框图5、管线路由设计6、设备清单7、设计说明其中,设计说明按照附录的格式完成。
平面布置图 1:150一、系统初步设计方案(一)工程概况及总体设计1.工程概况本工程是针对某银行设计一套的入侵报警系统,视频监控系统,门禁管理系统。
2.总体设计(1)设计依据GB 10408.1~.9入侵探测器系列标准;GB 12663-2001《防盗报警控制器通用技术条件》;GB 50394-2007《入侵报警系统工程设计规范》;GB 50116-98《火灾自动报警系统设计规范》;GB 50198-94《民用闭路监视系统工程技术规范》;GB 50395-2007《视频安防监控系统工程设计规范》GB 50396-2007《出入口控制系统工程设计规范》GB 50343-2004《建筑物电子信息系统防雷技术规范》;GB 50348-2004《安全防范工程技术规范》;(2)系统总体结构和组成入侵报警系统,视频监控系统,出入口控制系统。
(3)系统的预期效果和作用性能可靠,操作方便,技术先进。
扩展性强,维护方便。
(二)各分系统设计1.视频监控系统(1)技术指标➢GB50198-94《民用闭路监视电视系统工程技术规范》➢GA/T75-94《安全防范工程程序与要求》➢GA/T74-94《安全防范系统通用图形符号》➢GB7401-87《彩色电视图像质量主观评价方法》➢GPT75-94 《防盗报警控制器设计规范》➢《中国建筑电气设计规范》➢《公安部监控设备安装规范》(2)前端设备布置(3)系统的组成及主要设备前端设备,传输部分,管理控制部分,主要设备有网络球机,枪机,DVR,网络云储存,监视器,PC(4)基本工作原理(5)系统主要功能实时监控银行内情况2.入侵报警系统(1)技术指标《入侵报警系统技术要求(GA/T 368-2001)》中华人民共和国公安部发布,中国标准出版社秦皇岛印刷厂印刷,各地新华书店经售,《入侵报警系统技术要求(GA/T 368-2001)》主要内容修改如下:根据我国安全技术防范行业的实际,对术语和定义进行了适当的增删。
银行安防系统设计方案
随着社会的不断发展和科技的不断进步,银行安防系统的重要性日益凸显。
作为金融机构的重要组成部分,银行安防系统的设计方案必须充分考虑到各种潜在的安全隐患,并且要能够有效应对各种安全威胁,确保银行内部和外部的安全。
首先,银行安防系统的设计应该充分考虑到银行内部各个区域的安全需求。
例如,对于现金柜台区域,应该安装高清晰度的监控摄像头,并设置智能识别系统,及时发现异常行为并报警;对于重要文件室和保险柜区域,应该设置严格的门禁系统和监控设备,确保未经授权人员无法进入;对于员工办公区域,应该设置门禁系统和考勤系统,严格控制员工出入,防止内部人员的不当行为。
其次,银行安防系统的设计还需要考虑到外部环境的安全因素。
例如,银行大厅和ATM机区域需要设置监控摄像头,防止盗窃和抢劫事件的发生;银行周边需要设置周界防范系统,包括红外探测器、电子围栏等设备,及时发现外部入侵者并报警;对于停车场和出入口处,需要设置车牌识别系统和人脸识别系统,确保只有授权车辆和人员才能进入银行区域。
另外,银行安防系统的设计还需要考虑到灾害性事件的防范。
例如,防火系统是银行安防系统中至关重要的一部分,需要设置火灾自动报警系统、灭火系统和疏散通道,并且定期进行演练和检查;对于突发事件的处理,需要设置紧急呼叫系统和紧急疏散指示,确保在紧急情况下能够及时采取有效的措施。
综上所述,银行安防系统的设计方案必须全面考虑到银行内部和外部的安全需求,包括监控设备、门禁系统、报警系统、防范系统等多个方面。
只有通过科学合理的设计和严格的实施,银行安防系统才能够真正发挥作用,确保银行的安全稳定运行。
银行安防系统方案一、引言在当今社会,银行是经济发展的重要组成部分,但也面临着越来越多的安全威胁。
为了保护银行的资产和客户的利益,银行需要建立健全的安防系统。
本文将提出一种银行安防系统方案,旨在提高银行的安全性和监控能力。
二、安全管理银行安全管理是银行安防系统的基石。
合理的安全管理措施可以提高银行的安全性。
以下是一些建议的安全管理措施:1.制定安全政策:银行应制定明确的安全政策,包括安全目标、责任分工、安全监测等内容。
同时,银行应建立安全意识培训机制,确保员工了解并遵守相关安全规定。
2.严格的身份验证:银行应采用多层次身份验证机制,确保只有授权人员能够进入关键区域。
例如,使用门禁系统、指纹识别等技术。
3.视频监控:银行应在关键区域安装高清摄像头,实时监控银行内外的活动。
监控录像应保存一段时间,以备调查和取证之用。
4.安全巡查:银行应定期进行安全巡查,确保设备和系统正常运行,并及时发现并排除安全隐患。
三、物理安全措施物理安全措施对于银行的安全至关重要。
以下是建议的物理安全措施:1.防护门和窗:银行应使用防护门和窗,以抵御入室盗窃和破坏。
门窗应选用防弹玻璃或者钢质材料,具有高强度和防破坏能力。
2.ATM机安全:银行的ATM机是犯罪分子的热门目标。
银行应在ATM机上使用摄像头和防拆卸装置,确保用户交易的安全性。
3.紧急报警系统:银行应在关键区域安装紧急报警按钮,以便员工在遇到突发事件时能够及时报警。
四、电子安全措施随着科技的发展,电子安全措施变得越来越重要。
以下是建议的电子安全措施:1.防火墙和入侵检测系统:银行应建立强大的防火墙和入侵检测系统,以阻止未经授权的访问和攻击。
2.数据加密:银行应使用数据加密技术,保护客户的敏感信息不被窃取。
同时,银行还应定期备份数据,并设置灾难恢复方案,以防止数据丢失。
3.虚拟专用网络(VPN):银行可以建立VPN网络,以确保远程访问的安全性。
员工可以通过VPN网络安全地远程办公。
银行保安防盗及闭路电视监控系统设计方案1. 设计思想保安防盗及闭路电视监控系统(以下简称保安系统)是银行安防系统的重要组成部分,也是大厦智能化管理的体现。
本保安系统设计为一个集成化的安全管理系统,采用国际先进技术,下设各系统间可集成联动,也可独立工作。
性能可靠、操作简便、技术先进、扩展性强、维护方便是我们的设计思想;为用户着想,使业主的投资更合理是我们的宗旨。
2. 系统结构保安系统由以下系统构成:●闭路电视监控系统●出入控制系统●报警与电子巡更系统闭路电视监控系统选用美国标枪(JA VELIN SYSTEMS)中文多媒体图形界面控制全视频矩阵切换CCTV系统。
Javelin具有最先进的系统组网能力,为美国白宫、国防部五角大楼提供着保安监控系统,并以稳定可靠、品质一流、设计成熟而得到业界公认,无疑是一套蕴藏巨大潜能的21世纪的监控系统。
Javelin现为美国安定宝(ADEMCO)集团子公司。
出入控制系统选用美国北方电脑(NORTHERN COMPUTERS,INC)公司门禁系统。
北方电脑公司成立于1982年,已成为出入口控制和智能建筑安保行业具领导地位的生产厂家。
现为美国安定宝(ADEMCO)集团子公司。
电子巡更报警系统选用美国ADEMCO( ALARM DEVICE MANUFACTURING COMPANY )公司器材。
美国ADEMCO(安定宝)公司1929年于美国成立,直属美国PITTW AY集团(全美五百大财团之一),如今已成为全世界最大的电子防盗产品制造商,始终保持产品高科技水平,领导市场。
3. 系统集成电子巡更报警系统、门禁控制系统通过串口或DDE方式集成于闭路电视监控系统,从而达到各自系统与CCTV系统的联动。
只要有非正常信号产生,系统自动联动摄像机、监视器、录像机等视频设备,自动录像现场图像以取证;同时主控室显示屏会有相应信息条闪动,提醒值班人员注意。
联动后的保安系统可通过CCTV系统将数据和图像输送到大厦内部网上,与其他系统共享;如有必要,电子巡更报警系统及门禁系统也可将各自数据发送到网上共享(见图一)。
智慧银行安防系统建设方案概述:随着科技的发展和社会的进步,智慧银行安防系统成为了现代银行必备的一部分,它不仅能够保护银行的资产和客户信息安全,还可以提高银行运营效率和客户服务质量。
本文将从智慧银行安防系统的基本架构、功能模块和技术手段等方面进行详细阐述。
一、基本架构设计1.网络拓扑结构:采用层次化网络结构,将银行分支机构与总部进行互联,同时将各个安防设备与监控中心进行连接。
2.监控中心:设立一个集中管理的监控中心,负责对所有分支机构的安防设备进行管理、监控和录像存储。
3.防护设备:在每个分支机构内部设置监控摄像头、入侵探测器、门禁控制器等设备,对重要区域进行全方位的监控和防护。
4.数据传输与存储:通过局域网将各个分支机构的监控数据传输到监控中心,并在中心进行存储和备份。
二、功能模块设计1.视频监控:通过安装摄像头,在每个分支机构的重要区域进行全天候、全方位的实时监控,并将视频数据传输到监控中心进行保存和分析。
2.入侵报警:安装入侵探测器、门磁等设备,对于未经授权的人员进入重要区域进行及时报警,并将报警信息推送到监控中心和相关人员手机上。
3.出入口管理:采用门禁控制器等设备,对于非工作时间和非授权人员的进出进行控制和记录,确保银行内部的安全。
4.图像识别:通过人脸识别技术,对客户、员工进行身份验证,疑似人员进行实时识别和报警,并将相关信息推送到监控中心。
5.事件记录与分析:对所有监控数据进行存储、分类和管理,以供后期的事件分析和调查使用。
三、技术手段实施1.视频监控系统:采用高清摄像头和高性能服务器,确保画面的清晰度和实时性。
2.入侵探测系统:采用红外、微波和声纳等多种技术,对于重要区域的入侵进行及时检测和报警。
3.门禁控制系统:采用电磁锁、门禁卡等技术,实现对银行内部区域的安全控制和记录。
4.人脸识别系统:采用高精度的人脸识别算法和快速的人脸采集设备,实现对人员身份的快速验证和异常识别。
四、系统优势和风险控制1.优势:a.提高安全性:智慧银行安防系统能够及时发现并阻止各类安全威胁,降低银行的风险。
简易银行安全防系统设计一•论述及系统介绍众所周知,银行作为现金流的汇聚和分散点,很容易成为犯罪的目标。
所以银行对安全防的要求非常高。
银行的安全防如有不慎,便会造成巨大的损失。
而银行所要防的是犯罪分子的抢劫,还有对ATM取款机的犯罪,对客户银行卡的盗窃;还有银行职员自身利用自身职位的犯罪。
银行资金众多却又人来人往的场所,基于这个特征,我设计的银行安全防系统主要包括以下几个系统(1)实体防系统(2)人力防系统(3)周界探测防卫系统(4)出入口控制系统(5)金库保险系统(6)枪库管理中心监控系统(7)ATM安全防系统(8)职员制监控系统(9)消防报警系统(10)联网报警系统安全防包括人力防、实体(物)防和技术防三个畴。
其中人力防和实体防是古已有之的传统防手段,它们是安全防的基础,随着科学技术的不断进步,这些传统的防手段也不断融入新科技的容。
上述系统设置中,3—10都是技防的实际应用于各方面。
而各个系统的作用都是为了在探测,延迟,反应犯罪的方面进行统一。
对于进入银行的人及银行附近的环境进行周界探测,防止进入银行人员携带枪支,爆炸物等危险品,提前探测犯罪;由出入口控制系统控制进出入敏感地区的人员,防止、限制罪犯进入在银行重要地区;对于银行金库,是现金存放的场所,必须保护其安全;银行的枪库,需对枪支的情况进行监控,保障银行的安全;对于小型犯罪,经常发生于ATM取款机处,采用ATM安全防系统;为了反部犯罪,对职员采取职员制监控系统;各处采取消防报警系统,对火灾进行控制;对于所有的安防系统,采取联动联网的报警系统,达到安防一体化。
三•各系统构成及采用产品(1) 实体防护系统实体防(物防)的主要作用在于推迟危险的发生,为“反应“提供足够的时间。
现代的实体防,已不是单纯物质屏障的被动防,而是越来越多地采用高科技地手段,一方面使实体屏障被破坏地可能性变小,增大延迟时间;另一方面也使实体屏障本身增加探测和反应的功能。
对于银行,很可能遭受到武装袭击。
XX银行安防电视监控报警系统设计方案目录一、设计背景二、设计依据三、系统组成及设备配置1.前端设备2.传输介质3.控制设备四、系统功能及技术参数五、系统配置及报价一、设计背景XX银行地处城市中心地带,周边情况较复杂。
该行原有一套电视监控报警系统,但服务年限已久,部分设备严重老化,系统功能也不够完善。
为了适应复杂多变地治安环境的需要,为了确保国家金库的安全和正常的办公秩序,减轻保卫人员的劳动强度和提高现代化管理手段,安装一套先进的综合性监控管理系统非常必要,也是势在必行。
二、设计依据1.中华人民共和国安全防范行业标准(GA/T 74-94)2.安全防范工程程序与要求(GA/T 75-94)3.安全防范系统验收规则(GA 308-2001)4.工业电视系统工程设计规范(GBJ/ 15-87)5.闭路电视系统工程设计规范(GB 7401-87)6.彩色电视图像质量主观评价方法(GB 7401-87)7.入侵探测器通用技术条件(GB 10408.1-89)8.微波和被动红外复合入侵探测器(GB 10408.6-91)9.防盗报警控制器通用技术条件(GB 12663-90)10.防盗报警中心控制台(GB/T-16572-96)11.报警图像信号有线传输装置(GB/T 16677-96)12.安全防范系统通用图形符号(GA/T 74-94)13.银行营业场所安全防范工程设计规范(GB/T 16676-96)三、系统组成及配置1、前端设备摄像机和报警探测器是监视系统的信息源,是系统的“视觉”及“嗅觉”器官,它们的布置是否合理,性能的优劣,对系统的影响很大。
本系统由防盗报警、电视监控、监听、对讲等4个子系统组成,各子系统按实际需要可实现联动。
①前端探测器设置(见表1)防入侵探测器分布情况一览表表1②前端摄像机设置(见表2)摄像机分布情况一览表表2③前端监听/对讲器设置(见表3)监听/对讲器分布情况一览表表32、传输介质因整个监控区域不大,不超过一万平米。
某银行安防系统设计简介摘要:本文主要针对银行安防系统的功能要求,并对安防各子系统的功能实现作了简单描述。
关键词:银行,安防系统Abstract: this paper mainly for bank security system function requirements, and the security of the functions of each subsystem for realization of a simple description.Keywords: bank, security systems1. 概述本工程整个安防系统以监控中心作为管理中心,统一负责管理、记录安防系统的运行,系统并扩展用于银行下属营业网点、自助银行的安防系统的集中监控、管理。
整个银行的安全防范系统按照《银行营业场所风险等级和防护级别的规定》GA38-2004、《安全防范工程技术规范》(GB50348-2004)中银行营业场所的“一级防护要求”配设,共由以下子系统组成:视频安防监控系统;出入口控制系统;可视对讲系统;入侵报警系统;电子巡查系统。
2. 系统简介2.1 视频安防监控系统视频安防监控系统采用(模拟摄像机+硬盘录像机+视频综合管理平台上墙)的管理模式,于银行周界、银行出入口、银行大楼内部配设彩色摄像机与声音复核装置,通过视音频全实时嵌入式硬盘录像机实现声音/图像的实时记录,通过视频综合管理平台实现图像的联动监视。
a) 前端配设银行周界配设红外枪式彩色摄像机,监视人员、车辆活动情况。
其中营业网点运钞车交接款处安装的摄像机,通过监视器能清楚显示整个区域内人员的活动情况。
营业大厅入口处配设声音复核装置。
营业大厅、自助银行配设宽动态彩色半球摄像机、彩色针孔摄像机和声音复核装置,通过监视器能清楚显示整个区域内人员的活动情况。
出入口的回放图像能清楚辨别进出人员的体貌特征。
营业柜台配设宽动态彩色摄像机和声音复核装置。
任务四:
分析下图银行的安全需求,并进行银行安防系统的设计。
要求提交:
1、需求分析
2、防区划分示意图
3、设备平面布置图
4、系统框图
5、管线路由设计
6、设备清单
7、设计说明
其中,设计说明按照附录的格式完成。
平面布置图 1:150
一、系统初步设计方案
(一)工程概况及总体设计
1.工程概况
本工程是针对某银行设计一套的入侵报警系统,视频监控系统,门禁管理系统。
2.总体设计
(1)设计依据
GB 10408.1~.9入侵探测器系列标准;
GB 12663-2001《防盗报警控制器通用技术条件》;
GB 50394-2007《入侵报警系统工程设计规范》;
GB 50116-98《火灾自动报警系统设计规范》;
GB 50198-94《民用闭路监视系统工程技术规范》;
GB 50395-2007《视频安防监控系统工程设计规范》
GB 50396-2007《出入口控制系统工程设计规范》
GB 50343-2004《建筑物电子信息系统防雷技术规范》;
GB 50348-2004《安全防范工程技术规范》;
(2)系统总体结构和组成
入侵报警系统,视频监控系统,出入口控制系统。
(3)系统的预期效果和作用
性能可靠,操作方便,技术先进。
扩展性强,维护方便。
(二)各分系统设计
1.视频监控系统
(1)技术指标
➢GB50198-94《民用闭路监视电视系统工程技术规范》
➢GA/T75-94《安全防范工程程序与要求》
➢GA/T74-94《安全防范系统通用图形符号》
➢GB7401-87《彩色电视图像质量主观评价方法》
➢GPT75-94 《防盗报警控制器设计规范》
➢《中国建筑电气设计规范》
➢《公安部监控设备安装规范》
(2)前端设备布置
(3)系统的组成及主要设备
前端设备,传输部分,管理控制部分,主要设备有网络球机,枪机,DVR,网络云储存,监视器,PC
(4)基本工作原理
(5)系统主要功能
实时监控银行内情况
2.入侵报警系统
(1)技术指标
《入侵报警系统技术要求(GA/T 368-2001)》中华人民共和国公安部发布,中国标准出版社秦皇岛印刷厂印刷,各地新华书店经售,《入侵报警系统技术要求(GA/T 368-2001)》主要内容修改如下:根据我国安全技术防范行业的实际,对术语和定义进行了适当的增删。
根据信息技术的发展和报警专业标准化的最新成果,在规范性引用文件中,除增加了91年出版的IEC 60839—5系列标准外,还增加了2001年出版的IEC 60839—7系列标准,这两个系列标准即将转化为我国标准。
同时还引用了我国安防专业近年来制定的有关国家标准和行业标准。
(2
(3)系统的组成及主要设备
前端探测器,传输线路,报警主机。
主要设备有:紧急报警按钮,按感探测器
(4)基本工作原理
(5)系统主要功能
在紧急情况下报警
3.出入口控制系统
(1)技术指标
中华人民共和国国家标准出入口控制系统工程设计规范 Code of design for access control systems engineering GB50396-2007 主编部门:中华人民共和国公安部批准部门:中华人民共和国建设部施行日期:2 0 0 7年8月1日中华人民共和国建设部公告第588号建设部关于发布国家标准《出人口
控制系统工程设计规范》的公告现批准《出人口控制系统工程设计规范》为国家标准,编号为GB 50396-2007,自2007年8月1 日起实施。
其中,第3.0.3、
5.1.7(3)、
6.0.2(2)、
7.0.4、9.0.1(2)条(款)为强制性条文,必须严格执行。
本规范由建设部标准定额研究所组织中国计划出版社出版发行。
中华人民共和国建设部
(2)前端设备布置
(3)系统的组成及主要设备
识别部分,传输部分,执行部分,管理控制部分。
主要设备:门磁,读卡器,电插锁,电锁按钮,IC卡。
(4)基本工作原理
(5)系统主要功能
识别进出人员身份,控制出入口开关状况。
4.其它系统
(三)系统的集成
(四)安防控制中心室
(五)信号传输与施工
(六)其它(供电、接地、防雷等)
二、产品质量证明
三、设备清单
三、图纸资料。