某银行安防系统电气施工图设计方案
- 格式:doc
- 大小:4.06 MB
- 文档页数:46
苏州银行某支行安防系统设计方案一、背景介绍随着现代信息化技术的快速发展,各种电子设备的应用范围得到了很大提升,尤其是在金融领域,安防系统是银行分支机构必不可少的基础设施之一。
本文将以苏州银行某支行的安防系统设计方案为例,结合相关理论知识和技术实践经验,提供一份完整的安防系统设计方案,为银行分支机构的安全保障提供保障。
二、安防系统设计要求1. 安全性要求因支行涉及的客户资金问题,安全性是该支行安防系统设计的首要考虑因素,其要求体现在:①安全保密性。
系统设备不能被非法侵入或攻击,且安装在不会妨碍业务员办公的区域内,防止客户信息泄露。
②安全稳定性。
系统设备应选用品质可靠、维护方便的设备,确保设备正常工作和数据稳定。
③流畅性。
系统设备应能够在毫秒级别内快速响应,防止安全漏洞或卡顿情况发生。
2. 监控要求该支行应有安保人员在柜台进行值守,对于外来人员的进出应有较为严格的监管要求,安防系统设备必须配备摄像头、门禁系统、告警器等设备,以便对进出人员身份的确认,保证工作人员与客户的安全。
3. 应急管理要求在突发事件发生时,能够迅速地启动应急机制、调动应急资源,并及时向有关部门报告,以保障客户的安全和资产的安全。
三、方案设计1. 监控设备该支行的监控设备采用数字化模拟混合式录像机DVR,安装8路模拟摄像头、2路网络摄像头,视频信号采用BNC和RJ45接口,监看画面支持远程可以预览。
2. 门禁管理门禁系统应采用IC卡门禁管理系统,系统配备读卡器、电子门锁、IC卡委员会等,可实现门禁的管理与调度。
同时,科学合理地规定进出分支机构IC卡的权限,防止非法人员的进入。
3. 告警器告警器应包括有线与无线两种类型,其中有线告警器包括门关传感器、震动传感器、玻璃断裂传感器等,无线告警器包括门磁、庭院传感器等。
通过告警器的警报声和提示灯进行报警,立即提醒银行管理员注意和处置。
4. 电子巡更系统电子巡更系统采用无线感应式巡更钥匙,可以随时了解根据规定的巡更线路,对客户大厅、会议室等进行全天候、全方位的巡查,避免疏漏、失误等情况。
分行大楼安防系统工程设计方案目录第1章项目概况 (1)1.1项目概况 (1)1.2设计范围 (1)第2章设计原则及依据 (1)2.1设计依据 (1)2.2设计原则 (2)第3章系统总体设计 (3)3.1系统架构 (3)3.2系统组成 (3)第4章大楼各子系统详细设计 (3)4.1大楼视频监控系统 (3)4.1.1监控原理图 (4)4.1.2监控系统组成 (4)4.1.3楼层监控点位 (5)4.2大楼入侵报警系统 (6)4.2.1大楼报警系统组成 (6)4.2.2报警系统功能及特点 (6)4.2.3楼层设备数量分布见下表: (7)4.3大楼出入口控制系统 (8)4.3.1防尾随门门禁系统 (8)4.3.2重要库房、加钞间出入口控制系统 (10)4.3.3门禁系统 (15)4.4智能分析系统 (17)4.4.1安防设备运行状态监系统 (18)4.4.2ATM音视频分析系统 (19)4.5大楼IP对讲系统 (21)4.5.1系统组成 (22)4.5.2功能介绍 (22)第5章监控中心设计 (24)5.1布局 (24)5.2功能设计 (24)5.2.1视频轮巡 (24)5.2.2防盗报警管理 (25)5.2.3出入口管理系统 (25)5.2.4IP对讲系统 (25)5.2.5智能分析系统 (25)5.3中心配备 (26)第6章联网平台软件设计 (26)6.1平台软件特点 (27)6.1.1多部门应用 (27)6.1.2多系统集成 (27)6.1.3报警智能联动 (27)6.1.4良好的扩展性 (27)6.2平台软件基本功能 (27)6.2.1浏览、抓拍、轮巡 (27)6.2.2远程录像、回放、备份、下载 (28)6.2.3远程控制 (28)6.2.4设备运行维护 (28)6.2.5非现场检查 (28)6.2.6电子地图 (28)6.2.7报警联动 (28)6.2.8报警布撤防管理 (28)6.2.9前端设备统一编址管理 (28)6.2.10用户及权限管理 (29)6.2.11日志记录 (29)6.2.12时间校准 (29)6.2.13WEB页面访管理 (29)6.3平台软件综合管理功能 (29)6.3.1流媒体集群管理功能 (29)6.3.2平台子系统管理功能 (29)6.3.3综合部门应用 (32)第7章存储时间设计 (32)7.1中心报警录像存储 (33)第8章网络设计 (33)8.1大楼网络拓扑图 (33)8.2带宽要求 (33)8.3传输方式设计 (33)8.4网络性能指标 (33)8.5端到端的信息延迟时间 (34)第9章兼容性设计 (34)第1章项目概况1.1项目概况某银行发展至今已经在全国设立了30 多家分行,香港设立了代表处。
银行安全防范系统改造工程目录一、前言...................................................... 错误!未定义书签。
二、设计原则.................................................. 错误!未定义书签。
三、设计依据.................................................. 错误!未定义书签。
四、监控系统组成.............................................. 错误!未定义书签。
4.1、系统概况............................................. 错误!未定义书签。
4.2、系统前端设置......................................... 错误!未定义书签。
4.3、主控设备配置......................................... 错误!未定义书签。
五、主要设备性能参数.......................................... 错误!未定义书签。
六、系统管理方案.............................................. 错误!未定义书签。
6.1、音、视频管理......................................... 错误!未定义书签。
6.2、报警管理............................................. 错误!未定义书签。
6.3、门禁控制管理......................................... 错误!未定义书签。
6.4、电源管理............................................. 错误!未定义书签。
简易银行安全防范系统设计一.论述及系统介绍众所周知,银行作为现金流的汇聚和分散点,很容易成为犯罪的目标。
所以银行对安全防范的要求非常高。
银行的安全防范如有不慎,便会造成巨大的损失。
而银行所要防范的是犯罪分子的抢劫,还有对ATM 取款机的犯罪,对客户银行卡的盗窃;还有银行职员自身利用自身职位的犯罪。
银行资金众多却又人来人往的场所,基于这个特征,我设计的银行安全防范系统主要包括以下几个系统(1)实体防范系统(2)人力防范系统(3)周界探测防卫系统(4)出入口控制系统(5)金库保险系统(6)枪库管理中心监控系统(7)ATM 安全防范系统(8)职员制监控系统(9)消防报警系统(10)联网报警系统安全防范包括人力防范、实体(物)防范和技术防范三个范畴。
其中人力防范和实体防范是古已有之的传统防范手段,它们是安全防范的基础,随着科学技术的不断进步,这些传统的防范手段也不断融入新科技的内容。
上述系统设置中,3—10 都是技防的实际应用于各方面。
而各个系统的作用都是为了在探测,延迟,反应犯罪的方面进行统一。
对于进入银行的人及银行附近的环境进行周界探测,防止进入银行人员携带枪支,爆炸物等危险品,提前探测犯罪;由出入口控制系统控制进出入敏感地区的人员,防止、限制罪犯进入在银行重要地区;对于银行金库,是现金存放的场所,必须保护其安全;银行的枪库,需对枪支的情况进行监控,保障银行的安全;对于小型犯罪,经常发生于ATM 取款机处,采用ATM 安全防范系统;为了反内部犯罪,对职员采取职员制监控系统;各处采取消防报警系统,对火灾进行控制;对于所有的安防系统,采取联动联网的报警系统,达到安防一体化。
三.各系统构成及采用产品(1)实体防护系统实体防范(物防)的主要作用在于推迟危险的发生,为“反应“提供足够的时间。
现代的实体防范,已不是单纯物质屏障的被动防范,而是越来越多地采用高科技地手段,一方面使实体屏障被破坏地可能性变小,增大延迟时间;另一方面也使实体屏障本身增加探测和反应的功能。
目录一、概述 (3)二、方案设计 (4)2.1 系统分析 (4)2.1.1 报警系统 (4)2.1.2 门禁系统 (11)2.1.3 用户需求分析及前端分布 (14)2.2 选型设备性能及参数 (15)2.2.1 报警设备 (15)2.2.2 门禁系统 (24)2.3.简要清单 (28)三、品牌介绍 (29)泽博简介 (29)一、概述银行位于城市的闹市街区、商业大厦、住宅花园周边等,属于重点安全防范单位,它具有分散、多样、设施贵重、出入人员复杂、管理涉及区域广等特点。
它作为当今社会货币的主要流通场所、国家经济运作的重要环节,以其独特的功能和先进的技术广泛服务于国内各行业中,因此,提高银行系统的科学性和安全防范能力显得尤为重要。
银行需要致力于金融行业安全防范的研究,开发出一个高效、准确,安全可靠的监控报警系统,在众多商业银行广泛采用。
银行是分布式营运,集中管理的行业,随着生活水平的提高,经济的快速发展,人们已经不能满足于在营业厅柜台取钱的传统模式,银行的服务网点日益增多,因此而生的新事物,自助银行、自助金库等便民设施也逐渐普及开来,可是,抢劫盗窃案,也频繁发生……银行外的不法分子通常会采取暴力手段通过挟持、逼迫客户或直接采取爆破等恶劣手段对自助银行营业厅及金库进行抢劫。
银行对各网点的安全更加重视,防盗集中管理系统也就应运而生。
抢劫案件的发生,导致银行经济受损;也严重威胁到银行职员的人身安全;还会使银行的安全信誉受损。
在传统的银行安防系统中,最常见的是使用视频监控设备,全天24小时对银行周围和内部进行监控、录像以作为公安部门事发后查处案件的重要证据。
但是在恶性事件发生时,视频监控设备无法做到主动报警和及时处理,这样就会造成银行和储户的损失。
现在犯罪分子的作案手法种类繁多,使得银行储户防不慎防,事后追查的难度也越来越大。
如何能够在恶性事件发生前或发生时就报警求助,将损失降到最低,成了银行安防系统中一个重要的问题。
**银行安全防范系统设计方案书目录一、**银行安全防范设施的需求 (4)二、系统设计任务书 (6)三、工程勘察报告 (7)四、设计方案 (8)第一章工程描述 (8)第二章设计目标、依据及原则 (8)第三章系统设计方案 (10)3.1重点防护区域设计说明 (10)3.2安防系统组成及说明 (11)3.3视频监控系统设计说明 (12)3.4报警系统设计说明 (17)3.5自助银行门禁 (20)3.6语音对讲系统 (21)3.7各系统之间的联动说明 (22)3.8监控中心与系统安全管理 (22)3.9电源安全性的设计说明 (24)3.10报警系统与监控系统的布线说明(见附件) (25)3.11物防设计的说明 (25)第四章、设备选型及设备清单 (28)4.1设备选型 (28)4.2设备清单 (34)五、安全产品检验报告、国家强制性产品认证书或安全技术产品登记/批准书六、安全防范工程设计施工单位营业执照和相关资质证明七、附件附件1、营业网点周边环境及押运车位平面图附件2、营业场所建筑平面结构图附件3、柜台、防弹玻璃、防护网剖面图附件4、视频监控系统平面布防图附件5、报警系统平面布防图附件6、视频监控系统管线敷设图附件7、报警系统管线敷设图附件8、监控室平面布置图附件9、系统原理图一、**银行安全防范设施的需求因业务发展需要,我行对文教路分理处进行改造装修,装修后该网点共设有现金柜台5个,1个24小时自助银行;根据《银行营业场所风险等级和防护级别的规定》(GA38-2004)规定,风险等级定为二级风险,防护级别要求达到二级,按二级防护标准提出以下要求:1.现金柜台设计施工执行《银行营业场所风险等级和防护级别的规定》(GA38-2004)的情况说明。
2.现金业务区安装防弹玻璃及防弹玻璃上方安装防护网的设计施工执行《银行营业场所透明防护屏障安装规范》(GA518-2004)的情况说明。
3.现金业务区内设置卫生,每个现金柜口配置自卫器材,整个营业场所配置足够的消防器材和应急照明设施。
银行保安防盗及闭路电视监控系统设计方案1. 设计思想保安防盗及闭路电视监控系统(以下简称保安系统)是银行安防系统的重要组成部分,也是大厦智能化管理的体现。
本保安系统设计为一个集成化的安全管理系统,采用国际先进技术,下设各系统间可集成联动,也可独立工作。
性能可靠、操作简便、技术先进、扩展性强、维护方便是我们的设计思想;为用户着想,使业主的投资更合理是我们的宗旨。
2. 系统结构保安系统由以下系统构成:●闭路电视监控系统●出入控制系统●报警与电子巡更系统闭路电视监控系统选用美国标枪(JA VELIN SYSTEMS)中文多媒体图形界面控制全视频矩阵切换CCTV系统。
Javelin具有最先进的系统组网能力,为美国白宫、国防部五角大楼提供着保安监控系统,并以稳定可靠、品质一流、设计成熟而得到业界公认,无疑是一套蕴藏巨大潜能的21世纪的监控系统。
Javelin现为美国安定宝(ADEMCO)集团子公司。
出入控制系统选用美国北方电脑(NORTHERN COMPUTERS,INC)公司门禁系统。
北方电脑公司成立于1982年,已成为出入口控制和智能建筑安保行业具领导地位的生产厂家。
现为美国安定宝(ADEMCO)集团子公司。
电子巡更报警系统选用美国ADEMCO( ALARM DEVICE MANUFACTURING COMPANY )公司器材。
美国ADEMCO(安定宝)公司1929年于美国成立,直属美国PITTW AY集团(全美五百大财团之一),如今已成为全世界最大的电子防盗产品制造商,始终保持产品高科技水平,领导市场。
3. 系统集成电子巡更报警系统、门禁控制系统通过串口或DDE方式集成于闭路电视监控系统,从而达到各自系统与CCTV系统的联动。
只要有非正常信号产生,系统自动联动摄像机、监视器、录像机等视频设备,自动录像现场图像以取证;同时主控室显示屏会有相应信息条闪动,提醒值班人员注意。
联动后的保安系统可通过CCTV系统将数据和图像输送到大厦内部网上,与其他系统共享;如有必要,电子巡更报警系统及门禁系统也可将各自数据发送到网上共享(见图一)。
(金融保险)徽商银行安防系统设计方案徽商银行安防系统设计方案1.项目方案概述1.1设计依据项目图纸GA38-2004《银行营业场所风险等级和安全防护级别的规定》GB50348-2004《安全防范工程技术规范》GA/T367-2001《入侵报警系统技术要求》GA/T368-2001《视频安防监控系统技术要求》GA518-2004《银行营业场所透明防护屏障安装规范》GB17565-1998《防盗安全门通用技术条件》GA576-2005《防尾随联动互锁安全门通用技术条件》GA/T75-94《安全防范工程程序和要求》GA/T70-2004《安全防范工程费用概算编制办法》JR/T0003-2000《银行金库》公通字[1997]52号《公安机关和金融单位联网报警管理规定》《金融机构营业场所和金库安全防范设施建设许可实施办法》(中华人民共和国公安部第86号令)《中华人民共和国认证认可条例》(国务院令第390号)《强制性产品认证管理规定》(中华人民共和国国家质量监督检验检疫总局令第5号)1.2设计原则在总体设计上,我们从满足业主利益的角度出发,本着技术先进,高效便利投资合理的精神进行设计。
在本弱电系统的设计过程中我们壹贯坚持的四项基本原则是:紧扣规范,服务用户,结合实际工程经验,技术先进、经济合理、实用可靠。
另外在此基础上,仍遵循下列原则:★系统的防护级别和被防护对象的风险等级相适应。
★技防、物防、人防相结合,探测、延迟、反应相协调。
★满足防护的纵深性、均衡性、抗易损性要求。
★满足系统的安全性、电磁兼容性要求。
★满足系统的可靠性、维修性和维护保障性要求。
★满足系统的先进性、兼容性、可扩展性要求。
★满足系统的经济性、适用性要求。
2系统要求徽商银行股份有限X公司下设徽商银行花山、开发区、花园支行,其中高风险区域包括现金业务区域和运钞交接区域、重要凭证室、档案室、自助银行区域、计算机房和监控室;中度风险区域包括非现金业务区域、资料室、凭证间等;低度风险区域包括客户区和办公区域等。
安全防范系统设计方案第一章安全防范系统技术解决方案1、项目背景为提供霍邱村镇银行的综合保障能力,对潜在的危险进行有效地抑制,根据国家规范在重点部位建设安防系统。
2、项目需求2.1、安防区域储蓄柜员窗口、敞开式柜台、营业厅、VIP室、ATM间、自助银行、ATM机、监控室、要害通道、顾客活动区、储蓄所门前。
2.2、硬盘录像机要求1)、后端录像机采用嵌入式硬盘录像机,必须考虑现有总行设备,能够今后和总行进行联网。
2)、嵌入式操作系统,模块化设计,预留升级扩展接口。
3)、M PEG-4以上数字压缩方式;25帧/秒;系统存储量支持单路资料保存3个月以上(按照400M/小时,每天10小时计算,保存时间3个月)。
4)、支持高速硬盘(7200转),大容量硬盘(250G以上)。
硬盘配置必须便于将来扩容。
5)、支持网络远程管理,支持TCP/IP协议,配置远程分控管理软件。
6)、备份方式支持热插拔移动硬盘USB盘或者CD-R/RW。
2.3、监听系统所有监控点都具有现场监听录音功能,监听及录音回放必须清晰、准确、完整2.4、UPS备用电源用以保证整套监控系统、报警主机在市电中断后可以正常工作(科士达3K/12T)2.5、报警设备在现金柜台、主要通道、其他重点区域、出入口安装入侵探测设备和若干紧急求助报警按钮。
3、设计依据1)《银行营业场所风险等级和防护级别的规定》GA/38-20042)《安全防范工程技术规范》GB/T50348-20043)《防盗报警控制器材通用技术条件》GB/12663-20014)《电视监控系统工程设计规范》GB/T50348-20045)《安防工程程序及要求》GA/75-946)《彩色电视图像质量主观评价方法》GB7401-877)《安全防范系统通用图形符号》GA/T74-948)《软件工程国家标准》GTB8569)《光纤分布式数据接口(FDDI)高建局域网标准》10)《银行营业场所安装工程质量检验评定标准》GA/T16676-9711)《建筑电气安装工程质量检验评定标准》GBJ303-8812)《智能建筑设计标准》GB/T50314-200013)《安全防范工程程序及要求》GA/T75—9414)《安全防范系统通用图形符号》GA/T74—9415)《民用闭路电视系统工程技术规范》GB 50198-9416)《工业企业通讯接地设计规范》GB J97-8517)《中国电气装置安装工程施工及验收规范》GBJ232—8218)《智能建筑弱电工程设计施工图集》GBJT-47119)《CATV行业标准》GY/T 121-9520)中行监控系统设计要求4、设计遵循原则4.1、以技术先进和标准化为设计标准系统应充分遵循现有的国际通行设计规范。
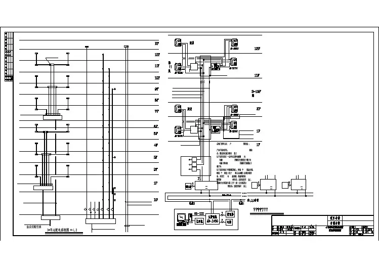
某银行安防系统电气施工图设计方案第一章安防系统工程概况1.设计背景为了遏制和打击犯罪、减少金融风险,银行需要对重要地点和营业场所进行有效和可靠的监控,实现对重要地点和营业场所的音、视频资料进行录像保存。
目前,电视监控虽实现了由模拟到数字的技术提升,但使用管理方式并未发生质的变化,仍然停留在单点式管理阶段,其弊端表现在以下几个方面:一是监控由营业网点自行管理,由于人员素质及管理精力不足等原因,设备出现故障不能及时发现;二是网点分布广,查阅调用录像不方便;三是报警后不能自动及时上传图像资料,重点在事后查证;四是录像资料的调阅在就可直接办理,基层网点有关人员可以删除信息资料,甚至可以借所谓的"客观原因"停用录像;五是由于基层机构人力限制和岗位轮换等原因,掌握监控设施管理流程和技术的人员增多,增大了监控设施运行风险。
基于这些客观因素的存在,如何运用业已成熟的信息技术,把封闭和零散的单套系统通过网络联接成高效的监控系统,从根本上解决单点式管理的弊端,实现全辖电视监控网络化,使监控质量和效率真正得到提升,成为银行安全技术防范工作的一个重点。
2.建筑概况一层室内总面积为992.12m2,有现金出纳柜台16个,四处捆钞机,五处自动点钞机,一层主要包括营业大堂、办公区、两个库房、一处储藏室、保安室、值班室、变压器房和发电机房。
二层室内总面积为670 m2,主要由一个金库、贵宾银行、办公室和储藏室。
3.设计目标系统的设计目标是要根据银行的要求,对于重点部位如金库、现金交易区和捆钞机等进行实时的监控,监控工作人员和客户的活动并记录活动情况,能够回放录像并能够清晰的显示柜员和客户的面部特征,同时实现入侵报警功能,在发生报警时能够进行视频复核。
第二章设计依据和设计要求1.设计依据1)《银行营业场所风险等级和防护级别的规定》 GA/38-20042)《安全防范工程技术规范》GB/T 50348-20043)《防盗报警控制器材通用技术条件》GB/12663-20014)《电视监控系统工程设计规范》 GB/T 50348-20045)《安防工程程序与要求》 GA/75-946)《彩色电视图像质量主观评价方法》 GB7401-877)《安全防范系统通用图形符号》 GA/T74-948)《软件工程国家标准》 GTB8569)《银行营业场所安装工程质量检验评定标准》 GA/T16676-9710)《建筑电气安装工程质量检验评定标准》 GBJ303-8811)《智能建筑设计标准》 GB/T 50314-200012)《安全防范工程程序与要求》 GA/T75—9413)《安全防范系统通用图形符号》 GA/T74—9414)《民用闭路电视系统工程技术规范》 GB 50198-9415)《工业企业通讯接地设计规范》 GB J97-8516)《中国电气装置安装工程施工及验收规范》 GBJ232—8217)《智能建筑弱电工程设计施工图集》 GBJT-47118)《智能建筑设计标准》(DBJ08-47-95)19)《商用建筑线缆标准》(EIA/TIA-569)20)《民用建筑电气设计规范》(JGJ/T16-92)21)《工业电视系统工程设计规范》(GBJ115-87)22)《电气装置安装工程施工及验收规范》(GBJ23-90,92)23)《民用闭路监视系统工程技术规范》GB50198-94)24)《公共安全防范工程程序与要求》(GA/T75-94)25)《CATV行业标准》 GY/T 121-9526)中行监控系统设计要求2.设计原则该系统设计方案设计遵循技术先进、功能齐全、性能稳定、节约成本的原则。
并综合考虑施工、维护及操作因素,并将为今后的发展、扩建、改造等因素留有扩充的余地。
本系统设计内容是系统的、完整的、全面的;设计方案具有科学性、合理性、可操作性。
其具有以下原则:1)先进性与适用性系统的技术性能和质量指标应达到国际领先水平;同时,系统的安装调试、软件编程和操作使用又应简便易行,容易掌握,适合中国国情和本项目的特点。
该系统集国际上众多先进技术于一身,体现了当前计算机控制技术与计算机网络技术的最新发展水平,适应时代发展的要求。
同时系统是面向各种管理层次使用的系统,其功能的配置以能给用户提供舒适、安全、方便、快捷为准则,其操作应简便易学。
2)经济性与实用性充分考虑用户实际需要和信息技术发展趋势,根据用户现场环境,设计选用功能和适合现场情况、符合用户要求的系统配置方案,通过严密、有机的组合,实现最佳的性能价格比,以便节约工程投资,同时保证系统功能实施的需求,经济实用。
3)可靠性与安全性系统的设计应具有较高的可靠性,在系统故障或事故造成中断后,能确保数据的准确性、完整性和一致性,并具备迅速恢复的功能,同时系统具有一整套完成的系统管理策略,可以保证系统的运行安全。
4)开放性以现有成熟的产品为对象设计,同时还考虑到周边信息通信环境的现状和技术的发展趋势,可以消防、防盗、聚光系统实现联动,具有RJ-45网络通讯口,可实现远程控制。
5)可扩充性系统设计中考虑到今后技术的发展和使用的需要,具有更新、扩充和升级的可能。
并根据今后该项目工程的实际要求扩展系统功能,同时,本方案在设计中留有冗余,以满足今后的发展要求。
6)追求最优化的系统设备配置在满足用户对功能、质量、性能、价格和服务等各方面要求的前提下,追求最优化的系统设备配置,以尽量降低系统造价。
7)保留足够的扩展容量该项目设备的控制容量上保留一定的余地,以便在系统中改造新的控制点;系统中还保留与其他计算机或自动化系统连接的接口;也尽量考虑未来科学的发展和新技术的应用。
8)提高监管力度与综合管理水平本项目系统设备控制需要高效率、准确及可靠。
本系统通过中央控制系统对各子系统运行情况进行综合监控,时时动态撑握监视及报警情况。
闭路电视监控大大减少劳动强度,减少设备运行维护人员;另外,系统的综合统筹管理可使设备按最优组合运行,在最佳情况下运行,既可节能,又可大大减少设备损耗,减少设备维修费用,从而提高监管力度与综合管理水平。
3.确定风险等级银行根据《安全防范工程技术规范》中:【条文】4.1.3 本节适用于文物保护单位和博物馆、银行营业场所、民用机场、铁路车站和重要物资储存库等五类特殊对象的风险等级及其所需的防护级别。
规定为高风险对象。
银行有柜台16个,根据《GA38-2004_银行营业场所风险等级和防护级别的规定》中的规定:4.1 风险等级的划分:营业场所风险等级分为三个级别,由低到高为:三级风险、二级风险、一级风险。
4.1.1 具备下列条件之一的营业场所定为三级风险单位:a) 设在乡、镇(村庄)、农牧区、山区或机关、院校、部队、工厂等企事业单位内部的营业场所;b) 现金出纳柜台不超过2个(含2个)的营业场所;c) 设有现金保管点,存放现金5万元(含5万元)人民币以下的营业场所。
4.1.2 具备下列条件之一的营业场所定为二级风险单位:a) 设在县(含县)以上城市、城乡结合部的营业场所;b) 与业务库相连,库存现金余额不足80万元人民币的营业场所;c) 现金出纳柜台不超过5个(含5个)的营业场所。
4.1.3 具备下列条件之一的营业场所定为一级风险单位:a) 与业务库相连,库存现金余额80万元(含80万元)人民币以上的营业场所;b) 现金出纳柜台6个(含6个)以上的营业场所。
所以将银行风险等级划分为一级风险等级,防护等级要与风险等级想适应,所以其防护等级也为一级。
1.4设计要求根据《安全防范工程技术规范》中要求:【条文】3.4.3 视频安防监控系统设计应符合下列规定:1 应根据各类建筑物安全防范管理的需要,对建筑物内(外)的主要公共活动场所、通道、电梯及重要部位和场所等进行视频探测、图像实时监视和有效记录、回放。
对高风险的防护对象,显示、记录、回放的图像质量及信息保存时间应满足管理要求。
2 系统的画面显示应能任意编程,能自动或手动切换,画面上应有摄像机的编号、部位、地址和时间、日期显示。
3 系统应能独立运行。
应能与入侵报警系统、出入口控制系统等联动。
当与报警系统联动时,能自动对报警现场进行图像复核,能将现场图像自动切换到指定的监示器上显示并自动录像。
集成式安全防范系统的视频安防监控系统应能与安全防范系统的安全管理系统联网,实现安全管理系统对视频安防监控系统的自动化管理与控制。
组合式安全防范系统的视频安防监控系统应能与安全防范系统的安全管理系统联接,实现安全管理系统对视频安防监控系统的联动管理与控制。
分散式安全防范系统的视频安防监控系统,应能向管理部门提供决策所需的主要信息。
【条文】4.3.3 根据银行营业场所的风险等级确定相应的防护级别。
按照银行业务的风险程度应将营业场所不同区域划分为高度、中度、低度三级风险区。
高度风险区主要是指涉及现金(本、外币)支付交易的区域,如存款业务区、运钞交接区、现金业务库区及枪弹库房区、保管箱库房区、监控中心(监控室)等;中度风险区主要是指涉及银行票据交易的区域,如结算业务区、贴现业务区、债券交易区、中间业务区等;低度风险区是指经营其他较小风险业务的区域,如客户活动区等。
根据实际情况和业务发展,建设单位可提高业务区的风险等级和防护级别。
4 各业务区应安装视频安防监控系统。
1)应能实时监视银行交易或操作的全过程, 回放图像应能清晰显示区域内人员的活动情况。
【条文说明】1)视频安防监控系统除实时显示重点部位的图像供值班警卫人员监视外,更重要的是能将重点部位的有效图像记录下来,在需要时能重现现场图像,供研究分析。
因此回放图像的质量是非常重要的。
监视图像质量好,记录回放的图像质量不一定好,因此,本款强调回放图像的质量要求。
2)存款业务区的回放图像应是实时图像,应能清晰地显示柜员操作及客户脸部特征。
【条文说明】2)对现金柜台作业面及客户脸部特征的录像即柜员制录像,应以前者为主,兼顾后者。
客户的图像主要应从入口处、柜台外部作业面安装的摄像机所取得的图像来提取。
设计时要注意摄像机安装位置和选用焦距适当的镜头。
视场范围内照度偏低时,应加装灯具,提高照度。
3)运钞交接区的回放图像应是实时图像,应能清晰显示整个区域内人员的活动情况。
4)出入口的回放图像应能清晰辨别进出人员的体貌特征。
【条文说明】4)摄像机安装位置要注意避开逆光,视窗要适当,以保证回放图像能清晰辨别进出营业场所人员的体貌特征。
5)现金业务库清点室的回放图像应是实时图像,应能清晰显示复点、打捆等操作的过程。
第三章视频安防系统1.系统组成闭路电视监控系统分别由前端系统、传输系统、控制系统、显示系统四个部分构成,还具有对图像信号的分配切换、存储、处理、还原等功能。
2. 前端设备视频监控系统的前端设备主要是电视摄像机、镜头、云台和防护罩。