1 建筑面积计算规则(1)
- 格式:ppt
- 大小:3.52 MB
- 文档页数:64
一、应计算建筑面积的范围和规则1、建筑物的建筑面积应按自然层外墙结构外围水平面积之和计算。
结构层高在2.2m及以上的计算全面积,结构层高小于2.2m,计算1/2面积。
计算建筑面积时不考虑勒脚。
当外墙结构本身在一个层高范围内不等厚时,以楼地面结构标高处的外围水平面积计算。
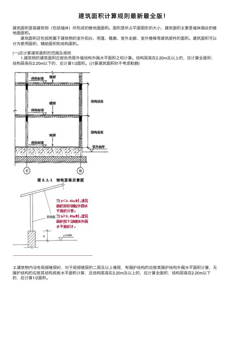
当围护结构下部为砌体,上部为彩钢板围护的建筑物,其建筑面积的计算:h<0.45m时,按彩钢板外围水平面积计算,当h ≥0.45m时,按砌体外围水平面计算。
2、建筑物内设有局部楼层时,对局部楼层的二层及以上楼层,有围护结构的应按围护结构外围水平面积计算,无围护结构的应按底板水平面积计算,结构层高在2.2m及以上的计算全面积,结构层高小于2.2m,计算1/2面积。
局部楼层从二层开始算起,一层不能重复计算,无围护结构的应有围护设施,否则不属于楼层。
3、形成建筑空间的坡屋顶,结构净高在2.1m及以上的计算全面积,结构净高在1.2 m及以上小于2.1m的计算1/2面积,结构净高小于1.2m 的,不计算建筑面积。
净高指结构层上表面至上层结构层下表面,不含装修层。
4、场馆看台下的建筑空间,结构净高在2.1m及以上的计算全面积,结构净高在1.2 m及以上小于2.1m的计算1/2面积,结构净高小于1.2m 的,不计算建筑面积。
室内单独设置的有围护设施的悬挑看台的,应按看台结构底板面积计算,有顶盖无围护结构的场馆看台,应按顶盖水平投影面积的1/2计算建筑面积。
无顶盖的看台不计算建筑面积。
5、地下室半地下室应应按其结构外围水平面积计算,结构层高在2.2m 及以上的计算全面积,结构层高小于2.2m,计算1/2面积。
(1/2、1/3区分地下室与半地下室),地下室外墙结构不包括找平层、防潮层、保护墙。
地下空间末形成建筑空间的,不计算建筑面积。
6、室下室出入口外墙外侧坡道有顶盖的部分,应按其外墙结构外围水平面积的1/2计算。
顶盖不分材质。
无顶盖不计算建筑面积。
建筑面积计算(jì suàn)规则一、计算建筑面积(jiàn zhù miàn jī)的范围1、单层建筑物不论其高度均按一层计算,其建筑面积(miàn jī)按建筑物外墙勒角以上的外围水平面积计算。
单层建筑物内如带有部分楼层者,亦应计算建筑面积。
2、多层建筑物的建筑面积按以建筑面积的总和计算,其底层按建筑物外墙勒角以上(yǐshàng)外围水平面积计算,二层及二层以上按外墙外围水平面积计算。
3、层高超过2.2米的地下室、半地下室、地下车间、仓库、商店(shāngdiàn)、地下指挥部等及相应出入口的建筑面积按其上口外墙(不包括采光井、防潮层及其保护墙)外围的水平面积计算。
4、用深基础做架空层加以利用,层高超过2.2米的,按架空层外围的水平面积的一半计算建筑面积。
5、坡地建筑物利用吊脚做架空层加以得用且层高超过2.2米的,按围护结构外围水平面积计算建筑面积。
6、穿过建筑物的通道,建筑物内的门厅、大厅不论其高度如何,均按一层计算建筑面积。
门厅、大厅内回廊部分按其水平投影计算建筑面积。
7、电梯井、提物井、垃圾道、管道井等均按建筑物自然层计算建筑面积。
8、舞台灯光控制室按围护结构外围水平面积乘以实际层数计算建筑面积。
9、建筑物内的技术层(管道层、附层、夹层)是指房屋的局部层次,层高超过2.2米的,按其墙外围水平面积计算建筑面积。
10、与建筑物连接的有柱雨篷按柱外围水平面积计算建筑面积;独立柱雨篷按其顶盖水平投影面积的一半计算建筑面积。
11、有柱的车棚、货棚、站台等按柱外围水平面积计算建筑面积;单排柱、独立柱的车棚、货棚、站台等按其顶盖水平设影面积的一半计算建筑面积。
12、突出屋面的有围护结构的楼梯间、水箱间、电梯机房等按围护结构外围水平面积计算建筑面积。
13、突出墙外的门斗按围护结构外围水平面积计算建筑面积。
14、封闭阳台、挑廊,按其水平投影面积计算建筑面积。
建筑面积计算规则(最新)建筑面积是以平方米为计量单位反映房屋建筑规模的实物量指标,它广泛应用于基本建设计划、统计、设计、施工和工程概预算等各个方面,在建筑工程造价管理方面起着非常重要的作用,是房屋建筑计价的主要指标之一。
一、房屋建筑的主体部分1、单层建筑物单层建筑物的建筑面积,应按其外墙勒脚以上结构外围水平面积计算。
单层建筑物高度在2.2m及以上者应计算全面积;层高不足2.2m者应计算1/2面积。
勒脚是指建筑物外墙与室外地面或散水接触部位墙体的加厚部分(图1);高度是指室内地面至屋面(最低处)结构标高之间的垂直距离。
图1 勒脚单层建筑物设有局部楼层者,局部楼层的二层及以上楼层,有围护结构的应按其围护结构外围水平面积计算,无围护结构的应按其结构底板水平面积计算。
层高在2.2m及以上者应计算全面积;层高不足2.2m者应计算1/2面积。
围护结构是指围合建筑空间四周的墙体、门、窗等。
2、多层建筑物多层建筑物的建筑面积应按不同的层高划分界限分别计算。
首层应按其外墙勒脚以上结构外围水平面积计算;二层及以上楼层应按其外墙结构外围水平面积计算。
层高在2.2m及以上者应计算全面积;层高不足2.2m者应计算1/2面积。
这里我将这种算法简称为“层高界限计算法”。
层高是指上下两层楼面(或地面至楼面)结构标高之间的垂直距离;其中,最上一层的层高是其楼面至屋面(最低处)结构标高之间的垂直距离。
3、单(多)层建筑物的坡屋顶内空间单(多)层建筑物的坡屋顶内空间,当设计加以利用时,其净高超过2.1m的部位应计算全面积;净高在1.2m至2.1m的部位应计算1/2面积;净高不足1.2m的部位不应计算面积。
设计不利用时不应计算面积。
这里我将这种算法简称为“净高界限计算法”。
净高是指楼面或地面至上部楼板(屋面板)底或吊顶底面之间的垂直距离。
如图2:第(1)部分净高<1.2m,不计算面积;第(2)、(4)部分1.2m≤净高≤2.1m,计算1/2面积;第(3)部分净高>2.1m,应全部计算面积。
建筑面积计算规则及工程量计算说明一、建筑面积计算规则建筑面积是指建筑物在水平投影平面上的面积,它通常包括以下几个方面的面积计算:1.总建筑面积(GFA):总建筑面积是指建筑物所有楼层的总面积,包括地下室、地上建筑、夹层、阁楼等。
总建筑面积是最基本的一个概念,用于确定建筑物的规模和投资。
2.建筑占地面积(BFA):建筑占地面积是指建筑物在水平投影平面上占用的地面面积,不包括地下室和室外露天空间。
3.建筑净面积(NFA):建筑净面积是指建筑物内部可供使用的净面积,包括办公室、住宅、商铺等空间。
建筑净面积是对建筑物功能和使用效率的考量。
4.各个功能区域的面积:对于多功能的建筑,还需要计算各个功能区域的面积,例如客厅、卧室、卫生间、厨房等。
这些面积计算可以用于设计布局和预算的参考。
工程量是指工程项目中需要使用的各种材料、设备和劳动力的数量。
工程量的计算对于项目的预算和进度控制非常重要,下面介绍几个常见的工程量计算方法:1.材料工程量计算:对于需要使用大量材料的工程项目,如砌筑、混凝土工程等,可以通过计算材料的体积或面积来确定所需材料的数量。
通常需要考虑材料的浪费率和损耗率。
2.设备工程量计算:在施工过程中需要使用各种设备和机械,如起重机、挖掘机等。
对于这些设备,可以根据设计工期和设备的工作效率来计算所需的工作时间和设备数量。
3.人工工程量计算:工程项目中的人力资源是不可忽视的一部分,需要根据项目的规模和进度来确定所需的人力资源。
通常根据工作的性质和难度来确定所需的人工工时和人员数量。
4.工程量软件辅助计算:现在有许多专业的工程量计算软件可以辅助进行工程量的计算,可以根据具体项目的特点和需求来选择适合的软件。
需要注意的是,工程量计算需要综合考虑各种因素,如设计标准、施工方法、工艺流程等,以确保计算结果的准确性和合理性。
同时,还需要不断总结和积累实践经验,以提高工程量计算的准确性和效率。
总结起来,建筑面积计算规则和工程量计算是建筑施工工程管理中必不可少的一部分。
建筑面积的计算规则一、计算全面积1.建筑物的建筑面积,结构层高在2.20m及以上;2.局部楼层(有围护按围护,无围护按底板),结构层高在2.20m及以上;3.建筑物架空层、坡地吊脚架空层,结构层高在2.20m及以上;4.门厅、大厅内设置的走廊,结构层高在2.20m及以上;5.地下室、半地下室,结构层高在2.20m及以上;6.门斗有围护结构,结构层高在2.20m及以上;7.建筑物顶部的、有围护结构的楼梯间、水箱间、电梯机房,结构层高在2.20m及以上;8.建筑物内设备层、管道层、避难层等有结构层的楼层,结构层高在2.20m 及以上;9.形成建筑空间的坡屋顶,结构净高大于2.1m;10.场馆看台下的建筑空间,结构净高大于2.1m;11.围护结构不垂直于水平面的楼层,结构净高在2.10m及以上;12.有顶盖的采光井应按一层计算面积,且结构净高在2.10m及以上;13.有围护结构的舞台灯光控制室,结构层高在2.20m及以上;14.附属在建筑物外墙的落地橱窗,结构层高在2.20m及以上的;15.在主体结构内的阳台;16.建筑物间的架空走廊,有顶盖和围护设施。
二、计算一半面积1.建筑物的建筑面积,结构层高在2.20m以下;2.局部楼层,结构层高在2.20m以下;3.建筑物架空层、坡地吊脚架空层,结构层高在2.20m以下;4.门厅、大厅内设置的走廊,结构层高在2.20m以下;5.地下室、半地下室,结构层高在2.20m以下;6.门斗有围护结构,结构层高在2.20m以下;7.建筑物顶部的、有围护结构的楼梯间、水箱间、电梯机房,结构层高在2.20m以下;8.建筑物内设备层、管道层、避难层等有结构层的楼层,结构层高在2.20m 以下;9.有围护结构的舞台灯光控制室,结构层高在2.20m以下;10.附属在建筑物外墙的落地橱窗,结构层高在2.20m以下;11.窗台与室内楼地面高差在0.45m以下且结构净高在2.10m及以上的凸(飘)窗;12.门廊、有柱雨篷、无柱雨篷的结构外边线至外墙结构外边线的宽度在2.10m及以上;13.围护结构不垂直于水平面的楼层,结构净高在1.20m及以上至2.10m以下;14.有顶盖的采光井应按一层计算面积,结构净高在2.10m以下的;15.形成建筑空间的坡屋顶,结构净高1.2~2.1m;16.场馆看台下的建筑空间,结构净高1.2~2.1m;17.有顶盖无围护结构的场馆看台;18.出入口外墙外侧坡道有顶盖部分;19.建筑物间的架空走廊,无围护结构、有围护设施的;20.有围护设施的室外走廊(挑廊)、有围护设施(或柱)的檐廊;21.室外楼梯;22.在主体结构外的阳台;23.有顶盖无围护结构的车棚、货棚、站台、加油站、收费站。
建筑面积计算规则建筑面积是指建筑物(包括墙体)所形成的楼地面面积。
面积是所占平面图形的大小,建筑面积主要是墙体围合的楼地面面积。
建筑面积还包括附属于建筑物的室外阳台、雨篷、檐廊、室外走廊、室外楼梯等建筑部件的面积。
建筑面积可以分为使用面积、辅助面积和结构面积。
(一)应计算建筑面积的范围及规则1.建筑物的建筑面积应按自然层外墙结构外围水平面积之和计算。
结构层高在2.20m及以上的,应计算全面积;结构层高在2.20m以下的,应计算1/2面积。
(计算建筑面积时不考虑勒脚)2.建筑物内设有局部楼层时,对于局部楼层的二层及以上楼层,有围护结构的应按其围护结构外围水平面积计算,无围护结构的应按其结构底板水平面积计算,且结构层高在2.20m及以上的,应计算全面积,结构层高在2.20m以下的,应计算1/2面积。
3.形成建筑空间的坡屋顶,结构净高在2.10m及以上的部位应计算全面积;结构净高在1.20m及以上至2.10m以下的部位应计算1/2面积;结构净高在1.20m以下的部位不应计算建筑面积。
4. 场馆看台下的建筑空间,结构净高在2.10m及以上的部位应计算全面积;结构净高在1.20m及以上至2.10m以下的部位应计算1/2面积;结构净高在1.20m以下的部位不应计算建筑面积。
有顶盖无围护结构的场馆看台应按其顶盖水平投影面积的1/2计算面积。
室内单独设置的有围护设施的悬挑看台,应按看台结构底板水平投影面积计算建筑面积。
5. 地下室、半地下室应按其结构外围水平面积计算。
结构层高在2.20m及以上的,应计算全面积;结构层高在2.20m以下的,应计算1/2面积。
6.出入口外墙外侧坡道有顶盖的部位,应按其外墙结构外围水平面积的1/2计算面积。
7.建筑物架空层及坡地建筑物吊脚架空层,应按其顶板水平投影计算建筑面积。
结构层高在2.20m及以上的,应计算全面积;结构层高在2.20m以下的,应计算1/2面积。
8.建筑物的门厅、大厅应按一层计算建筑面积,门厅、大厅内设置的走廊应按走廊结构底板水平投影面积计算建筑面积。
建筑面积计算规则建筑面积计算规则一、一般规定1.单层建筑物不论其高度如何,均按一层计算建筑面积。
多层建筑物自然层的层高在2.2m以上(含2.2m,下同)者,方可计算建筑面积。
2.单层建筑物的建筑面积和多层建筑物首层的建筑面积,均按建筑物外墙勒脚以上结构外围水平面积计算。
3.单层建筑物内设有部分楼层者,其二层及二层以上的楼层,以及多层建筑物二层及二层以上的楼层,层高在2.2m以上者,均计算建筑面积。
有围护外墙的,按外墙结构的外围水平面积计算;无外墙的,按自然层结构板水平投影面积计算。
单层仿古建筑或多层仿古建筑的两自然结构层间局部有楼层者,按其水平投影面积计算建筑面积。
4.高低联跨的单层建筑物,以高跨结构外边线为界,可分别计算建筑面积。
同一建筑物的结构、层数不同时,分别计算建筑面积。
5.设有围护结构(或围栏)不垂直于水平面而超出底板外沿的建筑物,按其底板面的围护结构外围水平面积计算建筑面积。
6.设有围护性幕墙的建筑物,按幕墙主墙外边线计算建筑面积。
7.单层仿古建筑,有台明者按台明外围水平面积计算建筑面积;无台明有围护结构的以围护结构水平面积计算建筑面积;围护结构外有檐廊柱的,按檐廊柱外边线水平面积计算建筑面积;围护结构外边线未及构架柱外边线的,按构架柱外边线计算建筑面积。
无围护结构的按构架柱外边线计算面积。
8.多层仿古建筑,其首层的建筑面积计算方法分有、无台明者两种,按上述单层建筑物的建筑面积计算方法计算;二层及二层以上各层建筑面积计算方法,按上述单层无台明建筑的建筑面积计算方法计算。
9.碉楼式建筑物的碉台内无楼层分界的按一层计算建筑面积,碉台内有楼层分界的分层累计计算建筑面积。
单层碉台及多层碉台的首层有台明的按台明外围水平面积计算建筑面积,无台明的按围护结构外围水平面积计算建筑面积。
多层碉台的二层及二层以上均按各层围护结构底面外围水平面积计算建筑面积。
二、计算全面积的范围1.单层建筑物按一层建筑面积计算,多层建筑物按各层建筑面积的总和计算。
建筑面积计算规则
1.建筑物基底面积:建筑物的基底面积是指建筑物在地面上所占据的水平投影面积,包括建筑物外部的凸出部分(如阳台、窗台等)。
基底面积通常是以围护结构的外轮廓线来计算的。
2.建筑物总面积:建筑物的总面积是指建筑物各个层面的投影面积之和,包括建筑物内外的凸出部分。
总面积是用来计算建筑物的总体规模和空间利用率的重要指标。
3.建筑物建筑面积:建筑物的建筑面积是指建筑物内部的使用面积,包括建筑物的各个功能空间(如客厅、卧室、厨房等)。
建筑面积是用来计算建筑物的使用效率和空间布局的重要指标。
建筑面积的计算规则通常遵循以下原则:
1.可行性原则:建筑面积的计算应基于实际可行性,符合建筑物结构和功能的需要。
计算时应考虑到建筑物的技术和经济可行性,不得超过承载能力和安全标准。
2.规范性原则:建筑面积的计算应遵循相关的法律法规和建筑行业的标准和规范。
计算时应参照相应的技术规范和计算方法,确保计算结果的准确性和可靠性。
3.公正性原则:建筑面积的计算应公正、公平。
计算结果应基于客观事实和实际数据,不得歧视或偏袒任何一方,保证各方的权益。
4.透明度原则:建筑面积的计算应透明,计算过程应清晰、明确,计算方法和数据应当对各方公开,确保计算结果的可验证性和可信度。
此外,根据具体情况,建筑面积的计算规则还可能包括其他方面的考虑,如可持续发展、节能减排等要求。
建筑面积的计算规则会随着社会经济的发展和科技的进步而不断更新和完善,以适应新的需求和挑战。
(3)多层建筑物首层应按其外墙勒脚以上结构外围水平面积计算;二层及以上楼层应按其外墙结构外围水平面积计算。
层高在2.20m及以上者应计算全面积;层高不足2.20m者应计算1/2面积。
(首层、二层及以上:结构外围水平面积计算,高度≥2.20米计算全面积,0<高度<2.20米计算一半)(4)多层建筑坡屋顶内和场馆看台下,当设计加以利用时净高超过2.10m的部位应计算全面积;净高在1.20~2.10m的部位应计算1/2面积;当设计不利用或室内净高不足1.20m 时不应计算面积。
(利用的:高度>2.10米计算全面积,1.20米≤高度≤2.10米计算1/2面积,高度<1.20米不计算;不利用的不计算面积)(5)地下室、半地下室(车间、商店、车站、车库、仓库等),包括相应的有永久性顶盖的出人口,应按其外墙上口(不包括采光井、外墙防潮层及其保护墙)外边线所围水平面积计算。
层高在2.20m及以上者应计算全面积;层高不足2.20m者应计算1/2面积。
(地下室、半地下室、永久性顶盖的出人口:应按其外墙上口外边线所围水平面积计算,采光井、外墙防潮层及其保护墙不计算面积,高度≥2.20米计算全面积,0<高度<2.20米计算一半)(6)坡地的建筑物吊脚架空层、深基础架空层,设计加以利用并有围护结构的,层高在2.20m及以上的部位应计算全面积;层高不足2.20m的部位应计算1/2面积。
设计加以利用、无围护结构的建筑吊脚架空层,应按其利用部位水平面积的1/2计算;设计不利用的深基础架空层、坡地吊脚架空层、多层建筑坡屋顶内、场馆看台下的空间不应计算面积。
用的按结构外围水平面积计算;高度≥2.20米计算全面积,0<高度<2.20米计算一半)(15)建筑物内的室内楼梯间、电梯井、观光电梯井、提物井、管道井、通风排气竖井、垃圾道、附墙烟囱应按建筑物的自然层计算。
遇跃层建筑,其共用的室内楼梯应按自然层计算;上下两错层户室共用的室内楼梯,应选上一层的自然层计算面积。
建筑⾯积计算规则最新最全版!建筑⾯积是指建筑物(包括墙体)所形成的楼地⾯⾯积。
⾯积是所占平⾯图形的⼤⼩,建筑⾯积主要是墙体围合的楼地⾯⾯积。
建筑⾯积还包括附属于建筑物的室外阳台、⾬篷、檐廊、室外⾛廊、室外楼梯等建筑部件的⾯积。
建筑⾯积可以分为使⽤⾯积、辅助⾯积和结构⾯积。
(⼀)应计算建筑⾯积的范围及规则1.建筑物的建筑⾯积应按⾃然层外墙结构外围⽔平⾯积之和计算。
结构层⾼在2.20m及以上的,应计算全⾯积;结构层⾼在2.20m以下的,应计算1/2⾯积。
(计算建筑⾯积时不考虑勒脚)2.建筑物内设有局部楼层时,对于局部楼层的⼆层及以上楼层,有围护结构的应按其围护结构外围⽔平⾯积计算,⽆围护结构的应按其结构底板⽔平⾯积计算,且结构层⾼在2.20m及以上的,应计算全⾯积,结构层⾼在2.20m以下的,应计算1/2⾯积。
3.形成建筑空间的坡屋顶,结构净⾼在2.10m及以上的部位应计算全⾯积;结构净⾼在1.20m及以上⾄2.10m以下的部位应计算1/2⾯积;结构净⾼在1.20m以下的部位不应计算建筑⾯积。
4. 场馆看台下的建筑空间,结构净⾼在2.10m及以上的部位应计算全⾯积;结构净⾼在1.20m及以上⾄2.10m以下的部位应计算1/2⾯积;结构净⾼在1.20m以下的部位不应计算建筑⾯积。
有顶盖⽆围护结构的场馆看台应按其顶盖⽔平投影⾯积的1/2计算⾯积。
室内单独设置的有围护设施的悬挑看台,应按看台结构底板⽔平投影⾯积计算建筑⾯积。
5. 地下室、半地下室应按其结构外围⽔平⾯积计算。
结构层⾼在2.20m及以上的,应计算全⾯积;结构层⾼在2.20m 以下的,应计算1/2⾯积。
6.出⼊⼝外墙外侧坡道有顶盖的部位,应按其外墙结构外围⽔平⾯积的1/2计算⾯积。
7.建筑物架空层及坡地建筑物吊脚架空层,应按其顶板⽔平投影计算建筑⾯积。
结构层⾼在2.20m及以上的,应计算全⾯积;结构层⾼在2.20m以下的,应计算1/2⾯积。
建筑面积计算规则一、计算建筑面积的范围:1、单层建筑物无论其高度如何,均按建筑物勒脚以上外墙结构的外围水平面积计算。
(1)、单层建筑物高度在2.20米及以上者,计算全面积;高度不足2.20米者,计算1/2面积。
(2)、利用坡屋面顶内空间时净高超过2.10米的部位计算全面积,净高在1.20~2.10米的部位计算1/2面积,净高不足1.20米的部位不计算面积。
2、单层建筑物内如带有部分楼层者,亦应计算建筑面积。
高低联跨需分别计算建筑面积时,按高低跨相邻处结构外边线为界线。
单层建筑物勒脚示意图单层建筑物建筑面积示意图 s=L*B部分楼层建筑面积示意图 s=L*B+a*b单层建筑物内设有部分楼层者,首层建筑面积已包括在单层建筑物内,二层及二层以上应计算建筑面积。
高低联跨的单层建筑物,需分别计算面积时,应以结构外边线为界分别计算,即高低跨交界的墙或柱所占的水平面积,应并入高跨内计算。
3、多层建筑物按分层建筑面积总和计算,首层建筑面积按建筑物勒脚以上外墙结构的外围水平面积计算,二层及二层以上按外墙结构的外围水平计算。
4、建筑物外墙为预制挂(壁)板的,按挂(壁)板外墙主墙面间的水平面积计算。
5、以幕墙作为围护结构的建筑物,按幕墙外边线计算面积;建筑物外墙外侧有保温隔热层的,按保温隔热层外边线计算面积。
6、地下室、半地下室、地下车间、仓库、商店、车站、指挥部等及附属建筑物外墙有出入口的(沉降缝为界)建筑物,按其上口外墙(不包括采光井、防潮层及其保护墙)外围水平面积计算。
人防通道端头出口部分为楼梯踏步时,按楼梯上口外墙外围水平面积计算。
7、用深基础做地下架空层,层高超过2.2m,设计包括安装门窗、地下抹灰装饰者,按围护结构的外围水平面积计算建筑面积。
8、坡地建筑物利用吊脚做架空层,有围护结构者,按其围护结构外围水平面积计算建筑面积。
9、穿过建筑物的通道,建筑物内的门厅、大厅,不论其高度如何,均按一层计算建筑面积,门厅、大厅内回廊部分按其自然层水平投影计算建筑面积。
一、一般规定1.房屋建筑面积计算按房屋外墙(柱)勒脚以上各层的外围水平投影面积,包括阳台、挑廊、地下室、室外楼梯等,且层高2.20 米(含2.20 米,下同)以上的永久性建筑。
2.房屋共有建筑面积系指各产权人共同占有或共同使用的建筑面积。
3.房屋使用面积系指房屋户内全部可供使用的空间面积,按房屋的内墙面水平面积计算。
4.房屋层数是指房屋的自然层数,一般按室内地坪±0米以上计算。
假层、附层(夹层)、插层、阁楼(暗楼)、装饰性塔楼,以及突出屋面的楼梯间、水箱间不计层数。
5.房屋所在层次是指本权属单元的房屋在该幢楼房中的第几层。
地下层次以负数表示。
二、计算全部建筑面积的范围1.永久性结构的单层房屋按一层计算建筑面积。
单层房屋内如带有部分楼层者,符合规则一般规定的亦应计算建筑面积。
2.多层和高层房屋按各层建筑面积的总和计算。
3.房屋内的技术层(管道层、附层、夹层等)层高在2.20 米以上的按其墙外围水平面积计算。
4.穿过房屋的通道,房屋内的门厅、大厅均按一层计算建筑面积。
门厅、大厅内的回廊部分,层高在2.20 米以上的,按其水平投影面积计算建筑面积。
5.楼梯、楼梯间、电梯(观光梯)井、提物井、垃圾道、管道井等均按房屋自然层计算建筑面积。
6.属永久性结构有上盖的室外楼梯,按各楼层外围水平投影面积计算。
7.房屋天面上属永久性建筑,层高在2.20 米以上的楼梯间、水箱间、电梯机房按外围水平面积计算。
8.原始设计斜面结构屋顶下加以利用的空间,高度在2.20 米以上的部位,按其外围水平投影面积计算。
9.挑楼、全封闭的阳台接外围水平投影面积计算。
10.与房屋相连的有柱走廊、两房屋间有上盖和柱的走廊,均按柱外围水平面积计算。
11.房屋间永久性的、封闭的架空通廊,按外围水平投影面积计算。
12.层高在2.20 米以上的地下层(地下室、半地下室、地下车库、地下商场等)及其相应出入口,按其外墙(不包括采光井、防潮层及保护墙)外围水平面积计算。
建筑面积计算规则一、单层建筑物的建筑面积,应按其外墙勒脚以上结构外围水平面积计算,并应符合下列规定:1、单层建筑物高度在2.20米及以上者,应计算全面积;高度不足2.20米者应计算1/2面积;2、利用坡屋顶内空间时净高超过2.10米的部位应计算全面积;净高在1.20米至2.10米的部位应计算1/2面积;净高不足1.20米部位不应计算面积。
二、单层建筑物内设有局部楼层着,局部楼层的二层及以上楼层,有围护结构的应按其围护结构外围水平面积计算,无围护结构的应按其结构底板水平面积计算。
高度在 2.20米及以上者,应计算全面积;高度不足 2.20米者应计算1/2面积。
三、多层建筑物首层应按其外墙勒脚以上结构外围水平面积计算;二层及以上楼层外墙结构外围水平面积计算。
高度在2.20米及以上者,应计算全面积;高度不足 2.20米者应计算1/2面积。
四、多层建筑坡屋顶内和场馆看台下,当设计加以利用时净高超过 2.10米的部位应计算全面积;净高在1.20米至2.10米的部位应计算1/2面积;净高不足1.20米部位不应计算面积。
五、地下室、半地下室(车间、商店、车站、车库、仓库等),包括相应的有永久性顶盖的出入口,应按其上墙外口(不包括采光井、外墙防潮层及其保护墙)外围线所围水平面积计算。
高度在2.20米及以上者,应计算全面积;高度不足2.20米者应计算1/2面积。
六、坡地的建筑物吊脚架空层、深基础架空层,设计加以利用并有围护结构的,高度在 2.20米及以上者,应计算全面积;高度不足 2.20米者应计算1/2面积。
设计加以利用并无围护结构的,按其利用部位水平面积的1/2计算,设计不利用坡地的建筑物吊脚架空层、深基础架空层、镀层建筑坡屋顶内、场馆看台下的空间不应计算面积。
七、建筑物的门厅、大厅按一层计算建筑面积。
门厅、大厅内设有回廊时,应按其结构底板水平面积计算。
层高在 2.20米以上者,应计算全面积;高度不足2.20米者应计算1/2面积。
最新建筑面积计算规则最新版本建筑面积计算规则是为了确定建筑物的实际使用面积,以便于规划设计、施工和评估建筑项目的成本与效益。
最新版本的建筑面积计算规则在之前版本的基础上进行了一些更新和修订,以适应当前建筑行业的发展和需求。
下面是最新建筑面积计算规则最新版本的详细介绍。
一、建筑面积计算的基本概念和原则1.1建筑面积的定义建筑面积是指建筑物在地面上覆盖的水平面积,包括各层的平面面积、阳台、走廊、悬挑部分、挑高层等。
1.2建筑面积计算的原则建筑面积计算应遵循以下原则:(1)建筑面积应在二维平面上计算,不考虑立面、纵截面和屋顶形态等;(2)建筑面积应按照国家建筑设计标准进行计算;(3)建筑面积应根据建筑功能和使用需求进行分类计算。
二、建筑面积计算分类和计算方法2.1建筑功能分类根据建筑物的功能和用途,将建筑面积划分为以下几类:(1)建筑主体面积:包括建筑物的主体建筑面积,如建筑物的平面面积;(2)附属建筑面积:包括建筑物的附属构筑物面积,如外墙、底层平台、外挑部分等;(3)室外建筑面积:包括建筑物周边的室外空间面积,如庭院、花园等。
2.2建筑面积计算方法根据建筑功能的不同,采用以下方法计算建筑面积:(1)主体建筑面积的计算:根据建筑物的平面形态和高度,通过测量或计算得出建筑物的主体建筑面积;(2)附属建筑面积的计算:根据具体的附属构筑物形态和面积,通过测量或计算得出建筑物的附属建筑面积;(3)室外建筑面积的计算:根据室外空间的形态和面积,通过测量或计算得出室外建筑面积。
三、建筑面积计算规则的调整和更新3.1建筑面积计算规则的调整根据新的建筑设计标准和行业需求,最新版本的建筑面积计算规则进行了如下调整:(1)对建筑主体面积的计算方法进行了精确化,考虑到建筑物的凹凸部分和非常规形态;(2)对附属建筑面积的计算方法进行了统一规范,强调对外挑部分和悬挑部分的计算;(3)对室外建筑面积的计算方法进行了优化,考虑到室外空间的功能和利用率。
建筑面积计算规则最全建筑而积计算规则大全建筑而积是指建筑物(包括墙体)所形成的楼地面面积。
而积是所占平而图形的大小,建筑而积主要是墙体围合的楼地面面积。
建筑而积还包括附属于建筑物的室外阳台、雨篷、檐廊、室外走廊、室外楼梯等建筑部件的面积。
建筑而积可以分为使用而积'辅助而积和结构而积。
(一)应计算建筑而积的范围及规则1.建筑物的建筑面积应按自然层外墙结构外围水平面积之和计算。
结构层高在2. 20m及以上的,应计算全而积;结构层高在2. 20m以下的,应计算1/2而积。
(计算建筑面积时不考虑勒脚)当h<0. 45m i时,建筑耐卜動K平面积计算?惑例板当於0・45皿时、歸E面臓T %ps2%外围±0. 0007 —2.建筑物内设有局部楼层时,对于局部楼层的二层及以上楼层, 有围护结构的应按其围护结构外围水平面积计算,无围护结构的应按其结构底板水平而积计算,且结构层高在2. 20m及以上3•形成建筑空间的坡屋顶,结构净高在2. IOnl及以上的部位应计算全而积;结构净高在20m及以上至2. IOm以下的部位应计算1/2而积;结构净高在20m以下的部位不应计算建筑面积。
4.场馆看台下的建筑空间,结构净高在2. 10nl及以上的部位应计算全而积;结构净高在1.20nl及以上至2. 10nl以下的部位应计算1/2 而积;结构净高在1. 20m以下的部位不应计算建筑面积。
图中h2=2.1mii3=1.2m瞬全建筑面积头弄也产彼勺席投影而积计算建筑而积。
主席台护结构的场馆看台应按其顶盖水平投影面积的1/2 计算而积。
4&00有顶盖无围室内单独设置的有围护设施的悬挑看台,应按看台结构底板水平5•地下室、半地下室应按其结构外围水平面积计算。
结构层高在2. 20nl 及以上的,应计算全面积;结构层高在2. 20m 以下的,应计 算1/2而积。
6. 出入口外墙外侧坡道有顶盖的部位,应按其外墙结构外围水平而积的1/2计算而积。