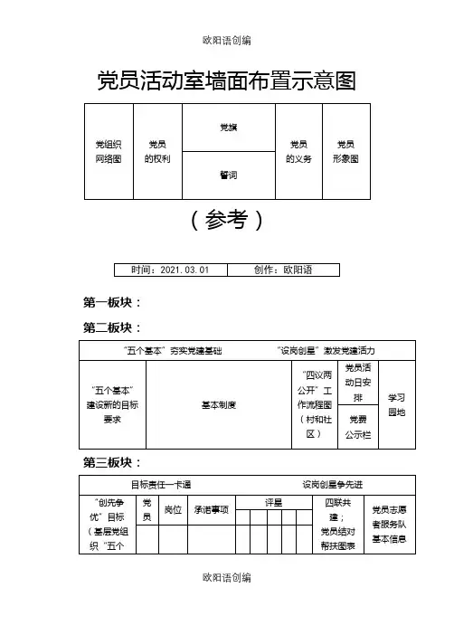
最新党校教学楼现场总平面布置图
- 格式:doc
- 大小:21.50 KB
- 文档页数:2
设计说明目录1.项目概况2.方案设计说明3.结构设计说明4.电气设计说明5.给排水设计说明6.通风空调设计7.环境保护和节能设计概述8.地下室设计9. 技术经济指标10.投资估算11. 设计工期1、项目概况项目用地位于厦门市湖里区,处于厦门岛内的东端,东侧与厦门集交通、旅游、休闲、娱乐为一体的海滨绿色长廊——环岛路相邻,将海景尽收眼底。
东侧外有一绿化带及一条与环岛路相平行的辅道尚未建设。
周边正处于规划、开发中,尚未形成成熟社区环境。
项目建设于五林路南侧与环岛路西侧之间地块。
现有地块场地较为平整,四周无高层建筑物遮挡,视线良好。
用地西北侧远处为高林社区,近处为新建住宅小区;东侧紧邻环岛路辅道,与环岛东路隔有35米绿化带。
地块面朝大海,视野开阔,景观资源优良;南侧将开辟规划道路,拟建湖里区文体中心;西侧为临时性厂房。
项目自身市政配套设施并入高林片区控规(调整)。
2、方案设计说明方案总平设计充分考虑与周边环境与建筑的关系,实现人车分流,布局合理,简洁大方。
合理的组织区块内各功能的交通流线,从项目所处出发,提取环境景观资源的元素,结合传统经典的比例分割,融入场地规划以及建筑的主体,从而得到黄金比例+起伏海浪+建筑主体的构思原点。
以这个原点为核心,将激发出的图形与线条相揉合,逐渐得出总平与建筑的草图构思。
黄金分割是一种数学上的比例关系。
黄金分割具有严格的比例性、艺术性、和谐性,蕴藏着丰富的美学价值。
海浪是海面起伏形状的传播,由水分子的震动而产生的机械波。
以水质点的震动波纹为底图,辅以蒙德里安按黄金比例描绘的格子图,将两幅图形相互叠加,再以建筑主体为体块,对基地进行再融合,形成最初的总平草图。
3、结构设计说明.1设计依据、设计条件及采用规范:1)框架抗震等级为二级,框架剪力墙抗震等级为二级。
2)根据“中国地震烈度区划表”的规定,厦门市的地震基本烈度为7度,按抗震设防烈度7度(0.15g)设防,地震分组第一组。
党校校园空间布局规划和空间设计探讨——以中共来宾市委党校为例c==系列专版口LUmn党校校园空间布局规划和空间设计探讨——以中共来宾市委党校为例口张雨,陆艺[摘要]党校教育有着自己特有的教学规律和特点,因此党校校园既有大学校园的基本特征,又在功能上具有特殊性.中共来宾市委党校规划以营造与自然景观相协调的校园环境为出发点,构建"一湖两区一轴"的空间格局及"8"字形环形路网,营造多层次,多功能的交流空间,塑造庄重又不失活泼的建筑形象,使之与空间环境融为一体.[关键词]党校;空间特色;规划设计;来宾市[文章编号]1006—0022(2009)11—0045—03[中图分类号]TU984.14[文献标识码]B DiscussionofSpatialLayoutPlanningandSpaceDesignofChineseCommunIslPa Schools:ACaseStudyofLaibinCCPSchool/ZhangY_u.LuYi嵋啪咖ChineseCommunistParty(CCP)Schoolsprovideaneducationwithuniquefeaturesandreq u irements. TheLaibinCCPSchoolcampusplanisintendedtocreateanaturalenvironment.Itintroduces a"onelake,twodistricts,andoneaxis"spatiallayoutwithafigureeightroadnetwork.Theplanoreafesmultipl ecommunication spacesandcallsforarchitecturaldesignsthatcomplementthesite.senvironmentaIfeatures. 珥l栅■■嘲CCPSchool,Spatialcharacter,Campusplanninganddesign,Laibindty党校教学是具有中国特色的一种针对党政干部教育培训l的特殊教学形式,产生于战争年代,发展壮大于中共执政时期.它在我国分布甚广,上至中央,下至各省市自治区及各市(县),都已建有党校.如何做好党校的规划设计,是一件很有意义的事.来宾市是广西壮族自治区撤销了原柳州地区和来宾县而新设立的地级市,下辖武宣,忻城,合山等6个县(市),区.按照(铼宾市城市总体规划(2005—2025),来宾市委党校所在地区为大学园区,市委党校是该区首批启动项目,它的建设对大学园区的建设意义重大. 1党校功能设计的特殊性党校教育不同于其他教育,有着自己特有的教学规律和特点,因此党校校园既有大学校园的基本特征,又在功能上具有特殊性:①党校学员包含来自各个层面的党员,具有身份的层级l生;②年龄偏高,课余活动倾向于娱乐性强,运动量小的校园文体活动;③教学周期,规模不确定畦,既有短期的干部培训l'又有时间相对较长的干部学历教育;④党校教育的核心是思想教育,学校自然环境,人文环境和教学环境都潜移默化地影响着学员的思想,因此环境设计在党校规划设计中占有重要的位置. 基于以上考虑,规划以教学区,生活区作为校园功能的主体,其他功能则根据党校教学特点进行适当调整,如体育运动设施的布置考虑学员年龄等因素,以多功能的文体馆取代体育场,室外活动场地靠近生活区布置,在满足需要的同时节约用地.针对党校教学周期和规模的特点,学员宿舍采用旅馆模式,设单间,标间,可满足不同层级学员的住宿需求.每一块建设场地都有其特殊表现在其2009年燕11瘫燕25卷45所处的区位条件,周边用地性质,交通条件及地形地貌等,通过对项目自然环境条件和地形地貌条件的分析,提取场地的特征要素作为规划的特色,尊重环境地形特征其生态结构,避免盲目建设造成环境破坏,工程量增加和资金浪费.本项目以营造与自然景观相协调的校园环境为出发点,做足水的文章,并最大限度地减少工程量,在有限的用地内构建有序承载各项功能需求的整体,个性化校园.来宾市委党校选址在来宾市华侨投资区中心区,有城市主干道(来华大道)直达校区,交通方便.用地的西,北两侧紧邻河道清水河(拟建水河郊野公园),环境十分优越.项目规划用地面积为7.70hm,整体地势南北高,中部低,中部有一较大面积的水塘(约2.0hm2),将用地自然地分为南,北两片.规划以现有水塘和丘陵为基础,在保留了位于场地中部的水塘的基础上,对岸线做了适当的填挖和整治,形成中心湖面.同时,为使清水河郊野公园景观和校园空间景观相互渗透,规划将紧临清水河~侧的建筑进行错落布置,不遮挡河景,使校园内处处皆能与清水河公园在空间上相连通,真正做到水与建筑,水与场地的有机共生.图1总平面图46瓶蝴PLannErS3规划构思及规划布局3.1规划构思校园特色的创造,始于对功能需求的把握,对自然环境的融合.根据党校功能的特殊性,在分析项目用地特点的基础上,按照"以人为本,以水为源,以绿为魂"的原则,从借水造景,有机空间,环形流线,生态建校等方面入手,对规划方案进行构思.3.2颊J布局规戈也开乡'结合自然水面构建"_湘区—轴"的校园功能,景观格局.规划利用基地中部水塘作为天然界线将党校两大功能区即教学区, 生活区分别布置在水塘的南面和北面, 功分区简洁,明,『央.其中,教学区包括办公综合楼,教学楼,多媒体教室,图书馆,报告厅等;生活区包括学员宿舍,教师休息楼,行政后勤管理人员休息楼,食堂及文体馆,健身设施.规划在考虑功能合理的同时,以轴线的形式组织两大功能区,利用景观中轴将湖面,教学区,生活区有机联系在一起,利用空间及视觉效果的变化,创造丰富的校园景观.轴线南端始于来华大道的学校主入口,向北进^校园最大的建筑群体,即综合楼,教学楼,多媒体教室及由这些建筑围合而成的中心广场,向北延伸,连接位于湖面JB-~I3的生活区.同时,两大功能区通过''8"字形主次车行环路相联系,清晰便捷(图1).4空间设计意向党校不同于进行—般国民教育的的各类学校,如何体现党校的办学特色,为这—特定的教学需求创造出富有特色的校园空间,是规划师首先要思考的问题.党校教育,主要是理论学习和相关主题的调研,以室内学习,研讨,潜心思考为主要方式.因此,党校挟见划设计首先要保证有一个不受干扰的宁静的学习环境.通过党校的学习,培训不断提高共产党人的党性修养,牢固树立为共产主义奋斗终身的远大理想. 由此,"环境育人"的理念为空间设计指明了方向:设计优美宁静的环宽营造充满远大理想的人文恃l不.4.1交流空间的营造校园文化是校园特色的一个重要影响因素,校园的空间结构及建筑形式是党校教育与校园文化的载体.党校教育始终把学员的政治思想素质教育放在首位,学员之间的思想交流互动是校园文化建设的重要组成部分.因此,规划在教学楼,报告厅,多媒体教室,综合楼及学员宿舍楼中布置了活动室,为学员提供交流互动的内部空间.而广场,环湖休闲步道则为学员提供了交流的外部空间.规划还对室内外的过渡空间即"灰空间"加以利用,在综合楼,教学楼,多媒体教室,报告厅之间设置弧形连廊和庭院,连廊除避免风吹日晒,带来行动上的方便外,还连接了室内外,提供了一个既可充分与自然沟通,又能感受到室内外空间转变的交往空间.内部空间,外部空间,"灰空间"共同构成校园多样化的交往空间体系,促进学员交流,从而推动校园文化的建设.4.2丰富活泼的空间环境规划塑造"~湖两区一轴"的空问格局,形成多层次,多功能的信息联系和情感交流场所,力图创造丰富, 活泼的外部空间.其中,"一轴"指贯穿校园南北的中轴,也是联系教学区和生活区的景观主轴,以及多层次系列空间场所的生长轴.这条主轴始于校园主入口广场,延伸至中心广场,滨湖广场,止于生活区休闲广场,空间序列丰富多彩,体现了校园可持续发展,奋发向上的意向."两区"指教学区和生活区."两区"虽隔水相望,但可通过景观轴在视觉上取得联系. 值得一提的是,结合主入口区设置的入口广场,以整齐阵列的行道树形成林荫大道,反映党校校园应有的庄重与秩序.办公楼,教学楼,图书馆所围合的圆形空间为中心广场,作为学生课余休息,交流的场所.中心广场以主题雕塑,硬质铺地为主,形成向,构图和视觉效果,表现和谐,内聚的寓意.中心广场向东,向北敞开, 将湖面景色与广场相融合,视野开阔.4.3道路景观空间的塑造校园道路采用"8"字形环形路网,联系校园两个主要功能区.教学区主环路宽9m,生活区副环宽6m.环形路主要承担车行交通,人行交通则于两个功能区内自成体系,并通过沿湖环形道路相沟通.整个路网格局简洁,系统分明.同时,规划还特别注意改变传统道路只具有单纯交通功能的做法,充分发挥道路对景观空间的组织作用,利用道路与建筑的相互关系,道路走向的线型变化,道路与道路的交叉等,创造出多种形式的空间,突出动态的视觉效果,按照道路性质,红线宽度分别结合绿化配置,形成可游,可赏的道路景观和尺度亲切,宜人的系列空间.4.4建筑与空间环境的融合~个好的校园空间环境的创造,自然离不开构成整个环境主体的建筑形象.党校校园中的单体建筑设计,不但要满足建筑的功能需求,符合节能原则,并且要赋予建筑特定的意义, 表达出党校建筑所应具有的庄重与活泼,秩序与诗意,理想与现实的人文精神,促成建筑与环境对话,真正使建筑与环境空间融为—体.办公综合楼是学校主要建筑之~,位于入口广场中轴线上.办公综合楼的平面形状为弧形,视觉上给人以向心,内聚的感觉.立面造型吉,现代.教学楼,报告厅,多媒体教室,图书馆是围合中心广场的主要建筑群.为了与圆形广场空间相适应,采用了分台,延层,递进形式及庭园式平面布局.教学区建筑群在立面设计上具有基本统一的风格,现代而简约,庄重而不失亲和,既体现了建筑的时代性, 又体现了党校建筑的个5结语党校校园特色的创造,应结合功能需求和特定的用地条件综合考虑,从而形成自身的特色.具体做法如下:(1)功能性始终是设计的出发点,党校有其不同干一般大学的使用和管理方式,以及特殊的内部形式结构,只有满足功能需求而形成的规划布局与建筑空间,才能创造出功能合理高效的校园.(2)充分利用原有地形地貌和自然环境要素,与功能布局,景观设计相结合,体现地方风貌与规划特色. (3)党校的校园规划不应是完全对称式的工整严肃,而应在功能合理和空间变化的趣味中谋求最佳的结合点,突破常规的设计手法,创造富有个的校园空间.n[参考文献][1]王伯伟.校园环境形态与感染力[J].时代建筑,2002,(2):14—17.[2]刘云胜,李霞.山水大学校园规划实践与思考[J].规划师,2002,(9):40—43. [3]宋桂杰.扬州大学校园整体设计[j].规划师,2006,(3):52—544]丘建发,邓剑虹.山水校园,人¨生场所]. 规戈jJ师,2006,(4):33—35[5]滕美芳,杨易栋.钱锡栋.党校校园设计特色探讨].华中建筑,2009,(6):25一夕q.[作者简介]张雨,高级建筑师,广西城乡规划设计院建筑三所所长.陆艺,广西城乡规划设计院助理规划师. [收稿日期]2009-09—212009缉舞霞蹙25卷耵。
省委党校新校区景观方案设计说明摘要:中标项目关键字:党校;新校区;校园;设计说明临浙江以北脊,壮沧海之宏流。
融风景在校园,融心景在山水。
景观是一本书,是一本关于人类社会和自然交流的书;景观是一个故事,讲述着人类的历史与经验;景观是一首诗,用精美而简洁的语言表达人类最深层的情感;景观是一幅画,展示自然与人类社会精彩的瞬间。
因此,景观需要人们去关爱、去呵护,去体味。
当然,景观也需要人们去设计、改造和管理,以实现人与自然的和谐。
我们的校园环境就应该是这样的,充满了精神的力量、充满了自然的气息,……一、基地概况“一校两院”新校园位于杭州市仓前镇高教功能区块南侧,南临文一路,东至嘉泰学院(二期),西至良睦路,北至新桥港。
“一校两院” 新校区本次设计范围占地约270亩。
自然景色以田园湿地为主。
校园基地内地势平坦。
学校属亚热带季风性气候,年平均气温16.2摄氏度;杭州市土壤资源以红壤和水稻土为主,适宜多种林木生长。
二、规划的指导思想及原则1.指导思想(1)党校是一个培养高素质领导干部队伍的课堂,也是培养情操、追求真理、交流思想的场所,环境设计应注重立意、着力体现校园精神。
在学院总体规划发展目标指导下,依托校园自然及人文环境,以植物造景为主,在丰富校园景观的同时,为广大师生提供良好的工作、学习和生活休闲环境。
(2)简洁明快,突出时代性。
党校环境以清新自然、幽静典雅、尺度宜人为佳。
校园内的休闲绿地设计在满足基本功能的前提下,易简不易繁,易朴素大方、色彩明快、构思巧妙,从造价上来说也比较经济,可行性强。
(3)尊重规划、因地制宜,文化导入、突出特色。
2.规划原则(1)体现“以人为本”的设计思想;(2)统一规划,合理安排原则;(3)适地适树,因地制宜原则。
三、规划布局特征1.营造一个景观化校园环境在校园的规划设计中,以环境品质的提升为目标,以人本主义为立足,实现校园环境、功能、经济、技术的优化,创造一个可持续发展的校园环境。
附件2党校建设功能要求及建筑面积一、教学楼:5层约2290㎡(不含交通空间面积)1、阶梯教室: 1间400㎡(容纳200人)备注:阶梯教室兼作中央党校远程教学中心2、大教室: 1间300㎡(容纳150人)3、60人教室 6间×100㎡=600㎡4、80人教室 2间×150㎡=300㎡5、100人教室 1间×160㎡=160㎡6、情景模拟室 1间×180㎡=180㎡7、教师休息室 5间×20㎡=100㎡备注:每层一间8、洗手间 5层×2间×20㎡=200㎡备注:洗手间每间面积约20㎡,具体由设计师根据相关规范确定。
每层2个,分男女。
9、饮水间 5层×10㎡=50㎡备注:饮水间每间面积约10㎡,具体由设计师根据相关规范确定。
每层1个。
10、其它(含2.5 M宽走廊、楼梯、消防设施等)要求:各教室均符合多媒体教学、远程教学等现代教学需要;教室设计时应充分考虑扩音音响设备的安装;阶梯教室场所人均面积较为宽松,成斜面台阶式;大教室要适当考虑计划外班次的特殊需求,桌椅可变更和自由组合;教师休息室应当考虑兼作一般性接待使用;教室考虑自然通风和采光;走廊、楼梯等通道要有利于人员快速疏散。
二、办公楼:5层约2550㎡(不含交通空间面积)1、主要领导办公室 2间×70㎡=140㎡备注:含接待室、休息室、洗手间2、其他领导办公室 8间×50㎡=400㎡备注:含休息室、洗手间3、科室负责人办公室 20间×20㎡=400㎡备注:科室负责人办公室为每人一间4、普通办公室 20间×30㎡=600㎡备注:普通办公室为2-4人左右5、校委会议室 1个80㎡6、大会议室 1个150㎡(容纳100人)7、小会议室 1个80㎡8、接待室 1个80㎡9、档案室 3个×50㎡=150㎡10、打字室或文印中心 1个×30㎡=30㎡11、洗手间 5层×2间×20㎡=200㎡备注:洗手间每间面积约20㎡,具体由设计师根据相关规范确定。
党校规划与建筑设计的特殊性探讨——台州市委党校迁建工程为例摘要:党校是我国共产党对党员干部培训的重要部门,其自身呈现出明显的特殊性,其规划与建筑设计与传统的学校类建筑存在明显的区别,体现在多个方面。
基于此本文从党校规划与建筑设计的角度入手,深入开展分析,探索其呈现出的特殊性,从设计理念、功能布局、空间营造、文化传承等多个方面探索,以供参考。
关键词:党校规划;建筑设计;特殊性引言:党校的建设是服务于党员这个特殊群体,教学对象的年龄、学员构成、授课模式和生活方式均有所不同。
其教学对象具有特殊性,教学方式具有灵活性,教学内容具有多样性特点。
因此本文基于上述特点从设计理念、功能布局、空间营造、文化传承等多个方面入手,探讨党校规划与建筑设计的特殊性。
一、项目概况台州市委党校迁建工程位于浙江省台州市椒江区葭芷街道井马水库区块,地块位于规划现代大道北面。
用地规划面积约111471平方米。
地块东北侧有34266.67平方米的景观休闲用地。
场地总体南低北高,北侧最高点约57米,南侧最低点约20米,南北落差约37米,南侧用地较为平缓,且较为规整,北侧用地为逐级而上的坡地。
二、特殊构思的设计理念设计采用将台州市委党校迁建工程和台州湾文旅综合体工程两部分按整体化考虑这一特殊规划设计思路,统筹党校与文旅的功能、流线、交通、景观等各项要求,形成主次轴线+建筑群组团的空间格局,整合成行政教学礼仪区、酒店住宿餐饮区和文体休闲运动区,整体布局大开大合、疏密有致,功能分区明确又联系紧密,使两个地块成为一个有机的整体,形成一个党校的完整形象。
(图1)图 1 总平面图(一)顺应自然整个项目北靠大岳山,南临井马水库,拥有良好自然环境。
设计摈弃鱼骨式规划布局以及长板式单体建筑形式,采用散点式规划布局及合院式单体建筑形式,以适应狭长的地形条件和优美的山形走势,使建筑与原有山体、大树、水系环境形成显山露水的空间关系。
基于建筑场地山水资源的优越性,前为水库,后为山体。
某党校综合大楼施工组织设计一、工程概况工程名称:某党校综合楼;建设地点:某党校院内;建设单位:某兴达房地产开发公司;设计单位:包头市某建筑设计有限公司;结构类型、层数:一层为框架、二—五层为砖混结构;工程用途:一层为底商、二—五层为住宅;建筑面积:3479.88m2建筑物长度:A段为61.6 m;B段为56.1 m建筑物跨度:13.1m建筑物檐高:18.9m室内外高差:0.45m二、工程作法1、基础工程:C25钢筋砼独立基础、C25钢筋砼地梁,M10水泥砂浆砌筑MU10实心小砖砖基。
2、主体工程:一、二、三层墙体均采用M10混合砂浆砌筑MU10机砖;四层墙体采用M7.5混合砂浆砌筑MU10机砖;女儿墙采用M5混合砂浆砌筑MU10机砖;一层现浇梁、板、柱采用C30砼,二、三、四层现浇梁、板、柱均采用C20砼。
3、装修工程:顶棚均为水泥砂浆抹面;内墙为混合砂浆抹面,卫生间为水泥砂浆打底不设面层;外墙面为水泥砂浆压光滚彩色涂料;卫生间地面只打垫层、作防水、不设面层,其余房间地面只打垫层不设面层,底店地面为普通玻化砖、楼梯为花岗岩面层;栏杆、扶手为铁艺;窗户为单框双玻推拉塑钢窗。
4、屋面工程:平屋面为70厚聚苯板保温,1:6水泥焦渣找坡,SBS改性沥青防水;坡屋面为70厚聚苯板保温,复合高分子卷材防水,挂欧文斯彩瓦。
5、电照工程:所有的照明及动力线路均套PVC阻燃管,照明支线路采用BV42铜线,插座采用BV62铜线。
5、给排水及采暖工程:采暖系统采用上给下回式,暖气片为M132式,每组暖气均加设一个手动放风门;给水材料采用PPR;排水采用UPVC管。
三、编制依据1、某党校综合楼工程施工项目招标文件;2、某党校综合楼的土建、安装工程全套施工图;3、《建筑工程施工质量验收统一标准》(GB50300-2001)《建筑地基基础工程施工质量验收规范》(GB50202-2002)《砌体工程施工质量验收规范》(GB50203-2002)《混凝土结构工程施工质量验收规范》(GB50204-2002)《屋面工程质量验收规范》(GB50207-2002)《建筑地面工程施工质量验收规范》(GB50209-2002)《建筑装饰装修工程质量验收规范》(GB50210-2001)《建筑给水排水及采暖工程质量验收规范》(GB50242-2002)《建筑电气工程施工质量验收规范》(GB50303-2002)《建筑施工安全技术规范》4、现场勘察资料及本企业施工能力。