宇通客车详细电路图分析
- 格式:pdf
- 大小:1.41 MB
- 文档页数:16
宇通客车后仓门感应开关6根线接法1. 介绍宇通客车是中国一家知名的客车制造商,其产品质量和技术水平在国内外享有良好声誉。
宇通客车后仓门感应开关是一种用于控制后仓门开闭的装置,通过感应周围环境中的物体来实现自动开关功能。
该感应开关具有6根线,本文将详细介绍它的接法方法。
2. 接法原理宇通客车后仓门感应开关采用光电传感器技术,通过发射红外光束并接收反射光束来检测物体是否接近。
当有物体靠近感应范围时,光束被遮挡,传感器会输出信号,从而触发后仓门的开启或关闭动作。
3. 接法步骤以下为宇通客车后仓门感应开关6根线的接法步骤:步骤1:确定线缆功能首先,我们需要确认每根线缆的功能。
根据宇通客车后仓门感应开关的设计,其中包含以下6根线缆:•线缆A:电源正极(+)•线缆B:电源负极(-)•线缆C:输出信号•线缆D:空•线缆E:空•线缆F:空步骤2:连接电源线将线缆A(电源正极)连接到车辆电源的正极,线缆B(电源负极)连接到车辆电源的负极。
确保连接牢固且绝缘良好,以防短路或其他安全问题。
步骤3:接通输出信号线将线缆C(输出信号)连接到后仓门控制模块的输入接口。
这样,当感应器检测到物体靠近时,会通过输出信号告知后仓门控制模块执行相应动作。
步骤4:处理未使用的线缆如果有未使用的线缆D、E和F,则需要根据实际情况进行处理。
可以将它们与其他线路绝缘并固定在一个安全位置,以避免干扰或损坏。
4. 注意事项在进行宇通客车后仓门感应开关6根线接法时,需要注意以下事项:1.严格按照设备规格和说明书进行接法。
2.确保所有电气连接牢固可靠,避免松动或接触不良。
3.使用绝缘良好的电缆和连接器,以防止短路和其他安全问题。
4.保持工作区域整洁,避免灰尘、水分或其他污染物对感应器的影响。
5. 维护与故障排除为确保宇通客车后仓门感应开关的正常运行,建议定期进行维护和故障排除。
以下是一些建议:•定期清洁感应器表面,以确保红外光束的正常发射和接收。
•检查线缆连接是否牢固,并修复任何松动或损坏的连接。
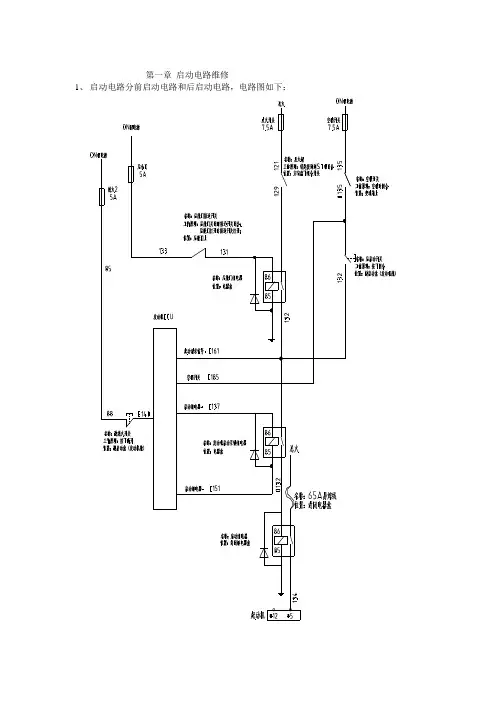
第一章启动电路维修1、启动电路分前启动电路和后启动电路,电路图如下:前后启动电路启动时必须具备以下条件:首先接ECU的电源E140必须有电,熄火也是通过断这个电源实现的;其次空档开关必须出于闭合状态,即E185号线必须有电;当具备以上两个条件时,钥匙拨到ST档位时,E161有电(只有钥匙拨到ST档时才有电),给ECU一个启动信号,ECU的启动控制管脚E137/E151就会有电源输出,控制启动互锁继电器闭合,启动电路接通,启动电源134号线有电源输出给启动机,整车启动。
2起动机故障分析2.1起动机故障诊断步骤若车辆出现起动故障,我们建议按下述步骤,对车辆进行故障诊断并排除:第一步:当接通起动电路时,起动机既无转动,也无因电磁开关吸合,单向器被拨动产生的“哒哒”声。
此时首先检查蓄电池是否亏电;整个电路中各接线端子是否氧化、松动。
如果蓄电池端电压低于24V,表明蓄电池亏电,需充电或更换。
第二步:如果蓄电池良好,各端子紧固良好,起动机还是没有任何反应,则可以更换起动机;如果更换后故障排除,则检查起动机,如果故障依然则检查整车电路是否存在的断路或短路。
第三步:如果蓄电池良好,各端子紧固良好且能听到起动机驱动齿轮与发动机飞轮的撞击声,则表明发生顶齿。
可以采用短接起动机主电路;或转动发动机飞轮的办法使飞轮齿与起动机驱动齿发生错位,以便起动。
第四步:如果短接起动机主电路起动机不转,则表明起动电机部分出现故障,应更换起动机。
第五步:如果起动机有转动声音,但是发动机没有转动,此时应拆下起动机,检查驱动齿轮和发动机齿圈,并测量从起动机安装法兰到飞轮的距离。
如果起动机驱动齿轮及发动机飞轮磨损长度超过5mm,则必须更换驱动齿轮同时更换齿圈;如果测量结果不符合使用说明书要求,应及时通知我公司。
第六步:拆下起动机后,用手双向转动单向器驱动齿轮,正常状态下顺时针旋转时单向器应整体向外滑出,逆时针转动时驱动齿轮出现打滑,如果出现双向打滑必须更换单向器。
第一章启动电路维修1、启动电路分前启动电路和后启动电路,电路图如下:前后启动电路启动时必须具备以下条件:首先接ECU的电源E140必须有电,熄火也是通过断这个电源实现的;其次空档开关必须出于闭合状态,即E185号线必须有电;当具备以上两个条件时,钥匙拨到ST档位时,E161有电(只有钥匙拨到ST档时才有电),给ECU一个启动信号,ECU的启动控制管脚E137/E151就会有电源输出,控制启动互锁继电器闭合,启动电路接通,启动电源134号线有电源输出给启动机,整车启动。
2起动机故障分析2.1起动机故障诊断步骤若车辆出现起动故障,我们建议按下述步骤,对车辆进行故障诊断并排除:第一步:当接通起动电路时,起动机既无转动,也无因电磁开关吸合,单向器被拨动产生的“哒哒”声。
此时首先检查蓄电池是否亏电;整个电路中各接线端子是否氧化、松动。
如果蓄电池端电压低于24V,表明蓄电池亏电,需充电或更换。
第二步:如果蓄电池良好,各端子紧固良好,起动机还是没有任何反应,则可以更换起动机;如果更换后故障排除,则检查起动机,如果故障依然则检查整车电路是否存在的断路或短路。
第三步:如果蓄电池良好,各端子紧固良好且能听到起动机驱动齿轮与发动机飞轮的撞击声,则表明发生顶齿。
可以采用短接起动机主电路;或转动发动机飞轮的办法使飞轮齿与起动机驱动齿发生错位,以便起动。
第四步:如果短接起动机主电路起动机不转,则表明起动电机部分出现故障,应更换起动机。
第五步:如果起动机有转动声音,但是发动机没有转动,此时应拆下起动机,检查驱动齿轮和发动机齿圈,并测量从起动机安装法兰到飞轮的距离。
如果起动机驱动齿轮及发动机飞轮磨损长度超过5mm,则必须更换驱动齿轮同时更换齿圈;如果测量结果不符合使用说明书要求,应及时通知我公司。
第六步:拆下起动机后,用手双向转动单向器驱动齿轮,正常状态下顺时针旋转时单向器应整体向外滑出,逆时针转动时驱动齿轮出现打滑,如果出现双向打滑必须更换单向器。
宇通客车的起动线路相比其它客车较为复杂,但只要了解其原理,其实并不很难维修。
以下介绍宇通客车的线路走向。
1电控发动机的前起动控制线路图1为电控发动机前起动控制线路。
接通手动电源总开关后,一路电源(常火)经50A熔断丝(此熔断丝在蓄电池舱内)给电源开关按钮、乘客门遥控器、紧急双闪开关、24V变12V变压器等供电。
按下电源开关按钮后,电源总开关吸合,后舱门开关处于接通状态,舱门指示灯熄灭,后舱门继电器触点吸合。
点火开关拧到起动档位时,电源从点火开关出来,分两路:一路经后舱门继电器触点到起动互锁继电器触点,控制起动继电器;另一路到发动机ECU。
发动机ECU接收到起动信号后,控制起动互锁继电器吸合(着火后,发动机ECU会断开互锁继电器,起到起动保护作用),起动继电器吸合后,起动机工作。
后舱门有一个安全开关,如果前起动无反应,应注意后舱门开关是否处于接通状态,后舱门继电器是否吸合,如果不是,应检查后舱门开关是否损坏。
后舱门开关如果没有接通,那么电源到后舱门继电器处就断掉了。
客车总体比较长,如果车内有人误操作,后面的工作人员在发动机舱内工作时,也不会发生危险。
还有就是要检查发动机ECU是不是收到起动信号。
如果ECU没收到起动信号,那么互锁继电器不工作,起动继电器当然也是没有反应的。
这里要注意的是,如果继电器损坏,要更换正品继电器,否则线圈阻值不符合要求,ECU可能会报故障码,无法正常工作。
装配博世EDC7ECU的发动机,继电器线圈分别接发动机ECU的1号插座的137脚和151脚。
对于欧II排放的车型,起动机受起动保护控制器控制,它装在蓄电池舱内的电源盒里,见图2。
起动保护控制器有5个接脚,红线是电源正极,黑线是搭铁,绿线、黄线、棕线中的一根线是起动信号,另2根线分别是控制起动继电器和起动机电磁开关的。
结合图1,起动电源从点火开关出来之后,经后舱门继电器到达起动保护控制器。
起动保护控制器收到起动信号后,同时输出2个高电平,控制起动继电器的吸合和起动机电磁开关的吸合。