NGW-L-F冷却塔行星减速机
- 格式:doc
- 大小:174.00 KB
- 文档页数:3
一、概述NGW—L—F系列冷却塔专用减速器,是专门为配套200~1000t/h冷却塔而设计的新产品,其主要结构为立式单级行星传动。
齿轮采用合金结构钢经热处理后,用高精度齿轮磨床加工而成,具有强度高、韧性好、精度高等优点,同时采用浸油式润滑,从而达到了噪音低、振动小、效率高、寿命长的目的。
经过不断改进设计,使该产品具有体积小、重量轻、安装维修方便等特点,且已成为冷却塔节能降噪的最理想产品,被广泛用于化工、轻工、医药、冶金、高级宾馆、民用建筑等行业。
经实际使用和各项指标测定,性能可靠,质量稳定。
一九九一年被评为省优产品。
二、使用条件(电动机安电动机的使用说明书,下同)输入转速:≤1500r/min 环境温度:-40~50c(如)45c,达60c时,电机温升修正,既80k-15k=65k)三、安装1.产品在安装时,壳体或支架应有足够的强度和刚性,四脚应热平且保持水平后坚固。
2 2.风机的轮毂与减速器的输出轴伸应配合良好,拼紧螺母。
3.风机安装后应调整至最佳状态,保持运行平稳。
4.拨动风叶应转动灵活。
四、运行1.按电机使用说明书具备电动机运行条件。
2.当电动机功率超过7.5KW时应采用补偿器启动.3.旋转:1)旋转方向应符合冷却塔要求;2)应运转平衡;3)三项电压电流应平衡;4)负载电流应不超过额定电流。
若与上述要求不符时,应停机检查,问题解决后方可运行。
4.试转后重新检查和拧紧各个紧固件。
五、维护及润滑1.产品在使用前必须加足润滑油至油尺的上下限线之间(F31约5kg、F61约11kg、F81约19kg),牌号为N320工业齿轮油。
运行时应经常检查,发现油量不足应及时补加,一般每运行二个月补加一次,六个月更换一次,并应清洗。
2.在运行过程中如发现下列问题,应及时停机解决:(1)沿轴向漏油,更换密封件,(2)轴承噪声增大或损坏,更换轴承(3 )减速器噪声增大,齿轮严重磨损和损坏,更换齿轮。
减速器轴承牌号机架型号:JB型HG5-251-79标机架化工反应缸机架JA2型机架。
目录一.绪论 (3)1.引言 (3)2.本文的主要内容 (3)二.拟定传动方案及相关参数 (4)1.机构简图的确定 (4)2.齿形与精度 (4)3.齿轮材料及其性能 (5)三.设计计算 (5)1.配齿数 (5)2.初步计算齿轮主要参数 (6)(1)按齿面接触强度计算太阳轮分度圆直径 (6)(2)按弯曲强度初算模数 (7)3.几何尺寸计算 (8)4.重合度计算 (9)5.啮合效率计算 (10)四.行星轮的的强度计算及强度校核 (11)1.强度计算 (11)2.疲劳强度校核 (15)1.外啮合 (15)2.内啮合 (19)3.安全系数校核 (20)五.零件图及装配图 (24)六.参考文献 (25)一.绪论1.引言渐开线行星齿轮减速器是一种至少有一个齿轮绕着位置固定的几何轴线作圆周运动的齿轮传动,这种传动通常用内啮合且多采用几个行星轮同时传递载荷,以使功率分流。
渐开线行星齿轮传动具有以下优点:传动比范围大、结构紧凑、体积和质量小、效率普遍较高、噪音低以及运转平稳等,因此被广泛应用于起重、冶金、工程机械、运输、航空、机床、电工机械以及国防工业等部门作为减速、变速或增速齿轮传动装置。
渐开线行星齿轮减速器所用的行星齿轮传动类型很多,按传动机构中齿轮的啮合方式分为:NGW、NW、NN、NGWN、ZU飞VGW、W.W等,其中的字母表示:N—内啮合,W—外啮合,G—内外啮合公用行星齿轮,ZU—锥齿轮。
NGW型行星齿轮传动机构的主要特点有:重量轻、体积小。
在相同条件下比硬齿面渐开线圆柱齿轮减速机重量减速轻1/2以上,体积缩小1/2—1/3;传动效率高;传动功率范围大,可由小于1千瓦到上万千瓦,且功率越大优点越突出,经济效益越高;装配型式多样,适用性广,运转平稳,噪音小;外齿轮为6级精度,内齿轮为7级精度,使用寿命一般均在十年以上。
因此NGW型渐开线行星齿轮传动已成为传动中应用最多、传递功率最大的一种行星齿轮传动。
2.本文的主要内容NGW型行星齿轮传动机构的传动原理:当高速轴由电动机驱动时,带动太阳轮回转,再带动行星轮转动,由于内齿圈固定不动,便驱动行星架作输出运动,行星轮在行星架上既作自转又作公转,以此同样的结构组成二级、三级或多级传动。
2
.基本参数
(1)公称中心距a及公称传动比i0。
见表Ⅱ-47、表Ⅱ-48、表Ⅱ-49
表Ⅱ-49三级减速器
(2)齿轮模数m,见表Ⅱ-50。
表Ⅱ-50齿轮模数1)
(3)齿形参数:
1)齿形角α0=20°;
2)齿顶高系数h a*=1.0;
3)顶隙c=0.25mm。
4)齿宽系数b a*=0.445~0.5, b a*=b/a0,b——齿轮宽度。
5)行星齿轮个数n p=3。
(4)减速器齿轮的啮合参数见表Ⅱ-51。
表Ⅱ-51减速器齿轮的啮合参数1)
1)a0
i0——公称传动比;
m——模数,mm;
a——实际中心距,mm;
XΣⅠ——外啮合变位系数和;
αtⅠ——外啮合啮合角;
XΣⅡ——内啮合变位系数和;
αtⅡ——内啮合啮合角。
(5)减速器的实际传动比与传动比的分配,见表Ⅱ–52。
表Ⅱ—52减速器的实际传动比及传动比分配(a)单级传动比
表Ⅱ-53单级减速器高速轴许用输入功率
表Ⅱ-54两级减速器高速轴许用输入功率
表Ⅱ-55三级减速器高速轴许用输入功率。
目录行星齿轮减速器的PRO/E的建模与仿真 (1)摘要 (1)Abstract (2)第一章绪论 (2)1.1选题的依据、发展情况及其意义 (2)1.2 PRO/E行星齿轮的选题分析及设计内容 (4)1.3 主要的工作内容 (4)第二章NGW型行星轮减速器方案确定 (5)1.1 混合轮系的确定 (5)1.2周转轮系部分的选择 (5)1.3 NGW型行星轮减速器方案确定 (5)第三章NGW型行星减速器结构设计 (8)3.1基本参数要求与选择 (8)3.2方案设计 (8)3.3齿轮的计算与校核 (9)表3-3 行星轮系的几何尺寸 (21)3.4 轴上部件的设计计算与校核 (22)第四章PRO/E的建模与运动仿真 (31)4.1 PRO/E简介 (31)4.2行星轮减速器的PRO/E建模 (33)4.3行星轮减速器的装配 (35)4.4. 减速器的传动运动仿真与分析 (39)第五章结论 (47)参考文献 (48)行星齿轮减速器的PRO/E的建模与仿真摘要行星齿轮减速器作为重要的传动装置,在机械、建筑领域应用非常广泛。
它具有体积小、重量轻、结构紧凑、传动比大、效率高、运动平稳等特点。
本设计基于这些特点对行星齿轮进行结构设计,并对其进行PRO/E三维建模与运动仿真。
首先通过比较各种类型的行星齿轮的特点,确定其方案;其次根据相应的输入功率、输出速度、传动比进行传动设计与整体的结构设计;最后完成其PRO/E的三维建模,并对模型进行整体装配,并完成传动部分的运动仿真,并对其运动进行分析。
关键词:行星齿轮减速器、运动仿真、装配、三维建模T he Dynamic Simulation of Planetary Gear ReducerBased on Pro/EAbstractPlanetary gear reducer as an important transmission device is used extensively in machinery, construction area,which has the characteristics of small volume, light weight, compact structure, high efficiency, high speed ratio and smooth movement. The design is based on these features of planetary gear for structure design, and carries on the PRO/E 3d modeling and Dynamic Simulation. First, adopt the scheme through comparing various types of planetary gears’ characteristics, Secondly, according to the corresp onding input power、output speed and speed give the design of transmission and whole structure. Finally complete its the 3d modeling based on PRO/E, the whole assembly model and transmission part of Dynamic Simulation, and analyze its movement.Keywords: Planetary Gear Reducer、Dynamic Simulation、3D-modeling 、Assemble绪论1.1选题的依据、发展情况及其意义在机械制造业,现在有很多企业把产品的设计、分析、制造、产品的数据管理和信息技术集于一体.这种先进的管理方式属于企业信息化的范畴。
目录一.绪论 (3)1.引言 (3)2.本文的主要内容 (3)二.拟定传动方案及相关参数 (4)1.机构简图的确定 (4)2.齿形与精度 (4)3.齿轮材料及其性能 (5)三.设计计算 (5)1.配齿数 (5)2.初步计算齿轮主要参数 (6)(1)按齿面接触强度计算太阳轮分度圆直径 (6)(2)按弯曲强度初算模数 (7)3.几何尺寸计算 (8)4.重合度计算 (9)5.啮合效率计算 (10)四.行星轮的的强度计算及强度校核 (11)1.强度计算 (11)2.疲劳强度校核 (15)1.外啮合 (15)2.内啮合 (19)3.安全系数校核 (20)五.零件图及装配图 (24)六.参考文献 (25)一.绪论1.引言渐开线行星齿轮减速器是一种至少有一个齿轮绕着位置固定的几何轴线作圆周运动的齿轮传动,这种传动通常用内啮合且多采用几个行星轮同时传递载荷,以使功率分流。
渐开线行星齿轮传动具有以下优点:传动比范围大、结构紧凑、体积和质量小、效率普遍较高、噪音低以及运转平稳等,因此被广泛应用于起重、冶金、工程机械、运输、航空、机床、电工机械以及国防工业等部门作为减速、变速或增速齿轮传动装置。
渐开线行星齿轮减速器所用的行星齿轮传动类型很多,按传动机构中齿轮的啮合方式分为:NGW、NW、NN、NGWN、ZU飞VGW、W.W等,其中的字母表示:N—内啮合,W—外啮合,G—内外啮合公用行星齿轮,ZU—锥齿轮。
NGW型行星齿轮传动机构的主要特点有:重量轻、体积小。
在相同条件下比硬齿面渐开线圆柱齿轮减速机重量减速轻1/2以上,体积缩小1/2—1/3;传动效率高;传动功率范围大,可由小于1千瓦到上万千瓦,且功率越大优点越突出,经济效益越高;装配型式多样,适用性广,运转平稳,噪音小;外齿轮为6级精度,内齿轮为7级精度,使用寿命一般均在十年以上。
因此NGW型渐开线行星齿轮传动已成为传动中应用最多、传递功率最大的一种行星齿轮传动。
2.本文的主要内容NGW型行星齿轮传动机构的传动原理:当高速轴由电动机驱动时,带动太阳轮回转,再带动行星轮转动,由于内齿圈固定不动,便驱动行星架作输出运动,行星轮在行星架上既作自转又作公转,以此同样的结构组成二级、三级或多级传动。
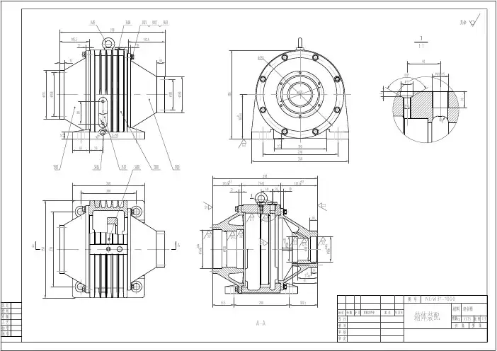
42CrMo 技术要求1、装配前应用煤油将各零部件清洗干净,机体内不得有杂质。
2、装配验收按YZB100.9-88规定。
3、齿轮接触斑点:沿齿长不少于80%,沿齿高不少于60%。
4、啮合侧隙jmin=0.14。
5、在工作转数下空负荷试车正反各一小时,运行应平稳不得有冲击、振动现象,各密封处不得漏油。
6、装配时在油标上划最高、最低油位两条红线。
7、各机盖、端盖在装配时涂以密封胶。
8、外表面涂苹果绿.Ø60r 6300130228170337.5443.5811163630050653.5137750Ø65k 6Ø220H 7r 6Ø300k 6Ø100k 6Ø60k 62222Ø260k 6Ø400H 7Ø120H 7Ø900H 7Ø560H 7Ø845H 7Ø800H 7400-0.0622000-0.2R321H7/m65200-0.52058084010804-Ø4660540.01035.5R51028620油位刻度线R432.5H7/m6序号名称代号数量材料单件总计重量备注43444546474849505152535455565758键40×280145输出轴1输出轴透盖1HT200GB/T1096-2003键40×180145轴承60521Ø260ר400×65GB/T 276-1994GB/T 1096-2003后机盖1HT200键50×160145GB/T1096-2003低速级行星架1ZG40CrMn 低速级内齿轮1后机体1HT200轴承160601Ø300ר460×50GB/T 276-1994前机体1HT200键16×80145GB/T1096-2003高速级内齿轮11ZG40CrMn 高速级行星架1HT200前机盖轴承6213245Ø65ר120×23GB/T 276-19941HT200输入轴透盖序号代号名称数量材料重量单件总计备注123456789101112131415161718192021222324252627282930313233343536373839404142毡圈1201JB12Q 4606-1986键16×100145GB/T1096-2003142CrMo 输入轴挡圈65165Mn GB/T 894.1-1986轴套65×74×1001铜合金GB/T 2509-1981高速级行星轮轴142CrMo 套筒6铜合金轴承NF2126454545Ø60ר110×22GB/T 283-1994套筒铜合金3高速级行星轮3GB/T 119.1-2000圆柱销Ø8×503奥氏体不锈钢通气器M27×1.5145齿轮联轴器1球顶445太阳轮142CrMo 42CrMo 42CrMo 42CrMo 42CrMo 套筒3铜合金吊环145645轴承NF220Ø100ר180×34GB/T 283-1994低速级行星轮342CrMo 套筒铜合金6GB/T 119.1-2000奥氏体不锈钢3圆柱销Ø12×60142CrMo 低速级行星轮轴顶块445螺栓M24×100123565Mn 1212Q235平垫圈24弹簧垫圈24GB/T 97.1-2002GB/T 93-1987GB/T 5780-2000GB/T 5780-200035GB/T 93-1987GB/T 97.1-2002Q23565Mn 888平垫圈20弹簧垫圈20螺栓M20×80油塞1Q235-A M42×2GB/T 5780-2000GB/T 93-1987GB/T 97.1-2002Q23565Mn 35GB/T 5780-2000GB/T 93-1987GB/T 97.1-2002Q23565Mn 35平垫圈20弹簧垫圈20螺栓M20×80GB/T 5780-2000GB/T 93-1987GB/T 97.1-2002Q23565Mn 35平垫圈20弹簧垫圈20681266881212螺栓M16×65弹簧垫圈16平垫圈16螺栓M20×120DDCCD-DAABBA-AB-B160-0.043530-0.2C-C润滑方式啮合特性参数太阳轮行星轮内齿轮太阳轮行星轮级别高速级低速级a i zmα精度等级啮合轴承油池飞溅8-7-7FH 8-7-7FH 油池飞溅3720°16212.517891992228164620°110内齿轮标记设计处数分区更改文件号签名年、月、日阶段标记重量比例共张第张标准化批准审核工艺斗轮减速器总装图1:51156575853545550515249464748434445424140393837363534333231302928272625242322212019181716151413121110987654321405808401080712572AA4ר46(锪平Ø70)C-C5200-0.51035201080882.5+0.12R 475R 510R 470M 148612015°15°3.23.250+0.0453.232C12-M24R25R20R20C60305.560112.5100367.5622-M19R35134.51506.37210405072×4=288R3120020026820443.5Ø845+0.046601429160151403×45°3×45°Ø865+0.052Ø880Ø901+0.0523.23.23.23.23.2H3.20.06H3.20.06HBBA-AR10R20R20R20R20R16R16Ø0.06H其余ⅡⅠ301072R5221022Ⅱ2:1M3012Ø50R82:1ⅠDDB-B50500305.5143.520020035540R20R20R20R203.26.3D-D1、铸件不得有夹砂,裂纹和缩孔等影响强度的铸造缺陷。
目录一.绪论 (3)1.引言 (3)2.本文的主要内容 (3)二.拟定传动方案及相关参数 (4)1.机构简图的确定 (4)2.齿形与精度 (4)3.齿轮材料及其性能 (5)三.设计计算 (5)1.配齿数 (5)2.初步计算齿轮主要参数 (6)(1)按齿面接触强度计算太阳轮分度圆直径 (6)(2)按弯曲强度初算模数 (7)3.几何尺寸计算 (8)4.重合度计算 (9)5.啮合效率计算 (10)四.行星轮的的强度计算及强度校核 (11)1.强度计算 (11)2.疲劳强度校核 (15)1.外啮合 (15)2.内啮合 (19)3.安全系数校核 (20)五.零件图及装配图 (24)六.参考文献 (25)一.绪论1.引言渐开线行星齿轮减速器是一种至少有一个齿轮绕着位置固定的几何轴线作圆周运动的齿轮传动,这种传动通常用内啮合且多采用几个行星轮同时传递载荷,以使功率分流。
渐开线行星齿轮传动具有以下优点:传动比范围大、结构紧凑、体积和质量小、效率普遍较高、噪音低以及运转平稳等,因此被广泛应用于起重、冶金、工程机械、运输、航空、机床、电工机械以及国防工业等部门作为减速、变速或增速齿轮传动装置。
渐开线行星齿轮减速器所用的行星齿轮传动类型很多,按传动机构中齿轮的啮合方式分为:NGW、NW、NN、NGWN、ZU飞VGW、W.W等,其中的字母表示:N—内啮合,W—外啮合,G—内外啮合公用行星齿轮,ZU—锥齿轮。
NGW型行星齿轮传动机构的主要特点有:重量轻、体积小。
在相同条件下比硬齿面渐开线圆柱齿轮减速机重量减速轻1/2以上,体积缩小1/2—1/3;传动效率高;传动功率范围大,可由小于1千瓦到上万千瓦,且功率越大优点越突出,经济效益越高;装配型式多样,适用性广,运转平稳,噪音小;外齿轮为6级精度,内齿轮为7级精度,使用寿命一般均在十年以上。
因此NGW型渐开线行星齿轮传动已成为传动中应用最多、传递功率最大的一种行星齿轮传动。
2.本文的主要内容NGW型行星齿轮传动机构的传动原理:当高速轴由电动机驱动时,带动太阳轮回转,再带动行星轮转动,由于内齿圈固定不动,便驱动行星架作输出运动,行星轮在行星架上既作自转又作公转,以此同样的结构组成二级、三级或多级传动。
ngwn型行星齿轮传动原理-回复什么是ngwn型行星齿轮传动?如何工作原理?ngwn型行星齿轮传动是一种由行星轮、太阳轮、内齿环和股杆组成的传动装置。
它被广泛应用于各种机械设备中,如汽车变速器、航天器、机床等,因其结构紧凑、传动效率高而备受青睐。
ngwn型行星齿轮传动的工作原理可分为以下几个步骤:1. 太阳轮和内齿环固定:太阳轮是一个中空的圆环,它的一边连接到太阳齿轮,另一边通过多个支架与内齿环相连。
内齿环是一个圆环状的齿轮,其内部有一些相互连接的轮齿。
2. 行星轮运动:行星轮固定在一个股杆上,股杆和太阳轮之间通过一些小齿轮相互连接。
当太阳轮转动时,小齿轮和行星轮一同转动。
3. 内齿环旋转:由于行星轮和太阳轮的运动,内齿环开始绕自身轴线旋转。
内齿环的轮齿通过行星轮的齿轮与太阳轮的齿轮相互干涉,使其旋转。
4. 输出轴的旋转:行星轮齿与内齿环齿的干涉导致太阳轮转动,太阳轮继而带动输出轴的旋转。
因此,通过改变太阳轮和行星轮的转速,可以调整输出轴的速度。
ngwn型行星齿轮传动的工作原理可以通过以下方式解释:当太阳轮转动时,它通过小齿轮传递力量给行星轮,同时太阳轮和行星轮的运动通过内齿环的相互作用导致内齿环旋转。
最终,内齿环的运动带动输出轴的旋转,实现了能量传递。
与其他传动装置相比,ngwn型行星齿轮传动具有几个独特的优势:1. 结构紧凑:ngwn型行星齿轮传动结构紧凑,传动比范围广,适用于不同场景下的传动需求。
2. 传动效率高:由于有多组齿轮同时传递力量,ngwn型行星齿轮传动的传动效率相对较高,能够在较小的尺寸内实现大功率的传递。
3. 转矩大:ngwn型行星齿轮传动由于内齿环的设计特点,能够承受较大的转矩,并具有高扭矩传递能力。
4. 可靠稳定:ngwn型行星齿轮传动的传动过程相对平稳,噪音低,振动小,并且具有长寿命的特点,能够在各种恶劣条件下可靠工作。
综上所述,ngwn型行星齿轮传动是一种高效、稳定的传动装置,广泛应用于各种机械设备中。
本科毕业论文(设计)题目 NGW型行星齿轮减速器设计学院工程技术学院专业机械设计制造及其自动化年级 2011级学号姓名指导教师(副教授)成绩 ____________________年月日目录摘要 (1)ABSTRACT. (2)0文献综述 (3)0.1行星轮的特点 (3)0.2发展概况 (4)1 传动方案的确定 (6)1.2行星机构的类型选择 (6)1.2.1行星机构的类型及特点 (6)1.1.2确定行星齿轮传动类型 (9)2 齿轮的设计计算 (10)2.1 配齿计算 (10)2.1.1确定各齿轮的齿数 (10)2.1.2初算中心距和模数 (11)2.2几何尺寸计算 (12)2.3 装配条件验算 (14)2.3.1 邻接条件 (14)2.3.2同心条件 (15)2.3.3安装条件 (15)2.4 齿轮强度校核 (16)2.4.1 a-c传动强度校核 (16)2.4.2 c-b传动强度校核 (20)3 轴的设计计算 (24)3.1行星轴设计 (24)3.2 转轴的设计 (26)3.2.1 输入轴设计 (26)3.2.2 输出轴设计 (27)4 行星架及相关部件 (29)4.1 行星架的设计与行星轮的支撑 (29)4.2行星架变形的计算和校核 (30)4.3浮动齿式联轴器的设计与计算 (30)4.4减速器的润滑 (31)4.4.1减速器润滑方式的选择 (31)4.4.2行星齿轮减速器润滑油的选择 (32)附录 (35)参考文献 (36)致谢 (38)NGW型行星齿轮减速器设计摘要:本文介绍了NGW型行星齿轮减速器的设计过程。
它具有行星齿轮传动的通用的优点,比如:质量小、体积小、传动比大、承载能力大以及传动平稳和传动效率高等优点。
因此,行星齿轮传动在起重运输、工程机械、冶金矿山、石油化工、建筑机械、轻工纺织等工业部门均获得了广泛的应用。
首先介绍了行星齿轮减速器的应用背景及发展趋势。
接下来是选定型号的行星齿轮减速器的具体设计过程,包括行星机构的类型选择,齿轮齿数的确定,齿轮强度的校核,轴和键的尺寸及强度校核,行星齿轮减速器的结构设计等组成部分。
江苏永钢集团有限公司玻璃钢冷却塔检修方案(附件一) 炼钢一厂转炉设备水冷却塔型号为10BZGN-300,风叶直径3800,处理量为300m ³/h ,减速机型号NGW180L-L-F31 15kw 转速220转/分,电机型号NGW-F31-15kw ,380v ,31.5A,1480r/min一、300m3/h 玻璃钢冷却塔 进水:t1=45℃ 出水:t2=37℃1.拆除原300m3/h 冷却塔2.重新按原基础4700mmX4700mm 制作全新冷却塔,所有钢结构、配水系统、中央进水管、风机支架均采用热镀锌防腐处理。
3.冷却塔淋水填料是冷却塔的核心部分,淋水填料的优劣将直接影响立柱:长40mm*宽40mm*高45mm ,每个立柱之间的距离为1500mm ,每个面3个,共4*3=12个,支撑钢结构高1400mm出口管径:300mm ,出口总管管径:700mm 进口总管管径:600mm ,进口管径:250mm塔身尺寸:长4800mm ,宽4800mm ,高度5500mm到冷却效率的高低,因此填料的选择十分重要。
填料采用全新S波型填料,3层安装,高度:1.5米。
4.冷却塔收水器采用高效低阻加筋弧形收水器,改性PVC材质,B160-45型,成型后片厚1mm。
片材按原尺寸放长6公分,相互间交叉搭接,并用尼龙绳连接。
5.配水装置及钢结构框架5.1配水管材采用Q235热镀锌管道。
冷却塔内部钢结构件材质为Q235-A,钢支架采用10#以上槽钢,支架连接为螺栓连接。
5.2钢结构件表面必须经严格除油、除锈后,表面采用热镀锌,外加厚型环氧沥青漆二道。
6.冷却塔塔体围护板6.1塔体围护板材质采用FRP,壁厚大于4mm。
6.2百叶窗厚度都控制在0.3mm,整体平均厚度为4mm,7.冷却塔配套电机、风机7.1冷却塔配套电机采用国内大型电机厂家浙江上虞生产的产品。
电机型式为Y型异步电动机,防水型,功率:15KW。
7.2冷却塔风机采用LF-38风机,叶片采用铝合金材质,叶轮、叶托均采用热镀锌防腐。
NGW型行星齿轮减速机型号说明及标记示例JB/T6502-93
减速器的代号和标记方法
减速器的代号包括:型号、级别、联接型式、规格代号、规格、传动比、装配型式、标准号。
其标记符号如下:
N-NGW(N-内啮合、G-公用齿轮、W-外啮合)型;
A-单级行星齿轮减速器,B-两级行星齿轮减速器,C-三级行星齿轮减速器;
Z-定轴圆柱齿轮,S-螺旋锥齿轮,D-底座联接,F-法兰联接,L-立式行星减速器。
标记示例:
首先按减速器机械许用输入功率P IP选用。
如果减速器的实际输入转速与承载能力表中的四档(1500、1000、750、600)转速之某一档转速相对误差不超过4%,可按该档转速下的许用功率选用相应规格的减速器;如果转速相对误差超过4%,则应按实际转速折算减速器的许用功率选用,然后校核减速器热平衡许用功率;如入出轴承受径向载荷(除转矩外),应校核轴伸安全系数。
①按减速器机械强度限制的承载能力P IP选定。
N G W行星轮减速器设计(共61页) -本页仅作为预览文档封面,使用时请删除本页-NGW行星减速器的设计摘要本文完成了对一级行星齿轮减速器的结构设计。
该减速器具有较小的传动比,而且,它具有结构紧凑、传动效率高、外廓尺寸小和重量轻、承载能力大、运动平稳、抗冲击和震动的能力较强、噪声低的特点,适用于化工、轻工业以及机器人等领域。
这些功用对于现代机械传动的发展有着较重要的意义。
首先简要介绍了课题的背景以及齿轮减速器的研究现状和发展趋势,然后比较了各种传动结构,从而确定了传动的基本类型。
论文主体部分是对传动机构主要构件包括太阳轮、行星轮、内齿圈及行星架的设计计算,通过所给的输入功率、传动比、输入转速以及工况系数确定齿轮减速器的大致结构之后,对其进行了整体结构的设计计算和主要零部件的强度校核计算。
其中该减速器的设计与其他减速器的结构设计相比有三大特点:其一,为了使三个行星轮的载荷均匀分配,采用了齿式浮动机构,即太阳轮与高速轴通过齿式联轴器将二者连接在一起,从而实现了太阳轮的浮动;其二,该减速器的箱体采用的是法兰式箱体,上下箱体分别铸造而成;其三,内齿圈与箱体采用分离式,通过螺栓和圆锥销将其与上下箱体固定在一起。
最后对整个设计过程进行了总结,基本上完成了对该减速器的整体结构设计。
关键词:行星齿轮,传动机构,结构设计,校核计算The design of NGW planetary gear reducerABSTRACTThis completed a single-stage planetary gear reducer design. The gear has a smaller transmission ratio, and it has a compact, high transmission efficiency, outline, small size and light weight, carrying capacity, smooth motion, shock and vibration resistant and low noise characteristics, Used in chemical, light industry and robotics fields. The function of the development of modern mechanical transmission has a more important significance.First paper introduces the background and the subject of gear reducer situation and development trend, and then compared various transmission structures, which determine the basic type of transmission. Thesis is the main part of the main components of drive mechanism including the sun wheel, planet gear, ring gear and planet carrier in the design calculation, given by the input power, gear ratio, input speed and the condition factor to determine the approximate structure after the gear reducer And to carry out the design and calculation of the overall structure and main components of the strength check calculation. One of the other gear reducer design and compared the structural design of the three major characteristics: First, the three planetary gear to make the load evenly, using a gear-type floating body, the sun gear and high-speed shaft through the gear together Coupling the two together to achieve a floating sun gear; Second, the box uses a reducer flange box, upper and lower box were cast; Third, the ring gear and Box with separate, through bolts and tapered pins will be fixed together with the upper and lower box. Finally, a summary of the entire design process is basically complete the overall design of the reducer.KEY WORDS: planetary gear,driving machanism,structural design,checking calculation目录前言 ........................................................ 错误!未定义书签。