20190720安全文明施工标准化图集展示
- 格式:pptx
- 大小:5.02 MB
- 文档页数:131
建筑施工现场安全文明施工标准图集
目录
1、木工棚、钢筋棚做法示意图13、电梯井防护图
2、合灰机、搅拌机防护棚做法示意图14、脚手架搭设安全色踢脚板做法
3、安全通道示意图(多层24m以下)15、脚手架平网设置
4、安全通道示意图(高层24m以上)16、脚手架外排阳角处做法示意图
5、配电箱防雨棚做法示意图Ⅰ17、型钢悬挑双斜支撑系统示意图
6、配电箱防雨棚做法示意图Ⅱ18、落地式接料平台
7、总分箱护栏及地面硬化图19、悬挑式钢平台
8、总分箱护栏及硬化地面尺寸图20、接料平台防护门正立面图
9、楼梯、楼层和阳台临边防护示意图21、接料平台防护门侧面图
10、屋面和楼层临边防护图22、接料平台平面图
11、基坑边防护栏杆示意图23、限重牌示意图
12、洞口防护图24、轮子锯钢丝网防护板示意图。
1水平洞口防护1.1边长在25~200(含200)的水平洞口防护采用洞口楔紧木枋(立放),上盖18厚木胶合板用铁钉钉牢,面层刷红白相间的警示油漆间距20角度45°。
25 ~200 1 1100100100 10025 ~200 25 ~200100 100平面图1-1剖面三维效果图1.2边长在200~500mm(含500mm)的水平洞口防护采用洞口上部盖18mm厚木胶合板用Ф8膨胀螺栓固定,面层刷红白相间的警示油漆间距20cm角度45°。
1.3边长在500~1500mm (含1500mm )的水平洞口防护采用洞口上部铺设木枋(立放)@400mm ,上盖18mm 厚木胶合板用铁钉钉牢,木枋侧面与地面之间的缝隙也用18mm 厚木胶合板封严,面层刷红白相间的警示油漆间距20cm 角度45°。
洞口周边设置交圈的钢管防护栏杆,防护栏杆的水平杆、立杆刷间距为400mm 红白相间油漆,并在最上一道水平杆处悬挂“当心坠落”的警示标志,所有水平杆控制伸出立杆外侧100mm 。
100 500 ~ 1500100300 300 100100 400 400 400 400 100 100500~1500 300 300 100 1001 1500~1500 100 100 300 300 木枋侧面与地面之间的缝隙封严 平面图 1-1剖面 三维效果图 200500 500 1001.4 边长在1500以上的水平洞口防护洞口周边设置交圈的φ48钢管防护栏杆,立杆间距不大于1800,防护栏杆下部设置200高18厚木胶合板挡脚板,防护栏杆的水平杆、立杆以及挡脚板,必须刷间距为400红白相间的警示油漆,防护栏杆外立面满挂密目安全网并在最上一道水平杠处悬挂“当心坠落”警示标志。
所有水平杆控制伸出立杆外侧100。
2楼梯口、楼梯临边防护楼梯口和楼梯临边,应在1.2m、0.6m高处及底部设置三道防护栏杆,杆件内侧挂密目式安全立网。
建筑施工现场安全文明施工标准图集word版整理
目录
1、木工棚、钢筋棚做法示意图13、电梯井防护图
2、合灰机、搅拌机防护棚做法示意图14、脚手架搭设安全色踢脚板做法
3、安全通道示意图(多层24m以下)15、脚手架内平网设置
4、安全通道示意图(高层24m以上)16、脚手架外排阳角处做法示意图
5、配电箱防雨棚做法示意图Ⅰ17、型钢悬挑双斜支撑系统示意图
6、配电箱防雨棚做法示意图Ⅱ18、落地式接料平台
7、总分箱护栏及地面硬化图19、悬挑式钢平台
8、总分箱护栏及硬化地面尺寸图20、接料平台防护门正立面图
word版整理
9、楼梯、楼层和阳台临边防护示意图21、接料平台防护门侧面图
10、屋面和楼层临边防护图22、接料平台平面图
11、基坑周边防护栏杆示意图23、限重牌示意图
12、洞口防护图24、轮子锯钢丝网防护板示意图
word版整理
word版整理
word版整理。
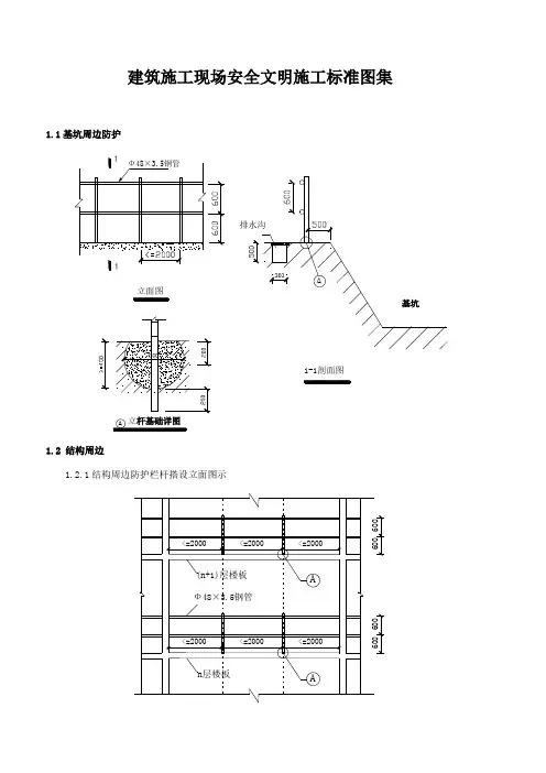
建筑施工现场安全文明施工标准图集1.1基坑周边防护1-1剖面图1.2 结构周边1.2.1结构周边防护栏杆搭设立面图示1.2.2结构周边防护栏杆搭设平面图示根据结构特点不同,安全防护设施的平面布置也不同,具体分以下几种情况。
①结构柱、墙截面尺寸小于500的无悬挑板结构周边防护无悬板平面布置图1②结构柱、墙截面尺寸大于500的无悬挑板板边防护无悬板平面布置图2③悬挑板挑出长度小于500的悬挑板有悬板平面布置图1④悬挑板挑出长度大于500的悬挑板边有悬板平面布置图21.2.3结构周边防护栏杆柱固定方式图示①直接在混凝土楼板上预埋1.4~1.5m的钢管A立杆基础详图1②预埋钢筋头A 立杆基础详图2③预埋短钢管A立杆基础详图3④预埋件(套筒承插式)A立杆基础详图4⑤膨胀螺栓固定式A 立杆基础详图5立面图平面图楼面Ф48×3.5钢管1.3 预制混凝土梁、钢梁侧边构件吊装前,预先在梁两端焊接(或螺栓卡压固定)临时立柱,将Ф10以上钢丝绳用花篮螺栓紧绷于临时立柱上作为安全绳,当梁跨度大于8米时,中间应加设临时立柱。
梁桥面临时护栏示意图A混凝土预埋件焊接示意图1.4 楼梯侧边常规的住宅楼、办公楼楼梯可采用钢管扣件搭设防护栏杆,在梯井两端设置通高立杆,然后搭设斜杆即可。
楼梯临边防护立面示意图2181416楼梯临边防护平面示意图2对于特殊的楼梯,如圆弧、单跑、梯井过大的,采用钢筋与预埋件焊接临时栏杆。
楼梯临边防护立面示意图1楼梯临边防护平面示意图11. 5施工电梯、物料提升机楼层出入口两侧边施工电梯、物料提升机楼层卸料平台应采用钢管、扣件搭设,两侧边的防护栏杆也应采用钢管、扣件搭设,同时自上而下加挂安全立网或满扎竹笆或采用层板封闭防护。
立杆Ф48×3.5钢管物料提升机楼层入口防护平面图物料提升机楼层入口防护立面图2 洞口防护应用范围:因工程本身存在或因工序需要而产生的,使人与物有坠落危险而危及人身安全的洞口,均应采取防护措施。