YL708K综合布线说明书
- 格式:doc
- 大小:73.00 KB
- 文档页数:7
大唐电信综合布线系统产品技术规格书1、增强型六类布线系统器件技术参数 (6)增强型六类屏蔽数字电缆. (6)增强型六类免打模块 (6)增强型六类屏蔽配线架. (6)增强型六类屏蔽跳线 (6)2、六类布线系统器件技术参数 (7)六类非屏蔽布线系统 (7)6 类非屏蔽双绞线 (7)6 类非屏蔽数据模块 (7)6 类 24 口非屏蔽配线架 (8)6 类非屏蔽跳线 (8)6 类水晶头 (8)六类屏蔽布线系统 . (9)六类屏蔽数字电缆 (9)六类屏蔽模块 (9)六类锌铸造屏蔽免打模块. (9)六类屏蔽配线架 (9)六类屏蔽跳线 .10 3、超五类布线系统器件技术参数. (10)超五类非屏蔽布线系统. (10)超五类非屏蔽双绞线 .10超五类 24 口非屏蔽配线架 .10超五类非屏蔽模块 .11超五类非屏蔽跳线 .11超五类 8C水晶头 .11 超五类屏蔽布线系统 (11)超五类屏蔽数字电缆 .11超五类屏蔽配线架 .12超五类屏蔽模块 .12超五类屏蔽跳线 .12超五类屏蔽水晶头 .13超五类室外架空电缆 .13超五类室外阻水电缆 .134、语音布线系统器件技术参数 (13)1 对 3 类电话线132 对3 类电话线14语音电话模块 .14电话水晶头 .143 类大对数数字电缆14室外 3 类 100 对大对数 .155 类大对数数字电缆15室外 3 类大对数数字电缆 .151-4 对语音跳线( 110-Rj45 )15110 型机架式 100 对跳线架15110 型连接模块165、铜缆配件技术参数 . (16)86 型斜面型单口、双口墙面板1686 型平面型单口、双口墙面板16RJ45 模块式 24 口空配线架1686 地插171U 铝制理线架176、机柜 (17)网络机柜 .17服务器机柜 .177、光纤光缆技术参数 . (19)光纤传输性能 . (19)光纤的光学传输性能满足相关标准要求.19A1a\A1b 型多模光纤( 50/125 、125)19D 型单模光纤19型单模光纤 .19 室内光缆 (20)室内千兆多模光缆( OM1) .20室内千兆多模光缆( OM2) .20室内万兆多模光缆( OM3) .20 单模室内光缆().21室外光缆 (22)室外中心管式多模光缆(GYXTW OM1、OM2) .22室外层绞式铝铠装多模光缆(GYTA OM1、OM2) .22室外中心管式单模( B1)光缆( GYXTW B1) .22 室外层绞式铝铠装单模光缆(GYTA B1) .22室外层绞式钢铠装单模光缆(GYTS B1) .23室外直埋单模光缆( GYTA53 B1) .23防蚁直埋光缆 (GYTA54) .24防蚁加强型直埋光缆 (GYTA34).248、光配线产品 (24)光纤跳线尾纤 . (24)SC型单模跳线尾纤24SC型多模跳线尾纤24LC 型单模跳线尾纤24LC 型多模跳线尾纤24ST 型单模跳线尾纤25ST 型多模跳线尾纤25 适配器 ( 法兰盘、耦合器 ) . (25)SC( FC、ST、LC)多模适配器 .25SC( FC、ST、LC)单模适配器 .25 光纤终端盒 (25)机架式光纤终端盒(配线架).26ODF光纤配线架26 光缆接头盒 (26)光缆接头盒 .269 安防线缆 (26)实芯聚乙烯绝缘射频电缆(SYV) .26物理发泡聚乙烯绝缘同轴电缆(SYWV) .27聚氯乙烯绝缘电缆( RVV、RVVP、RV、 RVS、RVB) .28 附件:产品图片 . (28)1、增强型六类布线系统器件技术参数增强型六类屏蔽数字电缆产品标准: ISO_IEC11801-A1-2008 、 TIA/EIA-568 、 10GBASE-T、YD/T 和 YD/T1019-2013产品特性:传输带宽≥500MHz,满足 10G 兆数据传输;铝箔结构,外径小,重量轻;排流线为圆型镀锡铜线;铜芯材料采用优质实芯裸铜导体,线芯直径≥,满足线规23AWG;绝缘材料采用优质高密度聚乙烯(HDPE),护套材料采用优质PVC料厚度为,防火级别为CM,铜缆外径为:¢±。
MV-708 快速配置 使用手册目录面板介绍 ..........................................................................................................................................1 设备连线 ..........................................................................................................................................1 结构图示例 ......................................................................................................................................1 配置 MV-708....................................................................................................................................2 安装及配置 mServer(视频版)..................................................................................................3 观看视频 ..........................................................................................................................................4 设备故障调试 ..................................................................................................................................5 附一: MV-708 未上线 问题解析............................................................................................6 附二: 数据中心网络接入...........................................................................................................7面板介绍正面面板GPS 天线柱弹CDMA出天线柱钮SIM 卡槽状态 指示灯配置串口 RS232 IMEI 号码条电源 输入孔视频输入 孔 BNC设备连线插卡:按弹出钮,弹出 SIM 卡座,将 CDMA UIM 卡芯朝上放入卡座,再将卡座插入 SIM 卡槽 连接天线:将天线拧到天线柱上 连接摄象头:利用 BNC 视频线连接设备的视频输入孔至摄象头的视频输出孔 连接配置线:使用 RS232 配置线连接设备的配置串口和电脑的串口 加电:连接电源适配器,加上电源结构图示例1配置 MV-708 登陆配置界面:步骤1: 打开电脑,选择“开始”→“程序” →“附件” →“通讯”→“超级终端” → 输入名 称 → 选择“连接时使用”的串口(连接设备使用的串口,一般为 COM1) → 设置串口属性 为“波特率: 38400, 数据位: 8, 奇偶校验: 无, 停止位: 1, 数据流控制: 无”,点击“确 定”步骤2: 输入“回车”进入配置登陆界面 步骤3: 输入用户名“root”,密码“1234”, 回车进入配置主菜单配置设备:步骤 1: 选择“2 高级配置” → “2 数据中心” →“2 主数据中心 IP” → 输入 IP 地址 步骤 2: 选择“3 主数据中心端口” → 输入数据中心监听端口号 步骤 3: 一直输入“q”,退出菜单,直到提示重起设备,输入“y” 重新启动设备,使配置生效如何获取数据中心 IP 和端口? • 可以通过 查看当前公网的 IP 地址 • 数据中心端口即 mServer 服务设置的监听端口,mServer 系统默认设置的监听端口为 9000注意: • 无线网络采用设备默认设置,无需更改;链路协议采用系统默认的 ETCP,未更改。
AI-708M型多路巡检显示报警仪(适合温度、压力、流量、液位、湿度……的测量报警) 使用说明书 (V7.0)一、概叙AI-708M是模块化与智能化完美结合的新型多路/双路巡检显示报警仪。
它具备强大的编程输入能力,配合各种输入模块,能适合热电偶、热电阻、电压、电流等多种信号的输入,它不仅具备通常巡检仪的全部功能,更适合在计算机监控系统中做数据采集下位机,为计算机提供廉价、适应性强、可靠且精确度高的模拟量采集数据。
它具备输入数字校正系统、数字滤波、可编程输入规格及可编程报警输出等功能;具有85-264VAC范围输入的开关电源及多种安装尺寸等特点;它通过最新的2000版ISO9001质量认证,可靠性高;通过欧洲CE产品认证,符合EMC电磁兼容标准,能在强干扰环境下稳定工作;新版AI-708M的主要功能及特点如下:★采用宇光V7.X版仪表硬件通用平台,该平台年产量将在3万台以上,从而实现了批量生产,质量稳定可靠且成本更低,而以往旧版本的产品采用专用硬件,年产量不足千台,成本高且不易建立稳定的质量保障体系。
★ 测量精度由以往产品的0.5级提升为0.2级,但由于新硬件平台产量大而可降低生产成本,因此在精度提高的同时保持产品价格不变。
为配合0.2级测量精度,热电偶测量可支持冰点补偿、铜电阻补偿及恒温槽补偿等各种高精度补偿功能。
★ 6个可编程输入回路,配合不同的输入模块,可以输入最多6路的热电偶、电压或电流信号。
输入为热电阻时,可支持6路二线制接线方式或3路三线制接线方式输入。
★ 齐全的输入规格,各路输入可以使用不同的信号规格。
当输入为线性电压、电流或电阻时,各回路可独立定义刻度及小数点位置,当输入为热电偶或热电阻等温度传感器时,可独立进行平移修正及选择0.1/1℃指示分辨率。
各输入回路均具备数字滤波,且滤波强度可以独立调整或取消滤波。
★ 输入显示路数可任意设置为1-6路。
当输入路数设置为2路时,仪表的2个显示窗将同时显示2路输入信号,这样其功能与双回路显示仪相同。
Y L-708-B型火灾自动报警及消防联动控制系统实训指导手册(总71页)--本页仅作为文档封面,使用时请直接删除即可----内页可以根据需求调整合适字体及大小--亚龙YL-708-B型火灾自动报警及消防联动控制系统实践指导手册中国·亚龙科技集团有限公司浙江亚龙教育装备股份有限公司目录一、设备概述............................................. 错误!未定义书签。
二、模块外型与尺寸....................................... 错误!未定义书签。
三、主体配置............................................. 错误!未定义书签。
四、实验内容............................................ 错误!未定义书签。
五、实训项目............................................ 错误!未定义书签。
六、项目实训............................................. 错误!未定义书签。
1.708-B-A型中心监控主机模块........................ 错误!未定义书签。
(1)设备概述 ...................................... 错误!未定义书签。
(2)控制中心配置清单 .............................. 错误!未定义书签。
(3)火灾报警主机控制器接线端子说明 ................ 错误!未定义书签。
2.708-B-B型探测报警模块............................. 错误!未定义书签。
(1)设备概述 ...................................... 错误!未定义书签。
无脚手架电梯安装慢车调试2009-9-4目录1�序言2�注意事项3.现场元器件装配检查及确认4.上电和参数设置5.主控制器运行条件的确认6.电流及磁场整定步骤7.机房慢车调试8.轿顶慢车调试9.主控器及变频器故障记录1.序言电梯的安装是电梯售后服务的一部分�电梯无脚手架安装即是一种降低成本、提高安装质量并增加施工安全性的新电梯安装方法。
该电梯安装方法系采用电梯自身的轿厢底板作为施工电梯吊篮的底板�以电梯自身的导轨作为电梯吊篮在井道内运行的导轨�以电梯自身的主机作为电梯吊篮在井道内提升的动力�以电梯自身的极限、限位、缓冲器及其开关、限速器和安全钳等安全部件作为吊篮在井道内施工的安全部件。
最大限度地减少了脚手架的使用。
本手册适用于采用M P K708C控制系统的无脚手架安装电梯电气慢车调试�尤其适用于出厂前已经过联机调试的电梯。
如有疑问请及时与公司安装部联系。
安装部2009-9-42-注意事项1、调试前应对应检查井道�确认电梯部件安装完毕�井道内绝不允许有凸起物。
2、调试前应检查底坑无水�井道壁无渗漏。
3、调试前应检查机房温度、湿度合乎要求�地面无积水�无渗漏。
4、调试前应检查控制柜的工作面离墙面的距离大于600m m。
控制柜与机械设备距离应不小于500m m。
5、调试前应对控制柜内各器件进行检查�器件是否完好�连线是否松动�各接插件/电缆连接是否正确�有无松动。
6、调试前应在各厅站门口放置显著标识�以防外部人员误入电梯发生意外。
调试过程中非调试人员严禁进入机房。
7、调试过程中如需切断电源�应在开关处悬挂或粘贴明显标识。
8、调试过程中应对主调试人发出的每项指令加以重复�无误后方可执行�以免造成失误。
9、调试过程中如需进入井道应带安全帽。
10、调试过程中任何人未经允许不得私自进入底坑或上轿顶。
11、在吊装曳引机时�应特别注意使用标识吊点�并保护编码器12、调试前应检查电动设备的检验期有效13、烧电焊时�要检查地线和焊把线�防止电焊时烧毁控制柜元器件14、在整个无脚手架电梯安装过程中�必须保证安全钳及限速器起超速保护的作用�限位、轿厢缓冲器及对重缓冲器开关起极限运行位置电气保护作用�轿厢缓冲器及对重缓冲器起极限位置缓冲作用�15、对重坨数量应计算准确�对重架放入井道时�确认井道内无人员施工�对重架放入井道时�厅门口操作人员应系安全带�并固定于井道外牢固处16、不能在轿底或工作平台上做任何剧烈运动�走车时�应确认固定轿厢的顶杠脱离井道壁17、电梯安装中避免使用安装队自购的卷扬机、钢丝绳、吊篮等。
亚龙YL-708-C型对讲门禁及室内安防系统实践指导手册(Ver.2.00,2009.06)(亚龙YL-708-C-A型住户模块)(亚龙YL-708-C-B型大楼模块)(亚龙YL-708-C-C型小区模块)1、设备概述对讲门禁及室内安防系统对于确保区域和室内安全、实现智能化管理具有重要作用。
它是一种简便易行、无人值守、易于普及的控制系统。
常用于各类大厦、高层公寓和智能住宅小区。
对讲门禁系统是指采用现代电子技术和通信技术在小区、大楼或住户的出入口对人员的进出实施放行、拒绝、记录和报警等操作的整套电子自动化系统。
室内安防系统是指为了保证住户在住宅内的人身和财产安全,通过在住宅内门、窗和室内其它部位安装各种探测器实施监控,通过室内对讲门禁系统传输至小区管理中心,提示保安人员迅速确认警情,及时赶赴现场,以确保住户人身和财产安全,同时,住户也可通过室内紧急求助系统向小区管理中心发出求救信号。
对讲门禁系统和室内安防系统有机地结合在一起,是智能楼宇自动化必不可少的配套设施,也是实现智能楼宇管理自动化的重要设施。
“亚龙YL-708-C型对讲门禁及室内安防系统”是根据目前智能楼宇自动化专业的内容精心设计的综合实训系统,结合当前对讲门禁及室内安防系统的根本技术要点,采用市场主流对讲门禁及室内安防全套设备,根据实训内容的灵活配置,实现了多种模块关系,系统稳定可靠,结构合理清晰,可为示教与实训创造更多有利条件。
“亚龙YL-708-C 型对讲门禁及室内安防系统”共包含3种模块,分别为“亚龙YL-708-C-A 型住户模块”、“亚龙YL-708-C-B 型大楼模块”和“亚龙YL-708-C-C 型小区模块”。
通过模块互相之间的组合,可实现单住户、单大楼单住户、单大楼四住户、单小区单大楼单住户和单小区双大楼八住户的模块关系。
配置说明:(1) 住户模块独立构成系统;大楼模块必须与住户模块构成系统;小区模块必须与大楼模块和住户模块构成系统。
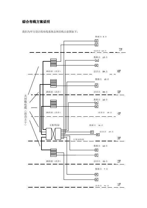
综合布线方案说明我们为甲方设计的布线系统总体结构示意图如下:主配线间 数据点 16点语音点 48点五类双绞线数据点 15点语音点 48点跳线架(语音)跳线架(语音) 跳线架(语音) 跳线架(语音)大对数电缆(语音主干)数据点 7点语音点 21点数据点 16点语音点 45点 语音点 15点 数据点 13点数据点 13点语音点 39点 语音点 39点 数据点 5点1F2F3F4F5F6F7F在图中表达了整个布线系统的信息点分布、配线架的设置以及配线架之间的连接关系,以及使用线缆种类。
对于数据(微机)系统,因为此楼属于低层建筑,因此采用了集中管理的办法,即不设分配线间,所有数据电缆(双绞线)均从主配线间引出,这样可以减少分配线间的设备,节约投资,并且集中布线也可以方便今后的网络设备管理。
对于语音系统,在每层设置了一个墙装的配线架,子配线架和主配线架之间用一根大对数电缆连接,此设计主要考虑到因为数据系统采用集中管理的方法,将来业务增加,要将数据、语音业务互换使用事,便于跳线连接。
也方便今后电话的跨层跳接。
在“布线系统设计”的后续几节中分别具体探讨了每个子系统选配的器件和用量。
器件的汇总清单和报价参见第错误!未找到引用源。
节。
工作区子系统工作区子系统是由各个办公区域构成,它把水平子系统和计算机连起来,主要是指从信息插座到计算机或电话机的连线。
用于计算机点的跳线有两种,即一种为IBDN提供的成品跳线,此种跳线为采用特殊工艺一次加工完成,跳线的每一芯由若干根细如毛发的铜丝组成,质地极其柔软,不会折损,长期使用不会影响数据的可靠传输。
我们建议采用此种跳线。
另一种为使用专门的工具自制的跳线,若采用此种跳线成本略低,但对于全程屏蔽的系统,为保证系统的绝对可靠,我们不推荐使用此种跳线。
RJ45埋入式信息插座与其旁边电源插座应保持20cm的距离,信息插座和电源插座的低边沿线距地板水平面30cm。
如下图所示:信息插座器件选配的是IBDN双孔、单孔墙上式插座。
多层住宅楼梯间强弱电设备及综合布线设计与施工指导书1、编制的依据1.1«低压配电设计规范»(GB50054-94)1.2«建筑物防雷设计规范»(GB50057-94)1.3«民用建筑电气设计规范»(JGJ∕T16-92)1.4«住宅设计规范»(GB50096-1999)1.5«有线电视系统工程技术规范»(GB505200-94)1.6«建筑物与建筑群综合布线系统工程设计规范»(GD∕T50311-2000)1.7«建筑物与建筑群综合布线系统工程施工验收规范»(G∕T503112-2000)2、编制的目点现行的电气设计一般由可行性研究报告、初步设计和施工图设计来组成。
住宅工程施工图发给施工单位后,然后由施工单位出竣工图。
然而,施工图往往不够完整,存在如下问题:①未标明强弱电设备各方向的详细尺寸②未注明电线电缆、线管在建筑物内各部分的敷设方式③未全面考虑与其它专业在位置上的冲突,以及能否排得下,使用、检修是否方便等。
3、编制的范围3.1多层住宅,按有无设备间来分,主要有两种,一种是在首层有设备间的多层住宅(如下间称H1型),五期84号楼,强弱电设备可安装在设备间,另一种住宅是首层无设备间的多层住宅(以下简称H2型),强弱电设备主要安装在首层大堂及楼梯间内,如五期85、86、87号楼。
3.2按安装的内容来分,主要分为五大系统3.2.1强电系统;3.2.2宽带网络系统3.2.3通信电话系统;3.2.4有线电视系统3.2.5楼宇对讲系统。
其中宽带网络与通信电话系统共用设备箱和管道,而强电系统包括供电电源、接地安装、楼道照明。
4强电系统4.1 负荷的确定对中高档住宅小区的用电负荷需要准确计算,合理选择配变电设施,才能既满足小区居民现在及将来的用电需要,又能合理降低工程造价、节省投资。
NetKey®Cabling SystemThe NetKey®Copper and Fiber CablingSystem provides a complete, standardscompliant cabling infrastructure solutionfor voice, data and video applications.NetKey®Modules feature the universal “keystone”design and are compatiblewith a wide assortment of modular patchpanels, faceplates, and surface mount boxes. When teamed with complementary Panduit products, the NetKey®solutions cover allyour needs from the telecommunicationroom to the work area with the proveninnovation and quality you dependon from Panduit.Panduit and General Cable™offer a comprehensive lineof contractor-grade connectivity and cabling solutions.This world-class partnership provides guaranteed network performance and system reliability for customer requirements. For the complete cable offering, reference the NetGen®Structured Cabling Solutions Brochure, NCCB56--SA-ENG.NetGen is a registered trademark ofGeneral Cable Technologies Corporation and Panduit.General Cable is a registered trademark of General Cable Technologies Corporation.Panduit and NetKey are registered trademarks of Panduit Corp.N e t K e y®C a b l i n g S y s t e mNetKey ®Copper and Fiber Patch CordsPages 4, 7 and 8NetKey ® Patch PanelsPage 9Racks and Cable ManagementPage 19Identification and Labeling SystemsPage 18Media Distribution SystemPages 14 – 18NetKey ®ModulesPages 4 – 6 and 12 – 13NetKey ®Faceplates and Surface Mount BoxesPages 10 and 11•Meet all industry performance standards for Category 6, 5e and 3•Punchdown jack modules are 100% performance tested and individually serialized for future traceability •Snap in and out of keystone openings for easy moves, adds and changes •Universal label includes T568A and T568B wiring schemesN e t K e y ®C a t e g o r y 6,5e a n d 3 J a c k M o d u l e sWH (White), BL (Black), BU (Blue), RD (Red), YL (Y ellow), GR (Green), OR (Orange) or VL (Violet).To order convenience package of 25 jack modules, add –Q to end of part number.** For standard colors replace color suffix with IW (Off White), EI (Electric Ivory), IG (International Gray),WH (White) or BL (Black).Termination tools found on page 13.®®®NK6TMIW N e t K e y ®C o p p e r U T P P a t c h C o r d s•Meet all industry performance standards for Category 6 and 5e•100% performance tested•Available in a variety of colors and lengths for design flexibility NK6PC^*Y NK5EPC^*Y ^Available in 3, 5, 7, 10, 14 and 20 foot lengths.*For standard colors other than Off White, add suffix BU (Blue), RD (Red), YL (Y ellow) or GR (Green)before Y in the part number.For example, the part number of a blue, Category 6, 5-foot patch cord isNK6PC5BUY .NK688MIW NKP5E88MIW NK5E88MIWY NK366UMIWY NK388MIWY NK5E88MIW-Q NK688MIW-QNKP5E88MIW-Q NK366MIWYNKFSCCLIP-LNKFSTMABL^^NKFSCMBL NKFSCMPC5BLNKFLCSMWH NKFLCCLIP-LN e t Ke y ®F i b e r O p t i c Co n n e c t o r s• Meets TIA/EIA-568-C.3 requirements• Insertion loss:0.1dB typical (multimode), 0.2dB typical (singlemode) • Return loss:>20dB (multimode), >40dB (singlemode) • Each duplex plug includes housing, insert, two ferrule assemblies, two crimp sleeves, one boot for 3mm jacketed cable and two dust caps^^NKFSTMABL also available with red boot, replace BL (Black) in part number with RD (Red).NKFSTMPC6EI SC Connectors - Pot and Polish Termination SC Connectors - Pre-Polished Cam Termination• Factory configured with 6 or 12 duplex LC or SC adapters for fastand easy cabling and installation• Slide-out drawer slides forward a full 300mm for service accessto all fiber terminations, connections, and/or splices • Supports both field termination via pot-and-polish using Panduit ®NetKey ®Connectors, or fusion splicing with appropriate slack storage and cable management provisions • Simple two-piece, all-metal body construction for easy and economical installation with no loose components to misplace;improved protectionover plastic fiber drawers N e t K e y ®F i b e r E n c l o s u r e sFor 6 adapters per enclosure, replace 12 in part number with 6.For 12 adapters per enclosure, replace 24 in part number with 12.For standard colors other than IW (Off White), replace suffix with BL (Black), EI (Electric Ivory), IG (International Gray) or WH (White).N e t K e y ®F i b e r O p t i c A d a p t e r sNKDLCMIW NKSCMZIW NKSTMIW NKMJMIW NKFD1W12EIDLCN e t K e y ®F i b e r O p t i c P a t c h C o r d s a n d P i g t a i l sST to ST Patch CordSC to SC Patch CordLC to LC Patch CordSC to LC Patch Cordnumber to the desired length.For example, the part number for a 2 meter, ST to ST, OM1, riser, duplex patch cord is NKF6GR022-2M02.• Compliant with TIA/EIA 568-C.3-1 and ISO/IEC 11801, TIA-604-5(FOCIS-5), and UL 1666 (OFNR) flame rating• Patch cords and pigtails include OM3 fiber or OM1, OM2, or OS1 fiberin 900µm tight-buffered fiber, 1.6mm or 3.0mm duplex zipcord jacketed cable or 1.8mm duplex zipcord jacketed cable• 100% performance tested assures that patch cords and pigtails are standard compliant, Riser rated jacket meets UL 1666 (OFNR) flame rating for standard complaint safety • Q.C.identification label quality control reference provides lifetime traceability of test dataMT-RJ to MT-RJ Patch CordPart Number*Description N e t K e y ®F i b e r O p t i c P a t c hC o r d s a n d P i g t a i l s (c o n t i n u e d )number to the desired length.For example, the part number for a 2 meter, MT -RJ to MT -RJ, patch cord,OM1, riser, duplex patch cord is NKF6FR02F-FM02.LC to PigtailSC to PigtailST to PigtailN e t K e y ®P a t c h P a n e l s NKFP24YNKFP48YNK6PPG12WY NK5EPPG12WY NK6PPN48PNK6PPN24PNKFP12W *Punchdown patch panels are color-coded for T568A and T568B wiring schemes.Punchdown tools found on page 13.Punchdown Patch Panels *NKPPA24FMYNKPPA48FMYWB89D SRB19BLYSRBM19BLY •Mount to standard TIA/EIA 19'' racks•Punchdown patch panels meet all industry performance standards for Category 6 and 5e•Modular patch panels accept all NetKey ®Modules•Molded patch panels made of strong polymer material, with port numbering front and back •Optional angled versions available for high density installations •Strain relief bars assist in cable management and bend radius control •Filler panels reserve space for future use and direct airflowNK2FIWYNK1FIWY NK4FIWYNK2FNIWNK4HSFIWYNKF2SNK3FNIWNKF4S NKF6SNK4FNIWN e t K e y®F a c e p l a t e s•Accept all NetKey®Modules•Available in a variety of port densities•Optional labels for easy port identification**Available in single gang 1, 2, 4, and 6-port density configurations and 8 or 12-port double gangport density configurations.^Available in 2 or 4-port density configurations.^^Available in 2, 4 or-6 port density configurations.When mounting, opening should be aminimum of 2" wide.‡For standard colors other than IW (Off White), replace suffix with EI (Electric Ivory), WH (White),IG (International Gray) or BL (Black).NK2HSF**Y and NK4HSF**Y not available in BL(Black). N e t K e y®F a c e p l a t e F r a m e s,M o d u l a r I n s e r t s,a n d A d a p t e rNKHF2MIW-X CHB2MIW-XNKHS2IW-XCBEIWY CBEIW-2GY•Inserts and faceplate frames enable design flexibility•Accept all NetKey®Modules•Available in a variety of port densities and orientation•Optional labels for easy port identificationCBIW CBIW-2GNK1FNIWNK8FIWYNK6FIWYNK12FIWY NK2HSFIWYNK4VSFIWYNKBTA1IW-XNK2RMFIWNK4106MFIW N e t K e y ®M o d u l e F r a m e s a n d F u r n i t u r e F a c e p l a t eNK2106MFIW For standard colors other than Off White, replace IW in part number with EI (Electric Ivory), WH (White), IG (International Gray) or BL (Black).N e t K e y ®P h o n ePl a t eN e t K e y ®S u r f a c e M o u n t B o x e sNK4BXIW-AYNK2BXIW-A NK6BXIW-AY •Accept all NetKey ®Modules•Include mounting screws and adhesive tape•Compatible with Panduit ®LD3, LD5, and LD10 RacewayCBM-XFor surface mount box standard colors other than IW (Off White), replace suffix with EI (Electric Ivory),IG (International Gray) or WH (White).Wall mount faceplate kits compatible with wall mountable phones with short patch cord connections to the jack module.KWP3YNe t K e y ®A u d i o /V i d e o M o d u l e sNKRSMBIWY NKRPMRIW NKRTMRIWNKBPBIWYNKSVCIW NK35MSCIWNK35MSSIW NKHDMIIW (NKRSM^IWY) also available with B (Black) insert.^^To designate insert color, replace ^^ with R (Red) or B (Black).For standard colors other than IW (Off White), replace suffix with EI (Electric Ivory), WH (White), IG (International Gray) or BL (Black).5-Way Binding Post Module (NKBP^IWY ) only available in EI (Electric Ivory) and WH (White).NKSPMIWNKUSBAAIWNKBMIW-XFor standard colors other than IW (Off White), replace suffix with EI (Electric Ivory), WH (White), IG (International Gray) or BL (Black).Faceplate frames found on page 10.CHD15HDCIWYCHD9CIWYN e t K e y ®A u d i o /V i d e o I n s e r tsCHR3RGBIW CHR3WYRIWT e r m i n a t i o n T o o l s®*Fluke JackRapid Termination Tool available through distribution.Contact Fluke customer service at 800-283-5853 to locate a local distributor.**Fluke is a registered trademark of Fluke Corporation.CHD15HDSCIWY®Open Mounting Grid Base1" grid pattern across entire enclosurebase provides for vertical or horizontalplacement of hubs and othercomponents, allowing greater flexibilityfor installation, and maximum useof available space.Modular Patch PanelThe media distribution NetKey®Modular Patch Panel provides afront-accessible patch panel modulethat accepts all NetKey®Voice,Video, Data and Audio Modulesto provide communication to upto eight different locations.Network Equipment BracketThe media distribution equipmentbracket secures third-partyequipment, such as routers orswitches to the media distributionsystem enclosure, providing flexibilityand choice to meet individual needs.The Panduit media distribution system offers anefficient and cost-effective means to distribute voice,video, and data services within commercial andresidential locations.High density solutions support agreater number of network services and applicationsallowing improved space utilization while cost effectively implementing media components.A comprehensiveset of modular components improve design flexibility,enable quick modifications, and scalability for futuregrowth from the building demarcation point to theend user's network outlet.Cable ManagementThrough the use of D-Hooks andthe cable management kit, theMedia Distribution System providessuperior cable management withinthe enclosure to organize cablesfor easy access and to maximizeenclosed space.M e d i a D i s t r i b u t i o n S y s t e mStackabilityStackable hubs mount on top of one another to maximize use of enclosure space and offer easy expansion for additional drops.Phone Hub Test Ports/Security InterfaceEnables testing of the incoming phone lines from the building demarcation point and connections from the enclosure to the residence to ensure performance.Security interface includes a built-in switch that overrides the phone service for emergency notifications, ensuring safety and security of unit or residence when needed.Grounding and BondingIntegrated grounding stud, along with optional grounding kit, provides means to properly ground the enclosure to the surrounding structure, protecting network equipment and maximizing uptime.Shear forms built-in to the enclosure work with the cable management kitfor appropriate cable management.Me d i a D i s t r i b u t i o n E n c l o s u r e sMSB14E •Enclosures offer easy installation, flexibility for quick modifications and scalability for future growth needs•Grid pattern in base provides mounting and flexibility for the hubs•Cantilever mounting slots flex to accommodate misaligned studs •Integrated drywall positioning slots•Hinged door (optional) available with lock and keyMS24HDMS14HD PopulatedAdvanced EnclosureMS24BHDM e d i a D i s t r i b u t i o n V i d e o S p l i t t e r s•Split incoming video/coax to distribute services •Pre-mounted onto metal bracket for quick installation• Snap directly into grid patterned enclosures for easy installation,moves, adds and changesM e d i a D i s t r i b u t i o n V o i c e (P h o n e ) H u b sMS8PD MS8PE•Split incoming phone lines up to eight locations to provide basic phone, fax, and modem services•Expansion hub (optional) available for an additional eight connectionsMS4S1G and MS4S2G M e d i a D i s t r i b u t i o n D a t a H u b•Meets Category 5e performance standards •Front side 110 punchdown termination•Allows easy access to connections within the enclosureM e d i a D i s t r i b u t i o n P a t c h P a n e lNKM8PP•Front accessible•Accept all NetKey ®ModulesI de n t if i c a t i o n a n d L a b e l i ng S y s t e m s•Variety of labeling systems and labels enable quick and easy network identificationFor complete identification offering, reference the Panduit Physical Infrastructure Systems Catalog (SA-NCCB51) or visit .™M e d i a D i s t r i b u t i o n A c c e s s o r i e sMSEBRKT MSGRD-KIT MSCMR•Bracket accepts third party equipment for design flexibility •Cable management kit assists in proper cable routing within the enclosure•Grounding kit includes assists in properly grounding media distribution •Cable management ring controls cable bend radiusLS8EQ-KIT LS8EQ TDP43ME S100X150VAC and S100X150VA1YLS8ELS8E-KIT ™™MSCLKR a c k s a n d C a b l e M a n a g e m e n t•Cable management products and accessories maintain bend radius control and cable performance while bundling and securing cable to prevent snags and stress from over bendingFor complete cable management and grounding/bonding offering, reference the Panduit PhysicalInfrastructure Systems Catalog (SA-NCCB51) or visit .WMPSEWMP1ECMPH1CMPHF1Panduit Corp.World HeadquartersTinley Park,IL 60487**************US and Canada: 800.777.3300Europe,Middle East,and Africa:44.20.8601.7200Latin America: 52.33.3777.6000Asia Pacific: 65.6305.7575/NetKey Real-World SolutionsWith a proven reputation for excellence and innovation, Panduit and our partnerswork with you to overcome challenges and implement real-world solutions thatcreate a competitive business advantage. Panduit offers the broadest range ofsolutions, from data centers and intelligent buildings to manufacturing operations,to help you build a smarter, unified business foundation.Technology LeadershipPanduit develops innovative physical infrastructure solutions that meet therapidly changing needs of our clients, from hardware and software to advisoryservices. This commitment is supported by investment in advanced research,solutions-focused product development, world-class manufacturing, andcollaboration with customers at the forefront of technology.Partner EcosystemOur best-in-class partner ecosystem offers a comprehensive portfolio of servicesthat span the project lifecycle, from planning and design to delivery, deployment,maintenance, and operation. Panduit business partners – distributors, and certifiedarchitects, consultants, engineers, designers, system integrators, and contractors –are qualified to help you achieve your objectives and realize predictable andmeasurable results.Strategic AlliancesPanduit cultivates long-term strategic alliances with industry leaders, includingCisco Systems, EMC, IBM, and Rockwell Automation, to develop, optimize, andvalidate solutions for our customers. This investment in people and resourceshelps solve our customers’ greatest business challenges.Global Business CommitmentPanduit is committed to delivering a consistently high level of quality and servicethe world over. With a presence in more than 100 countries, local Panduit salesrepresentatives and technical specialists offer guidance and support that bringvalue to your business. Our global supply chain, which includes manufacturing,customer service, logistics, and distribution partners, provides prompt responseto your inquiries and streamlines delivery to any worldwide destination.SustainabilityWith a commitment to environmental sustainability, Panduit develops andimplements solutions that protect, replenish, and restore the world in whichwe live. This commitment is demonstrated by Panduit’s LEED Gold certifiedWorld Headquarters, leveraging the Unified Physical Infrastructure SM approachto enable convergence of critical building systems to drive energy efficiencyand ongoing operational improvement.。
综合布线设备安装作业指导书1.适用范围适用于哈大铁路客运专线系统集成通信工程段、所、工区及站房等建筑物综合布线的设备安装。
2.作业准备2.1 内业技术准备在开工前组织技术人员认真学习实施性施工组织设计,阅读、审核施工图纸,澄清有关技术问题,熟悉规范和技术标准。
制定施工安全保证措施,提出应急预案。
对施工人员进行技术交底,对参加施工人员进行上岗前技术培训。
2.2 外业技术准备2.2.1根据施工图纸对设备平面布置进行现场复测,确定设备及子架的安装位置是否相符,并在图纸上做好标记;2.2.2施工前对室内设备安装环境进行检查,保证施工场地符合施工安全和通信设备运行安全要求,检查内容主要包括通风、湿度、尘埃、地板承重力、抗震能力、接地系统等。
3.技术要求3.1机柜(架)的安装应端正牢固,垂直偏差不应大于机架高度的1‰,较高机柜(架)应采用膨胀螺栓对地加固。
机柜(架)背面和侧面距离墙的净距不应小于800mm。
3.2 机柜、机架、配线架设备箱体位置、安装排列及各种标志应符合设计要求。
3.3 子架安装时应满足线缆布放和卡接工作要求。
4.施工程序与工艺流程4.1 施工程序施工准备→机架底座固定→机架安装→子架安装4.2 工艺流程5.施工要求5.1 施工准备5.1.1根据到货清单,核对设备的型号、规格、质量、数量,应符合订货合同规定或设计要求。
5.1.2根据设备出厂质量合格证和测试记录并对照实物检查设备功能和性能是否符合相关技术标准的规定。
5.1.3根据施工图纸确定机架、子架设备安装位置,底座固定方式。
5.1.4对使用的工具要进行检查,确保性能指标正常。
5.2划线打孔5.2.1按照施工图纸摆放设备底座,底座距离墙的净距不应小于800mm。
5.2.2在底座四个对地安装孔位做出标记后移开底座。
5.2.3在打孔前,可先用样冲在孔位处凿一个眼,以帮助钻头定位。
打孔深度为膨胀螺栓套管长度和锥头之和,确定孔深后,固定冲击钻定位杆。
使用说明书(V8.0)1 概述 (3)1.1 主要特点 (3)1.2 型号定义 (4)1.3 模块使用 (6)1.3.1 模块插座功能定义 (6)1.3.2 常用模块型号 (7)1.3.3 模块安装更换 (8)1.3.4 模块的电气隔离 (8)1.3.5 部分模块应用说明 (9)1.4 技术规格 (10)1.5 接线方法 (12)2 显示及操作 (16)2.1 面板说明 (16)2.2 显示状态 (16)2.2 显示状态 (17)2.3 操作方法 (18)2.3.1 设置参数 (18)2.3.2 快捷操作功能 (18)3 参数功能 (21)3.1自定义参数表 (21)3.2完整参数表 (22)3.3 特殊功能补充说明 (34)3.3.1 单相移相触发输出 (34)3.3.2 上电时免除报警功能 (34)3.3.3 给定值切换/外部程序控制按钮 (34)3.3.4 通讯功能 (35)3.3.5 温度变送器/程序给定发生器 (35)3.3.6 精细控制 (36)3.3.7 自定义输入规格 (36)4 程序控制(仅适用AI-708P型) (38)4.1 功能及概念 (38)4.2 程序编排 (40)4.2.1 斜率模式 (40)4.2.2 平台模式 (41)4.2.3 时间设置 (42)4.2.4 给定值设置 (43)4.2.5 运行多条曲线时程序的编排方法 (43)1 概述1.1 主要特点●输入可自由选择热电偶、热电阻、电压、电流并可扩充输入及自定义非线性校正表格,测量精度达0.2级。
●采用先进的AI人工智能PID调节算法,无超调,具备自整定(AT)功能及全新的精细控制模式。
●采用先进的模块化结构,提供丰富的输出规格,能广泛满足各种应用场合的需要,交货迅速且维护方便。
●使用14位分辨率0.2%高精度电流输出模块X3/X5,电流输出精度领先同类产品。
●每秒12.5次测量采样数率,最小控制周期达0.24秒,能适应快速变化对象的控制精度。
综合布线系统项目背景潍坊检验检疫局寿光办事处检验检疫技术综合大楼位于寿光市博园路东,海关北侧,结构形式为框架结构,高度47.4米,地下一层,地上十层,主楼建筑面积约9729.05㎡。
系统概述综合布线系统为开放式结构,应满足本工程信息通信网络的布线要求,应能支持综合信息(语音、数据、多媒体等)传输和连接的要求,实现多种设备配线的兼容。
能满足所支持的话音、数据、多媒体等系统的传输速率和传输标准的要求,系统能为数据及高清晰度图像信息提供高速(1000Mbps以上)及宽带(250MHZ以上)的传输能力,并满足千兆以太网的需求。
能在设备布局和需要发生变化时实施灵活的线路管理。
系统应覆盖信息、通讯、楼控、安防、有线电视、电视电话会议等各个系统。
设计原则(1)先进性与可靠性充分考虑信息社会的发展趋势,不仅能满足现在的应用,还要适应将来技术上的发展,并能实现数据、语音和图像通信。
(2)模块化、可扩充性设计的系统要具有模块化特点,以方便管理和使用,便于扩充;按照冗余设计的原则,按业主提供的信息点数进行设计。
(3)灵活性采用统一的星型拓扑结构、支持各种标准的网络设备。
(4)经济实用性设计的布线系统要实用,在满足技术要求的前提下,具有优良的性能价格比。
(5)可维护性整个系统应提供优良的使用性和维护性。
(6)具有成熟性和实用性本系统所采用的概念、技术、器材全部是非常成熟的,产品具有系统建成运行的成功范例。
系统完全能够在现在和将来适应技术的发展,能够真正满足大厦的使用要求。
(7)具有良好的扩展性本系统采用全模块化结构,能够满足灵活通用的要求,在系统修改、设备移位时,不必更换布线,仅在管理系统中的配线架上就可解决,具有充分的扩展能力。
(8)具有标准化与开放性本系统方案完全符合EIA/TIA-568A、EIA/TIA-569A、ISO11801、EN50173、CECS72.97、CECS89.97等国际标准、中国国家标准及相关的其它标准规范。
实训项目一RJ45水晶头的连接实训一、训练目的让学生掌握RJ-45水晶头即双绞线接头的制作工艺及操作规程,认识RJ-45水晶头。
熟悉EIA/TIA布线标准中规定的两种双绞线线序568A与568B,并能使用FLUKE网络测试仪测试AB线、BB线和控制线的通断情况,了解AB线、BB线和控制线的不同用途。
从而培养学生熟练制作各种跳线的能力及对各种跳线的选择使用的能力;了解测线器的各端口及指示灯的功能,培养正确使用测线器对UTP双绞线跳线进行通断及线序测试的能力。
二、训练器材介绍三、训练器材五类线(UTP线)一根(4米)水晶头 6个LinkRunner测试仪一个压线钳一把剥线器一把四、训练学时:2学时五、原理和依据双绞线缆也简称双绞线是由4对双绞线对构成,每对线对又是由两条不同顔色的铜芯线相互绞合而成,故双绞线是由8根不同颜色的线各自绞合而成。
双绞线成队扭绞的作用是尽可能减少电磁辐射与外部电磁干扰的影响,得到更好的信息传输效果。
RJ45水晶头由金属片和塑料构成,特别需要注意的是引脚序号,当竖立RJ45水晶头,金属片面对我们的时候从左至右引脚序号是1-8, 这序号在做网络联线时非常重要,不能搞错。
本实训的根据是EIA/TIA布线标准。
根据EIA/TIA568 A(B)标准规定,双绞线在没有中继的情况下,最大传输距离为100米。
如果要加大传输距离,在两段双绞线之间可安装中继器,最多可安装4个中继器。
如安装4个中继器连接5个网段,则最大传输距离可达500m。
EIA/TIA的布线标准中规定了两种双绞线的线序568A与568B。
标准568 B:橙白--1,橙--2,绿白--3,蓝--4,蓝白--5,绿--6,棕白--7,棕—8(工程中常用该标准);(如图1)标准568 A:绿白--1,绿--2,橙白--3,蓝--4,蓝白--5,橙--6,棕白--7,棕--8。
(如图1)图 1六、训练内容和要求1、认识RJ-45水晶头,按照568B的线序制作一条BB线,要求掌握水晶头的制作工艺及操作规程以及学会测试BB线的通断,了解BB线的用途。
第1章设备概述
在现代建筑领域,综合布线系统已成为建筑物的基础设施,在为现代建筑承载语音,数据和视频的内部和外部的通信业务系统的同时,也为智能建筑的的智能化管理需要提供了一个高质量的通信平台。
综合布线是现代建筑的神经中枢,一旦中断将产生严重的后果。
为确保系统功能,提好工程质量,必须遵循综合布线的各项标准。
第2章外型尺寸
60cm×60cm×197cm(长×宽×高)
第3章主体配置
1)系统总体结构图:
2)语音部分连接图:
3)数据部分连接图:
第4章相关技术参数
对单模和多模光纤的选用,应符合网络的构成方式、业务的互通互联方式、及光纤在网络中的应用传输距离来确定。
一般在楼内采用多模光缆,建筑物之间采用多模或单模光缆,需直接与电信运营商相连时宜采用单模光缆。
工作区信息插座为电端口时应采用8位模块通用插座(RJ45),对于7类布线系统则采用RJ45或非RJ45型的8位模块插座,如为光端口时宜采用ST、SC、FC、LC小型光纤连接器。
其中ST、FC为旋接方式,SC、LC为插座方式,旋界方式适用于不移动设备,插接方式适用于经常变更和光纤配电架。
CD集合点安装的连接硬件可以为8位模块插座和卡接式配电模块。
第5章实训项目
设备间子系统实训
工作区子系统实训
管理区子系统实训
干线(垂直)子系统实训
水平子系统实训。