ZY3600/12/28掩护式液压支架三机配套技术协议
- 格式:doc
- 大小:31.50 KB
- 文档页数:5
ZY28支撑掩护式液压支架的加高改造
杨吉奎;宁明;孙详林;王乃石
【期刊名称】《煤矿机械》
【年(卷),期】1991()1
【摘要】本文通过分析、计算,阐述了ZY28支撑掩护式液压支架在加高改造过程中,主支柱和四连杆机构的结构尺寸设计方法及改造后支架在工作状态下的受力分析,并对加长零部件进行强度校核。
【总页数】3页(P38-40)
【关键词】支架;液压;掩护式;加高;改造
【作者】杨吉奎;宁明;孙详林;王乃石
【作者单位】七台河矿务局机电总厂
【正文语种】中文
【中图分类】TD355.4
【相关文献】
1.支撑掩护式支架改造成掩护式支架的方法 [J], 王新元
2.谈两柱掩护式液压支架与四柱支撑掩护式支架的性能比 [J], 刘文彦
3.BC480/22/42支撑掩护式液压支架的改造 [J], 王冬梅
4.KHKM型支撑掩护式液压支架的液压弹性缓冲器 [J], 海峰
5.日本ZY5600支撑掩护式液压支架的改造 [J], 刘英;夏念斌;田勇
因版权原因,仅展示原文概要,查看原文内容请购买。
郑州煤矿机械集团股份有限公司液压支架随机图册ZY3600/12/28型掩护式液压支架随机图册郑州煤矿机械集团股份有限公司2013年12月郑州煤矿机械集团股份有限公司液压支架随机图册一、贵州众一金彩黔兴隆矿ZY3600/12/28型中间支架随机图郑州煤矿机械集团股份有限公司液压支架随机图册Y317-00 总图明细序号代号名称数量单位1 Y317-01 顶梁 1 件2 Y317-02 掩护梁 1 件3 Y317-03 底座 1 件4 Y317-04 前连杆 1 件5 Y317-06 左后连杆 1 件6 Y317-07 右后连杆 1 件7 ZT/SLJ250h 立柱φ250*700*685-1130 2 件8 ZT/YH125 平衡千斤顶φ125/70*450 2 件9 ZT00-96/1 标牌-ZY 1 件郑州煤矿机械集团股份有限公司液压支架随机图册Y317-01 顶梁序号代号名称数量单位1 Y317-0101 顶梁体 1 件2 Y317-0102 顶梁左侧护板 1 件3 Y317-0103 顶梁右侧护板 1 件4 Y317-0106 伸缩梁 1 件5 ZT/SH080h 伸缩梁千斤顶φ80/60*700 2 件6 Y317-01/01 支杆 2 件7 ZT00-03/1 销轴24*300 4 件8 ZT/CH063n 侧推千斤顶φ63/45*170 2 件9 ZT00-14/1 销轴25*70 2 件10 ZT09-04/1 挡圈 2 件11 ZT00-03/3 销轴22*300 1 件12 Y317-01/02 千斤顶导杆 2 件13 ZT09-01/2 弹簧 2 件14 Y317-01/03 弹簧导杆 2 件15 Y317-01/04 弹簧导杆 2 件16 ZT00-03/1 销轴24*270 1 件17 ZT00-05/54 铰接轴90*480 2 件18 GB/T91-2000 开口销D4*20 4 只19 ZT00-07/3 挡销12*12*136 4 件20 ZT00-75/2 U形卡7 件21 ZT00-02/13 销轴24*155 12 件22 GB/T91-2000 开口销D6.3*40 12 只23 GB/T95-2002 平垫圈D24 8 只24 ZT00-02/4 销轴30*107 4 件25 GB/T91-2000 开口销D6.3*50 4 只26 GB/T95-2002 平垫圈D30 4 只27 ZT00-03/3 销轴22*270 1 件29 ZT00-15/7 销轴55*330 2 件30 ZT00-28/13 挡块 4 件31 ZT00-02/8 销轴50*215 2 件32 ZT00-11/8 垫圈50 2 件33 GB/T91-2000 开口销D10*80 2 只Y317-0106 伸缩梁郑州煤矿机械集团股份有限公司液压支架随机图册Y317-02 掩护梁序号代号名称数量单位1 Y317-0201 掩护梁体 1 件2 Y317-0202 右活动侧护板 1 件3 Y317-0203 左活动侧护板 1 件4 Y317-02/01 侧推导杆 1 件5 ZT00-03/3 销轴22*290 2 件6 ZT00-14/1 销轴25*70 1 件7 ZT09-04/1 挡圈 1 件8 ZT/CH063n 侧推千斤顶φ63/45*170 1 件9 ZT00-03/1 销轴24*290 2 件10 Y317-02/02 支杆90 1 件11 Y317-02/03 弹簧导杆 2 件12 ZT09-01/2 弹簧 2 件13 ZT00-07/2 挡销10*10*136 4 件14 ZT00-05/6 铰接轴90*440 2 件15 ZT00-03/1 销轴24*170 1 件16 ZT00-07/2 挡销10*10*146 2 件17 GB/T91-2000 开口销D4*20 6 只18 ZT00-02/8 销轴50*210 2 件19 GB/T91-2000 开口销D10*80 2 只20 ZT00-11/8 垫圈50 2 件21 ZT00-75/2 U形卡 6 件22 ZT00-01/13 销轴24*155 6 件23 GB/T95-2002 平垫圈D24 6 只24 GB/T91-2000 开口销D6.3*40 6 只25 ZT00-05/8 铰接轴110*540 1 件26 Y317-02/04 弹簧导杆 2 件Y317-03 底座部分Y317-03 底座部分明细序号代号名称数量单位1 Y317-0301 底座体 1 件2 Y317-0302 推杆 1 件3 Y317-0303 顶架 1 件4 Y317-0305 底调堵 1 件5 Y317-32 推移千斤顶φ160/85*700 1 件6 Y317-35 抬底千斤顶n100/70*200 1 件7 Y317-42 底调千斤顶n100/70*160 1 件8 ZT00-17/3 销轴50*110 2 件9 ZT00-75/3 U形卡 2 件10 ZT00-02/2 销轴22*155 1 件11 GB/T91-2000 开口销D5*36 1 只12 GB/T91-2000 开口销D4*20 6 只13 GB/T95-2002 平垫圈D30 4 只14 ZT00-02/13 销轴24*170 2 件15 GB/T91-2000 开口销D6.3*40 2 只16 GB/T97-1985 平垫圈D24 2 只17 ZT00-26/10 销轴50*205 1 件18 ZT00-03/1 销轴24*190 2 件19 ZT00-75/2 U形卡 4 件20 Y317-03/01 压块 2 件21 Y317-03/02 挡块 2 件22 ZT00-07/3 挡销12*12*136 4 件26 ZT00-24/3 连接头52 1 件27 ZT00-27/2 D形卡3.2 1 件28 ZT00-02/8 销轴50*175 1 件29 ZT00-02/15 销轴16*135 1 件30 ZT00-27/3 D形卡4 4 件31 ZT00-02/4 销轴30*85 4 件32 Y317-03/03 立柱压板 4 件33 ZT00-03/3 销轴22*305 2 件34 ZT00-21/2 挡块 2 件35 ZT00-05/54 铰接轴90*475 2 件38 GB/T5782-2000 六角螺栓M12*80 1 只39 GB/T889-2000 六角螺母M12 1 只40 ZT00-05/8 铰接轴110*480 1 件41 ZT00-07/2 挡销10*10*146 2 件42 ZT00-11/2 垫圈22 1 件43 ZT00-17/7 销轴50*270 1 件44 ZT10-13/2 挡套50 2 件Y317-0301 底座Y317-0302 推移框架Y317-0305 底调堵ZT/SLJ250h 立柱ZT/SLJ250h 立柱明细序号图号名称数量单位1 ZT/SLJ250h-01 缸体L1=1070 1 件2 GB893.1-86 孔用挡圈72 1 件3 ZT/104-1 压紧螺母 1 件4 FD(G)-00 底阀 1 件5 MM506 导向环250/245/20 2 件6 MD730 活塞密封250/225/25 1 件7 MM506 导向环180/175/20 2 件8 MD730 活塞密封180/163/25 1 件9 ZT/SLJ250g-02 二级缸体L9=1010 1 件10 ZT/SLJ250h-02 活柱L4=1065 1 件11 ZT/103-31 导向套180/160 1 件12 ZT/103-11 导向套250/235 1 件13 MJ-UR155 静密封260/248.8/11.2 1 件14 MM506 导向环235/240/20 2 件15 MJ-UR155 静密封184/176/8.2 1 件16 MD652 杆密封235/255/16 1 件17 MM506 导向环160/165/20 2 件18 GB/T3452.1-1992 O形圈265*5.3 1 件19 GB/T79-2000 内六角圆柱端端紧定螺钉M8*16 4 件20 MF842 防尘圈235/255/10.2 1 件21 MD652 杆密封160/177/16 1 件22 GB/T3452.1-1992 O形圈187.5*3.55 1 件23 MF842 防尘圈160/175/10.2 1 件Y317-32 推移千斤顶Y317-32 推移千斤顶明细序号图号名称数量单位1 Y317-3201 缸体 1 件2 ZT/106-18 活塞160/70 1 件3 GB/T79-2000 内六角圆柱端端紧定螺钉M6*20 2 件4 MM506 导向环160/155/15 2 件5 MD730 活塞密封160/145/16 1 件6 GB1235-76 O形圈70*5.7 1 件7 GB1235-76 挡圈A70*60*2 2 件8 ZT/103-3 导向套160/85 1 件9 MJ-UR155 静密封162/154/8.2 1 件10 MM506 导向环85/90/20 2 件11 MD652 杆密封85/97/9.6 1 件12 GB/T3452.1-1992 O形圈165*3.55 1 件13 MF842 防尘圈85/98/7.5 1 件14 ZT/101-47 活塞杆85*1055 1 件15 GB/T79-2000 内六角圆柱端端紧定螺钉M6*12 2 件ZT/YH125 平衡千斤顶ZT/YH125 平衡千斤顶明细序号图号名称数量单位1 ZT/YH125-01w 缸体L1=720 1 件2 ZT/106-16 活塞125/60 1 件3 MM506 导向环125/120/20 1 件4 GB/T79-2000 内六角圆柱端端紧定螺钉M6*20 2 件5 MD730 活塞密封125/110/15.8 1 件6 GB1235-76 O形圈60*5.7 1 件7 GB1235-76 挡圈A60*50*2 2 件8 ZT/016-26 导向套125/70 1 件9 MM506 导向环70/75/20 2 件10 MJ-UR155 静密封127/119/8.2 1 件11 MD652 杆密封70/82/9.6 1 件12 MF38 防尘圈70/82.2/7.2 1 件13 ZT/101-41w 活塞杆70*748 1 件ZT/SH080h 伸缩梁千斤顶ZT/SH080h 伸缩梁千斤顶明细序号图号名称数量单位1 ZT/SH080h-01 缸体 1 件2 ZT/106-21 活塞80/50 1 件3 MM506 导向环80/75/9.7 2 件4 GB/T79-2000 内六角圆柱端端紧定螺钉M6*12 2 件5 MD730 活塞封80/66/17 1 件6 GB1235-76 O形圈50*3.5 1 件7 GB1235-76 挡圈A50*44*1.5 2 件8 ZT/101-90 活塞杆60×1000 1 件9 ZT/016-22 导向套80/60 1 件10 MJ-OR 静密封80/70/9 1 件11 MC661 承托环80/70/9 1 件12 MM506 导向环60/65/20 1 件13 MD652 杆密封60/75/13 1 件14 MF38 防尘圈60/70.6/5.3 1 件ZT/CH063n侧推千斤顶ZT/CH063n侧推千斤顶明细序号代号名称数量单位1 ZT/CH063n-01 缸体 1 件2 ZT/106-14 活塞63/35 1 件3 GB/T79-2000 内六角圆柱端端紧定螺钉M6*12 2件4 MD730 活塞密封63/50/14.5 1 件5 MM506 导向环63/58/9.7 2 件6 GB1235-76 O型圈35*3.1 1 件7 GB1235-76 挡圈A35*30*1.5 2 件8 ZT/101-25 活塞杆45*436 1 件9 MJ-OR 静密封65/58.4/5.4 1 件10 ZT/016-20 导向套63/45 1 件11 MM506 导向环45/50/15 1 件12 MD652 活塞杆密封45/55/8 1 件13 MF38 防尘圈45/55.6/5.3 1 件Y317-35 抬底千斤顶Y317-35 抬底千斤顶明细序号代号名称数量单位1 Y317-3501 缸体 1 件2 GB/T79-2000 内六角圆柱端端紧定螺钉M6*12 2件3 ZT/106-15 活塞100/60 1 件4 MM506 导向环100/95/20 1 件5 MD730 活塞密封100/85/13.5 1 件6 GB1235-76 O形圈60*5.7 1 件7 GB1235-76 挡圈A60*50*2 2 件8 ZT/016-23 导向套100/70 1 件9 MJ-UR155 静密封102/94/8.2 1 件10 MM506 导向环70/75/20 2 件11 MD652 杆密封70/82/9.6 1 件12 MF38 防尘圈70/82.2/7.2 1 件13 Y317-3502 活塞杆70*466 1 件Y317-42 底调千斤顶Y317-42 底调千斤顶明细序号代号名称数量单位1 Y317-4201 缸体 1 件2 GB/T79-2000 内六角圆柱端端紧定螺钉M6*12 1件3 ZT/106-15 活塞100/60 2 件4 MM506 导向环100/95/20 1 件5 MD730 活塞密封100/85/13.5 1 件6 GB1235-76 O形圈60*5.7 1 件7 GB1235-76 挡圈A60*50*2 1 件8 ZT/016-23 导向套100/70 2 件9 MJ-UR155 静密封102/94/8.2 1 件10 MM506 导向环70/75/20 1 件11 MD652 杆密封70/82/9.6 1 件12 MF38 防尘圈70/82.2/7.2 1 件13 Y317-4202 活塞杆70*431 1 件14 GB/T91-2000 开口销D6.3*40 1 件15 GB/T97-1985 平垫圈D24 2 件16 Y317-42/01 底调帽 1 件17 ZT00-01/13 销轴24*180 1 件郑州煤矿机械集团股份有限公司液压支架随机图册Y317-00A系统原理及连接图Y317-00A系统原理及连接图明细序号图号名称数量单位1D2-10堵8件2D2-12.5堵4件3FB-10/10/10G F型三通4件4FB-12/12/12G F型三通1件5FB-12/10/12G F型变径三通1件6T2-10三通2件7T2-12.5三通3件8TC2-10T型插接头2件10JC2-10弯头20件11JC2-10A弯头10件12JC2-10G(A)弯头8件13JC2-12.5弯头3件14JC2-12.5A弯头4件15JC2-12.5G(A)弯头4件16JC2-12.5弯头135°6件17JC2-16弯头135°2件19U2-10U型卡150件20U2-12.5U型卡70件21U2-16U型卡10件22U2-25U型卡2件23U4DC-16U型卡2件24U4-31.5U型卡2件25U2-38U型卡2件26U2-10*80U型卡20件27U2-12.5*80U型卡8件29KJR31.5D-35/2200胶管总成1件30DNR38-25/2200胶管总成1件31DNR25-17/2200胶管总成1件32DNR16-55/800胶管总成2件34DNR13-35/4000胶管总成1件35DNR13-35/1250胶管总成2件36DNR13-35/1200胶管总成2件37DNR13-35/1100胶管总成4件38DNR13-35/1000胶管总成2件39DNR13-35/900胶管总成2件40DNR13-35/600胶管总成6件41DNR13-35/500胶管总成2件42DNR13-35/400胶管总成2件44DNR10-40/5500胶管总成1件45DNR10-40/3000胶管总成1件46DNR10-40/2800胶管总成2件47DNR10-40/2300胶管总成1件48DNR10-40/2000胶管总成4件49DNR10-40/1800胶管总成1件50DNR10-40/1500胶管总成1件51DNR10-40/1450胶管总成2件52DNR10-40/1400胶管总成2件53DNR10-40/1350胶管总成2件54DNR10-40/1300胶管总成8件55DNR10-40/1100胶管总成10件56DNR10-40/500胶管总成2件57DNR10-40/350胶管总成1件58DNR10-40/300胶管总成4件60DNR10-70/1200胶管总成2件61DNR10-70/600胶管总成2件63189900283尼龙扎带8*4006件64060102984孔套120*302件郑州煤矿机械集团股份有限公司液压支架随机图册Y317-00B 液压系统布置图Y317-00B 液压系统布置图明细序号图号名称数量单位1 Y317-00B01 操纵阀组 1 件2 Y317-00B02 多通块 1 件3 Y317-00B03 操纵阀架 1 件4 Y317-00B04 支撑杆 2 件5 Y317-00B/01 多通块 2 件6 BZY50/80 压力表80MPa DN10 1 件7 CZF(DN13)A 差动组合阀 1 件8 FAD100/45(DN10) 安全阀 2 件9 FAD250/50(20/28) 安全阀 2 件10 FDGⅣ(DN10) 单向锁 2 件11 FDYM200/50(DN12/12/10) 立柱液控单向阀 2 件12 FJQB10 球形截止阀(DN10) 1 件13 FJQB16 球形截止阀(DN16) 1 件14 GLQ(B10) 喷雾过滤器 1 件15 GLQA(DN16)-HD 过滤器 1 件16 HDFⅠ(DN16) 回液断路阀 1 件17 PW04(DN10)X 喷嘴部件 1 件18 PWS04X 喷嘴部件(DN10) 1 件19 SKS1C(DN10) 双向锁 1 件20 GB/T41-2000 六角螺母M10 2 只21 GB/T41-2000 六角螺母M12 16 只22 GB/T5781-2000 六角螺栓M12*30 4 只23 GB/T5782-2000 六角螺栓M10*55 2 只24 GB/T5782-2000 六角螺栓M12*40 4 只25 GB/T5782-2000 六角螺栓M12*50 8 只26 GB/T5782-2000 六角螺栓M12*65 8 只27 GB/T70-2000 内六角圆柱头螺钉M10*65 8 只28 GB/T91-2000 开口销D10*80 2 只29 GB/T93-1987 弹簧垫圈D10 10 只30 GB/T93-1987 弹簧垫圈D12 24 只31 GB/T95-2002 平垫圈D12 6 只32 ZT/094-3 螺纹接头DN12.5 2 件33 ZT00E-01/2 螺纹接头L=190(DN10) 8 件34 ZT00E-01/2 螺纹接头L=80(M16) 2 件Y317-00B02 多通块Y317-00B04 支撑杆郑州煤矿机械集团股份有限公司液压支架随机图册二、贵州众一金彩黔兴隆矿ZYG3600/12/28型过渡支架随机图郑州煤矿机械集团股份有限公司液压支架随机图册GY317-00 总图明细序号代号名称数量单位1 GY317-01 顶梁 1 件2 Y317-02 掩护梁 1 件3 GY317-03 底座 1 件4 Y317-04 前连杆 1 件5 Y317-06 左后连杆 1 件6 Y317-07 右后连杆 1 件7 ZT/SLJ250h 立柱φ250*700*685-1130 2 件8 ZT/YH125 平衡千斤顶φ125/70*450 2 件9 ZT00-96/1 标牌-ZY 1 件郑州煤矿机械集团股份有限公司液压支架随机图册GY317-01 顶梁序号代号名称数量单位1 GY317-0101 顶梁体 1 件2 GY317-0102 顶梁左侧护板 1 件3 GY317-0103 顶梁右侧护板 1 件4 Y317-0106 伸缩梁 1 件5 ZT/SH080h 伸缩梁千斤顶φ80/60*700 2 件6 Y317-01/01 支杆 2 件7 ZT00-03/1 销轴24*300 4 件8 ZT/CH063n 侧推千斤顶φ63/45*170 2 件9 ZT00-14/1 销轴25*70 2 件10 ZT09-04/1 挡圈 2 件11 ZT00-03/3 销轴22*300 1 件12 Y317-01/02 千斤顶导杆 2 件13 ZT09-01/2 弹簧 2 件14 Y317-01/03 弹簧导杆 2 件15 Y317-01/04 弹簧导杆 2 件16 ZT00-03/1 销轴24*270 1 件17 ZT00-05/54 铰接轴90*480 2 件18 GB/T91-2000 开口销D4*20 4 只19 ZT00-07/3 挡销12*12*136 4 件20 ZT00-75/2 U形卡7 件21 ZT00-02/13 销轴24*155 12 件22 GB/T91-2000 开口销D6.3*40 12 只23 GB/T95-2002 平垫圈D24 8 只24 ZT00-02/4 销轴30*107 4 件25 GB/T91-2000 开口销D6.3*50 4 只26 GB/T95-2002 平垫圈D30 4 只27 ZT00-03/3 销轴22*270 1 件28 ZT00-15/7 销轴55*330 2 件29 ZT00-28/13 挡块 4 件30 ZT00-02/8 销轴50*215 2 件31 ZT00-11/8 垫圈50 2 件32 GB/T91-2000 开口销D10*80 2 只。
ZY2800型掩护式液压支架使用说明书ZY2800/09/20型掩护式液压支架使用说明书枣庄矿业(集团)有限责任公司第二机械厂目录概述 (2)第一节液压支架工作原理及主要技术特征 (2)一、液压支架的工作原理 (2)二、综采工作面配套设备 (3)三、液压支架技术参数 (3)四、油缸技术参数 (4)第二节支架的型式及组成 (5)一、支架的特点 (5)二、支架的组成 (5)第三节支架的主要结构件及其作用 (5)一、顶梁 (5)二、掩护梁 (5)三、底座 (6)四、前、后连杆 (7)五、推移机构 (7)第四节、液压系统及其控制元件 (7)第五节支架的操作及维护 (7)一、支架的操作 (7)二、对支架操作维护的要求 (8)三、支架操作的注意事项 (9)四、支架的维护和管理 (10)第六节支架常见故障及其排除 (11)一、结构件和连接销轴 (11)二、液压系统及液压元件 (12)三、支架在操作和支护过程中的故障 (14)附录一液压系统常见故障、原因及排除 (16)概述:综采液压支架是煤矿综合机械化采煤工作面主要设备之一,它与采煤机、输送机配套使用,液压支架的主要功能是支撑管理顶板,隔离采空区,维护采煤作业空间,并能自行前移,推进采煤工作面。
合理的选用综采设备并结合先进的采煤工艺,可解决采煤工作面的采煤、支护、运输等生产环节之间的矛盾,可有效地提高工效、增加产量、降低成本、减少损耗,保护生产人员和设备的安全,以及减轻笨重的体力劳动,可为煤矿获得很高的经济效益。
本支架为ZY2800/09/20型掩护式液压支架,产品执行标准为MT312-2000《液压支架通用技术条件》。
支架型号的组成及代表意义如下:Z Y 2800 /09 /20支架最大高度20dm支架最小高度9dm工作阻力2800KN掩护式支架第一节液压支架工作原理及主要技术特征一、液压支架的工作原理液压支架是由乳化液泵站提供高压乳化液作为动力由液压操作系统、控制系统、液压油缸和金属结构件组成。
摘要在新能源全面普及之前,煤炭仍然是我国化石能源的主体。
在现代采煤技术中,综合机械化采煤是现阶段最先进的采煤方法。
液压支架作为工作面的主要组成部分,能有效隔离工作面采空区,实现对不稳定矿压的有效控制。
然而,中都现有的液压支架存在着四柱式载荷不均、支架式稳定性差、支架盾构式成本高等问题。
鉴于此,本文设计开发了一种工作阻力为2600kn的液压支架,可同时适应采矿和充填作业。
本设计主要论述了液压支架的选型、总体设计、主要零部件的设计、校核以及液压系统设计。
支架的形式为掩护式支架。
支架除了要有效的对顶板进行有效支撑,还要实现升、降、推移四个步骤。
支架采用四连杆机构,改善支架的受力状况,缩小支架的升降过程中顶梁前端前后移动的距离。
立柱采用单伸缩液压缸,前端带有加长杆,以满足支架最低及最高位置时的高度要求。
关键词:液压支架;顶梁;底座;立柱;结构设计ABSTRACTBefore new sources of energy are fully popularized, coal remains the mainstay of fossil energy in my country. Among modern coal mining technologies, full mechanized coal mining is the most advanced method of coal mining at this stage. As the main component of the complete mechanized coal mining face, the hydraulic support can effectively isolate the mined area from the face and achieve effective control of unstable mine stress. However, the existing hydraulic brackets have certain problems in field use, such as uneven load of the four post type, poor stability of the bracket type, and the high cost of the bracket and shield type. . With this in mind, this article has designed and developed a hydraulic support with a working resistance of 2600 kN and suitable for both mining and filling operations in response to the filling and mining needs of coal mines. This design mainly deals with the selection of the hydraulic support, the general design, the design and verification of the main components and the design of the hydraulic system.The form of the stent is a shielded stent. In addition to effectively supporting the top plate, the rack must also perform four stages of raising, lowering and moving. The bracket adopts four-bar linkage mechanism to improve the strength condition of the bracket and reduce the distance of the front end of the upper beam moving back and forth during the bracket lifting process. The column adopts a unique telescopic hydraulic cylinder with an extension rod at the front end to meet the height requirements of the lowest and highest position of the stand.Keyword: Hydraulic pressure support;Top beam;Cradle;the column-type support;structure design目录摘要 (I)ABSTRACT (II)第一章绪论 (1)1.1课题研究背景 (1)1.2国外研究现状和趋势 (2)1.3国内发展现状及趋势 (4)1.4设计目标和内容 (6)第二章液压支架概述和方案设计 (7)2.1 液压支架的构成 (7)2.2 液压支架原理 (8)2.2.1液压支架中的载荷传递 (8)2.2.2 液压支架的工作过程 (9)2.3 液压支架的分类 (11)2.3.1 按放煤口位置分类 (11)2.3.2 按照结构形式分类 (12)2.4设计原始条件 (14)第三章液压支架的整体结构设计 (15)3.1 支架高度、中心距的确定 (15)3.1.1 支架高度的确定 (15)3.1.2 支架伸缩比 (15)3.1.3 支架间距 (15)3.2底座长度的确定 (16)3.2.1 底座长度 (16)3.2.2 底座宽度 (16)3.3四连杆机构的设计 (16)3.3.1 四连杆机构的作用与缺点 (16)3.3.2 四连杆几何特征 (17)3.3.3 四连杆机构各部尺寸的确定 (17)3.4顶梁长度计算 (21)3.4.1 支架工作方式对顶梁长度的影响 (21)3.4.2 顶梁长度计算 (22)第四章支架主要部件的设计 (24)4.1支架主要部件的设计要求 (24)4.2顶梁的设计 (24)4.3底座的设计 (25)4.3.1液压支架的底座 (25)4.4支架技术参数和立柱的设计 (26)4.4.1 支护面积 (26)4.4.2 支护强度 (26)4.4.3 确定立柱的技术参数 (27)4.4.4 安全阀压力与立柱工作阻力的确定 (27)4.4.6 支护效率 (30)4.4.7 底座接触比压 (31)4.5立柱柱窝位置和受力计算 (31)4.5.1立柱布置 (31)4.5.2立柱柱窝位置的确定 (32)4.6 千斤顶技术参数的确定 (33)4.6.1推移千斤顶 (33)4.6.2平衡千斤顶在顶梁上位置的确定 (33)4.6.3侧推千斤顶位置的确定 (36)第五章支架受力分析与计算 (38)5.1支架工作状态 (38)5.1.1 顶板状态 (38)5.1.2支架工作状态 (38)5.1.3支架受力 (38)5.2受力计算 (38)5.3 顶梁载荷分布 (41)第六章液压系统设计 (43)6.1液压支架的液压系统特点 (43)6.2 液压系统的设计方法 (43)6.3 千斤顶系统 (43)6.3.1. 侧推、调架、防倒系统 (44)6.3.2. 推移千斤顶系统 (44)6.3.3.平衡千斤顶系统 (44)6.3.4. 活动侧护板控制方式 (45)6.4乳化液泵站系统 (45)6.4.1乳化液泵站 (45)6.4.2泵站液压系统 (46)6.4.3乳化液泵站的元部件 (47)结论 (49)参考文献 (50)致谢 (52)第一章绪论1.1课题研究背景能源是人类生存和经济发展的物质基础。
序号型号支架特点配套设备重量高强板比例备注受力号附总图设计书使用书ZY3800/16/35单侧活前后均单整体顶梁带护帮整体底座正装推移立柱250单伸缩加长推移160(差动)采煤机MG250/475—W(上海)运输机SGZ730/400(西北)总13.5结构件11Q460占15.6%16Mn占78%成套图有有有有ZY3600/09/19单侧活前后均双整体顶梁整体底座正装推移立柱250推移140采煤机MG132/315—WD(鸡西)运输机SGZ630/220(西北)转载机SZZ730/75总9.6结构件7.68称9450Q460占66%成套图有有有有ZY2800/14/32双侧活前后均单整体顶梁带护帮整体底座正装推移立柱200单伸缩加长推移140(差动)采煤机MG150/375—W运输机SGZ630/264转载机SZZ630/264总9.1结构件7.07Q460占10%成套图已整改有有有有ZY3800/15/30双侧活前后均单铰接顶梁带护帮整体底座倒装推移分体推杆立柱250单伸缩加长推移140采煤机MG200/491—WD(鸡西)运输机SGZ730/320转载机SZZ764/132(西北)总12.095结构件9.015称11780Q550占21%Q460占39%成套图已整改有有有有ZY2400/08/19单侧活前后均双整体顶梁整体底座正装推移整体推杆立柱210推移125采煤机MG200—BW2运输机SGZ630/220总6.497结构件5.038Q460占57.5%成套图有有有有ZY2800/14/32单侧活前后均单整体顶梁带护帮整体底座正装推移立柱200推移140(差动)采煤机MG150/375—W运输机SGZ630/220转载机SZD630/264总9.1结构件7.07Q460占10%成套图有有有有ZY10000/24/50ZY10000/26/56ZY11000/28/63ZY3400/12/28ZY4000/09/20ZY5000/09/20ZY5200/11/24ZY6800/14/28ZY6800/17/36ZY6800/19/40ZY3400/11/25ZY3500/17/35ZY3600/15/35ZY3800/11.5/23ZY4000/12/22ZY4000/13/30ZY4000/15/32ZY6000/10/21ZY6800/14/32ZY6800/23/47ZY8000/19/40ZY8000/24/50DZY3200/14/28ZY2600/14/30ZY4000/14/29ZY3400/14.5/32ZY4600/17/38ZY4400/10/20ZY4400/8.5/18ZY6200/9.5/17ZY6400/12.5/28ZY4400/8.5/18掩护式液压支架ZY5000/08/16ZY5200/16/32ZY6400/12/24ZY6400/17/35ZY3800/12/24ZY2800/07/17ZY3000/10/23ZY3400/12/28(C) ZY3400/13/32ZY3400/14/34ZY4000/17/38(B) ZY3000/10/20ZY3200/07/17ZY3200/14/28ZY4800/18.5/35 ZY5000/13.5/28(A) ZY6000/14/26ZY6000/15/35ZY6000/21/42ZY6000/22/45ZY6200/16/32ZY2000/12/23ZY2600/11/24ZY2700/14/32ZY3000/09/19ZY3300/07/13DZY3300/8.5/15D ZY3300/8.5/17D ZY3500/09/19ZY2800/07/16ZY3200/14/28ZY3400/15/32ZY2100/11/22(A) ZY3200/14.5/31.5 ZY3800/16/35ZY4000/17.5/38 ZY2800/08/19ZY3400/12/23ZY2500/12/26ZY3200/13/30ZY3300/7.5/15D ZY3300/7.5/15D ZY3200/09/18ZY5000/11/24ZY5000/8.5/17D ZY3200/14/28ZY3200/18/37 ZY3300/11/26 ZY3300/16/33 ZY4600/15/33 ZY3200/08/18 ZY3600/9.5/22 ZY3000/08/18 ZY3200/07/15 ZY3200/10/19 ZY3200/10/19 ZY3200/12/24 ZY3200/13/26 ZY3200/13/30 ZY3200/14/34 ZY3600/16/36 ZY4000/16/40 ZY5000/25/50 ZY6000/22/45 ZY2800/11/25 ZY2800/12/25 ZY4000/22/44 ZY4800/20/40 ZY5000/17/35 ZY2000/07/14 ZY3000/07/14 ZY3200/17/36 ZY4100/15/30 ZY5000/16/35 ZY2500/12/26 ZY2500/14/32 ZY2800/09/19 ZY2800/09/21 ZY3000/13/26 ZY3000/13/28 ZY3200/08/18 ZY3200/11/26 ZY3400/17/39 ZY3600/12/28 ZY3800/11/26 ZY3800/17/38 ZY4000/10/23 ZY4000/12/26 ZY4000/13/31 ZY4000/14/32 ZY4000/17/37 ZY4200/16/36。
ZY3200/12/29型综采液压支架使用说明书重庆大江工业(集团)有限责任公司2012年5月目录一. 概述二. 支架的组成、用途及特点三. 主要技术特征四. 配套设备五. 主要结构部件及作用六. 液压系统七. 主要液压元件八. 支架的验收、运输及井下安装九. 支架的使用、操作和维护十. 常见故障、原因及处理一、概述ZY3200/12/29型支撑掩护式综采液压支架是根据我国中厚煤层的地质条件,并针对铁煤集团的具体使用条件和特殊要求,在吸收同类型支架优点的基础上而设计的。
该型支架与运输机、采煤机、过渡支架及端头支架配套使用,可实现水平工作面或倾角小于25度的倾斜工作面中厚煤层的割煤、支护、移架和运煤等综合机械化作业,为减轻工人劳动强度,大幅度提高工作面单产,增加经济效益,实现安全生产提供了一种较为理想的综采设备。
该支架为四柱四连杆支撑掩护式型式。
四根立柱支撑顶梁,主要承受顶板的垂直压力;同时通过掩护梁及前、后连杆与底座各自铰接构成四连杆机构,来承受支架所受的水平力和侧向力;顶梁带有护帮板,使得该支架支撑能力大,切顶与防护性能好,支架纵横向稳定性强。
ZY3200/12/29型液压支架主要参数合理,结构比较完善,功能较为全面,纵横向稳定性强;材料及制造立足国内,拆装、检修较方便;液控元件均择优采用国产定型质量可靠的产品,配件供应有充分的保证。
本支架的性能参数较为广泛的适应于国内中厚煤层的地质条件,各局、矿可根据具体条件选择使用。
二、支架的组成、用途及特点ZY3200/12/29型液压支架(外观见附图)主要由金属结构件、液压系统和防倒、调架装置三大部分组成。
主要金属结构件有:护帮板、顶梁、掩护梁、底座、前、后连杆、推杆及侧护板等。
液压控制系统除了立柱、各种千斤顶外,还包括各种液压控制元件(操纵阀组、安全阀、液控单向阀等)和液压辅助元件(管接头件、胶管等)。
防倒、调架装置包括顶梁、掩护梁的左右侧护板及各自的侧推千斤顶、弹簧套筒等。
ZY4000/13/28型掩护式液压支架的有限元分析[摘要]选取ZY4000/13/28型掩护式液压支架为研究对象,利用Pro/E进行三维建模,按照液压支架的试验标准,利用ANSYS对其进行有限元分析。
为ZY4000/13/28型掩护式液压支架的设计提供了理论依据。
【关键字】液压支架;有限元分析;Pro/E引言液压支架结构采用高强度钢板焊接而成,且为复杂的厚板箱形结构,焊接引起的残余应力和应力集中更为复杂。
采用ANSYS有限元分析软件,建立了液压支架结构件的有限元分析模型,模仿实验室试验的加载工况,对模型进行加载,从而获得结构件各处的应力和应变情况。
应用有限元分析法、动态与静态加载测试等研究分析手段来验证支架的可靠性,从而实现虚拟样机试验。
1、支架主要技术参数以ZY4000/13/28型掩护式液压支架为研究对象,对其进行有限元分析,该支架主要技术参数如表1所示。
2、三维建模利用液压支架参数化、可视化、动态优化设计软件对支架四连杆机构进行优化,可得出支架几何参数、受力分析表及各种分析曲线图。
然后运用Pro/E软件对液压支架进行三维建模,如图1所示。
3、有限元受力分析按照MT-312《液压支架通用技术条件》对主体结构件进行“顶梁偏载—底座扭转”及“顶梁扭转—底座弯曲”等11种复合加载工况下的模拟载荷试验,利用ANSYS有限元分析软件对其进行受力分析。
3.1简化模型在Pro/E中对模型进行简化处理。
删除用于避让焊缝的倒角、对受力影响可忽略的特征等,最终得到各板件之间面面接触、零间隙、无干涉的模型。
3.2加垫块和网格划分按照MT-312中测试垫块位置的规定,在支架Pro/E简化模型的相应位置加入垫块。
然后将模型导入ANSYS工作界面中,并采用四面体对模型进行网格划分,如图2所示。
3.3施加约束和加载此处以“顶梁偏载—底座扭转”为例,按照MT-312的加载要求,在立柱内部加载1.1倍工作载荷,底座底面和垫块表面添加位置约束,如图3所示。
1 煤矿综采工作面“三机”的选型综采工作面上进行的开采、装运、支撑等诸多工序均能实现机械化。
立足于井田煤层显著,在选择设备类型时需要分析到如下几种因素:(1)技术是否达到国际上尖端水平,生产过程是否安全可靠,同时保证高效率与高产量。
不同设备间在运行能力、外观尺寸上能配套,确保运送活动畅通推进,进而构建采、运两者的平衡状态,在过程上不形成瓶颈。
(2)将前期开采过的煤层设定为主要参照凭据,也要考虑到其他煤层的状态。
(3)将首采区煤层条件设定为重点对象,也要考虑到其他采区的生产问题。
(4)此次以巴愣矿井8号煤煤层为例介绍(8号煤层属比较稳定至稳定可采煤层,煤层倾角平缓,约为3°~7°,厚度分别为:2.37~4.7 m,平均3.32 m,煤层瓦斯低,有自燃危险。
各个煤层直接顶板构成以粉砂质泥岩、粉砂岩以及泥岩较为常见,粉砂岩、泥质粉砂岩、细粒长石砂岩等是底板的构成,岩性均比较松软,煤层埋深大,采掘支护难度较大)。
1.1 液压支架(1)支架高度。
首采区8号煤层为全采区可采煤层,厚度为2.37~4.7 m,只有一个钻孔揭露厚度为4.7 m,大部区域为2.37~3.69 m平均厚度为3.32 m,煤层赋存稳定。
根据顶底板条件和煤厚变化幅度,并参照矿区内其它矿井使用液压支架的实际经验,8煤选用ZY9000/22/40D型掩护式液压支架。
(2)支架支护强度。
根据液压支架使用寿命及煤层开采条件确定液压支架型号。
确定液压支架支护强度有“经验估算法”、“老顶平衡拱计算法”、“实测法”等几种方法。
用经验估算法进行验算。
依照既往生产经验公式,测算出支架支护的强度值。
1.2 采煤机采煤机持有的割煤能力直接影响着综采工作面生产效能,而采煤机设备持有的最大割煤牵引速度、连续割煤时间、截深以及开采高度等指标决定者其割煤能力是高是低。
连续割煤时间越长,预示着设备运行可靠性越高,实践中通常会参照该项指标设定煤层赋存条件、回采工艺流程及施工形式等。
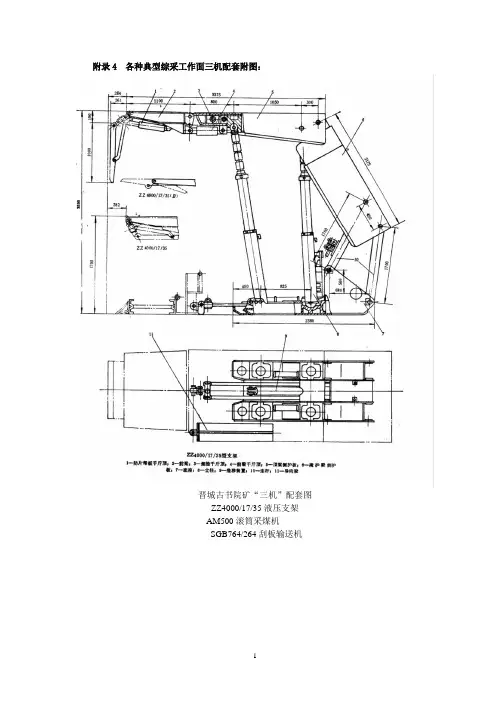
附录4 各种典型综采工作面三机配套附图:晋城古书院矿“三机”配套图ZZ4000/17/35液压支架AM500滚筒采煤机SGB764/264刮板输送机ZYG1800/14/32型液压支架MLS3P-170型滚筒采煤机SGWD-180型刮板输送机BY3300-13/33型掩护式支架KWB-3KDU型滚筒采煤机SGZ-764/264刮板输送机淮安五阳矿架后铺网“三机”配套图ZYP4000/17/35型铺网支架KWS-3KDVW-160X2型滚筒采煤机SGZ-764/264刮板输送机ZY3600/25/50大采高支架MXA-300/4.5滚筒采煤机SGZC764/320刮板输送机ZZ4800/22/42支撑掩护式支架MXA300/4.5滚筒采煤机SGZ-764/264刮板输送机VHP型单输机放顶煤支架MXA-300/4.5型滚筒采煤机SGZ-730/320刮板输送机FY280型插板式放顶煤支架MGD150-NW滚筒采煤机前部输送机SGD-90W/730;后部输送机SGW-40TZZPL600/19.5/31型前铺网支架MG600W型滚筒采煤机SGZ-764/264型刮板输送机TZ720-20.5/32型强力支架AM500型滚筒采煤机SGB-764/264型刮板输送机目录ZY3000/09/20掩护式液压支架主要技术参数............................................................................. - 13 -ZY3200/09/21型掩护式液压支架主要技术参数......................................................................... - 14 - ZY3200/7.5/16型掩护式液压支架主要技术参数....................................................................... - 15 - ZY5000/18/38型掩护式液压支架主要技术参数......................................................................... - 16 - ZZ2600/06/12型支撑掩护式液压支架主要技术参数................................................................. - 17 - ZY6700/20/40型掩护式液压支架主要技术参数......................................................................... - 18 - ZY4800/23/42型掩护式液压支架。
综机车间液压支架技术参数一、ZY3600/11/28二、ZY4200/13/32三、ZFS5800/17/33四、ZY3600/13/32五、ZFG6200/20/33六、ZY4200/16.5/35ZFQ2400/16/24支架型式轻型放顶煤支架高度mm1600~2400支架宽度mm1200~1270支架中心距mm1250初撑力(P=31.4MPa)KN1736工作阻力(P=42.5MPa)KN2350支护强度(A=4.03m2)MPa0.58MPa 1.56底板平均比压(A=1.5m2)前立柱缸径/活柱直径mmΦ140/Φ130行程mm800初撑力(P=31.4MPa)KN483工作阻力(P=42.5MPa)KN654后立柱缸径/活柱直径mmΦ125/Φ105行程mm800初撑力(P=31.4MPa)KN385工作阻力(P=42.5MPa)KN521侧护千斤顶缸径/杆径mmΦ63/Φ40行程mm70推力(P=31.4MPa)KN97.8拉力KN 58尾架千斤顶缸径/杆径mmΦ110/Φ85行程mm300拉力(P=31.4MPa)KN120推力KN298工作阻力(P=33MPa)KN313插板千斤顶缸径/杆径mmΦ110/Φ85行程mm400推力(P=31.4MPa)KN157.8拉力KN107.8推移千斤顶缸径/杆径mmΦ125/Φ70行程mm700推力(P=31.4MPa)KN384拉力KN264拉后溜千斤顶缸径/杆径mmΦ100/Φ70行程mm700推力(P=31.4MPa)KN246.8拉力KN125.6伸缩千斤顶缸径/杆径mmΦ80/Φ60行程mm610推力(P=31.4MPa)KN157.8拉力KN68.9数量组240八、ZY3600/15/35(平顶山煤矿机械厂)支架型式掩护式高度1500~3500mm中心距1500mm宽度1420~1590mm初撑力3090KN31.5MPa工作阻力3600KN36.7MPa支护强度0.61~0.64MPa>2200mm底板比压<2MPa平均值前梁前端挑力180/120(119/138)KN初撑力/工作阻力运输尺寸5680X1420X1500mm煤层倾角<20度泵站压力31.5MPa操纵方式单向临架操作支架重量16000kg立柱型式液压双伸缩两个缸径Φ250/Φ180mm柱径Φ235/Φ160mm行程1769(892+877)mm初撑力1545KN31.5MPa工作阻力1800KN36.7MPa推移千斤顶型式普通(倒装形式)一个缸径Φ160mm柱径Φ105mm行程850mm推力633KN拉力360KN护帮千斤顶型式普通一个缸径/杆径Φ80/Φ60mm行程348mm推力/拉力158/69KN侧推千斤顶型式内进液四个缸径/杆径Φ80/Φ60mm行程170mm推力/拉力158/69KN平衡千斤顶型式普通一个缸径Φ180mm杆径Φ105mm行程435mm初撑力801KN31.5MPa下腔工作阻力933KN36.7MPa 上腔工作阻力671KN40MPa 前梁千斤顶型式普通二个缸径/杆径Φ140/Φ105mm行程176mm推力485KN31.5MPa 工作阻力565KN36.7MPa 伸缩梁千斤顶型式普通二个缸径/杆径Φ80/Φ60mm行程800mm推力/拉力158/69KN抬底座千斤顶型式一个缸径/杆径Φ110/Φ85mm行程250mm推力/拉力298/120KN数量9组九、ZYG6400/17/35支架(北京)支架型式掩护式排头支架高度1700~3500mm中心距1500mm宽度1420~1580mm初撑力5064KN31.5MPa 工作阻力6400KN39.8MPa 支护强度≥0.99MPa底板比压 1.96-1.99MPa平均值运输尺寸6208X1430X1700mm推移步距630mm泵站压力31.5MPa操纵方式本架手动控制支架重量16000kg立柱型式液压双伸缩两个缸径Φ320/Φ230mm柱径Φ290/Φ210mm行程1735(898+855)mm工作阻力3200KN39.8MPa 推移千斤顶型式普通双作用一个缸径Φ160mm杆径Φ105mm行程900mm推力633KN拉力279KN侧推千斤顶型式普通双作用四个缸径/杆径Φ80/Φ60mm行程170mm推力/拉力158/69KN抬底千斤顶型式普通双作用一个缸径/杆径Φ125/Φ90mm行程250mm推力/拉力386/186KN平衡千斤顶型式普通双作用一个缸径Φ200mm杆径Φ140mm行程520mm(推)工作阻力1328KN42.3MPa (拉)工作阻力677KN42.3MPa 护帮千斤顶型式普通双作用一个缸径/杆径Φ80/Φ60mm行程340mm推力/拉力158/69KN31.5MPa 工作阻力(推)190KN38MPa 前梁千斤顶型式普通双作用二个缸径/杆径Φ160/Φ105mm行程240mm800/455KN39.8MPa 工作阻力(推/拉伸缩千斤顶型式普通双作用二个缸径/杆径Φ80/Φ60mm行程800mm工作阻力(推)190KN38MPa 推力/拉力158/69KN31.5Mpa 数量8组十、ZY6400/21/45支架(平顶山)支架型式两柱掩护式高度2100~4500mm中心距1500mm宽度1420~1590mm初撑力5066KN31.5MPa 工作阻力6400KN39.8MPa 支护强度0.98-1.03MPa底板比压0.5-1.91MPa泵站压力31.5MPa操纵方式手动控制立柱型式双伸缩两个缸径Φ320/Φ230mm柱径Φ290/Φ210mm行程2474(1213+1187)mm初撑力2533KN31.5MPa 工作阻力3200KN39.8MPa 推移千斤顶型式普通双作用一个缸径Φ160mm杆径Φ120mm行程900mm推溜力277KN31.5MPa拉架力633KN31.5MPa 侧推千斤顶型式普通双作用四个缸径/杆径Φ80/Φ60mm行程170mm推力/拉力158/69KN31.5MPa 抬底千斤顶型式单伸缩(内注液)一个缸径/杆径Φ125/Φ90mm行程220mm推力/拉力385/186KN31.5MPa 平衡千斤顶型式普通双作用一个缸径Φ200mm杆径Φ140mm行程520mm(推)工作阻力1250KN39.8MPa (拉)工作阻力638KN39.8MPa 护帮千斤顶型式普通双作用二个缸径/杆径Φ80/Φ60mm行程320mm工作阻力(拉)69KN31.5MPa 工作阻力(推)200KN39.8MPa 前梁千斤顶型式普通双作用二个缸径/杆径Φ160/Φ105mm行程200mm工作阻力(拉)361KN31.5MPa 工作阻力(推)800KN39.8MPa 伸缩千斤顶型式普通双作用二个缸径/杆径Φ100/Φ60mm行程800mm工作阻力(推)312KN39.8MPa 工作阻力(拉)158KN31.5Mpa 数量120组一、ZY4200/20/45。
徐矿集团夹河矿液压支架技术协议甲方:徐矿集团物供公司乙方:徐州华东机械厂2011年6月20日,徐矿集团物供公司、徐州华东机械厂就郑州煤矿机械集团股份有限公司为徐矿集团夹河煤矿设计、徐州华东机械厂制造的液压支架,经过双方协商,达成如下技术协议:一、工作面地质条件1、矿区位置:位于大丁场村东北,前崔店以西,相应地物为农田及建筑物。
2、2444工作面情况:顶板:伪顶为页岩,厚0.1-0.6m,直接顶为泥岩,厚4.6m。
底板:直接底为泥岩,厚1.6m,基本底为砂泥岩,厚2.6m。
工作面长度156m,煤层倾角14~32°,平均26°。
可采煤层2号煤层,煤厚0.4-2.6m,平均2.0m,煤层结构较复杂,一般含1-2层夹矸,夹矸厚度0.1-0.6m,平均0.4m,煤层局部区域有分叉变薄现象。
巷道尺寸为宽4.5m,高2.6m。
二、工作面配套设备1、采煤机: MG400/930-WD(太重煤机有限公司)2、刮板运输机: SGZ800/800(张家口煤矿机械有限公司)3、中间支架:ZY4600/14/29(郑煤机设计,徐州华东机械厂制造)4、过渡支架: ZYG4600/14/29(郑煤机设计,徐州华东机械厂制造)三、中间支架架型及主要技术参数1、中间支架架型中间支架架型:ZY4600/14/29型掩护式液压支架;数量:104 架;2、中间支架主要技术参数2.1 中间支架ZY4600/14/29主要技术参数2.2立柱、千斤顶主要技术参数2.2.1立柱(2根)型式双伸缩立柱内径/中缸内径(mm) φ280/φ200中缸外径/活柱外径(mm) φ260/φ185初撑力(KN) 1939(P=31.5MPa)工作阻力(KN) 2300 (P=37.36MPa)2.2.2 推移千斤顶(1根)型式倒装行程 (mm) 700油缸内径/杆径(mm) φ160/φ105推溜力/拉架力(KN) 361/633(P=31.5MPa)2.2.3 平衡千斤顶(1根)型式双作用油缸内径/杆径(mm) φ180/φ120推力/拉力(KN) 802/529(P=31.5MPa)工作阻力(推/拉) 967/638 (P=38MPa) 2.2.4 护帮板千斤顶(1根)型式双作用油缸内径/杆径(mm) φ100/φ70推力/拉力(KN) 247/126(P=31.5MPa)2.2.5伸缩梁千斤顶(2根)型式双作用油缸内径/杆径(mm) φ80/φ60推力/拉力(KN) 159/69(P=31.5MPa)2.2.6侧推千斤顶(3根)型式内进液油缸内径/杆径(mm) φ80/φ60推力/拉力(KN) 158/69(P=31.5MPa)2.2.7抬底千斤顶(1根)型式内进液油缸内径/杆径(mm) φ110/φ85推力/拉力(KN) 299/120(P=31.5MPa)2.2.8底调千斤顶(2根)型式内进液油缸内径/杆径(mm) φ110/φ85推力/拉力(KN) 229/120(P=31.5MPa)2.2.9防滑千斤顶和防倒千斤顶型式双作用油缸内径/杆径(mm) φ100/φ70推力/拉力(KN) 247/126(P=31.5MPa)四、过渡支架架型及主要技术参数1、过渡支架架型过渡支架架型:ZYG4600/14/29型掩护式液压支架;数量:6架;2、过渡支架主要技术参数2.1 过渡支架ZYG4600/14/29主要技术参数2.2立柱、千斤顶主要技术参数2.2.1立柱千斤顶规格同中部支架2.2.2 锚固千斤顶(1根)型式双作用油缸内径/杆径(mm) φ100/φ70推力/拉力(KN) 247/126(P=31.5MPa)五、支架结构特点及技术要求1、支架适应的工作面倾角:≤30°。
一、支架型式1、中间支架采用整体顶梁、二级护帮板机构、双侧活动侧护板,侧护板使用时一侧可伸缩,另一侧用锁销固定。
2、护帮板可回转 180 °,护帮(一、二级)高度2800mm。
护帮千斤顶安装双向液压锁。
3、过渡支架采用整体顶梁、一级护帮板机构、双侧活动侧护板,侧护板使用时一侧可伸缩,另一侧用锁销固定。
4、为满足工作面配套需求,端头架支架采用整体顶梁带伸缩梁机构。
5、中间支架、过渡支架、端头支架均可适应左右工作面互换。
6、推移油缸活塞与活塞杆的联结方式采用卡环结构。
推移油缸推溜控制回路设液压闭锁装置,防止运输机倒拉。
7、端头支架配防倒、防滑、调架装置、其他支架全部预留防倒、防滑、调架装置位置。
端头支架配防倒、防滑装置三架一组共2套,中间架配防倒、防滑装置两架一组共28套,总计30套,所有支架均配抬底装置;所有支架必须能适应本协议第二节所提供的工作面条件。
推移千斤、侧护千斤、护帮千斤和抬底千斤必须满足在提供的最差工作条件下移架、推溜、调架、防护煤帮的要求,机头端头推移千斤的推移力必须满足在最大仰斜坡度下整体推移刮板机机头、转载机、破碎机的要求。
8、机头、机尾两端的端头支架底座外侧加装挡矸板,顶梁外侧加装侧护板装置。
9、支架最低位置时设有机械限位装置,支架顶梁和掩护梁最大夹角时设有机械限位装置。
10、所有大于60kg部件都设有起吊环,支架顶梁须设计方便更换部件时悬挂起吊用具的吊环。
11、支架立柱后设有行人通道,最小宽度不低于600mm。
12、每台支架的进液管上应安装手动反冲式过滤器,过滤精度不低于25μm,每台支架上设置本架清洗装置。
13、液压支架供液系统额定压力37.5MPa。
14、立柱间安装防护网,平衡千斤顶设置防坠落装置,立柱底座柱窝箱间加装原平大鹏化工机械有限公司高弹性聚氨酯填充物。
15、支架结构件、立柱及千斤顶颜色为白色,推移框架为黑色。
16、基本架、过渡架、端头架进行编号,编号规则为:端头2T001-2T007、长过渡2G008-2G009、短过渡2G010-2G014、基本架2Y015-2Y176。
××煤矿综放工作面三机配套技术协议2011年7月26~29日由××煤矿、××煤矿机械集团股份有限公司、××煤矿机械有限责任公司、××煤矿机械有限公司的技术人员,在××煤矿就××煤矿综放工作面设备配套进行了深入广泛的讨论,××煤矿和各设备厂家最终达成如下三机配套协议:一、工作面条件1、工作面长度:150m(实体煤),工作面:右工作面2、工作面倾角:近水平3、矩形巷道尺寸:运输巷4.5×3.0m;回风巷4m×3.0m二、配套设备ZF5600/17/35D中间支架:97架(××煤矿机械集团股份有限公司) ZFG6500/20/35过渡支架:6架(××煤矿机械集团股份有限公司) ZPT12000/22/38端头支架:1组(××煤矿机械集团股份有限公司)MG300/730-WD2采煤机:1台(××煤矿机械有限公司)SGZ800/800刮板输送机:2台(××煤矿机械有限责任公司)SZZ900/250转载机:1台(××煤矿机械有限责任公司)PCM200 锤式破碎机:1台(××煤矿机械有限责任公司)三、液压支架(××煤矿机械集团股份有限公司)1.中间架97架型号ZF5600/17/35D支架参数及结构特点详见技术协议2.过渡架6架(机头机尾各3架)型号ZFG5600/20/35支架参数及结构特点详见技术协议3. 中间架与机头、机尾过渡支架与前部输送机联接方式:输送机推移耳板厚度100mm,单耳Φ62,支架连接头为双耳形式;与后部输送机联接采用软联接(用Φ30×108圆环链连接,圆环链由张煤机提供),过渡支架与后部输送机相连的圆环链由张煤机提供,圆环链连接耳为:双耳Φ52,耳板厚度60mm,间隔86mm,连接销轴张煤机提供。
C H I N A V E N T U R E C A P I T A L92科技技术应用|TECHNOLOGY APPLICATION开滦集团吕家坨矿业分公司,多年来长期处于水采工艺阶段,自从2004年以后才逐渐转型为旱采,水旱转型初期,煤层倾角超过40°的工作面基本不进行回采。
随着吕家坨矿业分公司水旱成功转型,加上地质条件日益复杂等因素的影响,迫切需要改进采煤工艺,以达到资源挖潜。
2011年2月份,在-600水平八采区域5823工作面(采面倾角平均为35°,局部达到45°)安装综采设备成功。
本文结合5823大倾角工作面的安装成功展开讨论。
一、概述5823工作面位于荆各庄-800水平西八采区12#煤层,工作面走向长度500m,倾斜长度147m,可采走向410m。
工作面煤层倾角最大为45°,平均为33°。
二、工作面安装主要设备配套情况液压支架为ZY3600-12/29掩护式液压支架(主要技术参数)项目ZY3600-12/29支架支护高度/mm 1200-2900支架工作阻力/KN 3600支架初撑力/KN 3090支架支护强度/MPA 0.51—0.62支架中心距/mm 1500支架宽度/mm1420-1590采煤机:采煤机MGTY-500刮板输送机:运输机SGZ-730/400。
三、安装前的准备工作1.采面铺设行人抬阶考虑到大倾角工作面人员站位及上下工作面行走和运料都十分困难,在安装刮板输送机和液压支架一侧分别用半圆铺设了行人抬阶,并铺设一条粽绳作为上下工作面用。
2.改进运输车辆及支架底座采面采用10.5m2拱形支架和3m 板联合支护亮面。
如何浅析大倾角工作面综采设备安装工艺开滦能源化工股份有限公司吕家坨矿业分公司 勾海龙解决采面安装过程中回下的单体液压支柱和拱形支架的运输,我们对现有的运输平车(图一)进行改造(图二),使其在平车尾端焊一个挡板,两板用螺栓与平车固定住,便于单体液压支柱和拱形支架的运输。
综采设备(液压⽀架)技术协议(签字版)陕西华电榆横煤电有限责任公司⼩纪汗煤矿第三套综采设备(液压⽀架)技术协议需⽅:陕西华电榆横煤电有限责任公司供⽅:郑州煤矿机械集团股份有限公司⼆零⼀五年六⽉第⼀节⼯作环境1.基本情况陕西华电榆横煤电公司⼩纪汗煤矿主要开采2号、4-2号两层煤层,拟采⽤的主要设备有电牵引采煤机、电液控制液压⽀架、刮板运输机、顺槽胶带机等综采设备,连采机掘进配套设备及综采⼯作⾯安装回撤设备。
2、使⽤条件2.1井⽥地形、⽓象⼩纪汗井⽥地处陕西省榆林市境内,⾏政区划分属于榆林市榆阳区⼩纪汗乡、芹河乡和岔河乡管辖。
井⽥位于鄂尔多斯盆地之次级构造单元陕北斜坡中部,地质构造简单,区内⽆较⼤断裂和褶皱发育,⽆岩浆活动痕迹局部发育宽缓的波状起伏。
总体构造形态为⼀向北西西缓倾的单斜层,倾向约2950,平均倾⾓⼩于10。
海拔约1108.9m~1257.4m,⾼差148.5m。
本井⽥属温带⼤陆性半⼲旱季风⽓候。
冬季长⽽严寒,秋季多⾬、夏季酷热⽽短暂,春季风沙频繁。
年平均⽓温±8℃,最⾼⽓温36.7℃,最低⽓温-29.7℃,⽇温差达到15~20℃。
⼀般结冰期为每年11⽉⾄翌年3⽉,最⼤冻⼟深度1.45 m。
四季多风,风向多为东南,最⼤风速18.7m/s,最⼤风⼒达8级以上。
降⾬多集中在7、8、9三个⽉,年平均降⽔量279~541mm。
年总蒸发量为1720mm~2085mm。
本地区⽆霜期约150~180天。
2.2开采技术条件2.2.1岩⽯⼯程地质特征井⽥地形地貌和地质构造简单,地层岩性较单⼀,岩体结构多为厚层状,岩体各向异性,饱⽔抗压强度⼀般为20~40MPa,属于中硬为主的层状矿床。
可采煤层顶板多属中等冒落到难冒落顶板,稳定性较好;底板多以泥岩、粉砂质泥岩为主,强度较低,局部易产⽣底⿎现象。
井⽥⼯程地质勘探类型可划分为三类⼀型,即层状岩类简单型矿床。
2.2.2⽡斯井⽥内各煤层⽡斯⼤多处于⼆氧化碳—氮⽓带内,仅西部局部地段由于埋深较⼤⽽处于氮⽓—沼⽓带,总体上地层产状近⽔平,⽆贮⽓构造,煤的变质程度低,虽有少量⽡斯溢出,但⼤多沿岩⽯裂隙逸散于⼤⽓中,测试结果⽓体总量很⼩。
贵州能发高山矿业有限公司PC7I转子式混凝土喷射机技术规格书
编制人:
机电部长:
机电矿长:
贵州能发高山矿业有限公司
2018年9月17日
贵州能发高山矿业有限公司
PC7I转子式混凝土喷射机技术规格书
一、适用条件
1、海拔不超过1500m:
2、环境温度:-10 ~+40℃
3、空气相对湿度不超过95%(+25℃时)。
4、在有甲烷混合气体和煤尘,且有爆炸危险的环境中。
5、无足以腐蚀金属和破坏绝缘的气体和蒸汽。
6、无滴水的地方。
7、电源电压的波形近似于正弦波。
8、三相电源电压近似对称。
二、设备项目
1、设备名称:转子式混凝土喷射机
2、设备型号:PC7I
3、设备数量:贰台
三、主要技术参数
1、生产能力:7m3/h
2、输送距离(潮喷):水平200m、垂直50m
3、最大骨料粒径:φ20mm
4、输送管内径:φ63mm
5、工作压力:0.4~0.6MPa
6、耗风量:10~15m3/min
7、上料高度:1180m
8、转子转速:12r/min
9、适合混合料水灰比:>0.2
10、速凝粉剂掺量:3-8%。
11、电机功率:7.5KW
12、电机电压等级:0.66/1.14KV
13、机器轨距:600mm
注:以上技术参数仅供厂家参考,厂商设备与上述参数不符,应标出双方进行商讨,满足我矿使用要求。
四、主要技术要求
1、订货设备设计、制造、验收、安装等要符合国家、机械行业有关标准和规定。
2、设备出卖方应提供技术成熟先进,质量稳定,保护齐全,且使用安全可靠的产品。
3、喷浆机采用独特的直通式转子,每个圆孔中部内衬,用不粘结材料合成的橡胶料腔,确保机器处理湿料的能力。
4、转子衬板采用高耐磨合金工具钢材料制造。
5、喷浆机结构应合理,各运行部件要设有防护装置,使用寿命长,效率高,检修方便。
设备及其组件应具有足够的强度和刚度。
6、配套电机采用南阳防爆或佳木斯或西北骏马厂家。
五、产品应遵循的标准
5.1应遵循的主要现行标准
《煤矿安全规程》 2016
GB3836.1 爆炸性环境用防爆电气设备通用要求
5.2 如有最新版本的规范标准,则应按最新版本执行
5.3 设备出卖方可采用高于或等同于上述标准的国家及行业标准
六、技术资料的提供
6.1 设备出卖方在设备交货时提交下述与产品完全一致产品运行及使用有关的图纸及技术文件一式二份:
全套的安装使用说明书、产品合格证明书、防爆合格证、煤安标志证、生产许可证、产品外形尺寸图、运输尺寸图、产品拆卸一览表、装箱单、铭牌图或铭牌标志图及备件一览表等。
6.2 出厂试验记录:详细记录相关规范书所规定出厂试验项目中的全部试验结果,产品的检验和试验报告,质量保证书。
七、安装、调试、试运行
1、待设备出卖方中标后,在签订合同或技术协议时在确定具体的交货日期。
2、设备产品抵达现场,开箱前由设备使用方提前3天通知设备出卖方,设备出卖方应届时派人参加开箱验收,并进行安装、调试、人员培训等技术指导。
3、设备运抵调试现场以后,设备出卖方应派能胜任的安装技术人员进行组织指导安装工作。
安装时,设备出卖方派人免费指导安装、调试。
4、安装、调试完成并具备试运行条件以后,设备出卖方技术人员先进行现场运行演示,同时对设备使用方人员进行现场培训。
八、质量保证及售后服务
8.1 质量保证
8.1.1 设备出卖方应保证制造中所有工艺、材料等(包括设备出卖
方的外购件在内)均应符合现行相关标准的规定。
若设备使用方根据运行经验指定设备出卖方提供某种外购件,设备出卖方应积极配合,如有异议应在1周内以书面形式通知设备使用方。
8.1.2 附属及配套设备必须满足本协议的有关规定及厂标和行业标准的要求,并提供试验报告和产品合格证。
8.2 售后服务
8.2.1 产品质保期一年,一年内因产品质量出现问题,设备出卖方应在接到通知2小时内作出明确答复,24小时内派熟练的技术人员赶到使用现场,免费更换配件和维修。
终生为使用人提供产品大修的技术指导,必要时亲临现场。
8.2.2 设备出卖方派技术人员免费到设备使用方现场指导安装、调试、现场试验等,三个月内的试生产服务,并对维修和操作人员进行技术培训。
8.2.3 设备出厂前,设备出卖方为设备使用方有关人员在出卖方工厂免费进行技术培训,免费提供食宿和技术资料,保证矿方人员达到熟练操作和能够独立维护、维修。
九、其它要求
1、设备出卖方按设备总价格的3%提供免费随机配件,随机配件明细由设备使用方与设备出卖方商定。
2、设备出卖方负责把设备运送到贵州能发高山矿业有限公司工业场地,出卖方承担所有费用。
3、未尽事宜,双方友好协商解决。