(完整版)钢筋施工节点详图及做法说明
- 格式:docx
- 大小:1.78 MB
- 文档页数:22
钢筋工程施工质量标准化图册,图文详解!展开全文板筋安装成形效果说明:所有钢筋制作及安装必须满足施工规范图纸、选用平法图集、钢筋排布图集的要求。
第一节墙、柱钢筋要求:1、墙柱水平筋端头绑扎牢固。
2、剪力墙竖向钢筋顶部弯折水平段≥12d,并保证锚固长度(从板底算起)。
3、端部有暗柱时剪力墙水平钢筋端部弯折水平段直钩为15d,一字柱时为10d;当水平筋为一级钢时加设3d长的180度弯钩,当为普通剪力墙时,水平筋置于竖向筋外侧(与暗柱箍筋在同一层面,伸至暗柱最外侧纵筋内侧直钩“扎进”暗柱内);当为地下室挡土墙及人防墙时水平筋置于竖向筋内侧。
4、框架节点核心区内均必须设置加密箍筋。
抗震设防要求的,必须按施工图设计文件中的要求配置复合箍筋,不得随意减少。
梁柱节点核心区箍筋挡土剪力墙钢筋及垫块墙筋收头要求第二节梁钢筋安装1、梁上部纵向钢筋的最小净距(即钢筋外边缘之间的最小距离),不应小于30mm和1.5d;各排钢筋之间及底筋的净距及梁底部纵筋间距不应小于25mm和d。
2、吊筋弯起段应伸至梁上纵筋处,并且加水平段20d,弯起角度当主梁高≤800mm为45度,>800mm时为60度。
3、主次梁相交处设置加密箍筋时,应在主梁上次梁两侧分别设置,每侧不少于3个(按设计要求),核心区箍筋不得漏设。
4、当梁的腹板高度hw≥450mm时,在梁的两个侧面沿梁高度范围内配置侧面纵向构造钢筋。
吊筋和侧面构造钢筋梁上部纵向钢筋主次梁交接处加密箍筋第三节板钢筋安装1、为了保证楼面钢筋排布均匀,间距符合设计尺寸,在板底钢筋绑扎前,模板上进行划线控制。
2、钢筋马凳设置于两层板筋之间,脚部不得直接搁置在模板上,防止露筋后锈蚀影响结构质量。
安装时可先行固定在下层板筋之上,以免安装不到位,有条件最好采用塑料或砼成品垫块。
3、钢筋绑扎应确保控制钢筋不位移。
板筋安装成形效果弹线控制双向钢筋不得漏绑第四节钢筋加工制作定型化加工弯钩尺寸要求定型模具第五节钢筋焊接焊接接头:1、电渣焊钢筋轴心位移不超过0.1d, ≤2mm;气压焊轴心位移不超过0.2d, ≤ 4mm;墩粗最小直径不小于1.4d,墩长不小于1.2d;焊接钢筋直径差不宜大于7mm(两级别)。
16G101图集中常见钢筋节点做法钢筋节点在建筑工程中是非常重要的一个组成部分。
它们连接了不同的钢筋,不仅提高了整个结构的稳定性,而且也决定了建筑的外观美观程度。
在16G101图集中,常见的钢筋节点做法有许多种,本篇文章将详细介绍其中一些常见的做法。
一、梁柱节点又称为悬挑节点,主要应用于框架结构的建筑中。
其基本特点是从柱子上悬挑出一根梁,将钢筋固定于梁上,连接两根悬挑出来的板条。
而这样做的目的是增加整个构造的强度。
同时,这种节点设计的一个重要标志是斜撑。
这个设计有助于增加钢材的耐久性,减少对构造的负担,防止现有构造的震荡。
二、板-柱节点板-柱节点顾名思义,其主要功能就是将板条和柱子紧密地连接在一起。
这种节点主要用于楼板和柱子的固定,这种设计有许多好处,例如防止震荡,提升楼体的强度等等。
需要注意的是,这种节点还需要用钢丝缠绕固定,以确保连接牢固。
三、柱-梁节点柱-梁节点就是将柱子和梁靠近的地方进行连接。
这种设计被普遍应用于框架结构楼房。
柱子在这里充当了支撑梁的作用,保持整个绑定的牢固。
这种设计的好处是能增加楼房的承载能力,使整个楼房更加稳定安全。
四、斜撑节点斜撑节点主要被用于铁路桥梁和道路地堤上。
斜撑的目的是固定支撑柱,使之更加牢固。
一般来说,这种结构的设计还要考虑到斜撑的位置、长度等等。
这种节点的好处是能够增加桥梁的承载能力,使整个桥梁更加稳定,防止受到风和压力的影响。
五、板-薄壳节点板-薄壳节点是一种比较常见的设计,主要应用于楼梯阶级、水泥浇铸和钢筋标准化。
这种设计的做法也很简单。
首先,将钢筋焊接起来,使其成为一个整体。
然后在钢筋中加入混泥土或水泥。
最后在钢筋周围施加稀释剂或其他防腐剂。
这样做的好处是,能够在有限的空间内使钢筋稳定地固定,增加了钢筋的强度,达到了更好的支撑作用。
六、板-板节点板-板节点可以说是最简单的一种钢筋节点了。
这种节点设计的主要目的是连接不同的板子,增强结构的稳定性。
和板-柱及板-梁节点相似,需要用钢筋连接不同的板条,使之成为一个整体,并且用防腐剂进行保护。
措施钢筋设置方案
1、地库顶板及地库底板措施钢筋设置,利用原有主筋作为纵横向架立钢筋。
几型马镫钢筋采用直径16mm的钢筋制作,纵横间距1500mm。
优先采用加工后短钢筋再利用。
图1:地库顶板及底板措施钢筋设置
2、后浇带位置
在后浇板两侧位置用绑丝将双层钢丝网绑扎于钢筋网架上,以承载浇筑混凝土时对铁丝网的侧压力以防止铁丝网断裂、跑位从而造成质量问题,浇筑后钢筋不取出;钢筋网架做法如图1所示。
短钢筋优先采用废料再来利用。
图2-1:后浇带位置钢筋网架构造图2-2后浇带位置单侧钢筋网架布置立面图所有有止水钢板位置采用直径12mm的钢筋进行焊接固定,间距2000mm一道,
短钢筋优先采用废料再来利用。
图2-3:后浇带位置单侧止水钢板固定立面图
图2-4导墙及施工缝位置止水钢板固定立面图
图2-5导墙及施工缝位置止水钢板固定平面图
3、墙体、柱子、柱帽定位钢筋
为了保证柱子及墙体钢筋位置的准确,不发生位移,在墙体下部纵向间距每隔1m设置一道定位钢筋定位钢筋与主筋点焊,放置主筋偏位及便于模板合模定位;墙柱定位钢筋应采用废料再利用。
为了保证柱帽侧模板加固定位,柱帽侧模采用12的对拉钢筋固定,每侧对拉四道。
图3-1:墙体及柱子定位钢筋布置图
.
图3-2:柱帽位置模板固定对拉丝杆钢筋设置
4、楼板马镫钢筋
地上楼板的钢筋绑扎,双层钢筋网片之间加马凳铁,呈梅花状布置,或加设工字马凳(如下图)楼板马镫筋采用规格为螺纹钢HRB400,直径10mm纵横间距1000mm;具体构造如下图所示:
L1=100mm
L2=板厚-上下保护层厚度-楼板钢筋直径
L3=100mm
图4-1:楼板马镫钢筋设置。
钢筋工程施工工艺目录一、编制依据 (1)二、适用范围 (1)三、施工要求 (1)四、做法详图 (3)1.箍筋制作图 (4)2.箍筋绑扎图 (5)3.柱钢筋安装图 (6)4.柱与梁钢筋安装图 (9)5.剪力墙构造详图 (10)6.剪力墙钢筋绑扎图 (11)7.梁节点钢筋安装图 (12)8.梁节点钢筋安装图 (13)9.主次梁节点钢筋安装图 (14)10.板钢筋安装图 (15)11.楼梯构造图 (17)12.梯板钢筋安装图 (18)五、工艺流程和操作要点 (19)1.施工工艺流程 (19)2.操作要点 (19)3.常见质量问题和原因分析 (21)一、编制依据1.《建筑工程施工质量验收统一标准》GB50300-20132.《混凝土结构工程施工质量验收规范》GB50204-20153.《建筑物抗震构造详图》20G329-14.《国家建筑标准设计图集》16G101-1~3二、适用范围混凝土结构工程墙、柱、梁、板、楼梯等钢筋制作、安装、固定。
三、施工要求1.钢筋品种、规格、连接形式、锚固及搭接长度等必须满足设计和规范要求。
2.墙柱、梁板及其他钢筋构造必须按16G101相关图集的要求进行制作、绑扎。
3.钢筋应平直、无损伤,表面不得有裂纹、油污、颗粒或片状老锈。
4.钢筋弯折的弯弧内直径应符合下列规定:1)光圆钢筋,不应小于钢筋直径的2.5倍;2)335MPa级、400MPa级带肋钢筋,不应小于钢筋直径的4倍;3)500MPa级带肋钢筋,当直径为28mm以下时不应小于钢筋直径的6倍;4)当直径为28mm及以上时不应小于钢筋直径的7倍;5)箍筋弯折处尚不应小于纵向受力钢筋直径。
4.箍筋、拉筋的末端应按设计要求作弯钩,并应符合下列规定:1)对一般结构构件,箍筋弯钩的弯折角度不应小于90°,弯折后平直段长度不应小于箍筋直径的5倍;对有抗震设防要求或设计有专门要求的结构构件,箍筋弯钩的弯折角度不应小于135°,弯折后平直段长度不应小于箍筋直径的10倍和75mm两者之中的较大值;2)圆形箍筋的搭接长度不应小于其受拉锚固长度,且两末端均应作不小于135°的弯钩,弯折后平直段长度对一般结构构件不应小于箍筋直径的5倍,对有抗震设防要求的结构构件不应小于箍筋直径的10倍和75mm的较大值;3)拉筋用作梁、柱复合箍筋中单肢箍筋或梁腰筋间拉结筋时,两端弯钩的弯折角度均不应小于135°,弯折后平直段长度不应小于箍筋直径的10倍和75mm两者之中的较大值。
纵向受拉钢筋在各种抗震等级下的最小锚固长度应符合设计要求,并且应符合《混凝土结构施工图平面整体表示方法制图规则和构造详图》(03G101-1)第34页中纵向受拉钢筋的最小锚固长度的要求。
当设 计与施工图集要求不同时,应与设计协商,办理相应变更手续确定取值大小。
上图为剪力墙结构几种常见的锚固方式,均考虑一、二级抗震。
钢筋具体锚固形式可按照《混凝土结构施工图平面整体表示方法制图规则和构造详图》(03G101-1)的要求施工。
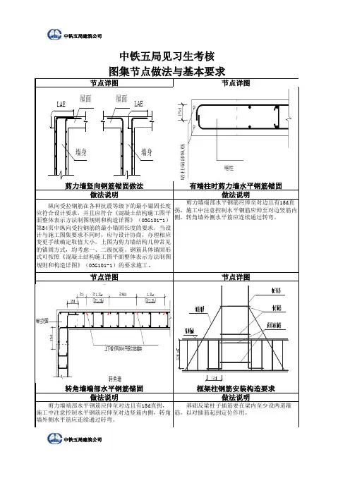
剪力墙端部水平钢筋应伸至对边且有15d直拐,施工中注意控制水平钢筋应伸至对边竖筋内侧,转角墙外侧水平筋应连续通过转弯。
剪力墙端部水平钢筋应伸至对边且有15d直拐,施工中注意控制水平钢筋应伸至对边竖筋内侧,转角墙外侧水平筋应连续通过转弯。
基础反梁柱子插筋要在梁内至少设两道箍筋,以对插筋起到定位作用。
转角墙端部水平钢筋锚固框架柱钢筋安装构造要求节点详图节点详图做法说明做法说明中铁五局建筑公司中铁五局建筑公司中铁五局见习生考核图集节点做法与基本要求节点详图节点详图做法说明做法说明剪力墙竖向钢筋锚固做法有端柱时剪力墙水平钢筋锚固LAE LAE墙身墙身屋面屋面转角墙端部水平钢筋锚固1.括号内尺寸用于非抗震。
2.柱纵筋进入节点位置从梁腋底部计算,梁腋下部斜纵筋,箍筋及梁下部纵筋在节点处的锚固构造与本图节点构造相同;3.梁腋下部斜纵筋根数不大于伸入支座的梁下部纵筋根数n 的n-1(且不少于2根),并对称插空放置,具体设置应以设计要求为准。
洞口钢筋安装构造洞口尺寸≥200mm时,洞口设附加筋,构造加筋、预埋件、电器线管、线盒、预应力筋及其配件等,位置准确,绑扎牢固,需焊接固定部位,不准咬伤受力钢筋。
安装电盒时,尽量不切断钢筋,电盒焊在附加的钢筋上,安装牢固,不得焊在主筋上,且附加钢筋不得焊在受力筋上,而应绑扎在主筋上。
节点详图做法说明节点详图做法说明中铁五局建筑公司节点详图伸至柱外边(柱纵筋内侧),且≥0.4Lae(0.4La)节点区最上一组箍筋5050505050≥Lae ,且≥C1+0.5hc+5d (≥La )弯锚时15d 直锚时≥0.5≥hc+5d直锚时≥L a e (L a )直锚时≥L a e (L a )弯锚时≥L a e (L a)腋高C 2节点区最下一组箍筋hc腋长C2梁箍筋加密区箍筋加密一级抗震等级≥2h b ,500二到四级抗震等级≥1.5h b ,50015d11h cC 2b1-1(c)(b)(a)As-As且不小于4 14不小于被切断钢筋的一半(400)墙宽墙宽1000<H 《1500l a E 500<H 《1000l a E1000<H《1500laE 500<H《1000laEAs>2 12,且不小于被切断钢筋的一半AsAs A s A s l a E 300<H 《500l a E laE 300<H《500laEAs A sA s As l a E 300<H 《500l a E laE 300<H《500laE剪力墙水平筋交错搭接墙体水平钢筋搭接接头错开间距应≥500mm,同一构件中相邻纵向受力钢筋的绑扎搭接接头应相互错开50%。
16G101基础、柱、梁、板、楼梯、剪力墙钢筋绑扎要点大汇总(大量节点图)案例工程简介:1、基础结构形式:人工挖孔桩、长螺旋挖孔桩、独立基础、条形基础、承台基础。
2、主体结构形式:框架结构、钢混结构。
3、孔桩部分:长螺旋桩及人工挖孔桩桩身钢筋采用焊接。
4、基础及主体部分:φ16及以上的钢筋使用机械连接,直径小于16的使用绑扎搭接。
01基础底板钢筋绑扎1、基础底板钢筋绑扎施工流程:1)在底板钢筋绑扎前,先按照设计要求钢筋间距,算出底板需用的钢筋,根数,在垫层上放出底板钢筋摆放的位置线,(包括地梁钢筋位置线)和墙柱插筋位置线。
2)承台钢筋绑扎先铺底板下层钢筋。
喜欢一个人根据设计和规范要求,决定下层钢筋哪个方向钢筋在下面,参照16G101-1第66-70页安装,绑完下层钢筋后,按间距0.8m 左右设置钢筋马凳,马凳及附加钢筋应支设在下层钢筋网上,不得直接落在保护层,在马凳上摆放纵横两个方向定位钢筋,钢筋上下次序及绑扣方法同底板下层钢筋。
马凳高度H=承台高—混凝土保护层厚—上层双向钢筋直径—下部钢筋单向钢筋直径,桩承台采用下图的钢筋马凳)间距800mm 左右设置,如下图:马镫使用14的钢筋进行加工2、基础底板绑扎方法在绑底板的同时做好底板梁的绑扎,即先先绑东西向后绑南北向的方法排列钢筋。
其接头位置“下层铁在跨中,上层铁在支座”。
喜欢一个人梁板式基础部位钢筋接头必须按50%错开,要严格按照配料单的顺序及位置准确排放基础底板下铁保护层为40(50)㎜,上铁为30mm。
板上、下铁中间用马凳铁支起,间距800mm,马凳高度=底板厚-上下保护层-上层双向钢筋直径-下层单向钢筋直径。
马镫使用14的钢筋进行加工3、底板钢筋的施工要求:钢筋绑扎要满扣绑扎且相邻绑扣为“八”字扣,扣头应向结构板内侧弯入。
在绑扎钢筋前要用墨线弹出钢筋摆放间距线,按线绑扎。
上层钢筋绑扎前要摆设好马凳铁,再绑上铁。
4、本工程基础底板(防潮板)厚度为350mm。
一、施工准备:1.1材料准备:三级钢筋(HRB400):12、14、16、18、20、22。
所用钢筋要求有产品合格证及性能检测报告。
焊条:E43、E50型焊条;垫块、22#火烧丝、塑料卡、套筒。
按施工平面图中指定的位置,将加工好的钢筋分规格、使用部位、编号、分别加垫木堆放,应有标示牌,尤其要将直径相同的二、三级钢区分开,不能混用。
1.2 主要机具:钢筋钩子、撬棍、扳子、绑扎架、钢丝刷子、手推车、粉笔、尺子等。
二、施工作业条件:2.1 钢筋绑扎前,应检查有无锈蚀,除锈之后再运至绑扎施工作业面。
2.2 熟悉图纸,要求检查已加工好的钢筋规格、形状、数量是否正确。
2.3 钢筋绑扎人员必须熟悉结构施工图和配筋图,明确各部位做法。
绑扎钢筋的火烧丝应按所绑扎的钢筋直径来切割火烧丝,并理顺整齐;要求当钢筋绑扎完后钢筋骨架的火烧丝不得余留超过30mm。
2.4清扫与弹线:混凝土缝已剔凿验收合格;清扫绑扎的地点,弹出构件中线、边线及模板控制线,在楼层上弹出洞口线,并在模板上弹出板的每根钢筋的位置线。
2.5 支撑体系及模板验收合格。
三、施工工艺:3.1框架柱子钢筋绑扎3.1.1工艺流程:清理校正柱子钢筋并套柱子箍筋→柱子直螺纹接头连接→画线绑扎箍筋→垫设混凝土保护层垫块→自检与报验验收3.1.2清理校正钢筋(套柱子钢筋):柱子钢筋外表面的水泥浆,污染物等在钢筋绑扎前清除干净。
检查预留钢筋的接头位置及错开距离、保护层厚度等,如发现钢筋位移偏差大于2cm时,请示技术主管人员出示处理方案,对个别有位移的可按1:6的弯度调整到位(即竖向钢筋每60mm高,水平方向调整l0mm)。
交底内容:3.1.3钢筋接头要符合本交底要求。
机械连接接头等级为Ⅰ级。
接头采用直螺纹套筒连接时,两人操作,将套筒上紧,丝扣外露不大于一个。
然后套筒逐一检查一遍确保套筒上紧。
钢筋接头在楼层板面上的设置距离,及相邻纵筋机械连接接头错开距离见图1。
柱子箍筋起步筋距地面50mm。
16G101图集中常见钢筋节点做法2018年12月1日目录•一、钢筋保护层。
•二、钢筋锚固长度和搭接长度•三、钢筋弯钩及箍筋、拉筋构造•四、柱主要节点钢筋构造•五、剪力墙钢筋构造•六、梁钢筋构造•七、板钢筋构造•八、楼梯钢筋构造•九、基础钢筋构造• 1、桩基钢筋构造;• 2、基础后浇带钢筋构造。
•十、关于钢筋端头弯钩长度总结一、钢筋保护层•1、钢筋保护层定义•钢筋保护层厚度是指最外层钢筋外边缘至混凝土表面的距离。
•2、混凝土强度等级不大于C25时,保护层厚度数值应增加5。
•3、基础底面钢筋保护层厚度,有混凝土垫层时应从垫层顶面算起,且不应小于40。
•梁山龙城水景苑:•济宁龙城公馆高层:•泗水龙城水景苑:25•桩基:二、钢筋锚固及搭接长度三、钢筋弯钩及箍筋、拉筋构造四、柱主要节点钢筋构造(P63-P70)•1、KZ钢筋构造16G101-1 P63-P66页,见16G101-1三维图集。
•2、KZ边柱和角柱柱顶纵向钢筋构造(16G101-1 P67页)•2、柱纵向钢筋在基础中构造(16G101-3 P66页)•五、剪力墙钢筋构造•1、水平分布钢筋构造 (16G101-1 P71-P72页,见三维图集)2、竖向钢筋构造(16G101-1 P73-P74页,见三维图集)3、约束性边缘构件YBZ、构造边缘构件GBZ及暗柱AZ等•3.1、水平分布筋计入约束性边缘构件体积配筋率钢筋构造做法:•①、注1中做法(一般在图纸墙体平面图中标明):济宁龙城公馆18G901-1 P3-6页学习。
•3.2、构造边缘构件GBZ、扶壁柱FBZ、非边缘暗柱AZ构造(P77页)•墙身竖向分部钢筋在基础中构造(16G101-3 P64页)•墙身竖向分部钢筋在基础中构造(16G101-3 P64页)•5、边缘构件纵向钢筋在基础中构造(16G101-3 P65页)•6、剪力墙洞口补强构造•关于预留孔洞问题:济宁龙城公馆27#楼泗水水景苑20#楼 洞口小于150mm•1.梁上预留洞2.剪力墙上预留洞泗水水景苑梁上水景苑对于剪力墙上开洞说明3.结构板上预留洞泗水水景苑20#楼济宁龙城公馆27#楼•六、梁钢筋构造16G101-1 P84-98页•七、板钢筋构造16G101-1 P99-115页•八、楼梯钢筋构造16G101-2 P23-65页1、桩基钢筋构造16G101-3 P102-104页济宁孝养城B 地块梁山龙城水景苑•九、基础钢筋构造16G101-3 P64-101页•1、桩基钢筋构造16G101-3 P102-104页•2、基础后浇带钢筋构造16G101-3 P106-107页济宁孝养城B 地块泗水龙城水景苑济宁龙城公馆嘉祥龙城华府2、基础后浇带钢筋构造16G101-3 P106-107页梁后浇带两侧1m范围内箍筋加密十、关于钢筋端头弯钩长度总结1、柱竖向钢筋底部弯钩:(1)柱钢筋伸入基础底板内,满足锚固长度:6d且≥150;不满足锚固长度:15d。
钢筋工程标准化施工超全图解,拼的就是细节!钢筋工程标准化做法:条形捆扎交货形式圆盘交货形式A1:场地布置合理,原材料与半成品分开堆放A2:材料标识牌,600*450mmA3:长条钢筋采用塔吊直接吊运,严禁单股钢丝绳吊运(打‘×’表示错误做法)A4:箍筋采用料斗吊运,严禁装载超过料具上口(打‘×’表示错误做法)A5:墙柱钢筋绑扎要求画线绑扎,水平(箍筋)钢筋间距满足设计要求,水平筋或箍筋与每根主筋相交位置绑扎到位,严禁跳绑A6:钢筋在浇筑混凝土前,用PVC管保护主筋不受污染A7:距离浇筑板面500mm处加箍筋,固定柱主筋偏位A8:墙、柱钢筋直径≥20mm,采用机械接头A9:墙、柱钢筋直径<20mm,采用电渣压力焊A10:梁钢筋绑扎主筋间距分布均匀,箍筋绑扎到位(箍筋与每根主筋相交位置必须有效绑扎牢固)A11:梁主筋直径≥20mm,采用机械接头;梁主筋<20mm采用焊接或绑扎搭接A12:主次梁交接处,主梁方向箍筋在交接位置按设计图纸间距绑扎A13:梁、柱箍筋按抗震要求,弯成135度角A14:梁钢筋一排筋与二排筋采用分隔筋隔开,分隔筋直径≥主筋直径或25mm;分隔筋距支座边500mm设置一道,中间每隔3m设置一道A15:板面筋在边支座锚固时,直接延伸到梁最外面一根钢筋的内侧弯下A16:板配筋采用双层双向+分离式配筋,取消分离式配筋形式(面筋推荐不小于Ф8,具体以设计为准)A17: 面筋锚固端与梁箍筋(主筋)、墙主筋(水平筋)绑扎牢固,面筋绑扎要满绑A18:板底筋绑扎前,画线控制间距,建议采用弹线控制A19:板面筋采用满绑(纵横钢筋交接位置都必须进行绑扎),不得出现‘隔一绑一’的跳绑形式A20: 楼板上预留洞口≥500mm,封口处采用U型钢筋A21: 板内阳角增加7根直径同板面筋的放射钢筋,长度不小于1700mmA22:柱、墙钢筋垫块:墙、柱采用成品塑胶内撑条,纵横间距≤600mm;柱主筋垫块采用成品塑胶垫块,沿柱角部≤600mm设置一个,墙体纵横间距≤600mmA23:钢筋搭接焊:表面平整、光滑,无凹陷、焊瘤、裂纹、气孔、咬边、夹渣等质量缺陷,雨天严禁作业A24:电渣压力焊:焊包凸出面不少于4mm,不得出现偏心、气孔、裂缝、咬边、夹渣等缺陷,雨天严禁作业以上微信内容转自:筑龙施工,转载请注明出处。
(完整版)钢筋施工节点详图及做法说明钢筋施工节点详图及做法说明1、钢筋堆放———钢筋加工工艺说明:钢筋的堆放场地应采用C15素混凝土或碎石硬化,并有排水坡度。
应按级别、品种、直径、厂家分垛码放,并挂标识牌,注明产地、规格、品种、数量、复试报告单号、质量检验状态(待检、合格、不合格)。
为防止钢筋锈蚀,应设置垄墙或方木,架空高度不应低于100mm。
2、钢筋弯曲——钢筋加工工艺说明:HPB235级钢筋末端应作180°弯钩,其弯弧内直径不应小于钢筋直径的2.5倍,弯钩的弯后平直部分长度不应小于钢筋直径的3倍;当设计要求钢筋末端需作135 °弯钩时,HPB335、级HPB400级钢筋的弯弧内直径不应小于钢筋直径的4倍,弯钩的弯后平直部分长度应符合设计要求;钢筋作不大于90°的弯折时,弯折处的弯弧内直径不应小于钢筋直径的5倍。
3、剪力墙竖向钢筋顶部锚固——钢筋安装构造要求工艺说明:纵向受拉钢筋在各种抗震等级下的最小锚固长度应符合设计要求,并且应符合《混凝土结构施工图平面整体表示方法制图规则和构造详图》(03G101-1)第34页中纵向受拉钢筋的最小锚固长度的要求。
当设计与施工图集要求不同时,应与设计协商,办理相应变更手续确定取值大小。
上图为剪力墙结构几种常见的锚固方式,均考虑一、二级抗震。
钢筋具体锚固形式可按照《混凝土结构施工图平面整体表示方法制图规则和构造详图》(03G101-1)的要求施工。
4、剪力墙端部水平钢筋锚固——钢筋安装构造要求工艺说明:剪力墙端部水平钢筋应伸至对边且有15d直拐,施工中注意控制水平钢筋应伸至对边竖筋内侧,转角墙外侧水平筋应连续通过转弯。
5、转角墙端部水平钢筋锚固——钢筋安装构造要求工艺说明:转角墙端部水平钢筋应伸至对边且有15d直拐,施工中注意控制水平钢筋应伸至对边竖筋内侧,转角墙外侧水平筋应连续通过转弯。
6、框架柱钢筋安装构造要求——钢筋安装构造要求工艺说明:基础反梁柱子插筋要在梁内至少设两道箍筋,以对插筋起到定位作用。
16G101图集中常见钢筋节点做法常见钢筋节点做法钢筋是混凝土结构中最常用的一种材料,而钢筋节点的设计和施工则对整个结构的稳定性和安全性具有重要的影响。
本文将介绍16G101图集中常见的钢筋节点做法,详细描述其设计要点和施工流程。
1. 柱-梁节点柱-梁节点是建筑中最基本且最常见的钢筋节点类型之一。
其设计要素包括柱顶板、梁底板、梁柱带筋以及梁端挠曲区箍筋。
在施工时,首先要确保柱和梁的几何尺寸和位置满足设计要求。
然后,在柱顶板上设置梁底板支架,确保梁在施工过程中不下沉。
接着,根据设计要求在梁底板上设置梁柱带筋,以增强节点的刚度和承载力。
最后,在梁端挠曲区箍筋位置设置箍筋,以防止梁端挠曲断裂。
2. 柱-基础节点柱-基础节点是将钢筋柱与混凝土基础连接起来的重要节点类型。
在设计过程中,需要考虑柱的纵向受力、剪力和弯矩等因素。
在施工时,首先要确保柱基的几何尺寸和位置满足设计要求,并采取适当的基础加固措施。
接着,在柱基槽中设置柱基底筋,并通过焊接或扎钢丝将其与柱身牢固连接。
最后,将混凝土浇筑在柱基槽中,保证柱与基础之间的紧密贴合。
3. 梁-墙节点梁-墙节点用于将梁与墙体连接起来,以增强整体结构的稳定性。
设计时需要考虑梁与墙的相互作用和受力情况。
在施工时,首先要确保梁和墙的几何尺寸和位置满足设计要求,并保证墙的垂直度和水平度。
然后,在梁底板上设置墙端带筋,以增加节点的刚度和承载力。
接着,设置墙端箍筋,以加固墙的抗震能力。
最后,将梁与墙之间填充混凝土,形成一个刚性连接。
4. 梁-梁节点梁-梁节点用于将两个梁连接在一起,以形成较长跨度的梁体。
在设计时,需要考虑梁的受力和挠度控制等因素。
在施工时,首先要确保两个梁的几何尺寸和位置满足设计要求,并保证梁的水平度和精度。
然后,在梁端设置横梁带筋,以增加节点的刚度和承载力。
接着,根据设计要求设置箍筋,以增加梁的抗震承载能力。
最后,通过焊接或扎钢丝将两个梁牢固连接在一起。
5. 柱-柱节点柱-柱节点用于连接两个钢筋柱,以形成柱廊结构或刚性框架。
钢筋施工节点详图及做法说明
1、钢筋堆放-------- 钢筋加工
钢筋的堆放场地应采用C15素混凝土或碎石硬化,并有排水坡度。
应按级别、品种、直径、厂家分垛码放,并挂标识牌,注明产地、规格、品种、数量、复试报告单号、质量检验状态(待检、合格、不合格)。
为防止钢筋锈蚀,应设置垄墙或方木,架空高度不应低于2、钢筋弯曲一一钢筋加工100mm。
工艺说明:
工艺说明:
HPB235级钢筋末端应作180°弯钩,其弯弧内直径不应小于钢筋直径 的2.5倍,弯钩的弯后平直部分长度不应小于钢筋直径的
3倍;当设计
D24d
r
\
* -
P
*
7
D^5d
要求钢筋末端需作135。
弯钩时,HPB335、级HPB400级钢筋的弯弧内直径不应小于钢筋直径的4倍,弯钩的弯后平直部分长度应符合设计要求;钢筋作不大于90°的弯折时,弯折处的弯弧内直径不应小于钢筋直径的5倍。
3、剪力墙竖向钢筋顶部锚固一一钢筋安装构造要求
工艺说明:
纵向受拉钢筋在各种抗震等级下的最小锚固长度应符合设计要求,
并且
应符合《混凝土结构施工图平面整体表示方法制图规则和构造详图》
(03G101-1)第34页中纵向受拉钢筋的最小锚固长度的要求。
当设计与施工图集要求不同时,应与设计协商,办理相应变更手续确定取值大小。
上图为剪力墙结构几种常见的锚固方式,均考虑一、二级抗震。
钢筋具体锚固形式可按照《混凝土结构施工图平面整体表示方法制图规则和构造详图》(03G101-1 )的要求施工。
4、剪力墙端部水平钢筋锚固一一钢筋安装构造要求
暗柱
仃蚪i杠时剪力墙水平刚筋兀同
工艺说明: 剪力墙端部水平钢筋应伸至对边且有15d直拐,施工中注意控制水平钢筋应伸至对边竖筋内侧,转角墙外侧水平筋应连续通过转弯。
5、转角墙端部水平钢筋锚固一一钢筋安装构造要求
工艺说明:
转角墙端部水平钢筋应伸至对边且有15d直拐,施工中注意控制水平钢筋应伸至对边竖筋内侧,转角墙外侧水平筋应连续通过转弯。
6、框架柱钢筋安装构造要求——钢筋安装构造要求
外侧水平筋
工艺说明: 基础反梁柱子插筋要在梁内至少设两道箍筋,以对插筋起到定位作用
7、框架柱角(边)柱主筋收头一一钢筋安装构造要求
. E .
般般黠綽
无20・朋毛
0商训}
8、转角墙端部水平钢筋锚固 钢筋安装构造要求
亂5L 吐館削撕
iwmt WmS
>],5LaE 削脚怫
C :
注5山&虹誠籬
防楠工 丄册慚
WdfeM- 弼
锄躺押斛 第弘嘘軸鵡轴.
h 悄JW 蜩A
工艺说明:
1•括号内尺寸用于非抗震。
2•柱纵筋进入节点位置从梁腋底部计算,梁腋下部斜纵筋,箍筋及梁下 部纵筋在节点处的锚固构造与本图节点构造相同;
3•梁腋下部斜纵筋根数不大于伸入支座的梁下部纵筋根数 n 的n-1 (且
不少于2根),并对称插空放置,具体设置应以设计要求为准。
9、洞口钢筋安装构造 ——钢筋安装构造要求
节直区最上「爼赣斷 U
li
6
二劃四毎疣爲薯述鼻1 EbJOO
伸至li 外边]曲I 聲内侧丄*
且 Aa 斗 LwffNg
>— 梁魁册加密区
iA, a> cifOr>ric^d
J SB PL S)
I I
ir rv ■・・r-« :? ™
L L . i *i tr ' 丄聲3
i-i
工艺说明: 洞口尺寸>200mm 时,洞口设附加筋,构造加筋、预埋件、电器线管、 线盒、预应力筋及其配件等,位置准确,绑扎牢固,需焊接固定部位, 不准咬伤受力钢筋。
安装电盒时,尽量不切断钢筋,电盒焊在附加的钢 筋上,安装牢固,不得焊在主筋上,且附加钢筋不得焊在受力筋上,而 应绑扎在主筋上。
且平小于械创新詢前的一半
不木干_段凹_囲帕扁的-丰 良不巾于4 $ 1 q
*
1
■i
--------- W
丨 …
・Al.
laE
LiE i
(D)
10、板上洞口钢筋一一钢筋安装构造要求
工艺说明:
洞口尺寸>300mm时,钢筋绕过洞口,洞口尺寸> 300mm时,洞口设附加筋。
11、穿梁管洞加强筋一一钢筋安装构造要求
斡舸t 上下綁n^14
昶般離熱毓睚轴齟
敕曾㈱帥圜fO] (feO 柑翩曲勅 曲 1. D /5
2^^WS>4D
工艺说明: 当在基础承台梁上开洞时洞口尺寸 D > h/5,连续开洞净距> 4D ;当在框 架梁上开洞时洞口尺寸 DK h/5,且w 150mm 连续开洞净距> 3D 。
12、梁柱(墙)钢筋放置顺序一一钢筋绑扎
Lot
La
: 扫00 [爾Odl
宜朗踊赭
20舌紳) 汀5h R
O O n A
jk
a
t
o o
o
辟竖向筋
W ■向筋
工艺说明:
当梁与柱或墙侧平时,梁该侧主筋置于柱或墙竖向纵筋之内
13、主次梁钢筋放置顺序 ——钢筋绑扎
工艺说明: 框架结构中,次梁上下主筋置于主梁上下主筋之上,框架连梁的上下主筋置于框架主梁的上下主筋之上。
14、主次梁钢筋放置顺序(基础钢筋倒盖式做法)一一钢筋绑扎
工艺说明:
基础钢筋,次梁上部主筋置于主梁上部主筋之下,板筋上层筋置于基础梁上部主筋之下。
15、底板(顶板)钢筋放置顺序一一钢筋绑扎
工艺说明:
两向钢筋交叉时,基础底板及楼板短跨方向上部主筋宜放置于长跨方向
主筋之上,短跨方向下部主筋置于长跨方向主筋之下。
16、搭接范围内三点绑扎一一钢筋绑扎
工艺说明:
每根钢筋在搭接长度内必须采用三点绑扎。
用双丝绑扎搭接钢筋两端头30mm处,中间绑扎一道,且过三道竖向筋。
仃、搭接范围内通过三根筋一一钢筋绑扎
工艺说明:
墙体竖向钢筋搭接范围必须保证有三道水平筋通过,墙体水平钢筋搭接
范围内必须保证有三道竖向筋通过。
18、剪力墙水平筋交错搭接一一钢筋绑扎
搭接长廣丫$500 ” 搭儀长度
轉卡一鴉箱评二
工艺说明:
墙体水平钢筋搭接接头错开间距应 >500mm,同一构件中相邻纵向受力钢筋的绑扎搭接接头应相互错开50%。
19、剪力墙竖向筋接头错开一一钢筋绑扎
工艺说明:
剪力墙同排内相邻两根竖向筋接头应相互错开,不同排相邻两根竖向筋
接头也应相互错开。
搭接接头错开500mm,机械连接接头错开35d。
注意搭接接头的长度除应满足1.2laE夕卜,还应满足搭接范围内通过三根水平筋。
20、箍筋安装一一钢筋绑扎
工艺说明:
主筋必须在箍筋弯折处接触紧密。
搭接部位应制作双主筋箍筋,箍筋弯钩应将两根主筋全部钩住。
21、梁柱(墙)钢筋放置顺序一一钢筋绑扎
电径同跨中+间8巨
直径同跨中,间距15。
工艺说明:
连梁箍筋应有1根在暗柱内,且距暗柱边50mm (顶层连梁在暗柱范围 内箍筋应满布)。
22、定位箍筋框一一钢筋绑扎
50
50
50
50
=-顶层连梁
laE r
且
A GQO "
laE 且 A&00
非顶层连梁
工艺说明: 框架柱模板上口设置定位箍筋框,用于控制钢筋位移,定位箍分内控式和外控式两种,置于柱顶的定位箍可周转使用。
23、箍筋错开套筒位置一一钢筋连接
工艺说明: 绑扎柱、墙箍筋或水平钢筋时,应错开直螺纹套筒位置,如果错不开,对应将箍筋或水平钢筋直径变小一个规格(局部加密,但总断面不能减小)进行代换,以保证此处保护层厚度。
结构柱钢筋内偏位处理节点
结构柱钢筋柱外偏应处理韦点
注:若地下室柱钢筋在柱外偏位时,可以不弯柱筋,将柱尺寸适当加大将 柱筋包入砼内。
24、板筋成品保护一一钢筋成品保护
工艺说明
:
顶板混凝土浇筑前,搭设操作马道,严格控制负弯距筋被踩下。