地下室防水节点详图
- 格式:pptx
- 大小:526.91 KB
- 文档页数:24
目录第一章车库(地下室)筏板 (1)第二章车库(地下室)挡土墙 (4)第三章车库顶板 (8)第四章卫生间、阳台、厨房 (14)第五章屋面 (22)第六章外墙 (26)第一章车库(地下室)筏板一、设计做法车库(地下室)筏板防水设计做法示意图如下:图 1二、施工要点1、车库(地下室)筏板垫层,采用混凝土提浆机收面抹压平整。
防水工程施工前清理干净,严禁存在灰尘、浮土。
2、1.5mm厚高分子自粘防水卷材,是以合成橡胶、优质沥青、增粘剂、抗老化剂等为基料,以优质薄膜为表面材料,采用防粘隔离纸(膜)作为隔离层的自粘防水卷材。
采用预铺反粘施工技术,即自粘面朝上,PVC面朝下空铺。
施工过程中随铺设随接缝,接缝搭接长度不少于8cm,采用非固化橡胶沥青防水涂料粘接。
3、筏板工程应抓紧施工,避免防水层暴露时间过长。
钢筋工程施工前应先把防粘隔离纸(膜)撕掉。
钢筋施工过程中应注意对防水卷材的成品保护,如焊接钢筋、拖拽钢筋、绑扎钢筋时易对防水卷材进行破坏。
若防水层出现破坏,在破坏处粘贴1.5mm厚高分子双面自粘防水卷材。
4、细部节点做法(1)筏板防水预留搭接细部做法≮≮图 2注:砖模与垫层交接部位做成圆弧状,防水层增加附加层,宽度为50cm,在砖模上部收头,并覆砖保护。
(2)桩头防水细部做法≮≮桩体直径图 3第二章车库(地下室)挡土墙一、设计做法车库(地下室)挡土墙防水设计做法示意图如下:图 4二、施工要点1、车库(地下室)挡土墙砼。
防水工程施工前清理干净,严禁存在灰尘、浮土,应首选新型止水对拉螺栓,普遍止水对拉螺栓双侧必须带垫块或扣碗。
图5为新型止水对拉螺栓,图6为普通止水对拉螺栓。
图 5图 62、1.5mm厚高分子自粘防水卷材。
施工过程中随铺设随接缝,接缝搭接长度不少于8cm。
3、防水层外侧采用120mm厚砖墙作为保护层。
4、细部节点做法(1)底板转角处防水细部做法100350图76 / 29(2)外墙后浇带防水细部做法后浇带宽度图8(3)外墙管道穿墙防水细部做法图9注: 双面自粘防水卷材应返入套管内不少于8cm,使用非固化橡胶沥青涂料粘结;②套管内填充材料为聚氨酯沥青油麻,两侧用膨胀水泥封堵。
地下室底板防水做法示意图1、底板变形缝防水做法
2、底板后浇带防水构造做法
3、高低跨连接处防水做法
4、桩头防水处理
采用水泥基渗透结晶型防水涂料+改性沥青防水涂料+卷材的复合防水做法
防水处理工序:
①由总承包方凿出桩头至设计标高位置,调整受力钢筋,并切割露出的定位钢筋,由
总承包方用高压水枪冲洗暴露的桩身上的泥土、浮浆、松动的碎石等,并经验收合格。
②水泥基渗透结晶型防水材料涂刷桩顶表面、暴露的桩身及周圈250mm,涂刷参考用量1.2kg/㎡,成膜厚度约1.0mm。
③在桩头部位收口卷材采用橡胶沥青防水涂料涂抹。
注意事项:
桩头防水处理的关键是桩头的清理工序,采用高压水枪冲洗桩顶面混凝土能够有效清
除混凝土的浮灰泥皮。
同时,涂料采用硬毛刷搓揉涂刷,如下图:。
地下防水工程防水涂料细部构造
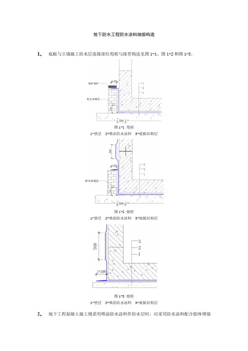
1、底板与立墙施工防水层连接部位甩槎与接茬构造见图1-1、图1-2和图1-3。
图1-1 甩槎
1-垫层 2-喷涂防水涂料 3-底板结构层
图1-2 接槎
1-垫层 2-喷涂防水涂料 3-地板结构层
图1-3 接槎
1-垫层 2-喷涂防水涂料 3-底板结构层
2、地下工程混凝土施工缝采用喷涂防水涂料作防水层时,应采用防水涂料配合胎体增强
材料对施工缝先行加强处理,增强层在施工缝两侧向外延伸的宽度不应小于250mm,防水构造见图2。
图2 施工缝防水构造示意图
1-结构层 2-加强层 3-喷涂防水涂料
3、地下工程底板、顶板、侧墙变形缝采用喷涂防水涂料做防水层时,变形缝两侧应做增强层,增强层向外延伸宽度不应小于250mm,防水构造见图3-1、图3-2。
图3-1 底板变形缝防水构造示意图
1-垫层 2-喷涂防水涂料 3-结构底板
图3-2 顶板及侧墙变形缝防水构造示意图
1-结构层 2-加强层 3喷涂防水涂料
4、地下工程混凝土结构后浇带接缝处喷涂防水涂料应设置加强层,加强层两边均应超出接缝250mm。
防水构造见图4-1、图4-2。
图4-1 顶板及侧墙后浇带防水构造示意图
1-结构顶板 2-加强层 3-喷涂防水涂料
图4-2 底板后浇带防水构造示意图
1-喷涂防水涂料 2-加强层 3-结构底板
5、桩头的防水层应紧密连接,并与作为加强层的喷涂防水涂料连接成整体。
防水层应做到桩头根部,喷涂时应对桩头钢筋做保护处理,见图5。
图5 桩头防水构造示意图
1-结构层 2-喷涂防水涂料 3-加强层 4-水泥基渗透结晶型防水涂料
5-遇水膨胀止水胶(环)。
地下室防水节点做法第一节结构自防水一般规定第一条防水混凝土应采用硅酸盐水泥或普通硅酸盐水泥,防水混凝土掺入粉煤灰的级别不得低于二级。
第二条预拌防水混凝土入泵坍落度控制在120mm~160mm,并做好现场实测。
底板防水混凝土施工前要做好降排水工作,不得在有积水的环境中浇注混凝土。
第三条地下室穿外墙群管部位应现场用竹胶合板模板套孔封堵,不得采用钢丝网封堵。
第四条外墙和底板防水混凝土应分层浇注,分层厚度不大于 500mm,每层应振捣密实。
如坍落度损失不能满足施工要求时,严禁直接加水后使用。
第五条防水混凝土应按后浇带分块连续浇注,尽量少留施工缝。
第六条模板拆除后防水施工前及时割除一次性止水螺杆,并用防水砂浆将螺杆端头封闭。
第二节地下室其它防水一般规定第七条若地下室采用除结构自防水之外的其它防水做法,防水应包裹整个地下室;除渗透结晶防水做法之外,其它防水基层阴阳角应抹成50mm的圆弧角。
第八条不管采用何种防水材料,防水基层无杂质、打磨修补平整,施工面过于光滑的应打磨成粗糙面。
第九条涂料防水前后两遍应相互垂直涂刷,涂膜厚度必须达到设计要求或规范规定。
第三节地下室防水细部做法(适用卷材防水)第十条后浇带防水细部做法1.底板、外墙、地下室顶板后浇带部位必须做防水附加层,防水附加层宽度需在两侧各伸出后浇带 250mm 以上。
2.结构底板、外墙、地下室顶板后浇带结构施工时必须居中预埋钢板止水带,同时封堵严密,固定牢固,振捣密实。
3.后浇带浇筑必须满足设计的要求时间;收缩型后浇带一般在两侧混凝土龄期达到图纸规定时间后施工,沉降型后浇带必须待高层部位主体结构施工结束、沉降基本完成后浇筑。
4.后浇带应采用补偿收缩混凝土浇筑,其抗渗和抗压等级按设计要求,且不应低于两侧混凝土。
5.后浇带混凝土应一次浇筑,不得留设施工缝;混凝土浇筑后应及时养护,养护时间不少于 28 天。
6.节点图(止水钢板详结构图)底板后浇带节点图第十一条施工缝防水细部做法1.地下室底板上返导墙的施工缝必须居中预埋钢板止水带,其它水平施工缝埋设钢板止水带或膨胀止水条;止水钢板接长时两块钢板搭接处必须满焊,同时钢板 U 型口朝向迎水面一侧;止水条应居中、连续,不得间断。
防水对房屋质量影响很大,因此万科对于地下室防水、外墙防水非常重视,小编就整理收集了万科做好防水的30张节点图,大家一起来看看,学习下,这可是老师傅们30年的经验哦······
地下室防水节点图
1.地下室底板外防水节点做法
2.
地下室底板及排水板节点做法
3.地下室底板及滤水层节点做法
4.地下室外墙防水做法
5.地下室顶板防水做法
6.地下室底板后浇带做法
7.地下室外墙后浇带做法
8.地下室顶板后浇带做法
9.地下室侧墙施工缝做法
10.地下室外墙与底板转角防水节点做法
11.地下室外墙与顶板转角节点做法
12.地下室外墙转角节点做法(阳角)
13.地下室外墙转角节点做法(阴角)
14.地下室外墙防水墙面收口节点做法
15.固定式穿墙管防水构造
16.穿外墙套管防水构造
17.地下室外墙止水螺杆节点做法
外墙防水节点图
18.涂料外墙外保温基本构造
19.面砖墙面门窗窗顶
20.窗台节点做法详图
21.涂料墙面门窗窗顶节点图
22.面砖墙面门窗窗侧节点图
23.涂料墙面门窗窗侧节点图
24.雨棚节点图
25.天窗节点图
26.装饰架构节点图
27.涂料屋面女儿墙节点图
28.装饰墙垛保温构造
29.露台门槛节点吐图
30.露台栏杆根部节点图
对于新手来说,这些干货对于他们来说真的很有帮助,对于一些已经熟练或者是一些老师傅说这些也都是能汲取经验的,希望对大家都有帮助!!!。
防水施工图集大全地下室底板防水做法示意
1)底板变形缝防水做法
2)底板后浇带防水构造做法
3)高低跨连接处防水做法
4)桩头防水处理
采用水泥基渗透结晶型防水涂料+改性沥青防水涂料+卷材的复合防水做法
防水处理工序:
①由总承包方凿出桩头至设计标高位置,调整受力钢筋,并切割露出的定位钢筋,由总承包方用高压水枪冲洗暴露的桩身上的泥土、浮浆、松动的碎石等,并经验收合格。
②水泥基渗透结晶型防水材料涂刷桩顶表面、暴露的桩身及周圈250mm,涂刷参考用量1.2kg/㎡,成膜厚度约1.0mm。
③在桩头部位收口卷材采用橡胶沥青防水涂料涂抹。
注意事项:
桩头防水处理的关键是桩头的清理工序,采用高压水枪冲洗桩顶面混凝土能够有效清除混凝土的浮灰泥皮。
同时,涂料采用硬毛刷搓揉涂刷,如下图:
地下室侧墙防水做法
1)地下室底板防水交接处预留做法
2)地下室侧墙抗渗增强处理方法
3)侧壁底板防水接头做法
4)地下室侧墙地面收口做法
5)穿墙管件防水处理
6)穿墙群管的防水做法
屋面防水做法
1)种植屋面基本做法
2)上人屋面做法
3)出屋面管道防水做法
卫生间防水做法
卫生间防水构造做法。
地下室、屋面、卫生间防水施工图集大全,专业人士必备地下室底板防水做法示意
1)底板变形缝防水做法
2)底板后浇带防水构造做法
3)高低跨连接处防水做法
4)桩头防水处理
采用水泥基渗透结晶型防水涂料+改性沥青防水涂料+卷材的复合
防水做法
防水处理工序:
①由总承包方凿出桩头至设计标高位置,调整受力钢筋,并切割露出的定位钢筋,由总承包方用高压水枪冲洗暴露的桩身上的泥土、浮浆、松动的碎石等,并经验收合格。
②水泥基渗透结晶型防水材料涂刷桩顶表面、暴露的桩身及周圈250mm,涂刷参考用量1.2kg/㎡,成膜厚度约1.0mm。
③在桩头部位收口卷材采用橡胶沥青防水涂料涂抹。
注意事项:
桩头防水处理的关键是桩头的清理工序,采用高压水枪冲洗桩顶面混凝土能够有效清除混凝土的浮灰泥皮。
同时,涂料采用硬毛刷搓揉涂刷,如下图:
地下室侧墙防水做法
1)地下室底板防水交接处预留做法
2)地下室侧墙抗渗增强处理方法
3)侧壁底板防水接头做法
4)地下室侧墙地面收口做法
5)穿墙管件防水处理
6)穿墙群管的防水做法
建筑水电知识平台工艺/交底/资料/预算关注。
方案住宅工程地下室防水施工方案(节点详图)目 录 1.编制依据 (4)2.工程概况 (4)2.1施工部位 (4)2.2防水概况 (4)2.2.1地下室混凝土自防水 (4)2.2.2地下室底板、外墙、顶板防水 (4)2.2.3地下室集水坑 (5)2.2.4桩头处理 (5)3.地下室底板、外墙卷材防水层施工 (5) (5) (5)3.3作业条件 (6)3.4工艺流程 (6)3.4.1底板铺贴卷材工艺流程 (6)3.4.2外墙铺贴卷材工艺流程 (6)3.4.3 地下室顶板铺贴卷材工艺流程 (7)3.4施工要点 (7)3.5.1防水保护墙砌筑 (7)3.5.2底板及顶板铺贴卷材 (7)3.5.3外墙铺贴卷材 (9)3.6特殊部位防水处理 (9)3.6.1底板防水甩头的保护 (9)3.6.2桩基承台、电梯基坑 (9)3.6.3地下室外墙防水收头 (10)3.7工程验收 (10)3.8成品保护 (11)3.9质量通病防治 (11)4.桩头防水施工 (11)5.集水坑内防水 (12)5.1JS复合防水涂料特点 (12)5.2JS-复合防水涂料的技术性能 (12)5.3施工机具准备 (13)5.4施工工艺 (13)5.4.1涂料配置: (13)5.4.2基层清理 (13)5.4.3底层涂刷 (14)5.4.4细部附加层 (14)5.4.5第一道涂膜 (14)5.4.6第二道、第三道涂膜 (15)5.5质量保证措施 (15)5.6成品保护措施 (15)5.7防水验收 (16)6.安全措施 (16)6.1安全控制措施 (16)6.2安全施工措施 (16)1.编制依据1.1《地下工程防水技术规范》GB50108-20011.2《地下防水工程质量验收规范》GB50208-20021.3《弹性体沥青防水卷材》GB18242-20081.4《混凝土外加剂》GB80761.5《混凝土外加剂应用技术规范》GB501191.6《普通混凝土用砂质量标准及检验方法》JGJ32~921.7《普通混凝土用碎石或卵石质量标准及检验方法》JGJ53~921.8《混凝土结构工程施工质量验收规范》GB50204-20021.9《建筑工程施工质量验收统一标准》GBJ300-20011.10《地下室工程防水》津05J21.11新建胜利花园施工图纸2.工程概况2.1施工部位本工程采用混凝土平板式筏板基础,筏板基础厚450mm,柱下设1200mm厚承台。
地下室防渗节点标准化做法——地下室顶板转角节点
做法说明:
当地下室板顶与室外地坪高差在1米以内时,采用图1节点在转角处施工防水附加层后,在外墙与顶板处满做防水层。
当地下室板顶高于室外地坪1米以上时,可按图2做法在外墙结构处留槽,将防水层在槽内收口。
工艺流程:
防水层(含防水附加层)—防水层在槽内收口—防水保护层节点图1:节点图2:
构造做法:
1、防水层
转角需要满做防水层时,在外墙与顶板交接阳角部位施工防水附加层,附加层验收合格后,再施工防水层。
当地下室板顶高于室外地坪1米以上时,在主体结构施工时,在高于室外地坪500mm外墙处留20mm深、50mm宽槽口,将外墙防水层在槽内收口固定,同时用沥青油膏将槽口封闭。
2、保护层
室外地坪以下施工聚苯板保护层,室外地坪以上采用粘结方法,挂20×20×0.8mm镀锌钢丝网后,施工20厚1:2水泥砂浆保护层。
质量控制点:
1、防水附加层和防水层范围、厚度;
2、防水层槽内收口牢靠;
3、防水保护层。