比较详细的单层厂房建筑图纸(共7张)
- 格式:dwg
- 大小:328.91 KB
- 文档页数:1
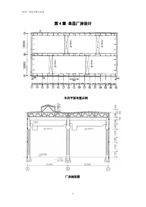
单层厂房设计图文并茂第4章单层厂房设计车间平面布置示例厂房剖面图4.1计算简图本车间为机修车间,工艺无特殊要求,结构布置均匀,荷载分布均匀,故可以从整个房中选择具有代表性的排架作为计算单元,如图所示计算单元宽度为 6.0B m =。
由设计资料可知柱顶标高m 9.11,轨顶标高为m 5.9,设室内地面至基础顶面的距离为0.50m ,则计算简图和吊车梁的高度求总高度H=11.9+0.5=12.4m 根据建筑剖面及其构造,确定厂房计算简图如图所示其,下柱高l 8.1m 0.5m 8.6m H =+=,上柱高u 12.4m-8.6m 3.8m H ==柱截面几何参数参数 柱号截面尺寸/mm面积2/mm惯性矩 4/mm自重/(/)kN mA ,C 上柱 ⨯矩400400 51.610⨯ 821.310⨯4.0下柱Ⅰ400900100150⨯⨯⨯ 51.87510⨯ 8195.3810⨯ 4.69B上柱 600⨯矩4005104.2⨯ 81072⨯ 0.6下柱I1501001000400⨯⨯⨯510975.1⨯ 81034.256⨯4.944.2荷载的计算4.2.1恒载(1)屋面恒载:两毡三油防水层: 20.35/kN m20mm 厚水泥砂浆找平层: 3220/0.020.40/kN m m kN m ⨯=100mm 厚水泥砾石保温层:325/0.10.50/kN m m kN m ⨯=一毡两油隔气层: 20.05/kN m20mm 厚水泥砂浆找平层: 3220/0.020.40/kN m m kN m ⨯=预应力混凝土屋面板: 21.4/kN m 屋盖钢支撑: 20.05/kN m合计: 23.15/kN m 屋架自重YWJA —24AB 跨 1.2×(106+26.9+5.94×2)KN=173.7 KN/榀 BC 跨 1.2×106KN=127.2 KN/榀 天沟板 1.2×2.02=2.424 KN/m故作用于AB 跨两端柱顶的屋盖结构自重为11(0.5173.70.5618 3.15 1.2 2.4246)kN=305.51KNA BA G G ==⨯+⨯⨯⨯⨯+⨯作用于BC 跨两端柱顶的屋盖结构自重为11(0.5127.20.5618 3.15 1.2 2.4246)282.26C BC G G KN KN==⨯+⨯⨯⨯⨯+⨯=(2)柱自重重力荷载设计值:A 、C 柱:上柱:44 1.24m 3.8m 18.24A C G G kN kN ==⨯⨯= 下柱:55 1.2 4.69m 8.6m 48.40A C G G kN kN ==⨯⨯=B 柱: 上柱:4 1.26m 3.8m 27.36B G kN kN =⨯⨯= 下柱:5 1.2 4.94m 8.6m 50.98B G kN kN =⨯⨯= (3)吊车梁及轨道自重AB 跨: 3 1.2(44.21/6)60.24G kN kN m m kN =⨯+⨯= BC 跨: 3 1.2(44.21/6)60.24G kN kN m m kN =⨯+⨯= 各恒载作用位置如图所示。
注:标明消防设施、器材位置,重点部位注:标明消防设施、器材位置,重点部位1. A5棟廠區平面圖(一廠一樓成型車間):2. A5棟廠區平面圖(一廠二樓辦公區):{0 Fr[O sth 許代9N4«A±.* jmn2DlQ-5-]fM0|K3. A5棟廠區平面圖(一廠三樓加工車間):■- i'W' i U 3nrr ;■ • ws] 曰—mio-j-L6-JWS4. A5棟廠區平面圖(一廠四樓倉庫):注:标明消防设施、器材位置,重点部位5. A19棟廠區平面圖(二廠一樓成型車間):6. A19棟廠區平面圖(二廠二樓加工車間):■—I Me注:标明消防设施、器材位置,重点部位注:标明消防设施、器材位置,重点部位7. A19棟廠區平面圖(二廠三樓倉庫):8. A19棟廠區平面圖(二廠四樓倉庫):ITTi ■4一晳1二电-虐平:tlltt 2O1T18-抑aU•I $ 7" I.注:标明消防设施、器材位置,重点部位9. A12棟廠區平面圖(三廠一樓成型車間):10. A12棟廠區平面圖(三廠二樓加工車間):注:标明消防设施、器材位置,重点部位11. A12棟廠區平面圖(三廠三樓倉庫):12. A12棟廠區平面圖(三廠四樓倉庫):注:标明消防设施、器材位置,重点部位13. A13棟廠區平面圖(四廠一樓成型車間):― -IU.ZH14. A13棟廠區平面圖(四廠二樓加工車間):。
皿 be** 也 曰"*—卩 qis 二园下直閔 zoio-s-is-w^HE . • - s-■1 OS ③ ⑷尊 妊⑦(H注:标明消防设施、器材位置,重点部位15. A13棟廠區平面圖(四廠三樓倉庫):[SEI < h16. A13棟廠區平面圖(四廠四樓塗裝車間)重點部位:斑i7B1:*鼻T业1■£'J左注:标明消防设施、器材位置,重点部位17. A20棟廠區平面圖(六廠一樓成型車間):18. A20棟廠區平面圖(六廠二樓加工車間):F=A «F ■:ik 丄IIJ hg JOlOi-lMWu &K2WO5-|fr-W«注:标明消防设施、器材位置,重点部位19. A20棟廠區平面圖(六廠三樓倉庫):1石:11 wITTI *I ™I 忙1E I TT11 - j J Lr Qytj1J20. A20棟廠區平面圖(六廠四樓倉庫):A'lMiffllH aio-briMojK21. A2棟廠區平面圖(七廠一樓模具車間):ET3 汀“J.;22. A2棟廠區平面圖(七廠二樓辦公):注:标明消防设施、器材位置,重点部位注:标明消防设施、器材位置,重点部位23. A2棟廠區平面圖(七廠三樓倉庫):24. A2棟廠區平面圖(七廠四樓塗裝車間)重點:◎:吐n 册 Tl 1 70Wi.Jkl-■W .<hlf厂凸『• L・■■-1333.UTt e r ■Z:J3 '•1 ■3■wn 1 £ .■-■(■133sni 屮IIn1 ■a.lz m □■•2、总平面图25. A7棟廠區平面圖(八廠一樓注塑車間):26. A7棟廠區平面圖(八廠二樓加工車間)2、总平面图27. A7棟廠區平面圖(八廠三樓倉庫)G弱三嘍坞瓷読施平面逼28. A7棟廠區平面圖(八廠三樓倉庫)rf';。