GGD低压柜一次接线示意图
- 格式:pdf
- 大小:895.99 KB
- 文档页数:1
GGD低压开关柜说明书解析GGD型交流低压配电柜一、概述:GGD型交流低压配电柜适用于发电厂、变电站、厂矿企业等电力用户的交流50Hz,额定工作电压380V,额定工作电流至3150A的配电系统,做为动力、照明及配电设备的电能转换,分配与控制之用。
二.用途:GGD型交流低压配电柜适用于发电厂、变电站、厂矿企业的交流50Hz,额定工作电压380V,额定工作电流至3150A 的配电系统,作为动力、照明及配电设的电能转换、分配与控制之用。
GGD型交流低压配电柜是根据能源部广大电力用户及设计部门的要求,本着安全、经济、合理、可靠的原则设计的新型低压配电柜。
产品具有分断能力高,动热稳定性好,电气方案灵活、组合方便、系列性、实用性强、结构新颖、防护等级高等特点。
可作为低压成套开关设备的更新换代产品使用。
GGD型交流低压配电柜符合XXX《低压成套开关设备和控制设备》,GB725《低压成套开关设备和控制设备》等标准。
三.产品型号及含义:GGD辅助电路方案代号主电路计划代号1阐发能分为15kA设计序号2分析能分为30kA3分析能分为50kA电力用柜电器元件固定安装固定接线交流低压配电柜四.使用条件:3.1周围空气温度不高于+40℃、不低于―5℃,24h内的平均温度不得高于+35℃。
3.2户内安装使用,使用地点的海拔高度不得超过2000m。
3.3周围空气相对湿度在最高温度为+40℃时不超过50℃,在较低温时允许有较大的相对湿度,列如+20℃时为90%,应考虑到由于温度的变化可能会偶然产生凝露的影响。
3.4污染等级3。
3.5设备安装时与垂直面的倾斜度不超过5°。
3.6设备应安装在无猛烈震动和冲击的地方和不足使电器元件遭到腐蚀的场所。
3.7用户哟XXX要求时可与制造厂协商解决。
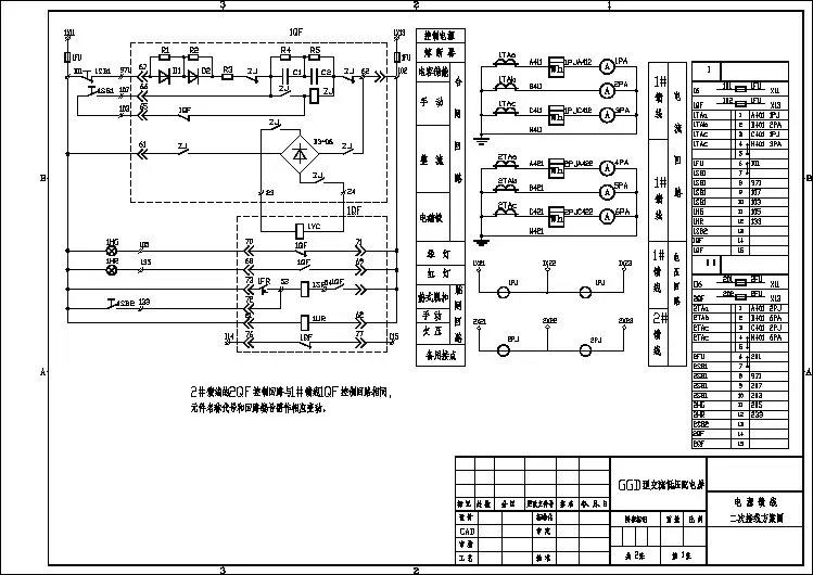
五、电气性能:4.1基本电气参数型号额定电压额定电压vAGGD1380ABCABCABC10004001000315025002000额定短路额定短时开断电流耐受电流(1s)(kKAA)1515额定峰值耐受电流KA30GGDGGDGGD型交流低压配电柜4.2主电路方案GGD柜的主电路设计了129个方案,共298个规格(不包括辅助电路的功能及控制电压的变化而派生的方案和规格)。
操作技能指导一 GGD配电柜装配物料前的准备小组成员签名:小组负责人签名:操作步骤1.排柜:根据一次图纸对柜按顺序进行排列,注意区分正视还是背视。
柜排好后对柜体进行检查、柜门是否变形、油漆是否有损。
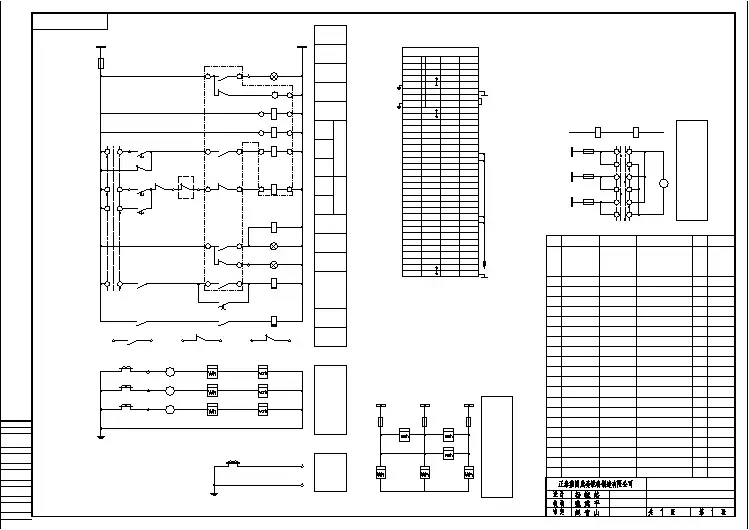
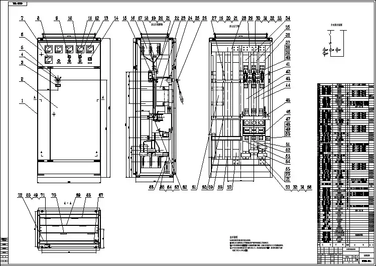
2. 配料:(1)配料前应仔细核对图纸及料单,初步了解工程所需构件的型号、规格、数量图1-1 GGD 低压配电柜排列图 图1-2 GGD 低压配电柜排列图 图 1-3 GGD 低压配电柜结构图等参数。
(2)在接收物料组来料时,应做好接收准备,及时进行物料核对、检查并做好交接确认、登记;如遇不合格物料,应拒绝接收。
(3)对接收的物料进行统一整理,对物料内的包装膜、干燥剂、固定螺丝、提示牌等(4)将物料对照图纸逐一分配到相应间隔内,其中部分因工作次序需要最后安装的可另置(如熔芯、避雷器等),但不允许直接落地摆放,需要临时摆放的应使用物料板。
3.钣金件配置情况图 1-4 侧横梁(430mm)图1-5 侧立柱梁(550mm)图1-6 单排横梁(940mm、740mm)图1-7 双排横梁(740mm)图1-8 加强梁(940mm)图1-9 排横梁(940mm)图1-10 交接安装板图1-11 电容板安装梁(780mm)操作技能指导二构件安装小组成员签名:小组负责人签名:图2-1操作步骤1.构件安装前的检查及处理安装前首先需要检查构件的螺栓连接面。
确定表面是否光滑平整,要求摩擦面无飞边、毛刺、焊接飞溅物、焊疤、氧化皮、污垢、铁锈等。
如发现上述情况的,应使用钢丝刷、砂纸、砂轮机等工具去除。
2.紧固件的安装 (1)普通螺栓紧固应牢固、可靠,穿入方向一致,外露丝扣不应少于2扣,但也不宜大于5扣。
(2)自攻螺栓、拉铆钉连接薄钢板采用的自攻螺栓、拉铆钉、射钉等其规格尺寸应与被连接钢板相匹配,其间距、边距等应符合设计要求;自攻螺栓、拉铆钉、射钉应连接钢板应紧固密贴,外观排列整齐。
(3)间隙公差因板厚公差、制造偏差、安装偏差等产生的接触面间隙,按以下方式进行处理: 当接触面间隙t 小于1mm 时,不用处理。