构造节点详图演示
- 格式:pps
- 大小:16.82 MB
- 文档页数:125
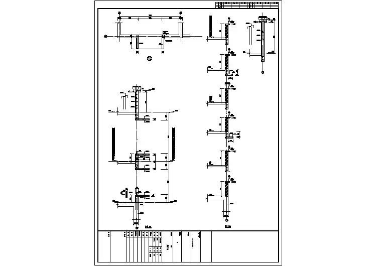
钢框架梁柱连接节点构造,图文并茂- 结构理论1. 梁与柱的连接1.1 梁与柱刚性连接的构造,形式有三种。
(1)梁翼缘、腹板与柱均为全熔透焊接,即全焊接节点;(2)梁翼缘与柱全熔透焊接,梁腹板与柱螺栓连接,即栓焊混合节点;(3)梁翼缘、腹板与柱均为螺栓连接,即全栓接节点;上图为三种梁柱刚性连接节点1.2 梁与柱刚性连接的构造(1)工字形梁与工字形柱或箱形柱刚性连接的细部构造:上图为梁与柱刚性连接细部构造(2)工字形柱和箱形柱通过带悬臂梁段与框架梁连接时,构造措施有两种:a、悬臂梁与梁栓焊混合节点;b、悬臂梁与梁全栓接节点。
上图为柱带悬臂梁段与梁连接梁与柱刚性连接时,按抗震设防的结构,柱在梁翼缘上下各500mm的节点范Χ内,柱翼缘与柱腹板间或箱形柱壁板间的组合焊缝,应采用全熔透坡口焊缝。
1.3 改进梁与柱刚性连接抗震性能的构造措施对于有抗震性能要求的梁柱刚性连接,在遭遇罕见强烈地震时,应在构造上保证钢梁破坏先于节点破坏,保证梁柱节点的安全,即“强柱弱梁、强节点弱构件”的设计原则。
(1)骨形连接骨形连接是通过削弱钢梁来保护梁柱节点。
这种骨形连接在日本比较流行。
上图为骨形连接(2)楔形盖板连接在不降低梁的强度和刚度的前提下,通过梁端翼缘加焊楔形盖板,增强梁柱节点上图为几种常见的梁端翼缘加焊楔形盖板做法(3)外连式加劲板连接对于箱型或圆形截面柱与梁刚性连接,除了采用骨形连接、楔形盖板之外,还可采用外连式加劲板连接,节点强度明显大于钢梁强度。
1.4 工字形截面柱在弱轴与主梁刚性连接当工字形截面柱在弱轴方向与主梁刚性连接时,应在主梁翼缘对应λ置设置柱水平加劲肋,在梁高范Χ内设置柱的竖向连接板,其厚度应分别与梁翼缘和腹板厚度相同。
柱水平加劲肋与柱翼缘和腹板均为全熔透坡口焊缝,竖向连接板与柱腹板连接为角焊缝。
主梁与柱的现场连接如图所示。
上图为工字形柱弱轴与主梁刚性连接1.5 梁柱节点域的加强工字形由上下水平加劲肋和柱翼缘所包Χ的柱腹板简称为节点域。
金属板与石材幕墙实用技术配套光盘构造节点详图
图1-1
等压原理图
图3-15
不折边平板做法
图3-16 耳子与幕墙框格体系螺蚊联接节点图3-17a
铝板幕墙标准竖剖节点
图3-17b
铝板幕墙标准横剖节点图3-18
外插式单层铝板与幕墙隔构体系节点图3-19
开洞铝板节点
图3-20
开洞铝板节点图3-21
铝板幕墙节点
图3-22a
铝板幕墙横剖典型节点图3-22b
铝板幕墙纵剖典型节点图3-23a
铝板幕墙标准纵剖节点图3-23b
铝板幕墙标准横剖节点
图3-24a
铝板标准竖向节点
图3-24b
铝板标准横向节点图3-25a
单元式层间连接节点
图3-25b
玻璃翼节点
图3-25c 转角节点
图3-26
转角节点
图3-27
铝板包角节点
图3-28
铝板幕墙阳角转角节点
图3-29
女儿墙单层铝板压顶构造图3-30
铝板幕墙女儿墙收口节点图
图3-39a
铝板横剖节点
图3-39b
铝板竖剖节点
图3-40a
铝板横剖节点
图
3-40b 铝板竖剖节点图3-41a
铝板横剖节点
图3-41b
铝板竖剖节点
图3-42a
铝复合板幕墙标准横剖节点
图3-42b 铝复合板幕墙标准纵剖节点图3-42c
铝复合板幕墙标准纵剖节点
图3-43
铝板做滴水线节点
图3-44
铝板包女儿墙节点
图3-45
铝板包大玻璃橱窗节点
图3-46
铝板阴角节点图3-47
铝板阳角节点。
拉手钢盖板图5-1-2 水准点埋设示意图上刻“+”字线浇砼图5-1-1 控制桩埋设示意200X200X5钢板建筑工程构造做法节点详图大全机械式土压泥水平衡顶管掘进机排水明沟立面示意图圆形设备基础钢筋连接安装螺栓预留孔模板图储焦池斜模板安装示意图塔吊布置图地下室楼板梁、模板排架支撑示意图穿墙管道防水处理楼梯模板支撑示意图砼管搭设图柱支模法墙板支模法顶板支模法多层模板支撑的受力状态1 —支撑2 —二次支撑基础底板侧模详图墙板模板制筑详图屋面特殊部位卷材粘铺构造柱与砌体之间最易漏浆,为了有效地防止,在马牙槎的周边粘上吹塑纸或单面胶带纸,再立模板效果相当不错。
外墙挤塑板排列示意图挤塑板条点粘接法门窗洞口附加网络布示意图挤塑板洞口处切割及接缝距离要求示意图固定件布置图墙体边角、洞口处固定件示意图阴、阳角处网格布搭接示意图窗眉、窗台做法示意图窗眉滴水节点做法示意图过省道公路施工方案图过铁路人行天桥施工方案纵剖断面图反循环钻孔泥浆循环示意图墩柱施工工艺流程框图支架设计图排水暗渠结构图挡土墙大样图地铁施工施工场地围挡示意图地铁施工施工场地排水示意图地铁施工临边防护地铁施工临时用电接线图钢筋笼和暗挖施工的进场施工便道施工便道台车下井前存放电闸箱库房台车下井前存放1、本图尺寸单位以cm计。
2、施工大电从原南京南站变电所接入工地现场。
配置2台500KVA变压器供生产生活用电,另配置2台2000KVA高压供盾构施工用电。
北农 花 村 经 济 适用 房 围 墙加工场硬化场地沉淀池洗车槽硬化场地硬化场地生活区域地铁施工安全通道楼梯俯视图7303450[10#8451978325017863000652700258220611261地铁施工安全通道楼梯侧视图米、埋设钢护筒、正循环钻孔、成孔及清孔、吊放钢筋笼、钢筋笼就位、下导管和二次清孔、首批水下混凝土灌注、边浇筑砼边提拔导管、成桩三轴搅拌桩的搭接施工施工顺序3施工顺序5施工顺序1施工顺序2施工顺序4图3-2 TATW —500三轴试验机 TATW -500三轴试验机室内土工试验测定0K 系数试验仪器构造示意图图3-3三轴K0试验装置示意图现浇板胶合板木档水平杆50*100mm楞木垫块水平限位钢管Ф48钢管拉杆Ф钢管立杆梁模板及支撑示意图PVC套管柱模板及支撑示意图全封闭式支设楼梯模板,见下图所示:盒箱位置正确,固定可靠,管道进入盒、箱处顺直,在盒、箱内露出的长度小于5mm,用锁紧螺母固定管口,管道露出的锁紧螺母纹为2-3扣,线路进入的电气设备和器具的管口位置正确。
钢框架梁柱连接节点构造,图文并茂- 结构理论1. 梁与柱的连接1.1 梁与柱刚性连接的构造,形式有三种。
(1)梁翼缘、腹板与柱均为全熔透焊接,即全焊接节点;(2)梁翼缘与柱全熔透焊接,梁腹板与柱螺栓连接,即栓焊混合节点;(3)梁翼缘、腹板与柱均为螺栓连接,即全栓接节点;上图为三种梁柱刚性连接节点1.2 梁与柱刚性连接的构造(1)工字形梁与工字形柱或箱形柱刚性连接的细部构造:上图为梁与柱刚性连接细部构造(2)工字形柱和箱形柱通过带悬臂梁段与框架梁连接时,构造措施有两种:a、悬臂梁与梁栓焊混合节点;b、悬臂梁与梁全栓接节点。
上图为柱带悬臂梁段与梁连接梁与柱刚性连接时,按抗震设防的结构,柱在梁翼缘上下各500mm的节点范Χ内,柱翼缘与柱腹板间或箱形柱壁板间的组合焊缝,应采用全熔透坡口焊缝。
1.3 改进梁与柱刚性连接抗震性能的构造措施对于有抗震性能要求的梁柱刚性连接,在遭遇罕见强烈地震时,应在构造上保证钢梁破坏先于节点破坏,保证梁柱节点的安全,即“强柱弱梁、强节点弱构件”的设计原则。
(1)骨形连接骨形连接是通过削弱钢梁来保护梁柱节点。
这种骨形连接在日本比较流行。
上图为骨形连接(2)楔形盖板连接在不降低梁的强度和刚度的前提下,通过梁端翼缘加焊楔形盖板,增强梁柱节点上图为几种常见的梁端翼缘加焊楔形盖板做法(3)外连式加劲板连接对于箱型或圆形截面柱与梁刚性连接,除了采用骨形连接、楔形盖板之外,还可采用外连式加劲板连接,节点强度明显大于钢梁强度。
1.4 工字形截面柱在弱轴与主梁刚性连接当工字形截面柱在弱轴方向与主梁刚性连接时,应在主梁翼缘对应λ置设置柱水平加劲肋,在梁高范Χ内设置柱的竖向连接板,其厚度应分别与梁翼缘和腹板厚度相同。
柱水平加劲肋与柱翼缘和腹板均为全熔透坡口焊缝,竖向连接板与柱腹板连接为角焊缝。
主梁与柱的现场连接如图所示。
上图为工字形柱弱轴与主梁刚性连接1.5 梁柱节点域的加强工字形由上下水平加劲肋和柱翼缘所包Χ的柱腹板简称为节点域。
金属板与石材幕墙实用技术
配套光盘
构造节点详图
图1-1 等压原理图
图3-15 不折边平板做法
图3-16 耳子与幕墙框格体系螺蚊联接节点
图3-17a 铝板幕墙标准竖剖节点
图3-17b 铝板幕墙标准横剖节点
图3-18 外插式单层铝板与幕墙隔构体系节点
图3-19 开洞铝板节点
图3-20 开洞铝板节点
图3-21 铝板幕墙节点
图3-22a 铝板幕墙横剖典型节点
图3-22b 铝板幕墙纵剖典型节点
图3-23a 铝板幕墙标准纵剖节点
图3-23b 铝板幕墙标准横剖节点
图3-24a 铝板标准竖向节点
图3-24b 铝板标准横向节点
图3-25a 单元式层间连接节点
图3-25b 玻璃翼节点
图3-25c 转角节点
图3-26 转角节点
图3-27 铝板包角节点
图3-28 铝板幕墙阳角转角节点
图3-29 女儿墙单层铝板压顶构造
图3-30 铝板幕墙女儿墙收口节点图
图3-39a 铝板横剖节点
图3-39b 铝板竖剖节点
图3-40a 铝板横剖节点
图3-40b 铝板竖剖节点
图3-41a 铝板横剖节点
图3-41b 铝板竖剖节点
图3-42a 铝复合板幕墙标准横剖节点
图3-42b 铝复合板幕墙标准纵剖节点
图3-42c 铝复合板幕墙标准纵剖节点
图3-43 铝板做滴水线节点
图3-44 铝板包女儿墙节点
图3-46 铝板阴角节点
图3-45 铝板包大玻璃橱窗节点
图3-47 铝板阳角节点
图3-52 蜂窝铝板标准节点
图3-53 蜂窝铝板标准节点
图3-54 蜂窝铝板标准节点
图3-55 蜂窝铝板标准节点
图3-64 复合连接
图3-71 背栓在异型部位的连接情况
图3-72 敞缝
图3-74a 钢销式石材幕墙节点构造
图3-74b 销钉式
图3-75a 石材横向剖面节点
图3-75b 石材纵向剖面节点
图3-75c 石材横向剖面节点。