砖基础工程量计算例题
- 格式:doc
- 大小:30.50 KB
- 文档页数:2
第三案例砖基础招标人部分:二、招标人计算的依据按规范要求的计算规则,按设计图示尺寸以体积计算,如下图所示:说明:图示尺寸为轴线尺寸,内外墙均为240mm,轴线距中。
基础用100号水泥砂浆砌筑。
三、工程量计算过程:1)计算规则明确规定,外墙按中心线计算,内墙按净长线计算,并且基础大放脚T型接头处的重叠部分不扣除,这说明内墙的净长线的净长要算至外基础墙身的内侧面,而不是基础大放脚的外边,也不是按实计算。
外墙中心线:(6.3+3.3+2)×2=23.2m 内墙净长线:3.3+3.3+3-0.12×4=9.12m砖基断面计算:按图示尺寸计算应为0.24×3+0.06×0.12×6=0.7632 m 2,但规范在本章的后面有这样一个说明规则:标准砖墙体厚度按下表计算。
这说明砖不能按图上标注尺寸计算,而是要按模数计算,这样,大放脚宽不再是60mm ,而是(365-240)/2=62.5mm ,大放脚高不再是120mm ,而是53×2+10(灰缝) ×2=126mm 。
因此按规则计算断面为:0.24×3+0.0625×0.126×6=0.7673 m 2,两者相差(0.7673-0.7632)/0.7632=0.5%,由其是在墙体,365墙在图上标注为370,如果不按365mm 计算,工程量相差在1%以上,这一点必须要引起大家注意。
基础体积为:(23.2+9.12) ×0.7673=24.8 m 3。
四、特征描述1、 根据工程量清单计价规范中说明的主要特征分别说明如下:1) 砖的品种、规格及强度等级:就是要说明砖是标准砖还是非标砖,具体规格大小及强度等级要求等。
此案例可以描述为:标准Mu10.0机制红砖。
2) 基础类型:由于砖基础适合所有的砖基础,如砖条基、砖独基、砖设备基、砖柱基等。
此案例可以描述为:砖条基。
【例】某工程采用预拌混凝土,已知C20混凝土独立基础85m3,独立基础模板接触面积179.1m2,用工料单价法计算工程造价(按三类工程取费,市区计取税金,预拌混凝土市场价330元/m3),其他可竞争措施项目仅计取“生产工具用具使用费”、“检验试验配合费”。
工程预算表取费程序表例题解析:1.其他可竞争措施项目中的其他11项费用按建设工程项目的实体项目和可竞争措施项目(11项费用除外)中人工费与机械费之和乘以相应系数计算。
2.企业管理费、规费、利润的计费基数是相同的,即按直接费中的人工费与机械费之和乘以相应费率,其中直接费包括直接工程费和措施费。
3.价款调整包括人、材、机的价差调整,价款调整不参与取企业管理费、规费和利润。
4.注意2012年新定额安全生产、文明施工费计算的变化。
【例】如图,计算人工挖土方、钎探、回填土、余土外运、砖基础工程量。
(土质类别为二类,垫层C15砼,室外地坪-0.300)【例】如下图所示尺寸,求混凝土带型基础模板和混凝土的工程造价。
备注:按三类工程取费,企业管理费费率为17%,利润费率为10%,规费费率为25%,税金税率为3.48%,安全生产、文明施工费为4.25%。
解:(1)带型基础外侧模板 S1=[(4.5×2+0.5×2)×2+(4.8+0.5×2)×2]×0.3=9.48 m2(2) 带型基础内侧模板 S2=[(4.5-0.5×2)×2+(4.8-0.5×2)×2]×0.3×2=8.76 m2带型基础模板工程量 S= S1+ S2=18.24 m2(模板工程量3分)(3)带形基础混凝土外墙 V=1×0.3×(4.5+4.5+4.8)×2=8.28 m3 (混凝土工程量2分)内墙 V=1×0.3×(4.8-1)=1.14 m3 (混凝土工程量2分)合计:9.42 m3预算表取费:1. 直接费 3329.7元2.其中人+机 1021.36元3.企业管理费 1021.36×17%=173.63元4.规费 1021.36×25%=255.34元5.利润 1021.36×10%=102.14元6安全生产、文明施工费 3860.81×4.25%=164.08元7.税金 4024.89×3.48%=140.07元【例】如图所示内外墙毛石基础、砖基础平面图和剖面图,毛石基础每级高度为350mm,试计算砌体基础工程量。
【例2-1】人工挖基槽土(二类土)测时资料表明:挖1m 3土需消耗的基本工作时间为210min ,辅助工作时间占工序作业时间的2%,准备与结束工作时间、不可避免的中断时间、休息时间占工作日的3%、2%、18%,试确定其时间定额。
解:基本工作时间=210/60=3.5h)(辅助工作时间基本工作时间工序作业时间h 571.3%215.3%1=-=-=)()(规范时间工序作业时间定额时间h 638.4%18%2%31571.3%1=++-=-= (工日)==工作班延续时间定额时间时间定额=580.08638.4 )724.1580.0113m (时间定额产量定额=== 【例2-2】已知砖砌体砖和砂浆的损耗率均为1%,试计算一砖半标准砖墙的砖及砂浆的材料消耗量。
解:(1)计算砖的净用量)(块=)+()+(=3/8.52101.0053.001.024.0365.025.1m A ⨯⨯⨯(2)计算砂浆的净用量)(2367.0)053.0115.024.0(8.52113m B =⨯⨯⨯-=(3)计算材料消耗量块%)=+(标准砖消耗量=02.5271108.521⨯3239.0112367.0m =⨯%)+(砂浆消耗量=增加:1.现浇构件的周转性材料计算:某工程浇筑混凝土独立基础,模板接触面积50m2,每10m2需用板材0.36m3,模板周转6次,每次周转损耗16.6%。
计算混凝土模板一次需要量和施工定额摊销量。
解:模板周转使用量=【0.36*5+0.36*5*(6-1)*16.6%】/6=0.549m3模板回收量=(0.36*5-0.36*5*16.6%)/6=0.25 m3模板摊销量=0.549-0.25=0.299 m32.预制混凝土构件模板计算:某预制过梁0.5m3钢筋混凝土柱,每10m3模板一次使用量为10.2m3,周转25次,计算摊销量。
摊销量=10.2/25=0.408m3.3.用塔吊吊装构件,由一名司机、7名起重工和2名电焊工组成的劳动小组,该机械的时间定额为0.025台班/块,试计算机械台班产量定额和人工时间定额。
1.某工程基础平面图及剖面图如图所示,土壤为三类土,按施工组织设计要求,基槽和房心回填土在槽边堆放,余土外运,运距5km,编制平整场地、挖基础土方工程量清单。
基础平面图及基础详图【解】(1)平整场地工程量S=(9+0.12X2)X (5+0.12X2)=9.24 X 5.24=48.42(m2)(2)挖基础土方工程量基槽长度:L 外=(9+5)X2=28.0m L 内=(5-0.6X2)X2=7.6m垫层宽度:B=1.20m挖土深度:h=1.90-0.30=1.60(m)清单工程量:V=(28+7.6)X 1.2X 1.6=68.35(m3)⑶编制“分部分项工程量清单”如表所示。
分部分项工程量清单工程名称:XXX工程2.例题1中,基础为C20钢筋混凝土条形基础,C10混凝土垫层,编制条形基础混凝土工程量清单。
【解】外墙基础长:L外=(9+5) X2=28(m) 内墙基础长:L内=(5-0.5X2)X 2=8.0(m) 1—1 剖面面积:S i=1X0.1=0.1(m2)S2=[1 + 0.24+ (0.05 + 0.0625X2) X2]X0.1 + 2 = 0.08(m2)内外墙基础混凝土: Vi=(S1+ S2) X (L 外+L 内)=(0.1 + 0.08) X (28+8)=6.48m3 内外墙交接处混凝土: L D=0.5-0.12-0.0625X2-0.05 = 0.205(m)b=0.24+0.0625 X4+0.05X 2=0.59(m)V D=4L D XH D X (2b + B) / 6=4X0.205X0.1X (2X0.59 + 1)=0.179®)条形基础混凝土工程量清单:V=V1+V:6.48 + 0.179 = 6.66(m3)编制“分部分项工程量清单”如下表所示。
分部分项工程量清单3.在图中±0.00以下采用MU1O普通粘土砖,M5.0水泥砂浆砌筑,土0.00以上采用MU10多孔砖,M5水泥石灰砂浆砌筑,-0.06m处设墙基防潮层为1:2.5水泥砂浆,编制砖基础的工程量清单计价。
第三章 建筑工程 第三节 砌筑工程例题与习题例 题【例3.1】某基础工程,如图3.10所示。
已知该条形基础由M5.0水泥砂浆砌筑标准粘土砖而成,基础内镶嵌240mm ⨯240mm 的混凝土地圈梁。
试编制该砖基础工程的工程量清单,并对该工程量清单进行报价。
【解】(1)砖基础工程清单编制(见表3-12) 砖基础清单工程量外墙条形基础长度:L 中=(9+3.6⨯5)⨯2+0.24⨯3=54.72m 内墙条形基础长度:L 内=9-0.24=8.76m应扣除圈梁体积:V 圈梁=0.24⨯0.24⨯(54.72+8.76)=3.663m砖基础体积:V 基础=(0.0625⨯5⨯0.126⨯4+0.24⨯1.5)⨯(54.72+8.76)-3.66=29.193m图3.10表3-12分部分项工程量清单与计价表工程名称:某工程 标段: 第 1 页 共 1页(2)砖基础工程工程量清单报价编制1)施工工程量计算。
砖基础定额工程量计算规则按设计图示尺寸以体积计算。
包括附墙垛基础宽出部分体积,不扣除基础砂浆防潮层及单个面积 0.3m 2以内的孔洞所占体积,靠墙暖气沟的挑檐不增加体积。
同清单工程量计算规则,即定额工程量也为29.193m 。
2)综合单价计算。
依据定额子目3-1-1和本地区市场价可查得,完成每立方米M5.0水泥砂浆砌筑的砖基础人工费为34.10元,材料费为132.41元,机械费为1.73元。
参考本地区建设工程费用定额,管理费和利润的计费基数均为直接工程费的5.1%和3.0%,即管理费和利润单价为13.63元/ 3m 。
①本工程砖基础直接工程费为:29.19×(34.10+132.41+1.73)=4910.93元②本工程管理费和利润合计为:29.19×13.63=485.43元③本工程砖基础综合单价为:(4910.93+485.43)/29.19(清单工程量)=184.87元/ 3m3)本工程合价计算184.87×29.19=5396.36元该清单项目的综合单价分析表见表3-13。
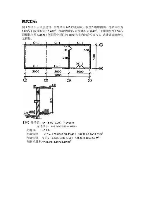
砌筑工程:例1.如图所示单层建筑,内外墙用M5砂浆砌筑。
假设外墙中圈梁、过梁体积为1.0m3,门窗面积为15.40m2;内墙中圈梁、过梁体积为0.4m3,门窗面积为1.5m2,顶棚抹灰厚10mm(剖面图中标注的3870为室内的净空高度),试计算砖墙砌体工程量。
【解】外墙长:L=(5.00+9.00)×2=28m内墙净长:L=5.00-0.365=4.635m高度H:H=3.88m外墙体积V外=(28.00×3.88-15.40)×0.365-1.0=33.03m3内墙体积V内=(4.635×3.88-1.50)×0.24-0.40=3.56 m3墙体总体积V=33.03+3.56=36.59 m3例题2:某工程平面图及剖面图如图所示,已知M1尺寸为1.2m×2.4m,M2尺寸为0.9m×2.0m,C1尺寸为1.8m×1.8m,砖墙为M5混合砂浆砌筑,纵横墙均设C20混凝土圈梁,圈梁尺寸为0.24m×0.18m,试计算砖墙体工程量。
解:外墙中心线长度=(11.1+4.5)*2=31.2m内墙净长线长度=(4.5-0.24)*2=8.52m外墙高度=4.2+0.9=5.1m内墙高度=4.2m门窗面积=1.2*2.4+0.9*2*2+1.8*1.8*5=22.68m2圈梁体积=(31.2+8.52)*0.24*0.18=1.72m3砖砌体体积=(31.2*5.1+8.52*4.2-22.68)*0.24-1.72=39.61m3例3.某传达室,如图所示,砖墙体用M2.5混合砂浆砌筑,M1为1000mm×2400mm,M2为900mm×2400mm,C1为1500mm×1500mm,门窗上部均设过梁,断面为240mm×180mm,长度按门窗洞口宽度每边增加250mm;外墙均设圈梁(内墙不设),断面为240解:①外墙工程量=[(6.00+3.60+6.00+3.60+8.00)×(0.90+1.50+0.18+0.38)-1.50×1.50×6-1.00×2.40-0.90×2.4]×0.24-0.24×0.18×2.00×6-0.24×0.18×1.50-0.24×0.18×1.4=[80.51-13.5-2.4-2.16]×0.24-0.52-0.06-0.04=14.37m3内墙工程量=[(6.0-0.24+8.0-0.24)×(0.9+1.5+0.18+0.38+0.11)-0.9×2.4]×0.24-0.24×0.18×1.40=[41.51-2.16]×0.24-0.06=9.46m3②半圆弧外墙工程量=4.00×3.14×(0.90+1.50+0.18+0.38)×0.24=8.92m3墙体工程量合计=14.37+9.46+8.92=32.75m34.某砌体结构房屋首层平面图下图所示,墙体高度为3.4m,墙厚240,为标准砖,门窗尺寸见门窗表,门窗洞口均设过梁,过梁宽同墙宽,高均为120mm,长度为洞口宽加500mm,屋面板厚100mm。
计算例题:1.根据下列图示,计算砖基础工程量和挖基槽项目工程量V=L(b+2c+kh)h假设为3类土h=1.5mk=0.33 c=0.3 b=1.6沟槽S 砖基础=1.5*(1.6+2*0.3+0.33*1.5)=4.0425 L 外=(13.5+7.2)*2=41.4 L 内=(7.2-1.6)*2=11.2 V=(41.4+11.2)*4.0425=212.64m转基础0.24*(2-0.3)+0.06*0.06*8+0.06*0.12*12=0.5532土壤类别 放坡起点 人工挖土一、二类土 1.20 1:0.50 三类土 1.501:0.33 四类土2.001:0.25基础类型 每边个增加工作面宽度(mm )砖基础200 浆砌毛石、条石基础 150 混凝土基础及垫层支模板300基础垂直面做防水层80051-1=0.365*(2-0.2)+(0.12*0.063)*6=0.7m252-2=0.24*( 2-0.2)+( 0.12*0.063)*6=0.48m2L1-1=( 5.7+2.7+0.0625*2)+(6+0.0625*2)+( 5.7+0.0625*2) +(2.7+0.0625)+( 3.3+0.0625*2)=26.6m2.根据下列图示,计算砖基础工程量和平整场地工作L=2.7+3.3-0.12*2=5.76mV1-仁0.7*26.6=18.62 V2-2=0.48*5.76=2.76 3. 根据下列图示,内外墙工作量,H 外墙=10.2-0.18*3 H 内墙=9.3-0.13*3 D 外墙=0.365 D 内墙=0.24L 外墙=(5.8+3.6*3)*2 L 内墙=(5.8-0.365) *2 V 外=L 外*D 外*H 外-(1.2*2*3+1.5*1.8*17)*0.365 V内=L 内*D 内*H 内-(0.9*2.8*3+0.9*2*3)*0.24V=18.62+2.76=21.38m3rleg.160?M-l l?r.0 x 7000二、」层平面4. 根据下列图示,计算内、外墙工作量J [MJ 1S0-3-52,00注:kJ-';柱-tOOrnrK^L Jmm* 矍 4Q0mn b-^JmirH 外墙=5.8-0.6 H 内墙=5.8-0.6 D 外墙=0.365 D 内墙=0.365L 外墙=(6-0.4) *2+( 4.5-0.4) *6 L 内墙=(6-0.4)*2+( 4.5+0.2-0.365-0.1825 V 外=1外*D 外*H 外-(1.5*2.4+1.8*1.5*5+1.8*0.6*5)*0.365 V内=L 内*D 内*H 内-(0.9*2.1*3)*0.365-O 1 7 Lr ? !" 『①4S&0©45CO ③ V5DD[-? IIDC ^NXIr 1. I83C<5:V5. 打桩工程工作量例题:某工程需做钻孔灌注桩进行地基处理,共120 根,桩顶标高为一11.00m,桩底标高为一41.00m,室外地坪标高为一0.45m,桩直径为巾800mm。
工程量清单计价【任务】某建筑①轴外墙砖基础如下图:中心线长39.3m,高1.00m,具体做法:100mm厚C15砼垫层;防水砂浆防潮层一道;M5水泥砂浆砌砖基础,对此基础工程进行清单报价(按08规范做招标控制价)。
①1.确定工程量清单项目及工程量序号项目编码项目名称项目特征描述计量单位工程量综合单价金额(元)合价其中计费基数暂估价2.综合单价组价假定:企业管理费率9%;利润率8%,材料检验试验费率0.2%,仅考虑人工价差11元/工日工程量清单综合单价分析表(山西省用)工程名称:共页第页序号项目编码项目名称项目单位及数量定额编号定额名称定额单位含量人工费①材料费②机械费③动态调整和风险费用④企业管理费⑤=(①+②+③)×费率利润⑥=(①+②+③+⑤)×费率综合单价(元)⑦=(①+②+③+④+⑤+⑥)/清单工程量二、措施项目清单的计价【任务】假设投标企业为总承包企业。
该拟建工程为六层建筑,分部分项工程直接工程费为100000元。
根据施工组织设计确定该拟建工程只发生文明施工、安全施工、临时设施、混凝土及钢筋混凝土模板、脚手架、垂直运输等费用。
用我省《计价依据》2005年费用定额和建筑工程消耗量定额计价(材料的检验试验费按材料费的0.2%,风险因素按材料费得3.5%,企业管理费按直接费得9%,利润按直接费加企业管理费得8%).表2.2-25 措施项目费分析工程名称:×××工程序号措施项目名称单位数量金额(元)小计人工费材料费机构费企业管理费利润风险因素1 文明施工项 12 安全施工项 12 模板项 1其中垫层模板m214……3 脚手架项 1 …………………3、填写措施项目清单计价表,见表2-5,表2-6措施项目清单与计价表(一)序号项目名称计算基础费率(%)金额(元)1 环境保护费2 文明施工费直接工程费3 安全施工费4 临时设施费(生活)5 临时设施费(生产)6 夜间施工费7 二次搬运费8 冬雨季施工费9 定位复测、工程定点、场地清理10 生产工具用具使用费11 模板12 脚手架13 垂直运输14 大型机械进出场安拆15 施工降水排水合计表2-6 措施项目清单与计价表(二)序号项目编码项目名称项目特征描述计量单位工程量金额(元)综合单价合价1 B1201 垫层模板砼基础垫层钢m2模板合计【任务】某工程直接工程费200万元,其中人工费55万元,材料费135万元,技术措施费50万元,其中人工工资占12.5万元,试按清单计价模式计算其工程造价。
第1篇一、砖基础施工工程量的组成1. 材料工程量:主要包括砖、水泥、砂、石子等。
其中,砖的工程量是砖基础施工工程量的主要部分。
2. 人工工程量:包括施工人员的工资、福利、奖金等。
3. 机械工程量:包括挖掘机、推土机、搅拌机、泵车等机械设备的租赁费用。
4. 施工辅助工程量:如施工用水、用电、施工场地平整、排水、道路等。
二、砖基础施工工程量的计算方法1. 砖基础体积计算:砖基础体积计算公式为 V = 长× 宽× 高。
其中,长、宽、高分别为砖基础的长度、宽度、高度。
2. 砖基础面积计算:砖基础面积计算公式为 A = 长× 宽。
其中,长、宽分别为砖基础的长度、宽度。
3. 砖基础工程量计算:砖基础工程量计算公式为Q = V × 512。
其中,V 为砖基础体积,512 为每立方米砖的块数。
以一个实际工程为例,某砖基础高 500mm,长 25000mm,宽 460mm。
首先计算砖基础体积:V = 25000mm × 460mm × 500mm = 5.75 × 10^6 mm^3 = 5.75 m^3然后计算砖基础面积:A = 25000mm × 460mm = 1.15 × 10^6 mm^2 = 1.15 m^2最后计算砖基础工程量:Q = 5.75 m^3 × 512 = 2960 块砖三、砖基础施工工程量的影响因素1. 砖基础尺寸:砖基础的长度、宽度、高度直接影响工程量。
2. 砖的类型和规格:不同类型和规格的砖,其体积和重量不同,从而影响工程量。
3. 施工工艺:施工工艺的优化可以提高施工效率,降低工程量。
4. 施工现场条件:施工现场的地形、地势、气候等条件也会对工程量产生影响。
总之,砖基础施工工程量是建筑工程中一个重要的环节。
准确计算砖基础施工工程量,有助于合理规划施工进度、控制施工成本,确保工程质量和安全。
砖基础工程量如何计算?
砖基础工程量计算
V放一一矩形砖柱柱基大放脚折算体积,查表得到。
ϖ H2——大放脚的总高度,按各阶高度的标准值计算(m);ϖ H1——砖圆柱自大放脚上面至基础顶面(即分界面)的高度(m);ϖD一一砖圆柱直径(m);ϖ式中,V圆一一砖圆柱砖基础工程量(m3);ϖ V圆=лD2×H1+D2×H2+V放ϖ (2)砖圆柱柱基计算公式:ϖ V放一一矩形砖柱柱基大放脚折算体积(m3),查表7—4或7—5得到。
ϖ H一一矩形砖柱砖基础高度。
自矩形砖柱砖基础大放脚底面至砖基础顶面(即分界面)的高度(m);ϖA、B一一矩形砖柱截面的长、宽尺寸(m);ϖ式中,V矩一一矩形砖柱砖基础工程量(m3);ϖ V矩=A×B×H+V放ϖ
=100×0.365×(1.00+0.259)=45.95(m3)2.砖柱砖基础(1)矩形砖柱柱基计算公式:ϖ =砖基础长度×基础墙厚度×(砖基础高度+大放脚折加高度)ϖ
砖基础工程量=砖基础长度×砖基础断面面积ϖ根据公式,计算:ϖ[解] 查表7—1可知,三层等高大放脚墙厚1.5砖时的折加高度为0.259(m)ϖ例7—3 已知条件同例2。
试用折加高度法计算砖基础工程量。
ϖ即砖基础体积为45.95m3。
ϖ=100×(0.365×1.00+0.0945)=45.95(m3)ϖ =砖基础长度×(砖基础墙厚度×砖基础高度+大放脚折算断面面积)ϖ查表可知,三层等高大放脚折算断面积为0.0945(m2)。
根据公式计算:砖基础工程量=砖基础长度×砖基础断面面积ϖ墙厚为365mm,放脚高为126mm,放脚宽为62.5mm。
ϖ [解] 图7—7中墙厚设计标注尺寸为370mm,放脚高度设计标注尺寸
120mm,放脚宽度设计标注尺寸为60mm,均为非标准标注。
在计算工程量时应将其改为标准标注尺寸,即:ϖ例7—2 如图7—7所示,带型砖基础长为100m,墙厚1.5砖,高1.0m,三层等高大放脚。
试计算砖基础工程量。
ϖ =0.525(m)ϖ大放脚折算断面积=A+B=b×H=0.25×0.504=0.126(m2)ϖ
H=0.126×4+0.063=0.504(m)ϖb=0.0625×4=0.25(m)ϖ[解] 四层不等高放脚断面A、B两部分叠加为矩形,如图7—6(b)。
由前面可知,每步放脚高度为一皮砖时,其高度为63mm;每步放脚高度为二皮砖时,其高度为126mm;每步放脚宽度均为62.5mm。
所以,叠加矩形的高、宽就很容易算出,得:ϖ例7—1 标准砖四层不等高大放脚,如图7—6(a)所示,计算:大放脚折算
断面积及折加高度。
ϖ在工程量计算时,大放脚T形接头处的重叠部分,嵌入基础的钢筋、铁件、管道、基础防潮层等所占的体积不予扣除,但靠墙暖气沟的挑砖亦不增加;穿过墙基的孔洞,其洞口面积每个在0.3m3以上的洞口应予以扣除,其洞口上的混凝土过梁或砖平碹亦应另列项目计算。
ϖ5)基础大放脚折加高度及断面面积,可按表查取。
在计算时应注意,设计图纸中,往往习惯以60mm或120mm标注大放脚的放出高度及放出宽度,工程量计算时,均按表计算。
当设计图纸中的不等高大放脚为非标准63mm与126mm互相交替间隔放脚时,亦可按前面讲述的每层放高、放宽数据,根据设计图纸的规定计算大放脚断面面积。
ϖ大放脚折加高度是指砖基础大放脚部分断面面积折算为和基础墙等厚的墙高度,即:ϖ 4)大放脚折加高度。
ϖϖ砖基础大放脚分为等高式和不等高式两种。
等高式放脚,每步放脚层数相等,高度为126mm(两皮砖加两灰缝);每步放脚宽度相等,为62.5mm(一砖长加一灰缝的1∕4),其大放脚折算断面积为A、B两部分叠加为矩形的面积。
不等高放脚,每步放脚高度不等,为63mm与126mm互相交替间隔放脚,每步放脚宽度相等,为62.5mm;其大放脚折算断面积为A、B两部分叠加为矩形的面积.ϖ 3)大放脚折算断面积。
ϖ砖基础断面面积=基础墙厚度×(基础高度+大放脚折加高度)ϖ砖基础断面面积=基础墙厚度×基础高度+大放脚折算断面积或ϖ外墙砖基础按外墙中心线长度;内墙砖基础按内墙净长线计算。
遇有偏轴线时,应将轴线移为中心线计算。
2)砖基础断面面积确定。
ϖ1)砖基础长度的确定。
ϖ砖基础工程量=砖基础长度×砖基础断面面积ϖ计算公式:ϖ(1)砖墙砖基础ϖ2.工程量计算方法ϖ砖柱独立砖基础工程量为基础部分柱身体积与大放脚体积之和。
ϖ条形砖基础工程量为基础墙体积与大放脚体积之和。
ϖ 1.砖基础工程量包括的范围ϖ
相关搜索。