斗提胶带更换方案样本
- 格式:doc
- 大小:49.00 KB
- 文档页数:4
水泥库出库斗提皮带更换施工技术及安全范本一、施工技术1. 准备工作- 进行安全检查,确保工作区域安全;- 停止所有输送设备的运行,并断开电源;- 清理工作区域,确保整洁无障碍;- 准备所需的工具和材料。
2. 拆除原皮带- 使用合适的工具,拆除皮带固定螺栓;- 用起重设备将原皮带从滚筒上卸下,并小心放置在安全区域;- 将原皮带的连接处拆开,并妥善存放。
3. 安装新皮带- 清理滚筒和输送设备的表面,并确保其平整;- 修复或更换损坏的滚筒,确保其能够正常工作;- 固定新皮带的连接处,确保连接牢固;- 使用起重设备将新皮带缓慢地放置到滚筒上,并确保其对中;- 根据需要对新皮带进行调整,以保证其紧固度合适。
4. 调试和测试- 打开输送设备的电源,启动设备,观察新皮带的运行情况;- 检查皮带是否正常运行,无松动、跑偏、断裂等异常情况;- 如有必要,调整滚筒和皮带的位置,以确保其正常运行。
5. 完工及清理- 在完成更换工作后,进行最后的检查和测试;- 清理工作区域,将废弃材料和工具妥善处理;- 恢复电源,并通知相关人员恢复设备运行。
二、安全范本1. 安全检查- 换带工作前,必须对施工区域进行安全检查,确保无危险物品和障碍物;- 使用合适的个人防护装备,包括安全帽、安全鞋、护目镜和手套等;- 周围人员必须保持距离,避免意外伤害。
2. 停机和断电- 施工前必须停止所有相关的输送设备,并断开电源;- 确认设备已完全停止运行,且电源已被完全断开。
3. 使用起重设备- 使用起重设备时,必须由专业操作人员进行操作;- 起重设备的使用必须符合相关操作规范;- 起重设备的使用前必须检查设备的安全性能。
4. 调试和测试- 启动设备前,必须清理和检查设备表面,确保无杂物和损坏;- 在开始调试时,要保持清醒和集中注意力;- 如发现任何异常情况,应立即停机并尽快排除故障。
5. 废弃物处理- 废弃的皮带、螺栓和其他杂物必须妥善处理;- 废弃物必须按照相关要求分类,并送往指定的区域处理或回收。
整体解决方案系列更换斗提机安全技术措施(标准、完整、实用、可修改)编号:FS-QG-30536更换斗提机安全技术措施Safety measures for replacing bucket elevator说明:为明确各负责人职责,充分调用工作积极性,使人员队伍与目标管理科学化、制度化、规范化,特此制定一、施工项目:更换斗式提升机。
二、施工目的:解决因设备老化,而造成提升能力受限;机体磨损严重,经常产生漏料现象,而制约安全生产的问题,并达到能更好的适应安全生产的需要。
三、施工的主要任务1.更换斗提机的斗链组成。
2.更换斗提机全部槽体。
四、施工时间:五、施工地点:选煤车间主厂房1-6层六、施工程序1、准备工作:1.1车间召开三结合座谈会确定施工方案后,组织相关人员到施工现场,观察更换环境,确定施工方案,编制详细的施工安全技术措施。
1.2新设备到货后,及时校验相关尺寸,确认无误后确定施工日期。
1.3本次施工机头传动装置、机尾节段不进行更换。
1.4将新斗子槽体按自下而上的顺序用红漆编写好序号:从机尾依次而上为1#--11#。
1.5准备材料:槽钢、钢板、木板、水泥、铅油等材料,准备施工工具:5T倒链3个、3T倒链5个、2T倒链5个、5分绳扣10根、4分绳扣10根、尖锥8根、长橇棍4根、梅花板手(22*24)8把、单滑2个、起重吊环20个、自制两台平板小车、准备临时灯5盏。
1.6提前对主厂房5T天车、3T电动葫芦、牵引绞车、主厂房焊机、等施工工具进行检查完后情况。
1.7在主厂房六至七层楼梯平台中间合适位置安装一台7.5kw绞车,方向正对机头传动装置正中位置,绞车钢丝绳选用5分,长度不少于60米,用6根M20*240的双头螺栓与楼板固定,并用钢丝绳锁到旁边柱子上。
1.8在机头中心位置上方楼板适当位置用电锤打孔,安装一部3吨单滑,将绞车绳从单滑穿过。
1.9将新槽体运到施工现场相应位置。
具体要求是:1#、2#、3#运到主厂房二层897#机尾处西侧,4#、5#、6#、7#运到主厂房三层,8#、9#、10#、11#运到主厂房六层。
胶带机更换零部件作业规程示范文本In The Actual Work Production Management, In Order To Ensure The Smooth Progress Of The Process, And Consider The Relationship Between Each Link, The Specific Requirements Of EachLink To Achieve Risk Control And Planning某某管理中心XX年XX月胶带机更换零部件作业规程示范文本使用指引:此操作规程资料应用在实际工作生产管理中为了保障过程顺利推进,同时考虑各个环节之间的关系,每个环节实现的具体要求而进行的风险控制与规划,并将危害降低到最小,文档经过下载可进行自定义修改,请根据实际需求进行调整与使用。
1.适用范围所有胶带机2.一般规定1)从事检修人员必须经过有关培训,经考核合格后发证,持证上岗。
2)从事检修人员必须熟知设备的结构,性能及拆卸方法。
3)检修人员要严格执行停、送电制度,申请停电并验电,严禁带电进行作业。
4)凡操作人员都必须按规定穿戴劳动保护(包括工作服、安全帽、防护鞋、手套等)用品。
3.更换清扫器、托辊(1)作业工序:1)申请停电、验电、挂锁。
2)更换清扫器a)安装清扫器,调整好清扫器与胶带间隙,不能太松也不能太紧,以试车时不回煤为准。
b)工作完毕后,清理工作现场,收拾工器具,回收旧部件。
3)更换托辊a) 托起待换托辊上方的胶带。
b)卸下旧托辊。
c) 安装新托辊。
4)申请送电试车。
5)撤离现场。
(2)安全技术措施1)工作前:a)必须认真落实备件数量、质量、规格。
b)认真检查工器具的完好情况,特别是起重工具完好,可靠。
c)进入工作现场,检修人员负责通知集控室停电,包括胶带机及与之相关联的上、下作业环节设备的动力电源,然后检修人员验电,确认停电后上锁。
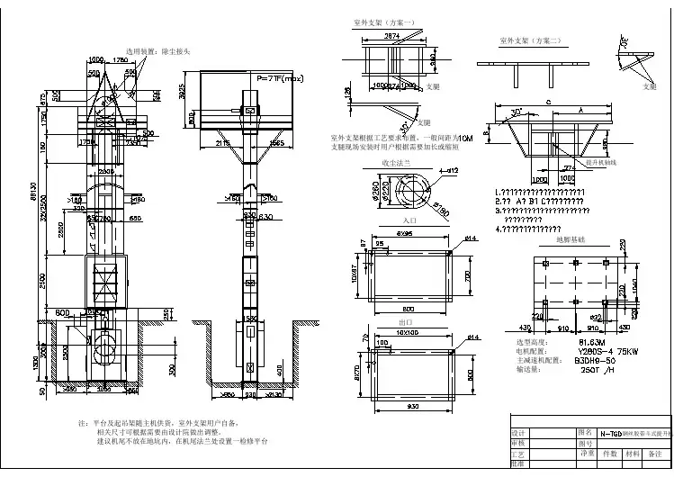
胶带斗提的组成及工作原理一、设备规格、参数二、胶带斗提的主要组成1、带驱动部件和驱动辊筒的斗提头部斗提头部是组合薄钢结构,由相互栓紧的上部和下部构成,为驱动轴外部提供托架,检查门能够控制内部空间和组成部分的安装。
驱动装置包括:电机、液力偶合器、中空轴和带逆止器的变速箱、齿轮电机。
变速箱中空轴安装在驱动轴上并由收缩盘固定。
齿轮电机作为辅传通过飞轮离合器连接到主变速箱上,齿轮电机作为驱动器只能用于维修。
驱动辊筒的轴由自对位滚子轴承来支撑。
驱动辊筒配备有可更换的摩擦衬套并通过夹紧件固定在轴上。
2、斗提壳体及头尾轮收尘管道3、斗提的绳索斗提的绳股由橡胶带构成。
在皮带的横向和纵向都有钢丝骨架加固。
皮带的末端结点处用特殊的夹紧接头连接。
为了安全的目的,纵向绳索的末端在夹具连接下被密封,料斗被固定在皮带上。
4、带滑轮和平行张紧装置的提升机进料口提升辊筒设计为杆式滑轮。
它被支撑在装配有两个轴承壳体的自对位滚子轴承上。
轴承壳体通过两个张紧轴连接提升滑轮上的张进装置。
通过这些张紧轴,可以改变提升滑轮的方向,因此可以调整皮带的直线运行。
圆钢的张紧重量跨过整个斗提宽度,在每两个齿形架之间每端有一个齿形轮。
由于这个限制导向槽,确保了皮带负载或延长时的直线运动。
斗提的进料口由薄钢组成,被固定在支撑面上。
提升滑轮、配重装置和张力设备都被安装在内部或斗提进料口上。
三、胶带斗提的检查要点(开停机状态)1、驱动装置:检查电机、减速机、液偶的油位、油质、异音、温度、振动是否异常,地脚螺栓是否松动。
2、检查各种保护装置是否有效。
3、检查头尾轮:主轴是否变形,轮体有无开裂开焊现象,底部有无杂物并清理。
4、检查胶带是否起皮、开裂、鼓包、磨损情况。
5、检查料斗是否变形、开裂、开焊,压铁是否到位,螺栓是否松动,紧固螺栓时必须整排紧固。
6、检查张紧装置是否适当,根据胶带跑偏情况进行调整。
7、检查进出料口是否有异物,磨损情况。
接料挡皮与料斗垂直距离保证在20mm以内。
编号:01号2428入窑斗提胶带更换方案一、项目名称:2428入窑斗提胶带更换、接头硫化。
二、检修目的:消除胶带老化隐患, 防止运行中整体落架事故的发生, 确保设备周期运行正常。
三、运行现状:该斗提自 3月份投产, 已累计运行60个月, 运行周期较长, 胶带表面高温碳化现象严重; 利用检修检查斗提胶带当前状况为: 胶带接头正面上下方位置大面积胶皮鼓包现象, 背面接头上下横向第一层橡胶和帆布均已断层, 胶带两面胶面龟裂严重。
四、原因分析:5月14日由BEUMER公司人员现场测试胶带肖氏硬度为82度, 12月份随着余热发电项目的投产运行, 由于窑尾回灰物料温度的增加, 对胶带影响较大, 于 11月28日联系BEUMER公司人员现场测试胶带肖氏硬度为93度。
根据检测结果对比分析, 余热回灰物料对胶带过早老化影响较大, 平均每运行一年胶带肖氏硬度上升10度左右, 胶层受高温碳化以后出现鼓包脱落, 高温及粉尘侵蚀到内部钢丝, 胶带运行抗拉强度将会大大下降。
为此, 为防止胶带拉断造成造成整体落架的重大设备事故的发生, 确保设备安全运行, 需要整体更换入窑斗提胶带。
五、节点计划: ( 计划时间116小时)第一步: 料斗拆除24小时;第二步: 旧胶带拆除, 新胶带安装就位24小时;第三步: 胶带接头20小时;第四步: 料斗安装48小时。
六、材料备件准备:七、工器具准备:八、人员安排:钳工: 8人焊工: 2人起重工: 2人技术负责: 2人九、施工步骤:1、停机前准备工作: 在斗提卸料端正前方墙壁开一个长×高为1500×1000的放带孔, 将胶带整体吊装至放带孔正前方位置, 工器具准备到位;2、停机后办好停电手续, 现场开关打至检修位置, 打开尾轮下方及二楼平台检修门;3、启动辅传分别从二楼平台检修门处依序拆除所有料斗( 290只) ;4、再启动辅传将接头对到尾轮检修门位置, 分别从二楼平台检修门两边使用2T葫芦将胶带与壳体进行固定( 以防接头脱开后胶带两边偏重发生自行滑落) ;5、从尾轮检修门处拆卸胶带接头螺栓及模具, 将出料端胶带拖出检修门, 再将新胶带一头与旧胶带进料端使用专用夹具进行连接( 至少二个料斗位置) ; 在尾轮检修门靠上口位置安装一只压辊( φ89×1000) 便于旧胶带拖出时的滑行, 靠下口位置安装一只托辊, 便于新胶带进入时的滑行;6、将旧胶带出料端一头装好夹具及钢丝绳与装载机接好, 检查胶带进出两端接头夹具固定牢靠以后, 拆除二楼平台检修门两边胶带与壳体连接葫芦;7、指挥装载机慢慢牵引胶带, 使旧胶带一边拖出新胶带一边同时进入, 直到新胶带完全进入后再分别从二楼平台检修门两边使用2T葫芦将新胶带与壳体进行固定;8、根据斗提厂家确定好接头位置后, 调整尾轮张紧至最上限位置, 在胶带背面分别沿接头上下两端第三个料斗位置安装夹具, 并用一台5T葫芦上下悬挂好将胶带两头进行收紧, 然后开始胶带接头工作;9、按专家指导要求尺寸开始剥除钢丝上胶层, 打好螺栓孔, 用砂纸打磨去除钢丝表面橡胶后, 装上接头夹具, 按照紧固要求依序紧固好接头螺栓;10、将露出的接头部位钢丝每股拆散, 将上下钢丝相互缠绕编制;11、装好接头铅封模具, 使用模具拉杆将模具与接头夹具紧贴密实( 如有缝隙必须用胶泥进行封堵) , 从模具灌胶口注入封头铅料, 灌实后封好灌胶口; 测量并记录接头两端长度;12、拆除胶带背面及二楼平台检修门两边葫芦及夹具, 松开尾轮张紧并调整合适紧力, 然后启动辅传分别从二楼平台检修门处依序安装料斗;13、料斗安装结束后送电空载试车, 观察并调整胶带运行跑偏情况;14、负载运行8-16小时后停机检查接头状况并复紧接头螺栓。
YF-ED-J5503可按资料类型定义编号更换胶带安全技术措施实用版In Order To Ensure The Effective And Safe Operation Of The Department Work Or Production, Relevant Personnel Shall Follow The Procedures In Handling Business Or Operating Equipment.(示范文稿)二零XX年XX月XX日更换胶带安全技术措施实用版提示:该解决方案文档适合使用于从目的、要求、方式、方法、进度等都部署具体、周密,并有很强可操作性的计划,在进行中紧扣进度,实现最大程度完成与接近最初目标。
下载后可以对文件进行定制修改,请根据实际需要调整使用。
1、施工前必须由施工负责人组织所有参加施工项目人员召开安全班前会,部署施工方案和时间安排,传达施工安全技术措施,学习后进行签字。
不学习措施及未签字人员不准从事此项工作。
2、施工人员到达现场后,要认真的排查施工现场的不安全因素,并清理施工地点的浮煤与杂物后,方可施工。
3、特殊工种人员要持证上岗,严格按照相关的安全技术操作规程执行。
4、施工负责人与相关的司机、信号工及其他人员进行联系,说明工作中要注意的问题及联系信号。
5、施工前,要将放煤设施进行关闭,使用液压闸门或液压老虎嘴控制的要将控制开关停电闭锁,防止在更换皮带过程中放煤。
6、如需在煤仓溜煤眼上口工作时,必须将溜煤眼上口用不朽的木板或金属型材封严。
7、砸接皮带卡扣时,配对施工人员要紧密配合,所有人员要避开大锤抡起的方向。
8、在使用刀具割皮带倒角等工作时,要防止刀具伤人。
9、当需要用胶带托运时,胶带的接头必须牢固可靠,用不少于10根的8#铁丝与旧胶带的穿条进行连接拧紧,经检查无误后再联系托运。
10、托运胶带时,必须将胶带车的车轮用木楔或防跑车装置进行可靠稳车,由专人统一指挥,联系信号,拖胶带的行程内不得站人或从事其它工作。
斗提机E301更换皮带及畚斗的方案斗提机E301自2004年投产,经长期使用皮带非承载在面磨损较重,存在安全隐患,需更换皮带及畚斗。
制定斗提机E301更换皮带及畚斗的方案计划如下:一.前期准备工作1.皮带打孔处理好备用;2.将皮带及皮带滚筒支架吊运到合适位置安放好;3.将电动工具电源及检修电机控制线路连接好,放置于检修层,夜间工作所需的照明设施也需提前架设完成;4.由王经理组织召开人员协调会,维修队、储运队、技术室、调度室参加,安排好维修工作,特别是夜间作业的问题。
二.维修方案1.最好利用夜间开始施工,将检修门打开,两处同时开工作业,将畚斗逐一摘除,留两排斗不拆;(旧畚斗废弃不再使用,直接放到废料库里)2.将尾部配重用倒链吊起来,升至行程上限,配重吊装注意安全;(做好防止倒链滑脱的措施)3.将皮带用夹板固定住(位置在搭接头两侧),将皮带搭接斗拆开;4.将新皮带用螺栓与旧皮带连接在一起,将皮带固定支架松开(将阻止皮带沿维修电机带动前进的固定支架拆除),点动检修电机,将新皮带穿进去,旧皮带收出来。
收皮带的过程注意速度,防止皮带过快下滑导致皮带整体滑出或造成人员伤害;5.将新皮带两侧用夹板固定住,新旧皮带搭接拆开,将配重放置于行程上1/4处;6.将皮带收紧截去多余部分(应考虑皮带使用后自然拉伸得情况),用畚斗将皮带搭接起来;7.搭接畚斗不少于六排,将固定支架拆除,将配重放下;8.点动检修电机逐个安装畚斗(畚斗用新的,小孔的8mm),搭接头的畚斗应将畚斗高度截去5—6cm一段;9.安装畚斗完成后,先运行检修电机,检查设备状况,正常后,点动主电机,检查设备状况,如有问题立即相应处理,如无异常可运行10分钟;10.设备正常后然后逐步恢复设备原先状态;11.将修理的工属具收回,废旧物资放置于合适位置,清理现场卫生。
三.后续检修调试工作1.进行设备空载试车,检查设备状况,并调整皮带跑偏情况,空载运行20分钟;2.空载试车正常后,加载试车并相应检查调试,流量由100T/H逐步加至,在350T/H流量上运行30分钟,最后加至500T/H,运行一小时;3.试车正常过后,开始正常使用,但仍需现场人员多检查多注意,发现问题及时处理。
胶带机更换零部件作业规程范本一、目的本作业规程旨在规范胶带机更换零部件的操作流程,确保更换工作的安全和准确性,提高作业效率。
二、适用范围本作业规程适用于胶带机更换零部件的作业,包括但不限于胶带机轴承、传动带、链条等的更换。
三、作业前准备1. 确认胶带机已停止运行,并断开电源。
2. 确认所需更换的零部件已准备完毕,并符合要求。
3. 准备所需工具和设备,如扳手、螺丝刀、润滑油等。
四、操作流程1. 清洁工作a) 使用干净的布或刷子清除胶带机表面的灰尘和污垢。
b) 使用安全液体清洁剂清洁零部件的表面,确保其干净无尘。
2. 卸下原部件a) 根据胶带机的结构和所需更换零部件的位置,确定需要拆除的相应部件。
b) 使用适当的工具,如扳手、螺丝刀等,按照说明书或工作流程要求,逐步将原部件卸下。
c) 将卸下的部件放置在指定的位置,以便后续处理或检查。
3. 清洁检查a) 检查原部件卸下后的安装位置是否干净无尘,如有污垢应及时清除。
b) 检查原部件的状态,如磨损、裂纹、变形等,如果发现异常应及时报告并更换为新的零部件。
4. 安装新部件a) 将新部件妥善取出并检查其质量和规格是否符合要求。
b) 根据说明书或工作流程要求,按照逆序进行安装,确保每个部件的位置和方向正确无误。
c) 使用适当的工具,如扳手、螺丝刀等,逐步将新部件安装到位。
d) 在安装过程中,注意加强力度的控制,避免过度紧固或损坏零部件。
5. 润滑处理a) 根据胶带机的要求,对已更换的零部件进行润滑处理。
b) 使用适当的润滑油或润滑脂,按照说明书或工作流程要求,进行润滑处理。
6. 调试测试a) 确保所有更换工作已完成,并确保所有螺栓、螺母等紧固件均已加固。
b) 执行胶带机的调试测试程序,确认更换的零部件正常运行。
c) 如果发现异常或故障,应及时排除或报告相关部门。
五、安全注意事项1. 在作业过程中需确认胶带机已停止运行,并断开电源,以避免意外启动造成伤害。
2. 操作人员需佩戴个人防护装备,如安全帽、手套和防护眼镜等,确保作业安全。
池州海螺制造一分厂2401斗提胶带更换方案公司领导:生产处领导:保全处领导:分厂领导:编制:何征二线2401斗提胶带更换方案一、检修目的:池州海螺制造一分厂二线2401入库斗提胶带表面硬化且接头处出现开裂鼓包现象,胶带接头下方料斗螺栓下沉,胶带损坏见钢丝,分厂制定了长期隐患监控措施,并落实备件,将利用计划检修组织进行更换。
二、维修准备工作:提前焊接制作放新胶带的支架,斗提头部搭设好检修平台,准备好检修工具及检修材料,停机前将料斗物料卸空,待停机后办理主电机停电手续,准备施工更换胶带;三、方案实施步骤:1、打开斗提尾部检修门及预热器二平台检修门,并在均化库平台斗提壳体上割开另一检修门,以便拆除斗提料斗;同时将斗提尾部积料清理干净。
2、在斗提头部检修门及二平台检修门同时用专用电动扳手拆卸料斗螺栓,头尾对称拆卸料斗,保证胶带两侧保持平衡,点动辅传电机,逐对拆除所有料斗,并将拆下的料斗、螺栓、压板归类摆放整齐;3、将新胶带放置斗提尾部检修门处,并用支架将胶带悬空。
方便放送胶带。
4、待所有料斗拆除完毕后,将胶带接头用辅传转到尾部检修门处,用胶带夹具将接头上部胶带与新胶带夹紧固定。
5、松斗提配重螺栓,用2只3吨葫芦对称提起胶带斗提配重,并用3吨卷扬钢绳配合夹板保住接头另一段,割断斗提胶带接头两侧胶带,拆除旧接头。
6、点动辅传电机同时盘动架在支架上的新胶带;新胶带从尾部检修门进入斗提箱体,旧胶带从尾部检修门用三吨卷扬配合拉出。
7、待新胶带放至最后十米时,用夹具将新胶带接头用葫芦固定,缓慢放送胶带直至新胶带从尾部检修门放出。
8、待新胶带两头在尾部检修门相会后,对新胶带进行接头。
9、待胶带接头完成后再次紧固接头夹板螺栓,紧固胶带接头螺栓时必须遵守下面的规定:1)先紧固第一排的螺栓再紧固第二排螺栓。
2)从皮带中心开始,左右两边交替紧固螺栓。
3)每排紧固两次。
4)需要拧紧的力矩:第一次300N/m,第二次400N/m。
1401、1428斗提胶带更换方案制造和保理计划1401,1428铲斗提升胶带更换计划1,概述1401,1428铲斗提升在XXXX 6月投入运行1428年3月,XXXX,由于接缝处的橡胶表面和暴露的钢丝开裂,斗式提升机进入窑内。
在XXXX 2月份的窑炉维修中,发现1428斗式提升机胶带老化,料斗固定螺栓孔周围出现裂纹,胶带接头下的第一个料斗因部分螺栓带穿透而被拆除。
7月,XXXX 1428斗式提升机落下7个料斗,料斗螺栓周围的橡胶表面严重撕裂,钢丝外露。
1401年9月的XXXX,由于一些螺栓穿过了粘合剂,铲斗提升胶带接头下的第一个料斗被拆除。
与此同时,粘合剂表面出现裂纹并老化,尤其是料斗螺栓周围150毫米处。
XXXX 12月份,接头粘接面开裂,开裂现象有恶化趋势。
在XXXX的二月,接头被重新制造。
在XXXX的三月,接头下的第二个漏斗被移除,因为一些螺栓穿过了粘合剂。
目前,料斗在两个料斗中间重新钻孔,粘结面开裂现象严重。
目前,1401、1428吊桶胶带开裂较为严重,有钢丝外露。
为了确保设备的安全运行,公司通过研究决定整体更换1401和1428吊桶胶带。
2、维护目的消除设备隐患,恢复设备安全运行三、施工步骤及施工安排- 1-(一)施工前对序号1 2 3 4 5施工内容备品备件材料规格型号进行确认,运输到指定地点准备四套自制专用胶带夹板清理妨碍现场工作的障碍物和杂物。
组织相关施工人员定期到现场做准备工作,并组织65T吊车准备维修部使用的工具。
负责单位、制造部门、制造部门、制造部门、安全办公室、制造部门、制造部门的计划时间。
(2)施工步骤第1203号施工内容原料厂停工、斗体料斗原料粉卸空并送至神马公司进行主送电故障程序打开斗体检修门、拆除料斗、每16个料斗拆除一个料斗等。
拆除所有料斗后,65T起重机准备就绪(根据料斗拆除进度确定)1。
检修门下方现场焊接一个平行托辊(φ 108 * 1250),用于拆除旧胶带。
方案制造分厂1401、1428斗提胶带更换方案一、情况概述1401、1428斗提于2011年6月份投入运行。
2012年3月份1428入窑斗提因接头处胶面开裂,钢丝裸露,重新制作了接头,2013年2月份窑检修时发现1428斗提胶带老化、料斗固定螺栓孔周围出现了龟裂现象且胶带接头下方第一个料斗因部分螺栓带穿胶面对其进行了拆除,2013年7月份1428斗提掉落7个料斗,脱落料斗的螺栓周围胶面撕裂严重,钢丝裸露;2012年9月份1401入库斗提胶带接头下方第一个料斗因部分螺栓带穿胶面对其进行了拆除,同时胶面出现龟裂老化现象,尤其是料斗螺栓周围150mm,2012年12月份接头胶面出现开裂现象,且龟裂现象有恶化趋势,2013年2月份对接头进行了重新制作,2013年3月份接头下方第二个料斗因部分螺栓带穿胶面对其进行了拆除,目前在掉落的两个料斗中间重新打孔增加了料斗,胶面龟裂现象严重。
目前,1401、1428斗提胶面龟裂较为严重,且有钢丝裸露,为保证设备安全运行,经公司研究决定,对1401、1428斗提胶带整体进行更换。
二、检修目的消除设备隐患,恢复设备安全运行。
三、施工步骤及施工安排(一)施工前准备(二)施工步骤四、施工工器具六、施工组织及人员安排1、人员安排:项目总负责:张文昌施工负责:神马公司技术负责:厂家人员神马维修人员:电焊工4人维修工8人起重工2人2、施工作息时间安排两班对倒24小时作业七、安全防范措施:、正确穿戴劳保用品:2、指定专人办理停送电手续,并在闸门上挂“有人施工,禁止合闸”警告牌:3、吊装设备检查后,必须进行试吊装,确保安全可靠后,方可正常使用;4、检修时照明电源不得超过36V电压;5、吊装件下方严禁过人和停留,吊装现场需拉安全警戒绳;6、使用大锤时,人不要站在大锤受力两侧防止铁屑伤人;7、斗提内部作业时应搭好并绑实跳板;8、高空作业应系好安全带;9、严禁在施工现场休息。
八、质量保障措施:1、接头钢丝绳必须剥除干净;2、主夹带紧固力矩是500N.m:3、接头螺栓紧固时一定应先由中间紧固后向两侧紧固:4、料斗螺栓垫板紧固为深入胶带6mm;5、接头胶必须完全凝固好才能安装料斗;6、施工结束后,在斗提机空负荷1小时,负荷运行3天、7天、15天和一个月后,必须对斗提带夹联接头螺栓(450N.m)及料斗联接螺栓(200Nm)紧固,以后利用停机进行检查紧固;7、斗提安装施工结束后,制造分厂组织技术员及巡检操作员对斗提运行情况进行实时监控,并做好详细记录;8、焊机底线搭接合理,防止电流通过轴承及电仪设备;9、具体技术要求以外方专家意见为准。
1、XX水泥入窑胶带斗提断裂一、事情经过2008年3月6日16:43分, XX水泥三线突然发生入窑胶带斗提断裂事故, 导致斗提部分壳体及料斗的变形严重, XX水泥立即组织人员对斗提进行抢修, 于3月14日抢修结束投料生产, 造成直接停窑195小时。
二、原因分析事故发生后装备部立即会同生产厂家专家、XX水泥对现场进行了察瞧, 并组织专家、XX水泥相关人员及时召开了现场分析会, 经分析岗位人员未按照操作使用说明书进行螺栓松动情况检查, 胶带接头螺栓松动导致胶带断裂就是导致本起事故发生的直接原因。
三、防范措施本次事故发生后, 经装备部协调生产厂家在最短的时间内无偿提供新的胶带、壳体等, 事故的绝大部分直接损失已挽回, 但其影响停窑达八天之久, 间接损失数额巨大。
本次重大设备事故损失就是惨痛的, 教训就是深刻的, 公司各单位要认真吸取入窑胶带断裂事故教训, 组织人员培训学习, 举一反三、引以为戒, 落实好各项保障措施,重点做好接头螺栓有无松动、螺栓预紧力就是否符合规定、料斗螺栓有无松动情况要求等日常检查工作, 对斗提维护保养、检查严格按照厂家操作使用说明书要求进行。
各公司要提高岗位人员责任心, 加强对新聘员工的培训工作, 进一步提高岗位人员工作技能, 规范执行“四级点检”制度, 理顺设备管理流程, 建立高效的设备运行保障体系, 确保公司各项目标任务全面完成。
2、XX水泥3428斗提胶带断裂一、事情经过2008年11月19日23:28 分中控显示3428斗提速度开关故障跳停, 与此同时中控操作员听到响声, 立即通知当班巡检现场检查3428斗提, 检查发现斗提尾部正压大量冒灰, 立即汇报分厂、保全处、生产处、公司领导等相关人员。
相关人员立即到现场后, 经现场进一步检查确认发现: 斗提下部部分壳体向外鼓胀, 胶带与料斗垮落在斗提壳体内, 斗提胶带发生断裂。
之后立即汇报装备部, 同时由公司领导连夜组织召开紧急会议进行恢复抢修研讨及工作安排。
目录1、编制说明及大修概况 (1)1.1编制说明 (1)1.2 工程概况 (1)2、大修目标 (2)3、大修指挥体系 (3)4、大修施工协调会制度 (3)5、大修项目综合进度计划表 (4)6、大修劳动力负荷表 (4)7、施工平面示意图 (4)8、主要项目施工方案 (4)8.1 3#、4#磨机热风管道更换施工方案 (4)8.2 入库斗提皮带、斗子更换施工方案 (5)8.3 磨盘衬板更换施工方案 (7)8.4 入磨溜子更换施工方案 (9)9、施工技术质量保证措施 (10)10、安全、环保、消防保证措施 (11)10.1 安全管理保证体系 (11)10.2 落实安全施工生产责任制 (12)10.3 安全、环境保证措施 (13)11、工期保证措施 (15)12、施工消耗材料一览表 (16)13、施工机具一览表 (17)1、编制说明及大修概况1.1编制说明(1)本方案根据我们对磨机设备检修所取得的丰富经验、进行现场调查及业主的交底而编制。
(2)本方案编制的指导思想是:精心管理,确保质量,合理安排,保证进度。
(3)本方案执行以下国家标准:《冶金机械设备安装工程质量检验评定规范》《冶金机械设备安装工程施工及技术规范》《现场设备焊接工程施工及技术规范》GB50236-98《工业金属管道工程质量检验评定标准》GB50184-93《现场设备、工业管道焊接工程施工及技术规范》GB50236-981.2 工程概况根据水钢渣厂计划要求,本工程从2012年1月9日—2012年1月17日实施,历时8天。
是日钢水渣处理厂投产以来第一次大修,对大修的各项工作提出更高的要求,故本次大修必须提前准备、合理策划、制定详细可行预案。
本次大修的主要工作量如下:(1)1#、2#、3#、4#磨机内部设备大修;(2)3#、4#磨机热风炉设备大修;(3)1#、2#、3#、4#磨机入库系统设备大修;本次大修的工程难度及施工特点:(1)热风炉区域,作业温度偏高,作业环境恶劣;(2)工期短,施工任务量大,作业面相对集中;(3)检修期间,立体交叉、水平交叉作业点多,作业面相对狭小,因此对安全防护措施要求特别高;(4)施工区域情况复杂。
编号:
01号
2428入窑斗提胶带更换方案
一、项目名称:
2428入窑斗提胶带更换、接头硫化。
二、检修目的:
消除胶带老化隐患, 防止运行中整体落架事故的发生, 确保设备周期运行正常。
三、运行现状:
该斗提自 3月份投产, 已累计运行60个月, 运行周期较长, 胶带表面高温碳化现象严重; 利用检修检查斗提胶带当前状况为: 胶带接头正面上下方位置大面积胶皮鼓包现象, 背面接头上下横向第一层橡胶和帆布均已断层, 胶带两面胶面龟裂严重。
四、原因分析:
5月14日由BEUMER公司人员现场测试胶带肖氏硬度为82度, 12月份随着余热发电项目的投产运行, 由于窑尾回灰物料温度的增加, 对胶带影响较大, 于 11月28日联系BEUMER公司人员现场测试胶带肖氏硬度为93度。
根据检测结果对比分析, 余热回灰物料对胶带过早老化影响较大, 平均每运行一年胶带肖氏硬度上升10度左右, 胶层受高温碳化以后出现鼓包脱落, 高温及粉尘侵蚀到内部钢丝, 胶带运行抗拉强度将会大大下降。
为此, 为防止胶带拉断造成造成整体落架的重大设备事故的发生, 确保设备安全运行, 需要整体更换入窑斗提胶带。
五、节点计划: ( 计划时间116小时)
第一步: 料斗拆除24小时;
第二步: 旧胶带拆除, 新胶带安装就位24小时;
第三步: 胶带接头20小时;
第四步: 料斗安装48小时。
六、材料备件准备:
七、工器具准备:
八、人员安排:
钳工: 8人焊工: 2人起重工: 2人技术负责: 2人
九、施工步骤:
1、停机前准备工作: 在斗提卸料端正前方墙壁开一个长×高为1500×1000的放带孔, 将胶带整体吊装至放带孔正前方位置, 工器具准备到位;
2、停机后办好停电手续, 现场开关打至检修位置, 打开尾轮下方及二楼平台检修门;
3、启动辅传分别从二楼平台检修门处依序拆除所有料斗( 290只) ;
4、再启动辅传将接头对到尾轮检修门位置, 分别从二楼平台检修门两边使用2T葫。