- 1、下载文档前请自行甄别文档内容的完整性,平台不提供额外的编辑、内容补充、找答案等附加服务。
- 2、"仅部分预览"的文档,不可在线预览部分如存在完整性等问题,可反馈申请退款(可完整预览的文档不适用该条件!)。
- 3、如文档侵犯您的权益,请联系客服反馈,我们会尽快为您处理(人工客服工作时间:9:00-18:30)。
电梯型号 MRL1350VF100C11
公斤 额定速度
(kg)
Rated Speed
1.00
(m/s)
米/秒
(860)
圆钢
150 1860
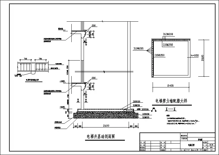
井道顶部通风窗(采用固定于外墙 的百叶窗和固定于内墙的 网格不 大于75x75mm 的网罩),面积不小于 0.045 平方米,位置由建筑师确定
350
D
Rise
提升高度
层
3
站
3门
No. of Lifts
台 数
1KS
GBP
Motot Power
马达输出功率
11.3
(KW)
Nominal Current
千瓦 额定输入电流
30.7
(A)
安培
Max.Starting Current
最大启动电流
40.6 安培
(A)
单台平均发热量 1.49 千瓦
Heat From Single Set
注意:请不要用比例尺测量图纸!
865 1260 井道宽2760 635
305(宽)*200(深)*150(高) 凹坑用于安装控制柜
200
图号
Drawing No.
SE2011-11-3190
Page
Total
迅达中国
第 1 张
共 1 张
Drawing
制图
Approved 审核
Date
日期
2011-11-24
10.8
450
(m)
No.of Passengers
米
乘客人数
18
350
吊钩每个承载2000kg 由用户负责 平面坐标见 底坑平面土建图
2760
3
860
变频器
F14
5200 2
井道顶部钢梁24#槽钢
900
150
50 DD4
由用户负责
No. of Stops
停层站数
3
Floors Stops Doors
(最高层站) 设置控制柜的楼层
200 1100
1100护栏
对重导轨距730
井道深2760
700
E
FF1=1900 N
900 780
270
轿厢宽1950
161
575
280 轿厢深1550
180
60
FF2=2500 N
LKR=1700 865 轿厢导轨距2030
建筑完工面
150
305
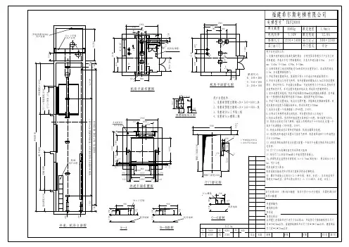
1. Requirements to the power 电源要求 Main Power 380V, 3-Phase ,50Hz ,Max tolerance allowed ±10% Illumination Power 220V. 动力电源应为三相交流五线制,主电源电压380V,频率50Hz, 允许电压波动±10%,照明电源为220V。 Earth wire with cross section 2 times of main power supplier cable or at least 10 mm² must be separated.Earth resistance must be less than 4 ohm. Use only insulated wiring. 五线制中的地线必须为独立接地线,直径为主电源线的两倍 或至少10mm ²,接地电阻必须小于4欧姆 , 仅使用绝缘线。 The lighting should be as possible as close to the machine room door by the client,main power connect to control cabinet. the main switch should be located approximately 1.3-1.5 meter above the floor and 0.3 meter from the door,meanwhile connect power cable to the Schindler's switch box. 订购单位应将照明电源送到机房门旁墙上,动力电源联接到 控制柜后,铁壳开关离地高度约为1.3-1.5米,离机房门约为 0.3米,并负责将电源送至迅达的电源开关箱。 2. Requirements to the shaft 井道要求 The dimensions of lift shaft in horizontal is the minimum net measurement by plumb. Allowable tolerance: 电梯井道平面尺寸是用铅锤测定的最小净空尺寸。允 许偏差值为: <=30M : 0 ~ +25mm. When shaft height <=60M : 0 ~ +35mm. >60M : 0 ~ +50mm. 当井道高度 If the horizontal distance between inner surface of lift well and the sill,door frameof the car or closing edge of the car sliding doors exceed 150mm, should fill the lift well till not exceed 150mm. If the height is less than 500mm, the horizontal distance should increase not more than 200mm. 井道内前壁与轿厢地坎、轿厢门框架或滑动门最近门口边缘的 水平距离如大于0.15M时,应封填至0.15M; 如其高度不大于 0.5M,则水平距离可增加到0.20M。 Permanent illumination should be settled in shaft. Pit illumination should be settled with shield to protect from be burned or getting an electric shock.Dual-control switch should be settled at top of the shaft and pit set. 井道内应设置永久照明。底坑部位的照明需要带防护罩,起到防烫、 防静电电作用。排线5根,井道顶部和底坑内应设置照明双控开关。
Revision 修改次数
Version 版本
Modification 修改内容
修改人
Data 日期
1
Ae1
修改停站标记
朱秋荣
2011.12.08
200 300
2*ACLA125*100
1015 100
底坑爬梯 迅达负责
1015
900
150
2
Ae2
修改合同号
朱秋荣
2012.02.07
用户电源线
100
CONSTRUCTIONAL ARRANGEMENT
1285
完工后封填 用户自理
1090
2760
电 梯 土 建 布 置 图
(128)380
100
F15
完工后封填 用户自理
Contract No.
合同号
Rated Capacity
额定载重量
Z5237623 1350
Type of Lift Schindler 5400 AP
635 630 300 25
1535
590
350
300
2 5100 5700
1495 井道宽2760 940
1 B1
450
1100护栏
500
1
底坑
360 280
1600
轿顶安全空间
顶层高5200
至对重导轨顶部4340
≤2000
500x600x800
210 330 ≤7000
1285 2490 85 290
BY CLIENT 用户应完成的工作
轿厢高2800
厅门中心线
>850
205
FF2=2500 N
155
消防开关135×160 仅基站有
导轨撑架间距 2000
50
控制柜仅最高层站
50 275 1495 净门宽1100 1265 井道宽2760
2490 550
85 290
提升高度 HQ 详见明细栏
(其余层站)
200 1100
建筑完工面
门洞高2490
净门高2400
60
210
1285 1100 900
1265
井道照明 用户自理
635
1260
865
27 迅达提供
F18
底坑深1600
180 730 545 205
200
缓冲器砼墩
井道深2760
ACLA220*80
HSS1=809
(KW)
Load on the following points <N>
停站 顶层净高
2030 75
层楼间距 停层标记
下列承重点处集中力
F6
F14
21100
F15
F8
F9
F10
75900 141800 57600
F16 + F17 + F19
F18
29600 93800
191200
P1 P2
P3 P4 P5 P6
F10
井道顶部吊钩 用户自理
Shaft structure are strongly recommanded to be concrete. If bricky situation, adding structure beam to the position of brackets locates should be taken into account, with height not less than 350mm. 井道应为混凝土结构。如为砖墙结构,应在固定导轨支架的位置 加设圈梁,圈梁高度应不小于350mm。 When front wall of shaft is bricky, a lintel used to fasten brackets should be added above the hole of landing door, with height not less than 350mm. 当井道前壁为砖墙结构时,应在厅门门洞上方设置混凝土过梁, 用于固定厅门支架,过梁高度应不小于350mm. Concrete pillars for buffers in the pit are made under the guidance of the lift erectors, and can stand for the impact force given in the table, these should be anti-water layers in the pit. 底坑中缓冲器墩应在电梯安装人员指导下制作,该墩应能承受 图中给出的冲击力,底坑应有防水层。 Be sure no accessible way for human in dder in pit should be installed. 底坑下面不应有人能到达的空间。底坑爬梯须安装完毕。 3. Requirements to the machine-room 机房要求 The machine room should be kept dry, ventilative and clean. Humidity degree should not be more than 85 %.Temperature in the machine room allowed,+5℃ ~ +40℃ 机房必须保持干燥,通风,清洁,相对湿度不大于85%。机房内 允许温度为+5℃- 40℃。 Lighting in the machine room should be above 200 Lux. 机房照明.照度必须大于200勒克司。 For steel structure shaft, machines should be avoided by direct sun. 对于钢结构井道同时应避免曳引机部分被太阳直射。 4. Other requirements 其它要求 The load except for F8,F9,F10,F16,F17 and F18 are static load! Dynamic load coefficient is 2. 除 F8、 F9、F10、 F16、 F17和 F18外,其余载荷均为静载 荷!动载系数建议为2。 Pit screen should be fitted 井道应设隔离网 Seal treatment when landing door clearance is oversize. 当厅门洞间隙过大时,应封闭