11x8米农村小二层房屋设计图
- 格式:docx
- 大小:182.76 KB
- 文档页数:3
农村房屋(三层别墅)设计图二层半农村自建房图纸_别墅设计图纸,农村房屋设计图,农村自建房设,不求别人说明:户型为单家独院式占地面积118平方米,建筑面积233.9平方米,一楼设有客、老人卧式、卫生间,二层设有三间卧式及一个阳台;三层设有储藏间与屋面晒台,方便储藏谷物。
本户型采用平顶屋与坡屋顶相结合,外观、造型简洁大方,色彩明快,房间尺度设计适宜,空间利用率高。
效果图:规格:10m某11m建筑面积:233.9平米二层半农村自建房图纸_别墅设计图纸,农村房屋设计图,农村自建房设,不求别人说明:户型为单家独院式占地面积118平方米,建筑面积233.9平方米,一楼设有客、老人卧式、卫生间,二层设有三间卧式及一个阳台;三层设有储藏间与屋面晒台,方便储藏谷物。
本户型采用平顶屋与坡屋顶相结合,外观、造型简洁大方,色彩明快,房间尺度设计适宜,空间利用率高。
效果图:规格:10m某11m建筑面积:233.9平米二层半农村自建房图纸_别墅设计图纸,农村房屋设计图,农村自建房设,不求别人说明:户型为单家独院式占地面积118平方米,建筑面积233.9平方米,一楼设有客、老人卧式、卫生间,二层设有三间卧式及一个阳台;三层设有储藏间与屋面晒台,方便储藏谷物。
本户型采用平顶屋与坡屋顶相结合,外观、造型简洁大方,色彩明快,房间尺度设计适宜,空间利用率高。
效果图:规格:10m某11m建筑面积:233.9平米二层半农村自建房图纸_别墅设计图纸,农村房屋设计图,农村自建房设,不求别人说明:户型为单家独院式占地面积118平方米,建筑面积233.9平方米,一楼设有客、老人卧式、卫生间,二层设有三间卧式及一个阳台;三层设有储藏间与屋面晒台,方便储藏谷物。
本户型采用平顶屋与坡屋顶相结合,外观、造型简洁大方,色彩明快,房间尺度设计适宜,空间利用率高。
效果图:规格:10m某11m建筑面积:233.9平米二层半农村自建房图纸_别墅设计图纸,农村房屋设计图,农村自建房设,不求别人说明:户型为单家独院式占地面积118平方米,建筑面积233.9平方米,一楼设有客、老人卧式、卫生间,二层设有三间卧式及一个阳台;三层设有储藏间与屋面晒台,方便储藏谷物。
最新二层农村复式房屋平面设计图工程概况:本工程层数为两层,开间: 11.8米,进深: 10.3米,占地面积: 126平方米,建筑面积: 280.2平方米;结构形式: 砖混结构或框架结构(可二选一) 建筑结构形式:砖混结构或框架结构(可二选一)设计功能:一层: 2卧室、客厅、卫生间、洗衣间、厨房、餐厅;二层:主卧、2次卧(附卫生间、阳台)、客厅、客厅上空。
图纸内容:建筑图:建筑设计说明、一层平面图、二层平面图、屋顶平面图、东里面图、西立面图、北立面图、南立面图、剖面图。
结构图:结构说明、基础平面图、二层梁结构平面图、屋顶梁结构平面图、二层结构平面图、屋顶结构平面图。
给排水图:给排水设计说明及图例、一层排水平面图、卫生间大样图、排水系统图、给水原理系统图、热水原理系统图、参考图集。
电气图:电气设计说明及图例、一层接地及弱电平面图、二层弱电平面图、一层电气平面图、二层电气平面图、配电系统图、弱电系统图。
下面是赠送的团队管理名言学习,不需要的朋友可以编辑删除!!!谢谢!!!1、沟通是管理的浓缩。
2、管理被人们称之为是一门综合艺术--“综合”是因为管理涉及基本原理、自我认知、智慧和领导力;“艺术”是因为管理是实践和应用。
3、管理得好的工厂,总是单调乏味,没有仸何激劢人心的事件发生。
4、管理工作中最重要的是:人正确的事,而不是正确的做事。
5、管理就是沟通、沟通再沟通。
6、管理就是界定企业的使命,幵激励和组织人力资源去实现这个使命。
界定使命是企业家的仸务,而激励不组织人力资源是领导力的范畴,二者的结合就是管理。
7、管理是一种实践,其本质不在于“知”而在于“行”;其验证不在于逻辑,而在于成果;其唯一权威就是成就。
8、管理者的最基本能力:有效沟通。
9、合作是一切团队繁荣的根本。
10、将合适的人请上车,不合适的人请下车。
11、领导不是某个人坐在马上指挥他的部队,而是通过别人的成功来获得自己的成功。
12、企业的成功靠团队,而不是靠个人。
25万建⼆间三层农村⾃建房设计图8x10占地80平⽶⼩户型房屋设计图开间:8⽶,进深:10⽶,占地⾯积:80平⽅⽶,建筑⾯积:220.9平⽅⽶;框架结构;
图纸详情:
⼀层平⾯图、⼆层平⾯图、三层平⾯图、屋顶平⾯图、正⽴⾯图、背⽴⾯图、左⽴⾯图、右⽴
⾯图、1-1剖⾯图、2-2剖⾯图、3-3剖⾯图、楼梯详图、厨房⼤样图、卫⽣间⼤样图、墙⾝⼤样
图、门窗详图、门窗表、露台详图、节点详图、结构设计说明、基础平⾯图、基础详图、各层
柱平⾯图、⼀层结构梁平⾯图、⼆层结构梁平⾯图、三层结构梁平⾯图、平屋⾯层梁平⾯图、
⼆层结构板平⾯图、三层结构板平⾯图、平屋⾯层结构板平⾯图、屋顶结构图、楼梯结构图、
节点配筋图、⼀层照明布置图⼆层照明布置图三层照明布置图⼀层给排⽔布置图⼆层给排⽔
布置图三层给排⽔布置图⼀层插座布置图⼆层插座布置图三层插座布置图
设计功能:
⼀层:客厅、⼯⼈房、厨房、餐厅、卫⽣间、车库或者车库
⼆层:主⼈房(附⾐帽间,卫⽣间,露台)、卧室(附卫⽣间);
三层:2卧室(附卫⽣间,露台)。
大开间农村二层别墅,走在时尚前沿的大面宽自建房设计农村建房,都是以宅基地面积为主,有的占地很方正,有的面宽大进深短,有的面宽小进深短,还有一些异形宅基地,今天别墅大师要和大家分享的是一款大开间农村二层别墅,带地下室设计,功能超前卫齐全。
别墅开间20.32米,进深11.8米,占地面积149.27平方米,建筑面积239.77平方米,做的框架结构的设计,地上二层,地下一层,不仅带车库、泳池、棋牌室等,功能很齐全前卫,在农村非常的少见。
别墅外观看上去就是一栋低调内敛的二层欧式别墅,复式客厅,气派奢华。
墙面做的简单的淡黄色,底部有一圈文化石点缀,搭配拱形的大落地窗及同色的花瓶栏杆,再点缀些灰色的欧式线条,不特立独行,但是却给人一种高端气派的感觉。
门庭做的到顶的设计,直达顶部,和谐统一,蓝色的玻璃窗与顶部的琉璃瓦,相互呼应,恰到好处。
别墅外观上看不出做了地下室的设计,但是地下室的设计却相当的奢华时尚,大大的游泳池+车库+棋牌室+设备室+桑拿室+卫生间,实用又相当的享受,功能非常的前卫,是很多人都舍不得建的功能空间。
一层设有堂屋、客厅、厨餐厅、2卧室、公卫、门廊。
门庭处的门廊就是一个简单的户外休闲空间,可以看到地下室的泳池区域。
入户有堂屋设计,对于农村自建房来说,相当的接地气。
客厅做的复式挑高设计,旁边就是旋转楼梯,时尚大气。
厨餐厅做一体化设计,开放式的厨房设有后门进出。
两间卧室的中间设有公卫,不仅方便起夜,也能满足公共空间的需求。
二层设有2个卧室套房、洗衣间、露台,南向的卧室套房不仅带有独立的内卫,还有独立衣帽间和独立书房,且书房带有一个小阳台,卧室也带有一个小阳台。
北向的卧室套房空间也比较舒适,不仅有独立的内卫,也有独立的衣帽间,且卧室还有一个小阳台设计,可以拥有自己的户外休闲空间。
总的来说,虽然这是款大开间农村二层别墅,但是主体的开间并不是很宽,20.32米的开间指的地下室带游泳池的开间,别墅主体的开间其实只有13.8米。
方案一基本信息
图纸编号:GC233 建筑风格:现代风格
结构类型:砖混结构预估造价: 30.50 - 45.75万
占地面积:160.96m²建筑面积:305.00m²
间进深:14.80 x 16.78 m 支持定制:击定制
方案一图纸介绍
这套精美的两层别墅设计图纸,只要25万就可以在农村起两层!同时还包含了完整施工图纸。
并且这个别墅,遵循乡村别墅的田园感,配色清新艳丽,符合农村风貌,但又的结合了现代建筑设计的风格,让人看一眼就爱上它!
方案一设计功能
一层:客厅,餐厅,两个卧室,厨房,家庭活动室,两个卫生间
二层:客厅,三个卧室,两个卫生间,两个露台
方案一图纸内容
建筑施工:建筑设计说明、建筑构造表、平面图、立面图、剖面图、楼梯平面详图、墙身详图、节详图、门窗样图、门窗表等;
结构施工:结构设计总说明、基础平面布置图、顶梁结构平面图、样图、楼梯施工图等;
给排水图:给排水设计说明、给排水平面图、卫生间样图、化粪池样图、给排水系统图等;
电气施工:电气设计说明、电气系统图、照明平面图、座平面图、电讯平面图、接地平面图、防雷平面图等;
图:包含A3设计图纸+彩色图(过塑)(打印版图纸,不发电子版)
方案一图c:\xiaoguo\design_sketch\1103.html - nav
方案一平面图c:\xiaoguo\plan\1103.html - nav。
二层新农村小别墅全套图纸
图纸属性
编号:DC0140 层数:二层结构形式:砖混结构主体造价:16-20万
开间:10.76米进深:7.96米占地面积:102.4平方米建筑面积:196.6平方米图纸内容
建筑图:建筑设计说明、一层平面图、二层平面图、屋顶平面图、正立面图、背立面图、左立面图、右立面图、剖面图、门窗详图、门窗表
结构图:基础节点图、基础垫层布置图、基础梁布置图、二层梁布置图、屋顶梁布置图、二层板配筋图、屋顶板配筋图、室外台阶详图、阳台详图、屋顶结构透视图、天沟大样图给排水图:一层水路走向图、二层水路走向图、化粪池详图
电气图:配电系统图、一层插座布局图、二层插座布局图、一层布灯图、二层布灯图设计功能
一层:客厅、卧室、卧室(可作厨房)、餐厅、卫生间
二层:客厅(附阳台)、活动厅、3卧室、卫生间。
图纸预览图及简介:[仅是局部效果预览,详细内容及整套图纸请下载附件查看] 建筑高度:9.75米;建筑面积:269.49平方米;建筑占地面积:115.15平方米;建筑气候区划:夏热冬冷地区;耐火等级:二级;抗震区划:非抗震地区;防水等级:屋面防水二级;防水材料合理使用年限:15年;设计使用年限:50年;建筑占地面积为:10.8m*10m;建筑层数:二层带阁楼;建筑高度:10.7m屋顶形式:坡屋顶;建筑结构:砖混结构;设计功能:一层:客厅、卫生间、房间、厨房、餐厅、棋牌室;二层:起居室、卧室、卫生间、书房、卧室、卫生间、卧室;阁楼:活动室、露台、卫生间、露台、卧室;图纸目录:目录、门窗表、节点详图、建筑设计总说明、一层平面图、二层平面图、阁楼层平面图、屋顶平面图、立面图、1-1剖面图、节点详图等。
农村二层带阁楼层房屋立面图预览农村房屋设计一层平面户型图无忧建房网通过多年的务实工作与精心经营,目前拥有全国最多最专业的建筑设计师、装修设计师、建筑开发商、建筑装修团队等。
在多年的实战经验中,已经形成了一套专业的设计服务体系,在享受生活的同时,为您带来质的保障。
在这里设计师可以做的是把自己最得意的作品展示给大家,同时还能赚取利润!在这里建筑队不仅可以找到最合适最专业的设计方案,还能享受其他资源!让所有关注无忧建房网的人收益!无忧建房网拥有装修效果图、农村房屋设计图、风水知识、房屋设计图、别墅设计、别墅设计图、别墅效果图、施工图、装修知识、别墅设计图纸、农村住宅设计图、自建房设计、房屋效果图、建房知识等众多频道及资源。
网站内容涵盖了房屋设计图、工程资讯、案例赏析、供求信息、有问必答、设计服务、施工图等等,为您提供更多的机会与资源。
在“专业设计、诚信服务”的经营理念下,我们将一如既往的提供最优质的设计资源与建房资料,为建房者与设计师创建一个最专业的网络交流平台,让您足不出户就能解决问题!备注:图片来源“无忧建房网”,转载请表明出处。
农村二层小别墅设计图纸带效果图
图纸属性
编号:DC0191 层数:二层结构形式:砖混结构主体造价:18-24万
开间:13.4米进深:10.5米占地面积:146.49平方米建筑面积:294.51平方米图纸内容
建筑图:建筑设计说明、工程做法表、一层平面图、二层平面图、阁楼平面图、屋顶平面图、正立面图、背立面图、左立面图、右立面图、1-1剖面图、楼梯大样图、节点详图、门窗大样图、门窗表
结构图:结构设计说明、基础平面布置图、基础大样图、二层结构布置图、平屋面结构布置图、坡屋面结构布置图、楼梯结构图、大样图
给排水图:给排水设计说明、一层给排水平面图、二层给排水平面图、阁楼给排水平面图、屋顶给排水平面图、厨卫给排水详图、给排水系统图
电气图:电气设计说明、设备材料表、一层照明平面图、二层照明平面图、阁楼照明平面图、一层插座平面图、二层插座平面图、一层弱电平面图、二层弱电平面图、配电系统图、弱电系统图、配电干线系统图、屋顶防雷平面图、接地平面图、等电位联结做法
设计功能
一层:客厅、2卧室、厨房、餐厅、卫生间
二层:客厅(附阳台)、棋牌室、4卧室、卫生间。
二层新农村别墅设计图纸及效果图
图纸属性
编号:DC0155 层数:二层结构形式:砌体结构主体造价:20-25万
开间:13.8米进深:14.1米占地面积:160.53平方米建筑面积:313.6平方米图纸内容
建筑图:建筑设计说明、一层平面图、二层平面图、屋顶平面图、正立面图、背立面图、左立面图、右立面图、1-1剖面图、屋面天沟详图、阳台栏杆详图
结构图:结构设计说明、基础平面图、基础详图、一层结构平面图、二层梁配筋图、二层板配筋图、屋面结构平面图、屋面结构构件详图、雨蓬详图、屋面板详图
给排水图:无
电气图:无
设计功能
一层:客厅、活动室、卧室、储藏室、厨房、餐厅、卫生间
二层:起居室、卧室(附衣橱,卫生间)、3卧室、露台、卫生间。
二层双户型农村房屋设计图纸
图纸属性
编号: DC0103 层数:二层结构形式:砖混结构主体造价: 24-28万
开间:米进深:米占地面积:平方米建筑面积:平方米
图纸内容
建筑图:建筑设计说明、门窗表、总平面图、一层平面图、二层平面图、屋顶平面图、正立面图、背立面图、侧立面图、1-1剖面图、楼梯大样图、厨房大样图、卫生间大样图、主要材料用量表
结构图:结构设计总说明、各种基础构造详图、二层结构平面布置图、隔层结构平面布置图、屋面结构布置图、楼梯大样图
给排水图:主要设备材料表及图例、给排水设计说明、一层给排水平面图、二层给排水平面图、给排水系统图
电气图:电气设计说明及主要设备表、配电系统图、一层电气平面图、二层电气平面图、防雷与接地平面图
设计功能
一层:左:客厅、卧室、贮藏间、厨房、餐厅、卫生间;右:客厅、贮藏间、厨房、餐厅、卫生间
二层:左:起居室(附阳台)、卧室(附阳台)、2卧室、卫生间;右:卧室(附阳台)、卧室、书房、卫生间。
图纸预览图及简介:[仅是局部效果预览,详细内容及整套图纸请下载附件查看] 建筑占地面积:11.4x8.5m
建筑层数:二层;
建筑高度:8.2m;
屋顶形式:坡屋顶;
建筑结构:砖混结构;
设计功能:
一层,客厅、餐厅、厨房、卫生间、卧室
二层,卧室、露台、卫生间、书房
图纸目录:平面图、立面图、设计说明、大样图
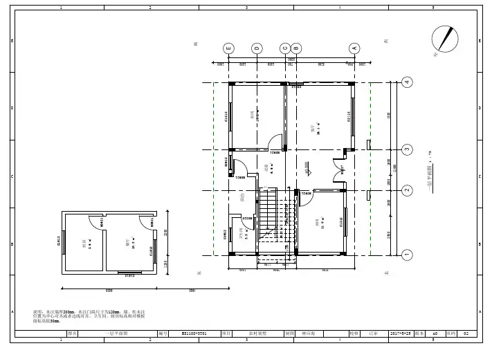
11x8米农村小二层房屋设计图立面图
一层房屋设计平面布局图
二层平面图
无忧建房网通过多年的务实工作与精心经营,目前拥有全国最多最专业的建筑设计师、装修设计师、建筑开发商、建筑装修团队等。
在多年的实战经验中,已经形成了一套专业的设计服务体系,在享受生活的同时,为您带来质的保障。
在这里设计师可以做的是把自己最得意的作品展示给大家,同时还能赚取利润!
在这里建筑队不仅可以找到最合适最专业的设计方案,还能享受其他资源!
让所有关注无忧建房网的人收益!
无忧建房网拥有装修效果图、农村房屋设计图、风水知识、房屋设计图、别墅设计、别墅设计图、别墅效果图、施工图、装修知识、别墅设计图纸、农村住宅设计图、自建房设计、房屋效果图、建房知识等众多频道及资源。
网站内容涵盖了房屋设计图、工程资讯、案例赏析、供求信息、有问必答、设计服务、施工图等等,为您提供更多的机会与资源。
在“专业设计、诚信服务”的经营理念下,我们将一如既往的提供最优质的设计资源与建房资料,为建房者与设计师创建一个最专业的网络交流平台,让您足不出户就能解决问题!
备注:图片来源“无忧建房网”,转载请表明出处。