农村各种房屋设计图
- 格式:doc
- 大小:3.87 MB
- 文档页数:70
农村二层房屋设计户型图带效果图,农村房屋设计图14*10米图纸预览图及简介:[仅是局部效果预览,详细内容及整套图纸请下载附件查看]占地尺寸:14.6*10.7米建筑层数:二层;建筑高度:8.6m屋顶形式:坡屋顶;建筑结构:砖混结构;设计功能:一层:客厅、2间卧室、厨房、餐厅、楼梯间;二层:2间卧室、露台、客厅、卫生间、楼梯间、露台;图纸目录:房屋设计一层平面图、二层平面图、屋顶平面图、南立面、北立面、1-1剖面图、农村二层房屋效果图。
农村二层房屋效果图一层平面户型草图包含客厅、2间卧室、厨房、餐厅、楼梯间二层平面户型为2间卧室、露台、客厅、卫生间、楼梯间、露台南立面图无忧建房网通过多年的务实工作与精心经营,目前拥有全国最多最专业的建筑设计师、装修设计师、建筑开发商、建筑装修团队等。
在多年的实战经验中,已经形成了一套专业的设计服务体系,在享受生活的同时,为您带来质的保障。
在这里设计师可以做的是把自己最得意的作品展示给大家,同时还能赚取利润!在这里建筑队不仅可以找到最合适最专业的设计方案,还能享受其他资源!让所有关注无忧建房网的人收益!无忧建房网拥有装修效果图、农村房屋设计图、风水知识、房屋设计图、别墅设计、别墅设计图、别墅效果图、施工图、装修知识、别墅设计图纸、农村住宅设计图、自建房设计、房屋效果图、建房知识等众多频道及资源。
网站内容涵盖了房屋设计图、工程资讯、案例赏析、供求信息、有问必答、设计服务、施工图等等,为您提供更多的机会与资源。
在“专业设计、诚信服务”的经营理念下,我们将一如既往的提供最优质的设计资源与建房资料,为建房者与设计师创建一个最专业的网络交流平台,让您足不出户就能解决问题!备注:图片来源“无忧建房网”,转载请表明出处。
农村一层平房设计全套施工图纸_别墅设计图纸,农村房屋设计图
建筑图:建筑设计说明、一层平面图、屋顶平面图、正立面图、背立面图、左立面图、右立面图
结构图:结构设计总说明、基础平面图、基础详图、结构平面图、节点配筋图
给排水图:给排水设计说明、一层给排水平面图、屋顶给排水平面图、给排水系统图
电气图:一层电气平面图、一层弱电平面图、电气系统图及图例
暖气图:一层暖气平面图
设计功能
一层:客厅、卧室(附卫生间)、3卧室、厨房(附储藏室)、卫生间
效果图:
首层户型:
图纸预览:。
农村房屋平面设计图本人精心绘制的四种版本的农村户型图,双击鼠标可以恢复成CAD图形,随意修改,希望对各位有兴趣的朋友有所帮助。
一层平面图储藏室上洗衣机主卧室卫生间淋浴间卫生间次卧室起居室衣帽间淋浴间飘窗飘窗洗衣机洗衣机二层平面图上阳台卫生间厨房淋浴间卫生间次卧室淋浴间洗衣机上餐 桌鱼缸饮水机空调一层平面图卫生间衣帽间二层平面图淋浴间主卧室卫生间次卧室主卧室起居室衣帽间淋浴间洗衣机上飘窗飘窗一层平面图切菜搁台搁 台冰 箱洗衣机衣帽间拖把池饮水机拖把池洗台衣钢化玻璃雨棚室 外 庭 院道 路淋浴间花架空调上书柜洗衣机拖把池封闭式走廊二层平面图上切菜搁台搁 台冰 箱洗衣机淋浴间沙发饮水机写字台沙发拖把池洗台衣茶几庭 堂一层平面图钢化玻璃雨棚道 路上书柜洗衣机拖把池二层平面图上一层平面图切菜搁台搁 台冰 箱洗衣机衣帽间拖把池饮水机拖把池洗台衣钢化玻璃雨棚室 外 庭 院淋浴间花架空调上书柜洗衣机拖把池封闭式走廊二层平面图上切菜搁台搁 台冰 箱洗衣机淋浴间沙发饮水机写字台沙发拖把池洗台衣茶几庭 堂一层平面图钢化玻璃雨棚道 路上书柜洗衣机拖把池二层平面图上。
鲁班设计图纸网:最新提供的别墅房屋图纸大全《鲁班设计图纸网》因为有限制不能展示太多,只能展示有限的套数,如果想看到更多请搜《鲁班设计图纸网》《鲁班设计图纸大全》自建别墅的设计方案,每套都有外观图、效果图、结构图、施工图(平面图、立面图、剖面图、结构图、水电暖、钢筋)等,图纸皆为.dwg格式,可直接编辑修改出图;同时,图纸还包括独栋别墅、双拼别墅、联排别墅、欧式别墅、农村小别墅等;其中分单层,二层、二层半、三层、三层半等多种户型;另外,配套的还含有1000套室内装修方案大全,庭院设计图纸。
6400多套自建房屋,自建别墅设计方案。
都是对自建房屋,自建别墅非常有帮助的资源。
全玻璃幕墙的安装施工全玻璃幕墙的安装施工是一项多工种联合施工,不仅工序复杂,操作也要求十分精细。
同时它又与其他分项工程的施工进度计划有密切的关系。
为了使玻璃幕墙的施工安装顺利进行,必须根据工程实际情况,编制好单项工程施工组织设计,并经总承包单位确认。
一、施工准备(一)技术准备1.技术资料收集现场土建设计资料收集和土建结构尺寸测量。
由于土建施工时可能会有一些变动,实际尺寸不一定都与设计图纸符合。
全玻璃幕墙对土建结构相关的尺寸要求较高。
所以在设计前必须到现场量测,取得第一手资料数据。
然后才能根据业主要求绘制切实可行的幕墙分隔图。
对于有大门出入口的部位,还必须与制作自动旋转门、全玻门的单位配合,使玻璃幕墙在门上和门边都有可靠的收口。
同时也需满足自动旋转门的安装和维修要求。
2.设计和施工方案确定设计和施工方案确定。
在对玻璃幕墙进行设计分隔时,除要考虑外形的均匀美观外,还应注意尽量减少玻璃的规格型号。
由于各类建筑的室外设计都不尽相同,对有室外大雨棚、行车坡道等项目,更应注意协调好总体施工顺序和进度,防止由于其他室外设施的建设,影响吊车行走和玻璃幕墙的安装。
在正式施工前,还应对施工范围的场地进行整平填实,做好场地的清理,保证吊车行走畅通。
(二)材料及机具准备1.主要材料质量检查(1)玻璃的尺寸规格是否正确,特别要注意检查玻璃在储存、运输过程中有无受到损伤,发现有裂纹、崩边的玻璃决不能安装,并应立即通知工厂尽快重新加工补充。
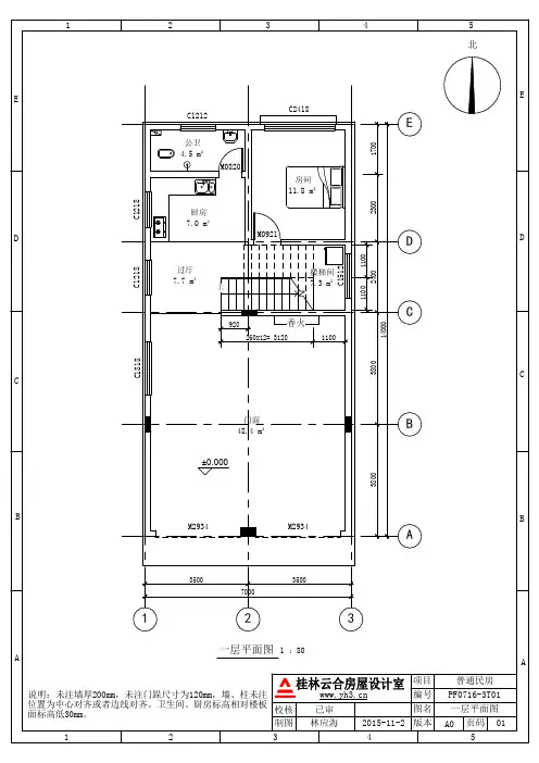
宽11米,深9米,农村自建房长11米,宽9米,占地百平左右的户型,现在在农村极为常见,我们的户型库里也有不少。
闲话不多说,接下来就直接给大家展示图纸吧。
第1套:双入户门+大露台+多卧室,9×11米经典欧式别墅,主体预算40万占地尺寸:11.5m*9m 占地面积:106㎡建筑面积:304㎡总高度:12m建筑情况:共设6室2厅3卫1厨1堂屋1起居室1棋牌室1书房1杂物间1阳台1露台这套欧式别墅外观造型非常经典,喜庆温馨的红瓦与精致细腻的雕花装饰,加上大气的门斗与门窗造型,整体颜值非常高。
一楼进门处设立一个堂屋,符合农村地区的建房习俗,同时也起到了玄关的作用。
客厅和卧室设计在南侧,而餐厨分布在北侧,布局合理,居住体验也更好。
二层设立起居室和棋牌室,给家人提供了私密的休闲空间。
三层设立书房、杂货间、露台,全屋共6个卧室,足以满足日常居住需求。
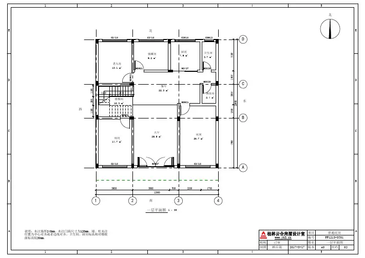
第2套:双入户门+顶层大露台+多阳台,三层现代风别墅,主体预算40万占地尺寸:10m*9m 占地面积:90㎡建筑面积:258㎡.高度:11m建筑情况:共设6室2厅3卫1厨1起居室1杂物间1洗衣房3阳台1露台这套占地不足百平的现代风格别墅,在当下的农村显得个性十足。
外观采用棕黄色文化石点缀,显得看点十足。
简洁的外观加上平屋顶造型,降低了施工难度和建房成本,非常适合农村修层.一层入户利用电视背景墙隔断出一个小玄关,室内空间衔接感更佳。
前后双入户门,进出也更加方便。
客厅和老人房位于东侧,餐厨和卫生间位于西侧,油污分离做得很好,日常居住也更舒适。
二层三层都设立了挑空室阳台,合理增加了使用面积,提升了居住体验。
第3套:传统大堂屋+大露台+南向三客厅,9×11米三层现代农宅,主体预算40万占地尺寸:11.6m*9.6m 占地面积:106.4㎡建筑面积:305.5㎡建筑高度:12.7m.建筑情况:共设6室 3厅 5卫 1厨 1神龛 2储藏室 2阳台 1露台这套别墅外观简洁,利用最简约的素白色真石漆装饰,搭配灰色坡屋顶,远远看上去端庄大气,气场十足。
农村自建房二层带地下室房屋设计图_农村二层房屋设计图9x10米
图纸预览图及简介:[仅是局部效果预览,详细内容及整套图纸请下载附件查看]
本项目为低层住宅建筑(地上二层,一层地下室)。
耐火等级为二级。
设计使用年限为50年,结构选型为砖混砌体结构。
本工程总建筑面积为238.37㎡。
本套图纸只建只建筑施工图,以下是房屋图纸信息介绍:
建筑占地尺寸为:9.6m*10.9m;
建筑层数:地上二层,地下一层;
建筑高度:7.7m(含屋顶高度);
屋顶形式:坡屋顶;
建筑结构:砖混结构;
设计功能:
地下室,火炉房、厨房、餐厅、卫生间;
一层,娱乐室、前厅、客厅、卧室两间、卫生间;
二层:主卧、卫生间、客卧两间、卫生间、露台;
图纸目录:地下室平面图、一层平面图、二层平面图、屋顶平面图、前立面图、背立面图、左立面图、右立面图、节点图、建筑设计说明、楼梯平面、剖面、大样等。
农村自建房二层带地下室房屋设计立面图
地下室平面图
一层平面户型图
二层平面户型图
屋顶层平面图。
现在跟大家介绍几款新农村户型图,在农村有地的,手头上有二十万要建房的(不含精装修),基本上下面的户型是可以建造的。
哈哈。
户型参考造价
1、毛胚房砖混
2、毛胚房+精装修
一、独栋别墅户型
户型一
户型二一座豪宅旺三代((*^__^*) 嘻嘻……,这么像房产公司的广告?!)
二、家族户型
三、让城里人留口水的户型
(独栋别墅型)
当然这个户型的外立面还是有可改善的地方,比如采用圆拱窗比
矩形窗好看一点。
四、实用经济型
不用说,这样的户型实在经济,农村的施工人员看一眼图纸就能鼓捣出来,不用请专门的施工人员,呵呵。
摘菜东篱下,悠然问犬吠,这时一种怡然的生活态度!
这种平屋顶造价不高,比较简单,不过不是很好看,一般的做法会在上面做女儿墙,围起来。
五、精选小成本户型
户型一
方案适合联排建筑,
本方案造价约为12万元。
户型二
典型的徽派建筑,建筑美观、大方。
建筑面积191.5平方米,占地面积95.8平方米。
本方案适合场地较平坦地区建造。
户型三
本方案造价约为16万元。
本方案外观朴素大方,平面户型灵活,结构简单,容易建造,宽敞的院落,符合农村居民的生活习惯。
户型四
本方案适合联排建筑,
本方案造价约为17
户型五
本方案适合联排建筑,经济型农村住宅、后院面积较大,适合农民朋友养殖家畜家禽。
平方米,占地面积200平方米。
户型六
本方案适合联排建筑,
本方案造价约为18万元。