食品SC糕点厂裱花蛋糕加工车间平面图2!
- 格式:pdf
- 大小:491.30 KB
- 文档页数:2
蒸煮类糕点生产工艺流程图**原辅料、包材验收GB2748-2003 、(GB317-2006、GB1355-1986)、GB9687-1988GB 9683-1988蛋处理打蛋废弃物牛奶、低筋粉、白糖、)、及工艺配方要求(搅拌机、电子秤:满足GB2760**配料搅拌色拉油、泡大粉等成成型操作台、成型模)以上20--30min;年糕类:2h(蒸锅:时间**蒸制根据具体产品规格不同而制定不同工艺规范书)摊凉入库配送()为关键设备及参数.备注:**标注为关键控制工序;小西饼生产工艺流程图GB2748-2003(GB317-200GB1355-198GB 9687-198GB 9683-198、及工艺配方要GB276150--18、时15--30min230--23纵150--16GB7099-200JJF1070入库配送()为关键设备及参数.备注:**标注为关键控制工序;蛋糕生产工艺流程图**原辅料、包材验收GB2748-2003 (GB317-2006、、GB8608-1988GB9683-1988、GB 9687-1988)蛋处理打蛋废弃物面粉、白糖、牛奶、打蛋机、(及工艺配方要求)、电子秤:满足GB2760**配料搅拌泡打粉、塔塔粉等成型操作台、蛋糕坯模:根据不同工艺规范书()成型**烘烤(电热平炉:温度120--200℃、时间10--45min 根据具体产品规格不同而制定不同工艺规范书)自然冷却脱模摊凉包材消毒间:紫外3mi以GB7099-200JJF1070入库配送()为关键设备及参数.备注:**标注为关键控制工序;面包生产工艺流程图(GB317-2006、LS/T3201-1993、GB2748-2003 原辅料、包材验收**QB/T1501-1992、NY479-2002、GB 9683-1988)面粉、白糖、酵母、**配料GB2760及工艺规范书)(电子秤:依据酥油、面包改良剂等搅拌和面(搅拌机)计量、自动分割滚圆(电子秤、分割机)37、湿75--85摇篮炉旋转炉温150--23时10--45min包材消毒间:紫外3mi以**内包材消GB7099-200JJF1070()为关键设备及参数.备注:**标注为关键控制工序;食品有限公司2F面包车间平面示意图食品有限公司2F面包车间人、物流向示意图食品有限公司2F蛋糕车间平面示意图酒精消毒器::楼梯:物料口:备注:门.食品有限公司2F蛋糕车间人、物流示意图物料走向:人流走向:备注:。
蒸煮类糕点生产工艺流程图 (GB317-2006、GB1355-1986、GB2748-2003 GB 9683-1988、GB 9687-1988) **原辅料、包材验收 打蛋 废弃物 蛋处理 低筋粉、白糖、牛奶、色拉油、泡大粉等 (搅拌机、电子秤:满足GB2760、及工艺配方要求)**配料搅拌 入库配送 备注:**标注为关键控制工序;()为关键设备及参数.小西饼生产工艺流程图入库配送备注:**标注为关键控制工序;()为关键设备及参数.蛋糕生产工艺流程图(GB317-2006、GB8608-1988、GB2748-2003 GB 9683-1988、GB 9687-1988)**原辅料、包材验收废弃物 蛋处理打蛋面粉、白糖、牛奶、泡打粉、塔塔粉等**配料搅拌 (打蛋机、电子秤:满足GB2760、及工艺配方要求) (成型操作台、蛋糕坯模:根据不同工艺规范书)成型(电热平炉:温度120--200℃、时间10--45min 根据具体产品规格不同而制定不同工艺规范书)**烘烤自然冷却脱模入库配送备注:**标注为关键控制工序;()为关键设备及参数.摊凉面包生产工艺流程图(GB317-2006、LS/T3201-1993、GB2748-2003 QB/T1501-1992、NY479-2002、GB 9683-1988)**原辅料、包材验收备注:**标注为关键控制工序;()为关键设备及参数.(电子秤、分割机)(搅拌机)(电子秤:依据GB2760及工艺规范书)计量、自动分割滚圆 搅拌和面 面粉、白糖、酵母、 酥油、面包改良剂等**配料食品有限公司2F面包车间平面示意图可编辑食品有限公司2F面包车间人、物流向示意图可编辑食品有限公司2F蛋糕车间平面示意图可编辑食品有限公司2F蛋糕车间人、物流示意图备注:人流走向:物料走向:可编辑精品可编辑。
冰淇淋生产人流物流及车间功能平面图
人流
墙体软帘门
墙体
软帘
门
月饼生产人流物流及车间功能平面图
人流
烘烤类糕点生产人流物流及车间功能平面图
墙体
软帘
门
人流
面团生产人流物流及车间功能平面图墙体软帘门
人流
设备分布示意图
一楼厂区平面图
墙体
软帘
门
设备编号及对应名称
标号设备名称标号设备名称
140型打蛋机19切割机
2120型打蛋机20卧式搅拌机
350型打蛋机21螺旋搅拌机
4开坯机22五匹机
5蛋糕切片机23包馅印饼机
6平炉24蛋挞机
7烤炉25工作台
8醒发室2620型打蛋缸
9筛粉机27货架
10双轨成型机28冰箱
11丹麦压面机29烤车
12压油机30牛角成型机
13sm80搅拌机31小西饼切割机
14成型分割机32手工滚圆机
15传送带33连续分割搓圆机
16醒发成型机34和面机
17制冰机35金属探测仪
18冰水机36水槽
37奶浆机38泰勒机
39盟立包装机40油炸锅
41高速混合搅拌机42T50冷柜
卫生设施平面图墙体软帘门
鼠类检测站B捕鼠笼C
捕蝇笼D
垃圾箱F无紫外灯区域
粘鼠板E
捕虫灯A
4
5
图例:
二楼实验室示意图
墙体
窗
门资料源自网络。
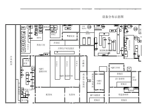
设备分布示意图
二-20℃成品冷库 西点车间 搅拌车间 冷却区 油炸区醒发室 210℃面粉库 成-配料间 常温食材库 面团成型组车间 面团手工组烘烘烤区 搅拌区 月饼搅月饼月饼包装区面蛋糕清洗区 冷至-20℃成品冷库 半成品冷库 西点车间 搅拌车间 冷却区 配货区 发货区 加工间 二次更冷-40℃ 10℃面粉库 成成-10℃冷库 2℃ 2℃食材库 配料间
常温食材库 面团成型组车间 面周转箱 醒发室 清洗区 清洗区 1-1 1-2 2-1 2-2 2-3 3-1 3-2 1-3 3-3 3-4 4-1 5-1 5-2 5-3 6-1 6-2 6-3 6-4 6-5 6-6 6-7 7-1 7-2 8 9 10-11-2 11-3 11-4 12 14 17-1 17-2 18-1 18-2 20 21 22 33 231 25-2 25-5 25-6 25-7 25-8 25-9 25-10 25-11 25-12 25-13 25-14 25-15 25-16 25-17 25-18 25-19 水27-1 27-2 25-3 27-4 27-5 27-6 28-1 28-2 30 11-5 25-3 货架区货架区 货架区 货架区 35 34-2 34-1 34-3 货货货36-1 36-2 25-21 25-22 40 39-1 39-2
一楼厂区平面图墙体软帘
门
手工组车间 男厕所女办冰裱花车间 裱花休会研男女公办公室
男更衣室女更衣室 厂统-20℃ -20℃冷库 饰10-1 10-2 11-1 15 16 3 24-1 24-2 25-1 32 25-20 37 38。
蒸煮类糕点生产工艺流程图 (GB317-2006、GB1355-1986、GB2748-2003 GB 9683-1988、GB 9687-1988) **原辅料、包材验收 打蛋 废弃物 蛋处理 低筋粉、白糖、牛奶、色拉油、泡大粉等 (搅拌机、电子秤:满足GB2760、及工艺配方要求)**配料搅拌 入库配送 备注:**标注为关键控制工序;()为关键设备及参数.小西饼生产工艺流程图入库配送备注:**标注为关键控制工序;()为关键设备及参数.蛋糕生产工艺流程图(GB317-2006、GB8608-1988、GB2748-2003 GB 9683-1988、GB 9687-1988)**原辅料、包材验收废弃物 蛋处理打蛋面粉、白糖、牛奶、泡打粉、塔塔粉等**配料搅拌(打蛋机、电子秤:满足GB2760、及工艺配方要求) (成型操作台、蛋糕坯模:根据不同工艺规范书)成型(电热平炉:温度120--200℃、时间10--45min 根据具体产品规格不同而制定不同工艺规范书)**烘烤自然冷却脱模入库配送备注:**标注为关键控制工序;()为关键设备及参数.摊凉面包生产工艺流程图(GB317-2006、LS/T3201-1993、GB2748-2003 QB/T1501-1992、NY479-2002、GB 9683-1988)**原辅料、包材验收备注:**标注为关键控制工序;()为关键设备及参数.(电子秤、分割机)(搅拌机)(电子秤:依据GB2760及工艺规范书)计量、自动分割滚圆 搅拌和面 面粉、白糖、酵母、 酥油、面包改良剂等**配料食品有限公司2F面包车间平面示意图食品有限公司2F面包车间人、物流向示意图食品有限公司2F蛋糕车间平面示意图食品有限公司2F蛋糕车间人、物流示意图备注:人流走向:物料走向:。