拉森钢板桩12米计算书
- 格式:doc
- 大小:13.86 MB
- 文档页数:12
(完整版)拉森钢板桩基坑支护方案设计和计算3、拉森钢板桩基坑支护方案设计和计算3.1、基本情况城展路环城河桥桥台位于河岸上,基坑开挖深度较小;桥墩长24m,宽1.7m,右偏角90°,系梁底标高为0.0m,河床底标高0.0m,因此基坑底部尺寸考虑1m施工操作面要求,布置为长26m,宽3.7m,不需土方开挖。
环城河常水位2.6m,1/20洪水位3.27m,河床底标高0.0m,河底为淤泥土。
考虑选择枯水期施工,堰顶标高为3.5m。
3.2、支护方案设计支护采用拉森钢板桩围堰支护,围堰平行河岸布置,平面布置详见附图。
堰体采用拉森钢板桩Ⅳ型,桩长12米,内部水平围檩由单根(500×300mm)H型钢组成,支撑杆设置在钢板桩顶部,由直径为600mm,壁厚为8mm钢管组成。
整个基坑开挖完成后,沿基坑四周挖出一条200×200mm排水沟,在基坑对角设500×500×500mm集水坑,用泥浆泵将集水坑内渗水及时排出基坑。
布置图:4、基坑稳定性验算4.1、桥墩基坑稳定性验算钢板桩长度为12米,桩顶支撑,标高3.5米,入土长度8.5米。
基坑开挖宽度26米,坑底标高0.0米。
基坑采用拉森钢板桩支护,围檩由单根(500×300mm)H型钢组成,设单道桩顶支撑,支撑采用直径为600mm,壁厚为8mm钢管作为支撑导梁,钢管与H型钢进行嵌固相连并焊接。
验算钢板桩长度,选择钢板桩和导梁型号,验算基底稳定性。
采用理正深基坑软件对支护结构和围囹支撑体系等变形与内力整体计算分析;支护结构的抗倾覆稳定性、抗隆起、抗管涌、嵌固深度采用理正深基坑支护结构设计软件单元计算进行分析。
4.1.1、设计标准及参数1、基坑设计等级及设计系数二级,重要性系数:1.0;支护结构结构重要性系数:1.0;构件计算综合性系数:1.25。
2 、材料力学性能指标1、单元分析工况定义(1)、工况1:打钢板桩,水面以下3.5m;(2)、工况2:在桩顶以下0.5m处安装第一道内支撑;(3)、工况3:抽水;2、单元计算[ 支护方案 ]----------------------------------------------------------------------连续墙支护---------------------------------------------------------------------- [ 基本信息 ]---------------------------------------------------------------------- [ 附加水平力信息 ]---------------------------------------------------------------------- [ 土层信息 ]---------------------------------------------------------------------- [ 土层参数 ]---------------------------------------------------------------------- [ 支锚信息 ]---------------------------------------------------------------------- [ 土压力模型及系数调整 ]----------------------------------------------------------------------弹性法土压力模型: 经典法土压力模型:---------------------------------------------------------------------- [ 工况信息 ]-------------------------------------------------------------------------------------------------------------------------------------------- [ 设计结果 ]---------------------------------------------------------------------- ---------------------------------------------------------------------- [ 结构计算 ]---------------------------------------------------------------------- 各工况:内力位移包络图:地表沉降图:---------------------------------------------------------------------- [ 抗倾覆稳定性验算 ]---------------------------------------------------------------------- 抗倾覆安全系数:p , 对于内支撑支点力由内支撑抗压力决定;对于锚杆或锚索,支点力为锚杆或锚索的锚固力和抗拉力的较小值。
拉森钢板桩计算LG GROUP system office room 【LGA16H-LGYY-LGUA8Q8-LGA162】钢板桩设计地质状况本工程项目座落在张家港市北部长江南岸张家港化工保税区内。
厂区位于长江冲积平原的河漫滩地,地形平坦。
原自然地坪标高较底,场地平均高程,现已采用吹砂回填,将厂区地坪标高提高。
根据地质报告,本工程土质上层为吹填砂,以下分别为粉质粘土夹粉土;粉细砂夹粉土,土的抗压、抗剪强度均较低,且难以采取有效的降排水措施。
目前厂区内地下水位较高,土质松软,地质情况较为复杂。
该区地质结构断面如下图所示:电梯井形状2 支撑式钢板桩挡土墙的构造本工程采用内撑钢板桩挡土墙结构。
其主要由钢板桩、支撑二部分组成,钢板桩起承受水平土压力防止土体沿滑动面滑动以及阻隔地下水的作用。
它的稳定主要靠两道钢支撑使钢板桩保持垂直、稳定,并确保两侧土体不向基坑内发生位移,钢板桩应插入土体一定深度,防止土体滑动和基坑向上隆起。
支撑式钢板桩支挡结构简单且便于施工,整个支挡系统均在基坑开挖过程中完成,作业(包括支撑和挖土)十分安全,施工质量容易保证,且较经济。
3 钢板桩设计其钢板桩和内钢支撑布置示意图如下:钢板桩钢支撑立体布置图安全围栏上下通道12m钢板桩2000钢板桩围檩及内支撑平面布置图工字钢400×400围檩φ377×10钢管支撑φ630×12钢管支撑45004500本工程钢板桩采用Ⅳ型拉森钢板桩,长度为12m,宽度400mm。
(即每块1m)。
钢板桩水平围檩采用40号工字钢,内支撑采用Φ630×12的直撑钢管和Φ377×10的斜撑钢管。
为此,共需12米长的钢板桩数量:N =(A+B)×2÷ =(+)×2÷ = 160根。
本方案基坑开挖深度最深按计算,设二道水平支撑。
第一道水平钢支撑中心布置在处,第二道水平钢支撑中心布置在处,这样下道支撑距基坑底约为。
南三路基坑工程计算书1 工程概况该基坑设计总深7.2m,按一级基坑、选用《浙江省标准—建筑基坑工程技术规程(DB33/T1008-2000)》进行设计计算。
1.1 土层参数续表地下水位埋深:2.00m。
1.2 基坑周边荷载地面超载:0.0kPa2 开挖与支护设计基坑支护方案如图:南三路基坑工程基坑支护方案图2.1 挡墙设计·挡墙类型:钢板桩;·嵌入深度:7.700m;·露出长度:0.300m;·型钢型号:Q295bz-400×170;·桩间距:800mm;2.2 放坡设计2.2.1 第1级放坡设计坡面尺寸:坡高3.20m;坡宽2.00m;台宽3.10m。
放坡影响方式为:一。
2.3 支撑(锚)结构设计本方案设置1道支撑(锚),各层数据如下:第1道支撑(锚)为平面内支撑,距墙顶深度1.500m,工作面超过深度0.300m,预加轴力0.00kN/m。
该道平面内支撑具体数据如下:·支撑材料:钢支撑;·支撑长度:8.000m;·支撑间距:4.000m;·与围檩之间的夹角:90°;·不动点调整系数:0.800;·型钢型号:钢管300*8;·根数:1;·松弛系数:1.000。
计算点位置系数:0.500,围檩数据:围檩型钢型号:300*300*10*15、根数:1。
2.4 工况顺序该基坑的施工工况顺序如下图所示:3 内力变形计算3.1 计算参数水土计算(分算/合算)方法:按土层分/合算;水压力计算方法:静止水压力,修正系数:1.0;主动侧土压力计算方法:朗肯主动土压力,分布模式:三角形,调整系数:1.0,负位移不考虑土压力增加;被动侧基床系数计算方法: "m"法,土体抗力不考虑极限土压力限值;墙体抗弯刚度折减系数:1.0。
3.2 计算结果3.2.1 水土压力计算结果计算宽度:0.80m。
钢板桩支护计算书采用12m的拉森钢板桩进行基坑围护,围护示意图如下:沿钢板桩深度方向设立二道斜角400×400H型钢支撑,相应位置见上图。
根据地质勘探报告,得各土层物理参数如下:①层平均层厚为2.4m,容重取20kN/m3,粘结力c=0,主动侧压力系数取0.2;②层平均层厚为 3.0m,容重取20.3kN/m3,粘结力c=0,内摩擦角为33.33°,主动土压力系数Ka=tan2(45-33.33/2)=0.29,被动土压力系数Kp= tan2(45+33.33/2)=3.44;③层平均层厚为2.6m,容重取20.2kN/m3,粘结力c=51.3,内摩擦角为9.9°,主动土压力系数Ka=tan2(45-9.9/2)=0.71,被动土压力系数Kp= tan2(45+9.9/2)=1.42;④层平均层厚为7.4m,容重取19.7kN/m3,粘结力c=33.2,内摩擦角为11.4°,主动土压力系数Ka=tan2(45-11.4/2)=0.67,被动土压力系数Kp= tan2(45+11.4/2)=1.49;⑤层平均层厚为8.15m,容重取20.1kN/m3,粘结力c=68,内摩擦角为13.7°,主动土压力系数Ka=tan2(45-13.7/2)=0.62,被动土压力系数Kp= tan2(45+13.7/2)=1.62;一、钢板桩最小入土深度(根据C点支撑反力为零计算出最小入土深度)基坑开挖深度6m,取钢板桩单位长度为计算单元。
钢板桩为拉森III型钢板桩,围囹、支撑、锚桩均采用400×400的H型钢,相应的截面性能参数见计算书后附件。
按上图的支护方式,计算图式可简化为三点支撑的连续梁,结构简图及荷载分布图如下(采用结构力学求解器进行求解):结构弯矩图如下:剪力图如下:在此支撑模式下,坑底最小入土深度为1.2m。
此时支撑点C的反力为零。
出于安全考虑,钢板桩入土深度实际施工时按3m施工。
宁波市轨道交通1号线二期工程1214标12m钢板桩深基坑计算书计算:复核:审核:中铁大桥局宁波市轨道交通1号线二期工程1214标项目部工程技术部二〇一三年三月目录第一章计算依据及说明 (1)第二章工程地质及相关参数 (1)第三章钢板桩及围檩验算 (3)第一章计算依据及说明1.1计算依据1、《钢结构设计规范》GB 50017-20032、《软土地区工程地质勘察规范》JGJ 83-913、《公路桥涵地基与基础设计规范》JTG D63-20074、《铁路桥涵设计基本规范》TB 10002.1-995、中铁大桥勘测设计院有限公司提供的《宁波市轨道交通1号线二期工程施工图设计》6、浙江省工程勘察院提供的《岩土工程勘察报告》7、参考文献:刘建航侯学渊《基坑工程设计手册》中国建筑工业出版社李克钏,罗书学.基础工程.北京:中国铁道出版社1.2计算说明该标段内承台开挖直接涉及到杂填土,粘土,淤泥质粘土。
基坑底面主要位于淤泥质粘土中。
表层填土结构松散,富水性和透水性较好;粘土强度略高,土层渗透性较差;下部的灰色淤泥质粘土天然含水量大,透水性弱,抗剪强度很低,土层开挖后稳定性差。
由地质情况及场地环境条件可见,基坑需采取支护措施。
标段内承台开挖深度最大为6.5m,G21#墩土质较差,开挖深度为6.5m,施工难度较大,为最不利受力条件,本计算书以G21#墩为计算模型。
第二章工程地质及相关参数2.1工程地质及相关参数基坑所处土层为淤泥质粉质粘土,相关参数如下:γ= 17.6KN/m3,c=15.0KPa,φ=8.9ο。
根据现场地形复测及下部结构施工蓝图,以G21墩为例进行基坑开挖深度在6.5m内的钢板桩围堰计算,G21墩承台尺寸为12m*12m*3m,基坑开挖深度h=6.5m,钢板桩长度H=12m。
第一道内支撑距钢板桩顶面距离为0.5m,第二道内支撑距钢板桩顶面距离为3m。
钢板桩采用拉森钢板桩,钢板桩采用有效幅宽W=400mm,有效高度170mm,t=15.5mm,壁宽每m:A=242.5cm2,Wx=2270cm3,Ix=38600cm4,圈梁采用H400×400×13×21型钢,相关参数为:A=214.54cm2,W x=3268.07cm3,I x=65361.58m4,i x=17.45cm,[σ]=200MPa;内支撑采用[32a,相关参数为:A=48.7cm2,W x=474.879cm3,I x=7598.06cm4,i x=12.49cm,W y=46.473cm3,I y=304.789cm4,i y=2.502cm,I y1=552.31cm4,[σ]=200MPa;),由于K a=tan2(45ο−φ2),所以K p=1.36。
拉森钢板桩(扣板)受力验算由于没有地质资料图,根据现场实际开挖获取的地质资料提取验算参数。
因本工程钢板桩施工区地质情况复杂,且无明显变化界限,为确保安全,选有代表性的地质断面分别计算荷载,取最不利荷载对拉森扣板桩支护进行验算,代表性地质断面情况如下表(按11.5m深度统计),场地狭窄,大部分是填筑土,以表1的地质情况验算。
1、土层参数内摩擦角φ取值见建筑施工计算手册第77页表2-1表1 地质断面情况表地层名称层厚(m)土的容重r(KN/m3)内摩擦角φ(°)凝聚力c(KPa)备注人工回填土 1.919.1 23 参考同类土质试验成果淤泥质粉质粘土 1.616.9 4.4 5.5 参考同类土质试验成果粉质粘土820.1 22.2 17.3 参考同类土质试验成果2、拉森钢板桩参数表2 拉森钢板桩参数表钢板桩型号每延米截面积cm2每延米惯矩Ix(cm4)每延米抵抗矩Wx(cm3)容许弯曲应力[σw](MPa)容许剪应力[τ](MPa)备注拉森Ⅳ236 36551 2037 210 1203、汽车荷载换算成等代均布荷载的土层厚:装土车安排1台在坑边,装土后总重=自重20+土重20=40t装土时汽车荷载分布示意图(单位:m)荷载换算成的土层厚度:H=ΣP/(BLr)=40×10/(3.55×8.05×18.4)=0.77m4、拉森钢板桩最大悬臂长度的计算:4.1 土体参数计算根据现场调查,安设钢板桩的地段,最小开挖深度h=3m以上,取3m范围的土层计算土体参数加权平均值。
土平均容重r=(18.4×1.9+16.9×1.1)/3=17.85 KN/m3土平均摩擦角φ=(23×1.9+4.4×1.6)/3=16.91主动土压力系数Ka=tga2(45°-φ/2)=0.553m深度处的最大主动土压力荷载:主动土压力荷载q=r×(h+0.77)×Ka=17.85×3.77×0.55=37.02 KN/m钢板桩悬臂部分受力图(单位:m)4.2拉森钢板桩最大悬臂长度计算拉森IV型钢板桩(用于开挖深度3~6.6m的管道)M≦Wx×[σw]max1/6×(h+0.77)×(h+0.77)×17.85×(h+0.77)×0.55×10000)≦2037×210由上式得出h≦2.2m因拉森IV型钢板桩用于开挖的深度均大于2.2m,大于其最大悬臂长度,故都需加支撑。
拉森钢板桩设计计算书(1)钢板桩的设置位置要符合设计要求,便于基础施工,即在基础最突出的边缘外留有支模、拆模的余地。
(2)基坑护壁钢板桩的平面布置形状应尽量平直整齐,避免不规则的转角,以便标准钢板桩的利用和支撑设置。
各周边尺寸尽量符合板桩模数。
(3)整个基础施工期间,在挖土、吊运、扎钢筋、浇筑混凝土等施工作业中,严禁碰撞支撑,禁止任意拆除支撑,禁止在支撑上任意切割、电焊,也不应在支撑上搁置重物。
2 工艺流程根据施工图及高程放设沉桩定位线→引孔的施工→沉桩位置沟槽开挖1m 深→根据定位线设置沉桩导梁→整修、平整施工机械行走道路→钢板桩插入和预打→静压钢板桩→静压机行走路线处沟槽的平整→钢管桩的静压施工→挖除地表面 1.0m厚土及放坡→开挖至第一道围檩位置→设置围檩及支撑→开挖至第二道围檩位置→设置围檩及支撑→土方开挖→割除并吊出上部的钢管桩(可根据钢管桩每节的长短进行工序的调整)→施工桥台至第二道支撑下0.5m处→填土及拆除第二道围檩及支撑→施工桥台至第一道支撑下0.5m处→填土及拆除第一道围檩及支撑→主体结构施工完成→回填土→拔除钢板桩→在桩的缝隙处用细砂回填密实在施工过程中采用集水明排方式排出坑底汇水。
3 操作工艺(1)打桩机械主机采用静压机,噪音及振动较小。
围檩、支撑、板桩吊装采用25t汽车吊。
板桩围堰施工采用测量定位、屏风式打入的施工方法。
(2)钢板桩的检验及矫正对进场的钢板桩按出厂标准进行检验,应对外观质量进行检验,包括长度、宽度、厚度、高度等是否符合设计要求,有无表面缺陷,端头矩形比,垂直度和锁口形状等。
验收标准:①高度允许偏差±8mm;②宽度绝对偏差+10mm;③弯曲和挠度用2m长锁口榉板顺利通过全长挠度<1%;④桩端平面应平整;⑤钢板背面及锁口应光滑无阻。
使用千斤顶、大锤和氧气、乙炔等工具材料完成包括端部修整、桩体矫曲、扭曲及局部变形矫正、锁口变形矫正。
锁口检查的方法:用一块长2~3m的同类型、同规格的钢板桩作标准,将所有同型号的钢板桩做锁口通过检查。
钢板桩支护 结构计算书一、工程概况支护方案 (钢板桩支护)基坑开挖深度为12m ,采用板桩作围护结构,桩长为6.5m ,桩顶标高为-8m 。
计算时考虑地面超载20kPa 。
q=20(粘质粉土)(粉质粘土)(粉质砂土)(粉质粘土)hw=12.589.210.411.6H =12D =2.5板桩共设4道支撑,见下表。
中心标高(m ) 刚度(MN/m 2)预加轴力(kN/m )-8 47.75 -9.2 78.77 -10.4 47.14 -11.6 52.51基坑附近有附加荷载如下表和下图所示。
h 8 x 1.5 s80编号 P(kPa 或kN/m) a(m) b(m) c 1 120 15 12 2二、地质条件场地地质条件和计算参数见表1。
地下水位标高为-12.5m。
土层层底标高(m) 层厚(m)重度(kN/m3)ϕ(︒) c(kPa) 渗透系数(m/d)压缩模量(MPa)m(kN/m4)k max(kN/m3)粘质粉土-4 4 20 23 25 10780粉质粘土-12 8 20 23 25 10780粉质砂土-13 1 19 23 0 8280粉质粘土-19 6 20 23 30 11280粉质粘土-25 6 19 23 30 11280 坑内进行加固,加固土层的计算参数见表。
土层层底标高(m) 层厚(m)重度(kN/m3)ϕ(︒) c(kPa) 渗透系数(m/d)压缩模量(MPa)m(kN/m4)k max(kN/m3)粉质砂土-1 1 19 23 0 8280粉质粘土-7 6 20 23 30 11280粉质粘土-13 6 19 23 30 11280 三、工况工况编号工况类型深度(m) 支撑刚度(MN/m2) 支撑编号预加轴力(kN/m)1 开挖82 加撑8 47.75 13 开挖9.24 加撑9.2 78.77 25 开挖10.46 加撑10.4 47.14 37 开挖11.68 加撑11.6 52.51 49 开挖12工况简图如下:工况 18工况 28工况 39.2工况 49.2工况 510.4工况 610.4工况 711.6工况 811.6工况 912四、计算20(粘质粉土)(粉质粘土)(粉质粘土)(粉质粘土)122.5YXO安全系数 K=1.22 ,圆心 O( 0.58 , 6.51 )整体稳定验算20(粘质粉土)(粉质粘土)(粉质粘土)(粉质粘土)12.5122.5Prandtl: K=3.13Terzaghi: K=3.73墙底抗隆起验算(粉质粘土)(粉质粘土)坑底抗隆起验算 K=4.98抗倾覆验算(水土合算)(粉质粘土) Kc=2.5包络图 (水土分算, 矩形荷载)40200-20-40 0246810121416深度(m)水平位移(mm)Max: 221050-5-10246810121416深度(m)弯矩(kN*m)-5.9 ~ 7.420100-10-20246810121416深度(m)剪力(kN)-10.1 ~ 16.7。
深基坑支护设计1 设计单位:X X X 设计院 设计人: X X X设计时间: 2014-05-10 10:23:38[支护方案]连续墙支护I wr > 1^1 fl'ill *C = Ir-K I1.TJJJ ;* = 4 U 仃骨规范与规程 《建筑基坑支护技术规程》 JGJ 120-2012内力计算方法 增量法 基坑等级 三级戦■ nrr ■ 1?! 0 喊 t ■ l^fr(l}Ql* = J 7 U 7|信息]土层信息层号与锚固体摩擦阻力(kPa)粘聚力水下(kPa)内摩擦角水下(度)水土计算方法m,c,K 值抗剪强度(kPa)1 40.0 18.00 9.00 合算m法 2.52 ---2 25.0 13.00 4.70 合算m法 1.27 ---3 35.0 21.00 10.00 合算m法 3.10 ---4 120.0 19.00 9.00 合算m法 2.62 ---[支锚信息]支锚道号支锚类型水平间距(m)竖向间距(m)入射角(° )总长(m)锚固段长度(m)1 内撑 5.000 4.200 --- --- ---支锚道号预加力(kN)支锚刚度(MN/m)锚固体直径(mm) 工况号锚固力调整系数材料抗力(kN)材料抗力调整系数1 0.00 49.44 --- 2〜--- 2000.00 1.00[土压力模型及系数调整]吉\.\亠般分布层号土类名称水土水压力调整系数外侧土压力调整系数1外侧土压力调整系数2内侧土压力调整系数内侧土压力最大值(kPa)1 粘性土合算 1.000 1.000 0.000 1.000 10000.0002 淤泥质土合算 1.000 1.000 0.000 1.000 10000.0003 粘性土合算 1.000 1.000 0.000 1.000 10000.0004 粘性土合算 1.000 1.000 1.000 1.000 10000.000弹性法土压力模型经典法土压力模型sic L )—-80I )丄 g T丄W 二工s .cl—丄肓s丄三■»'丿# *'xVr亠"■一m ——■7F EV云-i- - —S =09 ---背Oj邑■-.-—h CT.羔丄--i k . J I P L lilw(DCs u------ s P E丄_u >s-l=i H(E冃二樂—丄胃11 1 kT —i i iM 」W 旦i 1H *k吕鬼H nT —CM co认2-->» ' ( 4■I sH i■»i 1「]\\i卩-1lb p-Lr;•ifi-II■■ II1r J /\ 4J ]J J /1 : 1■.1也规KN/m)位畫f-273 «)---■呵卜阳-(ODD)卜却2呵(00)--- (00)L弋卜亠§是[B疋Tn j魏.KU fi'KN)卜 D 閒賓55)卜北q]j---iH5 52j^-411ft.___(G0Gj觸mm)(-W 65)——(flDD)何-(00}-1■■ir31I'l(-s-■,、“1'■■:j s r%1-HIHi</'/.JJ找地N/m)(-2*1 01}—(156 501卜鮒砧} (7031)"frj.KN-iTi;(-B2W/—-(M576)(-95 *5)—-(6589)(-94 4 -一(碎時}(-7777)-—(81 36)内力位移包络图:册?(mrn 〉---- 三翕弼注 定壯训星、2nvn[截面计算]弯矩折减系数 0.85 剪力折减系数1.00曲&OCrr )JO DO)(DOO>-—(ODQ^-H43 76)(-9545)—(125 0卜的 - (bj刪(-77 77}-—(&l J5)比顷I 我7@fnrri内力取值段号内力类型弹性法计算值经典法计算值内力设计值内力实用值1 基坑内侧最大弯矩(kN.m) 62.59 93.45 59.85 59.85基坑外侧最大弯矩(kN.m) 148.76 125.42 142.26 142.26 最大剪力(kN) 99.73 81.38 124.66 112.19[截面验算]基坑内侧抗弯验算(不考虑轴力)d nei = M / W-6=59.851/(2200.000*10 )=27204.926(kPa)=27.205(MPa) < f = 215.000(MPa)基坑外侧抗弯验算(不考虑轴力)d wai = M / W-6 =142.256/(2200.000*10 )=64661.919(kPa)=64.662(MPa) < f = 215.000(MPa)[整体稳定验算]计算方法:瑞典条分法应力状态:总应力法满足满足条分法中的土条宽度:0.40m滑裂面数据整体稳定安全系数K s = 1.702圆弧半径(m) R = 15.788圆心坐标X(m) X = -0.288圆心坐标Y(m) Y = 7.773[抗倾覆稳定性验算]抗倾覆安全系数M--被动土压力及支点力对桩底的抗倾覆弯矩,对于内支撑支点力由内支撑抗压力决定;对于锚杆或锚索,支点力为锚杆或锚索的锚固力和抗拉力的较小值。
拉森钢板桩设计计算书(1)钢板桩的设置位置要符合设计要求,便于基础施工,即在基础最突出的边缘外留有支模、拆模的余地。
(2)基坑护壁钢板桩的平面布置形状应尽量平直整齐,避免不规则的转角,以便标准钢板桩的利用和支撑设置。
各周边尺寸尽量符合板桩模数。
(3)整个基础施工期间,在挖土、吊运、扎钢筋、浇筑混凝土等施工作业中,严禁碰撞支撑,禁止任意拆除支撑,禁止在支撑上任意切割、电焊,也不应在支撑上搁置重物。
2 工艺流程根据施工图及高程放设沉桩定位线→引孔的施工→沉桩位置沟槽开挖1m 深→根据定位线设置沉桩导梁→整修、平整施工机械行走道路→钢板桩插入和预打→静压钢板桩→静压机行走路线处沟槽的平整→钢管桩的静压施工→挖除地表面 1.0m厚土及放坡→开挖至第一道围檩位置→设置围檩及支撑→开挖至第二道围檩位置→设置围檩及支撑→土方开挖→割除并吊出上部的钢管桩(可根据钢管桩每节的长短进行工序的调整)→施工桥台至第二道支撑下0.5m处→填土及拆除第二道围檩及支撑→施工桥台至第一道支撑下0.5m处→填土及拆除第一道围檩及支撑→主体结构施工完成→回填土→拔除钢板桩→在桩的缝隙处用细砂回填密实在施工过程中采用集水明排方式排出坑底汇水。
3 操作工艺(1)打桩机械主机采用静压机,噪音及振动较小。
围檩、支撑、板桩吊装采用25t汽车吊。
板桩围堰施工采用测量定位、屏风式打入的施工方法。
(2)钢板桩的检验及矫正对进场的钢板桩按出厂标准进行检验,应对外观质量进行检验,包括长度、宽度、厚度、高度等是否符合设计要求,有无表面缺陷,端头矩形比,垂直度和锁口形状等。
验收标准:①高度允许偏差±8mm;②宽度绝对偏差+10mm;③弯曲和挠度用2m长锁口榉板顺利通过全长挠度<1%;④桩端平面应平整;⑤钢板背面及锁口应光滑无阻。
使用千斤顶、大锤和氧气、乙炔等工具材料完成包括端部修整、桩体矫曲、扭曲及局部变形矫正、锁口变形矫正。
锁口检查的方法:用一块长2~3m的同类型、同规格的钢板桩作标准,将所有同型号的钢板桩做锁口通过检查。
钢板桩设计地质状况本工程项目座落在张家港市北部长江南岸张家港化工保税区内。
厂区位于长江冲积平原的河漫滩地,地形平坦。
原自然地坪标高较底,场地平均高程,现已采用吹砂回填,将厂区地坪标高提高根据地质报告,本工程土质上层为吹填砂,以下分别为粉质粘土夹粉土;粉细砂夹粉土,土的抗压、抗剪强度均较低,且难以采取有效的降排水措施。
目前厂区内地下水位较高,土质松软,地质情况较为复杂。
该区地质结构断面如下图所示:电梯井形状本工程结构形式如下。
目前基坑结构长米,宽米,基坑底标高,基坑深度米。
池壁每一侧考虑米宽的工作面,则支护结构的尺寸为长米,宽米。
2 支撑式钢板桩挡土墙的构造本工程采用内撑钢板桩挡土墙结构。
其主要由钢板桩、支撑二部分组成,钢板桩起承受水平土压力防止土体沿滑动面滑动以及阻隔地下水的作用。
它的稳定主要靠两道钢支撑使钢板桩保持垂直、稳定,并确保两侧土体不向基坑内发生位移,钢板桩应插入土体一定深度,防止土体滑动和基坑向上隆起。
支撑式钢板桩支挡结构简单且便于施工,整个支挡系统均在基坑开挖过程中完成,作业(包括支撑和挖土)十分安全,施工质量容易保证,且较经济。
3 钢板桩设计其钢板桩和内钢支撑布置示意图如下:钢板桩钢支撑立体布置图安全围栏上下通道2000 12m 钢板桩200045002000钢板桩围檩及内支撑平面布置图工字钢400× 400 围檩φ 377 ×10 钢管支撑φ630 × 12 钢管支撑45004500本工程钢板桩采用Ⅳ型拉森钢板桩,长度为12m,宽度400mm。
(即每块1m)。
钢板桩水平围檩采用40 号工字钢,内支撑采用Φ630×12 的直撑钢管和Φ 377×10 的斜撑钢管。
为此,共需12 米长的钢板桩数量:N =(A+B)× 2÷ =(+)× 2÷ = 160根。
本方案基坑开挖深度最深按计算,设二道水平支撑。
拉森钢板桩设计计算书标准化管理处编码[BBX968T-XBB8968-NNJ668-MM9N]拉森钢板桩设计计算书(1)钢板桩的设置位置要符合设计要求,便于基础施工,即在基础最突出的边缘外留有支模、拆模的余地。
(2)基坑护壁钢板桩的平面布置形状应尽量平直整齐,避免不规则的转角,以便标准钢板桩的利用和支撑设置。
各周边尺寸尽量符合板桩模数。
(3)整个基础施工期间,在挖土、吊运、扎钢筋、浇筑混凝土等施工作业中,严禁碰撞支撑,禁止任意拆除支撑,禁止在支撑上任意切割、电焊,也不应在支撑上搁置重物。
差的钢板桩应尽量不用。
----------------------------------------------------------------------弹性法土压力模型: 经典法土压力模型:----------------------------------------------------------------------[ 工况信息 ]-------------------------------------------------------------------------------------------------------------------------------------------- [ 设计结果 ]---------------------------------------------------------------------- ---------------------------------------------------------------------- [ 结构计算 ]---------------------------------------------------------------------- 各工况:内力包络图:2、拉森钢板桩型号的选择与验算=·m。
工程结构支护计算书: 3.1设计资料1、桩顶高程0.000m ,施工水位-0.500m ;2、开挖深度4.0m ;3、基坑内外土的重度加权平均值为:16.7KN/,为了考虑重度不平均,设计取值为17.7KN/ m 3,内摩擦角加权平均值Ф=4.1°,内聚力C :6.5Kp 。
4、距板桩外1.5m 均布荷载按20KN/ m 2计。
基坑开挖深度4m. 5、拉森桩特性型 号 截面模数惯性矩截面面积规格 每桩 每米墙身 每桩 每米墙身 每桩 每米墙身 宽 高 厚 CM3 CM3/M CM4 CM4/M CM2 CM2/M MM MM MM SP-IV362227046703860096.9242.540017015.56、地质条件场地地质条件和计算参数见表1。
地下水位标高为-0.5m 。
土层 层厚(m) 重度(kN/m 3) ϕ(︒) c(kPa) 杂填土 2 淤泥质黏土1 4 16.4 3.7 6黏土 3 17.4 4.5 6.9 淤泥质黏土2 3 17 4.1 6.8(1)钢板桩强度验算:[]max max 32891.25 1.25159.02052270/M KN mMPa MPa W cm mσσ⨯==⨯=<=满足规范要求。
(2) 桩的水平变形系数α(1/m ):10555850.950.52.1107140010mb m EI α--⨯===⨯⨯⨯ m ——桩侧土水平抗力系数的比例系数; b 0——桩身的计算宽度(m ); EI ——桩身抗弯刚度。
(3) 单桩水平承载力特征值:33118200.5 2.11071400100.750.755102862.441ha a x EI R kN αχν--⨯⨯⨯⨯==⨯⨯⨯=EI ——桩身抗弯刚度;0a χ——桩顶允许水平位移;x ν——桩顶水平位移系数。
3.2、钢板桩平面布置、板桩类型选择,支撑布置形式,板桩入土深度、基底稳定性设计计算如下:(1)作用于板桩上的土压力强度及压力分布图 Ka=tg 2(45°-φ/2)= tg 2(45°-17.4/2)=0.54 Kp= tg 2(45°+Ф/2)= tg 2(45°+17.4/2)=1.86 板桩外侧均布荷载换算填土高度h1,q=20KN/m2q=49.03KN/m2钢板桩土压力分布图h1=q/r=20KN/ m 2÷17.7KN/ m 3 =1.13m填土面处的土压力强度Pa 1:Pa 1=r*h1*Ka=17.7×*1.13×0.54=10.8 KN/m 2 基坑底处土压力强度Pa 2:Pa 2=r*(h1+4)*Ka=17.7×(1.13+4) ×0.54 =49.03KN/m 2 总主动土压力Pa=1/2(Pa 1+ Pa 2)H=1/2*(10.8+49.03)=119.66 合力Ea 距基底的距离y :y=(H/3)*(2 Pa 1+ Pa 2)/(Pa 1+ Pa 2)=1.57m (2)确定内支撑层数及间距按等弯距布置确定各层支撑的间距,根据SP-Ⅳ钢板桩能承受的最大弯距确定板桩顶悬臂端的最大允许跨度h:h= 3]f [6Ka Wγ = 354.07.1710227035063⨯⨯⨯⨯ =663.52mm=0.663mh1=1.11h=1.11×0.663=0.0.735m h2=0.88 h =0.88×0.663=0.583m确定采用的布置为h 0=0.5m 。
钢板桩支护 结构计算书一、工程概况支护方案 (钢板桩支护)基坑开挖深度为12m ,采用板桩作围护结构,桩长为6.5m ,桩顶标高为-8m 。
计算时考虑地面超载20kPa 。
q=20(粘质粉土)(粉质粘土)(粉质砂土)(粉质粘土)hw=12.589.210.411.6H =12D =2.5板桩共设4道支撑,见下表。
中心标高(m ) 刚度(MN/m 2)预加轴力(kN/m )-8 47.75 -9.2 78.77 -10.4 47.14 -11.6 52.51基坑附近有附加荷载如下表和下图所示。
h 8 x 1.5 s80编号 P(kPa 或kN/m) a(m) b(m) c 1 120 15 12 2二、地质条件场地地质条件和计算参数见表1。
地下水位标高为-12.5m。
土层层底标高(m) 层厚(m)重度(kN/m3)ϕ(︒) c(kPa) 渗透系数(m/d)压缩模量(MPa)m(kN/m4)k max(kN/m3)粘质粉土-4 4 20 23 25 10780粉质粘土-12 8 20 23 25 10780粉质砂土-13 1 19 23 0 8280粉质粘土-19 6 20 23 30 11280粉质粘土-25 6 19 23 30 11280 坑内进行加固,加固土层的计算参数见表。
土层层底标高(m) 层厚(m)重度(kN/m3)ϕ(︒) c(kPa) 渗透系数(m/d)压缩模量(MPa)m(kN/m4)k max(kN/m3)粉质砂土-1 1 19 23 0 8280粉质粘土-7 6 20 23 30 11280粉质粘土-13 6 19 23 30 11280 三、工况工况编号工况类型深度(m) 支撑刚度(MN/m2) 支撑编号预加轴力(kN/m)1 开挖82 加撑8 47.75 13 开挖9.24 加撑9.2 78.77 25 开挖10.46 加撑10.4 47.14 37 开挖11.68 加撑11.6 52.51 49 开挖12工况简图如下:工况 18工况 28工况 39.2工况 49.2工况 510.4工况 610.4工况 711.6工况 811.6工况 912四、计算20(粘质粉土)(粉质粘土)(粉质粘土)(粉质粘土)122.5YXO安全系数 K=1.22 ,圆心 O( 0.58 , 6.51 )整体稳定验算20(粘质粉土)(粉质粘土)(粉质粘土)(粉质粘土)12.5122.5Prandtl: K=3.13Terzaghi: K=3.73墙底抗隆起验算(粉质粘土)(粉质粘土)坑底抗隆起验算 K=4.98抗倾覆验算(水土合算)(粉质粘土) Kc=2.5包络图 (水土分算, 矩形荷载)40200-20-40 0246810121416深度(m)水平位移(mm)Max: 221050-5-10246810121416深度(m)弯矩(kN*m)-5.9 ~ 7.420100-10-20246810121416深度(m)剪力(kN)-10.1 ~ 16.7。
深基坑支护设计 1设计单位:X X X 设计院设计人:X X X设计时间:2013-12-04 14:35:19---------------------------------------------------------------------- [ 支护方案 ]---------------------------------------------------------------------- 排桩支护---------------------------------------------------------------------- [ 基本信息 ]---------------------------------------------------------------------- [ 超载信息 ]---------------------------------------------------------------------- [ 附加水平力信息 ]---------------------------------------------------------------------- [ 土层信息 ]---------------------------------------------------------------------- [ 土层参数 ]---------------------------------------------------------------------- [ 土压力模型与系数调整 ]----------------------------------------------------------------------弹性法土压力模型: 经典法土压力模型:---------------------------------------------------------------------- [ 工况信息 ]-------------------------------------------------------------------------------------------------------------------------------------------- [ 设计结果 ]-------------------------------------------------------------------------------------------------------------------------------------------- [ 结构计算 ]---------------------------------------------------------------------- 各工况:力位移包络图:地表沉降图:---------------------------------------------------------------------- [ 截面计算 ]----------------------------------------------------------------------[ 截面验算 ]基坑侧抗弯验算(不考虑轴力) σnei = Mn / Wx= 0.159/(2200.000*10-6)= 0.072(MPa) < f = 215.000(MPa) 满足基坑外侧抗弯验算(不考虑轴力) σwai = Mw / Wx= 177.062/(2200.000*10-6)= 80.483(MPa) < f = 215.000(MPa) 满足式中:σwai———基坑外侧最大弯矩处的正应力(Mpa);σnei———基坑侧最大弯矩处的正应力(Mpa);Mw ———基坑外侧最大弯矩设计值(kN.m);Mn ———基坑侧最大弯矩设计值(kN.m);Wx ———钢材对x轴的净截面模量(m3);f ———钢材的抗弯强度设计值(Mpa);---------------------------------------------------------------------- [ 整体稳定验算 ]----------------------------------------------------------------------计算方法:瑞典条分法应力状态:总应力法条分法中的土条宽度: 1.00m滑裂面数据整体稳定安全系数 K s = 3.011圆弧半径(m) R = 11.916圆心坐标X(m) X = -1.514圆心坐标Y(m) Y = 5.062---------------------------------------------------------------------- [ 抗倾覆稳定性验算 ]---------------------------------------------------------------------- 抗倾覆安全系数:M p——被动土压力与支点力对桩底的抗倾覆弯矩, 对于支撑支点力由支撑抗压力决定;对于锚杆或锚索,支点力为锚杆或锚索的锚固力和抗拉力的较小值。
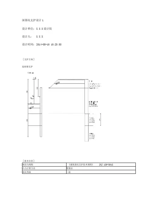
深基坑支护设计 1
设计单位:X X X 设计院
设计人:X X X
设计时间:2014-05-10 10:23:38
---------------------------------------------------------------------- [ 支护方案 ]
---------------------------------------------------------------------- 连续墙支护
---------------------------------------------------------------------- [ 基本信息 ]
---------------------------------------------------------------------- [ 放坡信息 ]
---------------------------------------------------------------------- [ 附加水平力信息 ]
---------------------------------------------------------------------- [ 土层信息 ]
---------------------------------------------------------------------- [ 土层参数 ]
---------------------------------------------------------------------- [ 支锚信息 ]
---------------------------------------------------------------------- [ 土压力模型及系数调整 ]
----------------------------------------------------------------------
弹性法土压力模型: 经典法土压力模型:
----------------------------------------------------------------------
[ 工况信息 ]
----------------------------------------------------------------------
---------------------------------------------------------------------- [ 设计结果 ]
----------------------------------------------------------------------
---------------------------------------------------------------------- [ 结构计算 ]
---------------------------------------------------------------------- 各工况:
内力位移包络图:
地表沉降图:
---------------------------------------------------------------------- [ 截面计算 ]
----------------------------------------------------------------------
[ 截面验算 ]
基坑内侧抗弯验算(不考虑轴力)
σnei = M / W
= 59.851/(2200.000*10-6)
= 27204.926(kPa)
= 27.205(MPa) < f = 215.000(MPa) 满足
基坑外侧抗弯验算(不考虑轴力)
σwai = M / W
= 142.256/(2200.000*10-6)
= 64661.919(kPa)
= 64.662(MPa) < f = 215.000(MPa) 满足
---------------------------------------------------------------------- [ 整体稳定验算 ]
----------------------------------------------------------------------
计算方法:瑞典条分法
应力状态:总应力法
条分法中的土条宽度: 0.40m
滑裂面数据
整体稳定安全系数 K s = 1.702
圆弧半径(m) R = 15.788
圆心坐标X(m) X = -0.288
圆心坐标Y(m) Y = 7.773
----------------------------------------------------------------------
[ 抗倾覆稳定性验算 ]
----------------------------------------------------------------------
抗倾覆安全系数:
p, 对于内支撑支点力由内支撑抗压力决定;对于锚杆或锚索,支点力为锚杆或锚索的锚固力和抗拉力的较小值。
M a--主动土压力对桩底的倾覆弯矩。
注意:锚固力计算依据锚杆实际锚固长度计算。
工况1:
注意:锚固力计算依据锚杆实际锚固长度计算。
序号支锚类型材料抗力(kN/m) 锚固力(kN/m)
1 内撑 0.000 ---
s
工况2:
注意:锚固力计算依据锚杆实际锚固长度计算。
序号支锚类型材料抗力(kN/m) 锚固力(kN/m)
1 内撑 400.000 ---
s
工况3:
注意:锚固力计算依据锚杆实际锚固长度计算。
序号支锚类型材料抗力(kN/m) 锚固力(kN/m)
1 内撑 400.000 ---
s
----------------------------------------------
安全系数最小的工况号:工况1。
最小安全K s = 1.298 >= 1.150, 满足规范要求。
---------------------------------------------------------------------- [ 抗隆起验算 ]
----------------------------------------------------------------------
1) 从支护底部开始,逐层验算抗隆起稳定性,结果如下:
m2m1
(tan
)2
e
tan
(N tan 支护底部,验算抗隆起: Ks = 1.904 ≥ 1.400,抗隆起稳定性满足。
2) 坑底抗隆起按以最下层支点为转动轴心的圆弧条分法计算,结果如下:
+
G tan
i
+
G
sin
1.552 < 1.700,坑底抗隆起稳定性不满足。
---------------------------------------------------------------------- [ 抗管涌验算 ]
----------------------------------------------------------------------
)'
h w
K se---流土稳定性安全系数;安全等级为一、二、三级的基坑支护,流土稳定性安全系数分别不应小于1.6、1.5、1.4;
l d---截水帷幕在基坑底面以下的长度(m);
D1---潜水水面或承压水含水层顶面至基坑底面的垂直距离(m);
γ'---土的浮重度(kN/m3);
Δh'---基坑内外的水头差(m);
γw---地下水重度(kN/m3);
K = 2.832 >= 1.4, 满足规范要求。
---------------------------------------------------------------------- [ 嵌固深度计算 ]
---------------------------------------------------------------------- 嵌固深度计算参数:
嵌固深度计算过程:
按《建筑基坑支护技术规程》 JGJ 120-2012单支点结构计算嵌固深度l d:
得到l d = 4.500m,l d采用值为:8.000m。