重庆大学材料力学答案..
- 格式:docx
- 大小:1.40 MB
- 文档页数:73
重庆大学工程材料试卷参考答案一、(20分)每小题4分合金:由两种或两种以上金属元素;或金属与非金属元素熔炼、烧结或通过其方法由化学键组合而成的具有金属特性的物质。
同素异晶转变:在固态下,同一种元素由一种晶体结构转变为另一种晶体结构的转变。
铁素体:碳溶解在α-Fe中形成的间隙固溶体。
再结晶:冷变形金属在加热时其组织和性能都恢复到变形前的软化状态的过程。
淬透性:一种热处理工艺性能,表示材料在淬火时获得淬硬层深度的能力。
二、(5分)三、(25分)1.(7分2.3.(每个图2分)四、(10分)1.答:淬火后组织为马氏体;(2分)退火后组织为珠光体。
(2分)2.200℃回火后为回火马氏体;(2分)400℃回火后为回火托氏体;(2分)600℃回火后为回火索氏体。
(2分)五、(20分)答:齿轮:20CrMnTi渗碳钢;C%=0.2%,Cr,Mn,Ti<1.5%;渗碳+淬火+低温回火;组织为回火马氏体。
(3分)连杆:40Cr调质钢;C%=0.4%,Cr<1.5%;调质处理(淬火+高温回火);组织为回火索氏体。
(2分)弹簧:65Mn弹簧钢;C%=0.65%,Mn<1.5%;淬火+中温回火;组织为回火托氏体。
(2分)冷冲压模具:Cr12MoV冷变形模具钢;C%>1%,Cr=12%,Mo,V<1.5%;淬火+低温回火;组织为回火马氏体。
(2分)滚动轴承:GCr15Mo轴承钢;C%=1%,Cr=1.5%,Mo<1.5%;球化退火+淬火+低温回火;组织为回火马氏体。
(2分)车刀:W6Mo5Cr4V2高速钢;W%=6%,Mo%=5%,Cr%=4%,V%=2%;淬火+560℃三次回火;组织为回火马氏体。
重庆大学材料力学考研题库材料力学是工程学科中的一个重要分支,它研究材料在外力作用下的力学行为和破坏规律。
以下是重庆大学材料力学考研题库的一些模拟题目,供同学们复习参考:# 材料力学考研题库一、选择题1. 材料力学中,下列哪一项不是材料的基本力学性质?A. 弹性B. 塑性C. 脆性D. 导电性2. 在拉伸试验中,材料达到屈服点后,其应力-应变曲线会出现:A. 线性关系B. 非线性关系C. 断裂D. 平台3. 根据材料力学的胡克定律,当材料受到正应力作用时,其应变与应力成正比,比例常数称为:A. 屈服强度B. 极限强度C. 弹性模量D. 泊松比二、简答题1. 简述材料力学中的弹性模量和剪切模量的区别及其物理意义。
2. 描述材料在拉伸过程中的四个主要阶段,并解释每个阶段的特点。
三、计算题1. 已知某材料的弹性模量为210 GPa,泊松比为0.3。
若对该材料施加100 MPa的正应力,请计算其相应的正应变。
2. 某构件在受到剪切力作用时,其截面上的剪应力分布不均匀。
若已知构件的剪切模量为80 GPa,截面尺寸为2m x 0.5m,求在剪切力为10 kN时,构件的最大剪应变。
四、论述题1. 论述材料的疲劳破坏机理,并举例说明如何通过设计来提高构件的疲劳寿命。
2. 分析材料在多轴应力状态下的破坏准则,并讨论其在工程应用中的重要性。
以上题目仅供参考,实际考试内容可能会有所不同。
希望同学们能够通过这些题目加深对材料力学概念的理解和应用能力,为考研做好充分的准备。
祝同学们考试顺利!。
绪论一、是非题1.1材料力学主要研究杆件受力后变形与破坏的规律。
()1.2内力只能是力。
()1.3若物体各点均无位移,则该物体必定无变形。
()1.4截面法是分析应力的基本方法。
()二、选择题1.5构件的强度是指(),刚度是指(),稳定性是指()A.在外力作用下构件抵抗变形的能力B.在外力作用下构件保持其原有的平衡状态的能力C.在外力作用下构件抵抗破坏的能力1.6根据均匀性假设,可认为构件的()在各点处相同。
A.应力B.应变C.材料的弹性常数D.位移1.7下列结论中正确的是()A.内力是应力的代数和B.应力是内力的平均值C.应力是内力的集度D.内力必大于应力参考答案:1.1 V 1.2 X 1.3 V 1.4 X 1.5 C,A,B 1.6 C 1.7 C轴向拉压、选择题1.等截面直杆CD位于两块夹板之间,如图示。
杆件与夹板间的摩擦力与杆件自重保持平衡。
设杆CD两侧的摩擦力沿轴线方向均匀分布,且两侧摩擦力的集度均为q,杆CD的横截面面积为A,质量密度为,试问下列结论中哪一个是正确的?(A)q = -gA;(B)杆内最大轴力F zmax =ql ;(C)杆内各横截面上的轴力F N = P ~~;——2(D)杆内各横截面上的轴力F N =0。
2.低碳钢试样拉伸时,横截面上的应力公式c -F N A适用于以下哪一种情况(A)只适用于二<c p; (B)只适用于二w :二e;(C)只适用于二w二s ;(D)在试样拉断前都适用。
3.在A和B两点连接绳索ACB,绳索上悬挂物重P,如图示。
点A和点B的距离保持不变,绳索的许用拉应力为[二]。
试问:当:-角取何值时,绳索的用料最省?(A) 0’ ;(B) 30’ ;(C) 45」; (D) 60」。
4.桁架如图示,载荷F可在横梁(刚性杆)DE上自由移动。
杆1和杆2的横截面面积均为A,许用应力均为[二](拉和压相同)。
求载荷F的许用值。
以下四种答案中哪一种是正确的?(A)(C)[匚]A ;5. 设受力在弹性范围内,问空心圆杆受轴向拉伸时,夕卜径与壁厚的下列四种变形关系中哪一种是正确的?(A)外径和壁厚都增大; (B)外径和壁厚都减小;(C)外径减小,壁厚增大;(D)外径增大,壁厚减小。
材料力学重庆大学智慧树知到答案2024年第一章测试1.变形固体的基本假设是()。
A:连续、均匀性假设和线性弹性假设; B:线性弹性假设和小变形假设; C:连续、均匀性假设和各向同性假设; D:各向同性假设、小变形假设和线性弹性假设。
答案:C2.要使构件安全、正常地工作,必须满足()。
A:稳定性要求 B:强度要求、刚度要求、稳定性要求 C:强度要求 D:强度要求和稳定性要求答案:B第二章测试1.应力是指截面上每点处单位面积内的分布内力,即内力集度。
()A:错 B:对答案:B2.构件中不同点处的线应变及切应变一般是不同的,而且线应变与正应力相对应,切应变与切应力相对应。
()A:错 B:对答案:B3.等直杆发生拉(压)变形时,横截面上各点既有正应力,又有切应力。
()A:错 B:对答案:A4.等直杆受力如图,该杆的轴力最大值为()。
A:2kN B:4kN C:5kN D:3kN 答案:D5.等直杆受力如图,其上端截面的轴力为()。
A:F+ql B:-F+ql C:F D:ql答案:B第三章测试1.等直杆受力如图,该杆的扭矩最大值为()。
A:6kN.m B:2kN.m C:4kN.m D:8kN.m答案:C2.等截面圆轴配置四个皮带轮,各轮传递的力偶的力偶矩如图所示。
从抗扭的角度如何改变四个轮之间的相对位置,轴的受力最合理的是()。
A:将B轮与C轮对调 B:将B轮与D轮对调, 然后再将B轮与C轮对调 C:将C轮与D轮对调 D:将B轮与D轮对调答案:C3.内外径之比为α的空心圆轴,扭转时轴内的最大切应力为τ,这时横截面上内圆周上各点的切应力为()。
A:τ B:零C:ατ D:答案:C4.一圆轴用普通碳素钢制成,受扭后发现单位长度扭转角超过了许用值,为提高刚度拟采用的合理措施是()A:用铸铁代替 B:改为优质合金钢 C:减少轴的长度 D:增大轴的直径答案:D5.下述结论中,正确的是()A:若物体内各点的应变均为零, 则物体无位移 B:应变分为线应变和切应变, 其量纲为长度 C:若物体的各部分均无变形, 则物体内各点的应变为零 D:受拉杆件全杆的轴向伸长,标志着杆件内各点的变形程度答案:C第四章测试1.悬臂梁受力如图,以下说法正确的是()。
重庆大学材料力学(64学时类)课程试题(A)说明:开卷考试,可本人携带、但不得相互借用计算机和任何参考书一、简答(每没题5分,共40分)1、三根材料相同的圆杆,受到高度相等、重量相同的自由落体冲击,如果不考虑应力集中因素,哪一杆中的最大动应力σd最小?解:∵Δ(a)st >Δ(b)st>Δ(c)stk(a)d< k(b)d< k(c)d∴σ(a)d最小2、有一构件内某一点处的交变应力随时间变化的曲线如图,则该交点应变力的循环特征、最大应力、最小应力和平均应力分别是多少?解:r=1/2,σmin =-50MPa,σm=25MPa3、材料力学用到了哪些假设或模型?枚举两例、扼要解释之。
解:梁在纯弯曲时的平面假设,梁的纵向纤维间无挤压应力的假设等。
4、画出高碳钢静态拉力试验得到的应力应变曲线。
要表示出E和σ0.2,并说明其意义。
解:E=tgα,σ0.2名义屈服极限,将产生0.2%塑性应变的应力作为名义屈服极限σ0.25、直径和长度相同但材料的剪切模量不同的轴,在相同扭矩作用下最大切应力和扭转角是否相同?为什么?解:最大切应力τmax相同,最大扭转角φmax 不同; τmax=T/wt, φmax=T l/GIP6、对于均匀材料,什么情况下用T形截面梁是合理的?为什么?解:材料力学的抗拉能力与抗压能力不相同十采用T形截面梁。
7、试指出下列概念的区别:纯弯曲与平面弯曲;中性轴与形心轴;截面的抗弯刚度和抗弯模数。
解:略8、试从研究内容、目的合方法三方面叙述你对材料力学的认识。
解:略二、(10分)图示简易的承重架,P=60kN。
AC模型为刚性直杆。
试由抗拉强度确定受拉板条BC的截面积,由剪切强度确定铰B和C处销钉的直径。
已知板条BC的抗拉许用应力[σ]=100MPa,,销钉材料的许用剪应力[τ]=50MPa。
解:1、计算BC杆的横截面积Asinα=,设BC杆的轴力为N,由有平衡方程,解得: N= , p=60kN,2、计算B、C处销钉直径d1及d2.销钉BQ1 Q22、销钉C三、(10分)等截面实心传动轴的转速为n=191r/min,轮A为主动轮,输入功率为N A=8kW,轮B、C和D为从动轮。
一、单项选择题(每题只有一个正确答案。
每小题3分,共21分)。
1、建立平面弯曲的正应力公式ZM yI σ⋅=时,“平截面假设”起到的作用有下列四种答案:(A) “平截面假设”给出了横截面上内力与应力的关系AM ydA σ=⎰;(B) “平截面假设”给出了梁弯曲时的变形规律; (C) “平截面假设”使物理方程得到简化; (D) “平截面假设”是建立胡克定律的基础。
正确答案是:2、非对称的薄壁截面梁受横向外力作用时,若要求梁只产生平面弯曲而不发生扭转,则横向外力作用的条件有四个答案:(A )作用面与形心主惯性面重合; (B) 作用面与形心主惯性面平行; (C) 通过弯曲中心的任意平面;(D) 通过弯曲中心,且平行于主惯性平面。
正确答案是:3、梁AB 的杆端约束分别如图示三种情况,它们所承受的自由落体冲击荷载相同,关于其动应力的下列结论中:(A) (a)>(b)>(c); (B) (b)>(a)>(c); (C) (c)>(b)>(a); (D) (a)=(b)>(c)。
正确答案是: 4、图示等截面圆轴装有四个皮带轮,如何安排合理,下面四种答案中:(A) 将C 轮与D 轮对调; (B) 将B 轮与D 轮对调; (C) 将B 轮与C 轮对调;(D) 将B 轮与D 轮对调,然后再将B 轮与C 轮对调。
正确答案是:第1页共4页5、已知简支梁的跨度为L, EI 为常数, 挠曲线方程为EIx lx l qx y 24)2(323+-=,则梁的下列弯矩图图中:正确答案是: 6、图中y 、z 轴为形心主惯性轴,y 1、z 1轴为图形形心主轴的平行轴,下列论述中: (A ) 截面对距形心愈远的轴惯性矩愈小;(B ) y 1和z 1轴为一对主惯性轴; (C ) y 1和z 轴为一对主惯性轴;(D ) 特殊情况下,惯性积不为零的一对轴也定义为主惯性轴。
正确答案是:7同一根简支梁在图示两种状态下的变形分别如图示, 则状态2下B 截面的挠度为( ). (A) 7mm ; (B) 6mm ; (C) 5mm ; (D) 2mm .二、填空题(每小题3分,共27分)。
重庆大学
土木工程考研笔记
材
料
力
学
复
习
题
及
答
案
赠言:
朋友,如果你不满于现状,希望突破自己,在考研中考的高分,增加入学时拿的奖学金的机率,未来在本专业取得较高的成就;如果你希望打开认知视野,在更高的山间俯瞰这个世界,本资料必将助你一臂之力。
关于付费,原因很简单,免费是找不出对得起你时间的好资料,毕竟在这个时代,个人时间比钱值钱的多;于是乎,我大胆倡议,在你寻求考研资料时,请不要用逛市场、花费买菜的心态,因为你用个人时间需找资料时,你的竞争对手正在学习这本资料;相关,如果你觉得我的考研复习资料对得起你宝贵的时间,对得起你“投资考研”这四个字,就即刻下载吧,那便是对认知二字以及对我分享本考研干货的最大认可与褒奖。
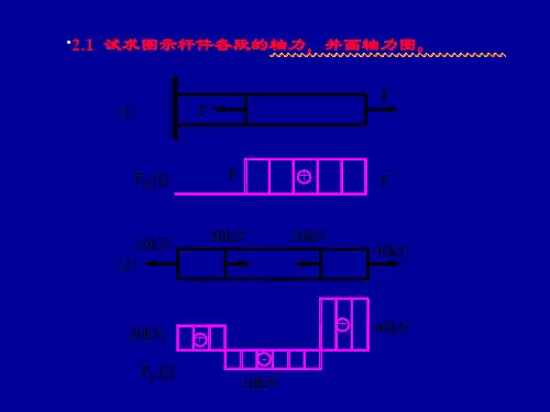
重庆大学材料力学答案题图所示中段开槽的杆件,两端受轴向载荷P 的作用,试计算截面1-1和2-2上的应力。
已知:P = 140kN ,b = 200mm ,b 0 = 100mm ,t = 4mm 。
题图解:(1) 计算杆的轴力 (2) 计算横截面的面积 (3) 计算正应力(注:本题的目的是说明在一段轴力相同的杆件内,横截面面积小的截面为该段的危险截面)横截面面积A=2cm 2的杆受轴向拉伸,力P=10kN ,求其法线与轴向成30°的及45°斜截面上的应力ασ及ατ,并问m ax τ发生在哪一个截面? 解:(1) 计算杆的轴力(2) 计算横截面上的正应力 (3) 计算斜截面上的应力(4) m ax τ发生的截面 ∵0)2cos(==ασαταd d 取得极值 ∴ 0)2cos(=α 因此:22πα=, ο454==πα故:m ax τ发生在其法线与轴向成45°的截面上。
(注:本题的结果告诉我们,如果拉压杆处横截面的正应力,就可以计算该处任意方向截面的正应力和剪应力。
对于拉压杆而言,最大剪应力发生在其法线与轴向成45°的截面上,最大正应力发生在横截面上,横截面上剪应力为零)题图所示阶梯直杆AC ,P =10kN ,l 1=l 2=400mm ,A 1=2A 2=100mm 2,E =200GPa 。
试计算杆AC 的轴向变形Δl 。
题图解:(1) 计算直杆各段的轴力及画轴力图 kN 101==P N (拉) kN 102-=-=P N (压)(2) 计算直杆各段的轴向变形mm 2.010010002004001000101111=⨯⨯⨯⨯==∆EA l N l (伸长)mm 4.05010002004001000102222-=⨯⨯⨯⨯-==∆EA l N l (缩短) (3) 直杆AC 的轴向变形m m 2.021-=∆+∆=∆l l l (缩短)(注:本题的结果告诉我们,直杆总的轴向变形等于各段轴向变形的代数和)题图所示结构,各杆抗拉(压)刚度EA 相同,试求节点A 的水平和垂直位移。
重庆大学材料力学答案2.9 题图2.9所示中段开槽的杆件,两端受轴向载荷P 的作用,试计算截面1-1和2-2上的应力。
已知:P = 140kN ,b = 200mm ,b 0 = 100mm ,t = 4mm 。
题图2.9解:(1) 计算杆的轴力 kN 14021===P N N (2) 计算横截面的面积21mm 8004200=⨯=⨯=t b A202mm 4004)100200()(=⨯-=⨯-=t b b A (3) 计算正应力MPa 1758001000140111=⨯==A N σ MPa 3504001000140222=⨯==A N σ (注:本题的目的是说明在一段轴力相同的杆件内,横截面面积小的截面为该段的危险截面)2.10 横截面面积A=2cm 2的杆受轴向拉伸,力P=10kN ,求其法线与轴向成30°的及45°斜截面上的应力ασ及ατ,并问max τ发生在哪一个截面? 解:(1) 计算杆的轴力kN 10==P N(2) 计算横截面上的正应力MPa 501002100010=⨯⨯==A N σ(3) 计算斜截面上的应力MPa 5.37235030cos 2230=⎪⎪⎭⎫ ⎝⎛⨯==σσMPa 6.2123250)302sin(230=⨯=⨯=στ MPa 25225045cos 2245=⎪⎪⎭⎫⎝⎛⨯== σσMPa 251250)452sin(245=⨯=⨯= στ(4) max τ发生的截面 ∵0)2c o s (==ασαταd d 取得极值 ∴ 0)2c o s (=α 因此:22πα=, 454==πα故:max τ发生在其法线与轴向成45°的截面上。
(注:本题的结果告诉我们,如果拉压杆处横截面的正应力,就可以计算该处任意方向截面的正应力和剪应力。
对于拉压杆而言,最大剪应力发生在其法线与轴向成45°的截面上,最大正应力发生在横截面上,横截面上剪应力为零)2.17 题图2.17所示阶梯直杆AC ,P =10kN ,l 1=l 2=400mm ,A 1=2A 2=100mm 2,E =200GPa 。
工程力学(一)参考资料一、单项选择题(本大题共 0 分,共 80 小题,每小题 0 分)1.如图所示,一绞盘有三个等长的柄,长为 L,相互夹角为120°,各柄柄端作用有与轴线垂直的力 P,将该力系向 BC 连线的中点 D 简化,其结果为( B)。
=3PLA.R=P,MDB.R=0,M=3PLD=3PLC.R=2P,MDD.R=0,M=2PLD2.四本相同的书,每本重 P,设属于书间的摩擦因数是 0.1,书与手间摩擦因数为 0.25,欲将四本书一起提起,则两侧应加的力 F 至少大于(D )。
A.1PB.4PC.8PD.10P3.如图所示的力三角形中,表示力 F1 和力 F2 和合力 R 的图形是(C )。
A.图1B.图2C.图3D.图44.如图所示某种材料的σ-ε曲线,若在 k 点时将荷载慢慢卸掉,则σ-ε曲线将沿着与 Oa 平行的直线 kA 回落到 A 点,从图可以看出( B)。
A.OA 段是弹性变形,AB 段是塑性变形B.OA 段是塑性变形,AB 段是弹性变形C.如果在重新加载,σ-ε曲线将沿着 Oa 上升到 k 点D.如果在重新加载,σ-ε曲线将沿着 Bk 上升到 k 点5.图示简支梁,已知 C 点的挠度为 y,在其他条件不变的情况下,若将荷载 F 增大一倍,则 C 点的挠度为( C)。
A. 0.5y;B.y;C.2y;D.4y。
6.简支梁受力如图,下列说法正确的是(B )。
A.1-1 截面的弯矩为零,3-3 截面的弯矩为零;B.1-1 截面的弯矩为-12kN.m,3-3 截面的弯矩为零;C.1-1 截面的弯矩为 12kN.m,3-3 截面的弯矩为零;D.3-3 截面的弯矩不为零;7.图示悬臂梁拟用(a)(b)两种方式搁置,则两种情况下的最大应力(σmax)a/(σmax)b 为之比为(A )。
A. 1/4B. 1/16C. 1/64D. 48. 冲床如图所示,若要在厚度为δ的钢板上冲出直径为 d 的圆孔,则冲头的冲压力 F 必须不小于(D )。
重庆大学2021年考研材料力学真题一、单项选择题(每题只有一个正确答案。
每小题3分,共21分)。
1、建立平面弯曲的正应力公式??m?yiz时,“平截面假设”起到的作用有下列四种答案:(a)“平面截面假设”给出了截面上的内力和应力之间的关系,M?(b)“平面截面假设”给出了梁弯曲的变形规律;(c)“平面截面假设”简化了物理方程;(d)“平面截面假设”是建立胡克定律的基础。
??yda;A正确答案是:2。
当非对称薄壁截面梁承受横向外力时,如果要求梁产生平面弯曲而不产生扭转,则横向外力条件有四个答案:(a)作用面与形心主惯性面重合;(b)作用面与形心主惯性面平行;(c)通过弯曲中心的任意平面;(d)通过弯曲中心并平行于主惯性面。
正确答案是:3、梁ab的杆端约束分别如图示三种情况,它们所承受的自由落体冲击荷载相同,关于其动应力的下列结论中:phpakkhaeicbaeicbeicbk(a)(a)>(b)>(c);(b)(b)>(a)>(c);(c)(c)>(b)>(a);(d)(a)=(b)>(c)。
正确答案是:4。
图中所示的等截面圆轴配有四个滑轮。
在以下四个答案中,如何合理安排它们:(a)将c轮与d轮对调;(b)将b轮与d轮对调;(c)将b轮与c轮对调;(d)将车轮B与车轮d互换,然后将车轮B与车轮C互换。
正确答案是:第1页,共4页qx(l3?2lx2?x3)5、已知简支梁的跨度为l,ei为常数,挠曲线方程为y?,则梁的下列弯矩图图中:24ei正确答案是:6、图中y、z轴为形心主惯性轴,y1、z1轴为图形形心主轴的平行轴,下列论述中:(a)截面对距形心愈远的轴惯性矩愈小;(b) Y1和Z1轴是一对主惯性轴;(c) Y1和Z轴是一对主惯性轴;(d)特殊情况下,惯性积不为零的一对轴也定义为主惯性轴。
正确答案是:y1yc(a)(b)(c)(d)z1z7同一根简支梁在图示两种状态下的变形分别如图示,则状态2下b 截面的挠度为().(a)7mm;(b)6mm;(c)5mm;(d)2mm.AA10KNC5KNBAC1KNB0。
1.不属于材料力学的基本假设的有A. 连续性B. 均匀性C. 各向同性D. 各向异性2.材料力学研究的研究对象是A. 大变形B 厚板C 杆系,简单板,壳复杂杆系B. 厚板C. 杆系,简单板,壳D. 复杂杆系3.从哪方面来衡量承载能力A.构件具有足够的强度B.构件具有足够的刚度C.构件具有足够的稳定性D.ABC4.柱体受偏心压缩时,下列结论中错误的是A.若集中力P作用点位于截面核心内部,则柱体内不产生拉应力。
B.若集中力P位于截面核心的边缘上,则柱体内部不产生拉应力C.若集中力P的作用点位于截面核心的外部,则柱体内可能产生拉应力D.若集中力P的作用点位于截面核心外部,则柱体内必产生拉应力5.以下说法不正确的是A.外力按其作用方式可分为体积力和表面力B.按是否随时间变化将载荷分为静载荷和动载荷C.动载荷可分为交变载荷和冲击载荷D.在动静载荷中材料的机械性能一样6.以下不属于截面法的步骤的是A.取要计算的部分及其设想截面B.用截面的内力来代替两部分的作用力C.建立静力平衡方程式并求解内力D.考虑外力并建立力平衡方程式7.下列结论中哪些是正确的(1)应变分为线应变和角应变(2)应变为无量纲量(3)若物体的各部分均无边形,则物体内各点的应变均为0(4)若物体的各点的应变均为0,则物体无变形A.(1)(2)B.(3) (4)C.(1)(2)(3)D.全对8.柱体受偏心压缩时,下列结论正确的是A.若压力作用点全部位于截面核心内部,则中性轴穿越柱体横截面B.若压力作用点位于截面核心的边缘上,则中性轴必与横截面边缘相切C.若压力作用点位于截面核心的外部,则中性轴必与横截面的外部D.若压力作用点位于截面核心越远,则中性轴的位置离横截面越远9.下列结论中哪些是正确的?(1)平面图形的惯性矩和惯性积的量纲为长度的四次方(2)惯性矩和惯性积不可能为负值(3)一个平面图形的惯性矩不可能为零(4)惯性积有可能为零A.(1)(2)(3)B.(2)(3)(4)C.(1)(2)(4)D.(1)(3)(4)10.对于某个平面图形,下列结论中哪些是正确的(1)有可能不存在形心主轴(2)不可能没有形心主轴(3)只能有一对互相垂直的形心主轴(4)有可能存在无限多对形心主轴A.(1)(3)B.(1)(4)C.(2)(3)D.(2)(4)11.以下说法正确的是A.对连接件应该作挤压的强度校核B.受挤压面积不是按接触情况定的C.键连接中接触面积不一定是平面D.连接件只发生剪切破坏12.脆性材料的破坏断口与轴线成的角度为A.30度B.45度C.60度D.90度13.剪应力公式τ=Q/A的应用条件是A.平面假设B.剪应力在剪切面上均匀分布假设C.剪切面积很小D.无正应力的面上14.按作用方式的不同将梁上载荷分为A.集中载荷B.集中力偶C.分布载荷D.ABC15.梁的支座一般可简化为A.固定端B.固定铰支座C.可动铰支座D.ABC16.纵横弯曲是( )和( )共同作用的A. 横向力和压力B. 轴向力和压力C. 横向力和轴向力D. 没有此提法17.将一个实心钢球在外部迅速加热升温,这时在求心处的单元体出于怎么样的状态?A.单向拉伸B.单向压缩C.各向等拉D.各向等压18.铸铁试件在扭转时,若发生破坏,其破坏截面是A.沿横截面B.沿与杆轴线成45度的斜截面C.沿纵截面D.沿与杆轴线成60度的斜截面19.两根直径相同长度及材料不同的圆轴,在相同扭矩作用下,其最大剪应力和单位扭转角之间的关系是A.最大剪应力相同,单位扭转角不同B.最大剪应力相同,单位扭转角相同C.最大剪应力不同,单位扭转角不同D.最大剪应力不同,单位扭转角相同20.矩形截面杆件在自由扭转时,其最大剪应力发生在A.矩形短边中点B.矩形长边中点C.矩形角点D.形心处21.直径为d的圆截面拉伸试件,其标距是A.试件两端面之间的距离B.试件中段等截面部分的长度C.在试件中段的等截面部分中选取的“工作段”的长度,其值为5d或10dD.在试件中段的等截面部分中选取的“工作段”的长度,其值应大于10d22.下列结论正确的是(1)轴力是轴向拉压杆件横截面上唯一的内力(2)轴力必垂直于杆件的横截面(3)非轴向拉(压)的杆件,横截面上无轴力(4)轴力作用线必通过杆件横截面的形心A.(1)(3)B.(2)(3)C.(1)(2)(4)D.全对23.轴向拉伸的应力公式在什么条件下不适用A.杆件不是等截面直杆B.杆件各横截面的内力不仅有轴力,还有弯矩C.杆件各横截面上的轴力不相同D.作用于杆件的每一个外力,其作用线不全与杆件轴线相重合24.两杆的长度和横截面面积均不同,其中一根为钢杆,另一根为铝杆,受相同的拉力作用。
重庆大学材料力学答案2.9题图2.9所示中段开槽的杆件,两端受轴向载荷 P 的作用,试计算截面1-1 和 2-2上的应力。
已知:P = 140kN , b = 200mm , b 0 = 100mm , t = 4mm 。
1 2题图2.9N “ = N 2 二 P =140 kN 计算横截面的面积2A 2 = (b - b 0) t = (200 -100) 4 = 400 mm计算正应力山=迴型=175 MPaA 1800血=140 100°=350 MPaA 2400(注:本题的目的是说明在一段轴力相同的杆件内,横截面面积小的截面为该段 的危险截面)2.10横截面面积A=2cm 2的杆受轴向拉伸,力P=10kN ,求其法线与轴向成30° 的及45 计算杆的轴力 N =P =10 kN计算横截面上的正应力N 10汉1000 “ w50 MPaA 2 100计算斜截面上的应力子 2=37.5 Mpa2二 3030 =50解:⑴ 计算杆的轴力A i = b t = 200 4 = 8002mm斜截面上的应力一.及■-.,并问pax 发生在哪一个截面?解:⑴2 。
(42f二45 - cos 45 二50=25 MPacr . ©50-45 sin(2 45 ) 1 = 25 MPa2 2⑷• max发生的截面d .c o 2() =0取得极值d:c o S?( ) = 0JI二一二454故:rax发生在其法线与轴向成45°的截面上。
(注:本题的结果告诉我们,如果拉压杆处横截面的正应力,就可以计算该处任意方向截面的正应力和剪应力。
对于拉压杆而言,最大剪应力发生在其法线与轴向成45°的截面上,最大正应力发生在横截面上,横截面上剪应力为零)2 2.17 题图2.17 所示阶梯直杆AC, P=10kN, l1=l2=400mm, A1=2A2=100mm , E=200GPa=试计算杆AC的轴向变形△ I。
A AB题图2.17解:(1)计算直杆各段的轴力及画轴力图2PN^ P =10 kN (拉) N2一P 二-10 kN (压)ta kNTTrn屮i ii11(2)计算直杆各段的轴向变形N il i EA110 1000 400200 1000 100二0.2 mm (伸长)焰「10 1000 400「0.4 mmEA2200 1000 50(缩短)⑶直杆AC的轴向变形.:1 =人12二-0.2 mm (缩短)(注:本题的结果告诉我们,直杆总的轴向变形等于各段轴向变形的代数和)2.20题图2.20所示结构,各杆抗拉(压)刚度EA相同,试求节点A的水平和垂直位移。
题图2.20(a)解:(1)计算各杆的轴力以A点为研究对象,如右图所示,由平衡方程可得'二X = 0,N 2 = P (拉)、Y = 0,N1 =0(2) 计算各杆的变形:h =0如N2I2 Pl/cos45= <2PlI 2EA EA EA(3)计算A点位移(b)A也 I 2 2PI=X A =cos45 EA制A(b )解:(1)计算各杆的轴力以A 点为研究对象,如右图所示,由平衡方程可得Ai P瓦 X =0 , N i = V2P (拉)? ---- -------- ►X送 Y = 0, N 2 =—P(压)zJ(2)计算各杆的变形_ N 1I 1 _ 2P 、2a _ 2PaEA EA EA(3) 计算A 点位移=li(伸长) N 2I 2EAP a _ Pa EA 一 EA(缩短)PaEA[注:①本题计算是基于小变形假设(材料力学的理论和方法都是基于这个假设), 在此假设下,所有杆件的力和变形都是沿未变形的方向。
②计算位移的关键是以切线代弧线。
)2.15如题图2.15所示桁架,a=30 °,在A点受载荷P = 350kN,杆AB由两根槽钢构成,杆AC由一根工字钢构成,设钢的许用拉应力^tH 160 MPa,许用压应力[J] "00MPa。
试为两根杆选择型钢号码解:(1)计算杆的轴力:x^ AB CA 11丨2cos45津更=22 1)更EA EA EAZl/题图2.15以A点为研究对象,如上图所示,由平衡方程可得' X =0, N2cos;;-M cos: =0' Y = 0, N1 sin :亠N2 sin : - P = 0••• N j = P = 350 kN (拉)N2二N“ =350 kN (压)(2)计算横截面的面积根据强度条件:二max = D乞[二],有A2几_旦=350 1000=2187.5 mm2,A _ 1093.75 mm2[G] 160(3)选择型钢通过查表,杆AB为No.10槽钢,杆BC为No.20a工字钢。
(注:本题说明,对于某些材料,也许它的拉、压许用应力是不同的,需要根据杆的拉、压状态,使用相应得许用应力)2.25题图2.25所示结构,AB为刚体,载荷P可在其上任意移动。
试求使CD杆Mc]350 10001002=3500 mm重量最轻时,夹角a应取何值?题图2.25计算杆的轴力载荷P 在B 点时为最危险工况,如下图所示。
以刚性杆AB 为研究对象、M A=0, NCDsin : I - P 2I =02PN CD ——si no计算杆CD 横截面的面积 设杆CD 的许用应力为[㈡,由强度条件,有A N N CD2p[二][二][二]sin :设杆CD 的密度为,,则它的重量为W 小二-A CD 二-A -cosa [<r ]sin a cosa[cr ]cos2a从上式可知,当:-45时,杆CD 的重量 W 最小。
(注:本题需要注意的是:①载荷 P 在AB 上可以任意移动,取最危险的工作状 况(工况):② 杆的重量最轻,即体积最小。
)2.34题图2.34所示结构,AB 为刚性梁,1杆横截面面积A i =1cm 2, 2杆A 2=2cm 2, a=1m ,两杆的长度相同,E=200GPa,许用应力[c t ]=160MPa , [ c b ]=100MPa , 试确定许可载荷[P ]。
解:⑴ 2-P\题图2.34(1)计算杆的轴力以刚性杆AB 为研究对象,如下图所示。
' M A =0, N i a N 2 2a-p 3a = 0即:N 1 2N 2 =3P(1)■a■ 2 wa.、j 53La,cr 11 Ai[1fc D1PB77777解: 该问题为一次静不定,需要补充一个方程。
2A l i =△ I (3)计算杆的变形⑵N i a EA 1 ;代入式(2)得:2N i a Za EA 一 EA 2(4) 计算载荷与内力之间关系 由式(1)和(3),解得:(5)计算许可载荷如果由许用压应力[(7 b ]决定许可载荷,有: R]=八3:八2小1]=八3:乓[6] A W (A 4A)[6]3A i 3 A| 31(100 4 200) 100 =30000 (N)=30 (kN)如果由许用拉应力[7 t ]决定许可载荷,有:[R ]=人6:血屮2]=几6:人2[「] A 2 W (A 4人)[「]6A 2 6人 61(100 4 200) 160 = 24000 (N) = 24 (kN) 6比较两个许可载荷,取较小的值,即[P ]二 min 血],旧],24 (kN )(注:本题需要比较由杆1和杆2决定的许可载荷,取较小的一个值, 构中,最薄弱的部位决定整个结构的许可载荷。
)2.42题图2.42所示正方形结构,四周边用铝杆(E a =70GPa, a =21.6X 10-6 C -1); 对角线是钢丝(E s =70GPa, a =21.6 X 10-6 C -1),铝杆和钢丝的横截面面积之比为 2:1。
若温度升高△ T=45C 时,试求钢丝内的应力。
N 2a瓦A 4A 2 3A ,N iA 1 4A 2 6A 2N 2即整个结 A 1 A2(1)利用对称条件对结构进行简化解:示,(3)变形协调关系如上图所示,铝杆与钢丝的变形协调关系为:」s h :2」a铝杆的伸长量为:由①②③④式,可解得:(4)计算钢丝的应力李竺窪氓2停伏2、2 70 103200 1033.8题图3.8所示夹剪,销钉B 的直径d=5mm,销钉与被剪钢丝的材料相同,剪切 极限应力-u =200Mpa ,销钉的安全系数n=4,试求在C 处能剪断多大直径的钢丝。
J钢丝的伸长量为: (设钢丝的截面积为竺冷("IE s A sE s A>N a l aE a A a1—(2 T a lN a l)E a AN s2 2E a E s 2、2E a E s(:a-:s)=T A N s 2 2E a E s(J — -------- =_ ________A ^2E a E s-11.7 10冷 45 = 443 (MPa)解:设B,C 两点受力分别为F i , F 2 剪切许用应力为:丨」- u =50Mpan对B 点,有力矩和为零可知:v M B =0,即:Fi =4P 由力平衡知:F i +P=F 2其中:F2 =「A=12.5 二 d 2故: 2F i =10 二 d 又由强度要求可知:u <onn 匚34—二 u3.11车床的转动光杆装有安全联轴器,当超过一定载荷时,安全销即被剪断。
已 知安全销的平均直径为 5mm ,其剪切强度极限b =370Mpa ,求安全联轴器所能 传递的力偶矩m.即:d<F i=.5 =2.24mm1—才一解:设安全销承受的最大力为,贝U: F = b 丄二d 24那么安全联轴器所能传递的力偶矩为: m = F D 其中 b =370Mpa ,b=5mm ,D=20mm , 代入数据得:力偶矩 m=145.2N m4.7求题图4.7中各个图形对形心轴z 的惯性矩I z轴套筒安全栓光杆—-——=7-工。
一 +z -H Z一 一&更1.9舟If *单邑+CXI LOIF O CXII-OCXI L X O CXI•o®=e IW卜9•卜 80HEUJ08X OCXIX寸 寸CXILOI CXIIXO O8.E ECXI L• o ffi 1^( L )--------- 120 ----------- J ⑵3 3对完整的矩形:I召=匹=120 2°° =8000cm4Z1 12 12对两个圆:fn D4 2 'I z =2 +a A11< 64 丿f 4 \ =2^^ K 40+502辺兀乂202< 64丿=653.12cm4所以:4 l z=I Zl T z“ =7346.88cm4.9题图4.9所示薄圆环的平均半径为r,厚度为t (r_t).试证薄圆环对任意直径的惯性矩为I二二r3t,对圆心的极惯性矩I p = 2- r3t解:(1)设设圆心在原点,由于是圆环,故惯性矩对任意一直径相等,为:_(1 _0(4)其中 a =—64 D■:D(2r+t) 1⑵+t丿一= 8r2 2t28rt64■/ r - t… I =——X8r2工8rt =兀r t643由一知:极惯性矩I p = 2 I = 2 r t所以:I = JT——X645.7 (1)用截面法分别求题图5.7所示各杆的截面1-1,2-2和3-3上的扭矩,并画出扭矩图的转向;(2)做图示各杆的扭矩图解:(1) m i = m2 =-2 kN m,m3=3 kN m扭矩图(2) T i =-20 kN m, T2 =-10kN m , T3=20kN mYAS5.11 一阶梯形圆轴如题图5.11所示。