连续梁0号块支架简算
- 格式:doc
- 大小:841.00 KB
- 文档页数:12
连续梁桥0号块托架设计模板与支架计算1、荷载取值静载:静载主要为梁段混凝土和钢筋自重,以及模板支架重量活载:施工荷载将截面分成如所示根据规范要求,在箱梁自重上添加荷载⑴、砼单位体积重量:26.5 kN/ m3⑵、倾倒砼产生的荷载:4.0 kN/ m2⑶、振捣砼产生的荷载:2.0 kN/ m2⑷、模板及支架产生的荷载:2.0 kN/ m2⑸、施工人员及施工机具运输或堆放荷载:2.5 kN/ m2荷载系数:⑴、钢筋砼自重:1.2 ;⑵、模板及支架自重:1.2 ;⑶、施工人员及施工机具运输或堆放荷载:1.4 ;⑷、倾倒砼产生的竖向荷载:1.4 ;⑸、振捣砼产生的竖向荷载:1.4 ;⑹、倾倒砼产生的水平荷载:1.4 ;⑺、振捣砼产生的水平荷载:1.4 ;作用在面板顺桥向1m长,横桥向1m宽的面荷载: 计算截面区域划分2、模板验算模板宽度取1m计算,作用在底模板上每m宽的均布荷载为:翼缘荷载:Q=1.2 X (29.495/3.55+2)+1.4 X (2.5+4.0+2.0)=24.27 kN/m腹板荷载:C2=1.2 X (82.865/0.5+2)+1.4 X (2.5+4.0+2.0)=213.176kN/m底板荷载:Q 3=1.2 X (128.26/4.375+2)+1.4 X (2.5+4.0+2.0)=49.48 kN/m 2.1、底板底模板验算外部模板均采用高强度竹胶板板厚15mm,各部位下模板均按三跨连续梁结 构计算。
取方木间距为0.3m 。
按三跨连续梁计算,竹胶板力学参数:h=0.015m ;I=bh 3/12=1 X 0.0153/12=2.81 X 10-7 m ; A=bh=1X 0.015=0.015m 2 ; E=9.5 X 103 MpaW=bh/6=1 X 0.0152/6=3.75 X 10-5 m 3; EA=9.5X 103X 106X 0.015=1.425 X 108; EI=9.5 X 103X 106 X 2.81 X 10-7 =2669.5 ; P= Q 3=49.48KN/m ;建立力学模型:49.48 49.48 49.48 J v 11MI j 111111J i J 111111 j 11K I 111111 J r结构弯矩图:Mn ax =0.45kN -m弯矩正应力(T =M/W=0.45X 103 /(3.75 X 1O 5)=12MPa<[c w ]=13 MPa-0.45-0.45 -0.45-0.45./ K J0 2「呑3⑴(30.362.2、底板底模板验算外部模板均采用高强度竹胶板板厚15mm,各部位下模板均按三跨连续梁结 构计算。
附件2中铁二局龙厦铁路LX-Ⅲ标段下东山特大桥(32+48+32)m连续梁0#块现浇托架设计计算书设计:复核:审核:中铁二局龙厦铁路LX-Ⅲ标工程指挥部第二项目部二OO八年一月二十日附件2下东山特大桥(32+48+32)m连续梁0#块托架计算书目录一、计算资料 (1)1.1工程概况 (1)1.20#段现浇支架方案 (1)1.3材料参数 (1)二、模板系统受力检算 (2)2.1计算荷载 (2)2.2底模验算 (2)2.3底模背肋验算(10*10方木) (3)三、托架系统受力检算 (4)3.1I20A工字钢验算 (4)3.22I32A工字钢横梁验算 (6)3.2三角托架验算 (8)3.3预埋件验算 (13)四、参考文献 (15)下东山特大桥(32+48+32)m连续梁0#块托架计算书一、计算资料1.1工程概况下东山特大桥4#-7#、47#-50#梁部为(32+48+32)m连续梁,设计采用挂篮悬臂灌注施工。
梁体为单箱单室、变高度、变截面结构,箱梁顶宽13m,底宽5.56m,顶板厚度43-60cm,底板厚度30-110cm,腹板厚度40-70cm,局部加宽至95㎝,中心梁高由3.4m渐变到2.8m。
连续梁0#段长8m,中心梁高3.4m,梁顶宽13m,梁底宽5.56m,顶板厚43㎝;腹板厚70-95㎝;底板厚60㎝~110㎝,支点处设有1个横隔板,横隔板厚1.6m。
这两联连续梁主墩桥墩为圆端形实心墩,墩高分别为:5#墩高26.5m,6#墩高34.5m;,48#、49#墩高36m。
1.2 0#段现浇支架方案由于这两联连续梁主墩都比较高,故0#段支架拟采用托架方案。
托架采用三角托架形式,纵梁采用2I28a工字钢,斜撑为2[25a槽钢,根部焊接在墩身上的预埋钢板上。
托架纵梁上利用挂篮底横梁(2I32工字钢)作横向分配梁,横梁与托架纵梁间设砂筒,用来调整、卸落底模系统。
横梁上设I20a工字钢纵梁,I20a工字钢腹板下间距30cm,其余部位间距60cm,其上再布设间距为20cm的10×10cm肋木作底模肋木,底模板采用18mm优质胶合木板。
新灶桥(72.5+120+72.5)m连续梁0#段支架计算书一、计算资料1.1工程概况新灶桥(72.5+120+72.5)m连续梁对应墩号为8#-11#,设计采用挂篮悬臂灌注施工。
梁体为单箱单室、变高度、变截面结构,箱梁顶宽16m,底宽8m,顶板厚度28cm,腹板厚度50-70-90cm,底板厚度30-125.6cm,梁高由7.0m渐变到3.2m。
连续梁0#段长12m,中心梁高7.0m,顶板厚28㎝;腹板厚90㎝;底板厚73.34㎝~125.6㎝,支点处设有1个横隔板,横隔板厚2.5m。
0#段混凝土计划分两次浇注,第一次浇注底板及腹板上倒角处,第二次浇注顶板部分。
1.2 0#段支架现浇方案0#段支架拟采用托架方案,托架采用型钢搭设。
托架组成详见《0#块支架布置图》。
1、0#块模板组成0#块的模板由底模、芯模和外侧模组成,外侧模由专业厂家制作的定型钢模,其余模板均由胶合板和方木组成。
2、芯模托架芯模支撑由纵梁10×10cm方木,横梁(为利用挂篮芯模桁架)、φ48×3.5mm 无缝钢管支架(含顶、底托)组成。
3、外侧模托架外侧模托架由纵向[]25b工字钢利用悬臂端横梁支撑组成。
4、底模托架底模托架由纵向25b#工字钢、横梁32b双拼槽钢、直径530mm钢管支撑,56b双工字钢底横梁组成。
5、模板的卸落设备侧模采用14×14×28cm的三角钢卸落,芯模采用钢管顶托卸落,底模采用三角钢楔卸落。
1.3材料参数热轧普通型钢:[σ]=145Mpa,E=2.1×105MPa,[25b: A=39.91cm2,I x=3530.04cm4,W x=282.402cm3,31.39kg/m。
I25b: A=53.5cm2,I x=5283.96cm4,W x=422.72cm3,42kg/m。
I56b: A=146.45cm2,I x=68512.5cm4,W x=2446.69cm3,115kg/m。
目录1、计算依据 (1)2、托架概述 (1)3、荷载传递 (2)4、荷载取值 (2)4.1、恒载 (2)4.2、活载 (3)4.3、材料强度 (3)4.3.1、A3钢 (3)4.3.2、枋木 (3)4.3.3、焊缝强度 (3)5、横梁验算(枋木) (4)5.1、纵梁受力分析 (4)5.2、内力计算 (4)5.3、强度及刚度验算 (5)6、横梁验算(I20A) (5)6.1、横梁的受力分析 (5)6.2、内力计算 (6)6.3、强度及刚度验算 (7)7、三角形托架验算 (7)7.1、布置形式 (7)7.2、三角形托架挑梁(2I45A)工字钢计算 (8)7.2.1、受力分析 (8)7.2.2、内力计算 (8)7.2.3、强度及刚度验算 (9)8、三角形托架斜撑(2I32A)工字钢计算 (10)8.1、受力分析 (10)8.2、内力计算 (11)8.3、强度及刚度验算 (11)9、三角形托架斜撑(2I32A)工字钢连接焊缝计算 (12)9.1、B点焊缝检算: (12)9.2、C点焊缝检算: (12)10、计算结论 (13)跳蹬河大桥3#、4#墩0#块托架计算书—(52+88+52)m 连续梁1、计算依据1.1、《(52+88+52)m 连续梁设计图》1.2、《结构力学》 1.3、《材料力学》 1.4、《钢结构设计规范》 1.5、《建筑结构工程师手册》2、托架概述本托架工程搭设完成后,用于承受0#块荷载。
托架采用I45a 、I30a 、I20a 工字钢在墩帽及墩身预埋钢板上焊接三角托架支撑上部结构,上部采用I20a 工字钢作为横分配梁,再于横梁上搭设钢管支架和枋木桁架支撑0#块现浇模型。
支架布置简图如下,具体尺寸规格详见《0#块支托布置图》。
托架布置简图:托架侧面图中心纵剖立面图3、荷载传递荷载 枋木纵梁 工字钢横梁 三角托架 4、荷载取值根据箱梁的结构特点,箱梁的荷载全部由底板承受而验算支架的稳定性。
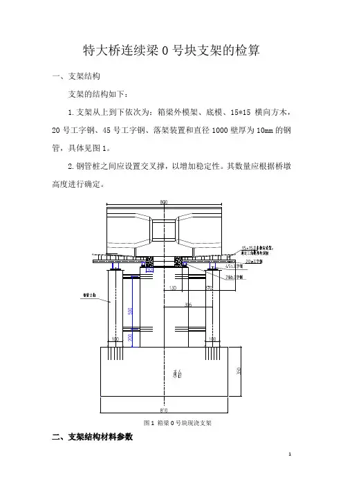
特大桥连续梁0号块支架的检算一、支架结构支架的结构如下:1.支架从上到下依次为:箱梁外模架、底模、15*15横向方木,20号工字钢、45号工字钢、落架装置和直径1000壁厚为10mm的钢管,具体见图1。
2.钢管桩之间应设置交叉撑,以增加稳定性。
其数量应根据桥墩高度进行确定。
图1 箱梁0号块现浇支架二、支架结构材料参数1、木材(A-2红杉木):顺纹弯应力[]13a MP σ=弯曲剪应力 [] 2.0a MP τ=弹性模量 410a E MP =2、Q235钢材:拉压应力[]140 1.3182a MP σ=⨯=弯曲应力 []145 1.3188.5a w MP σ=⨯= 剪应力 []85 1.3110.5a MP τ=⨯=弹性模量 52.110a E MP =⨯三、支架计算为保证支架结构的安全,用有限元程序对支架结构进行计算。
1.荷载(1)梁的自重荷载:计算时考虑混凝土的容重为2.6t/m^3。
根据箱梁的体积,得到梁体自重荷载,腹板取10.92 t/m^2,底板与顶板取2.82 t/m^2。
(2)支架荷载:支架结构的自重程序可自动考虑。
(3)施工人员、施工料具、运输荷载:22 2.5/m q KN =(4)水平模板的砼振捣荷载:232/m q KN =(5)倾倒砼产生荷载:242/m q KN =(6)模板荷载:25 1.5/m q KN =图2 连续梁典型段面2.计算模型根据支架图,要分别对15X15方木、腹板下工20(底板下工20因荷载小于腹板下,故不计算)、工45和钢管桩进行检算。
3.计算结果 (1)15X15方木考虑到腹板下方木支撑很多,只检算底板处,按跨度为80公分三跨连续梁检算。
正应力图,最大应力:2.4Mpa, 安全3382700546430剪应力图,最大应力:0.8Mpa, 安全位移图,最大0.13mm,满足要求(2)腹板下工20的检算正应力图,最大值108Mpa, 结构安全。
剪应力图,最大48Mpa, 结构安全。
神华新准铁路巴准线施工一标公涅尔盖沟大桥连续梁0#段现浇支架计算书中铁十一局集团新准铁路巴准线施工一标项目经理部二〇一一年七月公涅尔盖沟大桥(60m+100m+60m)连续梁施工0#段现浇支架计算书一、设计说明0号段为预应力钢筋混凝土结构,长12m,中支点处梁高7.2m,端部梁高4.2m,截面采用单箱单室直腹板形式。
顶板厚为70~36cm,腹板厚120~50cm,底板厚度根部为144~40cm,按照圆曲线变化,圆曲线半径R=309.6667m。
顶板宽度7.4m,底板宽度5.4m,两侧腹板与顶底板相交处均采用圆弧倒角过渡,悬壁下设置通长的滴水槽。
二、现浇支架方案根据现场实际情况,为确保高墩施工安全,大桥3#、4#墩采用在每个墩前后两侧各立1排ф609×16钢管,每排5根,为方便0号段施工完成后拆除底模及支撑,钢管支撑高度以0号段底(含底模及方木背杠)最低处与支架平台顶之间能容纳最小长度的碗扣支架(含顶托底托)。
钢管支撑架立完成后,向钢管内灌入施工细砂,并灌水密实,以减小钢管的自由高度,钢管支撑上部焊接靴顶。
根据现场材料充分利用的原则,现浇平台采用三层型钢搭设,首先在钢管靴顶纵向铺设梁2I32b工字钢与之采用电焊联结,上部顺桥向采用1排32Ib工字钢,顶面铺设20Ia工字钢作为施工平台。
详细见下图三、荷载分析及结构受力计算为确保0#段施工的安全性,对现浇支架需进行受力检算及稳定性分析。
1、混凝土荷载:0号段设计浇筑混凝土数量为300.4m3,混凝土单位重量按26KN/ m3计,合计总重7810.4KN。
其中墩顶中支点处长5.4m,混凝土数量为149.2 m3,重量为3796KN;伸出墩身部分每端长3.3m,混凝土数量各为75.6m3,重量为1965.6KN;根据0#段混凝土结构,支撑部位在腹板处压力最大,为更全面地计算受力,同时分析底板及翼板。
(1)腹板处压力:伸出段腹板厚度为0.9m,高度选取平均高度为6.95m,长度为3.3m。
青田县瓯江四桥(步行桥)工程跨瓯江连续梁挂篮悬浇施工方案0#块支架计算书计算:复核:审核:中铁四局集团有限公司青田县瓯江四桥(步行桥)工程项目经理部2016年11月10日目录1 编制依据........................................................... - 3 -2 方案简介........................................................... -3 -3 主要材料特性及参数................................................. - 5 -4 荷载计算........................................................... -5 -4.1 荷载类型...................................................... - 5 -4.2荷载组合....................................................... - 5 -4.3荷载计算....................................................... - 5 -5 0#块托架结构计算................................................... - 7 -5.1 计算模型及边界条件设置........................................ - 7 -5.2计算结果分析................................................... - 7 -5.2.1 纵向I25a工字钢纵梁分析 ............................... - 7 -5.2.2 横向双拼I45a工字钢横梁分析 ........................... - 8 -5.2.3 顺桥向牛腿分析 ........................................ - 9 -5.2.4 斜撑分析 ............................................. - 12 -5.2.5 管桩分析 ............................................. - 12 -5.2.6 整体变形分析 ......................................... - 15 -6 0#块内模、翼缘板支架计算.......................................... - 15 -6.1 内顶板、翼缘板底方木计算..................................... - 15 -6.2 侧模计算...................................................... - 18 -7 临时固结计算...................................................... - 20 -7.1 工况分析.......................................... 错误!未定义书签。
连续梁0#块、1#块托架受力计算连续梁托架计算书一、托架搭设托架设计应考虑托架强度、刚度、稳定性的验算,各项验算指标符合规范要求后按设计图进行托架搭设。
该连续梁0#块长度为8m ,1#块长3m ,由于该连续梁主墩高26m/28m ,故采用托架形式。
0#块、1#块托架采用I56作为支撑,浇筑主墩墩身时,预埋§20mm 钢板,作为I56焊接预埋件。
I56在加工场下料加工,现场焊接。
卸荷块采用[16双拼以[]方式焊接,主分配纵梁采用I40,顶部分配梁为槽16。
再在上方铺设底模板,墩顶底模采用竹胶板。
翼缘部分采用下横梁上支立脚手钢管。
脚手架架规格为Φ48×3.5mm ,脚手架横杆和立杆之间采用扣件连接。
二、0号块支架设计计算 2.1 竹胶板计算竹胶板厚度均为15mm ,l 为方木间距:底板为30cm ,腹板为15cm ,b 为单为长度,h =15mm 为竹胶板厚度,混凝土容重:26kN/m3。
①腹板抗弯计算:最大应力:22322M ql /8 5.3b 260.1510/8====10.3MPa W bh /6b 0.015/6σ δ=10.3MPa ≤fm=11MPa 满足要求腹板抗剪计算:最大剪应力: 3 1.032VMPa bhτ== 1.03 1.4MP v f a τ=≤=满足要求②底板板抗弯计算:最大应力:22322M ql /8 1.69b 260.210/8====5.9MPa W bh /6b 0.015/6σ δ=5.9MPa ≤fm=11MPa 满足要求底板抗剪计算:最大剪应力: 30.392VMPa bhτ== 0.39 1.4MP v f a τ=≤=满足要求2.2 方木计算底板方木为10×10纵向间距为30cm ;腹板方木为10×10纵向间距为15cm ;对应位置最大跨度为45 cm腹板对应位置一根方木承受的荷载(方木和竹胶板自重不计)为:0.1526 5.320.67KN /q m =??=弯矩: 220.670.45M 0.523KN.m 8?== 弯应力: 62M 0.523106==3.14MPa W 100100σ??=? 剪力: 20.670.45V==4.65KN 2剪应力:33V 3 4.6510=0.7MP 22100100a hb τ??==?? 底板对应位置一根方木承受的荷载(方木和竹胶板自重不计)为:0.326 1.6913.18KN /q m =??=弯矩: 213.180.45M 0.33KN.m 8?== 弯应力: 62M 0.33106==1.98MPa W 100100σ??=? 剪力: 13.180.45V==2.96KN 2剪应力:33V 3 2.9610=0.45MP 22100100a hb τ??==?? 按“木规”,木方弯曲设计强度fm=11MPa ,抗剪设计强度fv=1.3MPa (以上指标均按最低一级木材树种TB11取)。
炎陵至汝城(湘粤界)高速公路第二十五合同段K109+470沤江大桥9、10号墩0号块托架计算书一、设计规范及计算标准(一)、《钢结构设计规范》(GB5007-2003)(二)、《混凝土结构设计规范》(GB50010—2002)根据钢结构设计规范要求,Q235钢材抗拉强度设计值[σ]=215Mpa、抗剪强度设计值[τ]=125Mpa.受压构件容许长细比[Y]=150。
刚度要求:1/400角焊缝强度设计值wf=160Mpa。
r二、计算模型使用有限元分析软件sap2000按照空间杆件模型进行计算。
三、计算荷载1、混凝土荷载;混凝土比重取26kN/m3,墩身截面以外的箱梁砼均考虑由托架承重,同时考虑1.2的冲击系数,混凝土荷载按照箱梁截面计算成均布荷载。
2、模板以及支持构件荷载①、模板模板重拟取为 2.0KN/m2,每侧翼板及外侧腹板模板重取为260kN,作用于横桥向墩外托架上。
由于混凝土浇筑采用分次浇筑,内模考虑腹板内侧及横隔板内侧模板,不考虑顶板底部模板,取为240kN,作用于墩间托架上。
外侧横隔板模板取为70kN,作用于顺桥向墩外托架上。
3、人群机具荷载:取2.5kN/m,均布于托架上。
由于该荷载较大,如卸载装置(如砂箱等)不予考虑。
荷载组合:计算荷载Q=1.2×(混凝土荷载+模板荷载)+1.4×人群机具荷载托架杆件自重于有限元程序计算过程中自动加入。
托架受力计算时,整体荷载施加于分配梁上,分配梁再传递于主梁,经斜撑调整受力最后集中于墩身预埋锚板上。
以有限元计算的杆件内力结果依据相关规范对各杆件截面、预埋锚板、焊缝等进行截面复核,以满足强度、刚度的要求。
翼板受力:1.2×(混凝土荷载+模板以及支持构件荷载)+1.4×人群机具荷载=1.2×(279+260)+1.4×12×2.5=689kn加载:外挑梁29kn/m, 横桥向墩外托92kN/m。
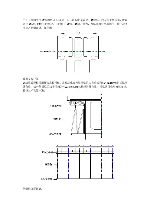
由于王家沟大桥0#块顺桥向长10米,但挂篮长度6.15米,1#块施工时无法拼装挂篮,所以选择1#块与0#块同时现浇。
同时由于0#块,1#块方量大,所以采用分两次浇注,每一次浇注到人洞倒角处。
如下图0#块1#块1#块两次浇注分界线冀板支架计算:0#块冀板模板采用挂篮冀板模板,冀板造成给内纵滑梁的均布荷载为50448.6N/m(包括纵滑梁自重),给外纵滑梁的均布荷载为40270.9 N/m(包括纵滑梁自重),滑梁采用梯形桁架支撑,且每三米设置一道:45a工字钢梯形架36a工字钢45a工字钢梯形架36a工字钢纵滑梁强度计算:建立如右图所示的模型:q MABCDEFN0.53采用弯矩分配法分析可以得到如下弯矩图:0.125q0.931q0.597q0.717q0.408q最大弯矩出现在B 点,即M=0.931q纵梁截面特征:Ix=32200cm 4,Wx=1430cm 3σ=0.931×50448.6/1430=32.84Mpa ,满足强度要求。
支座反力计算:可以近似的看成R1=3q 1=50448.6×3=151345.8N ,R2=3q 2=132812.7N 。
杆件受力计算,只需计算5#杆件强度: F5=152345.8Nl=6.66m ,Ix=1732cm 4,Iy=(73.3+21.962×4.52)×2=1036.06cm4, iy==4.86cm长细比:ψ=333/4.86=68.52 查表得:λ=0.653 σ==52.77Mpa满足强度要求。
36a工字钢强度计算:由支架受力计算可以求得P1=R2×60/160+10844/3N=53419.5N,其中10844N为梯形桁架自重P2= R2×100/160+10844/3N=86622.6NP3=R1=154960.5N所以只需验算最靠内的那根36a工字钢强度。
建立以下模型:F F F F F F由弯矩分配法可以得到如下弯矩图:0.407F 0.1488F0.1992F0.419F0.463F最大弯矩出现在中支点处,且有M=0.463F,有σ==82Mpa。
目录1底模计算 (3)1.1竹胶板 (3)1.2纵向方木 (5)1.3横向方木 (7)2内模计算 (8)2.1支架 (8)2.2纵向方木 (9)2.3侧模 (10)2.4对拉螺栓 (11)3满堂支架计算 (11)3.1碗扣支架检算 (11)3.1.1梁体钢筋砼自重荷载 (11)3.1.2两侧翼缘板处满堂支架受力检算 (11)3.1.3腹板处满堂支架受力检算 (12)3.1.4底板处满堂支架受力检算 (13)3.2横向分配梁(方木)检算 (14)3.3纵向分配梁(方木)检算 (15)3.3.1腹板位置检算 (16)3.3.2底板位置检算 (16)4立杆地基承载力检算 (17)5混凝土临时支墩强度验算 (18)5.1荷载计算 (18)5.2强度验算 (18)6抗倾覆稳定性计算 (19)6.1工程假设 (19)6.2荷载计算 (19)6.3稳定性计算 (19)6.3.1受力简图 (19)6.3.2倾覆力矩的计算 (20)6.3.3抗倾覆力矩的计算 (20)连续梁0#块计算书计算模型:取桥墩墩顶以外截面积最大的1-1截面作为计算荷载,截面特性如下图。
根据梁体及混凝土的相关特性,取腹板范围以内进行计算分析,将梁体截面分为5部分,两侧腹板部分分别取为S1,两侧顶、底板部分分别取为S2,中间部分取为S3,翼板部分取为S4。
根据荷载及支撑体系分析,墩顶范围内荷载直接由方木传至墩身,该部分仅计算模板及方木抗弯、抗剪、挠度等。
墩身至临时支墩之间荷载与临时支墩之外的荷载均按1-1梁截面取算,由于临时支墩之外的梁长度为1.6m,且为悬挑,而墩身与临时支墩之间距离仅为1.1m,且为简支,因此取临时支墩之外的梁段进行计算。
计算竹胶板和横向10×10cm方木时,荷载按均布荷载考虑,取荷载最不利部分按3跨静定梁进行简化计算。
计算纵向方木时,取1.6m范围内横向方木传递的30cm梁体重量作为荷载,按间距30cm算,共6个集中荷载。
连续梁0#段托架计算书1、计算依据1.1 规范依据1《路桥施工计算手册》2《钢结构设计规范》(GB50017-2003);3《实用土木工程手册》(第三版)4《预应力混凝土用螺纹钢筋》(GB/T 20065-2006)5《材料力学》(上、下册)6《结构力学》(上、下册)1.2 技术参数(1)砼自重GC=26.5 kN/m3;(2)钢弹性模量Es=2.06×105 MPa;(3)材料容许应力:Q235钢 []=215,[]=181,[]=106.Q345钢厚度或直径≤16mm,f=310,=180厚度或直径>16~35mm,f=295,fV=21540Cr钢小于100mm,抗拉735MPa,屈服540MPa;100mm~300mm,抗拉685MPa,屈服490MPa;300mm~500mm,抗拉685MPa,屈服440MPa;500mm~800mm,抗拉590MPa,屈服345MPa.剪切力=安全系数*0.6*抗拉强度安全系数=1.3(一般) 2.5(特殊)1.3 计算系数A.超灌系数:1.05B.施工人员、机具系数:1.1C.混凝土容重系数:2.65t/m³2、托架结构及工况2.1 现浇块托架组成现浇段施工托架结构如图所示:主视图侧视图俯视图现浇段托架采用三角斜腿支撑结构形式,采用36#工字钢做三角托架,杆件由10.9级高强螺栓连接;分配梁采用45#工字钢;具体结构形式见图纸。
2.2 施工工况三角托架承受所有“0#段”悬臂于墩外的混凝土荷载以及模板及施工机具荷载。
3、荷载分析3.1 现浇段混凝土分布现浇段顺桥向长14m,根据分配梁的受力工况分析,现浇块单侧悬臂顺桥方向有6片三角托架,根据图纸布置情况显示,悬臂梁体荷载主要通过40#工字钢的分配梁作用在三角托架,故悬臂段托架与分配梁接触点按节点荷载考虑。
4、托架计算4.1工况分析现浇段单侧悬臂最大总重量约为455t,因分次浇筑,故顺桥方向三角托架上的节点荷载为(4550*1.05*1.1)/12=438kN/m。
目录一、0#段支架检算 ....................................... - 1 -1、计算依据........................................... - 1 -2、计算过程中用到的各种力学参数....................... - 1 -3、施工荷载计算....................................... - 2 -4、贝雷片计算......................................... - 2 -4.1腹板处三排贝雷片.................................. - 2 -4.2翼缘板距箱梁中心5.5m处两排贝雷片................. - 3 -4.3底板下箱心梁中心处两排贝雷片...................... - 4 -5、分配梁计算(工20a) ................................. - 6 -6、钢管立柱顶横梁(工32a)计算......................... - 7 -7、砂箱强度计算....................................... - 7 -8、钢管立柱强度及稳定性验算计算....................... - 8 -二、尾端现浇段支架检算 ................................. - 9 -1、计算依据........................................... - 9 -2、计算过程中用到的各种力学参数....................... - 9 -3、施工荷载计算...................................... - 10 -4、贝雷片计算........................................ - 10 -4.1腹板处三排贝雷片................................. - 10 -4.2翼缘板距箱梁中心5.5m处两排贝雷片................ - 11 -4.3底板下箱心梁中心处两排贝雷片..................... - 12 -5、分配梁计算(工20a) ................................ - 12 -6、钢管立柱顶横梁(工32a)计算........................ - 14 -7、砂箱强度计算...................................... - 14 -8、钢管立柱强度及稳定性验算计算...................... - 14 -9、础承载力计算...................................... - 15 -长沙绕城高速立交特大桥位于长沙市雨花区洞井镇,中心里程DK916+889.544,起点里程DK916+453.991,终点里程DK917+325.096,桥全长871.100m。
0号块支架计算书0#块支架计算书一、工程概况0#块支架以三根钢管桩及预埋在临时支撑内的双片40#槽钢为支撑,其中钢管桩外径40cm、壁厚6mm。
三根钢管桩中心在一条直线上,距离墩身边线50cm,相邻钢管桩间距3.8m,中间一根位于墩身轴线上。
钢管桩顶上放置两片45#工字钢,临时支撑悬挑出的双片40#槽钢上各放置一片45#工字钢,此四根工字钢作为横梁,横梁上共放置12根28#工字钢作为纵梁,纵梁上再放置15根12#工字钢作为分配梁,分配梁上满铺10cm×10cm的方木,方木上铺1.5cm的新竹胶板作为底模。
具体布置见示意图。
二、支架受力检算受力检算顺序:12#工字钢-28#工字钢-45#工字钢-钢管桩-双片40#槽钢1、12#工字钢⑴简述均布荷载q12#工字钢沿8m底板全宽铺设,相邻工字钢中心间距35cm,为了计算方便,可将工字钢简化成支撑在28#工字钢上受均布荷载的简支梁,简支梁跨度取夹临时支撑的两根28#工字钢中心间距92.2cm,受力简图如下:12#工字钢参数:13.987kg/m,Ix=397cm4,Wx=66.2cm3 断面面积17.9cm2跨度0.922m页脚内容1反力R2反力R1问题:如何求均布荷载的大小。
通过0#块的纵横断面分析,取距中横梁根部0.75m处高侧腹板处的受力最大。
①混凝土自重W=(0.8+1.04)/2×0.75×7.372×2.6×10=132.3KN经计算q1=67KN/m。
②施工人员和施工材料、机具按均布荷载取值1KPa,推出q2=0.35KN/m③振捣混凝土产生对底板的荷载取值为2 KPa, 推出q3=0.7KN/m④工字钢自重13.987×0.922×10=128.96N, 推出q4=0.14KN/m结论:12#工资钢所受的最大均布荷载q=67+0.35KN+0.7 KN+0.14 KN=68.19 KN/m。
铁路桥梁连续梁零号块托架计算书1一、计算说明1、计算依据及参考资料1.1《有砟轨道预应力混凝土连续梁40+56+40m(通桥(2008)2261A-Ⅵ》1.2 《40+56+40m连续梁梁部施工方案》1.2《铁路桥涵施工规范》(TB10203-2002)1.3《钢结构设计规范》GB 50017-20032、基本参数2.1钢筋混凝土密度取2.6t/m3,钢材密度取7.85t/m3,钢材弹性模量E=2.1x105Mpa,泊松比取0.3。
2.2 Q235钢抗拉、抗压和抗弯强度设计值[f]=215Mpa,抗剪强度设计值[fv]=125Mpa; Q345钢抗拉、抗压和抗弯强度设计值[f]=310Mpa,抗剪强度设计值[fv]=180Mpa;φ32精轧螺纹钢筋拉杆采用785级,按两倍安全系数控制拉应力不大于390Mpa。
3、计算方法和内容本支架采用ANSYS通用有限元程序,按照托架实际结构建立空间模型进行整体分析计算,单个零号块按一次浇筑完成进行计算。
荷载施加:零号块的施工除三角形承重托架单独加工外,其他底模、外模、内模等均利用挂篮的相应构件,作用在托架上的砼荷载为超出墩身宽度以外的2.15悬臂端箱梁砼荷载,计算时按墩身边缘位置最大截面尺寸等截面计算,计算砼荷载超过设计砼荷载约10%。
计算时腹板部分砼以均布荷载形式直接作用在腹板宽度范围的底模面2 板上,顶板砼、内模自重和底板砼以均布荷载形式作用在底板宽度范围的底模面板上,翼板砼与外模自重以集中力的形式作用在底模两侧的承重梁上,底模及托架的自重以自重形式在计算模型内考虑。
主要计算内容:零号块托架结构的强度、刚度和稳定性计算。
4、荷载组合①底模板及托架自重;底模板及支架结构自重按7.85t/ m3在计算模型中考虑。
②新浇筑钢筋混凝土自重;砼体积按实际截面尺寸计算,按2.6t/ m3的密度换算成荷载施加在模板和托架结构上。
③施工人员和施工材料、机具等行走运输或堆放的荷载;人群、机具等临时荷载取g临=1KN/ m2。
附件10#块支架计算一、0#结构形式沙河1号特大桥连续梁采用钢管支架搭设。
梁底模板采用2cm 的竹胶板,竹胶板下方布置10cm×10cm,方木,间距20cm布置。
方木下方布置桁架,横向间距60cm。
桁架下方横向布置I25a的工字钢,间距60cm。
I25a工字钢下方在设置纵向间距(55cm~75cm),腹板下方为55cm,底板下方75cm。
纵桥向下方在设置25a工字钢双拼横向冠梁。
横冠梁下方设置4根直径52.9的钢管。
二、计算说明计算时关键考虑中间跨距最大的最不利情况进行检算。
结构计算依据为《钢结构设计手册》、《建筑施工手册》第四版Q235钢设计值[σ]=205MPa。
依据设计要求,0#快采用C55混凝土一次浇筑成型。
预应力采用3向预应力体系。
2.1主要参数:恒载分项系数取1.2活载分项系数取1.4C55钢筋混凝土容重取26.5KN/m3。
竹胶板木模选120m×240m×2cm矩形模板,弹性模量E=5.0×103MPa, ,静弯强度[σ]=11MPa。
松木采用10cm×10cm,计算参数:E=9000Mpa,[δ]=17Mpa,W=bh2/6=166.7cm3,I=bh3/12=833.3cm4。
12.6cm槽钢参数,E=2.06×105Mpa,[δ]=17Mpa,W=62.1cm3,I=391cm4。
A=15.7cm2, 每延米重量12.4kg/m。
25a工字钢参数,W=402cm3,I=5020cm4。
截面面积A=48.5cm2,单位质量38.1kg/m。
直径52.9cm,壁厚8mm的钢管参数,截面面积A=130.88cm2,单位质量130.29,W=,1680.55cm3,I=44459.54cm4人行、机械活载,混凝土振捣荷载:1.5 KN/m2、2KN/ m2三、梁底荷载计算3.1、梁底模板计算横向取单位长度1m,按4跨连续梁计算。
新建铁路
兰州至乌鲁木齐第二双线甘青段
DK690+193酒泉立交特大桥
连续梁0号块支架简算
编制负责人:
审核负责人:
审批负责人:
中铁九局兰新铁路甘青段项目经理部
二〇一〇年八月
兰州至乌鲁木齐第二双线(甘青段)
酒泉立交特大桥悬浇0#段支架设计
一、工程概况
酒泉立交特大桥起讫里程为DK686+507.12-DK693+878.83,全长7371.71米。
孔跨形式为2(35-32m简支箱梁+(40+64+40)m连续梁+12-32m+2-24m简支箱梁+(40+64+40)m连续梁+28-32m+2-24m+24-32m+1-24m+19-32m+2-24m+20-32m+3-24m+10-32m 简支箱梁+(60+100+60)m连续梁+47-32m+1-24m+6-32m简支箱梁),该桥施工难度大、技术含量高为本标段重难点工程之一。
本桥位于酒泉市城乡结合部的城关区和西峰乡,经过路段多为经济作物种植区,农业大棚居多。
线路跨越酒泉市政道路肃州路和解放路,在DK691+954.29—DK692+054.29处跨越连霍高速公路。
二、外荷载计算:
A砼全=24.66,A砼中=6.32,A砼边=18.34,L中=4.7,L边=2
1、作用在支架上的荷载有
(1)模板按150kg/㎡计,纵横及牛腿自重按20t计,则总重量W1=模板表面积*0.15+20=59.37(t);
(2)0#段悬臂砼重(砼重量按 2.6t/m³计),W2=922.569/14*4.9=322.89(t);
(3)人员及堆放材料和设备按120kg/㎡计,W3=(7-2.1)*12.2*0.12=7.2(t);
(4)砼施工捣固力按200kg/㎡计,W4=(7-2.1)
*12.2*0.2=11.9(t);
(5)砼施工冲击力按200kg/㎡计,W5=(7-2.1)*12.2*0.2=11.9(t)。
2.受力简算:
2.1.荷载计算
图一36a工字钢19条
牛腿正面图
牛腿侧面图
图二
2.2.受力简图
(1)由于中牛腿主要受力结构为三排托架,所以三排托架以上的构件可作为外荷载按照传力机制作用于托架上,横向三排托架由于
支撑位置不同,分担的荷载不同,其可按图三所示。
12
3
图三
q1=(W1+W2+W3+W4+W5)/A 砼全* A 砼中/L 中
=(59.37+322.89+7.2+11.9+11.9)/24.66 *6.32/4.7 =22(t/m )
q 2=(W1+W2+W3+W4+W5)/A 砼全* A 砼边/L 边 =(59.37+322.89+7.2+11.9+11.9)/24.66 *18.34/2 =150.3
根据边界条件,应用虚功原理,解一次超定静:
1 3.3501112(128.3)2[128.31128.3()]2222
x x x
q x q dx x x dx ∆=-+-⨯-⎰⎰ 3.35201222R x R x dx '
∆=⎰ 2110q R '∆+∆=
解之,得:222148.5()R R R t '"=+=
13127.8()R R t ==
(2).纵向荷载分配
由(1)计算知,中间支架受力为最大。
通过纵梁、横梁及砂筒分担。
中间支梁为集中为集中荷载力,其受力图按图四所示。
图四
274.34900.32N L f cm AgE AgE ⨯∆=
==,230.3()R
q t L
==,则 N 1=N 2=74.3(t) 2.3支架计算 2.3.1 计算变形
由图4知,该托架主要变形为立柱受压变形
274.3490
0.32121.82N L f cm AgE E
⨯∆=
== 2.3.2 立柱应力计算 38.17uL
l
λ=
=2274.30.609(/)g 121.82N t cm A σ==
= [σ]=1.62(/)t cm 符合要求。
2.3.3 稳定计算
由结构图知立柱为2[36槽钢,形式为36×36cm 。
查表,得 Ag=2×60.91=121.82cm 2 J=2×11900=23800cm 4.则:
27.95l cm =
=。
两端视铰接偏于安全,则u=1. 于是38.17uL
l
λ=
= 查表20.609[]0.93 1.6 1.48(/)t cm σϕσ=<=⨯=,0.93ϕ=
2[]0.93 1.6 1.48(/)t cm ϕσ=⨯=
0.609[]σϕσ=<
符合要求。
2.3.4水平杆计算
由设计结构图知,水平杆作用力τ为集中荷载,靠墩侧承受剪力,前端传力于主杆,中段为非受力段,该水平杆只计算剪应力。
依《桥钢规》规定,[]0.71[]τσ=-,取2[]0.8[] 1.28(/)t cm τσ==。
而174.3
0.61121.82
N Ag τ=
==。
符合要求。
2.3.5砼局部受压计算
2.3.5.1.水平杆埋深1.5米,埋深型钢断面36×36cm ,则砼承受压力应力1 1.38N A
σ==(t /cm 2
),考虑不均影响,取安全系数为2,则12 2.76N A
σ=⨯=(t /cm 2
),根据《钢筋砼及预应力砼桥规》规定,
墩身砼为C35,[
]9.5
σ=,A为扩大砼承立面积,取宽为两托架,间距1/2宽1.6米,长度2.7米;则A=160×270=43200cm2,A2为
局部实际承受面积A2=150×36=5400cm2,
2.828
=,该值小于3,
取2.828。
则 t/cm2,[]
σσ
≤符合设计要求。
2.3.5.2.立柱底承台砼局部承压计算,从2.3.4.1计算可看出立柱底承台砼局部承压同理满足设计要求。
2.4.支架简算结论
(1)该支架承受最大应力为立柱应力0.609t/cm2小于许应力
1.6t/cm2,满足要求;
(2)最大变形为水平杆端部0.32cm小于L/400=1.22cm,满足要求;
(3)最大剪应力为水平杆靠近柱侧0.61t/cm2小于许应力
0.8t/cm2,满足要求;
(4)立杆符合稳定要求。
3.纵横梁简算
3.1.横梁计算
横梁采用挂蓝横梁,每条横梁由2[36钢组成,共2条:布置原则在靠近柱水平杆砂筒之上一条;另一条布置在支架立柱砂筒上。
有结构图知横梁为一次超静定连续梁,如图五
12
3
图五
由以上计算知:
12/q N L η=, η为荷载分配系数。
由梁砼断面形式计算, η=0.744,则:
1
74.30.744
27.62
q ⨯=
=
2
74.30.26
4.11
4.7q ⨯=
=
根据边界条件,应用虚功原理,解一次超定静方程: 1323.49()R R T ==, 227.53()R T = max 11.31()M t m =-⋅,max 9.86()M t m =⋅
22max
0.851(/)[] 1.6(/)M t cm t cm w σσ=
=≤=
符合要求。
由以上计算知,
12/q N L η=⋅ 其中,η为荷载分配系数。
由梁砼断面形式计算,10.744η=,20.26η=,则
174.30.744
27.6(/)2
q t m ⨯=
=
174.30.26
4.11(/)2
q t m ⨯=
= 根据边界条件,应用虚功原理,解一次超定静,得:
1323.49()R R t == 227.53()
R t = max 11.31()M t m =-⋅ m a x 9.86()
M t m =⋅ 22max 0.851(/)[] 1.6(/)M t cm t cm w
σσ==≤=
符合要求。
1.758.87400
L
f mm mm ∆=<= 符合要求。
3.2 纵梁计算
纵梁采用挂蓝,纵梁为19根36工字钢。
腹板底每侧6条,中间7条。
由梁横断面图可看出腹板底受外荷载最大,因此取腹板底6条型钢为检算对象。
计算图示如图六
1
2
图六
由图二有
150.3130.74.9
q ⨯==
则 1275.2()R R t == max 95.7()M t m =⋅
22max 1.6(/)[] 1.6(/)M
t cm t cm w
σσ====
符合要求。
490
12.212.340
f mm mm ∆=<
= 符合要求。
3.3 纵横梁结论:
(1)纵横梁最大应力在梁腹板底纵梁上,为1.6(t/m 2),满足要求。
(2)最大变形在梁腹板底纵梁上,为12.2mm,满足规范要求。
4. 165、166号主墩支架计算结论:
(1)最大应力在梁腹板底纵梁上,为1.6(t/m2),符合要求。
(2)最大变形在梁腹板底纵梁上,为12.2mm,符合要求。
(3)支架立柱稳定,符合要求。
(4)挂蓝底纵梁原设计为16条,其中腹板下为4条,现改为腹板下每侧6条,中间7条,新增3条。
165、166号主墩材料数量表。