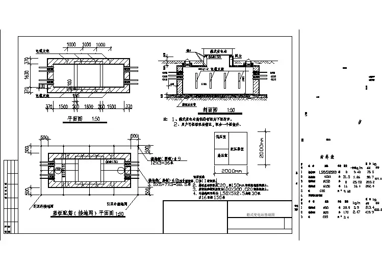
箱变基础图315kva
- 格式:pdf
- 大小:92.78 KB
- 文档页数:2
井控中心315KVA箱变技术方案编制人: ***审核人: **批准人: ***一、事项1、本协议依法签定,经双方当事人认可,双方代表签字后,作为合同不可分割的一部份,与商务合同同时生效,具有同等法律效力,任何一方未按本协议履行合同,应承担经济责任。
2、本协议中未尽事宜或因故需要变更,需经双方当事人协商一致后,拟定出补充条款或修改的书面协议,双方代表签字盖章作为合同附件,与合同具有同等法律效力。
3、项目完成后,由双方当事人一起按本协议规定的条款进行验收。
4、本协议内容在执行中发生纠纷,应友好协商解决。
5、本合同执行过程中,如供方提供的设备、资料、图纸、文件等,需方应为供方技术保密。
6、本协议一式两份,供方执一份,需方执一份。
7、需方自供方采购预装式欧式箱变就产品内容、规格、技术要求、安装调试、验收、人员培训和售后服务等内容进行了协商,达成本协议。
二、协议概述1、遵守的主要标准协议中所有设备及其备品备件,除协议书中规定的技术参数和要求外,其余均遵循最新版本的国家标准(GB)、电力行业标准(DL)和国际单位制(SI)。
我公司提供的产品满足本标书规定的技术参数和要求以及如下的专用标准:GB/T17467-1998 《高压/低压预装式变电站》DL/T537-2002 《6~35kV箱式变电站订货技术条件》GB1094.1-1996 电力变压器第一部分总则GB1094.2-1996 电力变压器第二部分温升GB1094.3-2003 电力变压器第三部分绝缘水平和绝缘试验GB1094.5-2003 电力变压器第五部分承受短路的能力GB/T11022-1999 《高压开关设备和控制设备标准的共同技术要求》GB/T14048-1993 《低压开关设备和控制设备总则》GB6450-1986 《干式变压器》GB7251-2005 《低压成套开关设备和控制设备》GB3906-1991 《3~35kV交流金属封闭开关设备》GB3804-2004 《3~63kV交流高压负荷开关》GB16926-1997 《交流高压负荷开关—熔断器组合电器》DL/T791-2001 《户内交流充气式开关柜选用导则》IJC420:1990 《高压交流负荷开关——熔断器的组合电器》GB3096-1993 《城市区域环境噪声标准》2、供方所提供的所有设备及附件是全新、运行可靠、操作安全的。
二、箱式变电站1、环境条件:环境温度:-25 ~+40︒C相对湿度:日平均值不大于95%;月平均值不大于90%(25︒C);有凝露的情况发生海拔高度:≤1000 m地震烈度:7度(0.1g)。
雷暴日:> 27.9日/年2、质量标准:设备的制造、试验和验收除了满足本用户需求书的要求外,还应符合如下标准:GB1094.1-96《电力变压器》第1部分总则GB1094.2-96《电力变压器》第2部分温升GB1094.3-2003《电力变压器》第3部分绝缘水平和绝缘实验GB1094.5-2003《电力变压器》第5部分承受短路的能力GB6450-86《干式电力变压器》GB/T10228-97《干式电力变压器技术参数和要求》GB/T17211-98《干式电力变压器负载导则》JB/T7827-95《高压开关设备用电磁锁通用技术条件》GB4208-93《外壳防护等级(IP代码)》JB/T10088-99《6~220kV级变压器声级》变压器及其组成部件应满足上述国内、国际标准的要求,若卖方采用除上述之外的其它被承认的相关国内、国际标准,应明确提出并提供相应标准复印件,经买方批准后方可采用。
3、主要技术参数:变压器为干式、自冷、环氧树脂浇注变压器。
4、可靠性、可维护性:a)可靠性产品在设计时必须采用高可靠性措施。
这些措施应通过利用如下的技术以降低系统故障概率和影响正常运行的随机性:➢使用已证明具有高可靠性的材料。
➢采用适当的工艺流程。
➢制定严格的检验制度。
➢所提供设备,应采用适当的措施以预防虫害。
b)可维护性➢设备应设计成只需最少的调整和预防性维护,以及运行维护。
产品设计应包括故障隔离及诊断措施,以减少设备修复时间、维护材料和人工成本。
➢应通过制定合理的维修/更换策略、在线维修措施及维修支持设备的最佳运用来缩短事故恢复时间。
5、接口:a)变压器与10kV进线电缆的接口在高压侧接线端子。
➢接口责任:提供高压接线端子及紧固件,高压电缆及其附件由业主提供。
二、箱式变电站1、环境条件:环境温度:-25 ~+40︒C相对湿度:日平均值不大于95%;月平均值不大于90%(25︒C);有凝露的情况发生海拔高度:≤1000 m地震烈度:7度(0.1g)。
雷暴日:> 27.9日/年2、质量标准:设备的制造、试验和验收除了满足本用户需求书的要求外,还应符合如下标准:GB1094.1-96《电力变压器》第1部分总则GB1094.2-96《电力变压器》第2部分温升GB1094.3-2003《电力变压器》第3部分绝缘水平和绝缘实验GB1094.5-2003《电力变压器》第5部分承受短路的能力GB6450-86《干式电力变压器》GB/T10228-97《干式电力变压器技术参数和要求》GB/T17211-98《干式电力变压器负载导则》JB/T7827-95《高压开关设备用电磁锁通用技术条件》GB4208-93《外壳防护等级(IP代码)》JB/T10088-99《6~220kV级变压器声级》变压器及其组成部件应满足上述国内、国际标准的要求,若卖方采用除上述之外的其它被承认的相关国内、国际标准,应明确提出并提供相应标准复印件,经买方批准后方可采用。
3、主要技术参数:变压器为干式、自冷、环氧树脂浇注变压器。
4、可靠性、可维护性:a)可靠性产品在设计时必须采用高可靠性措施。
这些措施应通过利用如下的技术以降低系统故障概率和影响正常运行的随机性:➢使用已证明具有高可靠性的材料。
➢采用适当的工艺流程。
➢制定严格的检验制度。
➢所提供设备,应采用适当的措施以预防虫害。
b)可维护性➢设备应设计成只需最少的调整和预防性维护,以及运行维护。
产品设计应包括故障隔离及诊断措施,以减少设备修复时间、维护材料和人工成本。
➢应通过制定合理的维修/更换策略、在线维修措施及维修支持设备的最佳运用来缩短事故恢复时间。
5、接口:a)变压器与10kV进线电缆的接口在高压侧接线端子。
➢接口责任:提供高压接线端子及紧固件,高压电缆及其附件由业主提供。