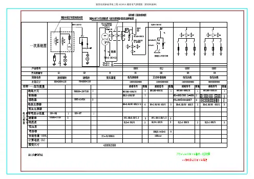
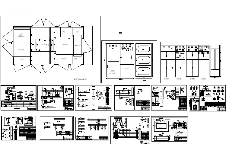
由供电部门定3(HY5W-17)650*900*2000HKT1-12(F.R)/T200-31.5/51WH46-11/HF-J变 压 器 编 号进出线型号及规格变 压 器 容 量用途温湿度控制器及电加热器元器电件要主熔断器避雷器带电显示器电流互感器电压互感器真空负荷开关式型结线主外 形 尺 寸( )型 号 规 格W*D*H编 号本区内设一台 柴油发电机组供小区重要负荷用电,失压脱扣,柴油发电机组启动供小区重要负荷(如水一般负荷,使油机正常合理运行.油机与市电之间一. 工程概况二. 供电电源及负荷状况(1).(2). 负荷状况: 箱式变电站型号为: 计量方式采用高压计量, 供电电源:由小区外引一路 高压电源埋地至箱变高压开关柜. 本工程为互通收费站箱变,收费站区内综合楼,收费棚,附属用房等各建筑的电源由箱变供给. 所有进出箱变的金属管道以及设备金属外壳支架,底座应与接地极可靠连接.进行总等电位连结. 沿箱变基础外圈敷设人工接地极,具体做法参见电施- 施工过程中请与水暖及土建专业密切配合,遇有问题及时与设计人员联系,共同解决. 室外箱变基础待设备厂商确定后,根据具体外形尺寸再进行基础施工. 要求接地电阻不大于 欧,施工后实测如不符要求,需补打人工接地极.出线电缆选用 型电缆埋地引出至各建筑物.四.建筑物接地高压开关柜内应成套配置柜内照明.三.线缆选型及敷设3(XRNP-12)高压计量2(JDZ-12-10/0.1)2(LZZJB6-12-25/5)WH46-11/HF-J高压主进电源进线3(XRNT-12-30A)2(LZZJB6-12-30/5)LK-LBS2-12UARWH46-11/HF-JGSN1-12TD高压出线400KVAYJV-10KV-3*953.GSN1-12WH46-11/HF-J1.1.2.3.1.2.五.其它TMY-3*(40*4)3.4.5.TMY-3*(40*4)2.1.YJV22-0.6/1KV43. 正常情况下由市电供电,市电中断或变压器故障时,一般负荷 泵房,监控室等负荷).用户可视油机具体运行情况适当投入一些HDC188(6CTA8.3-G+MP-176-4)Pe=463KW Pjs=318KW COS%%C=0.92 Q补=110KvarPe=132KW Pjs=119KWZBW1-03-400KVA-12/0.4KVSCRB10-400KVA-10/0.4KV%%P2*2.5%-D,Yn11 变压器: 选干式变压器:TD 柴油发电机组 选柴油发电机组:150kW/188kVA150KW10KV 设有自动转换开关.HKT1-12(F.R)/T200-31.5/54650*900*2000650*900*2000HKT1-12(F.R)/T200-31.5/12132650*900*2000HKT1-12(F.R)/T200-31.5/514设 计 说 明7*%%C6A-A剖面图钢百页窗(外加防小动物进入的钢网)热镀锌钢管-0.800基础平面图%%c8@15080PB1板厚1:20%%P0.000-1.200C254%%c18砼C10垫层%%c8@150%%C8@250过梁%%C10@150C15防水砼b*h=300*1804%%c12,%%C6@2000.6000.200过梁PB14%%c12,%%C6@200b*h=240*180b*h=1000*200-0.800热镀锌钢管A底标高9RC80+3RC100热镀锌钢管-0.8002RC150底标高RC150+RC70底标高%%C20 L=2500共六处40*4箱变通过镀锌扁钢 与接地极相连1.5m-1.200C25水泥砂浆4%%c18%%C8@250防潮层%%C10@150垫层1:50C10砼箱变接地平面图变压器中性点接地点埋深镀锌扁钢垫层0.600PB1螺栓4M-161:50BA砼C25C10B-B剖面图箱变底基础槽钢镀锌圆钢18#埋深4%%c18%%C10@1501:50%%C8@250%%C8@250%%C10@150C15防水砼4%%c18C10垫层HRB3359.电气施工完毕后,将穿墙板上剩余的孔用砖块和水泥砂浆封严.8.穿墙板材料:C25砼,钢筋 .穿墙板与穿墙孔间的5.防潮层为 水泥砂浆掺 %防水粉 厚,设在标高为 处.7.百叶窗做法参见通用图集<<钢百叶窗>>J733中C22-1206现场制作.HRB33511.接地装置埋设深度距室外地面 ,所有接地装置均应采取热镀锌处理;所有电气12.接地装置的接地电阻应不大于 欧,实测后若大于 欧则应增加垂直接地体. 设备的外壳及底座,支架和进出户钢管均应与接地网连接.具体做法参见 系列13.箱变高低压及柴油发电机进出线准确方向以电气总平面图为准,基础施工时请核实. 建筑标准设计图集44>>05D2-86.C25空隙用砖和混凝土封严.6.梁材料 砼,钢筋为 10.箱变高,低压室均设置能下人的活动盖板.40*41:2.520,级为%%c5HPB235%%c为,1.5m为%%cHPB235级%%c为<<05%%P0.000级级3.电缆室内壁及基础平面 水泥砂浆抹面,厚度为 ,表面平整.3*%%C1251:101.设室外地面为 位置.2.基础尺寸由厂家提供4.基础材料 机制砖. 水泥砂浆.说明:1.5mMU10(A,B,m,n ).1:2.5%%P0.000M5穿墙钢板206*%%C612*%%C618#穿墙钢板0.600槽钢BPB1PB19*%%C1007*%%C6YJV22-3*95+50/3300CM1-225MLMZJ1-0.5200/5由高压出线柜引来HDC188(6CTA8.3-G+MP-176-4:主结线回 路 编 号计算容量 ( )设备容量 ( )KWKW计算电流 ( )A119受电设备名称穿管管径网络电力仪表导线规格及A开关额定电流 ( )150kW/188kVAG~PE一次通过通讯总线将各回路用电参数上传至本路段通讯分中心.通讯分中心处设集中电力监控台.RS485测量三相电流,电压,频率,功率,功率因数,电度等,测量单相电流,电压,频率,功率,功率因数,电度等,ACR420ET,ACR220ETModbus-RTU,通讯协议采用ACR72ET网络电力仪表网络电力仪表通讯接口,LED显示.显示.LED通讯接口,RS485ACR220ETN2126240173RC100宿办综合楼YJV22-4*185250LMZJ1-0.66机械,电气联锁MB-800A/4P525318463封闭母排ACR420ETM-120/4CM1-100M/3300-63A变压器电源进线长延时整定电流: 630WATSGC-800/4R配至柜内照明及温湿度控制器,加热器NC116PACR72ET200/5LMZJ1-0.5750/5TMY-40*4N17265124水泵房RC80YJV22-3*95+501800.3S2200ATD:SCRB10-400KVA-10/0.4KV%%P2*2.5%-D,Yn11型智能控制器In=800AMCW1-2000/3630A长延时整定电流: 短路短延时整定时间: 短路短延时整定电流: NIn=315ACM1-400H/3300TMY-4*(60*6)/3300CM1-225MACR72ETLMZJ1-0.5监控室 ACR72ET100/5LMZJ1-0.5N4N3609148300/5LMZJ1-0.5备 用1401007265124水泵房(备)RC80180ACR72ETACR72ET100/5100/5LMZJ1-0.5N6N5407850RC70YJV22-4*50大棚.车道照明125/3330CM1-100MCM1-400M/3330WG-630/3/3330/3300CM1-100MCM1-100MCM1-100M/3300LMZJ1-0.550/5LMZJ1-0.575/5YJV22-4*2563402130浴室ACR72ETACR72ETN8备 用50N7RC50LMZJ1-0.5ACR72ETACR72ET100/540/5LMZJ1-0.5N10N9101912监控室(备)污水处理RC50YJV22-4*632CM1-100M/3300WG-400/3CM1-100M/3330/3330CM1-100MCM1-400M/3300-315ALMZJ1-0.5LMZJ1-0.5200/5ACR220ETYJV22-4*95180RC100餐厅1377280100备 用N12ACR72ET100/5N11LMZJ1-0.5-300/5ACR420ETWG-500/3/3330/3300CM1-100MCM1-225M调谐滤波及无功补偿柜5*(FL2D 480V 30kVar+XKIB 22/400/6-50)电容器规格:N-6自动投切控制器110KVarCOS%%cKZQXYJV22-4*70RC8091YJV22-4*70RC801404860TD:SCRB10-400KVA-10/0.4KV%%P2*2.5%-D,Yn111、SCRB10-----半包封干式变压器,10为产品系列号2、1600kVA-----变压器容量3、/10±2×2.5%%%/0.4kV-----电压等级,10KV降压至0.4KV,前面的±2×2.5%%%表示10KV侧有±各2组2.5%%%的抽头,可适用于±5%%%的电压调整4、Dyn11-----连接组别,标明高低压绕组间电压矢量关系,Dyn11是最常见的mA102010207721020B1020772n10201507501501501501501502401000100100030060015015060010030077210201020150012001500501000506030060602401006060015006007721020nB1800150600600Am5007801000