造价员考试练习题(电气安装案例)
- 格式:doc
- 大小:215.00 KB
- 文档页数:4
安装工程计量与定额应用建筑电气、仪表安装篇知识点:了解电工学的基础知识1、下列数据中不属于电压等级的是:A.380VB.10KVC.220VD.110KVA2、直埋电缆技术要求中,下列描述错误的是A.电缆埋置深度应≥0.9mB. 电缆埋置深度应≥0.7mC.应埋在冻土下D.农田中应≥1.0m3、电缆敷设工作内容不包括:A.开盘、检查B.敷设C.揭盖板D.压焊接线端子4、电缆保护管长度,除设计规定长度计算外,遇有下列情况,应按以下规定增加保护管长度,其中错误的是A. 横穿道路,按路基宽度两端各增加2mB. 垂直敷设时,管口距地面增2mC. 穿过建筑物外墙时,按基础外缘以外增加2mD. 穿过排水沟时,按沟壁外缘以外增加1m5、直埋电缆中铺砂量是按()考虑的A. 电缆下铺100mmB. 电缆上铺150mmC. 电缆下铺200mmD. 电缆上下各铺100mm6、某电力电缆敷设,配电柜至配电箱之间的图示尺寸为58m,配电箱的半周长为1.0m,按技术规范规定,配电柜内的电缆附加长度为2m,电缆终端头的预留长度1.5m。
考虑电缆敷设的弛度、波形等因素的系数为2.5%。
本项目的电力电缆敷设清单工程量为()。
A. 58mB. 61mC. 64mD. 65.6m7、某电缆安装工程,土建施工120m长电缆沟后未盖盖板,布放150m电缆后盖完盖板,后因设计变更在此沟内增加两根长度分别为160m的电缆,此时电缆沟揭、盖盖板的工程量为():A.120mB.150mC.470mD.360m8、10电缆槽架(支架的接地线)的安装应执行()A.铁构件制作安装项目B.轻型铁构件制作安装项目C.户外接地母线安装项目D.户内接地母线安装项目9101112、13、14、15、16、17、(多选)18、(多选)电气设备安装工程中电力输配送主要使用:()A.电缆B.钢芯铝绞线C.铜、铝芯绝缘导线D.铜、铝硬母线E. 光缆19(多选)电缆保护管计算以()区分按设计图是尺寸以延长米计算A.敷设方式B.敷设位置C.管材材质D.管道规格20\(多选)电缆桥架计算工程量以()区分按照图示尺寸以延长米计算。
电气造价练习题本文旨在提供一系列电气造价练习题,帮助读者巩固和应用电气造价方面的知识。
以下是一些常见的练习题,供读者参考并进行自我测试。
题目一:某工程项目需要安装一套新的低压配电箱,根据现场测量数据,该配电箱需要满足以下要求:- 额定电流:400A- 额定电压:380V- 制造材料:不燃性材料- 配电箱出线方式:3P4W请根据以上要求回答以下问题:1. 根据给定的额定电流和额定电压,计算该配电箱的额定功率容量。
2. 根据配电箱的出线方式,解释3P4W的意思。
3. 请列举至少两种符合要求的不燃性材料。
题目二:某建筑工程需要安装照明系统,根据室内设计方案,该照明系统需要满足以下要求:- 照明灯具种类:LED灯- 光效:100lm/W- 灯具寿命:50000小时- 设计功率密度:10W/m²请根据以上要求回答以下问题:1. 假设该建筑的使用时间为10小时/天,计算LED灯具每天消耗的电能。
2. 假设该建筑的照明系统共安装了1000盏LED灯,计算每年需要更换的灯具数量。
3. 根据给定的设计功率密度和建筑面积,计算该建筑的总设计功率。
题目三:某工程项目需要进行电缆敷设,根据工程方案,电缆敷设的要求如下:- 敷设长度:1000m- 电缆截面积:185mm²- 电缆类型:铜芯电缆- 电缆电阻:0.8Ω/km- 电缆单位价格:100元/m请根据以上要求回答以下问题:1. 根据电缆的截面积和长度,计算该电缆的电阻。
2. 假设电缆的单位价格为100元/m,计算敷设1000m电缆的总造价。
3. 如果将铜芯电缆改为铝芯电缆,电缆单位价格为80元/m,根据给定的长度和电缆类型,计算铝芯电缆的总敷设造价。
题目四:某太阳能光伏发电项目需要进行太阳能电池板组件的采购,根据技术要求,该太阳能电池板组件需要满足以下条件:- 额定功率:200W- 高效系数:0.85- 电池板使用寿命:25年- 单价:2000元/块请根据以上要求回答以下问题:1. 根据给定的额定功率和高效系数,计算实际输出功率。
2、清单项目组价:(2小题,每题5分,共10分。
)(1)某单位在供电条件改善中需要敷设一根电缆,现已根据可能涉及的工程量和目前的价格(VV22-4*35电缆;68元/m;DN100镀锌钢管:44.8元/m;)填在下表中。
如果考虑管理费为人工费的40%,利润为人工费的30%,风险费为主材费的15%。
试计算该电缆的综合单价;工程名称:某单位供电改善工程计量单位:项目编码:030208001001 工程数量:项目名称:VV22-4*35 电缆埋地敷设综合单价:四、综合计算题(4题,第一题为必做题,10分;第二、第三、第四题为选做题,每题50分,考生可根据自己的专业选做一题。
选做题做二题以上的以第一选做题计分。
共计60分)第一题:已知某市区一临街电气安装工程分部分项工程量清单计价的合计为50万元,其中人工费为5万元。
技术措施费仅考虑脚手架搭拆费。
其他项目清单仅考虑建设单位预留金2万元。
施工组织措施费除缩短工期增加费外,其他均应计列。
试根据我省取费定额费率标准的中值,计算报价,并填入下表。
要求措施费分项计列。
取费精确到元。
(10分)第二题:(选做题)电气专业:(4小题共50分。
)如图示是一会议室照明和通风换气扇布置图1、按以下要求,标注图中各段管内的穿线根数。
表示方法:管内穿两根以上导线时用小斜线和数字组合表示。
如图筒灯10到筒灯11所示;管内穿两根导线时不必标注。
(5分)(1)照明与换气扇分两路从照明开关箱M引出。
(2)单联单控开关①同时控制两台换气扇。
(3)双联单控开关②分两路分别控制筒灯1、3、5、7、9、11和2、4、6、8、10、12。
(4)三联单控开关③分三路同时控制两套中央照明灯。
每套中央照明灯由6盏26W节能照明灯组成。
控制要求:a两套灯内各两盏亮;b两套灯内各四盏灯亮;c两套灯内6盏灯全亮;d两套灯全关。
2、请分析三联单控开关⑧到中央照明灯1;筒灯到筒灯2;筒灯2到中央照明灯1:中央照明灯1到中央照明灯2;四段管内的导线各为什么属性,并指出各有几根。
造价员培训安装案例练习题一、请根据给定的电气工程施工图,计算工程量并编制电气分部分项工程量清单。
(一)设计说明1、本工程中的M配电箱PZ-30由厂家成套供应,其尺寸为320×320×120mm,箱内无端子板,电源进箱管线不计算。
本工程为砖混结构,室内外高差450mm,房间净高3米,板厚200mm,电气管线进入板内按100mm计算;2、器具安装高度:照明配电箱底边安装高度1.4米,插座0.3米,开关(单、双联、吊扇)1.4米,双吊杆日光灯2.5米;3、接地极采用50×50×5镀锌角钢,长2.5米垂直打入地下,顶部距室外地坪1米,普通土,接地极距外墙皮不小于3米,相邻接地极间距不小于5米。
接地母线采用40×4镀锌扁铁,埋深1米。
4、照明部分导线采用BV-500V-2.5mm2,穿硬质PVC16管暗敷设,插座部分采用BV-500V-4mm2,穿硬质PVC20管暗敷设。
5、图纸比例1:100;6、图中电器分别为:双管日光灯、吊扇、半圆求吸顶灯、单联开关、双联开关、三孔插座。
(二)计算要求:计算图1中电气所有内容,正确列出清单并填入表1中。
图1 电气工程图二、请根据给定的给排水工程施工图,计算工程量并编制给排水分部分项工程量清单(图2~6)。
(一)设计说明1、图中标高和管长以m计,其余以mm计;图纸比例1:100;2、给水管采用PP-R塑料管热熔连接,给水管线采用铜质阀门,规格同管径;排水管采用PVC-U塑料管胶粘连接;本次考试给、排水管管件按含量计算;3、给排水管进户管计算至外墙皮以外1.5米处;板厚200mm,墙厚为240mm砖墙;4、给水管穿内墙、板处设套管,套管采用普通钢套管,套管长度:穿板套管高出地面5cm,穿内墙套管按300mm计算;套管公称直径比给水管公称直径大二号;5、室内给水管安装完成并在隐蔽前做水压试验,试验压力0.7Mpa,排水管做灌水试验;6、不考虑挖填土方内容;注:图中用水器具分别为带自闭冲洗阀蹲便器、普通式单联挂斗式小便器(无水箱)、铜质普通水龙头、铜质淋浴喷头、塑料地漏、塑料清扫口。
四、综合计算题:(将正确答案填入答题卡中,共60分)(一)费用计算题(必做题,不分专业,共10分)计算此费用计算题时,除脚手架搭拆费外,其他有关的册系数增加费用不予考虑。
某安装工程属于市区临街工程,分部分项工程量清单项目费合计为200000元,其中人工费25000元,本工程暂列金额为30000元,允许以费率中值收取安全防护、文明施工措施费,已完工程及设备保护费,材料二次搬运费和安装工程检验试验费。
试按本省现行有关计价规定,完成表(一)、表(二),计算该安装工程造价。
(脚手架搭拆费按人工费的4%计取,其中人工费占25%。
管理费按人工费的40%,利润按人工费的30%,规费中不考虑危险作业意外伤害保险费和农民工工伤保险费)(二)以下试题分电、水、风三个专业,可根据自己专业选做一题,并在下表中打“√”确认,按确认专业评分。
未打“√”确认者,统一按第一项电气专业评分(本题共50分,工程量计算保留3位小数,计价表中的小计四舍五入,保留到整数位。
如图所示为某小区住宅(9层)一楼商铺部分配电干线系统图及电气平面布置图,试根据说明、系统图和平面布置图,用工程量清单法及现行2003版计价依据,按题目要求和步骤计算。
说明:1、楼层地坪至楼板底面高度为6m,商铺内设有吊顶(地坪至吊顶高度为5.0m),照明配电箱M(高×宽=300×500)嵌墙敷设,底边离地面1.8m,开关离地坪距离为1.3m,插座离地坪距离0.3m,电线管采用埋地或嵌墙或楼板内暗敷,埋入地坪或楼板的深度均按0.1m计(其中管、线及塑料安装盒不计超高增加费)。
2、商铺内灯具成套嵌入式双管荧光灯安装在吊顶上,从荧光灯顶面到楼层顶部灯头盒距离为0.9m,采用15#金属软管连接,所有回路均穿UPVC电线管DN25。
3、照明配电箱n1回路中分二路控制6盏嵌入式双管荧光灯分别为(1)—(3)、(4)—(6),n2回路中分三路控制9盏嵌入式双管荧光灯分别为(7)—(9)、(10)—(12)、(13)—(15)。
电气造价员例题例题1:计算接地母线-40*4定额单价定额消耗量如下表(单位:10米)例题2:某工业厂房,1层层高12.5米,2层层高10.5米,电气工程定额人工费55000元,材料费480000元,机械费45000元,电气安装操作物高度均离地9.25米,假定符合超高条件的工作量占25%,试计算工程各类增加费和在计算费率之前的定额直接费及组成?(根据现场签证,本工程为安装与生产同时进行)。
例题3:某市建筑公司承建某县政府办公楼,工程不含税造价为1000万元,求该施工企业应缴纳的营业税是多少?例题4:计算工程总造价本市某施工单位在参与某工业厂房安装工程进行投标活动,建筑物3层,层高6m,根据招标文件要求安全防护、文明施工措施费按直接费、综合费用之和的3.3%计算,但可以优惠10%,工程施工工期为5个月,工程排污费在结算时按实计算,其他施工措施费由投标单位自行报价,报价方法按本市安装工程预算定额(2000)及计价办法,采用工料单价法计算。
投标单位依据招标文件和招标图纸,结合企业自身情况和市场行情,通过计算之后得出直接费为605000元(包括定额中各类增加费用),其中材料费500000元(包括主材费),机械费为50000元,综合费用按34%报价,税金按3.41%报价,外来从业人员综合保险费按上海市2009年职工月平均工资的60%作为缴费基础,以5.5%费率计算,上海市2009年职工月平均工资为3566元,工期自报为5个月,质量自报合格,预计用工人数为110人,其他施工措施费报价为30000元,安全防护、文明施工措施费按90%进行报价,社会保障费率为8.4%,住房公积金费率为1.59%,河道管理费率为0.03%,试计算投标报价的总造价?例题5 要素价格调整某安装施工单位承建某机电安装工程,合同施工工期为6个月,投标时的人工报价为68元/工日、钢材报价为4300元/t;中标时的信息价为:人工单价为70元/工日,钢材单价为4500元/t,施工期间造价管理机构发布的价格以及施工单位每月完成工作量如下表,工程总人工数为20000工日,钢材总重量为150吨,合同中双方未约定调整幅度,根据上海市有关文件规定,施工单位人工和钢材补差总金额为多少?单位万元。
2023年造价工程师考试《安装工程》:电气调整试验考试试卷一、单项选择题(共25题,每题2分,每题旳备选项中,只有1个事最符合题意)1、路肩横向坡度一般应较路面横向坡度大()。
A.4%~3%B.3%~2%C.2%~1%D.1%2、某工程旳施工企业所在地是县城,该企业承揽旳工程旳不含税造价为2023万元,则该工程旳含税造价为__万元。
A.2064B.2065C.2067D.20683、设备更新方案比选旳特点之一是不考虑__。
A.沉没成本B.机会成本C.设备残值D.设备旳经济寿命4、国家是重要旳经济法律关系__,享有经济权利,并承担对应旳经济义务和责任。
A.主体B.客体C.内容D.形式5、路基土方施工时,当地面纵坡不小于()旳深谷陡坡地段,可采用竖向填筑法施工。
A.8%B.10%C.12%D.15%6、在主体专业系数法编制投资估算时,一般采用__为基数。
A.设备费B.工艺设备投资C.直接建设成本D.建筑安装工程费7、沥青表面处治是用沥青和集料按层铺法或拌和措施裹覆矿料。
铺筑厚度一般不不小于()旳一种薄层路面面层。
A.2 cmC.4 cmD.5 cm8、平整场地是指建筑物场地厚度在__以内旳挖、填、运、找平,应按平整场地项目编码列项。
A.±15cmB.±20cmC.±22cmD.±30cm9、与BOT融资方式相比,ABS融资方式旳特点之一是__。
A.实际运作难度大B.可以获得国外先进技术C.投资者承担旳风险较大D.融资成本较低10、某工厂采购一台国产非原则设备,制造厂生产该台设备所用材料费20万元,加工费2万元,辅助材料4000元,专用工具费3000元,废品损失率10%,外购配套件费5万元,包装费2023元,利润率为7%,税金4.5万元,非原则设备设计费2万元,运杂费率5%,该设备购置费为__万元。
A.40.35B.40.72D.41.3811、某工程施工工期为30天,施工需总人工2700工日,而施工高峰期施工人数为150人,则该工程旳劳动力不均衡系数为__。
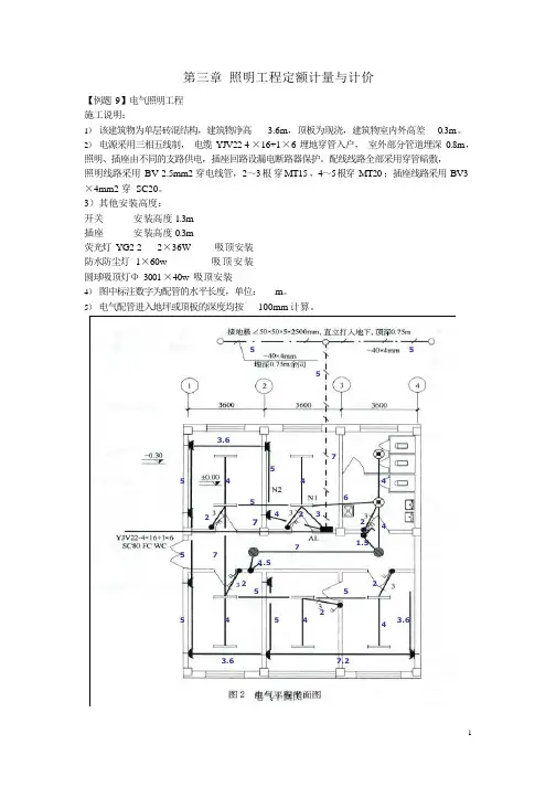
第三章照明工程定额计量与计价【例题9】电气照明工程施工说明:1)该建筑物为单层砖混结构,建筑物净高 3.6m,顶板为现浇,建筑物室内外高差0.3m 。
2)电源采用三相五线制,电缆YJV22-4 ×16+1 ×6 埋地穿管入户,室外部分管道埋深0.8m ,照明、插座由不同的支路供电,插座回路设漏电断路器保护。
配线线路全部采用穿管暗敷,照明线路采用BV-2.5mm2 穿电线管,2~3 根穿MT15 ,4~5 根穿MT20 ;插座线路采用BV3 ×4mm2 穿SC20。
3)其他安装高度:开关安装高度1.3m插座安装高度0.3m荧光灯YG2-2 2×36W 吸顶安装防水防尘灯1×60w 吸顶安装圆球吸顶灯Φ3001 ×40w 吸顶安装4)图中标注数字为配管的水平长度,单位:m。
5)电气配管进入地坪或顶板的深度均按100mm 计算。
5553.67554445624 2 37247 1.5571.5225 5254544 3.63.67.2电气平面图配电箱系统图【例题10】某工程电气照明平面图如下图所示,该建筑物层高3.2m ,成品配电箱规格500mm ×300mm×180mm(W×H×D),箱底距地 1.5m,配管为PVC塑料管,2~3根穿PC20,4~5根穿pv25 ,暗敷,从配电箱引出的 N1 回路穿线为 BV-2 ×2.5mm2PC20WC-CC ;N2 回路穿线为BV-3×2.5PC20FC;N3 回路穿线为 BV-3 ×4PC25WC-CC ;开关距地 1.4m ,N2 回路的插座安装高度为 0.3m ,N3 回路的插座安装高度为 1.8m 。
计算配管、配线工程量。
【例题11】某局部照明工程图施工说明:1)照明配电箱PZ30嵌墙式,安装高度离地 1.5m,尺寸600×700×220(W×H×D)。
第七章10KV架空线路工程定额计量与计价【例题1】某6KV线路工程施工说明:1、该线路是从某变电所引出为某泵站供电的6KV线路,线路全长为1760m(不包括进变电所的高压进户线以及预留长度),导线采用LJ-3×70mm2。
2、全线路共有混凝土电杆31基。
其中7号、8号、11号、12号、20号、21号为Φ190×12000(mm)电杆,其余均为Φ190×10000(mm)电杆。
3、杆型:1号、31号为终端杆,5号杆位60°转角杆,9号杆为45°转角杆,17号杆为耐张杆,25号杆、28号杆为90°转角杆,7号杆、8号杆、11号杆、12号杆、20号杆、21号杆为跨越杆。
线路档距不大于50m。
4、主杆基坑埋深为1.8m,跨越杆两侧拉线盘基坑埋深为1.4m,拉线盘的尺寸为300×600(mm),其余拉线盘基坑埋深为2m,拉线盘的尺寸为400×800(mm)。
5、除转角杆、终端杆、耐张杆安装底盘,底盘的尺寸为600×600(mm),直线杆和跨越杆均无底盘。
6、跨越杆两侧的拉线采用GJ-35,其余拉线采用GJ-50。
7、直线杆、跨越杆采用瓷横担,转角杆、耐张杆、终端杆采用铁横担。
8、线路施工按S电-0420。
9、本工程土质为普通土。
【例题2】某架空配电线路工程,立水泥杆15m 2根,12m 5根,10m 2根,其中15m 电杆不装底盘,其余均安装底盘,试计算电杆基坑挖土方量?【例题3】某办公楼施工用电工程,10KV电源由供电公司架空线路(杆)引来分支线,导线采用LJ-3×70+1×35,供电公司至分支线路1#杆距离为30m,1#杆为三角形排列;1#杆至2#杆距离为50m,2#杆三角形排列;2#杆至3#杆距离为50m,3#杆为(转角杆)水平排列;3#杆至4#杆距离为40m(耐张段),4#杆(终端杆)水平排列,试计算由供电公司杆至4#杆导线的工程量?【例题4】某室外架空线路工程,电杆根数为10根,电杆之间间距为80m,导线跨越公路、通讯线及6KV线路,试计算导线跨越架设工程量?某6KV线路工程走向。
2、清单项目组价:按题意列出工程量清单,并按2003版安装工程预算定额进行组价,费率如下:企业管理费按人工费40%,利润按人工费的30%,风险费按主材费的15%计取)考生可按本人特长选做其中一题,多做者均按每一题评分,其余不得分。
(一)电专业:某山地建筑物发现接地不符合夏季防雷要求,需增加一组接地装置以减小接地电阻,经测算需用室外接地母线50×5镀锌扁钢45m,角钢接地极50×5×2500 5根。
化学处理用药剂30kg。
(假设清单量与定额量相同,定额损耗不计,化学处理所用药剂仅计主材费,安装费不计。
已知接地母线8.5元/m,化学药剂12元/kg,角钢接地极55元/根)试计算该接地装置的综合单价。
四、综合计算题:(将正确答案填入答题卡中,共1题,每题60分,共60分)以下分电、水、风三个专业,可根据自己专业选做一题,并在下表中打“√”确认,按确认专业评分。
未打“√”确认者,统一按第一项电气专业评分。
电气专业:某学校新建教学楼每个教室的电气布置如图,试根据说明和配电系统图,用工程量清单法、现行2003版计价依据,按题目要求和步骤计算该教室内电气工程总造价。
说明:1、楼层地坪至楼板底面高度3.00m,插座中心离地0.3m,照明开关箱M高×宽=300×400嵌墙敷设,底边离地面1.8m,电线管埋地或嵌墙或楼板内暗敷,埋入地坪或楼板的深度均按0.05m计。
2、配用电器单价表:3、电气布置及照明系统见图4、解题时应正确利用统一提供的表格,看清题意按要求答题。
(一)按要求答题和计算工程量;(本题共12分)(1)试按电气布置图和照明系统图,确定1号、4号管内的穿线根数,标注到电气布置图上,并注明管内电线的属性,即是火线、零线、开关线还是接地线。
(本题4分)(2)利用表(一)按工程量清单法计算管、线工程量,要求列式计算,若直接写出总数不得分。
(本小题4分)(3)利用表(二)分别确定本工程按工程量清单计价规范计算和按定额规定计算的工程量(4分)(二)按本电气工程内容填入表(三)“分部分项工程量清单计价表”中的序号、项目编码、项目名称、计量单位和工程数量栏内。
建设工程造价员(安装工程专业)培训班练习题(要求240分钟完成)◆电气安装专业一、设计说明1.某住宅楼电气安装工程,修建在东莞市,共计7层,每层层高为3.6m。
2.照明配电箱箱底距楼面1.5m,暗装、箱外型尺寸(单位:mm):宽×高×厚=505×280×903.水平管在吊顶内敷设,吊顶内电线管的安装高度为3.1m,垂直布管暗敷设在墙内。
吊顶内配管固定支架需用型钢10kg,型钢结构厚度在3mm以上。
4.单相三孔暗插座、三联扳式暗开关距楼面1.5m安装。
5.荧光灯具采用嵌入式格栅吸顶灯。
二、编制内容依据国标《建设工程工程量清单计价规范》(GB50500-2003)、2006年《广东省安装工程计价办法》和《广东省安装工程综合定额》进行工程量清单编制和报价。
承包商结合本企业施工水平,确定人工单价为33元/工日,利润按人工费的25%计算,主要材料价格见表。
请完成以下工作:1.计算图纸范围内的工程量。
2.编制分部分项工程量清单。
3. 计算分部分项工程量清单综合单价计算表(只计算配电箱、吊顶内电线管)。
4.计算分部分项工程量清单综合单价分析表(只计算配电箱、吊顶内电线管)。
5.计算分部分项工程量清单综合单价计价表(只计算配电箱、吊顶内电线管)。
主要材料价格表工程量计算表(清单工程量)表1工程量计算表(定额工程量)表2分部分项工程量清单 表3工程名称:第 页 共 页台1分部分项工程量清单综合单价计算表 表 4工程名称:某住宅楼电气安装工程项目编码:030204018001计量单位:工程数量:分部分项工程量清单综合单价分析表 表06 工程名称:某住宅楼电气安装工程 第 页 共 页 分部分项工程量清单计价表 表07工程名称: 第 页 共 页 m 64.45计量单位:工程数量:分部分项工程量清单综合单价计算表 表 5工程名称:某住宅楼电气安装工程项目编码:030212001001。
建设工程造价员(安装工程专业)培训班练习题(要求240分鐘完成)◆电气安装专业一、设计说明1.某住宅楼电气安装工程,修建在东莞市,共计7层,每层层高为3.6m。
2.照明配电箱箱底距楼面1.5m,暗装、箱外型尺寸(单位:mm):宽×高×厚=505×280×903.水平管在吊顶内敷设,吊顶内电线管的安装高度为3.1m,垂直布管暗敷设在墙内。
吊顶内配管固定支架需用型钢10kg,型钢结构厚度在3mm以上。
4.单相三孔暗插座、三联扳式暗开关距楼面1.5m安装。
5.荧光灯具采用嵌入式格栅吸顶灯。
二、编制内容依据国标《建设工程工程量清单计价规范》(GB50500-2003)、2006年《广东省安装工程计价办法》和《广东省安装工程综合定额》进行工程量清单编制和报价。
承包商结合本企业施工水平,确定人工单价为33元/工日,利润按人工费的25%计算,主要材料价格见表。
请完成以下工作:1.计算图纸范围内的工程量。
2.编制分部分项工程量清单。
3. 计算分部分项工程量清单综合单价计算表(只计算配电箱、吊顶内电线管)。
4.计算分部分项工程量清单综合单价分析表(只计算配电箱、吊顶内电线管)。
5.计算分部分项工程量清单综合单价计价表(只计算配电箱、吊顶内电线管)。
主要材料价格表序号名称型号、规格单位单价(元)1 成套型配电箱XRM302宽*高*厚=(505×280×90)台630.002 三联扳式暗开关ZH-3,250V,6A 个8.803 四联扳式暗开关ZH-4,250V,6A 个9.304 单相三孔暗插座ZH-7,250V,10A 个11.205 电线管φ15 φ15 m 2.206 阻燃铜芯塑料电线ZR-BVV-2.5mm2m 1.147 接线盒、灯头盒个 2.418 插座盒、开关盒个 2.419 成套型荧光灯具HD5409-2,2*40W 套230.0010 型钢(厚度在3mm以上) 圆钢、角钢、扁钢等kg 2.93工程量计算表(清单工程量)表1序号工程名称计算式单位数量1 成套配电箱台 12 三联扳式暗开关个 23 四联扳式暗开关个 14 单相三孔暗插座5+4 个95明敷设电线管(φ15,水平布管)n1:3.8+1.9+2.7+2.75+2.75+2.75+1.6+2.7 m 20.95n2:3.9+1.8+2.75+2.7+2.75 m 13.90n3:6.7+4.9+3.5+2.6 m17.7n4:6.7+0.8+4.4 m11.9n1+n2+n3+n4 m64.456暗敷设电线管(φ15,垂直布管)n1:(3.1-1.5-0.28)+(3.1-1.5)×2m 4.52n2:(3.1-1.5-0.28)+(3.1-1.5) m 2.92n3:(3.1-1.5-0.28)+(3.1-1.5)×5m9.32n4:(3.1-1.5-0.28)+(3.1-1.5)×4m7.72n1+n2+n3+n4 m 24.487管内穿线(2.5mm2)n1:3.8×3+1.9×4+2.7×4+2.75×3+2.75×3+2.75×4+1.6×4+2.7×3+(3.1-1.5-0.28)×3+(3.1-1.5)×2×4m88.56n2:3.9×3+1.8×5+2.75×3+2.7×4+2.75×3+(3.1-1.5-0.28)×3+(3.1-1.5)×5m59.96n3:(17.7+9.32)×3m81.06n4:(13.50+7.72)×3m58.86n1+n2+n3+n4 m288.448 成套型荧光灯6+4 套10工程量计算表(定额工程量)表2序号工程名称计算式单位数量1 明敷设接线盒、灯头盒10+3+2 个152 暗敷设插座盒、开关盒1+2+9 个12分部分项工程量清单 表3工程名称:某住宅楼电气安装工程 第 页 共 页 序号项目编码项目名称计量 单位工程量1030204018001 配电箱成套配电箱嵌墙安装,XRM302型宽×高×厚=505mm ×280mm ×90mm台12030204031001小电器三联扳式暗开关 ZH-3 250V 6A 套23 030204031002 小电器四联扳式暗开关 ZH-4 250V 6A 套 14 030204031003 小电器单相三孔暗插座ZH-7 250V 10A 套 15030212001001 电气配管电线管ф15,吊顶内明敷设,支架制作、安装,接线盒、灯头盒安装m64.456030212001002 电气配管电线管ф15,墙内暗敷设,接线盒、开关盒、插座盒安装m24.487030212003001 电气配线阻燃铜芯塑料电线ZR-BVV-2.5mm 2 管内穿线m288.448030213004001 荧光灯嵌入式格栅吸顶灯安装HD5409-2,2*40W套10台1739.07人工费材料费机械费管理费利润1C2-4-29成套配电箱嵌墙安装台144.3530.2812.1411.0997.86成套配电箱台1630.00630.00小计44.35660.2812.1411.09727.86人工价差(17.86%)7.92 1.989.90高层建筑增加费(2%)1.050.26 1.31合计53.32660.2812.1413.33739.07单价53.32660.2812.1413.33739.07分部分项工程量清单综合单价计算表 表 4工程名称:某住宅楼电气安装工程项目编码:030204018001项目名称: 成套配电箱嵌墙安装工程内容单位数量序号定额编号单 位 价 值(元)总价值(元)计量单位:工程数量:综合单价:分部分项工程量清单综合单价分析表 表06 工程名称:某住宅楼电气安装工程 第 页 共 页 序号项目编号项目名称工程内容综合单价组成综合单价人工费材料费机械 使用费管理费利润1030204018001成套配电箱嵌墙安装XRM302型 宽×高×厚 =505×280×90 成套配电箱嵌墙安装 高层建筑增加费53.32 660.28 12.14 13.33 739.072030212001001电线管ф15吊顶内明敷设电线管明敷设 支架制作、安装 接线盒、灯头盒安装 高层建筑增加费4.514.750.651.031.1312.07分部分项工程量清单计价表 表07工程名称:某住宅楼电气安装工程 第 页 共 页 序号项目编码项目名称计量单位 工程数量金额(元) 综合单价合价1030204018001配电箱成套配电箱嵌墙安装,XRM302型 宽×高×厚=505mm ×280mm ×90mm 台1739.07739.072030212001001电气配管电线管ф15,吊顶内明敷设, 支架制作、安装,接线盒、灯头盒安装m64.4512.07777.91m 64.4512.07人工费材料费机械费管理费利润C2-11-1电线管明敷设(φ15)100m 0.6445263.65122.2942.4172.1465.91365.05电线管(φ15)m 66.38 2.20146.04C2-4-140支架制作100kg 0.1266.1181.0981.5572.8266.5356.81型钢(圆钢、角钢、扁钢)kg 10.5 2.9330.77C2-4-141支架安装100kg 0.1172.9717.2163.8747.3343.2434.46C2-11-433接线盒、灯头盒明装10个 1.518.73 2.47 5.13 4.6846.52接线盒、灯头盒个15.32.4136.87小计241.93306.0241.8866.2060.48716.51人工价差(17.86%)43.2110.8054.01高层建筑增加费(2%)5.70 1.437.13合计290.84306.0241.8866.2072.71777.65单价4.514.750.651.031.1312.07单 位 价 值(元)总价值(元)计量单位:工程数量:综合单价:工程内容单位数量定额编号分部分项工程量清单综合单价计算表 表 5工程名称:某住宅楼电气安装工程项目编码:030212001001项目名称: 电线管φ15,吊顶内明敷设。