刚构桥0号块施工方案
- 格式:doc
- 大小:4.85 MB
- 文档页数:25
刚构桥0号块施⼯⽅案矮寨刚构桥0号块施⼯⽅案⼀、⼯程概况矮寨刚构桥是长沙⾄重庆公路通道吉⾸⾄茶洞⾼速公路K13+507.00处的⼀座特⼤桥梁。
该桥设计为88+2×145+116+67⽶预应⼒混凝⼟变截⾯刚构桥与连续梁组合结构桥,全桥桥长563.24m。
1~3号墩0号块长12⽶,中⼼⾼8.5⽶,顶板宽12⽶,底板宽6.5⽶,在双肢薄壁墩墩顶处设4个1⽶厚的横隔板(具体见图1、图2)。
图1 0号块构造图图2 1—1断⾯及分层浇筑⽰意图⼆、0#块托架检算1、0号块托架组成(图3)图3 托架布置⽰意图○1贝雷梁○2托架○340a⼯字钢○4调坡垫块○532a⼯字钢○640a⼯字钢○7 45a⼯字钢○8砂桶○9Φ32精轧螺纹钢○10Φ105钢棒○11I45a分配梁○122[28a 分配梁图4 A—A断⾯图图5-1 托架⼤样图5-2 砂桶⼤样2、材料数量表(1个0号块)本桥0号块荷载拟分为3个部分,其中双臂墩⾝顶部混凝⼟完全由墩⾝承载,故在检算中不予考虑。
则需检算的荷载为墩⾝两侧悬臂端钢筋混凝⼟及两薄壁墩⾝之间部分底板钢筋混凝⼟重。
3.1、悬臂端检算(⼀)静载(1)混凝⼟的重量:作⽤在托架上的混凝⼟重量按0#块墩⾝范围以外的第⼀次浇筑的混凝⼟重量进⾏计算,其体积V=((7.88+8.12)×0.8+4.9×1+0.5×0.3×0.3×2)×2=35.58m3,混凝⼟的总重量为:35.58×26=925.08KN。
(2)钢筋的重量按照设计图,0#块的设计配筋⽐约为:30941.92/294.75=105Kg/m3,则可计算出作⽤在⽜腿上的钢筋的重量为:35.58×105=37.36 KN(3)、⽜腿上贝雷架的总重量为:143 KN(4)、⼯字钢横梁的重量:I40a总长48⽶,重为:48×67.598×10/1000=32.45 KN[28a总长48⽶,重为:48×31.427×10/1000=15.08 KNI10a总长按182.4⽶计算,重为:182.4×11.261×10/1000=20.5 KN总重量为:32.45+15.08+20.5=68.03 KN(5)、模板的重量:受托架⽀撑的模板的总⾯积约为 6.5×2+(7.88+8.12)×12+(6.88+7.12)×2=233㎡,按每平⽅⽶模板重120kg进⾏计算,模板总重量为:233×120×10/1000=279.6 KN综合(1)~(5)项,总的静载重量为:925.08+37.36+143+68.03+279.6=1453.07 KN (⼆)活载作⽤在托架上的活载主要为⼈员及机械重量,根据施⼯规范,按照操作平台每平⽅⽶⾯积上布置2.5 KN进⾏计算,操作平台总⾯积约为68㎡,则活载总重量为:68×2.5=170KN综上所述,作⽤在平台上的总的重量按公式:F总=1.2F静+1.4F活进⾏计算,则F总=1.2F静+1.4F活=1.2×1453.07+1.4×170=1981.68 KN(三)受⼒检算托架部分受⼒检算主要进⾏以下三个项⽬:1)⽜腿受⼒计算。
0号块施工方案1.目的明确刚构桥0#块的工艺流程、操作要点和相应的工艺标准,指导、规范0#块作业施工。
2.编制依据1)《施工承包合同书》2)《公路工程质量检验评定标准》(JTG F80/1-2004)3)《公路桥涵施工技术规范》(JTJ041-2000)4)《公路工程施工安全技术规程》(JTJ076-95)5)《**合同段总体施工组织设计》3.适用范围适用于**高速公路**合同段***2号大桥0#块施工。
4.施工概况0#块件全长均为11.0米,根部高8.8米,箱梁底宽6.95米,两侧悬臂长2.65米,单幅全宽12.25米,底板厚1米,腹板厚1米。
混凝土标号为C55混凝土,混凝土总方量为425.91m3。
5.施工作业方法5.1.施工概况0#块件全长均为11.0米,根部高8.8米,箱梁底宽6.95米,两侧悬臂长2.65米,单幅全宽12.25米,底板厚1米,腹板厚1米。
混凝土标号为C55混凝土,混凝土总方量为425.91m3。
5.2.牛腿支架安装本方案混凝土分两层浇注,采用翻模施工工艺。
第一层浇注高度为 4.4米及底板、部分腹板、侧板,混凝土方量约为200m3;第二层浇注剩余的部分及腹板、侧板、顶板混凝土,高度为4.4米,混凝土方量约为225.91m3。
图1 0#块牛腿支架施工立面图由于薄壁墩身较高(53.87~64.21m),对于0#块施工期间的承重结构,拟定选用牛腿支架作为承重0#块施工时的支撑结构,其支架布置如上图所示。
图2 0#块牛腿支架施工侧面图主墩墩身牛腿采用I36b工字钢,牛腿斜撑采用2[20槽钢。
在墩身施工过程中,按图要求埋置预埋带有锚固筋的钢板,以便以后焊接牛腿斜撑。
牛腿工字钢(I36)顺桥向布置,其间距为:0#块肋板处1.0m;0#块底板处2.25m,每个薄壁墩共布置5片牛腿。
在两薄壁墩外侧的牛腿上直接布置横向分配梁,而在两薄壁墩内侧,先在牛腿上横桥向布置2I25b组合工字钢,再在2I25b工字钢上安装钢对口楔,然后再在钢对口楔上布置纵向I36纵梁,在纵梁布置好后,再在纵梁上布置I25横向分配梁。
连续钢构桥 0#块及悬臂段施工方案摘要:连续刚构桥具有连续梁不设置伸缩缝,桥面平整度高的优点,同时也具备了T型刚构不设支座、无需体系转换的优点。
近年来,在桥梁工程建设中,连续刚构桥得到了广泛运用,其中0#块及悬臂浇筑段是本类型桥梁成桥的质量控制关键点。
本文以某桥梁工程为例,介绍了墩顶0#梁段的施工要点,包括托架的设计方式、安装方法、模板、钢筋的安装以及混凝土的浇筑施工及悬臂段挂篮设计与安装的注意事项。
关键词:0号块托架施工;悬浇段挂篮设计一、工程概况某桥全长为300m,桥面宽度为12m,为悬浇预应力混凝土连续刚构桥。
主桥上部结构是C50现浇预应力混凝土箱梁,墩顶0#梁段长度为15m,悬浇段共分14节段,其粱段数及粱段长度从根部至跨中各为:6×3.5m+8×4m,累计悬臂总长为57.5m。
边跨、中跨合拢段皆采用2m。
二、连续刚构桥0#块施工1、托架设计与安装托架主要发挥承重作用,可以保证墩身上部的一系列构件(钢筋、模板、混凝土等)牢固、稳定,设计托架时除考虑上部构件的重量外,还应考虑施工过程中的人、机械等荷载。
然后选择相应承载性能的钢材,采用螺栓紧固的方式制作成三角形托架,托架通过桥墩上的预留孔及预埋件进行固定,其上安设纵、横工字钢分配梁及模板,墩身纵向从预留孔洞布置工字钢,在其下方对称布设型钢三角托架,托架经检查签证后方可投入使用。
2、托架预压为验证托架的稳定性、刚度及强度、弹性变形指导梁体高程控制及消除托架的非弹性变形应对托架进行预压。
预压采用堆载预压法,加载材料使用砂袋,加载重量按照最大施工荷载的1.20倍配重。
堆载预压采用分级加载的方法进行。
压重的先后顺序按照混凝土的浇筑顺序进行,先浇筑混凝土的部位先压重,后浇筑混凝土的部位后压重,荷载分别按设计荷载的60%、100%、120%进行。
加载分级为:0→(60%)→(100%)—(120%)。
纵向加载时从中点开始向支点处进行对称布载,横向加载时从中心线向两侧进行对称布载。
大跨度连续刚构桥 0#块施工技术摘要:大跨度连续刚构桥0#块施工是整个桥梁施工过程中至关重要的一个环节,也是施工中的一个难点,为提高大跨度连续刚构桥梁的施工技术水平及施工安全提供依据和施工经验。
本文详细阐述了大跨度刚构连续梁大体积0#块牛腿托架法施工的设计思路和托架受力计算,并通过现场实际施工论证了牛腿托架法在大跨度连续梁0#块施工的安全、经济、合理性。
从我公司管理悬浇施工的0#块的检算为各方面安全控制进行介绍,为以后大跨度高墩连续梁0#块托架设计与施工积累了经验,并为同类结构的设计提供参考。
关键词:连续刚构桥、0#块施工技术随着我国经济的飞速发展,西部的发展是比较落后,逐渐缩小东西部的差距。
在我国西南地区,高速公路发展较为缓慢,因地形高差较大,河流沟谷纵横交错。
因此设置大跨度刚构连续梁桥梁以满足公路建设需求,探讨大跨度桥梁的施工技术工艺,有助于在今后同类桥梁施工水平作为依据及参考。
1 工程概况云南省S35永金高速永仁至大姚段第一合同段K12+190羊蹄江大桥,跨越山间沟谷,桥梁梁底距离沟底高度100.45m。
羊蹄江大桥主桥结构形式为80+150+80连续刚构桥;刚构桥9#墩为单肢薄壁空心墩,墩高为67m,20个悬浇段和合龙段,其中0#块长12米,高9.3米。
箱梁采用C55混凝土;0#块构造布置及预应力体系复杂,因此0#块施工技术是本桥的重难点。
2 总体施工方案故采用托架通过牛腿预埋在墩身上,作为承重结构较为合理。
将0#块施工过程产生的竖向荷载全部由墩身承担。
3 施工技术方案3.1 0#块支架的设计与施工(1)牛腿支架系统墩柱每侧设置两榀三角托架,间距为6.2m;托架平台自下而上一次是φ32mm精轧螺纹钢筋锚固牛腿,牛腿上布置横向主分配梁、纵向次分配梁及底模。
托架及平台在主墩顺桥向外侧纵向布置4个2[40b+30mm槽钢组合梁牛腿。
底模采用厚度为15mm的竹胶板,外模使用每个T构上2个挂篮的外模。
xx大桥连续刚构0号块托架预压方案一、托架与模板构造托架是固定在墩身上部以承担0#块支架、模板、混凝土和施工荷载的重要受力结构,其设计荷载考虑:混凝土自重、模板支架重量、人群机具重量、风载、冲击荷载等,托架采取自支撑体系构件设计。
施工时按图纸要求在墩身混凝土浇筑时预埋好所需预埋的预埋件作为托架支点,要求预埋件位置准确无误,以利托架拼装时连接。
在托架上铺设钢横梁。
横梁上铺设挂篮纵梁,纵梁上铺设钢模,托架刚度经过严格的受力计算。
采用型钢加工,加工精度符合设计图纸要求。
具体0#托架的设计方案为:0号块托架采用三角形墩旁托架承重,托架通过与墩壁预埋钢板焊,承受竖向力,同时在墩内预埋对拉精轧螺纹承受由弯距产生的水平力,0号块模板采用钢模板,面板为6㎜钢板,纵肋采用[8槽钢,纵肋下采用[12.6b槽钢横向分配梁,[12.6b槽钢横向分配梁下纵向分配梁采用2[28b槽钢,立杆采用2[10槽钢(通过立杆高度进行调坡),立杆下垫 [12.6槽钢,纵向分配梁2[28b槽钢、立杆2[10槽钢及立杆下[12.6槽钢组成调坡桁架,采用焊接连接,三角桁架下横向分配大梁采用挂篮的前后下横梁2[32b或I32,托架采用2[20槽钢焊接。
其中横桥向每侧5片。
纵桥侧向每侧放置3片,用工字钢设置桥纵向分配梁,按照各向150cm的空间距离设置,直接支撑箱梁翼缘板部分的模板。
根据墩身宽度、梁底宽度和0#块悬出长度,以及施工操作空间需要,平台平面尺寸为15m×11m,附着墩身高度为4m(墩正面)与1.6m(墩侧面),为三角形桁架式托架。
每片托架分别由双肢槽钢[20b(墩正面)与I25b(墩侧面)组成,双肢之间设置节点联结,每片托架由水平杆、立杆、斜杆、撑杆组成。
每边悬出段由5片(墩正面)3片(墩侧面)托架组成,相互间由水平支撑、斜支撑联结成整体。
xx大桥0号块托架立面图二、预压试验前准备工作(1)托架所有零部件安装齐全,前上横梁、后下横梁及前下横梁安装锁定在0号块的托架上,锁定的吊杆均采用Φ32精轧螺纹钢,上下均采用2颗螺栓予以固定,通过锁定一方面真实的模拟了后续的混凝土施工的工况保证了力量传递的准确性,另一方面消除了其它外来荷载对预压过程的影响。
高速公路项目HC05标段(K43+700~K52+634.5)连续刚构0#块施工技术方案编制:复核审核:高速公路项目五标项目经理部二〇一六年十二月目录1编制依据 (1)2编制原则 (1)3使用范围 (1)4工程概况 (2)4.1 工程概述 (2)4.2 气象及地质条件 (2)4.2.1地质条件 (2)4.2.2水文、气候情况 (2)4.3 施工要求及技术保证条件 (2)4.3.1施工要求 (2)4.3.2技术保证条件 (3)4.4 交通运输 (4)5施工组织安排 (4)5.1 施工准备 (4)5.1.1技术准备 (4)5.1.2现场准备 (5)5.1.3供水供电 (5)5.1.4临时工程 (8)5.2 施工进度计划 (8)5.3 人员配置计划 (8)5.3.1拟投入施工队伍 (8)5.3.2拟投入施工人员 (9)5.4 材料与设备计划 (9)5.4.1拟投入的施工机械 (9)5.4.2拟投入的塔吊 (10)5.4.3拟投入的电梯 (10)6施工方案 (11)6.1 施工技术方案 (11)6.2 技术参数 (11)6.2.1主梁0#块细部尺寸 (11)6.2.2预应力布置 (11)6.3 施工工艺流程 (11)6.4 施工方法 (12)6.4.1施工准备 (12)6.4.2托架施工 (12)6.4.3定位放线 (18)6.4.4钢筋的存储、加工、运输及安装 (18)6.4.5预应力管道和锚垫板的安装 (21)6.4.6模板施工 (22)6.4.7浇筑混凝土 (25)6.4.8模板拆除 (27)6.4.9混凝土养护 (27)6.4.10预应力施工 (28)6.4.11管道压浆 (31)6.5 施工要点及注意事项 (32)6.6 质量标准及检测 (32)6.6.1基本要求 (32)6.6.2实测项目 (33)7安全保障措施 (33)7.1组织保障 (33)7.2制度保障 (33)7.3安全保证措施 (36)7.3.1临时用电 (36)7.3.2施工机械设备 (38)7.3.3支架支撑 (38)7.3.4模板安装 (38)7.3.5钢筋焊接 (39)7.3.6混凝土施工 (39)7.3.7模板、支架拆除 (40)8质量保证措施 (40)8.1 质量管理体系 (40)8.2 质量管理组织机构 (41)8.3 质量管理制度 (42)8.4 质量保证措施 (46)8.4.1 组织保证 (46)8.4.2 材料和机械设备采购保证措施 (46)8.4.3 质量管理保证措施 (47)8.4.4 技术保证措施 (47)9环水保及文明施工保证措施 (50)9.1 管理、组织措施 (50)9.2 空气污染防治措施 (50)9.3 噪声污染的防治措施 (50)9.4 固体废弃物污染的防治措施 (51)9.5 水土保持措施 (51)连续刚构0#块施工技术方案1编制依据本专项方案在符合我国国家相关法律、法规、条例,某某市相关规定的基础上,主要以下列文件和资料为依据进行编制:(1)国家现行技术规范及设计技术标准:《公路桥涵施工技术规范》(JTG TF50-2011)《公路工程质量检验评定标准》(JTGF80/1-2004)《施工现场临时用电安全技术规范》(JGJ46-2005)《混凝土结构工程施工质量验收规范》GB50204-2011《混凝土质量控制标准》GB50164-2011《混凝土强度检查评定标准》GBJ50107-2010(2)《高速公路项目两阶段施工设计图》及相关文件;(3)《某某市公路水运工程强制性要求》2012;(4)我部对本项目现场和周围环境调查掌握的有关资料;(5)实施性施工组织设计等。
连续刚构桥0#、1#块托架现浇施工工艺标准1.适用范围连续刚构桥梁墩身高度大于20m时,一般采用托架现浇法进行0、1#块施工。
2.基本规定(1)钢筋和模板加工必须在专门加工场内进行。
(2)托架须进行专门设计,验算过程须经第三方和设计单位复核无误后方可实施。
(3)托架应严格按照规范及方案要求的预压重量和预压时间进行,并做好沉降观测。
(4)悬浇施工中由专门的监控单位加强监测监控。
根据施工监测所得到的结构参数真实值进行施工节段计算,确定出每一节段悬臂端的立模高程,并在施工过程中根据施工监测的成果对误差进行分析、预测和对下一立模高程进行调整。
(5)须编制专项施工方案,并及时报批。
(6)严格执行首件工程验收制,报监理工程师验收后,方可进行规模生产。
(7)工序资料与施工进度同步,做到签证及时、资料齐全、页面工整、字迹清晰,施工重点部位及隐蔽工程应及时保存影像资料。
3.施工准备3.1技术准备及要求(1)应完成施工详图的复核、会审,变更图纸应具备批复文件。
(2)应做好原材检测工作,进行混凝土配合比设计并及时报送审批。
(3)根据设计图纸,复核每束钢绞线的张拉力和伸长量。
(4)对托架架、模板系统进行受力验算,形成计算书,报公司和监理工程师审批。
托架的布置,根据箱梁截面尺寸大小并通过计算确保强度、刚度、稳定性满足要求,计算时除考虑梁体重量外,还需考虑模板、支架重量,施工荷载(人、料、机等),作用在模板、托架上的风荷载等。
(5)施工前做好各级安全、技术交底工作,并对各类施工人员进行岗前培训。
技术人员应熟悉规范、规定、图纸和各种操作程序,相关操作人员应数量掌握0#块施工的各项要求。
3.2材料准备及要求(1)原材料:水泥、碎石、砂、钢筋、钢绞线、锚具等,由材料员和试验员按相关规定进行检验或外委试验,确保原材料质量符合相应规范及标准。
(2)混凝土配合比设计及试验:按混凝土设计强度要求,由工地试验室做设计配合比,驻地办试验室及中心实验室平行验证试验结果,以满足混凝土浇筑的要求。
连续刚构桥梁O#块工具式托架施工工法连续刚构桥梁O#块工具式托架施工工法一、前言连续刚构桥梁是现代桥梁建设中常见的一种桥梁类型,其施工工艺也在不断发展和完善。
O#块工具式托架施工工法是一种先进的施工工法,通过使用特殊的工具和设备,能够提高施工效率、保证质量、降低成本,并且能够适应各种桥梁断面形式。
二、工法特点O#块工具式托架施工工法具有以下特点:1. 施工快速高效:通过使用模块化的工具和设备,能够高效完成桥梁的施工,提高施工速度。
2. 质量可控:工具与模板的结合能够确保施工过程中的精度和一致性,确保结构的质量。
3. 适应性强:工法适用于不同形式的连续刚构桥梁,能够满足各种桥梁的需求。
4. 施工安全:通过科学的施工组织和安全措施,保障施工过程中的安全。
三、适应范围该工法适用于各种形式的连续刚构桥梁,包括悬索桥、斜拉桥、梁柱桥等。
无论是跨度较小的城市桥梁,还是跨越大江大河的大型桥梁,都可以采用该工法进行施工。
四、工艺原理该工法的工艺原理是基于结构力学和现代施工理念。
通过使用特殊的工具和模板,能够实现连续刚构桥梁的施工。
具体采取的技术措施包括模板浇注、摆放钢筋、浇筑混凝土等。
五、施工工艺1. 施工准备:制定详细的施工计划、组织人员和机械设备、准备材料和工具。
2. 模板安装:根据设计要求安装模板,保证模板的准确和稳定。
3. 钢筋布置:根据设计要求,将钢筋摆放在模板上,并进行合理的连接和绑扎。
4. 混凝土浇筑:采用预制混凝土悬挑段的方式进行浇筑,确保混凝土的质量和强度。
5. 拆除模板:待混凝土充分硬化后,拆下模板,进行喷混凝土保护层和施工缝处理。
六、劳动组织施工工法需要有合理的劳动组织,包括施工人员的分工和配合,协调机械设备的使用,确保施工进度和质量。
七、机具设备该工法需要使用特殊的工具和设备,包括模板、起重机械、混凝土搅拌机等。
这些机具设备具有高效、安全、精确的特点,能够满足施工的需求。
八、质量控制施工过程的质量控制是保证桥梁施工工程质量的重要环节。
双肢墩连续刚构桥0#块预埋爬锥刚结桁架施工工法双肢墩连续刚构桥0#块预埋爬锥刚结桁架施工工法一、前言双肢墩连续刚构桥是一种常见的桥梁结构形式,它能够满足中小跨径桥梁的工程需求。
而0#块则是实现双肢墩连续刚构桥的关键组成部分之一,它需要采用合适的施工工法来进行预埋爬锥刚结桁架的施工。
本文将详细介绍这种施工工法的特点、适应范围、工艺原理、施工工艺、劳动组织、机具设备、质量控制、安全措施、经济技术分析以及一个工程实例。
二、工法特点双肢墩连续刚构桥0#块预埋爬锥刚结桁架施工工法具有以下特点:1. 施工工艺简洁明了,适用于中小跨径桥梁。
2. 预埋爬锥刚结桁架能够提高桥梁的整体刚度和承载能力。
3. 通过合理的劳动组织和机具设备使用,能够提高施工效率。
4. 采用严格的质量控制和安全措施,能够确保施工质量和施工安全。
三、适应范围该工法适用于中小跨径的双肢墩连续刚构桥的施工,可以用于公路、铁路等各类交通工程的建设。
四、工艺原理0#块预埋爬锥刚结桁架的施工工法与实际工程之间存在以下联系和技术措施:1. 首先,在设计阶段需要进行桥梁结构的确定和爬锥刚结桁架的预埋位置的确定。
2. 在施工前,需要准备好相应的模板和爬锥刚结桁架的制作及运输。
3. 施工过程中,通过合适的劳动组织和机具设备的使用,将爬锥刚结桁架与0#块进行连接和固定。
4. 同时,需要进行质量控制和安全措施的实施,保证施工质量和施工安全。
五、施工工艺该工法的施工过程包括以下几个阶段:1.运输与安装预制爬锥刚结桁架。
2. 0#块的放置与与爬锥刚结桁架的连接。
3. 0#块与连续梁的浇筑与养护。
六、劳动组织在施工中需要合理组织人力资源,包括施工人员、监理人员和相关专业人员。
同时,需要制定详细的施工方案和工程计划,保证施工进度和质量。
七、机具设备该工法所需机具设备主要有:吊车、起重机、混凝土搅拌机、模板等。
这些机具设备需要满足安全、高效、稳定的要求,并且需要经过专业人员的操作和维护。
XX大桥0#块预压专项方案一、工程概况1、XX大桥o#块基本情况XX大桥主桥2#、3#墩0#块纵桥总长14米,高8米,墩身前后悬臂长2. 0 米,0#块悬臂端底板宽度由9. 5米至6. 5米渐变,厚度由1. 1米变为0.885米, 腹板厚度为0.8米,0#块顶板厚度为0.6米,宽度为12. 5米。
XX大桥0#块混凝土564m3,自重1466. 4t,采用墩顶托架现浇的方法施工。
根据施工图纸和现场实际情况,XX大桥0#块箱梁分两次浇筑,第一次浇筑0-3. 8 米,第二次浇筑剩余4. 2米。
XX大桥前后悬臂端2. Om处混凝土方量各为62. 645m 3,双薄壁箱式部位混凝土为176. 708m3,双薄壁墩柱处混凝土方量为262. 002m 3(此处不考虑预压)。
2、XX大桥0#块托架情况简介本桥0#段支架采用销接牛腿式托架,顺桥向悬臂端共设置2组牛腿托架,其间距为6m,在水平杆及斜杆之间均设置剪刀撑连接。
托架的水平杆长度4. 0m, 销孔间距dl =3. 06m,重量约5. 2kN。
斜杆长度4. 7m,销孔间距d2 = 4. 328m, 重量约6. IkN托架水平杆及斜杆均采用2140b槽钢组焊件,材质均为Q235钢。
钢销采用①100钢销,材质为45号钢。
在薄壁墩上预埋托架连接钢板及支撑横梁所用的钢板。
预埋钢板均为900X360X3Onm1,材质为Q235钢。
预埋钢板焊有锚固钢筋及穿入横向钢筋的孔。
托架前横梁为2136b组焊件,长度12m,重量15kN。
托架后横梁为2140b 组焊件,长度13m,重量约23kN。
底模纵梁采用136b工字钢(共25根,其中每侧腹板下布6根,腹板外侧分布4根,中间底板均匀分布5根),长度2. 7m。
主墩间横梁为2140b组焊件,长度12m,重量约22kN0纵梁也采用136b工字钢(共25根,每侧腹板下布6根,腹板外侧分布4根,中间底板均匀分布5根),长度6.45m。
翼缘板纵梁采用136b工字钢(共4根,每侧翼缘板下布2根通长)。
大跨度连续刚构桥0#块装配式托架施工工法大跨度连续刚构桥0#块装配式托架施工工法一、前言大跨度连续刚构桥的施工一直是工程建设中的难题之一,传统的施工方法存在时间长、成本高、施工效率低等问题。
为了解决这些问题,0#块装配式托架施工工法应运而生。
本文将介绍该工法的特点、适应范围、工艺原理、施工工艺、劳动组织、机具设备、质量控制、安全措施、经济技术分析以及具体工程实例。
二、工法特点0#块装配式托架施工工法具有如下特点:1. 利用模板一次性浇筑多跨度混凝土梁,使施工周期大大缩短。
2. 采用预制托架,在施工现场进行模块化组装,使施工过程更加简化。
3. 可以适应不同大跨度桥梁的施工,具有很强的灵活性。
4. 施工过程中对现场环境的要求较低,适用于各种场地条件。
5. 提高了施工的安全性,减少了危险因素。
6. 施工质量可控,确保了桥梁的使用寿命。
三、适应范围0#块装配式托架施工工法适用于大跨度连续刚构桥梁的施工,尤其适用于跨度较大、曲线桥梁和特殊形状桥梁的建设。
该工法可以满足不同桥梁的设计要求,并适应各种复杂的地形和环境条件。
四、工艺原理0#块装配式托架施工工法的理论依据是利用预制托架在施工现场进行模块化组装。
根据实际工程需要,设计和制造托架的模型,进行试装和调整,确保模型的准确性和稳定性。
在施工过程中,将预制的托架按照设计要求组装在桥梁的支座上,并使用临时支撑保持稳定。
然后,根据预设的浇筑工艺进行混凝土的浇筑和养护。
待混凝土完全硬化后,拆除临时支撑和模板,完成梁体的施工。
五、施工工艺0#块装配式托架施工工法的施工过程包括以下几个阶段:1. 设计和制造托架模型。
2. 在施工现场进行试装和调整。
3. 将托架组装在桥梁的支座上,使用临时支撑保持稳定。
4. 进行混凝土的浇筑和养护。
5. 待混凝土硬化后,拆除临时支撑和模板。
6. 完成梁体的施工。
六、劳动组织0#块装配式托架施工工法需要合理组织施工人员,安排工作任务和时间节点,确保施工进度和质量。
云南麻昭高速公路三岔沟特大桥连续刚构梁0#块专项施工方案中国铁建大桥工程局集团有限公司云南麻昭高速公路B1工区项目部连续刚构0#块施工专项施工方案一、编制依据及原则1.1编制依据国家高速公路网G85云南麻昭高速公路两阶段施工图及相关设计文件《公路工程质量检验评定标准》(第一册土建工程 JTG F80/1-2004)《公路桥涵施工技术规范》(JTG/T F50-2011)《公路桥涵工程施工安全技术规程》(JTJ076-95)《预应力混凝土用锚具、夹具和连接器应用技术规程》JGJ85-2010《预应力混凝土桥梁用塑料波纹管》JT/T 529-2004《预应力混凝土用钢绞线》(GB/T 5224-2003)《混凝土泵送施工技术规范》JGJ/T 10-2011《钢筋焊接机验收规程》JGJ18-2003《路桥施工计算手册》ISBN 7-114《钢结构设计手册》(下)第三版ISBN 978-7-112《钢结构工程计算速查手册》 ISBN 978-7-5609国家、交通运输部颁发的现行桥梁设计、施工规范、技术规程、质量检验评定标准及验收办法等。
投标文件、施工合同。
本承包人对工程现场的施工调查所收集的信息与资料。
本承包人拥有的施工设备与类似工程施工经验。
1.2编制原则1.2.1遵循《合同文件》的原则,严格按招标文件中的工期、质量、安全目标等要求编制施工技术方案,使建设单位各项要求均得到有效保障;1.2.2遵循《施工设计图纸》的原则,在编制施工技术方案时,认真阅读核对所获得的设计文件资料,理解设计意图,掌握现场情况,严格按设计资料和设计原则编制施工技术方案,满足设计标准和要求;1.2.3遵循“安全第一、预防为主”的原则,从制度、管理、方案、资源等方面制定切实可行的措施,确保安全施工,服从建设单位及监理工程师的监督、监理,严肃安全纪律,严格按规章程序办事。
二、工程概况2.1工程简介三岔沟特大桥是云南麻昭高速公路“八桥八隧”控制性工程之一,也是单跨最大的刚构桥之一。
大跨度连续刚构桥0号段自承法施工工法大跨度连续刚构桥0号段自承法施工工法一、前言大跨度连续刚构桥是一种常见的桥梁形式,其具有减少跨中支承对桥梁结构的影响、提高通行能力等优点。
在桥梁施工中,自承法是一种常用的施工方法,通过连续施工完成桥梁的搭建。
本文将介绍大跨度连续刚构桥0号段自承法施工工法,并对其工法特点、适应范围、工艺原理、施工工艺、劳动组织、机具设备、质量控制、安全措施、经济技术分析以及工程实例进行详细介绍。
二、工法特点大跨度连续刚构桥0号段自承法施工工法具有以下特点:1. 施工连续性强:采用自承法施工工法可以实现施工的连续性,减少桥梁建设周期,提高施工效率。
2. 结构稳定:施工过程中采取合理的加固措施,确保桥梁结构在施工过程中的稳定性。
3. 施工安全:工法采取一系列安全措施,确保施工过程中的安全性,减少施工事故的发生。
4. 成本控制:施工工法能够有效控制成本,提高经济效益。
三、适应范围大跨度连续刚构桥0号段自承法施工工法适用于长跨度、大断面的桥梁建设,特别适合用于公路、高铁等交通重要线路上。
四、工艺原理该工法采取现浇箱梁直接自悬浇筑的方式进行施工。
具体工艺原理如下:1. 基础施工:首先进行桩基施工,并按照设计要求设置架梁台等辅助构筑物。
2. 模板支撑搭设:搭设适应梁体形状的模板支撑,确保梁体的施工精度。
3. 临时悬挂施工设备:通过施工设备悬挂在模板支撑上,以实现连续施工和模板的移动。
4. 浇筑混凝土:在模板上进行混凝土的浇筑,确保梁体的整体性和强度。
5. 模板拆除:混凝土养护完成后,进行模板的拆除,以完成梁体的构筑。
6. 后续工序:进行涂装、防水、伸缩缝安装等后续工序,完善桥梁的使用功能。
五、施工工艺大跨度连续刚构桥0号段自承法施工工艺包括以下阶段:1. 模板支撑搭设:根据设计要求,搭设适应梁体形状的模板支撑系统。
2. 施工设备悬挂:将施工设备悬挂在模板支撑系统上,确保施工的连续性和高效性。
连续刚构桥悬臂施工0号块托架的设计与施工一、设计原则:1.合理布置工况:根据连续刚构桥的荷载特点、施工方法和预应力张拉的工艺要求,合理布置0号块托架位置和构架结构。
2.安全可靠:确保托架结构的强度、刚度及稳定性满足设计要求。
特别是在大跨度桥梁施工中,要注意托架的稳定性和抗倾覆能力。
3.施工方便快捷:设计时要充分考虑托架的调整和拆卸,便于现场施工操作。
二、设计步骤:1.确定横向位置:根据设计要求和预应力布置情况,确定0号块的位置。
2.确定纵向位置:根据悬臂施工的承重点和分块施工的要求,确定0号块的纵向位置。
3.设计托架结构:根据施工方案和荷载要求,设计0号块托架的结构形式、支撑方式和铺设方式。
4.进行受力计算:根据0号块的荷载特点,进行受力计算,包括静力计算和动力计算,确保托架结构的强度和刚度满足要求。
5.进行稳定性计算:针对悬臂托架的稳定性问题进行计算分析,确保托架结构的稳定性和抗倾覆能力。
6.进行材料选择:根据受力和稳定性计算结果,选择合适的材料,包括托架材料和连接件材料。
7.绘制托架结构图:根据设计要求,进行托架结构的绘制,包括结构示意图、节点连接图和施工图等。
三、施工步骤:1.搭设临时支架:按照设计要求,在悬臂位置搭设临时支架,用于支撑和固定先端悬臂。
2.安装0号块托架:按照设计要求,在临时支架上安装0号块托架,包括支撑立柱、托架梁和连接件等。
3.调整托架位置:根据设计要求,对0号块托架进行调整,使其达到预定的位置和角度。
4.进行现场检查:在安装完托架后,进行现场检查,包括托架的稳定性和位置偏差等。
5.进行预应力张拉:在0号块托架安装完毕后,进行预应力张拉工艺,利用张拉器对预应力钢束进行张拉,并根据设计要求进行调整。
6.传递荷载:在预应力张拉完成后,通过临时支架将悬臂荷载传递到0号块托架上,确保托架结构的稳定和安全。
7.进行质量检查:在悬臂施工过程中,进行质量检查,包括托架的强度、刚度和稳定性等。
x x铁路x x标x x江特大桥60米连续刚构0#块施工方案编制:审核:审批:XX公司xx铁路xx标段经理部二0一四年十二月目录第一章概述......................................................................................................................................... - 3 -一、编制目的、依据与原则 ....................................................................................................... - 3 -二、工程概况............................................................................................................................... - 4 -三、工程特点............................................................................................................................... - 5 -四、控制重点............................................................................................................................... - 5 -第二章施工工艺............................................................................................................................... - 6 -第一节临时固结 ....................................................................................................................... - 6 -一、支座垫石 ....................................................................................................................... - 6 -第二节支架系统 ....................................................................................................................... - 8 -一、支架系统 ....................................................................................................................... - 8 -二、支架的预压 ................................................................................................................. - 13 -三、支架拆除装置 ............................................................................................................. - 14 -四、支架的拆除顺序 ......................................................................................................... - 14 -五、支架的安全保证措施 ................................................................................................. - 14 -第三节模板工程 ....................................................................................................................... - 15 -一、底模............................................................................................................................. - 15 -二、外侧模......................................................................................................................... - 15 -三、横隔墙和腹板内侧模采用组合钢模组拼 ................................................................. - 15 -第四节钢筋工程 ..................................................................................................................... - 16 -第五节预应力管道 ................................................................................................................. - 17 -第六节混凝土工程 ................................................................................................................. - 18 -一、混凝土配合比 ............................................................................................................. - 18 -二、浇注工艺及设备 ......................................................................................................... - 19 -三、混凝土的浇注顺序 ..................................................................................................... - 20 -四、混凝土的浇筑注意事项 ............................................................................................. - 20 -五、防裂措施(主要是结合科研课题内容进行) ......................................................... - 22 -六、混凝土的温度监控 ..................................................................................................... - 24 -七、混凝土的养生 ............................................................................................................. - 25 -六、预应力工程 ................................................................................................................. - 26 -七、真空压浆 ................................................................................................................... - 26 -第三章质量管理措施 ..................................................................................................................... - 28 -一、质量目标............................................................................................................................. - 28 -二、质量检查程序 ..................................................................................................................... - 28 -三、施工阶段的质量措施 ...................................................................................................... —29 -第四章安全管理措施 .. (30)第五章施工组织............................................................................................................................. - 32 -一、主要机械设备 ..................................................................................................................... - 32 -二、人员组织 (32)第一章概述一、编制目的、依据与原则1 编制目的2 编制依据《48.05+3×60+48.05m双线连续梁(悬臂浇筑施工)》(LYS—12标—15-梁设3)《铁路混凝土工程施工质量验收补充标准》(铁建设[2005]160 号)《客运专线铁路桥涵工程施工质量验收暂行标准》(JTJ041—2000)《客运专线铁路桥涵工程施工技术指南》(TZ213-2005)《铁路桥涵施工规范》(TB10203—2002)《兰渝铁路高性能混凝土施工实施细则》《常用跨度梁桥面附属设施》(通桥[2008]8388A)3 编制原则3。
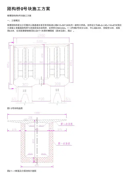
矮寨刚构桥0号块施工方案一、工程概况矮寨刚构桥是长沙至重庆公路通道吉首至茶洞高速公路K13+507.00处的一座特大桥梁。
该桥设计为88+2×145+116+67米预应力混凝土变截面刚构桥与连续梁组合结构桥,全桥桥长563.24m。
1~3号墩0号块长12米,中心高8.5米,顶板宽12米,底板宽6.5米,在双肢薄壁墩墩顶处设4个1米厚的横隔板(具体见图1、图2)。
图1 0号块构造图图2 1—1断面及分层浇筑示意图二、0#块托架检算1、0号块托架组成(图3)图3 托架布置示意图○1贝雷梁○2托架○340a工字钢○4调坡垫块○532a工字钢○640a工字钢○7 45a工字钢○8砂桶○9Φ32精轧螺纹钢○10Φ105钢棒○11I45a分配梁○122[28a 分配梁图4 A—A断面图图5-1 托架大样图5-2 砂桶大样2、材料数量表(1个0号块)本桥0号块荷载拟分为3个部分,其中双臂墩身顶部混凝土完全由墩身承载,故在检算中不予考虑。
则需检算的荷载为墩身两侧悬臂端钢筋混凝土及两薄壁墩身之间部分底板钢筋混凝土重。
3.1、悬臂端检算(一)静载(1)混凝土的重量:作用在托架上的混凝土重量按0#块墩身范围以外的第一次浇筑的混凝土重量进行计算,其体积V=((7.88+8.12)×0.8+4.9×1+0.5×0.3×0.3×2)×2=35.58m³,混凝土的总重量为:35.58×26=925.08KN。
(2)钢筋的重量按照设计图,0#块的设计配筋比约为:30941.92/294.75=105Kg/m³,则可计算出作用在牛腿上的钢筋的重量为:35.58×105=37.36 KN(3)、牛腿上贝雷架的总重量为:143 KN(4)、工字钢横梁的重量:I40a总长48米,重为:48×67.598×10/1000=32.45 KN[28a总长48米,重为:48×31.427×10/1000=15.08 KNI10a总长按182.4米计算,重为:182.4×11.261×10/1000=20.5 KN总重量为:32.45+15.08+20.5=68.03 KN(5)、模板的重量:受托架支撑的模板的总面积约为 6.5×2+(7.88+8.12)×12+(6.88+7.12)×2=233㎡,按每平方米模板重120kg进行计算,模板总重量为:233×120×10/1000=279.6 KN综合(1)~(5)项,总的静载重量为:925.08+37.36+143+68.03+279.6=1453.07 KN (二)活载作用在托架上的活载主要为人员及机械重量,根据施工规范,按照操作平台每平方米面积上布置2.5 KN进行计算,操作平台总面积约为68㎡,则活载总重量为:68×2.5=170KN综上所述,作用在平台上的总的重量按公式:F总=1.2F静+1.4F活进行计算,则F总=1.2F静+1.4F活=1.2×1453.07+1.4×170=1981.68 KN(三)受力检算托架部分受力检算主要进行以下三个项目:1)牛腿受力计算。
2)牛腿预埋部分混凝土受压及Φ32mm精扎螺纹钢受力计算。
3)贝雷桁架受力计算。
4)牛腿上砂筒检算。
1)牛腿受力计算牛腿设计如图6所示:(单位:cm)图6 托架受力计算简化图根据牛腿受力特点,牛腿检算项目为:①牛腿I40a工字钢横梁检算②牛腿I25a工字钢斜撑及连接螺栓检算。
①牛腿I40a工字钢横梁检算检算内容包括:弯曲应力检算、剪应力检算以及挠度检算。
横梁受力计算图式简化如图七所示:图7 横梁受力简化图⑪ 弯曲应力计算根据图7可求得支座反力R 左=144.5KN ,R 右=103.21KN图8 横梁弯矩图根据图8可计算横梁所受最大弯曲应力:MPa 27.337.10851012.363max =⨯==W M Wσ≤[w σ]=170 MPa(满足要求) ⑫ 剪应力检算图9 横梁剪力图根据图9可计算横梁所受最大剪应力:MPa 0.405.1014.2172.6315.144I S Q x xmax max =⨯⨯==d τ≤[w σ]=85MPa(满足要求)⑬ 挠度验算简支梁的最大挠度值根据《路桥施工手册》计算如下:(各参数见图7)]2L b 4L a b 2[(LI E 6bP f 32322a c b b -*-*+**-*+*****=)=]15.07.035.035.022.135.042.115.035.02[(2.1171421.261035.0855.231323223-⨯-⨯+⨯⨯-⨯+⨯⨯⨯⨯⨯⨯) =0.08mm ≤[l/400]=3 mm (满足要求)②牛腿I25a 工字钢斜撑及其连接螺栓检算检算内容包括:斜撑正应力检算、螺栓强度检算。
牛腿I25a 工字钢斜撑受力如图10所示:Ⅰ-Ⅰ截面受力图牛腿受力简化图CA力单位:KN 尺寸单位:cm图10 牛腿受力简化及各杆件内力图⑪ 斜撑正应力检算:M B =0,123.855×35+123.855×(35+70)=F AC ×120×sin45 F AC =204.35KNMPa 1.4248511035.204Ax F 3CA =⨯==Wσ≤[σ]=170 MPa (满足要求) ⑫ 连接螺栓强度检算:斜撑螺栓连接如右图所示(1个连接板用8个Φ20螺栓): 连接螺栓整体受力:P=144.5KN (图10) 单个螺栓受力:Q=P ÷n=144.5÷8=18.06KN 式中:Q——单个螺栓剪应力; P ——牛腿剪力: n ——螺栓数量n=8 剪应力:MPa 5.57101006.18A Q 23s =⨯⨯==πτ≤[τ]=85 MPa(满足要求) 名义挤压应力:MPa 8.49225.168105.144ntd P A F 3bs bs bs=⨯⨯⨯===σ≤[bs σ]=210 MPa (满足要求) 2)牛腿预埋部分混凝土受压及Φ32mm 精轧螺纹钢检算检算内容包括:混凝土局部受压应力检算、Φ32mm 精轧螺纹钢受拉应力检算。
⑪、混凝土局部受压检算:墩身混凝土在托架支座处局部受压,该处所承受的压力从图10可知:P=247.71KN 。
该处预埋钢板尺寸为250×150mm ,即混凝土局部受力面积A=250×150=37500mm 2则混凝土所承受的压应力:MPa 6.6375001071.247A P 3=⨯==σ<[σb ]=55.0M Pa (满足要求) ⑫、Φ32mm 精轧螺纹钢受拉应力检算:根据图10可知,Φ32mm 精轧螺纹钢所承受的拉力F =144.5KN ,则其所承受的拉应力为:MPa 6.1791616105.144A F 3G =⨯⨯⨯==πσ<[σb ]=550 MPa (满足要求) 3)贝雷梁检算根据贝雷桁架受力特点,其受力检算分两个内容,即:①抗弯能力计算;②桁架挠度计算。
贝雷桁架受力可以简化为图11所示:q=313.8KN/mq=313.8KN/mA CB D图11 贝雷梁受力简化图贝雷梁的力学参数如下:A 、B 点处的弯矩M=9.15618.31321qa 2122=⨯⨯=KN ·m <[M]=1576.4 KN ·m (满足要求)AB 段最大弯矩M max根据《路桥施工计算手册》计算AB 段弯矩如下:M =2La q -]L x -)L 2a )(1x a -[(12qLx 21+ 式中:q=36.3KN/m ,L=10m ,x=6m ,q 1=(313.8-36.3)=277.5 KN/mM max =85.296215.277-]106-)102)(161-[(126103.362=⨯+⨯⨯ KN ·m <[M]=1576.4 KN ·m (满足要求)⑫ 桁架挠度计算端头弯矩:f c = f d =1)-La 3L a 624EI qaL )L a (2EI 8L a q 3322331+++( =1)-l013l0164.5009941.2241011036.3)101(24.5009941.28101105.27733223333+⨯⨯⨯⨯⨯++⨯⨯⨯⨯⨯(=-0.61mm 跨中最大弯矩:f max =16EI L a q )La 24-(584EI 3qL 221224- =500994.42.11610101277.5)01124-(5500994.42.1843101036.33222234⨯⨯⨯⨯⨯-⨯⨯⨯⨯ =2.7mm ≤[l/400]=25 mm (满足要求)4)牛腿上砂筒检算:砂筒内管采用内径υ119mm 、壁厚4mm 的无缝钢管,高度160mm ,管内填充普通砼。
砂筒外管采用内径υ150mm 、壁厚5mm 的无缝钢管,高度160mm 。
砂筒顶和底焊接20mm 的钢板,砂筒底部留υ28的螺栓孔,便于砂子的流出。
每个0号块有8个牛腿,每个牛腿上放2个砂桶,则每个砂桶所受力:F1=F2=F 总÷(8×2)=1981.68÷16=123.855KN牛腿上砂筒的荷载小于双臂墩之间底板的砂筒荷载,因此,牛腿上砂筒不进行检算,砂筒的具体检算和荷载试验见双臂墩间砂筒的检算。
3.2、双臂墩身之间荷载检算(一)静载(1)混凝土的重量:作用在托架上的混凝土重量按0#块两墩之间的第一次浇筑的混凝土重量进行计算,其体积 V=69.76m ³,混凝土的总重量为:69.76×26=1813.76KN 。
(2)钢筋的重量按照设计图,0#块的设计配筋比约为:30941.92/294.75=105Kg/m ³,则可计算出作用在牛腿上的钢筋的重量为:69.76×105=73.25 KN(3)、工字钢横梁的重量:60.49KN(4)、模板的重量:受托架支撑的模板的总面积约为6.5×4+(7.88+8.12)×4×2=154㎡,按每平方米模板重120kg 进行计算,模板总重量为:154×120×10/1000=184.8 KN 综合(1)~(4)项,总的静载重量为:1813.76+73.25+60.49+184.8=2132.3 KN(二)活载作用在托架上的活载主要为人员及机械重量,根据施工规范,按照操作平台每平方米面积上布置2.5 KN 进行计算,操作平台总面积约为26㎡,则活载总重量为:26×2.5=65KN综上所述,作用在平台上的总的重量按公式: F 总=1.2F 静+1.4F 活 进行计算,则F 总=1.2F 静+1.4F 活=1.2×2132.3+1.4×65=2649.76 KN(三)受力检算1)底板下工字钢(⑥—a 、⑥—b 号)检算:腹板下⑥—a 工字钢(间距30cm )的受砼荷载q1=0.8×8.12×26=168.896KN/m ,工字钢自重q2=0.68 KN/m ,5#工字钢的重量q3=20.561/(4×6.5)=0.79 KN/m ,则⑥—a #工字钢的受力q=q1+q2+q3=170.366 KN/m ,则M max =84366.1708ql 22⨯==340.7KN ·m ,腹板下工字钢的弯曲应力为: MPa 6.10410857003107.3406max =⨯⨯==W M W σ≤[w σ]=170 MPa(满足要求) 刚度验算: fmax=mm 2.4217141.23843104366.1705EI 384ql 5344=⨯⨯⨯⨯⨯⨯=≤[l/400]=10 mm (满足要求) 底板下⑥—b 工字钢(间距125cm )验算:q=1.25×1×26=32.5KN/m ,最大弯矩为M max =845.328ql 22⨯==65KN ·m 则工字钢的应力为:MPa 9.59108570010656max =⨯==W M Wσ≤[w σ]=170 MPa(满足要求) 刚度验算: fmax=mm 4.2217141.23841045.325EI 384ql 5344=⨯⨯⨯⨯⨯=≤[l/400]=10 mm (满足要求) ⑦号工字钢检算,受力图简化如下:腹板下q1=8.12×26×4/2=422.24 KN/m ,底板下q2=32.5×4/2=65 KN/m为了简化计算,将⑦号工字钢按AB 、BC 、CD 三段简支梁计算M AB =M CD =805.124.4228ql 22⨯==58.2KN ·m M BC =84.4658ql 22⨯==157.3 KN ·m ,则⑦号工字钢最大拉应力为 MPa 8.1091432933103.1576max =⨯==W M W σ≤[w σ]=170 MPa(满足要求) 刚度验算:f AB = f CD =mm 1.0322411.23841005.124.4225EI 384ql 5344=⨯⨯⨯⨯⨯=≤[l/400]=2.6 mm (满足要求) f BC =mm 69.4322411.2384104.4655EI 384ql 5344=⨯⨯⨯⨯⨯=≤[l/400]=11 mm (满足要求) 2)预埋钢棒受力检算:因钢棒上工字钢紧贴墩身混凝土表面放置,故仅对钢棒做剪应力检算:钢棒预埋示意图Q=F 总/12=2649.76/12=220.8KNMPa 0.3486593108.22043A 4Q 3s =⨯⨯⨯==τ≤[τ]=85 MPa(满足要求) 3)砂筒检算:根据受力分析,双臂墩间布设的砂筒承受的荷载最大,每个砂筒的荷载为:F=F 总/8=2649.76/8=331.22KNτ=F/A=331.22KN/2433.5mm 2=13.6MPa ≤[τ]=170 MPa(满足要求)A----外砂筒壁的面积:A=3.14×(80-75)2=2433.5 mm 2为了方便0号块底板型钢及模板的拆除,在型钢底部设置了砂筒,由于砂筒是首次采用,因此,对砂筒进行了荷载试验。