板式楼梯手算计算书规范模板
- 格式:doc
- 大小:387.50 KB
- 文档页数:15
板式楼梯计算书项目名称_____________日期_____________设计者_____________校对者_____________一、构件编号:LT-1二、示意图:三、基本资料:1.依据规范:《建筑结构荷载规范》(GB 50009-2001)《混凝土结构设计规范》(GB 50010-2002)2.几何参数:楼梯净跨: L1 = 4160 mm 楼梯高度: H = 2900 mm梯板厚: t = 180 mm 踏步数: n = 17(阶)上平台楼梯梁宽度: b1 = 200 mm下平台楼梯梁宽度: b2 = 200 mm上平台宽: L3 = 300 mm3.荷载标准值:可变荷载:q = 3.50kN/m2面层荷载:q m = 1.00kN/m2栏杆荷载:q f = 0.20kN/m永久荷载分项系数: γG = 1.20 可变荷载分项系数: γQ = 1.40准永久值系数: ψq = 0.504.材料信息:混凝土强度等级: C30 f c = 14.30 N/mm2f t = 1.43 N/mm2R c=25.0 kN/m3f tk = 2.01 N/mm2E c= 3.00×104 N/mm2钢筋强度等级: HRB400 f y = 360 N/mm2E s= 2.00×105 N/mm2保护层厚度:c = 15.0 mm R s=20 kN/m3受拉区纵向钢筋类别:带肋钢筋梯段板纵筋合力点至近边距离:a s = 25.00 mm支座负筋系数:α = 0.25四、计算过程:1. 楼梯几何参数:踏步高度:h = 0.1706 m踏步宽度:b = 0.2600 m计算跨度:L0 = L1+L3+(b1+b2)/2 = 4.16+0.30+(0.20+0.20)/2 = 4.66 m梯段板与水平方向夹角余弦值:cosα = 0.8362. 荷载计算( 取 B = 1m 宽板带):(1) 梯段板:面层:g km = (B+B*h/b)*q m = (1+1*0.17/0.26)*1.00 = 1.66 kN/m自重:g kt = R c*B*(t/cosα+h/2) = 25*1*(0.18/0.836+0.17/2) = 7.51 kN/m抹灰:g ks = R S*B*c/cosα = 20*1*0.02/0.836 = 0.48 kN/m恒荷标准值:P k = g km+g kt+g ks+q f = 1.66+7.51+0.48+0.20 = 9.85 kN/m恒荷控制:P n(G) = 1.35*P k+γQ*0.7*B*q = 1.35*9.85+1.40*0.7*1*3.50 = 16.73 kN/m活荷控制:P n(L) = γG*P k+γQ*B*q = 1.20*9.85+1.40*1*3.50 = 16.72 kN/m荷载设计值:P n = max{ P n(G) , P n(L) } = 16.73 kN/m(2) 平台板:面层:g km' = B*q m = 1*1.00 = 1.00 kN/m自重:g kt' = R c*B*t = 25*1*0.18 = 4.50 kN/m抹灰:g ks' = R S*B*c = 20*1*0.02 = 0.40 kN/m恒荷标准值:P k' = g km'+g kt'+g ks'+q f = 1.00+4.50+0.40+0.20 = 6.10 kN/m 恒荷控制:P l(G) = 1.35*P k'+γQ*0.7*B*q = 1.35*6.10+1.40*0.7*1*3.50 = 11.67 kN/m活荷控制:P l(L) = γG*P k+γQ*B*q = 1.20*6.10+1.40*1*3.50 = 12.22 kN/m荷载设计值:P l = max{ P l(G) , P l(L) } = 12.22 kN/m3. 正截面受弯承载力计算:左端支座反力: R l = 37.25 kN右端支座反力: R r = 38.89 kN最大弯矩截面距左支座的距离: L max = 2.33 m最大弯矩截面距左边弯折处的距离: x = 1.93 mM max = R l*L max-[P l*L3*(x+L3/2)+P n*x2/2]= 37.25*2.33-[12.22*0.40*(1.93+0.40/2)+16.73*1.932/2]= 45.22 kN·m相对受压区高度:ζ= 0.141663 配筋率:ρ= 0.005627纵筋(1号)计算面积:A s = 872.21 mm2支座负筋(2、3号)计算面积:A s'=α*A s = 0.25*872.21 = 218.05 mm2五、计算结果:(为每米宽板带的配筋)1.1号钢筋计算结果(跨中)计算面积A s:872.21 mm2采用方案:f14@100实配面积:1539 mm22.2/3号钢筋计算结果(支座)计算面积A s':218.05 mm2采用方案:f14@200实配面积: 770 mm23.4号钢筋计算结果采用方案:d6@200实配面积: 141 mm24.5号钢筋计算结果采用方案:f12@100实配面积:1131 mm2六、跨中挠度计算:Mk -------- 按荷载效应的标准组合计算的弯矩值Mq -------- 按荷载效应的准永久组合计算的弯矩值1.计算标准组合弯距值Mk:Mk = M gk+M qk= (q gk + q qk)*L02/8= (9.85 + 3.500)*4.662/8= 36.235 kN*m2.计算永久组合弯距值Mq:Mq = M gk+M qk= (q gk + ψq*q qk)*L02/8= (9.85 + 0.50*3.500)*4.662/8= 31.485 kN*m3.计算受弯构件的短期刚度 B s1) 计算按荷载荷载效应的标准组合作用下,构件纵向受拉钢筋应力σsk = Mk/(0.87*h0*As) (混凝土规范式 8.1.3-3)= 36.235×106/(0.87*155*1539)= 174.555 N/mm2) 计算按有效受拉混凝土截面面积计算的纵向受拉钢筋配筋率矩形截面积: A te = 0.5*b*h = 0.5*1000*180= 90000 mm2ρte = As/A te (混凝土规范式 8.1.2-4)= 1539/90000= 1.710%3) 计算裂缝间纵向受拉钢筋应变不均匀系数ψψ = 1.1-0.65*f tk/(ρte*σsk) (混凝土规范式 8.1.2-2) = 1.1-0.65*2.01/(1.710%*174.555)= 0.6624) 计算钢筋弹性模量与混凝土模量的比值αEαE = E S/E C= 2.00×105/(3.00×104)= 6.6675) 计算受压翼缘面积与腹板有效面积的比值γf矩形截面,γf = 06) 计算纵向受拉钢筋配筋率ρρ = As/(b*h0)= 1539/(1000*155)= 0.993%7) 计算受弯构件的短期刚度 B SB S = E S*As*h02/[1.15*ψ+0.2+6*αE*ρ/(1+ 3.5*γf)](混凝土规范式8.2.3--1)= 2.00×105*1539*1552/[1.15*0.662+0.2+6*6.667*0.993%/(1+3.5*0.0)]= 54.427×102 kN*m24.计算受弯构件的长期刚度B1) 确定考虑荷载长期效应组合对挠度影响增大影响系数θ当ρ`=0时,θ=2.0 (混凝土规范第 8.2.5 条)2) 计算受弯构件的长期刚度 BB = Mk/(Mq*(θ-1)+Mk)*B S (混凝土规范式 8.2.2)= 36.235/(31.485*(2.0-1)+36.235)*54.427×102= 29.122×102 kN*m25.计算受弯构件挠度f max = 5*(q gk+q qk)*L04/(384*B)= 5*(9.85+3.500)*4.664/(384*29.122×102)= 28.145 mm6.验算挠度挠度限值f0=L0/200=4.66/200=23.300 mm七、裂缝宽度验算:1.计算标准组合弯距值Mk:Mk = M gk+M qk= (q gk + q qk)*L02/8= (9.85 + 3.500)*4.662/8= 36.235 kN*m2.带肋钢筋,所以取值V i=1.03.C = 154.计算按荷载荷载效应的标准组合作用下,构件纵向受拉钢筋应力σsk = Mk/(0.87*h0*As) (混凝土规范式 8.1.3-3)= 36.235×106/(0.87*155.00*1539)= 174.555 N/mm5.计算按有效受拉混凝土截面面积计算的纵向受拉钢筋配筋率矩形截面积: A te = 0.5*b*h = 0.5*1000*180= 90000 mm2ρte = As/A te (混凝土规范式 8.1.2-4)= 1539/90000= 1.710%6.计算裂缝间纵向受拉钢筋应变不均匀系数ψψ = 1.1-0.65*f tk/(ρte*σsk) (混凝土规范式 8.1.2-2)= 1.1-0.65*2.01/(1.710%*174.555)= 0.6627.计算单位面积钢筋根数nn = 1000/s= 1000/100= 108.计算受拉区纵向钢筋的等效直径d eqd eq= (∑n i*d i2)/(∑n i*V i*d i)= 10*142/(10*1.0*14)= 149.计算最大裂缝宽度ωmax =αcr*ψ*σsk/E S*(1.9*C+0.08*d eq/ρte) (混凝土规范式 8.1.2-1) = 2.1*0.662*174.555/2.0×105*(1.9*15+0.08*14/1.710%) = 0.1141 mm≤ 0.30 mm,满足规范要求。
板式楼梯计算书项目名称_____________日期_____________设计者_____________校对者_____________一、构件编号:LT-1二、示意图:三、基本资料:1.依据规范:《建筑结构荷载规范》(GB 50009-2012)《混凝土结构设计规范》(GB 50010-2010)(2015版)2.几何参数:楼梯净跨: L1 = 4200 mm 楼梯高度: H = 2250 mm梯板厚: t = 160 mm 踏步数: n = 15(阶)上平台楼梯梁宽度: b1 = 200 mm下平台楼梯梁宽度: b2 = 200 mm3.荷载标准值:可变荷载:q = 3.50kN/m2面层荷载:q m = 1.00kN/m2栏杆荷载:q f = 0.20kN/m永久荷载分项系数: γG = 1.30 可变荷载分项系数: γQ = 1.50准永久值系数: ψq = 0.504.材料信息:混凝土强度等级: C30 f c = 14.30 N/mm2f t = 1.43 N/mm2R c=25.0 kN/m3f tk = 2.01 N/mm2E c = 3.00*104 N/mm2钢筋强度等级: HRB400 f y = 360 N/mm2E s = 2.00*105 N/mm2保护层厚度:c = 15.0 mm R s=20 kN/m3受拉区纵向钢筋类别:光面钢筋梯段板纵筋合力点至近边距离:a s = 20.00 mm考虑支座嵌固作用求配筋时弯矩折减α1 = 0.8求裂缝时弯矩折减α2 = 0.8求挠度时弯矩折减α3 = 0.8四、计算过程:1. 楼梯几何参数:踏步高度:h = 0.1500 m踏步宽度:b = 0.3000 m计算跨度:L0 = L1+(b1+b2)/2 = 4.20+(0.20+0.20)/2 = 4.40 m梯段板与水平方向夹角余弦值:cosα = 0.8942. 荷载计算( 取 B = 1m 宽板带):(1) 梯段板:面层:g km = (B+B*h/b)*q m = (1+1*0.15/0.30)*1.00 = 1.50 kN/m自重:g kt = R c*B*(t/cosα+h/2) = 25*1*(0.16/0.894+0.15/2) = 6.35 kN/m抹灰:g ks = R S*B*c/cosα = 20*1*0.02/0.894 = 0.45 kN/m恒荷标准值:P k = g km+g kt+g ks+q f = 1.50+6.35+0.45+0.20 = 8.49 kN/m恒荷控制:P n(G) = 1.35*P k+γQ*0.7*B*q = 1.35*8.49+1.50*0.7*1*3.50 = 15.14 kN/m活荷控制:P n(L) = γG*P k+γQ*B*q = 1.30*8.49+1.50*1*3.50 = 16.29 kN/m荷载设计值:P n = max{ P n(G) , P n(L) } = 16.29 kN/m3. 正截面受弯承载力计算:左端支座反力: R l = 35.84 kN右端支座反力: R r = 35.84 kN最大弯矩截面距左支座的距离: L max = 2.20 m最大弯矩截面距左边弯折处的距离: x = 2.20 mM max = R l*L max-P n*x2/2= 35.84*2.20-16.29*2.202/2= 39.43 kN·m考虑支座嵌固折减后的最大弯矩:M max' = α1*M max= 0.80*39.43 = 31.54 kN·m相对受压区高度:ζ= 0.119704 配筋率:ρ= 0.004755纵筋(1号)计算面积:A s = 665.69 mm2支座负筋(2、3号)计算面积:A s'=A s = 665.69 mm2五、计算结果:(为每米宽板带的配筋)1.1号钢筋计算结果(跨中)计算面积A s:665.69 mm2采用方案:12@100实配面积:1131 mm22.2号钢筋计算结果(支座)计算面积A s':665.69 mm2采用方案:12@100实配面积:1131 mm23.3号钢筋计算结果采用方案:6@250实配面积: 113 mm2六、跨中挠度计算:Mq -------- 按荷载效应的准永久组合计算的弯矩值1.计算永久组合弯距值Mq:Mq = α3*(M gk+M qk)= α3*(q gk+ ψq*q qk)*L02/8= 0.80*(8.49 + 0.50*3.500)*4.402/8= 19.833 kN*m2.计算受弯构件的短期刚度 B sk1) 计算按荷载荷载效应的两种组合作用下,构件纵向受拉钢筋应力σsq = Mq/(0.87*h0*As) 混规(7.1.4-3)= 19.833*106/(0.87*140*1131)= 143.976 N/mm2) 计算按有效受拉混凝土截面面积计算的纵向受拉钢筋配筋率矩形截面积: A te = 0.5*b*h = 0.5*1000*160= 80000 mm2ρte = As/A te混规(7.1.2-5)= 1131/80000= 1.414%3) 计算裂缝间纵向受拉钢筋应变不均匀系数ψψq = 1.1-0.65*f tk/(ρte*σsq) 混规(7.1.2-2)= 1.1-0.65*2.01/(1.414%*143.976)= 0.4584) 计算钢筋弹性模量与混凝土模量的比值αEαE = E S/E C= 2.00*105/(3.00*104)= 6.6675) 计算受压翼缘面积与腹板有效面积的比值γf矩形截面,γf = 06) 计算纵向受拉钢筋配筋率ρρ = As/(b*h0)= 1131/(1000*140)= 0.808%7) 计算受弯构件的短期刚度 B SB sq = E s*As*h02/[1.15*ψq+0.2+6*αE*ρ/(1+ 3.5*γf)] 混规(7.2.3-1)= 2.00*105*1131*1402/[1.15*0.458+0.2+6*6.667*0.808%/(1+3.5*0.0)]= 42.224*102 kN*m23.计算受弯构件的长期刚度B1) 确定考虑荷载长期效应组合对挠度影响增大影响系数θ当ρ`=0时,θ=2.0 混规(7.2.5)2) 计算受弯构件的长期刚度 BBq = B sq/θ 混规(7.2.2-2)= 42.224/2.000*102= 21.112*102 kN*m24.计算受弯构件挠度f maxk= 5*α3*(q gk+Ψq*q qk)*L04/(384*B)= 5*0.80*(8.49+0.5*3.500)*4.404/(384*21.112*102)= 18.945 mm6.验算挠度挠度限值f0=L0/200=4.40/200=22.000 mmf max=18.945mm≤f0=22.000mm,满足规范要求!七、裂缝宽度验算:1.计算准永久组合弯距值Mq:Mq = α2*(M gk+ψM qk)= α2*(q gk+ ψq qk)*L02/8= 0.80*(8.49 + 0.50*3.500)*4.402/8= 19.833 kN*m2.光面钢筋,所以取值V i=0.73.C = 154.计算按荷载荷载效应的准永久组合作用下,构件纵向受拉钢筋应力σsq = Mq/(0.87*h0*As) 混规(7.1.4-3)= 19.833*106/(0.87*140.00*1131)= 143.976 N/mm5.计算按有效受拉混凝土截面面积计算的纵向受拉钢筋配筋率矩形截面积: A te = 0.5*b*h = 0.5*1000*160= 80000 mm2ρte = As/A te混规(7.1.2-5)= 1131/80000= 1.414%6.计算裂缝间纵向受拉钢筋应变不均匀系数ψψ = 1.1-0.65*f tk/(ρte*σsq) 混规(7.1.2-2)= 1.1-0.65*2.01/(1.414%*143.976)= 0.4587.计算单位面积钢筋根数nn = 1000/s= 1000/100= 108.计算受拉区纵向钢筋的等效直径d eqd eq= (∑n i*d i2)/(∑n i*V i*d i)= 10*122/(10*0.7*12)= 179.计算最大裂缝宽度ωmax=αcr*ψ*σsq/E S*(1.9*C+0.08*d eq/ρte) 混规(7.1.2-1)= 1.9*0.458*143.976/2.0*105*(1.9*15+0.08*17/1.414%)= 0.0781 mm≤ 0.30 mm,满足规范要求。
CT1楼梯计算书一、基本资料:本工程采用现浇整体板式楼梯,层高4.2m ,踏步尺寸:150×270mm ,共14个踏步。
梯段长:2160mm ,活荷载为3.5KN/m 2,踏面采用30厚水磨石面层,面上20厚水泥砂浆,采用C25混凝土,f c =11.9N/mm 2,f t =1.27N/mm 2二、楼梯板计算2.1 l 0=5020mm 。
斜板的厚度估算为:h=(l 0/30~l 0/25)=167—200mm ,取h=170。
2.2 楼梯斜板的荷载计算:恒荷载:1.栏杆自重:0.5KN/m × 1.2 =0.6KN/m 2.三角形踏板自重:10.150.270.170.309225 6.74/ 1.28.09/0.270.27KN m KN m ⎡⎤⎛⎫⨯⨯ ⎪⎢⎥⨯⎝⎭⎢⎥⨯+=⨯=⎢⎥⎢⎥⎣⎦3.30厚水磨石面层:0.65×(0.15+0.27)/0.27=1.01 ×1.2 =1.21KN/m 4.板底20厚水泥砂浆粉刷:0.020.309200.45 1.20.55/0.27KN m ⨯⨯=⨯= 活荷载: 3.5×1.4=4.9KN/m荷载组合:可变荷载控制:10.45+4.9=15.35KN/m永久荷载控制:1.35×8.8+0.98×3.5=15.31KN/m 2.3 内力计算:斜板由跨度为l n 的水平梁代替,l n =5020mm 。
应考虑到斜板两端均与梁整浇,对板有约束作用,故跨中最大弯矩:022023510126025050202115.35 5.02()38.681010sn hn bl l l mmM g q l KN M =++⨯=++=⨯=+==计算跨度:2.4 配筋计算:01s 1b 5620001201702015020mm HRB4000.80.518360110.00332102238.681015015023.5177.711.91200y o sb c h t mm f E M x h h mm h mmf b βξεξ=-=-=====++⨯⨯⨯⨯=--=--=<=∂⨯保护层厚度为A 受力钢筋拟使用级钢筋,min 2210.2%11.9100023.51777.140.0021200140288360c s y f bx A mm mmf ρ=∂⨯⨯===>⨯⨯= 下部钢筋选用:C 12@150 A s =904.8mm 2012360904.827.3797.811.910000.0021701000=340mm y s b c s f A x mm h mmf bξ⨯===<=∂⨯>⨯⨯垂直方向分布钢筋:A取A 8@150 A s =402.4mm 2上部支座钢筋:n 2s 1341904.83013l A mm >⨯=支座配筋一般取跨中配筋量的,配筋范围为。
楼梯详细手算计算书(结构设计)平台板设计(对斜板取1m 宽作为其计算单元) (TB-1)1、确定斜板板厚度t斜板的水平投影净长 L 1n =3080 mm斜板的斜向净长 L 1n ,= L 1n /cos α=3080/(280/22280150+)=3080/0。
881=3496 mm斜板厚度t 1=(1/25~1/30)L 1n ,=(1/25~1/30)×3496=140~117 mm , 取t 1=120 mm 2、荷载计算荷载种类荷载标准值(kN/m )恒荷载栏杆自重0。
2锯齿形斜板自重 r 2(d/2+t 1/cos α)=25×(0。
15/2+0.12/0.881)=5.28 20厚面层 r 1c 1(e+d )/e=20×0。
02×(0。
28+0。
15)/0.28=0。
61板底20厚混合砂浆 r 3c 2/cos α=17×0.02/0。
881=0.39横荷载合计g 6.5 活荷载3.5注:r 1、r 2、r 3为材料容重 E 、d 为踏步宽和高 c 1为踏步面层厚度 α为楼梯斜板的倾角 t 1为斜板的厚度 c 2为板底粉刷的厚度 3、荷载效应组合由可变荷载效应控制的组合: P=1.2×6.5+1。
4×3。
5=12。
7 kN/m由永久荷载效应控制的组合: P=1.35×6.5+1.4×0。
7×3.5=12。
21 kN/m 所以选永久荷载效应控制的组合来进行计算,取P=12。
7 kN/m 4、内力计算斜板的内力一般只需计算跨中最大弯矩即可.考虑到斜板两端均与梁整体浇注,对板有约束作用,所以跨中最大弯矩取:M=Pl 1n 2/10=12.7×3。
082/10=12。
05 kN ·m 5、配筋计算h 0=t 1—20=120—20=100 mmαs =M/α1f c bh 0 2 =12.05×106 /(1。
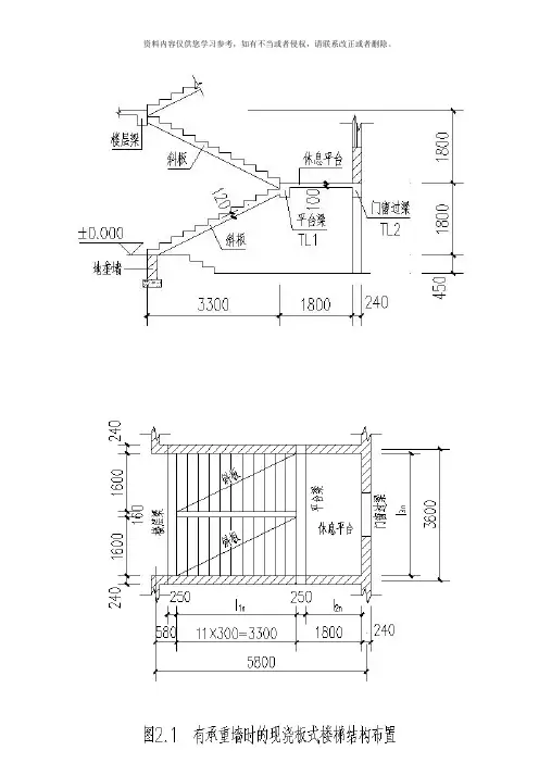
【例题 2.1《楼梯、 阳台和雨篷设计》37页, PDF 版47页】 图2.1为某实验楼楼梯的平面图和剖面图。
采用现浇板式楼梯, 混凝土强度等级为C25,2211.9/, 1.27/c t f N mm f N mm ==钢筋直径d ≥12mm 时采用HRB400级钢筋, 2360/y f N mm =; d ≤10mm 时采用HPB300级钢筋, 2270/y f N mm =,楼梯活荷载为3.5KN/m ²。
楼梯的结构布置如图2.8所示。
斜板两端与平台梁和楼梯梁整结, 平台板一端与平台梁整结, 平台板一端与平台梁整结, 另一端则与窗过梁整结, 平台梁两端都搁置在楼梯间的侧墙上。
试对此现浇板式楼梯进行结构设计。
解:1) 斜板TB1设计除底层第一跑楼梯的斜板外, 其余斜板均相同, 而第一跑楼梯斜板的下端为混凝土基础, 可按净跨计算。
这里只对标准段斜板TB1进行设计。
对斜板TB1取1m 宽作为其计算单元。
(1)确定斜板厚度t斜板的水平投影净长为l 1n =3300mm斜板的斜向净长为113691cos n n l l mm α=== 斜板厚度为t 1=( 1/25~1/30) l 1n =(1/25~1/30)×3300=110~120mm,取t 1=120mm 。
( 根据”混凝土结构构造手册( 第四版) ”384页)( 2) 荷载计算, 楼梯斜板荷载计算见表2.3。
表2.3楼梯斜板荷载计算水磨石面层的容重为0.65KN/m ²(GB50009- , 附录A-15, 84页); 纸筋灰容重16KN/m ³( GB50009- , 附录A-6, 75页, 实际工程中已被水泥砂浆代替) 以上计算的荷载设计值是由可变荷载控制的组合, 计算由永久荷载控制的组合 1.357.160.98 3.513.10/p KN m =⨯+⨯=, 综合取p=13.50KN/m( 3) 计算简图如前所述, 斜板的计算简图可用一根假想的跨度为l 1n 的水平梁替代, 如图 2.9所示。
板式楼梯手算计算书(2013年版规范)解:1)斜板TB1设计除底层第一跑楼梯的斜板外,其余斜板均相同,而第一跑楼梯斜板的下端为混凝土基础,可按净跨计算。
这里只对标准段斜板TB1进行设计。
对斜板TB1取1m 宽作为其计算单元。
(1)确定斜板厚度t斜板的水平投影净长为l 1n =3300mm 斜板的斜向净长为11223691cos 300/150300n n l l mm α===+ 斜板厚度为t 1=(1/25~1/30)l 1n =(1/25~1/30)×3300=110~120mm,取t 1=120mm 。
(根据“混凝土结构构造手册(第四版)”384页)(2)荷载计算,楼梯斜板荷载计算见表2.3。
表2.3楼梯斜板荷载计算荷载种类 荷载标准值(KN/m )荷载分项系数荷载设计值(KN/m)恒 荷 载栏杆自重0.51.20.6三角形踏板自重1(0.150.3)1225[0.30.1211] 5.230.894⨯⨯⨯⨯⨯⨯+=1.2 6.2830厚水磨石面层 0.65(0.150.3)/0.30.98⨯+= 1.2 1.18 板底20厚水泥砂浆粉刷 0.02200.450.894⨯= 1.2 0.54 小计g 7.16 1.2 8.60 活荷载q3.51.44.9总 计p 9.66 13.50水磨石面层的容重为0.65KN/m ²(GB50009-2012,附录A-15,84页);纸筋灰容重16KN/m ³(GB50009-2012,附录A-6,75页,实际工程中已被水泥砂浆代替)以上计算的荷载设计值是由可变荷载控制的组合,计算由永久荷载控制的组合 1.357.160.98 3.513.10/p KN m =⨯+⨯=,综合取p=13.50KN/m(3)计算简图如前所述,斜板的计算简图可用一根假想的跨度为l 1n 的水平梁替代,如图2.9所示。
其计算跨度取斜板水平投影净长l 1n =3300mm 。
板式楼梯计算书项目名称_____________日期_____________设计者_____________校对者_____________一、构件编号:LT-1二、示意图:三、基本资料:1.依据规范:《建筑结构荷载规范》(GB 50009-2012)《混凝土结构设计规范》(GB 50010-2010)(2015版)2.几何参数:楼梯净跨: L1 = 3000 mm 楼梯高度: H = 1700 mm梯板厚: t = 130 mm 踏步数: n = 11(阶)上平台楼梯梁宽度: b1 = 200 mm下平台楼梯梁宽度: b2 = 200 mm下平台宽: L2 = 300 mm3.荷载标准值:可变荷载:q = 3.50kN/m2面层荷载:q m = 1.00kN/m2栏杆荷载:q f = 0.20kN/m永久荷载分项系数: γG = 1.30 可变荷载分项系数: γQ = 1.50准永久值系数: ψq = 0.504.材料信息:混凝土强度等级: C30 f c = 14.30 N/mm2f t = 1.43 N/mm2R c=25.0 kN/m3f tk = 2.01 N/mm2E c = 3.00*104 N/mm2钢筋强度等级: HRB400 f y = 360 N/mm2E s = 2.00*105 N/mm2保护层厚度:c = 15.0 mm R s=20 kN/m3受拉区纵向钢筋类别:光面钢筋梯段板纵筋合力点至近边距离:a s = 20.00 mm考虑支座嵌固作用求配筋时弯矩折减α1 = 0.8求裂缝时弯矩折减α2 = 0.8求挠度时弯矩折减α3 = 0.8四、计算过程:1. 楼梯几何参数:踏步高度:h = 0.1545 m踏步宽度:b = 0.3000 m计算跨度:L0 = L1+L2+(b1+b2)/2 = 3.00+0.30+(0.20+0.20)/2 = 3.50 m梯段板与水平方向夹角余弦值:cosα = 0.8892. 荷载计算( 取 B = 1m 宽板带):(1) 梯段板:面层:g km = (B+B*h/b)*q m = (1+1*0.15/0.30)*1.00 = 1.52 kN/m自重:g kt = R c*B*(t/cosα+h/2) = 25*1*(0.13/0.889+0.15/2) = 5.59 kN/m抹灰:g ks = R S*B*c/cosα = 20*1*0.02/0.889 = 0.45 kN/m恒荷标准值:P k = g km+g kt+g ks+q f = 1.52+5.59+0.45+0.20 = 7.75 kN/m恒荷控制:P n(G) = 1.35*P k+γQ*0.7*B*q = 1.35*7.75+1.50*0.7*1*3.50 = 14.14 kN/m活荷控制:P n(L) = γG*P k+γQ*B*q = 1.30*7.75+1.50*1*3.50 = 15.33 kN/m荷载设计值:P n = max{ P n(G) , P n(L) } = 15.33 kN/m(2) 平台板:面层:g km' = B*q m = 1*1.00 = 1.00 kN/m自重:g kt' = R c*B*t = 25*1*0.13 = 3.25 kN/m抹灰:g ks' = R S*B*c = 20*1*0.02 = 0.40 kN/m恒荷标准值:P k' = g km'+g kt'+g ks'+q f = 1.00+3.25+0.40+0.20 = 4.85 kN/m 恒荷控制:P l(G) = 1.35*P k'+γQ*0.7*B*q = 1.35*4.85+1.50*0.7*1*3.50 = 10.22 kN/m活荷控制:P l(L) = γG*P k+γQ*B*q = 1.30*4.85+1.50*1*3.50 = 11.55 kN/m荷载设计值:P l = max{ P l(G) , P l(L) } = 11.55 kN/m3. 正截面受弯承载力计算:左端支座反力: R l = 26.74 kN右端支座反力: R r = 25.40 kN最大弯矩截面距左支座的距离: L max = 1.74 m最大弯矩截面距左边弯折处的距离: x = 1.74 mM max = R l*L max-P n*x2/2= 26.74*1.74-15.33*1.742/2= 23.32 kN·m考虑支座嵌固折减后的最大弯矩:M max' = α1*M max= 0.80*23.32 = 18.66 kN·m相对受压区高度:ζ= 0.114365 配筋率:ρ= 0.004543纵筋(1号)计算面积:A s = 499.71 mm2支座负筋(2、3号)计算面积:A s'=A s = 499.71 mm2五、计算结果:(为每米宽板带的配筋)1.1号钢筋计算结果(跨中)计算面积A s:499.71 mm2采用方案:10@150实配面积: 524 mm22.2号钢筋计算结果(支座)计算面积A s':499.71 mm2采用方案:10@150实配面积: 524 mm23.3号钢筋计算结果采用方案:6@250实配面积: 113 mm24.4号钢筋计算结果采用方案:10@150实配面积: 524 mm2六、跨中挠度计算:Mq -------- 按荷载效应的准永久组合计算的弯矩值1.计算永久组合弯距值Mq:Mq = α3*(M gk+M qk)= α3*(q gk+ ψq*q qk)*L02/8= 0.80*(7.75 + 0.50*3.500)*3.502/8= 11.641 kN*m2.计算受弯构件的短期刚度 B sk1) 计算按荷载荷载效应的两种组合作用下,构件纵向受拉钢筋应力σsq = Mq/(0.87*h0*As) 混规(7.1.4-3)= 11.641*106/(0.87*110*524)= 232.316 N/mm2) 计算按有效受拉混凝土截面面积计算的纵向受拉钢筋配筋率矩形截面积: A te = 0.5*b*h = 0.5*1000*130= 65000 mm2ρte = As/A te混规(7.1.2-5)= 524/65000= 0.806%3) 计算裂缝间纵向受拉钢筋应变不均匀系数ψψq = 1.1-0.65*f tk/(ρte*σsq) 混规(7.1.2-2)= 1.1-0.65*2.01/(0.806%*232.316)= 0.4024) 计算钢筋弹性模量与混凝土模量的比值αEαE = E S/E C= 2.00*105/(3.00*104)= 6.6675) 计算受压翼缘面积与腹板有效面积的比值γf矩形截面,γf = 06) 计算纵向受拉钢筋配筋率ρρ = As/(b*h0)= 524/(1000*110)= 0.476%7) 计算受弯构件的短期刚度 B SB sq = E s*As*h02/[1.15*ψq+0.2+6*αE*ρ/(1+ 3.5*γf)] 混规(7.2.3-1)= 2.00*105*524*1102/[1.15*0.402+0.2+6*6.667*0.476%/(1+3.5*0.0)]= 14.863*102 kN*m23.计算受弯构件的长期刚度B1) 确定考虑荷载长期效应组合对挠度影响增大影响系数θ当ρ`=0时,θ=2.0 混规(7.2.5)2) 计算受弯构件的长期刚度 BBq = B sq/θ 混规(7.2.2-2)= 14.863/2.000*102= 7.431*102 kN*m24.计算受弯构件挠度f maxk= 5*α3*(q gk+Ψq*q qk)*L04/(384*B)= 5*0.80*(7.75+0.5*3.500)*3.504/(384*7.431*102)= 19.989 mm6.验算挠度挠度限值f0=L0/200=3.50/200=17.500 mmf max=19.989mm>f0=17.500mm,不满足规范要求!七、裂缝宽度验算:1.计算准永久组合弯距值Mq:Mq = α2*(M gk+ψM qk)= α2*(q gk+ ψq qk)*L02/8= 0.80*(7.75 + 0.50*3.500)*3.502/8= 11.641 kN*m2.光面钢筋,所以取值V i=0.73.C = 154.计算按荷载荷载效应的准永久组合作用下,构件纵向受拉钢筋应力σsq = Mq/(0.87*h0*As) 混规(7.1.4-3)= 11.641*106/(0.87*110.00*524)= 232.316 N/mm5.计算按有效受拉混凝土截面面积计算的纵向受拉钢筋配筋率矩形截面积: A te = 0.5*b*h = 0.5*1000*130= 65000 mm2ρte = As/A te混规(7.1.2-5)= 524/65000= 0.806%因为ρte < 1.000%,所以取ρte = 1.000%6.计算裂缝间纵向受拉钢筋应变不均匀系数ψψ = 1.1-0.65*f tk/(ρte*σsq) 混规(7.1.2-2)= 1.1-0.65*2.01/(1.000%*232.316)= 0.5387.计算单位面积钢筋根数nn = 1000/s= 1000/150= 68.计算受拉区纵向钢筋的等效直径d eqd eq= (∑n i*d i2)/(∑n i*V i*d i)= 6*102/(6*0.7*10)= 149.计算最大裂缝宽度ωmax=αcr*ψ*σsq/E S*(1.9*C+0.08*d eq/ρte) 混规(7.1.2-1) = 1.9*0.538*232.316/2.0*105*(1.9*15+0.08*14/1.000%) = 0.1667 mm≤ 0.30 mm,满足规范要求。
2 322 3混凝土强度等级:C20 f c = 9.60 N/mm f t = 1.10 N/mm F C =25.0 kN/m f tk = 1.54 N/mm42E c = 2.55 x 10 N/mm 钢筋强度等级:HPB235 E s = 2.10 x 105 N/mm 2 f y = 210 N/mm 保护层厚度:c = 20.0 mmF S =20 kN/m 板式楼梯计算书(五种类型)b 1L1= (n-1 )xb b2三、基本资料:i. 依据规范:《建筑结构荷载规范》 (GB 50009 — 2001) 《混凝土结构设计规范》 (GB 50010 — 2002) 2. 几何参数:梯板厚:t = 100 mm上平台楼梯梁宽度:b i = 200 mm 下平台楼梯梁宽度:b 2 = 200 mm准永久值系数:2 q = 0.50 4. 材料信息:楼梯净跨:L i = 2000 mm 楼梯高度:H = 1500 mm 踏步数:n = 10( 阶)3. 荷载标准值: 可变荷载: 栏杆荷载:q = 2.50kN/mq f = 0.20kN/m 面层荷载: q m = 1.70kN/m 永久荷载分项系数:丫 G = 1.20 可变荷载分项系数:丫 Q = 1.40、构件编号:LT-1、示意图:Ln/4工=8.36 kN • m相对受压区高度:Z = 0.169123 纵筋(1号)计算面积:A = 579.85 支座负筋(2、3 号)计算面积:A s '= a *A s = 0.25*579.85 = 144.96 mm五、计算结果:(为每米宽板带的配筋)1.1号钢筋计算结果(跨中)计算面积A : 579.85 mm 采用方案:d10@1002实配面积:785 mm 2.2/3号钢筋计算结果(支座)计算面积A s ' : 144.96 mm 采用方案:d6@140 实配面积:202 mm 3.4号钢筋计算结果采用方案:d6@200 实配面积:141 mm六、跨中挠度计算:Mk -------- 按荷载效应的标准组合计算的弯矩值受拉区纵向钢筋类别:光面钢筋 梯段板纵筋合力点至近边距离: 支座负筋系数:a = 0.25a s = 25.00 mm四、计算过程:楼梯几何参数: 踏步高度 踏步宽度1. h = 0.1500 m b = 0.2222 mL o = L 1 + (b 1 + b 2)/2 = 2.00+ (0.20 + 0.20)/2 = 2.20 mcos a = 0.8292. (1) 梯段板与水平方向夹角余弦值: 荷载计算(取B = 1m 宽板带): 梯段板:面层:g km = (B + B*h/b )*q m = (1 + 1*0.15/0.22)*1.70 = 2.85 kN/m自重:g kt = R 抹灰:g ks = R 恒荷标准值: 恒荷控制: F n (G ) = 1.35*Pc *B*(t/cos a+ h/2) = 25*1*(0.10/0.829 + 0.15/2) = 4.89 kN/ms *B*c/cos a = 20*1*0.02/0.829 = 0.48 kN/mF k = g km + g kt + g ks + q f = 2.85 + 4.89 + 0.48 + 0.20 = 8.42 kN/m k+丫 Q *0.7*B*q = 1.35*8.42 + 1.40*0.7*1*2.50 = 13.82 kN/mY G *P k +Y Q *B*q = 1.20*8.42 + 1.40*1*2.50 = 13.61 kN/m n (L) } = 13.82 kN/m3.活荷控制:R (L )= 荷载设计值:P n = max{ P n (G ) , P正截面受弯承载力计算: 左端支座反力:R i = 15.20 kN 右端支座反力:R r = 15.20 kN 最大弯矩截面距左支座的距离:L最大弯矩截面距左边弯折处的距离2Max= R I *L max — P n *X /2max = 1.10 m :x = 1.10 m=15.20*1.10 — 13.82*1.10 2/2 配筋率:p = 0.0077312mmMq -------- 按荷载效应的准永久组合计算的弯矩值1.计算标准组合弯距值Mk:Mk = M gk+M k2=(q gk + q qk)*L o /82/8=(8.42 + 2.500)*2.20=6.607 kN*m2.计算永久组合弯距值Mq:Mq = M gk+M k2=(q gk + W q*q qk)*L 0 /82/8=(8.42 + 0.50*2.500)*2.20=5.851 kN*m3.计算受弯构件的短期刚度 B s1)计算按荷载荷载效应的标准组合作用下,构件纵向受拉钢筋应力d sk = Mk/(0.87*h 0*As)( 混凝土规范式8.1.3 —3)6=6.607 X 10 /(0.87*75*785)=128.932 N/mm2)计算按有效受拉混凝土截面面积计算的纵向受拉钢筋配筋率矩形截面积:A te = 0.5*b*h = 0.5*1000*100= 50000 mmp te = As/A te (混凝土规范式8.1.2 —4)=785/50000=1.571%3)计算裂缝间纵向受拉钢筋应变不均匀系数“W = 1.1-0.65*f tk/(p te* d sk)(混凝土规范式8.1.2 —2)=1.1-0.65*1.54/(1.571%*128.932)=0.6064)计算钢筋弹性模量与混凝土模量的比值a E = E S/E C5 4=2.10 X 10/(2.55 X 10)=8.2355)计算受压翼缘面积与腹板有效面积的比值矩形截面,丫 f = 06)计算纵向受拉钢筋配筋率pp = As/(b*h o)=785/(1000*75)=1.047%7)计算受弯构件的短期刚度B S2B S = E s*As*h0/[1.15* W +0.2+6* a E* p /(1+ 3.5* 丫f)]( 混凝土规范式8.2.3--1)=2.10 X 105*785*75 2/[1.15*0.606+0.2+6*8.235*1.047%/(1+3.5*0.0)]2 2=6.561 X 10 kN*m4.计算受弯构件的长期刚度B1)确定考虑荷载长期效应组合对挠度影响增大影响系数B当p '=0时,B =2.0 (混凝土规范第8.2.5 条)2)计算受弯构件的长期刚度BB = Mk/(Mq*(0 -1)+Mk)*B S(混凝土规范式8.2.2)=6.607/(5.851*(2.0-1)+6.607)*6.561 X 1022 2=3.480 X 10 kN*m5. 计算受弯构件挠度4f max = 5*(q gk+q qk)*L o/(384*B)4 2=5*(8.42+2.500)*2.20 /(384*3.480 X 10 )=9.574 mm6. 验算挠度挠度限值f。
板式楼梯计算书项目名称_____________日期_____________设计者_____________校对者_____________一、构件编号:LT-1二、示意图:三、基本资料:1.依据规范:《建筑结构荷载规范》(GB 50009-2001)《混凝土结构设计规范》(GB 50010-2002)2.几何参数:楼梯净跨: L1 = 3120 mm 楼梯高度: H = 2025 mm梯板厚: t = 140 mm 踏步数: n = 13(阶)上平台楼梯梁宽度: b1 = 200 mm下平台楼梯梁宽度: b2 = 200 mm3.荷载标准值:可变荷载:q = 3.50kN/m2面层荷载:q m = 1.00kN/m2栏杆荷载:q f = 0.20kN/m永久荷载分项系数: γG = 1.20 可变荷载分项系数: γQ = 1.40准永久值系数: ψq = 0.504.材料信息:混凝土强度等级: C30 f c = 14.30 N/mm2f t = 1.43 N/mm2R c=25.0 kN/m3f tk = 2.01 N/mm2E c= 3.00×104 N/mm2钢筋强度等级: HRB400 f y = 360 N/mm2E s= 2.00×105 N/mm2保护层厚度:c = 15.0 mm R s=20 kN/m3受拉区纵向钢筋类别:带肋钢筋梯段板纵筋合力点至近边距离:a s = 25.00 mm支座负筋系数:α = 0.25四、计算过程:1. 楼梯几何参数:踏步高度:h = 0.1558 m踏步宽度:b = 0.2600 m计算跨度:L0 = L1+(b1+b2)/2 = 3.12+(0.20+0.20)/2 = 3.32 m梯段板与水平方向夹角余弦值:cosα = 0.8582. 荷载计算( 取 B = 1m 宽板带):(1) 梯段板:面层:g km = (B+B*h/b)*q m = (1+1*0.16/0.26)*1.00 = 1.60 kN/m自重:g kt = R c*B*(t/cosα+h/2) = 25*1*(0.14/0.858+0.16/2) = 6.03 kN/m抹灰:g ks = R S*B*c/cosα = 20*1*0.02/0.858 = 0.47 kN/m恒荷标准值:P k = g km+g kt+g ks+q f = 1.60+6.03+0.47+0.20 = 8.29 kN/m恒荷控制:P n(G) = 1.35*P k+γQ*0.7*B*q = 1.35*8.29+1.40*0.7*1*3.50 = 14.62 kN/m活荷控制:P n(L) = γG*P k+γQ*B*q = 1.20*8.29+1.40*1*3.50 = 14.85 kN/m荷载设计值:P n = max{ P n(G) , P n(L) } = 14.85 kN/m3. 正截面受弯承载力计算:左端支座反力: R l = 24.65 kN右端支座反力: R r = 24.65 kN最大弯矩截面距左支座的距离: L max = 1.66 m最大弯矩截面距左边弯折处的距离: x = 1.66 mM max = R l*L max-P n*x2/2= 24.65*1.66-14.85*1.662/2= 20.46 k N·m相对受压区高度:ζ= 0.114784 配筋率:ρ= 0.004559纵筋(1号)计算面积:A s = 524.34 mm2支座负筋(2、3号)计算面积:A s'=α*A s = 0.25*524.34 = 131.09 mm2五、计算结果:(为每米宽板带的配筋)1.1号钢筋计算结果(跨中)计算面积A s:524.34 mm2采用方案:f12@100实配面积:1131 mm22.2/3号钢筋计算结果(支座)计算面积A s':131.09 mm2采用方案:f12@200实配面积: 565 mm23.4号钢筋计算结果采用方案:d6@200实配面积: 141 mm2六、跨中挠度计算:Mk -------- 按荷载效应的标准组合计算的弯矩值Mq -------- 按荷载效应的准永久组合计算的弯矩值1.计算标准组合弯距值Mk:Mk = M gk+M qk= (q gk + q qk)*L02/8= (8.29 + 3.500)*3.322/8= 16.248 kN*m2.计算永久组合弯距值Mq:Mq = M gk+M qk= (q gk + ψq*q qk)*L02/8= (8.29 + 0.50*3.500)*3.322/8= 13.837 kN*m3.计算受弯构件的短期刚度 B s1) 计算按荷载荷载效应的标准组合作用下,构件纵向受拉钢筋应力σsk = Mk/(0.87*h0*As) (混凝土规范式 8.1.3-3)= 16.248×106/(0.87*115*1131)= 143.591 N/mm2) 计算按有效受拉混凝土截面面积计算的纵向受拉钢筋配筋率矩形截面积: A te = 0.5*b*h = 0.5*1000*140= 70000 mm2ρte = As/A te (混凝土规范式 8.1.2-4)= 1131/70000= 1.616%3) 计算裂缝间纵向受拉钢筋应变不均匀系数ψψ = 1.1-0.65*f tk/(ρte*σsk) (混凝土规范式 8.1.2-2)= 1.1-0.65*2.01/(1.616%*143.591)= 0.5374) 计算钢筋弹性模量与混凝土模量的比值αEαE = E S/E C= 2.00×105/(3.00×104)= 6.6675) 计算受压翼缘面积与腹板有效面积的比值γf矩形截面,γf = 06) 计算纵向受拉钢筋配筋率ρρ = As/(b*h0)= 1131/(1000*115)= 0.983%7) 计算受弯构件的短期刚度 B SB S = E S*As*h02/[1.15*ψ+0.2+6*αE*ρ/(1+ 3.5*γf)](混凝土规范式8.2.3--1)= 2.00×105*1131*1152/[1.15*0.537+0.2+6*6.667*0.983%/(1+3.5*0.0)]= 24.707×102 kN*m24.计算受弯构件的长期刚度B1) 确定考虑荷载长期效应组合对挠度影响增大影响系数θ当ρ`=0时,θ=2.0 (混凝土规范第 8.2.5 条)2) 计算受弯构件的长期刚度 BB = Mk/(Mq*(θ-1)+Mk)*B S (混凝土规范式 8.2.2)= 16.248/(13.837*(2.0-1)+16.248)*24.707×102= 13.344×102 kN*m25.计算受弯构件挠度f max = 5*(q gk+q qk)*L04/(384*B)= 5*(8.29+3.500)*3.324/(384*13.344×102)= 13.981 mm6.验算挠度挠度限值f0=L0/200=3.32/200=16.600 mmf max=13.981mm≤f0=16.600mm,满足规范要求!七、裂缝宽度验算:1.计算标准组合弯距值Mk:Mk = M gk+M qk= (q gk + q qk)*L02/8= (8.29 + 3.500)*3.322/8= 16.248 kN*m2.带肋钢筋,所以取值V i=1.03.C = 154.计算按荷载荷载效应的标准组合作用下,构件纵向受拉钢筋应力σsk = Mk/(0.87*h0*As) (混凝土规范式 8.1.3-3)= 16.248×106/(0.87*115.00*1131)= 143.591 N/mm5.计算按有效受拉混凝土截面面积计算的纵向受拉钢筋配筋率矩形截面积: A te = 0.5*b*h = 0.5*1000*140= 70000 mm2ρte = As/A te (混凝土规范式 8.1.2-4)= 1131/70000= 1.616%6.计算裂缝间纵向受拉钢筋应变不均匀系数ψψ = 1.1-0.65*f tk/(ρte*σsk) (混凝土规范式 8.1.2-2)= 1.1-0.65*2.01/(1.616%*143.591)= 0.5377.计算单位面积钢筋根数nn = 1000/s= 1000/100= 108.计算受拉区纵向钢筋的等效直径d eqd eq= (∑n i*d i2)/(∑n i*V i*d i)= 10*122/(10*1.0*12)= 129.计算最大裂缝宽度ωmax =αcr*ψ*σsk/E S*(1.9*C+0.08*d eq/ρte) (混凝土规范式 8.1.2-1) = 2.1*0.537*143.591/2.0×105*(1.9*15+0.08*12/1.616%) = 0.0712 mm≤ 0.30 mm,满足规范要求。
板式楼梯计算书(五种类型)类型一一、构件编号:LT-1二、示意图:三、基本资料:1.依据规范:《建筑结构荷载规范》(GB 50009-2001)《混凝土结构设计规范》(GB 50010-2002)2.几何参数:楼梯净跨: L1 = 2000 mm 楼梯高度: H = 1500 mm梯板厚: t = 100 mm 踏步数: n = 10(阶)上平台楼梯梁宽度: b1 = 200 mm下平台楼梯梁宽度: b2 = 200 mm3.荷载标准值:可变荷载:q = 2.50kN/m2面层荷载:q m = 1.70kN/m2栏杆荷载:q f = 0.20kN/m永久荷载分项系数: γG = 1.20 可变荷载分项系数: γQ = 1.40准永久值系数: ψq = 0.504.材料信息:混凝土强度等级: C20 f c = 9.60 N/mm2f t = 1.10 N/mm2R c=25.0 kN/m3f tk = 1.54 N/mm2E c= 2.55×104 N/mm2钢筋强度等级: HPB235 f y = 210 N/mm2E s= 2.10×105 N/mm2保护层厚度:c = 20.0 mm R s=20 kN/m3受拉区纵向钢筋类别:光面钢筋梯段板纵筋合力点至近边距离:a s = 25.00 mm支座负筋系数:α = 0.25四、计算过程:1. 楼梯几何参数:踏步高度:h = 0.1500 m踏步宽度:b = 0.2222 m计算跨度:L0 = L1+(b1+b2)/2 = 2.00+(0.20+0.20)/2 = 2.20 m梯段板与水平方向夹角余弦值:cosα = 0.8292. 荷载计算( 取 B = 1m 宽板带):(1) 梯段板:面层:g km = (B+B*h/b)*q m = (1+1*0.15/0.22)*1.70 = 2.85 kN/m自重:g kt = R c*B*(t/cosα+h/2) = 25*1*(0.10/0.829+0.15/2) = 4.89 kN/m抹灰:g ks = R S*B*c/cosα = 20*1*0.02/0.829 = 0.48 kN/m恒荷标准值:P k = g km+g kt+g ks+q f = 2.85+4.89+0.48+0.20 = 8.42 kN/m恒荷控制:P n(G) = 1.35*P k+γQ*0.7*B*q = 1.35*8.42+1.40*0.7*1*2.50 = 13.82 kN/m活荷控制:P n(L) = γG*P k+γQ*B*q = 1.20*8.42+1.40*1*2.50 = 13.61 kN/m荷载设计值:P n = max{ P n(G) , P n(L) } = 13.82 kN/m3. 正截面受弯承载力计算:左端支座反力: R l = 15.20 kN右端支座反力: R r = 15.20 kN最大弯矩截面距左支座的距离: L max = 1.10 m最大弯矩截面距左边弯折处的距离: x = 1.10 mM max = R l*L max-P n*x2/2= 15.20*1.10-13.82*1.102/2= 8.36 kN·m相对受压区高度:ζ= 0.169123 配筋率:ρ= 0.007731纵筋(1号)计算面积:A s = 579.85 mm2支座负筋(2、3号)计算面积:A s'=α*A s = 0.25*579.85 = 144.96 mm2五、计算结果:(为每米宽板带的配筋)1.1号钢筋计算结果(跨中)计算面积A s:579.85 mm2采用方案:d10@100实配面积: 785 mm22.2/3号钢筋计算结果(支座)计算面积A s':144.96 mm2采用方案:d6@140实配面积: 202 mm23.4号钢筋计算结果采用方案:d6@200实配面积: 141 mm2六、跨中挠度计算:Mk -------- 按荷载效应的标准组合计算的弯矩值Mq -------- 按荷载效应的准永久组合计算的弯矩值1.计算标准组合弯距值Mk:Mk = M gk+M qk= (q gk + q qk)*L02/8= (8.42 + 2.500)*2.202/8= 6.607 kN*m2.计算永久组合弯距值Mq:Mq = M gk+M qk= (q gk+ ψq*q qk)*L02/8= (8.42 + 0.50*2.500)*2.202/8= 5.851 kN*m3.计算受弯构件的短期刚度 B s1) 计算按荷载荷载效应的标准组合作用下,构件纵向受拉钢筋应力σsk = Mk/(0.87*h0*As) (混凝土规范式 8.1.3-3)= 6.607×106/(0.87*75*785)= 128.932 N/mm2) 计算按有效受拉混凝土截面面积计算的纵向受拉钢筋配筋率矩形截面积: A te = 0.5*b*h = 0.5*1000*100= 50000 mm2ρte = As/A te (混凝土规范式 8.1.2-4)= 785/50000= 1.571%3) 计算裂缝间纵向受拉钢筋应变不均匀系数ψψ = 1.1-0.65*f tk/(ρte*σsk) (混凝土规范式 8.1.2-2)= 1.1-0.65*1.54/(1.571%*128.932)= 0.6064) 计算钢筋弹性模量与混凝土模量的比值αEαE = E S/E C= 2.10×105/(2.55×104)= 8.2355) 计算受压翼缘面积与腹板有效面积的比值γf矩形截面,γf = 06) 计算纵向受拉钢筋配筋率ρρ = As/(b*h0)= 785/(1000*75)= 1.047%7) 计算受弯构件的短期刚度 B SB S = E S*As*h02/[1.15*ψ+0.2+6*αE*ρ/(1+ 3.5*γf)](混凝土规范式8.2.3--1)= 2.10×105*785*752/[1.15*0.606+0.2+6*8.235*1.047%/(1+3.5*0.0)]= 6.561×102 kN*m24.计算受弯构件的长期刚度B1) 确定考虑荷载长期效应组合对挠度影响增大影响系数θ当ρ`=0时,θ=2.0 (混凝土规范第 8.2.5 条)2) 计算受弯构件的长期刚度 BB = Mk/(Mq*(θ-1)+Mk)*B S (混凝土规范式 8.2.2)= 6.607/(5.851*(2.0-1)+6.607)*6.561×102= 3.480×102 kN*m25.计算受弯构件挠度f max = 5*(q gk+q qk)*L04/(384*B)= 5*(8.42+2.500)*2.204/(384*3.480×102)= 9.574 mm6.验算挠度挠度限值f0=L0/200=2.20/200=11.000 mmf max=9.574mm≤f0=11.000mm,满足规范要求!七、裂缝宽度验算:1.计算标准组合弯距值Mk:Mk = M gk+M qk= (q gk + q qk)*L02/8= (8.42 + 2.500)*2.202/8= 6.607 kN*m2.光面钢筋,所以取值V i=0.73.C = 204.计算按荷载荷载效应的标准组合作用下,构件纵向受拉钢筋应力σsk = Mk/(0.87*h0*As) (混凝土规范式 8.1.3-3)= 6.607×106/(0.87*75.00*785)= 128.932 N/mm5.计算按有效受拉混凝土截面面积计算的纵向受拉钢筋配筋率矩形截面积: A te = 0.5*b*h = 0.5*1000*100= 50000 mm2ρte = As/A te (混凝土规范式 8.1.2-4)= 785/50000= 1.571%6.计算裂缝间纵向受拉钢筋应变不均匀系数ψψ = 1.1-0.65*f tk/(ρte*σsk) (混凝土规范式 8.1.2-2)= 1.1-0.65*1.54/(1.571%*128.932)= 0.6067.计算单位面积钢筋根数nn = 1000/s= 1000/100= 108.计算受拉区纵向钢筋的等效直径d eqd eq= (∑n i*d i2)/(∑n i*V i*d i)= 10*102/(10*0.7*10)= 149.计算最大裂缝宽度ωmax=αcr*ψ*σsk/E S*(1.9*C+0.08*d eq/ρte) (混凝土规范式 8.1.2-1)= 2.1*0.606*128.932/2.1×105*(1.9*20+0.08*14/1.571%)= 0.0854 mm≤ 0.30 mm,满足规范要求类型二一、构件编号:LT-1二、示意图:三、基本资料:1.依据规范:《建筑结构荷载规范》(GB 50009-2001)《混凝土结构设计规范》(GB 50010-2002)2.几何参数:楼梯净跨: L1 = 2000 mm 楼梯高度: H = 1500 mm梯板厚: t = 100 mm 踏步数: n = 10(阶)上平台楼梯梁宽度: b1 = 200 mm上平台楼梯梁宽度: b1 = 200 mm3.荷载标准值:可变荷载:q = 2.50kN/m2面层荷载:q m = 1.70kN/m2栏杆荷载:q f = 0.20kN/m永久荷载分项系数: γG = 1.20 可变荷载分项系数: γQ = 1.40准永久值系数: ψq = 0.504.材料信息:混凝土强度等级: C20 f c = 9.60 N/mm2f t = 1.10 N/mm2R c=25.0 kN/m3f tk = 1.54 N/mm2E c= 2.55×104 N/mm2钢筋强度等级: HPB235 f y = 210 N/mm2E s= 2.10×105 N/mm2保护层厚度:c = 20.0 mm R s=20 kN/m3受拉区纵向钢筋类别:光面钢筋梯段板纵筋合力点至近边距离:a s = 25.00 mm支座负筋系数:α = 0.25四、计算过程:1. 楼梯几何参数:踏步高度:h = 0.1500 m踏步宽度:b = 0.2222 m计算跨度:L0 = L1+b1/2-b = 2.00+0.20/2-0.22 = 1.88 m梯段板与水平方向夹角余弦值:cosα = 0.8292. 荷载计算( 取 B = 1m 宽板带):(1) 梯段板:面层:g km = (B+B*h/b)*q m = (1+1*0.15/0.22)*1.70 = 2.85 kN/m自重:g kt = R c*B*(t/cosα+h/2) = 25*1*(0.10/0.829+0.15/2) = 4.89 kN/m抹灰:g ks = R S*B*c/cosα = 20*1*0.02/0.829 = 0.48 kN/m恒荷标准值:P k = g km+g kt+g ks+q f = 2.85+4.89+0.48+0.20 = 8.42 kN/m恒荷控制:P n(G) = 1.35*P k+γQ*0.7*B*q = 1.35*8.42+1.40*0.7*1*2.50 = 13.82 kN/m活荷控制:P n(L) = γG*P k+γQ*B*q = 1.20*8.42+1.40*1*2.50 = 13.61 kN/m荷载设计值:P n = max{ P n(G) , P n(L) } = 13.82 kN/m3. 正截面受弯承载力计算:左端支座反力: R l = 12.97 kN右端支座反力: R r = 12.97 kN最大弯矩截面距左支座的距离: L max = 0.94 m最大弯矩截面距左边弯折处的距离: x = 0.94 mM max = R l*L max-P n*x2/2= 12.97*0.94-13.82*0.942/2= 6.09 kN·m相对受压区高度:ζ= 0.119990 配筋率:ρ= 0.005485纵筋(1号)计算面积:A s = 411.39 mm2支座负筋(2、3号)计算面积:A s'=α*A s = 0.25*411.39 = 102.85 mm2五、计算结果:(为每米宽板带的配筋)1.1号钢筋计算结果(跨中)计算面积A s:411.39 mm2采用方案:d10@100实配面积: 785 mm22.2/3号钢筋计算结果(支座)计算面积A s':102.85 mm2采用方案:d6@140实配面积: 202 mm23.4号钢筋计算结果采用方案:d6@200实配面积: 141 mm2六、跨中挠度计算:Mk -------- 按荷载效应的标准组合计算的弯矩值Mq -------- 按荷载效应的准永久组合计算的弯矩值1.计算标准组合弯距值Mk:Mk = M gk+M qk= (q gk + q qk)*L02/8= (8.42 + 2.500)*1.882/8= 4.814 kN*m2.计算永久组合弯距值Mq:Mq = M gk+M qk= (q gk+ ψq*q qk)*L02/8= (8.42 + 0.50*2.500)*1.882/8= 4.263 kN*m3.计算受弯构件的短期刚度 B s1) 计算按荷载荷载效应的标准组合作用下,构件纵向受拉钢筋应力σsk = Mk/(0.87*h0*As) (混凝土规范式 8.1.3-3)= 4.814×106/(0.87*75*785)= 93.930 N/mm2) 计算按有效受拉混凝土截面面积计算的纵向受拉钢筋配筋率矩形截面积: A te = 0.5*b*h = 0.5*1000*100= 50000 mm2ρte = As/A te (混凝土规范式 8.1.2-4)= 785/50000= 1.571%3) 计算裂缝间纵向受拉钢筋应变不均匀系数ψψ = 1.1-0.65*f tk/(ρte*σsk) (混凝土规范式 8.1.2-2)= 1.1-0.65*1.54/(1.571%*93.930)= 0.4224) 计算钢筋弹性模量与混凝土模量的比值αEαE = E S/E C= 2.10×105/(2.55×104)= 8.2355) 计算受压翼缘面积与腹板有效面积的比值γf矩形截面,γf = 06) 计算纵向受拉钢筋配筋率ρρ = As/(b*h0)= 785/(1000*75)= 1.047%7) 计算受弯构件的短期刚度 B SB S = E S*As*h02/[1.15*ψ+0.2+6*αE*ρ/(1+ 3.5*γf)](混凝土规范式8.2.3--1)= 2.10×105*785*752/[1.15*0.422+0.2+6*8.235*1.047%/(1+3.5*0.0)]= 7.717×102 kN*m24.计算受弯构件的长期刚度B1) 确定考虑荷载长期效应组合对挠度影响增大影响系数θ当ρ`=0时,θ=2.0 (混凝土规范第 8.2.5 条)2) 计算受弯构件的长期刚度 BB = Mk/(Mq*(θ-1)+Mk)*B S (混凝土规范式 8.2.2)= 4.814/(4.263*(2.0-1)+4.814)*7.717×102= 4.093×102 kN*m25.计算受弯构件挠度f max = 5*(q gk+q qk)*L04/(384*B)= 5*(8.42+2.500)*1.884/(384*4.093×102)= 4.320 mm6.验算挠度挠度限值f0=L0/200=1.88/200=9.389 mmf max=4.320mm≤f0=9.389mm,满足规范要求!七、裂缝宽度验算:1.计算标准组合弯距值Mk:Mk = M gk+M qk= (q gk + q qk)*L02/8= (8.42 + 2.500)*1.882/8= 4.814 kN*m2.光面钢筋,所以取值V i=0.73.C = 204.计算按荷载荷载效应的标准组合作用下,构件纵向受拉钢筋应力σsk = Mk/(0.87*h0*As) (混凝土规范式 8.1.3-3)= 4.814×106/(0.87*75.00*785)= 93.930 N/mm5.计算按有效受拉混凝土截面面积计算的纵向受拉钢筋配筋率矩形截面积: A te = 0.5*b*h = 0.5*1000*100= 50000 mm2ρte = As/A te (混凝土规范式 8.1.2-4)= 785/50000= 1.571%6.计算裂缝间纵向受拉钢筋应变不均匀系数ψψ = 1.1-0.65*f tk/(ρte*σsk) (混凝土规范式 8.1.2-2)= 1.1-0.65*1.54/(1.571%*93.930)= 0.4227.计算单位面积钢筋根数nn = 1000/s= 1000/100= 108.计算受拉区纵向钢筋的等效直径d eqd eq= (∑n i*d i2)/(∑n i*V i*d i)= 10*102/(10*0.7*10)= 149.计算最大裂缝宽度ωmax=αcr*ψ*σsk/E S*(1.9*C+0.08*d eq/ρte) (混凝土规范式 8.1.2-1) = 2.1*0.422*93.930/2.1×105*(1.9*20+0.08*14/1.571%)= 0.0433 mm≤ 0.30 mm,满足规范要求类型三一、构件编号:LT-1二、示意图:三、基本资料:1.依据规范:《建筑结构荷载规范》(GB 50009-2001)《混凝土结构设计规范》(GB 50010-2002)2.几何参数:楼梯净跨: L1 = 2000 mm 楼梯高度: H = 1500 mm梯板厚: t = 100 mm 踏步数: n = 10(阶)上平台楼梯梁宽度: b1 = 200 mm下平台楼梯梁宽度: b2 = 200 mm下平台宽: L2 = 300 mm3.荷载标准值:可变荷载:q = 2.50kN/m2面层荷载:q m = 1.70kN/m2栏杆荷载:q f = 0.20kN/m永久荷载分项系数: γG = 1.20 可变荷载分项系数: γQ = 1.40准永久值系数: ψq = 0.504.材料信息:混凝土强度等级: C20 f c = 9.60 N/mm2f t = 1.10 N/mm2R c=25.0 kN/m3f tk = 1.54 N/mm2E c = 2.55×104 N/mm2钢筋强度等级: HPB235 f y = 210 N/mm2E s = 2.10×105 N/mm2保护层厚度:c = 20.0 mm R s=20 kN/m3受拉区纵向钢筋类别:光面钢筋梯段板纵筋合力点至近边距离:a s = 25.00 mm支座负筋系数:α = 0.25四、计算过程:1. 楼梯几何参数:踏步高度:h = 0.1500 m踏步宽度:b = 0.2222 m计算跨度:L0 = L1+L2+(b1+b2)/2 = 2.00+0.30+(0.20+0.20)/2 = 2.50 m梯段板与水平方向夹角余弦值:cosα = 0.8292. 荷载计算( 取 B = 1m 宽板带):(1) 梯段板:面层:g km = (B+B*h/b)*q m = (1+1*0.15/0.22)*1.70 = 2.85 kN/m自重:g kt = R c*B*(t/cosα+h/2) = 25*1*(0.10/0.829+0.15/2) = 4.89 kN/m抹灰:g ks = R S*B*c/cosα = 20*1*0.02/0.829 = 0.48 kN/m恒荷标准值:P k = g km+g kt+g ks+q f = 2.85+4.89+0.48+0.20 = 8.42 kN/m恒荷控制:P n(G) = 1.35*P k+γQ*0.7*B*q = 1.35*8.42+1.40*0.7*1*2.50 = 13.82 kN/m活荷控制:P n(L) = γG*P k+γQ*B*q = 1.20*8.42+1.40*1*2.50 = 13.61 kN/m荷载设计值:P n = max{ P n(G) , P n(L) } = 13.82 kN/m(2) 平台板:面层:g km' = B*q m = 1*1.70 = 1.70 kN/m自重:g kt' = R c*B*t = 25*1*0.10 = 2.50 kN/m抹灰:g ks' = R S*B*c = 20*1*0.02 = 0.40 kN/m恒荷标准值:P k' = g km'+g kt'+g ks'+q f = 1.70+2.50+0.40+0.20 = 4.80 kN/m 恒荷控制:P l(G) = 1.35*P k'+γQ*0.7*B*q = 1.35*4.80+1.40*0.7*1*2.50 = 8.93 kN/m活荷控制:P l(L) = γG*P k+γQ*B*q = 1.20*4.80+1.40*1*2.50 = 9.26 kN/m荷载设计值:P l = max{ P l(G) , P l(L) } = 9.26 kN/m3. 正截面受弯承载力计算:左端支座反力: R l = 17.13 kN右端支座反力: R r = 15.60 kN最大弯矩截面距左支座的距离: L max = 1.24 m最大弯矩截面距左边弯折处的距离: x = 1.24 mM max = R l*L max-P n*x2/2= 17.13*1.24-13.82*1.242/2= 10.61 kN·m相对受压区高度:ζ= 0.220978 配筋率:ρ= 0.010102纵筋(1号)计算面积:A s = 757.64 mm2支座负筋(2、3号)计算面积:A s'=α*A s = 0.25*757.64 = 189.41 mm2五、计算结果:(为每米宽板带的配筋)1.1号钢筋计算结果(跨中)计算面积A s:757.64 mm2采用方案:d10@100实配面积: 785 mm22.2/3号钢筋计算结果(支座)计算面积A s':189.41 mm2采用方案:d6@140实配面积: 202 mm23.4号钢筋计算结果采用方案:d6@200实配面积: 141 mm24.5号钢筋计算结果采用方案:d10@100实配面积: 785 mm2六、跨中挠度计算:Mk -------- 按荷载效应的标准组合计算的弯矩值Mq -------- 按荷载效应的准永久组合计算的弯矩值1.计算标准组合弯距值Mk:Mk = M gk+M qk= (q gk + q qk)*L02/8= (8.42 + 2.500)*2.502/8= 8.532 kN*m2.计算永久组合弯距值Mq:Mq = M gk+M qk= (q gk + ψq*q qk)*L02/8= (8.42 + 0.50*2.500)*2.502/8= 7.556 kN*m3.计算受弯构件的短期刚度 B s1) 计算按荷载荷载效应的标准组合作用下,构件纵向受拉钢筋应力σsk = Mk/(0.87*h0*As) (混凝土规范式 8.1.3-3)= 8.532×106/(0.87*75*785)= 166.493 N/mm2) 计算按有效受拉混凝土截面面积计算的纵向受拉钢筋配筋率矩形截面积: A te = 0.5*b*h = 0.5*1000*100= 50000 mm2ρte = As/A te (混凝土规范式 8.1.2-4)= 785/50000= 1.571%3) 计算裂缝间纵向受拉钢筋应变不均匀系数ψψ = 1.1-0.65*f tk/(ρte*σsk) (混凝土规范式 8.1.2-2) = 1.1-0.65*1.54/(1.571%*166.493)= 0.7174) 计算钢筋弹性模量与混凝土模量的比值αEαE = E S/E C= 2.10×105/(2.55×104)= 8.2355) 计算受压翼缘面积与腹板有效面积的比值γf矩形截面,γf = 06) 计算纵向受拉钢筋配筋率ρρ = As/(b*h0)= 785/(1000*75)= 1.047%7) 计算受弯构件的短期刚度 B SB S = E S*As*h02/[1.15*ψ+0.2+6*αE*ρ/(1+ 3.5*γf)](混凝土规范式8.2.3--1)= 2.10×105*785*752/[1.15*0.717+0.2+6*8.235*1.047%/(1+3.5*0.0)]= 6.015×102 kN*m24.计算受弯构件的长期刚度B1) 确定考虑荷载长期效应组合对挠度影响增大影响系数θ当ρ`=0时,θ=2.0 (混凝土规范第 8.2.5 条)2) 计算受弯构件的长期刚度 BB = Mk/(Mq*(θ-1)+Mk)*B S (混凝土规范式 8.2.2)= 8.532/(7.556*(2.0-1)+8.532)*6.015×102= 3.190×102 kN*m25.计算受弯构件挠度f max = 5*(q gk+q qk)*L04/(384*B)= 5*(8.42+2.500)*2.504/(384*3.190×102)= 17.412 mm6.验算挠度挠度限值f0=L0/200=2.50/200=12.500 mmf max=17.412mm>f0=12.500mm,不满足规范要求!七、裂缝宽度验算:1.计算标准组合弯距值Mk:Mk = M gk+M qk= (q gk + q qk)*L02/8= (8.42 + 2.500)*2.502/8= 8.532 kN*m2.光面钢筋,所以取值V i=0.73.C = 204.计算按荷载荷载效应的标准组合作用下,构件纵向受拉钢筋应力σsk = Mk/(0.87*h0*As) (混凝土规范式 8.1.3-3)= 8.532×106/(0.87*75.00*785)= 166.493 N/mm5.计算按有效受拉混凝土截面面积计算的纵向受拉钢筋配筋率矩形截面积: A te = 0.5*b*h = 0.5*1000*100= 50000 mm2ρte = As/A te (混凝土规范式 8.1.2-4)= 785/50000= 1.571%6.计算裂缝间纵向受拉钢筋应变不均匀系数ψψ = 1.1-0.65*f tk/(ρte*σsk) (混凝土规范式 8.1.2-2)= 1.1-0.65*1.54/(1.571%*166.493)= 0.7177.计算单位面积钢筋根数nn = 1000/s= 1000/100= 108.计算受拉区纵向钢筋的等效直径d eqd eq= (∑n i*d i2)/(∑n i*V i*d i)= 10*102/(10*0.7*10)= 149.计算最大裂缝宽度ωmax =αcr*ψ*σsk/E S*(1.9*C+0.08*d eq/ρte) (混凝土规范式 8.1.2-1)= 2.1*0.717*166.493/2.1×105*(1.9*20+0.08*14/1.571%)= 0.1305 mm≤ 0.30 mm,满足规范要求类型四一、构件编号:LT-1二、示意图:三、基本资料:1.依据规范:《建筑结构荷载规范》(GB 50009-2001)《混凝土结构设计规范》(GB 50010-2002)2.几何参数:楼梯净跨: L1 = 2000 mm 楼梯高度: H = 1500 mm梯板厚: t = 100 mm 踏步数: n = 10(阶)上平台楼梯梁宽度: b1 = 200 mm下平台楼梯梁宽度: b2 = 200 mm上平台宽: L3 = 300 mm3.荷载标准值:可变荷载:q = 2.50kN/m2面层荷载:q m = 1.70kN/m2栏杆荷载:q f = 0.20kN/m永久荷载分项系数: γG = 1.20 可变荷载分项系数: γQ = 1.40准永久值系数: ψq = 0.504.材料信息:混凝土强度等级: C20 f c = 9.60 N/mm2f t = 1.10 N/mm2R c=25.0 kN/m3f tk = 1.54 N/mm2E c= 2.55×104 N/mm2钢筋强度等级: HPB235 f y = 210 N/mm2E s= 2.10×105 N/mm2保护层厚度:c = 20.0 mm R s=20 kN/m3受拉区纵向钢筋类别:光面钢筋梯段板纵筋合力点至近边距离:a s = 25.00 mm支座负筋系数:α = 0.25四、计算过程:1. 楼梯几何参数:踏步高度:h = 0.1500 m踏步宽度:b = 0.2222 m计算跨度:L0 = L1+L3+(b1+b2)/2 = 2.00+0.30+(0.20+0.20)/2 = 2.50 m梯段板与水平方向夹角余弦值:cosα = 0.8292. 荷载计算( 取 B = 1m 宽板带):(1) 梯段板:面层:g km = (B+B*h/b)*q m = (1+1*0.15/0.22)*1.70 = 2.85 kN/m自重:g kt = R c*B*(t/cosα+h/2) = 25*1*(0.10/0.829+0.15/2) = 4.89 kN/m抹灰:g ks = R S*B*c/cosα = 20*1*0.02/0.829 = 0.48 kN/m恒荷标准值:P k = g km+g kt+g ks+q f = 2.85+4.89+0.48+0.20 = 8.42 kN/m恒荷控制:P n(G) = 1.35*P k+γQ*0.7*B*q = 1.35*8.42+1.40*0.7*1*2.50 = 13.82 kN/m活荷控制:P n(L) = γG*P k+γQ*B*q = 1.20*8.42+1.40*1*2.50 = 13.61 kN/m荷载设计值:P n = max{ P n(G) , P n(L) } = 13.82 kN/m(2) 平台板:面层:g km' = B*q m = 1*1.70 = 1.70 kN/m自重:g kt' = R c*B*t = 25*1*0.10 = 2.50 kN/m抹灰:g ks' = R S*B*c = 20*1*0.02 = 0.40 kN/m恒荷标准值:P k' = g km'+g kt'+g ks'+q f = 1.70+2.50+0.40+0.20 = 4.80 kN/m 恒荷控制:P l(G) = 1.35*P k'+γQ*0.7*B*q = 1.35*4.80+1.40*0.7*1*2.50 = 8.93 kN/m活荷控制:P l(L) = γG*P k+γQ*B*q = 1.20*4.80+1.40*1*2.50 = 9.26 kN/m荷载设计值:P l = max{ P l(G) , P l(L) } = 9.26 kN/m3. 正截面受弯承载力计算:左端支座反力: R l = 15.60 kN右端支座反力: R r = 17.13 kN最大弯矩截面距左支座的距离: L max = 1.26 m最大弯矩截面距左边弯折处的距离: x = 0.86 mM max = R l*L max-[P l*L3*(x+L3/2)+P n*x2/2]= 15.60*1.26-[9.26*0.40*(0.86+0.40/2)+13.82*0.862/2]= 10.61 kN·m相对受压区高度:ζ= 0.220978 配筋率:ρ= 0.010102纵筋(1号)计算面积:A s = 757.64 mm2支座负筋(2、3号)计算面积:A s'=α*A s = 0.25*757.64 = 189.41 mm2五、计算结果:(为每米宽板带的配筋)1.1号钢筋计算结果(跨中)计算面积A s:757.64 mm2采用方案:d10@100实配面积: 785 mm22.2/3号钢筋计算结果(支座)计算面积A s':189.41 mm2采用方案:d6@140实配面积: 202 mm23.4号钢筋计算结果采用方案:d6@200实配面积: 141 mm24.5号钢筋计算结果采用方案:d10@100实配面积: 785 mm2六、跨中挠度计算:Mk -------- 按荷载效应的标准组合计算的弯矩值Mq -------- 按荷载效应的准永久组合计算的弯矩值1.计算标准组合弯距值Mk:Mk = M gk+M qk= (q gk + q qk)*L02/8= (8.42 + 2.500)*2.502/8= 8.532 kN*m2.计算永久组合弯距值Mq:Mq = M gk+M qk= (q gk+ ψq*q qk)*L02/8= (8.42 + 0.50*2.500)*2.502/8= 7.556 kN*m3.计算受弯构件的短期刚度 B s1) 计算按荷载荷载效应的标准组合作用下,构件纵向受拉钢筋应力σsk = Mk/(0.87*h0*As) (混凝土规范式 8.1.3-3)= 8.532×106/(0.87*75*785)= 166.493 N/mm2) 计算按有效受拉混凝土截面面积计算的纵向受拉钢筋配筋率矩形截面积: A te = 0.5*b*h = 0.5*1000*100= 50000 mm2ρte = As/A te (混凝土规范式 8.1.2-4)= 785/50000= 1.571%3) 计算裂缝间纵向受拉钢筋应变不均匀系数ψψ = 1.1-0.65*f tk/(ρte*σsk) (混凝土规范式 8.1.2-2)= 1.1-0.65*1.54/(1.571%*166.493)= 0.7174) 计算钢筋弹性模量与混凝土模量的比值αEαE = E S/E C= 2.10×105/(2.55×104)= 8.2355) 计算受压翼缘面积与腹板有效面积的比值γf矩形截面,γf = 06) 计算纵向受拉钢筋配筋率ρρ = As/(b*h0)= 785/(1000*75)= 1.047%7) 计算受弯构件的短期刚度 B SB S = E S*As*h02/[1.15*ψ+0.2+6*αE*ρ/(1+ 3.5*γf)](混凝土规范式8.2.3--1)= 2.10×105*785*752/[1.15*0.717+0.2+6*8.235*1.047%/(1+3.5*0.0)]= 6.015×102 kN*m24.计算受弯构件的长期刚度B1) 确定考虑荷载长期效应组合对挠度影响增大影响系数θ当ρ`=0时,θ=2.0 (混凝土规范第 8.2.5 条)2) 计算受弯构件的长期刚度 BB = Mk/(Mq*(θ-1)+Mk)*B S (混凝土规范式 8.2.2)= 8.532/(7.556*(2.0-1)+8.532)*6.015×102= 3.190×102 kN*m25.计算受弯构件挠度f max = 5*(q gk+q qk)*L04/(384*B)= 5*(8.42+2.500)*2.504/(384*3.190×102)= 17.412 mm6.验算挠度挠度限值f0=L0/200=2.50/200=12.500 mmf max=17.412mm>f0=12.500mm,不满足规范要求!七、裂缝宽度验算:1.计算标准组合弯距值Mk:Mk = M gk+M qk= (q gk + q qk)*L02/8= (8.42 + 2.500)*2.502/8= 8.532 kN*m2.光面钢筋,所以取值V i=0.73.C = 204.计算按荷载荷载效应的标准组合作用下,构件纵向受拉钢筋应力σsk = Mk/(0.87*h0*As) (混凝土规范式 8.1.3-3)= 8.532×106/(0.87*75.00*785)= 166.493 N/mm5.计算按有效受拉混凝土截面面积计算的纵向受拉钢筋配筋率矩形截面积: A te = 0.5*b*h = 0.5*1000*100= 50000 mm2ρte = As/A te (混凝土规范式 8.1.2-4)= 785/50000= 1.571%6.计算裂缝间纵向受拉钢筋应变不均匀系数ψψ = 1.1-0.65*f tk/(ρte*σsk) (混凝土规范式 8.1.2-2)= 1.1-0.65*1.54/(1.571%*166.493)= 0.7177.计算单位面积钢筋根数nn = 1000/s= 1000/100= 108.计算受拉区纵向钢筋的等效直径d eqd eq= (∑n i*d i2)/(∑n i*V i*d i)= 10*102/(10*0.7*10)= 149.计算最大裂缝宽度ωmax=αcr*ψ*σsk/E S*(1.9*C+0.08*d eq/ρte) (混凝土规范式 8.1.2-1) = 2.1*0.717*166.493/2.1×105*(1.9*20+0.08*14/1.571%) = 0.1305 mm≤ 0.30 mm,满足规范要求类型五一、构件编号:LT-1二、示意图:三、基本资料:1.依据规范:《建筑结构荷载规范》(GB 50009-2001)《混凝土结构设计规范》(GB 50010-2002)2.几何参数:楼梯净跨: L1 = 2000 mm 楼梯高度: H = 1500 mm梯板厚: t = 100 mm 踏步数: n = 10(阶)上平台楼梯梁宽度: b1 = 200 mm下平台楼梯梁宽度: b2 = 200 mm下平台宽: L2 = 300 mm 上平台宽: L3 = 300 mm3.荷载标准值:可变荷载:q = 2.50kN/m2面层荷载:q m = 1.70kN/m2栏杆荷载:q f = 0.20kN/m永久荷载分项系数: γG = 1.20 可变荷载分项系数: γQ = 1.40准永久值系数: ψq = 0.504.材料信息:混凝土强度等级: C20 f c = 9.60 N/mm2f t = 1.10 N/mm2 R c=25.0 kN/m3f tk = 1.54 N/mm2 E c= 2.55×104 N/mm2钢筋强度等级: HPB235 f y = 210 N/mm2E s= 2.10×105 N/mm2保护层厚度:c = 20.0 mm R s=20 kN/m3受拉区纵向钢筋类别:光面钢筋梯段板纵筋合力点至近边距离:a s = 25.00 mm支座负筋系数:α = 0.25四、计算过程:1. 楼梯几何参数:踏步高度:h = 0.1500 m踏步宽度:b = 0.2222 m计算跨度:L0 = L1+L2+L3+(b1+b2)/2 = 2.00+0.30+0.30+(0.20+0.20)/2 = 2.80 m 梯段板与水平方向夹角余弦值:cosα = 0.8292. 荷载计算( 取 B = 1m 宽板带):(1) 梯段板:面层:g km = (B+B*h/b)*q m = (1+1*0.15/0.22)*1.70 = 2.85 kN/m自重:g kt = R c*B*(t/cosα+h/2) = 25*1*(0.10/0.829+0.15/2) = 4.89 kN/m抹灰:g ks = R S*B*c/cosα = 20*1*0.02/0.829 = 0.48 kN/m恒荷标准值:P k = g km+g kt+g ks+q f = 2.85+4.89+0.48+0.20 = 8.42 kN/m恒荷控制:P n(G) = 1.35*P k+γQ*0.7*B*q = 1.35*8.42+1.40*0.7*1*2.50 = 13.82 kN/m 活荷控制:P n(L) = γG*P k+γQ*B*q = 1.20*8.42+1.40*1*2.50 = 13.61 kN/m荷载设计值:P n = max{ P n(G) , P n(L) } = 13.82 kN/m(2) 平台板:面层:g km' = B*q m = 1*1.70 = 1.70 kN/m自重:g kt' = R c*B*t = 25*1*0.10 = 2.50 kN/m抹灰:g ks' = R S*B*c = 20*1*0.02 = 0.40 kN/m恒荷标准值:P k' = g km'+g kt'+g ks'+q f = 1.70+2.50+0.40+0.20 = 4.80 kN/m恒荷控制:P l(G) = 1.35*P k'+γQ*0.7*B*q = 1.35*4.80+1.40*0.7*1*2.50 = 8.93 kN/m 活荷控制:P l(L) = γG*P k+γQ*B*q = 1.20*4.80+1.40*1*2.50 = 9.26 kN/m荷载设计值:P l = max{ P l(G) , P l(L) } = 9.26 kN/m3. 正截面受弯承载力计算:左端支座反力: R l = 17.52 kN右端支座反力: R r = 17.52 kN最大弯矩截面距左支座的距离: L max = 1.40 m最大弯矩截面距左边弯折处的距离: x = 1.00 mM max = R l*L max-[P l*L3*(x+L3/2)+P n*x2/2]= 17.52*1.40-[9.26*0.40*(1.00+0.40/2)+13.82*1.002/2] = 13.18 kN·m相对受压区高度:ζ= 0.284503 配筋率:ρ= 0.013006纵筋(1号)计算面积:A s = 975.44 mm2支座负筋(2、3号)计算面积:A s'=α*A s = 0.25*975.44 = 243.86 mm2五、计算结果:(为每米宽板带的配筋)1.1号钢筋计算结果(跨中)计算面积A s:975.44 mm2采用方案:d10@100实配面积: 785 mm22.2/3号钢筋计算结果(支座)计算面积A s':243.86 mm2采用方案:d6@140实配面积: 202 mm23.4号钢筋计算结果采用方案:d6@200实配面积: 141 mm24.5号钢筋计算结果采用方案:d10@100实配面积: 785 mm25.6号钢筋计算结果采用方案:d6@140实配面积: 202 mm2六、跨中挠度计算:Mk -------- 按荷载效应的标准组合计算的弯矩值Mq -------- 按荷载效应的准永久组合计算的弯矩值1.计算标准组合弯距值Mk:Mk = M gk+M qk= (q gk + q qk)*L02/8= (8.42 + 2.500)*2.802/8= 10.703 kN*m2.计算永久组合弯距值Mq:Mq = M gk+M qk= (q gk+ ψq*q qk)*L02/8= (8.42 + 0.50*2.500)*2.802/8= 9.478 kN*m3.计算受弯构件的短期刚度 B s1) 计算按荷载荷载效应的标准组合作用下,构件纵向受拉钢筋应力σsk = Mk/(0.87*h0*As) (混凝土规范式 8.1.3-3)= 10.703×106/(0.87*75*785)= 208.848 N/mm2) 计算按有效受拉混凝土截面面积计算的纵向受拉钢筋配筋率矩形截面积: A te = 0.5*b*h = 0.5*1000*100= 50000 mm2ρte = As/A te (混凝土规范式 8.1.2-4)= 785/50000= 1.571%3) 计算裂缝间纵向受拉钢筋应变不均匀系数ψψ = 1.1-0.65*f tk/(ρte*σsk) (混凝土规范式 8.1.2-2)= 1.1-0.65*1.54/(1.571%*208.848)= 0.7954) 计算钢筋弹性模量与混凝土模量的比值αEαE = E S/E C= 2.10×105/(2.55×104)= 8.2355) 计算受压翼缘面积与腹板有效面积的比值γf矩形截面,γf = 06) 计算纵向受拉钢筋配筋率ρρ = As/(b*h0)= 785/(1000*75)= 1.047%7) 计算受弯构件的短期刚度 B SB S = E S*As*h02/[1.15*ψ+0.2+6*αE*ρ/(1+ 3.5*γf)](混凝土规范式8.2.3--1) = 2.10×105*785*752/[1.15*0.795+0.2+6*8.235*1.047%/(1+3.5*0.0)] = 5.686×102 kN*m24.计算受弯构件的长期刚度B1) 确定考虑荷载长期效应组合对挠度影响增大影响系数θ当ρ`=0时,θ=2.0 (混凝土规范第 8.2.5 条)2) 计算受弯构件的长期刚度 BB = Mk/(Mq*(θ-1)+Mk)*B S (混凝土规范式 8.2.2)= 10.703/(9.478*(2.0-1)+10.703)*5.686×102= 3.016×102 kN*m25.计算受弯构件挠度f max = 5*(q gk+q qk)*L04/(384*B)= 5*(8.42+2.500)*2.804/(384*3.016×102)= 28.983 mm6.验算挠度挠度限值f0=L0/200=2.80/200=14.000 mmf max=28.983mm>f0=14.000mm,不满足规范要求!七、裂缝宽度验算:1.计算标准组合弯距值Mk:Mk = M gk+M qk= (q gk + q qk)*L02/8= (8.42 + 2.500)*2.802/8= 10.703 kN*m2.光面钢筋,所以取值V i=0.73.C = 204.计算按荷载荷载效应的标准组合作用下,构件纵向受拉钢筋应力σsk = Mk/(0.87*h0*As) (混凝土规范式 8.1.3-3)= 10.703×106/(0.87*75.00*785)= 208.848 N/mm5.计算按有效受拉混凝土截面面积计算的纵向受拉钢筋配筋率矩形截面积: A te = 0.5*b*h = 0.5*1000*100= 50000 mm2ρte = As/A te (混凝土规范式 8.1.2-4)= 785/50000= 1.571%6.计算裂缝间纵向受拉钢筋应变不均匀系数ψψ = 1.1-0.65*f tk/(ρte*σsk) (混凝土规范式 8.1.2-2)= 1.1-0.65*1.54/(1.571%*208.848)= 0.7957.计算单位面积钢筋根数nn = 1000/s= 1000/100= 108.计算受拉区纵向钢筋的等效直径d eqd eq= (∑n i*d i2)/(∑n i*V i*d i)= 10*102/(10*0.7*10)= 149.计算最大裂缝宽度ωmax=αcr*ψ*σsk/E S*(1.9*C+0.08*d eq/ρte) (混凝土规范式 8.1.2-1) = 2.1*0.795*208.848/2.1×105*(1.9*20+0.08*14/1.571%)= 0.1814 mm≤ 0.30 mm,满足规范要求。
【例题 2.1《楼梯、阳台和雨篷设计》37页,PDF 版47页】 图2.1为某实验楼楼梯的平面图和剖面图。
采用现浇板式楼梯,混凝土强度等级为C25,2211.9/, 1.27/c t f N mm f N mm ==钢筋直径d ≥12mm 时采用HRB400级钢筋,2360/y f N mm =;d ≤10mm 时采用HPB300级钢筋,2270/y f N mm =,楼梯活荷载为3.5KN/m ²。
楼梯的结构布置如图 2.8所示。
斜板两端与平台梁和楼梯梁整结,平台板一端与平台梁整结,平台板一端与平台梁整结,另一端则与窗过梁整结,平台梁两端都搁置在楼梯间的侧墙上。
试对此现浇板式楼梯进行结构设计。
解:1)斜板TB1设计除底层第一跑楼梯的斜板外,其余斜板均相同,而第一跑楼梯斜板的下端为混凝土基础,可按净跨计算。
这里只对标准段斜板TB1进行设计。
对斜板TB1取1m 宽作为其计算单元。
(1)确定斜板厚度t斜板的水平投影净长为l 1n =3300mm斜板的斜向净长为113691cos n n l l mm α=== 斜板厚度为t 1=(1/25~1/30)l 1n =(1/25~1/30)×3300=110~120mm,取t 1=120mm 。
(根据“混凝土结构构造手册(第四版)”384页)(2)荷载计算,楼梯斜板荷载计算见表2.3。
表2.3楼梯斜板荷载计算水磨石面层的容重为0.65KN/m ²(GB50009-2012,附录A-15,84页);纸筋灰容重16KN/m ³(GB50009-2012,附录A-6,75页,实际工程中已被水泥砂浆代替)以上计算的荷载设计值是由可变荷载控制的组合,计算由永久荷载控制的组合 1.357.160.98 3.513.10/p KN m =⨯+⨯=,综合取p=13.50KN/m(3)计算简图如前所述,斜板的计算简图可用一根假想的跨度为l 1n 的水平梁替代,如图2.9所示。
板式和梁式楼梯手算及实例1. 板式楼梯手算:板式楼梯是由一块平板作为阶梯的楼梯形式,可以根据需要调整阶梯的宽度和高度。
步骤如下:- 确定楼梯的总高度(H)和阶梯的总数目(n)。
- 计算每个阶梯的高度(h):h = H / n。
- 确定每个阶梯的宽度(w):w = 总宽度 / n。
- 如果需要,可以调整每个阶梯的前沿(前沿高度不应该超过阶梯高度的3/4)。
例如,假设楼梯的总高度为300 cm,总宽度为100 cm,要求有10个阶梯。
- 每个阶梯的高度:h = 300 cm / 10 = 30 cm。
- 每个阶梯的宽度:w = 100 cm / 10 = 10 cm。
所以该板式楼梯手算结果为:每个阶梯的高度为30 cm,宽度为10 cm。
2. 梁式楼梯手算:梁式楼梯是由一根梁作为支撑的楼梯形式,可以根据需要调整梁的高度、宽度和长度。
步骤如下:- 确定楼梯的总高度(H)和总长度(L)。
- 计算每个阶梯的高度(h):h = H / n。
- 计算每个阶梯的梁长度(l):l = L / n。
- 确定梁的尺寸,包括宽度(w)和厚度(t)。
- 如果需要,可以调整每个阶梯的前沿(前沿高度不应该超过阶梯高度的3/4)。
例如,假设楼梯的总高度为300 cm,总长度为500 cm,要求有10个阶梯。
- 每个阶梯的高度:h = 300 cm / 10 = 30 cm。
- 每个阶梯的梁长度:l = 500 cm / 10 = 50 cm。
假设梁的宽度为15 cm,厚度为10 cm。
所以该梁式楼梯手算结果为:每个阶梯的高度为30 cm,梁长度为50 cm,梁宽度为15 cm,梁厚度为10 cm。
一跑板式楼梯{3.4号别墅楼梯}[]已知:层高3.0m ;踏步尺寸175*250;平台板无;踏步板900*4000;踏步板与水平面的夹角35度,则cosa=0.819;计算长度Ln=4.0m ;取板厚为160mm 。
1) 楼梯荷载恒荷载:楼梯面荷载按2.1KN/m 2计算,同楼面板做法。
楼梯段:面层2.1*1*(0.25+0.175)/0.25=3.57KN/m踏步27*0.175*0.25/2*1/0.25=2.16 KN/m斜板砼27*0.160/0.819=5.27 KN/m合计:3.57+2.16+5.27=11 KN/m活荷载:2.0 KN/m 2楼梯板段荷载设计值:1.2*11+1.4*2.0=16 KN/m1.35*11+0.7*1.4*2.0=16.8 KN/m取16.8 KN/m2) 楼梯内力计算查表得跨中最大弯矩值:M= 2/8ql = 16.8x42/8=33.6 KN*m3) 配筋验算选用C25砼,二级钢筋;f c =11.9 N/mm 2 ;f y =300 N/mm 2 截面配筋验算:计算高度h 0=160-20=140mm0(s c y A h f b f =(14011.91000=⨯⨯ =868mm 2选用12 @120 满足要求。
一跑板式楼梯{商业楼梯}[]已知:层高 3.0m ;踏步尺寸165*280;平台板1100m*1100m ;踏步板1100*4200;踏步板与水平面的夹角31度,则cosa=0.857;计算长度Ln=5.4m ;取板厚为220mm 。
4) 楼梯荷载恒荷载:楼梯面荷载按2.1KN/m 2计算,同楼面板做法。
楼梯段:面层2.1*1*(0.28+0.165)/0.28=3.14KN/m踏步27*0.165*0.28/2*1/0.28=2.23 KN/m斜板砼27*0.220/0.857=6.93 KN/m合计:3.14+2.23+6.93=12.3 KN/m活荷载:2.0 KN/m 2楼梯板段荷载设计值:1.2*12.3+1.4*2.0=17.6 KN/m1.35*12.3+0.7*1.4*2.0=18.6KN/m取18.6 KN/m5) 楼梯内力计算查表得跨中最大弯矩值:M= 2/8ql = 18.6x5.42/8=67.8 KN*m6) 配筋验算选用C30砼,二级钢筋;f c =14.3N/mm 2 ;f y =300 N/mm 2 截面配筋验算:计算高度h 0=220-20=200mm0(s c y A h f b f =(20014.31000300=⨯⨯=1206mm2选用14 @120 满足要求。
跨度为5.1m 板式楼梯设计1、荷载计算恒荷载:180mm 厚混凝土梯段板 m KN /625.5258.0118.0=⨯⨯2 三角形踏步 2/13.22528.0128.017.021m KN =⨯⨯⨯⨯ 面层及抹灰 m KN /50.12m KN /255.92活荷载m KN /50.32基本组合总荷载设计值:2/006.164.15.32.1255.9m KN =⨯+⨯2、内力设计值取一米板带进行计算,计算跨度m l n 1.5=,均布荷m KN q /006.16= 弯矩设计值:m KN l q M n ⋅=⨯⨯=04.52812 3、截面配筋计算1)、基本参数:由弯矩设计值M 求配筋面积A s ,弯矩设计值M =52.04kN ·M截面尺寸b ×h =1000mm ×180mm混凝土强度等级: C30 混凝土弯曲抗压强度设计值f c =14.3(N/mm )钢筋强度设计值f y =360N/mm 纵筋合力点至近边距离a s =22mm截面有效高度h 0 =h - a s =180-22=158mm2)、计算结果:==20bh f M c s α0.146 2211s s αγ-+==0.921 20993mm h f M A y s s ==γ 实配钢筋为 100@14,21539mm A s =配筋率ρ=A s /(b ×h 0)=1539/(1000×158)=0.974%4、裂缝验算1)、基本资料:矩形截面受弯构件构件受力特征系数αcr =2.1截面宽度b =1000mm 截面高度h =180mm最外层纵向受拉钢筋外边缘至受拉区底边的距离c =15mm <20,取c =20mm 钢筋直径(或等效直径)d =14.0mm 变形钢筋,υ=1钢筋弹性模量Es =200000N/mm纵向受拉钢筋合力点至截面近边的距离a s =22.0mm h 0 = 158mm混凝土抗拉强度标准值f tk =2.01N/mm按荷载效应的标准组合计算的弯距值M k =41.47kN ·m设计时执行的规范:《混凝土结构设计规范》(GB50010-2002) 以下简称 混凝土规范2)、裂缝宽度验算:(1)、以有效受拉混凝土截面面积计算的纵向受拉钢筋配筋率ρte ,按下列公式计算: tes te A A =ρ (混凝土规范8.1.2-4) 对矩形截面的受弯构件:h b A te ⨯⨯=5.029000018010005.0mm A te =⨯⨯=ρte =1539/90000 = 0.0171(2)、按荷载效应的标准组合计算的钢筋混凝土构件纵向受拉钢筋应力σsk ,按下列公式计算:受弯:σsk = M / (0.87×h 0×A s ) (混凝土规范8.1.3-3)σsk = 41470000/(0.87×158×1539) = 196N/mm(3)、裂缝间纵向受拉钢筋应变不均匀系数ψ,按下列公式计算:ψ=1.1 - 0.65f tk / ρte / σsk (混凝土规范8.1.2-2)ψ=1.1 - 0.65×2.01/0.0171/196= 0.71(4)、最大裂缝宽度,按下列公式计算:ωmax =αcr ×ψ×(σsk /Es )× (1.9×c+0.08×d/ρte )(混凝土规范8.1.2-1)=2.1×0.71×(196/200000)×(1.9×20+0.08×14.0/0.0171)ωmax = 0.151mm (<0.3mm)满足裂缝许可要求。
板式楼梯计算书项目名称_____________日期_____________设计者_____________校对者_____________一、构件编号:LT-1二、示意图:三、基本资料:1.依据规范:《建筑结构荷载规范》(GB 50009-2001)《混凝土结构设计规范》(GB 50010-2010)2.几何参数:楼梯净跨: L1= 4200 mm 楼梯高度: H = 2500 mm 梯板厚: t = 200 mm 踏步数: n = 16(阶)上平台楼梯梁宽度: b1= 250 mm上平台楼梯梁宽度: b1= 250 mm3.荷载标准值:可变荷载:q = 2.50kN/m2面层荷载:qm= 1.70kN/m2栏杆荷载:qf= 0.20kN/m永久荷载分项系数: γG = 1.20 可变荷载分项系数: γQ= 1.40准永久值系数: ψq= 0.504.材料信息:混凝土强度等级: C25 fc= 11.90 N/mm2f t = 1.27 N/mm2Rc=25.0 kN/m3f tk = 1.78 N/mm2Ec= 2.80*104 N/mm2钢筋强度等级: HRB335 fy= 300 N/mm2Es= 2.00*105 N/mm2保护层厚度:c = 20.0 mm Rs=20 kN/m3受拉区纵向钢筋类别:光面钢筋梯段板纵筋合力点至近边距离:as= 25.00 mm 支座负筋系数:α = 0.25四、计算过程:1. 楼梯几何参数:踏步高度:h = 0.1563 m踏步宽度:b = 0.2800 m计算跨度:L0 = L1+b1/2-b = 4.20+0.25/2-0.28 = 4.04 m梯段板与水平方向夹角余弦值:cosα = 0.873 2. 荷载计算( 取 B = 1m 宽板带):(1) 梯段板:面层:gkm = (B+B*h/b)*qm= (1+1*0.16/0.28)*1.70 = 2.65 kN/m自重:gkt = Rc*B*(t/cosα+h/2) = 25*1*(0.20/0.873+0.16/2) = 7.68 kN/m抹灰:gks = RS*B*c/cosα = 20*1*0.02/0.873 = 0.46 kN/m恒荷标准值:Pk = gkm+gkt+gks+qf= 2.65+7.68+0.46+0.20 = 10.99 kN/m恒荷控制:P n (G) = 1.35*Pk+γQ*0.7*B*q = 1.35*10.99+1.40*0.7*1*2.50 = 17.28 kN/m活荷控制:Pn (L) = γG*Pk+γQ*B*q = 1.20*10.99+1.40*1*2.50 = 16.68 kN/m荷载设计值:Pn = max{ Pn(G) , Pn(L) } = 17.28 kN/m3. 正截面受弯承载力计算:左端支座反力: Rl= 34.95 kN右端支座反力: Rr= 34.95 kN最大弯矩截面距左支座的距离: Lmax= 2.02 m 最大弯矩截面距左边弯折处的距离: x = 2.02 mM max = Rl*Lmax-Pn*x2/2= 34.95*2.02-17.28*2.022/2 = 35.34 kN·m相对受压区高度:ζ= 0.102203 配筋率:ρ= 0.004054 纵筋(1号)计算面积:As= 709.46 mm2支座负筋(2、3号)计算面积:As '=α*As= 0.25*709.46 = 177.37 mm2五、计算结果:(为每米宽板带的配筋)1.1号钢筋计算结果(跨中)计算面积As:709.46 mm2采用方案: 10@100实配面积: 785 mm22.2号钢筋计算结果(支座)计算面积As':177.37 mm2采用方案: 12@200实配面积: 565 mm23.3号钢筋计算结果采用方案: 8@250实配面积: 201 mm2六、跨中挠度计算:Mk -------- 按荷载效应的标准组合计算的弯矩值Mq -------- 按荷载效应的准永久组合计算的弯矩值1.计算标准组合弯距值Mk:Mk = Mgk +Mqk= (qgk + qqk)*L2/8= (10.99 + 2.500)*4.042/8= 27.582 kN*m2.计算永久组合弯距值Mq:Mq = Mgk +Mqk= (qgk + ψq*qqk)*L2/8= (10.99 + 0.50*2.500)*4.042/8= 25.025 kN*m3.计算受弯构件的短期刚度 Bsk1) 计算按荷载荷载效应的两种组合作用下,构件纵向受拉钢筋应力σsk = Mk/(0.87*h*As) 混规(7.1.4-3)= 27.582*106/(0.87*175*785) = 230.660 N/mmσsq = Mq/(0.87*h*As) 混规(7.1.4-3)= 25.025*106/(0.87*175*785)= 209.280 N/mm2) 计算按有效受拉混凝土截面面积计算的纵向受拉钢筋配筋率矩形截面积: Ate= 0.5*b*h = 0.5*1000*200= 100000 mm2ρte = As/Ate混规(7.1.2-5)= 785/100000= 0.785%3) 计算裂缝间纵向受拉钢筋应变不均匀系数ψψk = 1.1-0.65*ftk /(ρte*σsk) 混规(7.1.2-2)= 1.1-0.65*1.78/(0.785%*230.660) = 0.461ψq = 1.1-0.65*ftk /(ρte*σsq) 混规(7.1.2-2)= 1.1-0.65*1.78/(0.785%*209.280) = 0.3964) 计算钢筋弹性模量与混凝土模量的比值αEαE = ES /EC= 2.00*105/(2.80*104)= 7.1435) 计算受压翼缘面积与腹板有效面积的比值γf矩形截面,γf= 06) 计算纵向受拉钢筋配筋率ρρ = As/(b*h)= 785/(1000*175)= 0.449%7) 计算受弯构件的短期刚度 BSBsk = Es*As*h2/[1.15*ψk+0.2+6*αE*ρ/(1+ 3.5*γf)] 混规(7.2.3-1)= 2.00*105*785*1752/[1.15*0.461+0.2+6*7.143*0.449%/(1+3.5*0.0)]= 52.125*102 kN*m2Bsq = Es*As*h2/[1.15*ψq+0.2+6*αE*ρ/(1+ 3.5*γf)] 混规(7.2.3-1)= 2.00*105*785*1752/[1.15*0.396+0.2+6*7.143*0.449%/(1+3.5*0.0)] = 56.738*102 kN*m24.计算受弯构件的长期刚度B1) 确定考虑荷载长期效应组合对挠度影响增大影响系数θ当ρ`=0时,θ=2.0 混规(7.2.5)2) 计算受弯构件的长期刚度 BBk = Mk/(Mq*(θ-1)+Mk)*Bsk混规(7.2.2-1)= 27.582/(25.025*(2.0-1)+27.582)*52.125*102= 27.329*102 kN*m2Bq = Bsq/θ混规(7.2.2-2)= 56.738/2.000*102= 28.369*102 kN*m2B = min(Bk,Bq)= min(27.329,28.369= 27.329*102 kN*m25.计算受弯构件挠度f maxk = 5*(qgk+Ψq*qqk)*L4/(384*Bk)= 5*(10.99+0.5*2.500)*4.044/(384*27.329*102) = 17.201 mm6.验算挠度挠度限值f0=L/200=4.04/200=20.225 mmf max =17.201mm≤f=20.225mm,满足规范要求!七、裂缝宽度验算:1.计算准永久组合弯距值Mq:Mq = Mgk +ψMqk= (qgk + ψqqk)*L2/8= (10.99 + 0.50*2.500)*4.042/8= 25.025 kN*m2.光面钢筋,所以取值Vi=0.73.C = 204.计算按荷载荷载效应的准永久组合作用下,构件纵向受拉钢筋应力σsq = Mq/(0.87*h*As) 混规(7.1.4-3)= 25.025*106/(0.87*175.00*785)= 209.280 N/mm5.计算按有效受拉混凝土截面面积计算的纵向受拉钢筋配筋率矩形截面积: Ate= 0.5*b*h = 0.5*1000*200= 100000 mm2ρte = As/Ate混规(7.1.2-5)= 785/100000 = 0.785%因为ρte < 1.000%,所以取ρte= 1.000%6.计算裂缝间纵向受拉钢筋应变不均匀系数ψψ = 1.1-0.65*ftk /(ρte*σsq) 混规(7.1.2-2)= 1.1-0.65*1.78/(1.000%*209.280)= 0.5477.计算单位面积钢筋根数nn = 1000/s= 1000/100= 108.计算受拉区纵向钢筋的等效直径deqd eq = (∑ni*di2)/(∑ni*Vi*di)= 10*102/(10*0.7*10)= 149.计算最大裂缝宽度ωmax =αcr*ψ*σsq/ES*(1.9*C+0.08*deq/ρte) 混规(7.1.2-1)= 1.9*0.547*209.280/2.0*105*(1.9*20+0.08*14/1.000%) = 0.1632 mm≤ 0.30 mm,满足规范要求。
【例题 2.1《楼梯、 阳台和雨篷设计》37页, PDF 版47页】 图2.1为某实验楼楼梯的平面图和剖面图。
采用现浇板式楼梯, 混凝土强度等级为C25,
2211.9/, 1.27/c t f N mm f N mm ==钢筋直径d ≥12mm 时
采用HRB400级钢筋, 2360/y f N mm =; d ≤10mm 时采用HPB300级钢筋, 2270/y f N mm =,楼梯活荷载为3.5KN/m ²。
楼梯的结构布置如图2.8所示。
斜板两端与平台梁和楼梯梁整结, 平台板一端与平台梁整结, 平台板一端与平台梁整结, 另一端则与窗过梁整结, 平台梁两端都搁置在楼梯间的侧墙上。
试对此现浇板式楼梯进行结构设计。
解:
1) 斜板TB1设计
除底层第一跑楼梯的斜板外, 其余斜板均相同, 而第一跑楼梯斜板的下端为混凝土基础, 可按净跨计算。
这里只对标准段斜板TB1进行设计。
对斜板TB1取1m 宽作为其计算单元。
(1)确定斜板厚度t
斜板的水平投影净长为l 1n =3300mm
斜板的斜向净长为113691cos n n l l mm α=
== 斜板厚度为t 1=( 1/25~1/30) l 1n =(1/25~1/30)×3300=110~120mm,取t 1=120mm 。
( 根据”混凝土结构构造手册( 第四版) ”384页)
( 2) 荷载计算, 楼梯斜板荷载计算见表2.3。
表2.3楼梯斜板荷载计算
水磨石面层的容重为0.65KN/m ²(GB50009- , 附录A-15, 84页); 纸筋灰容重16KN/m ³( GB50009- , 附录A-6, 75页, 实际工程中已被水泥砂浆代替) 以上计算的荷载设计值是由可变荷载控制的组合, 计算由永久荷载控制的组合 1.357.160.98 3.513.10/p KN m =⨯+⨯=, 综合取p=13.50KN/m
( 3) 计算简图
如前所述, 斜板的计算简图可用一根假想的跨度为l 1n 的水平梁替代, 如图 2.9所示。
其计算跨度取斜板水平投影净长l 1n =3300mm 。
对于底层第一跑楼梯的计算跨度, 视下端与基础的结合情况而定。
当下端是搁置在砖砌地垄墙上时, 则应从地垄墙中心线起算; 当下端与混凝土基础相连时, 则可按净跨计算。
( 4) 内力计算
剪力V=1/2×p ×l1n=0.5×13.50×3.3=22.28KN<0.7ftbh0=0.7×1.27×1000×100=88.9KN 满足条件( GB50010- , 6..3.3)
斜板的内力, 一般只需计算跨中最大弯矩即可。
考虑到斜板两端均与梁整结, 对板有约束作用, 因此跨中最大弯矩取:
22
113.50 3.314.70.1010
n pl M KN m
⨯===( 根据”混凝土结构构造手册( 第四版) ”384页)
( 5) 配筋计算
h 0= t 1-20=120-20=100mm(GB50010- , 表8.2.1, Ⅰ类环境, 板的受力筋的保护层厚度为15mm, 20s a mm
=, 受力筋拟使用
HRB400级钢筋)
05
62
2
001min 0.80.8
0.518
360
110.00332100.00332214.701010010013.230.51810051.8111.91000
1.27max 0.2%,0.45
max 0.2%,0.450.002360b y s
b c t y f E M x h h mm h mm
f b f f ξξαρ=
=
=+
+
⨯⨯⨯⨯⨯=--=--=<=⨯=⨯⨯⎧⎫⎪
⎪⎧
⎫===⎨⎬⎨⎬⎩⎭⎪⎪
⎩
⎭22
1111.9100013.23
4370.0021000120240360
c s y
f bx
A mm mm f α⨯⨯⨯=
=
=>⨯⨯=, 选用: ①下部受力筋
12@150, As=754mm ²,
01.360754
22.80.51810051.8111.91000
y s
b c f A x mm h mm f b
ξα⨯=
=
=<=⨯=⨯⨯不超筋
②下部分布筋, As>max{0.15×754, 0.15%×120×1000}= max{113.1, 180}=180 mm ²( GB50010- , 9.1.7当按单向板设计时, 应在垂直于受力的方向布置分布钢筋, 单位宽度上的配筋不宜小于单位宽度上的受力钢筋的15%, 且配筋率不宜小于0.15%; 分布钢筋直径不宜小于6mm, 间距不宜大于250mm; 当集中荷载较大时, 分布钢筋的配筋面积尚应增加, 且间距不宜大于200mm 。
当有实践经验或可靠措施时, 预制单向板的分布钢筋可不受本条的限制; 若按最小配筋率计算As>0.002×120×1000=240mm ²) , 选用
8@200, As=251mm ²。
以后能够不计算分布筋直接按照8@200, 见构造手册383页。